Terreno para Venda em Romariz
140.000 €
Tipo
Terreno
Negócio
Venda
Certificado Energético
N/A
Área do Terreno
3354 m²
Constrói a tua casa de Sonho
Estas à procura de um terreno para construir a tua moradia de sonho?
Ou queres investir na construção de Moradias geminadas, já com Projeto aprovado?
Dás valor a uma zona tranquila e com espaços verdes?
Temos o ideal para ti.
Este terreno encontra-se localizado numa zona residencial, tranquila e com muitos espaços verdes em Romariz a 15 minutos do centro da cidade de Santa Maria da Feira e com acessos fáceis a A1, IC1, A 29 e A32.
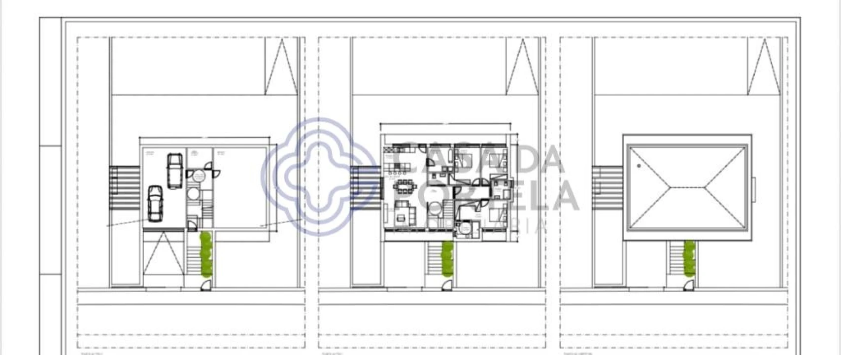
Terreno com 3.354 m2, já com projeto aprovado para duas Moradias geminadas (só ligadas pela zona de churrasqueira), espetaculares para a construção com um design moderno.
No seu interior poderá encontrar um moderno e aconchegante ambiente, com acabamentos únicos e requintados.
Na Cave encontra-se uma garagem para 2 carros, lavandaria e 1 salão para eventos no Rés-Chão encontra-se uma cozinha equipada em conceito open space o que permitirá a vivência de momentos únicos e memoráveis, em família ou com amigos, dispondo ainda de uma ligação direta ao jardim, tornando o espaço extremamente versátil. Neste piso encontras três quartos, sendo um deles suite com WC e closet. Tens um WC de apoio aos outros dois quartos.
Podes também desfrutar de um espaço exterior agradável para momentos mais reservados.
A nossa equipa está preparada para lhe prestar o apoio que precisar, nomeadamente com parcerias ao nível da construção.
Ou queres investir na construção de Moradias geminadas, já com Projeto aprovado?
Dás valor a uma zona tranquila e com espaços verdes?
Temos o ideal para ti.
Este terreno encontra-se localizado numa zona residencial, tranquila e com muitos espaços verdes em Romariz a 15 minutos do centro da cidade de Santa Maria da Feira e com acessos fáceis a A1, IC1, A 29 e A32.
Terreno com 3.354 m2, já com projeto aprovado para duas Moradias geminadas (só ligadas pela zona de churrasqueira), espetaculares para a construção com um design moderno.
No seu interior poderá encontrar um moderno e aconchegante ambiente, com acabamentos únicos e requintados.
Na Cave encontra-se uma garagem para 2 carros, lavandaria e 1 salão para eventos no Rés-Chão encontra-se uma cozinha equipada em conceito open space o que permitirá a vivência de momentos únicos e memoráveis, em família ou com amigos, dispondo ainda de uma ligação direta ao jardim, tornando o espaço extremamente versátil. Neste piso encontras três quartos, sendo um deles suite com WC e closet. Tens um WC de apoio aos outros dois quartos.
Podes também desfrutar de um espaço exterior agradável para momentos mais reservados.
A nossa equipa está preparada para lhe prestar o apoio que precisar, nomeadamente com parcerias ao nível da construção.
Localização
Romariz, Santa Maria da Feira, Aveiro
Informação do anúncio
ID do anúncio
1259078
Referência Externa
1103941
Atualizado em
26/04/2026 23:19:28
Anunciante
Chamada para a rede fixa nacional
Casa da Portela
AMI 10340
Referência do imóvel:
1103941
Terreno para Venda em Romariz