Voltar
Moradia T4 para Venda em Montenegro Foto 1
Moradia T4 para Venda em Montenegro Foto 2
Moradia T4 para Venda em Montenegro Foto 3
Moradia T4 para Venda em Montenegro Foto 4
Moradia T4 para Venda em Montenegro Foto 5

Moradia T4 para Venda em Montenegro

3.300.000 €

Tipo
Moradia
Negócio
Venda
Quartos
4
Casas de Banho
5
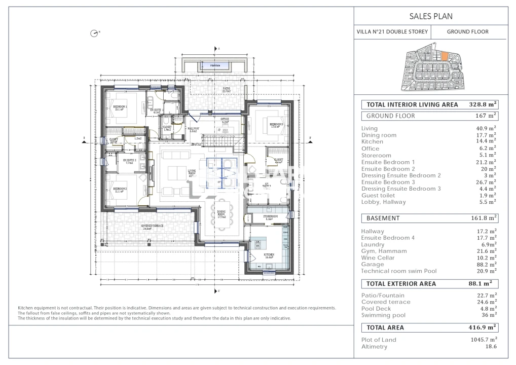
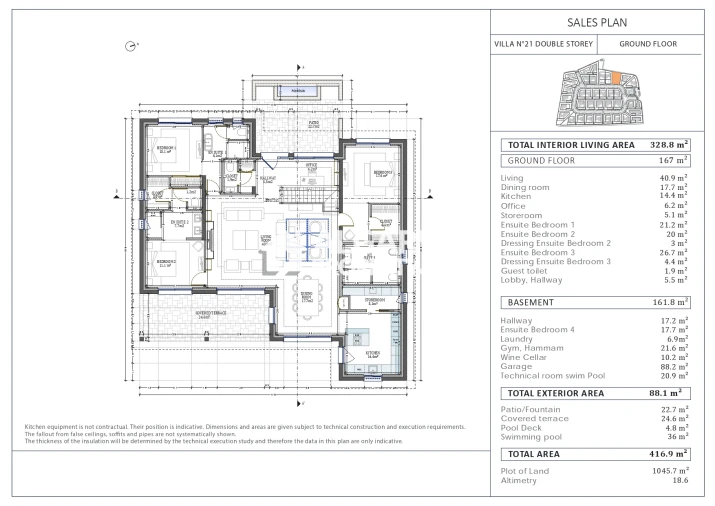
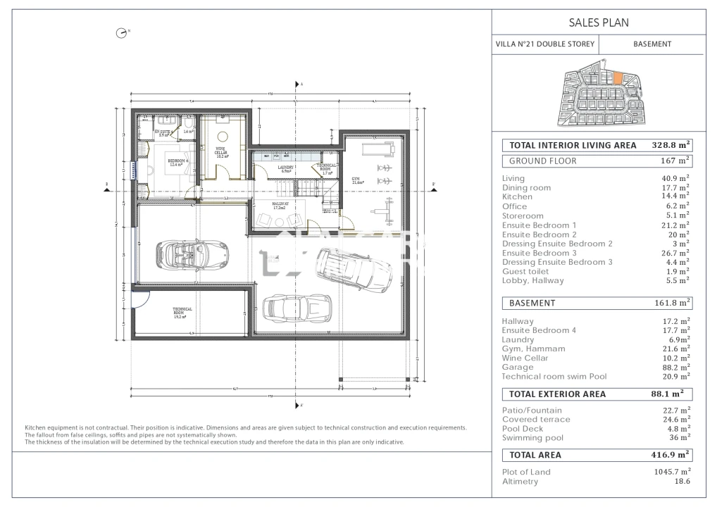
Área Bruta
544 m²
Área Útil
544 m²
Condição
Para Obras
Certificado Energético
A+
Área do Terreno
1045 m²

Moradia T4 na Premier Private Villa Resort em Faro

Esta luxuosa moradia de 4 quartos está localizada no coração de Faro, dentro do principal resort de moradias privadas em Faro. Este resort exclusivo, com vista para a serena lagoa da Ria Formosa, tem uma área de mais de 5 hectares de terreno imaculado e fechado, proporcionando um oásis de tranquilidade a poucos passos do vibrante centro da cidade e das praias deslumbrantes.

A moradia virada a sudeste tem uma área de 544 m² com um terreno de 1045 m², inclui a sua própria piscina privada com um deck de piscina situado no meio de luxuriantes jardins mediterrânicos. A moradia tem espaços amplos e elegantemente concebidos, garantindo um amplo espaço e conforto.

Esta moradia é o epítome do luxo moderno, apresentando:

Comodidades sem paralelo, a moradia inclui:
- 4 Quartos com casa de banho privativa
- Cozinha totalmente equipada com electrodomésticos Samsung, LG ou Bosch de alta qualidade
- Adega de vinhos
- Área de fitness e Hamman
- Interiores espaçosos e iluminados pelo sol com grandes portas de entrada em vidro
- Pavimento em travertino e acabamentos em mármore nas casas de banho
- Acesso seguro com videofone, porteiro e videovigilância
- Propriedade totalmente vedada com portões eléctricos e portas de garagem automáticas

Espaços exteriores elegantes
O seu refúgio privado estende-se ao exterior com pátios paisagísticos de grande beleza, com deslumbrantes fontes de pedra e mosaico. Aprecie a flora mediterrânica, incluindo oliveiras, buganvílias e alfazema, tudo isto num cenário de vistas deslumbrantes sobre a Ria Formosa. A piscina de betão armado da villa pode ser personalizada com uma escolha de cores de mosaico e sistemas de filtragem (sal ou cloro).

Localização privilegiada
A proximidade do centro da cidade de Faro e das belas praias é excecional, combinando o melhor dos dois mundos - um retiro tranquilo com fácil acesso à vibrante vida urbana e à beleza natural. A localização estratégica da propriedade e as comodidades luxuosas fazem dela a escolha ideal para quem procura um estilo de vida sereno, mas conectado.

O resort é um paraíso de paz e luxo, um lugar para relaxar, sonhar e desfrutar das coisas boas da vida.

Para saber mais sobre esta fantástica moradia ou para agendar uma visita privada, por favor contacte-nos. Não perca a oportunidade de fazer parte desta comunidade exclusiva no coração do Algarve!

AlgarveProperty.com - AMI: 2196 - T.: 00351 289310310

Localização

Montenegro, Faro, Faro

Informação do anúncio

ID do anúncio 1265294
Referência Externa EM248081M
Atualizado em 06/05/2026 00:33:16
https://www.algarveproperty.com/ AMI 2196
Referência do imóvel: EM248081M
Phone
Chamada para a rede fixa nacional
https://www.algarveproperty.com/ AMI 2196
Referência do imóvel: EM248081M
Phone
Chamada para a rede fixa nacional
1 / 50
Moradia T4 para Venda em Montenegro Foto 1
Moradia T4 para Venda em Montenegro Foto 2
Moradia T4 para Venda em Montenegro Foto 3
Moradia T4 para Venda em Montenegro Foto 4
Moradia T4 para Venda em Montenegro Foto 5
Moradia T4 para Venda em Montenegro Foto 6
Moradia T4 para Venda em Montenegro Foto 7
Moradia T4 para Venda em Montenegro Foto 8
Moradia T4 para Venda em Montenegro Foto 9
Moradia T4 para Venda em Montenegro Foto 10
Moradia T4 para Venda em Montenegro Foto 11
Moradia T4 para Venda em Montenegro Foto 12
Moradia T4 para Venda em Montenegro Foto 13
Moradia T4 para Venda em Montenegro Foto 14
Moradia T4 para Venda em Montenegro Foto 15
Moradia T4 para Venda em Montenegro Foto 16
Moradia T4 para Venda em Montenegro Foto 17
Moradia T4 para Venda em Montenegro Foto 18
Moradia T4 para Venda em Montenegro Foto 19
Moradia T4 para Venda em Montenegro Foto 20
Moradia T4 para Venda em Montenegro Foto 21
Moradia T4 para Venda em Montenegro Foto 22
Moradia T4 para Venda em Montenegro Foto 23
Moradia T4 para Venda em Montenegro Foto 24
Moradia T4 para Venda em Montenegro Foto 25
Moradia T4 para Venda em Montenegro Foto 26
Moradia T4 para Venda em Montenegro Foto 27
Moradia T4 para Venda em Montenegro Foto 28
Moradia T4 para Venda em Montenegro Foto 29
Moradia T4 para Venda em Montenegro Foto 30
Moradia T4 para Venda em Montenegro Foto 31
Moradia T4 para Venda em Montenegro Foto 32
Moradia T4 para Venda em Montenegro Foto 33
Moradia T4 para Venda em Montenegro Foto 34
Moradia T4 para Venda em Montenegro Foto 35
Moradia T4 para Venda em Montenegro Foto 36
Moradia T4 para Venda em Montenegro Foto 37
Moradia T4 para Venda em Montenegro Foto 38
Moradia T4 para Venda em Montenegro Foto 39
Moradia T4 para Venda em Montenegro Foto 40
Moradia T4 para Venda em Montenegro Foto 41
Moradia T4 para Venda em Montenegro Foto 42
Moradia T4 para Venda em Montenegro Foto 43
Moradia T4 para Venda em Montenegro Foto 44
Moradia T4 para Venda em Montenegro Foto 45
Moradia T4 para Venda em Montenegro Foto 46
Moradia T4 para Venda em Montenegro Foto 47
Moradia T4 para Venda em Montenegro Foto 48
Moradia T4 para Venda em Montenegro Foto 49
Moradia T4 para Venda em Montenegro Foto 50
Planta 1 / 3
Moradia T4 para Venda em Montenegro Planta 1
Moradia T4 para Venda em Montenegro Planta 2
Moradia T4 para Venda em Montenegro Planta 3
Clicky