Voltar
Quinta T4 para Venda em São Domingos de Rana Foto 1
Quinta T4 para Venda em São Domingos de Rana Foto 2
Quinta T4 para Venda em São Domingos de Rana Foto 3
Quinta T4 para Venda em São Domingos de Rana Foto 4
Quinta T4 para Venda em São Domingos de Rana Foto 5

Quinta T4 para Venda em São Domingos de Rana

950.000 €

Tipo
Quinta
Negócio
Venda
Quartos
4
Casas de Banho
4
Área Bruta
306 m²
Área Útil
275 m²
Condição
Novo
Certificado Energético
Avaliação em curso
Área do Terreno
383 m²

SAO D RANA Moradia V4+2 Piscina Jardim Garagem 4quartos Sala

Moradia V4+1, de arquitetura contemporânea e linhas direitas, pensada ao pormenor, com todo o conforto, funcionalidade e luminosidade.

Moradia composta por 4 quartos + escritório e/ou ginásio + Sala com varanda + Cozinha com lavandaria + Garagem para dois carros + Piscina, jardim e zona de refeições.

Organizada em meios pisos (em socalcos), a distribuição da casa oferece um ambiente fluido e moderno, com amplas janelas que maximizam a luz natural e proporcionam uma forte ligação ao exterior.

PISO JARDIM sul
Piscina retangular 7x4= 28m2
Zona relvada 32m2
Deck para espreguiçadeiras
Zona para refeições
Arvores, arbustos, sementeiras
Decoração pedras e gravilha
Iluminação ao longo dos espaços e piscina

PISO ENTRADA
Terraço 16m2
Garagem 24m2

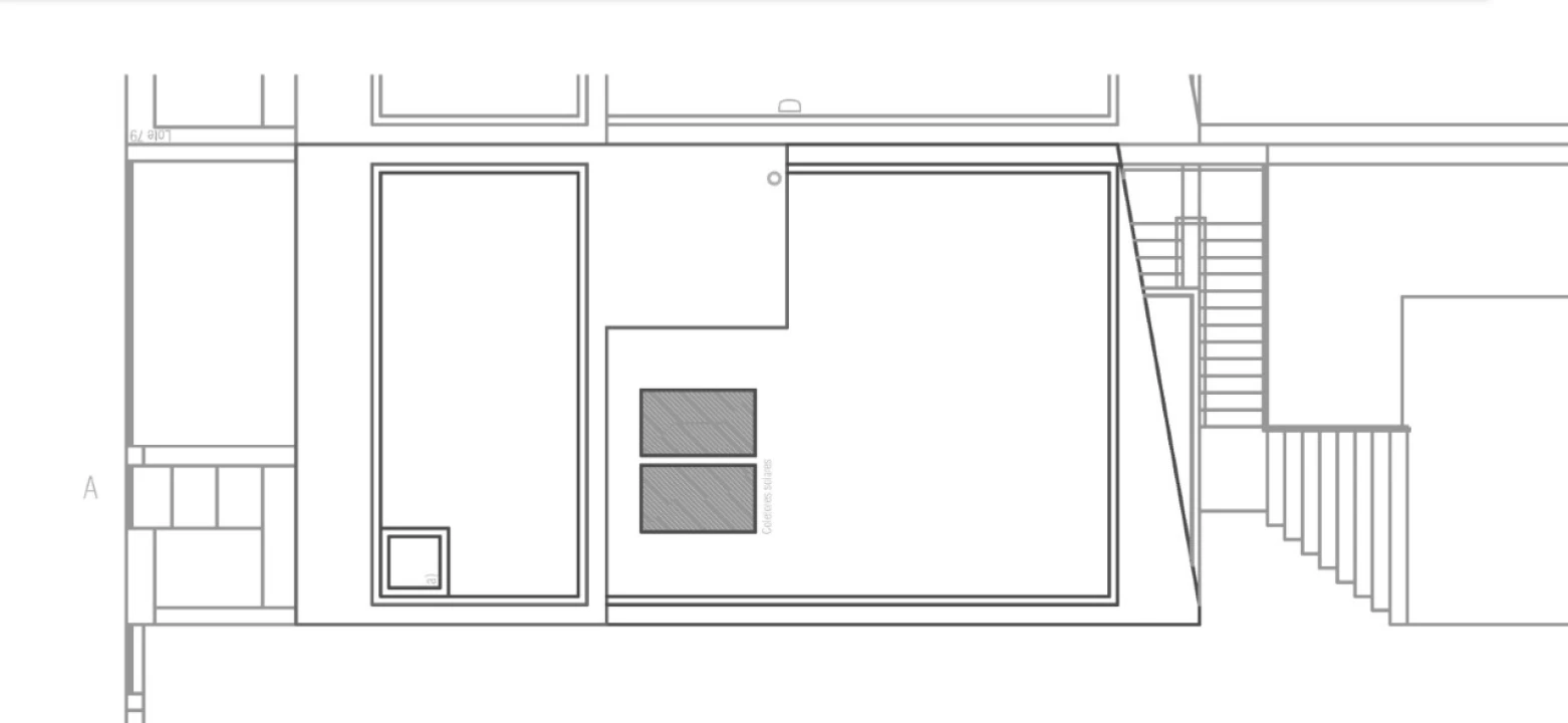
PISO SALA:
Sala 43m2
Varanda
Cozinha 13m2
Lavandaria 6m2
WC social 2m2

PISO QUARTOS
- Suite 25m2
WC
Varanda
- Suite 28m2
WC
Varanda
- Suite 28m2
WC
Varanda

PISO TERREO
Ginásio/ escritório
Arrumos / Sala cinema

COBERTURA técnica
Espaço com 50m2

+

ACABAMENTOS
Domótica;
Sistema automatismo de Luzes, Estores, Alarme e Portão da Garagem
Video porteiro à distância
Sistema de Alarme
Chão radiante
Bomba calor
Estores laminados
Iluminação indireta
Isolamento Termico e Acustico
Pavimento Radiante / Aquecido em todas as instalações sanitárias
Ar condicionado com sistema multi split por condutas em todas as divisões
Bomba de calor de alta eficiência energética com pré-instalação de solar termico
Eletrodomésticos Siemens ou Bosch
Bancada da cozinha em Lioz
Pré-instalação carregadores elétricos
Pré-instalação de videovigilância
Pré-instalação de gás

Moradia com construção de elevada qualidade e sustentabilidade, bom gosto e acabamentos.

LOCALIZAÇÃO
A 5 minutos da A5, com fácil acesso a Lisboa ou Cascais
Próximo de supermercados, comércio, escolas e restaurantes
A 10 minutos das praias

A informação disponibilizada não dispensa a sua confirmação e não pode ser considerada vinculativa.

Conte com o nosso total empenho:
- Em todo o processo de compra e venda do seu imóvel;
- Na procura de um imóvel à medida das suas necessidades;
- No acompanhamento de propostas sempre assegurando o seu melhor interesse;
- Na apresentação das mais vantajosas soluções financeiras;
- No apoio do processo de financiamento;
- Na marcação e realização do Contrato Promessa Compra e Venda;
- Na marcação e efetivação da Escritura Pública de Compra e Venda

NOTA: Imóvel em regime de 50/50 com todas as imobiliárias com licença válida

Localização

São Domingos de Rana, Cascais, Lisboa

Informação do anúncio

ID do anúncio 1275106
Referência Externa T4 2T
Atualizado em 23/12/2025 06:19:42
HomeFeeling Portugal AMI 9926
Referência do imóvel: T4 2T
Phone
Chamada para a rede móvel nacional
HomeFeeling Portugal AMI 9926
Referência do imóvel: T4 2T
Phone
Chamada para a rede móvel nacional
1 / 42
Quinta T4 para Venda em São Domingos de Rana Foto 1
Quinta T4 para Venda em São Domingos de Rana Foto 2
Quinta T4 para Venda em São Domingos de Rana Foto 3
Quinta T4 para Venda em São Domingos de Rana Foto 4
Quinta T4 para Venda em São Domingos de Rana Foto 5
Quinta T4 para Venda em São Domingos de Rana Foto 6
Quinta T4 para Venda em São Domingos de Rana Foto 7
Quinta T4 para Venda em São Domingos de Rana Foto 8
Quinta T4 para Venda em São Domingos de Rana Foto 9
Quinta T4 para Venda em São Domingos de Rana Foto 10
Quinta T4 para Venda em São Domingos de Rana Foto 11
Quinta T4 para Venda em São Domingos de Rana Foto 12
Quinta T4 para Venda em São Domingos de Rana Foto 13
Quinta T4 para Venda em São Domingos de Rana Foto 14
Quinta T4 para Venda em São Domingos de Rana Foto 15
Quinta T4 para Venda em São Domingos de Rana Foto 16
Quinta T4 para Venda em São Domingos de Rana Foto 17
Quinta T4 para Venda em São Domingos de Rana Foto 18
Quinta T4 para Venda em São Domingos de Rana Foto 19
Quinta T4 para Venda em São Domingos de Rana Foto 20
Quinta T4 para Venda em São Domingos de Rana Foto 21
Quinta T4 para Venda em São Domingos de Rana Foto 22
Quinta T4 para Venda em São Domingos de Rana Foto 23
Quinta T4 para Venda em São Domingos de Rana Foto 24
Quinta T4 para Venda em São Domingos de Rana Foto 25
Quinta T4 para Venda em São Domingos de Rana Foto 26
Quinta T4 para Venda em São Domingos de Rana Foto 27
Quinta T4 para Venda em São Domingos de Rana Foto 28
Quinta T4 para Venda em São Domingos de Rana Foto 29
Quinta T4 para Venda em São Domingos de Rana Foto 30
Quinta T4 para Venda em São Domingos de Rana Foto 31
Quinta T4 para Venda em São Domingos de Rana Foto 32
Quinta T4 para Venda em São Domingos de Rana Foto 33
Quinta T4 para Venda em São Domingos de Rana Foto 34
Quinta T4 para Venda em São Domingos de Rana Foto 35
Quinta T4 para Venda em São Domingos de Rana Foto 36
Quinta T4 para Venda em São Domingos de Rana Foto 37
Quinta T4 para Venda em São Domingos de Rana Foto 38
Quinta T4 para Venda em São Domingos de Rana Foto 39
Quinta T4 para Venda em São Domingos de Rana Foto 40
Quinta T4 para Venda em São Domingos de Rana Foto 41
Quinta T4 para Venda em São Domingos de Rana Foto 42
Planta 1 / 6
Quinta T4 para Venda em São Domingos de Rana Planta 1
Quinta T4 para Venda em São Domingos de Rana Planta 2
Quinta T4 para Venda em São Domingos de Rana Planta 3
Quinta T4 para Venda em São Domingos de Rana Planta 4
Quinta T4 para Venda em São Domingos de Rana Planta 5
Quinta T4 para Venda em São Domingos de Rana Planta 6
Clicky