Voltar
Terreno para Venda em A dos Cunhados e Maceira Foto 1
Terreno para Venda em A dos Cunhados e Maceira Foto 2
Terreno para Venda em A dos Cunhados e Maceira Foto 3
Terreno para Venda em A dos Cunhados e Maceira Foto 4
Terreno para Venda em A dos Cunhados e Maceira Foto 5

Terreno para Venda em A dos Cunhados e Maceira

86.500 €

Tipo
Terreno
Negócio
Venda
Área Bruta
284 m²
Área Útil
205 m²
Condição
Não Aplicável
Certificado Energético
A+
Área do Terreno
710 m²

Terreno A dos Cunhados

Terreno com licença a levantamento.
Tem projeto de arquitetura aprovado para Moradia com dois pisos e piscina, T3+1, com as seguintes caraterísticas:
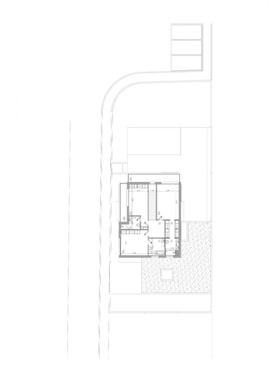
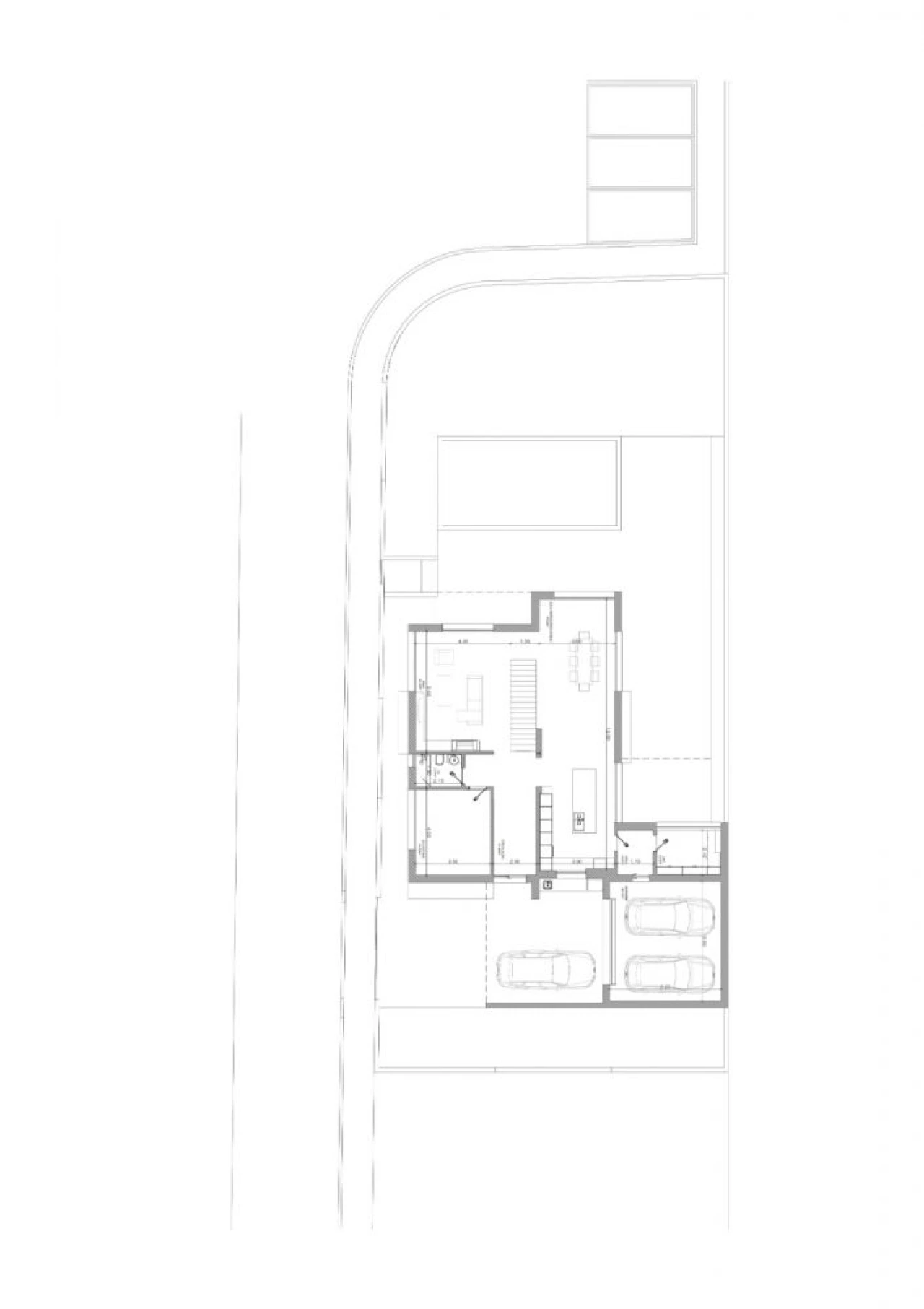
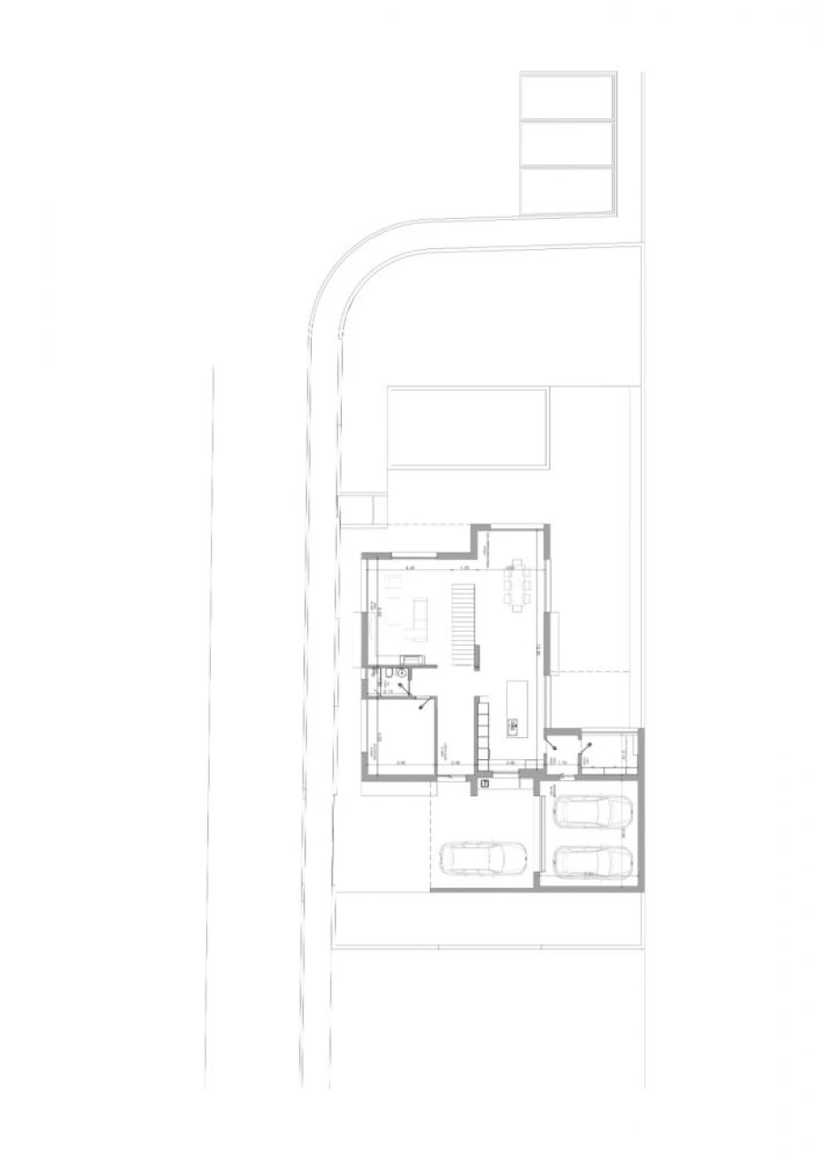
No rés-do-chão temos :
Sala de refeições/cozinha em open space com 44 m2;
Sala de estar com 25 m2;
Escritório com 14 m2;
Wc de serviço com 3 m2;
No espaço exterior temos uma piscina de 8,20 m por 4 m, com espaço exterior amplo onde pode aproveitar os dias de verão, uma lavandaria com 6,25 m2, uma garagem com 29,10 m2, com espaço para dois automóveis e mais um espaço para estacionamento exterior de outro automóvel.
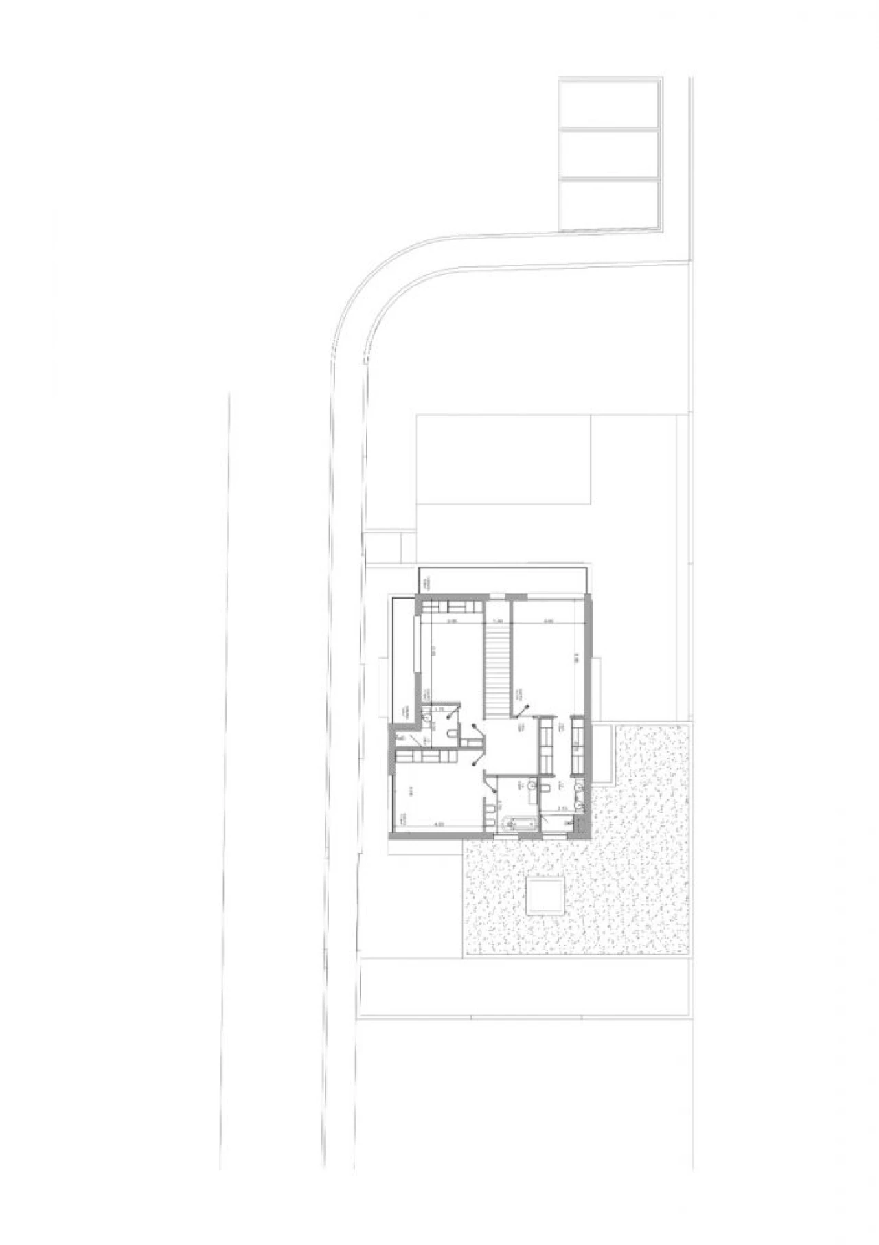
No primeiro piso temos três suítes com as seguintes caraterísticas:
Uma delas com 19,75 m2 com closet de 5,90 m2, e casa de banho com 5,30 m2;
A segunda suíte tem 17,40 m2 e casa de banho com 4,60 m2;
A terceira suíte tem os mesmos 17,40 m2 e casa de banho com 6,90 m2;
Há ainda duas varandas, uma com 10,80 m2 e outra com 6,80 m2.
Junto ao campo e á natureza, mas perto da ligação á auto estrada e de todos os serviços essenciais ao seu dia-a-dia, encontra este terreno fantástico onde pode construir a sua casa de sonho, com conforto e qualidade superior.
Fica localizado em A-dos-Cunhados, a 60 km de Lisboa, a 20 km de Torres Vedras, a 9 km da praia de Santa Cruz e a 7 km da praia de Santa Rita.

Localização

A dos Cunhados e Maceira, Torres Vedras, Lisboa

Informação do anúncio

ID do anúncio 1290096
Referência Externa SFF245
Atualizado em 13/01/2026 09:32:09
Sigma Oeste Imobiliária AMI 15281
Referência do imóvel: SFF245
Phone
Chamada para a rede móvel nacional
Sigma Oeste Imobiliária AMI 15281
Referência do imóvel: SFF245
Phone
Chamada para a rede móvel nacional
1 / 45
Terreno para Venda em A dos Cunhados e Maceira Foto 1
Terreno para Venda em A dos Cunhados e Maceira Foto 2
Terreno para Venda em A dos Cunhados e Maceira Foto 3
Terreno para Venda em A dos Cunhados e Maceira Foto 4
Terreno para Venda em A dos Cunhados e Maceira Foto 5
Terreno para Venda em A dos Cunhados e Maceira Foto 6
Terreno para Venda em A dos Cunhados e Maceira Foto 7
Terreno para Venda em A dos Cunhados e Maceira Foto 8
Terreno para Venda em A dos Cunhados e Maceira Foto 9
Terreno para Venda em A dos Cunhados e Maceira Foto 10
Terreno para Venda em A dos Cunhados e Maceira Foto 11
Terreno para Venda em A dos Cunhados e Maceira Foto 12
Terreno para Venda em A dos Cunhados e Maceira Foto 13
Terreno para Venda em A dos Cunhados e Maceira Foto 14
Terreno para Venda em A dos Cunhados e Maceira Foto 15
Terreno para Venda em A dos Cunhados e Maceira Foto 16
Terreno para Venda em A dos Cunhados e Maceira Foto 17
Terreno para Venda em A dos Cunhados e Maceira Foto 18
Terreno para Venda em A dos Cunhados e Maceira Foto 19
Terreno para Venda em A dos Cunhados e Maceira Foto 20
Terreno para Venda em A dos Cunhados e Maceira Foto 21
Terreno para Venda em A dos Cunhados e Maceira Foto 22
Terreno para Venda em A dos Cunhados e Maceira Foto 23
Terreno para Venda em A dos Cunhados e Maceira Foto 24
Terreno para Venda em A dos Cunhados e Maceira Foto 25
Terreno para Venda em A dos Cunhados e Maceira Foto 26
Terreno para Venda em A dos Cunhados e Maceira Foto 27
Terreno para Venda em A dos Cunhados e Maceira Foto 28
Terreno para Venda em A dos Cunhados e Maceira Foto 29
Terreno para Venda em A dos Cunhados e Maceira Foto 30
Terreno para Venda em A dos Cunhados e Maceira Foto 31
Terreno para Venda em A dos Cunhados e Maceira Foto 32
Terreno para Venda em A dos Cunhados e Maceira Foto 33
Terreno para Venda em A dos Cunhados e Maceira Foto 34
Terreno para Venda em A dos Cunhados e Maceira Foto 35
Terreno para Venda em A dos Cunhados e Maceira Foto 36
Terreno para Venda em A dos Cunhados e Maceira Foto 37
Terreno para Venda em A dos Cunhados e Maceira Foto 38
Terreno para Venda em A dos Cunhados e Maceira Foto 39
Terreno para Venda em A dos Cunhados e Maceira Foto 40
Terreno para Venda em A dos Cunhados e Maceira Foto 41
Terreno para Venda em A dos Cunhados e Maceira Foto 42
Terreno para Venda em A dos Cunhados e Maceira Foto 43
Terreno para Venda em A dos Cunhados e Maceira Foto 44
Terreno para Venda em A dos Cunhados e Maceira Foto 45
Clicky