Terreno para Venda em Esmoriz
567.000 €
Tipo
Terreno
Negócio
Venda
Área Bruta
6300 m²
Área Útil
4200 m²
Condição
Novo
Certificado Energético
Não se aplica
Área do Terreno
4166 m²
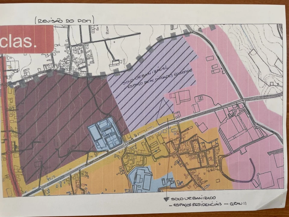
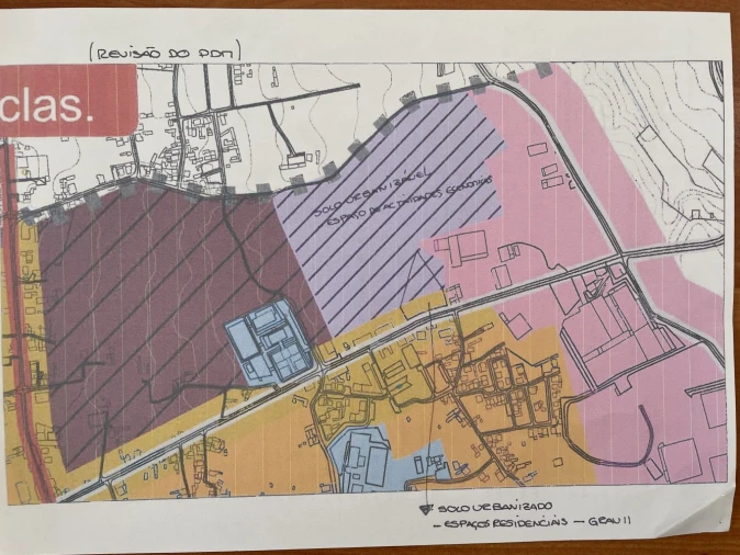
Excelente Terreno P/Construção em Altura
**Terreno à Venda em Esmoriz - Oportunidade Única!**
Descubra este excelente terreno para construção em altura, com uma vista deslumbrante para o mar.
Localizado no acesso principal da A29, a cidade de Esmoriz oferece uma localização privilegiada, ideal para quem procura conforto e acessibilidade.
Com uma capacidade construtiva que permite cave, rés-do-chão +3 pisos, e aproveitamento de sótão para arrumos.
Este espaço é perfeito para desenvolver um condomínio privado com zonas ajardinadas e um campo de jogos, por exemplo.
Com permissão para implantar edificio corrido com 70 metros de frente e 15 metros de profundidade, ou
3 blocos com 15 metros de frente por 30 metros de profundidade, permitindo uma maior implantação e capacidade construtiva,
sendo que a área total do terreno é de 4.166 m², oferecendo uma vasta gama de possibilidades.
A infraestrutura já está preparada, com acesso urbano, água e iluminação pública disponíveis, sendo uma localização altamente recomendável para construção de habitação.
A localização é imbatível, com comércio e serviços nas proximidades, além de estar a apenas 1.500 metros da estação de comboio e a 3.500 metros das praias.
Para quem valoriza a educação, há várias escolas nas redondezas, incluindo a Escola Secundária e a EB 2/3 Florbela Espanca.
Com supermercados como Continente, Intermarchê e Pingo Doce a poucos minutos de distância, o dia a dia torna-se muito mais prático.
Não perca esta oportunidade de investir num terreno que combina localização, potencial construtivo e qualidade de vida.
Venha conhecer e imagine o futuro que pode construir aqui!
Somos uma equipa dinâmica e com larga experiência no mercado. A nossa estratégia assenta numa imagem de confiança, proximidade e resolução com os nossos clientes.
Pautamo-nos pelo objetivo de prestarmos um serviço de qualidade, correspondente às necessidades e expetativas dos nossos clientes.
Tratamos de todo o processo e acompanhamento até à escritura, bastando apenas que escolha o imóvel!
Descubra este excelente terreno para construção em altura, com uma vista deslumbrante para o mar.
Localizado no acesso principal da A29, a cidade de Esmoriz oferece uma localização privilegiada, ideal para quem procura conforto e acessibilidade.
Com uma capacidade construtiva que permite cave, rés-do-chão +3 pisos, e aproveitamento de sótão para arrumos.
Este espaço é perfeito para desenvolver um condomínio privado com zonas ajardinadas e um campo de jogos, por exemplo.
Com permissão para implantar edificio corrido com 70 metros de frente e 15 metros de profundidade, ou
3 blocos com 15 metros de frente por 30 metros de profundidade, permitindo uma maior implantação e capacidade construtiva,
sendo que a área total do terreno é de 4.166 m², oferecendo uma vasta gama de possibilidades.
A infraestrutura já está preparada, com acesso urbano, água e iluminação pública disponíveis, sendo uma localização altamente recomendável para construção de habitação.
A localização é imbatível, com comércio e serviços nas proximidades, além de estar a apenas 1.500 metros da estação de comboio e a 3.500 metros das praias.
Para quem valoriza a educação, há várias escolas nas redondezas, incluindo a Escola Secundária e a EB 2/3 Florbela Espanca.
Com supermercados como Continente, Intermarchê e Pingo Doce a poucos minutos de distância, o dia a dia torna-se muito mais prático.
Não perca esta oportunidade de investir num terreno que combina localização, potencial construtivo e qualidade de vida.
Venha conhecer e imagine o futuro que pode construir aqui!
Somos uma equipa dinâmica e com larga experiência no mercado. A nossa estratégia assenta numa imagem de confiança, proximidade e resolução com os nossos clientes.
Pautamo-nos pelo objetivo de prestarmos um serviço de qualidade, correspondente às necessidades e expetativas dos nossos clientes.
Tratamos de todo o processo e acompanhamento até à escritura, bastando apenas que escolha o imóvel!
Localização
Esmoriz, Ovar, Aveiro
Informação do anúncio
ID do anúncio
1290101
Referência Externa
00192
Atualizado em
09/10/2025 08:34:31
Anunciante
Chamada para a rede móvel nacional
Alicasas de Alice Gonçalves- Mediação Imobiliária Unipessoal, Lda
AMI 9357
Referência do imóvel:
00192
Terreno para Venda em Esmoriz