Terreno para Venda em Ferragudo
3.090.000 €
Tipo
Terreno
Negócio
Venda
Área Bruta
109 m²
Área Útil
86 m²
Condição
Por recuperar
Certificado Energético
Isento
Área do Terreno
15620 m²
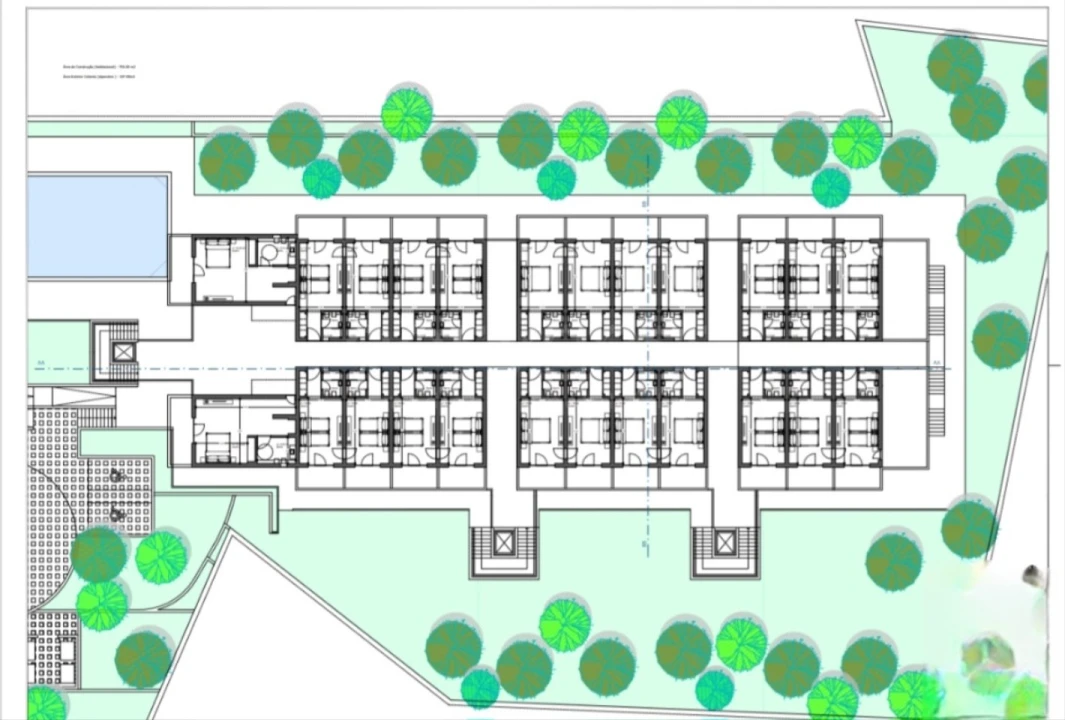
Lote de terreno com Projeto aprovado para Hotel - Ferragudo
Descubra uma oportunidade única de investimento em Ferragudo, Lagoa, uma região em rápida expansão, conhecida pela construção de residências de luxo e sua proximidade à deslumbrante praia do Pintadinho.
Este lote de 15.620 m² oferece um potencial excecional para empreendedores e investidores que desejam atuar no setor hoteleiro e de turismo rural. Com um projeto aprovado para a construção de um hotel de turismo rural com 52 quartos, o terreno apresenta uma excelente oportunidade para desenvolver um empreendimento de destaque na área.
A localização privilegiada, aliada ao potencial de crescimento da região, torna este investimento ainda mais atrativo. Este terreno permite diversas modalidades de utilização, incluindo obras de reconstrução, conservação, alteração e ampliação das construções existentes, voltadas para fins habitacionais, empreendimentos de Turismo em Espaço Rural, Turismo de Habitação, bem como equipamentos sociais, culturais e estabelecimentos de restauração.
As áreas máximas de construção previstas variam de 300 m² para fins habitacionais, até 2.000 m² para empreendimentos de Turismo em Espaço Rural e Turismo de Habitação, e 500 m² para os demais usos permitidos em solo rústico.
Essa oportunidade de expansão, com o lote confinante de 14.320m² e o projeto aprovado para mais 46 quartos, representa uma excelente perspectiva de crescimento para o empreendimento. Além disso, a aprovação do projeto facilita a implementação rápida, reduzindo prazos e custos de desenvolvimento.
Entre em contato conosco para mais informações e agende uma visita para conhecer de perto este incrível terreno.
Tratamos do seu Crédito Habitação de forma simples, transparente e eficaz. Negociamos as melhores condições para o seu caso.
EasyGest Finance, o seu Intermediário de crédito de confiança, certificado pelo Banco de Portugal com o nº 0001802.
Ajudamos com todo o processo! Entre em contacto connosco ou deixe-nos os seus dados e entraremos em contacto assim que possível!
AL97572LP
Este lote de 15.620 m² oferece um potencial excecional para empreendedores e investidores que desejam atuar no setor hoteleiro e de turismo rural. Com um projeto aprovado para a construção de um hotel de turismo rural com 52 quartos, o terreno apresenta uma excelente oportunidade para desenvolver um empreendimento de destaque na área.
A localização privilegiada, aliada ao potencial de crescimento da região, torna este investimento ainda mais atrativo. Este terreno permite diversas modalidades de utilização, incluindo obras de reconstrução, conservação, alteração e ampliação das construções existentes, voltadas para fins habitacionais, empreendimentos de Turismo em Espaço Rural, Turismo de Habitação, bem como equipamentos sociais, culturais e estabelecimentos de restauração.
As áreas máximas de construção previstas variam de 300 m² para fins habitacionais, até 2.000 m² para empreendimentos de Turismo em Espaço Rural e Turismo de Habitação, e 500 m² para os demais usos permitidos em solo rústico.
Essa oportunidade de expansão, com o lote confinante de 14.320m² e o projeto aprovado para mais 46 quartos, representa uma excelente perspectiva de crescimento para o empreendimento. Além disso, a aprovação do projeto facilita a implementação rápida, reduzindo prazos e custos de desenvolvimento.
Entre em contato conosco para mais informações e agende uma visita para conhecer de perto este incrível terreno.
Tratamos do seu Crédito Habitação de forma simples, transparente e eficaz. Negociamos as melhores condições para o seu caso.
EasyGest Finance, o seu Intermediário de crédito de confiança, certificado pelo Banco de Portugal com o nº 0001802.
Ajudamos com todo o processo! Entre em contacto connosco ou deixe-nos os seus dados e entraremos em contacto assim que possível!
AL97572LP
Localização
Ferragudo, Lagoa (Algarve), Faro
Informação do anúncio
ID do anúncio
1290914
Referência Externa
AL97572LP
Atualizado em
18/04/2026 14:32:00
Consultor
EasyGest Mediação Imobiliária
Terreno para Venda em Ferragudo
Vídeo