Moradia T3 para Venda em Leiria, Pousos, Barreira e Cortes
692.500 €
Tipo
Moradia
Negócio
Venda
Quartos
3
Casas de Banho
4
Área Útil
314 m²
Certificado Energético
A
Casa / Villa T3 em Leiria, Pousos, Barreira e Cortes de 314,00 m²
Apresentamos-lhe a moradia dos seus sonhos, inserida num condomínio de moradias, localizado na zona mais nobre e central da cidade de Leiria, junto à icónica Avenida Marquês de Pombal, destacando-se por oferecer, simultaneamente, a calma de uma área residencial, e a centralidade proporcionada por uma localização privilegiada.
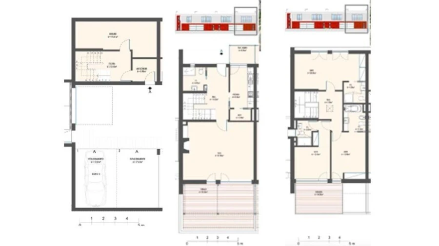
Moradia T3 de linhas modernas, onde sobressaem a excelente luminosidade, a harmonia das divisões e a exclusividade dos acabamentos, apresentando a seguinte constituição:
Rés-do-chão
- Ampla Sala de Estar/ Sala de Jantar com recuperador de calor e acesso terraço privativo;
- Moderna, e luminosa cozinha totalmente equipada, com despensa e acesso a pátio com marquise, ideal para o tratamento de roupas;
- WC completo.
Primeiro Andar
- 3 Suites com closet;
- Dois dos quartos com acesso a uma ampla varanda.
Área Dependente/Cave
- Ampla divisão de arrumos;
- Acesso a garagem do condomínio, com dois lugares de garagem privativos.
Exterior
- Logradouro a circundar as moradias do condomínio, em contacto com a natureza envolvente, quase fazendo esquecer que nos encontramos em pleno centro da cidade de Leiria.
Outras características:
- Ar-condicionado nas divisões;
- Sistema de VMC (ventilação mecanicamente controlada);
- Bomba de calor para aquecimento das águas sanitárias;
- Caixilharia com corte térmico e estores elétricos;
Características – Resumo:
- 3 quartos (suites), cozinha, 4 WC (incluindo os das suite), terraço, varanda, lugares de garagem;
- Ar-condicionado nas divisões, sistema de VMC (ventilação mecanicamente controlada), bomba de calor para aquecimento das águas sanitárias, caixilharia com corte térmico e estores elétricos.
Distâncias relevantes:
- Em pleno centro da cidade de Leiria;
- Aeroporto de Lisboa a 1h15 de distância.
Não perca esta fantástica oportunidade e marque já a sua visita.
NOTA: As informações aqui mencionadas não dispensam a consulta da documentação do imóvel, a qual poderá ser solicitada junto do comercial responsável.
O meu nome é Miguel CANEDO e sou consultor imobiliário independente da iad Portugal.
Quer comprar ou arrendar um imóvel e ainda não encontrou o que procura? Terei todo o prazer em acompanhá-lo numa visita. Caso não encontre aqui o que pretende, estou totalmente disponível para o ajudar nesta fase tão importante da sua vida.
Se tenciona vender a sua casa, posso igualmente ajudá-lo, dando-lhe uma estimativa de valor e divulgando o seu imóvel em mais de 200 portais imobiliários em todo o mundo de forma gratuita.
A iad é uma sociedade de mediação imobiliária que não tem lojas físicas, o que me permite ir ao seu encontro e prestar-lhe o melhor serviço onde quer que esteja, com base no profissionalismo e na transparência. Enquanto consultor imobiliário independente, tenho autonomia para gerir os meus horários e para negociar consigo a minha comissão, garantindo-lhe um acompanhamento personalizado em todas as etapas do processo e um serviço de qualidade ao melhor preço.
Contacte-me!
Porquê escolher um consultor imobiliário iad?
Escolha um consultor iad e beneficie do apoio da maior rede de consultores imobiliários independentes em Portugal.
Criada em França em 2008, a iad nasce de um modelo inovador que vem romper com o conceito tradicional de agência imobiliária, promovendo uma relação de proximidade entre o consultor e o cliente. O sucesso do grupo iad reflete-se em milhares de consultores, imóveis online e negócios concretizados.
#ref: 146024
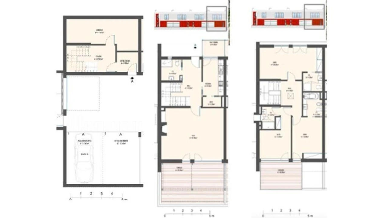
Moradia T3 de linhas modernas, onde sobressaem a excelente luminosidade, a harmonia das divisões e a exclusividade dos acabamentos, apresentando a seguinte constituição:
Rés-do-chão
- Ampla Sala de Estar/ Sala de Jantar com recuperador de calor e acesso terraço privativo;
- Moderna, e luminosa cozinha totalmente equipada, com despensa e acesso a pátio com marquise, ideal para o tratamento de roupas;
- WC completo.
Primeiro Andar
- 3 Suites com closet;
- Dois dos quartos com acesso a uma ampla varanda.
Área Dependente/Cave
- Ampla divisão de arrumos;
- Acesso a garagem do condomínio, com dois lugares de garagem privativos.
Exterior
- Logradouro a circundar as moradias do condomínio, em contacto com a natureza envolvente, quase fazendo esquecer que nos encontramos em pleno centro da cidade de Leiria.
Outras características:
- Ar-condicionado nas divisões;
- Sistema de VMC (ventilação mecanicamente controlada);
- Bomba de calor para aquecimento das águas sanitárias;
- Caixilharia com corte térmico e estores elétricos;
Características – Resumo:
- 3 quartos (suites), cozinha, 4 WC (incluindo os das suite), terraço, varanda, lugares de garagem;
- Ar-condicionado nas divisões, sistema de VMC (ventilação mecanicamente controlada), bomba de calor para aquecimento das águas sanitárias, caixilharia com corte térmico e estores elétricos.
Distâncias relevantes:
- Em pleno centro da cidade de Leiria;
- Aeroporto de Lisboa a 1h15 de distância.
Não perca esta fantástica oportunidade e marque já a sua visita.
NOTA: As informações aqui mencionadas não dispensam a consulta da documentação do imóvel, a qual poderá ser solicitada junto do comercial responsável.
O meu nome é Miguel CANEDO e sou consultor imobiliário independente da iad Portugal.
Quer comprar ou arrendar um imóvel e ainda não encontrou o que procura? Terei todo o prazer em acompanhá-lo numa visita. Caso não encontre aqui o que pretende, estou totalmente disponível para o ajudar nesta fase tão importante da sua vida.
Se tenciona vender a sua casa, posso igualmente ajudá-lo, dando-lhe uma estimativa de valor e divulgando o seu imóvel em mais de 200 portais imobiliários em todo o mundo de forma gratuita.
A iad é uma sociedade de mediação imobiliária que não tem lojas físicas, o que me permite ir ao seu encontro e prestar-lhe o melhor serviço onde quer que esteja, com base no profissionalismo e na transparência. Enquanto consultor imobiliário independente, tenho autonomia para gerir os meus horários e para negociar consigo a minha comissão, garantindo-lhe um acompanhamento personalizado em todas as etapas do processo e um serviço de qualidade ao melhor preço.
Contacte-me!
Porquê escolher um consultor imobiliário iad?
Escolha um consultor iad e beneficie do apoio da maior rede de consultores imobiliários independentes em Portugal.
Criada em França em 2008, a iad nasce de um modelo inovador que vem romper com o conceito tradicional de agência imobiliária, promovendo uma relação de proximidade entre o consultor e o cliente. O sucesso do grupo iad reflete-se em milhares de consultores, imóveis online e negócios concretizados.
#ref: 146024
Localização
Leiria, Pousos, Barreira e Cortes, Leiria, Leiria
Informação do anúncio
ID do anúncio
1299188
Referência Externa
146024
Atualizado em
25/04/2026 23:28:47
Moradia T3 para Venda em Leiria, Pousos, Barreira e Cortes
Vídeo