Terreno para Venda em Almancil
7.950.000 €
Tipo
Terreno
Negócio
Venda
Área Útil
1251 m²
Condição
Para Obras
Área do Terreno
2325 m²
Excelente oportunidade de investimento na prestigiada Quinta do Lago
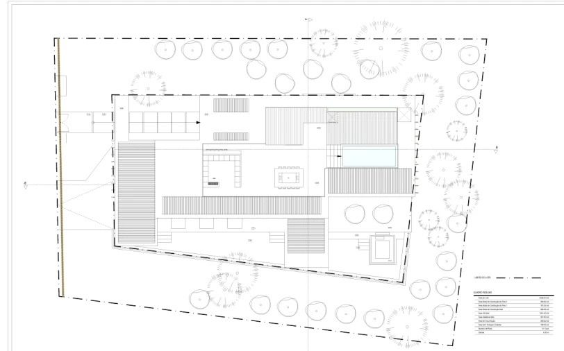
Localizado no coração da Quinta do Lago uma das comunidades residenciais mais exclusivas e procuradas do Algarve , este terreno excecional com 2344 m² oferece uma oportunidade rara de construir uma residência de classe mundial diretamente no campo de golfe San Lorenzo, a poucos minutos da praia e do lago.
Aprovada para uma impressionante moradia contemporânea de 1251 m² projetada pelo aclamado e premiado arquiteto Vasco Vieira, esta propriedade apresenta uma oportunidade única de construir uma casa de luxo personalizada num dos locais mais emblemáticos de Portugal.
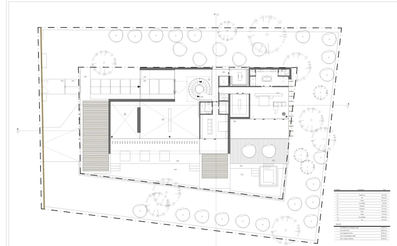
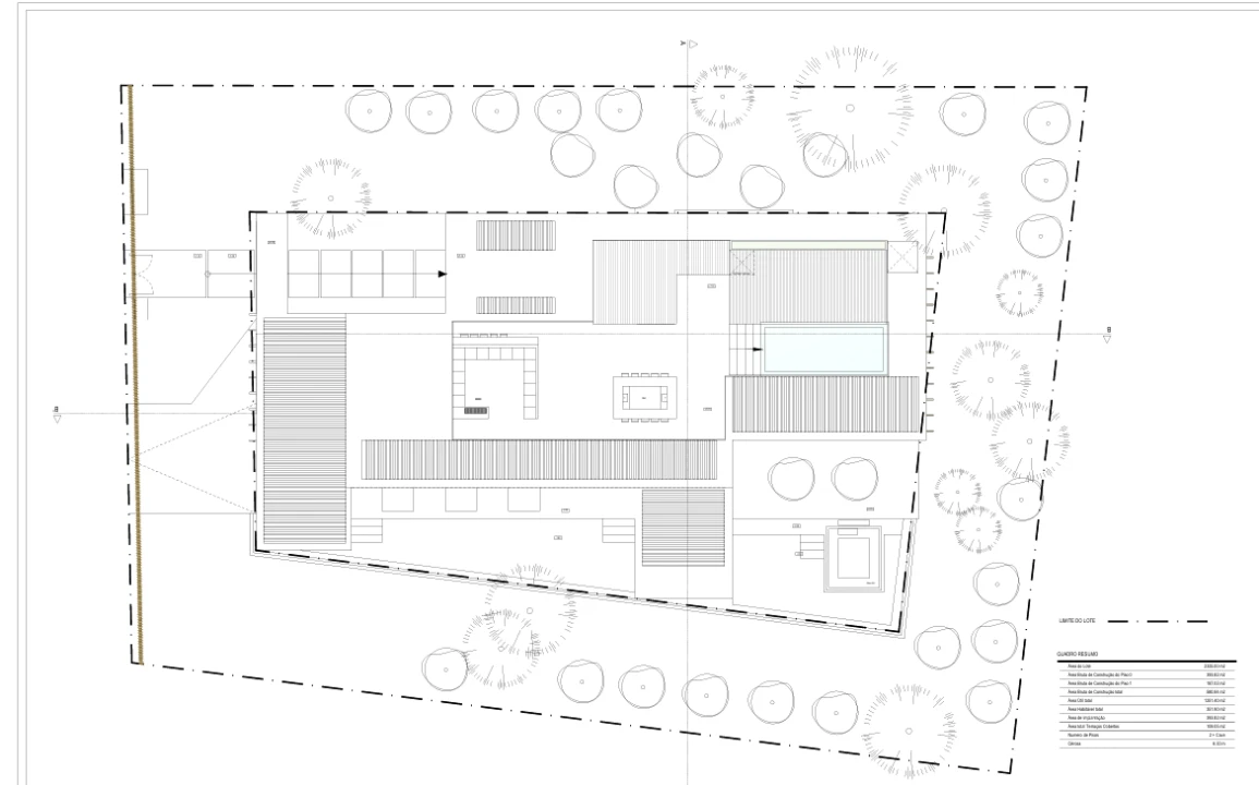
O projeto apresenta duas amplas áreas de estar, uma sala de jantar e uma cozinha elegante em plano aberto que se integra perfeitamente nos espaçosos pátios exteriores. Estas áreas envolvem elegantemente a casa e abrem-se para uma grande piscina, ligando perfeitamente a vida interior e exterior. Três quartos com casa de banho privativa neste piso têm acesso direto ao terraço junto à piscina.
O piso superior alberga uma luxuosa suite principal com casa de banho privativa, closet e um escritório dedicado (que pode ser adaptado para um quarto adicional com casa de banho privativa). Ambos os quartos abrem-se para um terraço generoso virado a sul que capta uma luz natural deslumbrante.
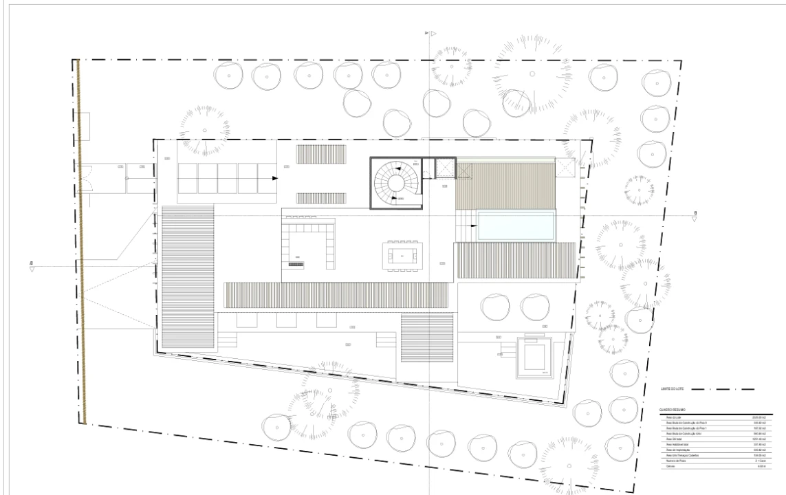
Desfrute de vistas panorâmicas do campo de golfe, lagos naturais e do cintilante Atlântico a partir do espetacular terraço. Este piso foi concebido para entretenimento, com áreas de refeições ao ar livre e lounge, bem como uma piscina privada no terraço para um relaxamento elevado.
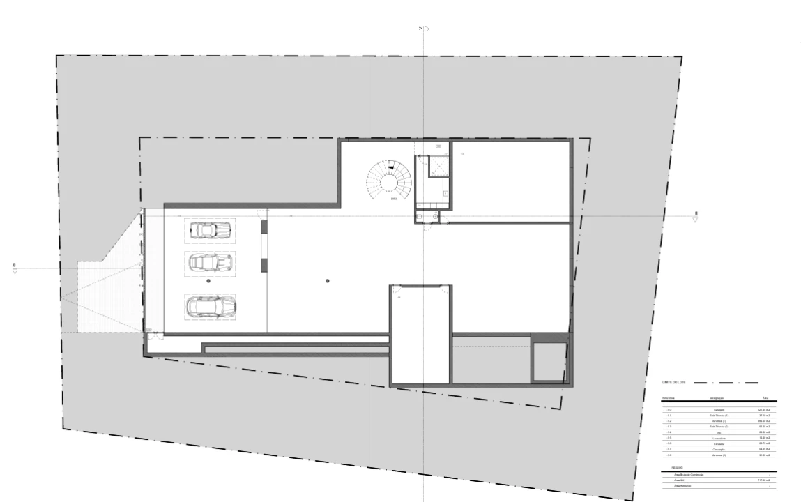
O piso inferior inclui uma grande garagem, salas técnicas e de arrumação, lavandaria, casa de banho e um elevador que proporciona acesso fácil a todos os pisos.
Situado na luxuosa comunidade de Quinta do Lago, este terreno fica próximo de campos de golfe premiados, restaurantes requintados, resorts de luxo e praias douradas. A área é conhecida por oferecer um estilo de vida sofisticado, privacidade e lazer. Todos os serviços essenciais água, eletricidade, esgoto e iluminação pública estão disponíveis, garantindo um processo de desenvolvimento tranquilo.
Isto é mais do que um imóvel, é uma oportunidade de criar uma casa emblemática num dos enclaves costeiros mais desejáveis da Europa.
Aprovada para uma impressionante moradia contemporânea de 1251 m² projetada pelo aclamado e premiado arquiteto Vasco Vieira, esta propriedade apresenta uma oportunidade única de construir uma casa de luxo personalizada num dos locais mais emblemáticos de Portugal.
O projeto apresenta duas amplas áreas de estar, uma sala de jantar e uma cozinha elegante em plano aberto que se integra perfeitamente nos espaçosos pátios exteriores. Estas áreas envolvem elegantemente a casa e abrem-se para uma grande piscina, ligando perfeitamente a vida interior e exterior. Três quartos com casa de banho privativa neste piso têm acesso direto ao terraço junto à piscina.
O piso superior alberga uma luxuosa suite principal com casa de banho privativa, closet e um escritório dedicado (que pode ser adaptado para um quarto adicional com casa de banho privativa). Ambos os quartos abrem-se para um terraço generoso virado a sul que capta uma luz natural deslumbrante.
Desfrute de vistas panorâmicas do campo de golfe, lagos naturais e do cintilante Atlântico a partir do espetacular terraço. Este piso foi concebido para entretenimento, com áreas de refeições ao ar livre e lounge, bem como uma piscina privada no terraço para um relaxamento elevado.
O piso inferior inclui uma grande garagem, salas técnicas e de arrumação, lavandaria, casa de banho e um elevador que proporciona acesso fácil a todos os pisos.
Situado na luxuosa comunidade de Quinta do Lago, este terreno fica próximo de campos de golfe premiados, restaurantes requintados, resorts de luxo e praias douradas. A área é conhecida por oferecer um estilo de vida sofisticado, privacidade e lazer. Todos os serviços essenciais água, eletricidade, esgoto e iluminação pública estão disponíveis, garantindo um processo de desenvolvimento tranquilo.
Isto é mais do que um imóvel, é uma oportunidade de criar uma casa emblemática num dos enclaves costeiros mais desejáveis da Europa.
Localização
Almancil, Loulé, Faro
Informação do anúncio
ID do anúncio
1299307
Referência Externa
AE093
Atualizado em
28/03/2026 01:36:00
Anunciante
Chamada para a rede móvel nacional
AUTHENTIC EMERALD REAL ESTATE
AMI 22889
Referência do imóvel:
AE093
Terreno para Venda em Almancil