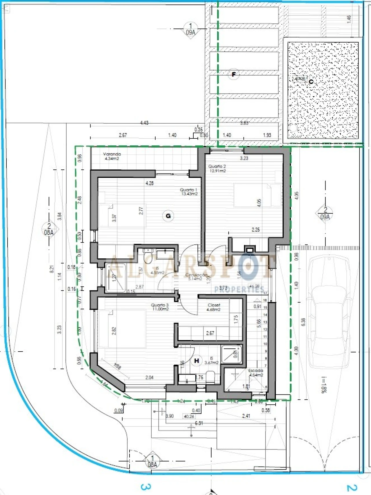
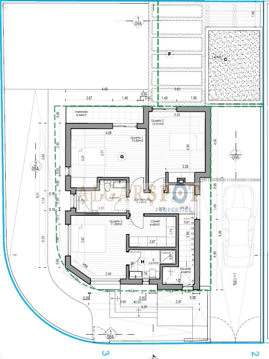
Terreno urbano em gaveto com 282 m², com a possibilidade de construção de uma moradia isolada térrea, no Pinhal Novo.
Área do lote 282 m2 com 150 m2 de área bruta de construção. Exite ainda uma cave com garagem de 60 m2 e um anexo com 13 m2.
O terreno conta com todas as infraestruturas electricidade, saneamento e abastecimento de água, o que facilita o início de qualquer projeto de construção.
Tem acessos em alcatrão e calçada, garantindo um fácil trânsito e a circulação na área.
Situado em Pinhal Novo, uma área em crescimento, você estará cercado por toda a infraestrutura que a região oferece. Perto de escolas, comércio e serviços, sendo a zona muito calma e habitacional.
Localização excelente, com rápido acesso aos principais pontos rodoviários e ferroviários da região, como Setúbal, Montijo, Lisboa, e às autoestradas A2, A33, A12, além da estação da CP do Pinhal Novo (5minutos).
Valorização garantida: Com o novo aeroporto de Lisboa em Alcochete, a demanda e a valorização da área irão crescer significativamente.
Não perca esta oportunidade! Lotes como este são raros e tendem a se esgotar rapidamente. Entre em contacto agora mesmo para agendar e descobrir todos os detalhes que fazem desta propriedade uma chance única.
Este site utiliza cookies. Ao navegar no site estará a consentir a sua utilização. Para mais informações sobre os cookies pode consultar a
política de privacidade.