Terreno para Venda em Venda Nova e Pondras
52.000 €
Tipo
Terreno
Negócio
Venda
Área Bruta
175 m²
Certificado Energético
N/A
Área do Terreno
129 m²
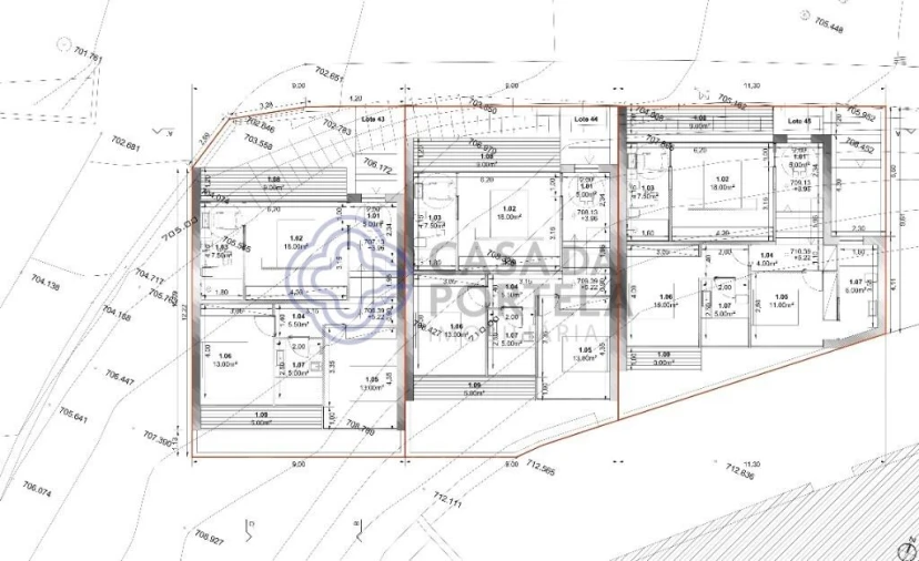
Terreno com projecto de arquitectura aprovado do tipo V3 localizado em albufeira de Venda
Terreno com projecto de arquitectura aprovado do tipo V3 localizado em Venda Nova - Montalegre, com vista para a albufeira.
Os Lotes n.º 43, 44 e 45, nos quais se prevê a edificação futura de três habitações unifamiliares (uma por cada lote) de dois pisos acima da cota de soleira e um piso abaixo da cota de soleira.
As futuras construções estão inseridas no loteamento habitacional composto na sua maioria por habitações unifamiliares de 4 frentes e habitações em banda de 2 frentes, com implantação de forma quadrada e retangular respetivamente.
As futuras habitações serão compostas por 1 piso abaixo da cota de soleira e por 2 pisos acima da cota de soleira perfazendo um n.º total de pisos de 3, estando os pisos acima da cota de soleira em conformidade com a envolvente na qual os lote se inserem, assim como, com as diretrizes do alvará de
loteamento originário no que diz respeito aos lotes localizados na envolvente próxima.
Os alinhamentos e dimensões previstos para a implantação das futuras edificações, procuram a melhor integração urbana e paisagística das edificações existentes já no local. A proposta prevê igualmente a manutenção dos planos inclinados a formar as pendentes da cobertura com uma inclinação não superior a 25º de natureza semelhante ao das construções vizinhas.
Nas futuras habitações estará garantida a dotação de estacionamento, com capacidade para 2 viaturas em espaço coberto no interior do lote/habitação, sendo que um deles possuirá o dimensionamento regulamentar para pessoas com mobilidade condicionada.
Situada na margem esquerda do rio Rabagão e distando da sede de concelho, Montalegre, cerca de 30 km, a freguesia de Venda Nova, foi a escolhida para albergar a barragem do mesmo nome, inaugurada, 10 de Junho de 1951.
Constituiu o primeiro escalão do plano de aproveitamento industrial do rio Cávado, edificada no rio Rabagão pela Hidroeléctrica do Cávado.
Com longo e volumoso embalse, acabaria por determinar a submersão de quase todas as terras de cultivo e boas pastagens que existiam nas margens do Rio Rabagão. A própria aldeia de Venda Nova, com todo o seu edificado, cultural e arquitectónico foi submerso. A nova Venda Nova, foi erigida a montante da barragem cerca de 4 quilómetros.
Casas, moinhos, cortelhos e lameiros foram submergindo nas águas do Rabagão. No entanto, temos de considerar que esta mancha de água exuberante e implacável, representa hoje para a freguesia de Venda Nova o seu “ex-libris”.
As águas do rio Rabagão, com correntes fortes, outrora, transformaram-se num manto formoso e calmo de água azul e acetinada, dando-nos grandes e maravilhosas perspectivas de admiração ao longo de toda a sua extensão que podemos efectuar através da estrada nacional 103 que segue sempre a seu lado.
Em volta temos os relevos dos montes de Barroso.
Na margem, existem áreas de lazer, Codeçoso, Padrões e Venda Nova que convida a passeios de barco e óptimos banhos.
No meio das águas e praticamente rodeado por elas, ergue-se o esplendor do castro de Codeçoso. Este é um povoamento que serve de referência para a antiguidade do território da freguesia. Foi, durante o domínio romano, o castro mais importante do Barroso, tendo servido de Presídio Militar e sede de
comando das forças armadas imperiais estacionadas na região.
Aqui passava a via romana que ligava Braga a Chaves, tendo sido encontrados diversos marcos miliários, dedicados a Tibério,Cláudio e Trajano Adriano.Venda Nova, faz fronteira com as freguesias de Ferral, Campos, Salto e Pondras. È composta pelos lugares de Padrões, Sanguinhedo e Codeçoso.
Aproveite esta excelente oportunidade de investimento, onde a natureza, as águas tranquilidas do rio Rapagão e a paisagem deslumbrante permitem usufruir de toda a paz e qualidade de vida.
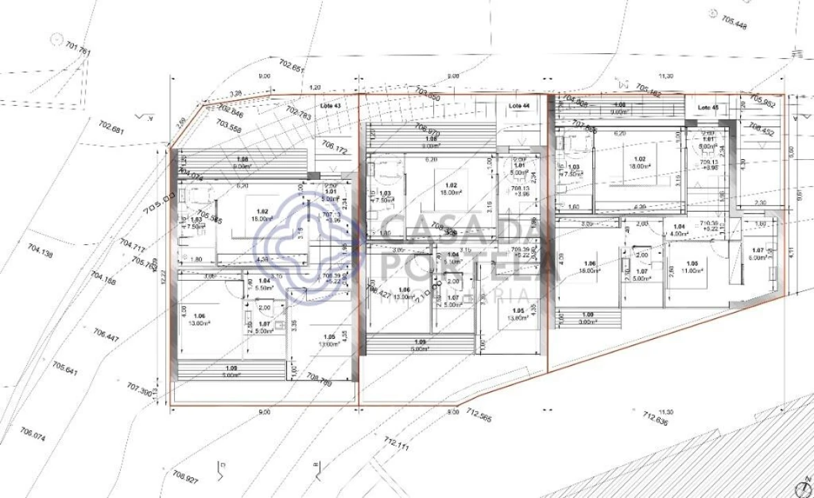
Os Lotes n.º 43, 44 e 45, nos quais se prevê a edificação futura de três habitações unifamiliares (uma por cada lote) de dois pisos acima da cota de soleira e um piso abaixo da cota de soleira.
As futuras construções estão inseridas no loteamento habitacional composto na sua maioria por habitações unifamiliares de 4 frentes e habitações em banda de 2 frentes, com implantação de forma quadrada e retangular respetivamente.
As futuras habitações serão compostas por 1 piso abaixo da cota de soleira e por 2 pisos acima da cota de soleira perfazendo um n.º total de pisos de 3, estando os pisos acima da cota de soleira em conformidade com a envolvente na qual os lote se inserem, assim como, com as diretrizes do alvará de
loteamento originário no que diz respeito aos lotes localizados na envolvente próxima.
Os alinhamentos e dimensões previstos para a implantação das futuras edificações, procuram a melhor integração urbana e paisagística das edificações existentes já no local. A proposta prevê igualmente a manutenção dos planos inclinados a formar as pendentes da cobertura com uma inclinação não superior a 25º de natureza semelhante ao das construções vizinhas.
Nas futuras habitações estará garantida a dotação de estacionamento, com capacidade para 2 viaturas em espaço coberto no interior do lote/habitação, sendo que um deles possuirá o dimensionamento regulamentar para pessoas com mobilidade condicionada.
Situada na margem esquerda do rio Rabagão e distando da sede de concelho, Montalegre, cerca de 30 km, a freguesia de Venda Nova, foi a escolhida para albergar a barragem do mesmo nome, inaugurada, 10 de Junho de 1951.
Constituiu o primeiro escalão do plano de aproveitamento industrial do rio Cávado, edificada no rio Rabagão pela Hidroeléctrica do Cávado.
Com longo e volumoso embalse, acabaria por determinar a submersão de quase todas as terras de cultivo e boas pastagens que existiam nas margens do Rio Rabagão. A própria aldeia de Venda Nova, com todo o seu edificado, cultural e arquitectónico foi submerso. A nova Venda Nova, foi erigida a montante da barragem cerca de 4 quilómetros.
Casas, moinhos, cortelhos e lameiros foram submergindo nas águas do Rabagão. No entanto, temos de considerar que esta mancha de água exuberante e implacável, representa hoje para a freguesia de Venda Nova o seu “ex-libris”.
As águas do rio Rabagão, com correntes fortes, outrora, transformaram-se num manto formoso e calmo de água azul e acetinada, dando-nos grandes e maravilhosas perspectivas de admiração ao longo de toda a sua extensão que podemos efectuar através da estrada nacional 103 que segue sempre a seu lado.
Em volta temos os relevos dos montes de Barroso.
Na margem, existem áreas de lazer, Codeçoso, Padrões e Venda Nova que convida a passeios de barco e óptimos banhos.
No meio das águas e praticamente rodeado por elas, ergue-se o esplendor do castro de Codeçoso. Este é um povoamento que serve de referência para a antiguidade do território da freguesia. Foi, durante o domínio romano, o castro mais importante do Barroso, tendo servido de Presídio Militar e sede de
comando das forças armadas imperiais estacionadas na região.
Aqui passava a via romana que ligava Braga a Chaves, tendo sido encontrados diversos marcos miliários, dedicados a Tibério,Cláudio e Trajano Adriano.Venda Nova, faz fronteira com as freguesias de Ferral, Campos, Salto e Pondras. È composta pelos lugares de Padrões, Sanguinhedo e Codeçoso.
Aproveite esta excelente oportunidade de investimento, onde a natureza, as águas tranquilidas do rio Rapagão e a paisagem deslumbrante permitem usufruir de toda a paz e qualidade de vida.
Localização
Venda Nova e Pondras, Montalegre, Vila Real
Informação do anúncio
ID do anúncio
1319933
Referência Externa
1108411
Atualizado em
26/04/2026 23:37:50
Anunciante
Chamada para a rede fixa nacional
Casa da Portela
AMI 10340
Referência do imóvel:
1108411
Terreno para Venda em Venda Nova e Pondras