Voltar
Terreno para Venda em Cascais e Estoril Foto 1
Terreno para Venda em Cascais e Estoril Foto 2
Terreno para Venda em Cascais e Estoril Foto 3
Terreno para Venda em Cascais e Estoril Foto 4
Terreno para Venda em Cascais e Estoril Foto 5

Terreno para Venda em Cascais e Estoril

1.295.000 €

Tipo
Terreno
Negócio
Venda
Área Bruta
450 m²
Condição
Não Aplicável
Certificado Energético
Isento
Área do Terreno
1039 m²

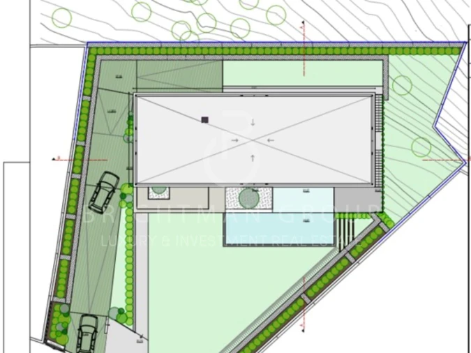
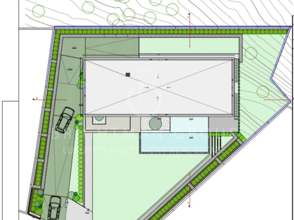
Terreno para construção moradia na Q. das Patinhas, Cascais

Terreno para construção de moradia contemporânea com área bruta privativa de 450 m2, inserida em lote com 1.039 m2, na Quinta das Patinhas, Cascais.

Neste terreno está previsto construir uma moradia moderna com 450 m2 distribuídos por 3 pisos, ambiente interno espaçoso e iluminado, localizada num bairro tranquilo e seguro, a 3 minutos a pé de escolas internacionais, a 5 minutos do centro de Cascais e praias e a 2 minutos da autoestrada para Lisboa.

Toda a zona de estar exterior da casa está voltada a Sul, e no projeto foi tomada particular atenção à exposição solar, proteção ao vento predominante e eventual ruído, permitindo usufruir de uma maravilhosa experiência no exterior junto à piscina.

A moradia é distribuída por 3 pisos:

No piso 0 encontra-se uma ampla sala de estar/jantar com duplo pé direito, cozinha, lavandaria e suíte/escritório;

No piso 1 existem 4 suites com muita iluminação;

No piso -1 existe uma garagem com 70 m2 para 3 carros e varanda com 34 m2.

Esta moradia é ideal para quem procura uma vida moderna e confortável, com excelente localização e proximidade a várias facilidades e áreas naturais.

A 2-3 minutos a pé encontra-se a Escola de Aprendizes e a St. James Primary School. A 5 minutos a pé do terreno chega-se ao percurso pedestre conhecido como trilho da Ribeira das Vinhas, que serpenteia por um pitoresco ambiente natural em direção ao centro de Cascais ou para norte pelo Parque Natural Sintra-Cascais até à Quinta do Pisão. Esta é uma maravilhosa reserva natural recentemente criada.

Esta moradia terá as certificações Passive House e ZEB (Zero Energy Building), que garantem o ambiente mais ecológico, saudável e sustentável possível. Com entrada filtrada de ar puro, totalmente renovado a cada 2 horas, é quase desnecessário ar condicionado ou aquecimento. O ar puro no interior da moradia está livre de poluição e alergénicos e os consumos energéticos são extremamente baixos.

Localização

Cascais e Estoril, Cascais, Lisboa

Informação do anúncio

ID do anúncio 1324827
Referência Externa T0136.BG.LX
Atualizado em 23/12/2025 06:20:06
Brightman Group AMI 17077
Referência do imóvel: T0136.BG.LX
Phone
Chamada para a rede móvel nacional
Brightman Group AMI 17077
Referência do imóvel: T0136.BG.LX
Phone
Chamada para a rede móvel nacional
1 / 12
Terreno para Venda em Cascais e Estoril Foto 1
Terreno para Venda em Cascais e Estoril Foto 2
Terreno para Venda em Cascais e Estoril Foto 3
Terreno para Venda em Cascais e Estoril Foto 4
Terreno para Venda em Cascais e Estoril Foto 5
Terreno para Venda em Cascais e Estoril Foto 6
Terreno para Venda em Cascais e Estoril Foto 7
Terreno para Venda em Cascais e Estoril Foto 8
Terreno para Venda em Cascais e Estoril Foto 9
Terreno para Venda em Cascais e Estoril Foto 10
Terreno para Venda em Cascais e Estoril Foto 11
Terreno para Venda em Cascais e Estoril Foto 12
Clicky