Moradia T2 para Venda em Ponta Delgada
235.000 €
Tipo
Moradia
Negócio
Venda
Quartos
2
Condição
Novo
Certificado Energético
A
Área do Terreno
235 m²
Moradia T2 Venda em Ponta Delgada,São Vicente
Excelente oportunidade em Ponta Delgada – Ilha da Madeira
Para quem procura um refúgio tranquilo com vista mar, esta é uma oportunidade única!
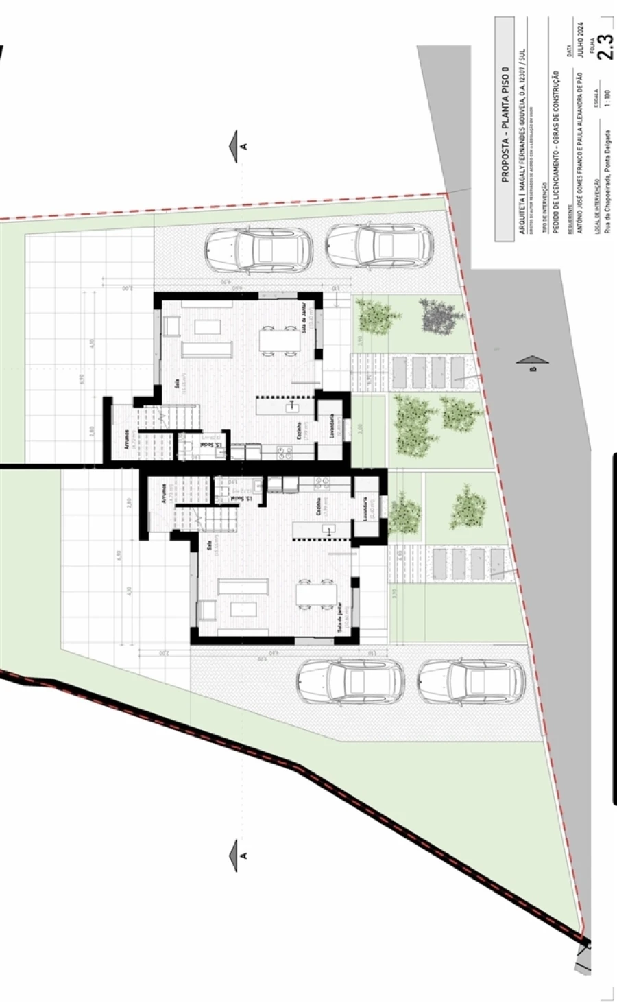
Está à venda o terreno com projeto aprovado e estrutura já construída de uma moradia T2 moderna, com arquitetura contemporânea e excelentes bases de construção.
Características principais:
• Terreno com projeto aprovado para moradia T2
• Estrutura já executada – construção em fase inicial, com canalizações, isolamentos, sistema de irrigação e pré instalação de ar-condicionado preparados.
• Vista mar e montanhas.
• Zona exterior ampla, com espaço para barbecue e área de convívio
• Estacionamento privativo
• Localização tranquila, bons acessos e excelente exposição solar
Um investimento inteligente:
Ideal para quem quer personalizar o acabamento da sua casa de sonho ou rentabilizar como Alojamento Local (Airbnb).
Com a fase estrutural já concluída, o comprador assume apenas os acabamentos finais (pavimentos, caixilharias, cozinhas, etc.), garantindo ótimo custo-benefício e total liberdade de escolha.
Uma oportunidade rara de adquirir um imóvel com qualidade de construção e elevado potencial de valorização numa das zonas mais autênticas e calmas do norte da Ilha da Madeira.
HOMES WITH LOVE
AMI-18172
Para quem procura um refúgio tranquilo com vista mar, esta é uma oportunidade única!
Está à venda o terreno com projeto aprovado e estrutura já construída de uma moradia T2 moderna, com arquitetura contemporânea e excelentes bases de construção.
Características principais:
• Terreno com projeto aprovado para moradia T2
• Estrutura já executada – construção em fase inicial, com canalizações, isolamentos, sistema de irrigação e pré instalação de ar-condicionado preparados.
• Vista mar e montanhas.
• Zona exterior ampla, com espaço para barbecue e área de convívio
• Estacionamento privativo
• Localização tranquila, bons acessos e excelente exposição solar
Um investimento inteligente:
Ideal para quem quer personalizar o acabamento da sua casa de sonho ou rentabilizar como Alojamento Local (Airbnb).
Com a fase estrutural já concluída, o comprador assume apenas os acabamentos finais (pavimentos, caixilharias, cozinhas, etc.), garantindo ótimo custo-benefício e total liberdade de escolha.
Uma oportunidade rara de adquirir um imóvel com qualidade de construção e elevado potencial de valorização numa das zonas mais autênticas e calmas do norte da Ilha da Madeira.
HOMES WITH LOVE
AMI-18172
Localização
Ponta Delgada, São Vicente, Ilha da Madeira
Informação do anúncio
ID do anúncio
1336037
Referência Externa
BW001
Atualizado em
24/10/2025 03:16:28
Moradia T2 para Venda em Ponta Delgada