Voltar

Prédio para Venda em São Silvestre

460.000 €

Tipo
Prédio
Negócio
Venda
Área Bruta
210 m²
Área Útil
157 m²
Condição
Novo
Área do Terreno
88 m²

Tunes - Lote Terreno Com Construção Concluída a 84%

Terreno para construção, com prédio inacabado (com aprox. 84% de obra concluída) e alvará de construção para prédio de habitação coletiva com 3 pisos, atualmente compartimentado em 3 apartamentos com 2 quartos (um apartamento por piso).

Está localizado na tranquila e pacata vila de Tunes, no concelho de Silves. Encontra-se rodeado por diversas opções de comércio e serviços que garantem praticidade no dia a dia. Nas proximidades, encontrará restaurantes , mini-mercado, cafés, restaurantes e muito mais, proporcionando comodidade e conforto para atender às suas necessidades.

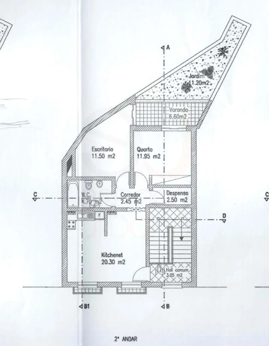
O edifício encontra-se compartilhado da seguinte forma:

R/c - Sala com kitchenette, despensa, quarto, hall, escritório, casa de banho, terraço coberto e logradouro;

1.º Andar - Sala com kitchenette, despensa, quarto, hall, escritório, casa de banho e varanda;

2.º Andar - Sala com kitchenette, despensa, quarto, hall, escritório, casa de banho e varanda.

Dispõe de arrumo comum sob o vão de escada no R/c.

Áreas

Área do lote - 88,20m2
Total de área bruta (construção atual) - 210,60 m2
Total de área útil (construção atual) - 157,95 m2

Equipamentos ou materiais existentes:

Vidros duplos com caixa de ar
Pavimento flutuante nos quartos
Pré-instalação de estores elétricos em todas as janelas
Pré-instalação de ar condicionado nos quartos e salas

Distâncias (aprox.):

Salgados Golf Course - 16 Kms
Praia da Galé- 16 Kms
Algarve Shopping - 9 Kms
Albufeira - 12,5 Kms
Aeroporto de Faro - 43 kms

A Espaço Urbano Mediação Imobiliária disponibiliza gratuitamente, através de um parceiro, o serviço de Intermediação de Crédito, apoiando-o sempre que necessite de financiamento.

Valorizamos a colaboração e partilhamos oportunidades com todos os consultores e agências com licença AMI, porque acreditamos que a cooperação entre profissionais gera melhores resultados para os clientes. Se é um profissional do setor com um cliente qualificado, contacte-nos e agende a visita.

Localização

São Silvestre, Coimbra, Coimbra

Informação do anúncio

ID do anúncio 1342294
Referência Externa BB009
Atualizado em 11/01/2026 03:02:04
Espaço Urbano AMI 26038
Referência do imóvel: BB009
Phone
Chamada para a rede fixa nacional
Espaço Urbano AMI 26038
Referência do imóvel: BB009
Phone
Chamada para a rede fixa nacional
1 / 21
Prédio para Venda em São Silvestre Foto 1
Prédio para Venda em São Silvestre Foto 2
Prédio para Venda em São Silvestre Foto 3
Prédio para Venda em São Silvestre Foto 4
Prédio para Venda em São Silvestre Foto 5
Prédio para Venda em São Silvestre Foto 6
Prédio para Venda em São Silvestre Foto 7
Prédio para Venda em São Silvestre Foto 8
Prédio para Venda em São Silvestre Foto 9
Prédio para Venda em São Silvestre Foto 10
Prédio para Venda em São Silvestre Foto 11
Prédio para Venda em São Silvestre Foto 12
Prédio para Venda em São Silvestre Foto 13
Prédio para Venda em São Silvestre Foto 14
Prédio para Venda em São Silvestre Foto 15
Prédio para Venda em São Silvestre Foto 16
Prédio para Venda em São Silvestre Foto 17
Prédio para Venda em São Silvestre Foto 18
Prédio para Venda em São Silvestre Foto 19
Prédio para Venda em São Silvestre Foto 20
Prédio para Venda em São Silvestre Foto 21
Clicky