Apartamento T1 para Venda em São Felix da Marinha
275.000 €
Tipo
Apartamento
Negócio
Venda
Quartos
1
Área Bruta
125 m²
Área Útil
45 m²
Condição
Novo
Certificado Energético
A
Apartamento T1 Venda em São Félix da Marinha,Vila Nova de Gaia
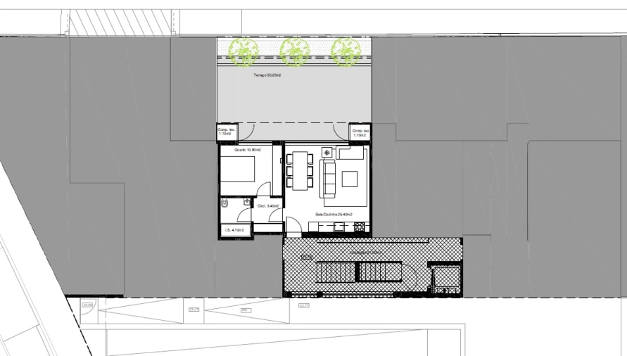
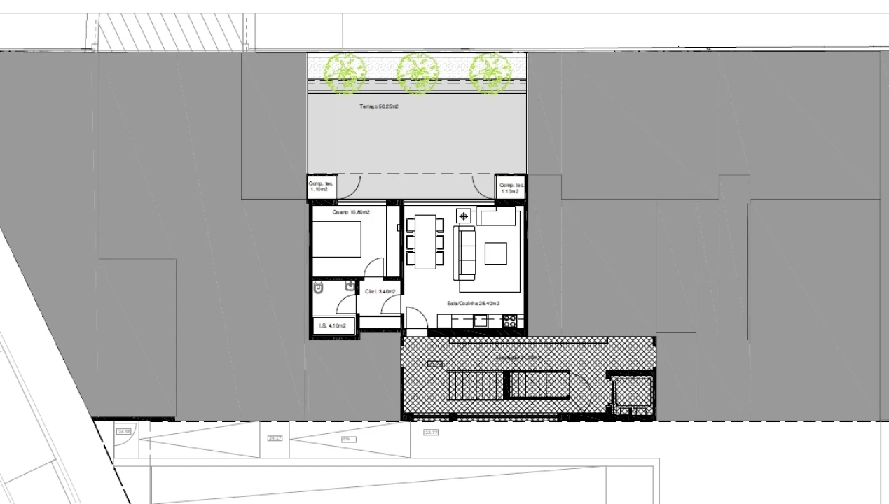
Apartamento T1 com fantástico terraço de 52m2, lugar de garagem e arrumo, para venda no mais recente empreendimento de São Félix da Marinha.
O edifício insere-se num terreno de declive suave, numa área de transição entre o tecido urbano e a paisagem natural das praias de S. Félix da Marinha.
A solução volumétrica resulta da estratificação de quatro corpos horizontais que se desfasam, em alguns momentos, entre si, criando balanços controlados e sombras marcadas.
As 13 frações habitacionais distribuem-se de forma equilibrada por quatro níveis, garantindo privacidade, exposição solar favorável e vistas amplas sobre o exterior.
A linguagem arquitetonica é contida, baseada em poucos elementos bem definidos. As paredes em betão armado constituem a estrutura e a expressão plástica do edifício.
A materialidade robusta é compensada pela delicadeza dos vãos e varandas continuas, que percorrem os alçados em faixas horizontais.
Estes rasgos permitem uma leitura linear da fachada, reforçando a ideia de horizontalidade e dando unidade ao conjunto.
Os vãos envidraçados asseguram o conforto visual e térmico, ao mesmo tempo que criam uma fronteira difusa entre interior e exterior.
Não se trata de exibir transparência, mas de controlar cuidadosamente o modo como a luz penetra e como a paisagem é enquadrada.
O espaço exterior é tratado com sobriedade: relvado contínuo, muros baixos de contenção e uma sequência vertical de ciprestes que reforçam a verticalidade em contraste com o edifício. A vegetação é usada com parcimónia, como contraponto ao rigor do desenho construído.
O edifício não se impõe ao lugar: emerge dele com naturalidade e disciplina, oferecendo espaços silenciosos, bem proporcionados, capazes de acolher a vida quotidiana com dignidade e clareza.
Situado na Rua Pedras da Maré, em São Félix da Marinha, este empreendimento combina tranquilidade e conveniência.
A poucos minutos da praia e rodeado de serviços essenciais, escolas, comércio e opções de lazer, oferece o equilíbrio perfeito entre a qualidade de vida à beira-mar e a proximidade com os centros urbanos de Espinho, Gaia e Porto.
Disponíveis em tipologias de T1 a T3, com áreas entre 54 e 173 m², os apartamentos distinguem-se pelas dimensões generosas, design contemporâneo e acabamentos de excelência, proporcionando uma experiência de vida confortável e agradável.
O edifício insere-se num terreno de declive suave, numa área de transição entre o tecido urbano e a paisagem natural das praias de S. Félix da Marinha.
A solução volumétrica resulta da estratificação de quatro corpos horizontais que se desfasam, em alguns momentos, entre si, criando balanços controlados e sombras marcadas.
As 13 frações habitacionais distribuem-se de forma equilibrada por quatro níveis, garantindo privacidade, exposição solar favorável e vistas amplas sobre o exterior.
A linguagem arquitetonica é contida, baseada em poucos elementos bem definidos. As paredes em betão armado constituem a estrutura e a expressão plástica do edifício.
A materialidade robusta é compensada pela delicadeza dos vãos e varandas continuas, que percorrem os alçados em faixas horizontais.
Estes rasgos permitem uma leitura linear da fachada, reforçando a ideia de horizontalidade e dando unidade ao conjunto.
Os vãos envidraçados asseguram o conforto visual e térmico, ao mesmo tempo que criam uma fronteira difusa entre interior e exterior.
Não se trata de exibir transparência, mas de controlar cuidadosamente o modo como a luz penetra e como a paisagem é enquadrada.
O espaço exterior é tratado com sobriedade: relvado contínuo, muros baixos de contenção e uma sequência vertical de ciprestes que reforçam a verticalidade em contraste com o edifício. A vegetação é usada com parcimónia, como contraponto ao rigor do desenho construído.
O edifício não se impõe ao lugar: emerge dele com naturalidade e disciplina, oferecendo espaços silenciosos, bem proporcionados, capazes de acolher a vida quotidiana com dignidade e clareza.
Situado na Rua Pedras da Maré, em São Félix da Marinha, este empreendimento combina tranquilidade e conveniência.
A poucos minutos da praia e rodeado de serviços essenciais, escolas, comércio e opções de lazer, oferece o equilíbrio perfeito entre a qualidade de vida à beira-mar e a proximidade com os centros urbanos de Espinho, Gaia e Porto.
Disponíveis em tipologias de T1 a T3, com áreas entre 54 e 173 m², os apartamentos distinguem-se pelas dimensões generosas, design contemporâneo e acabamentos de excelência, proporcionando uma experiência de vida confortável e agradável.
Localização
São Felix da Marinha, Vila Nova de Gaia, Porto
Informação do anúncio
ID do anúncio
1351878
Referência Externa
4229-B
Atualizado em
26/02/2026 03:03:07
Anunciante
Chamada para a rede móvel nacional
Projecto Perfeito
AMI 8481
Referência do imóvel:
4229-B
Apartamento T1 para Venda em São Felix da Marinha
Vídeo
Apartamento T1 para Venda em São Felix da Marinha