Voltar
Apartamento T3 para Venda em Melres Foto 1
Apartamento T3 para Venda em Melres Foto 2
Apartamento T3 para Venda em Melres Foto 3
Apartamento T3 para Venda em Melres Foto 4
Apartamento T3 para Venda em Melres Foto 5

Apartamento T3 para Venda em Melres

240.000 €

Tipo
Apartamento
Negócio
Venda
Ano de Construção
2024
Quartos
3
Casas de Banho
2
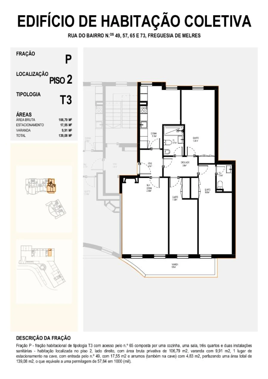
Área Bruta
139 m²
Área Útil
107 m²
Garagem
1 lugar
Condição
Novo
Certificado Energético
A

Características

Arrecadação Elevador

Apartamento t3 à venda na Rua do Bairro

Melres Apartments:
Apartamentos T2 e T3 com lugar de garagem e arrumos, localizado em Melres, Gondomar

**Não fazemos partilha com imobiliárias**

●A 8 minutos da saída da A41 (Medas), permitindo rápido acesso às áreas circundantes do Porto.
●A 24 minutos da Ponte do Freixo.

Transportes Públicos
● Autocarros da Unir a 1 minuto a pé, com ligação a Paredes, Hospital Fernando Pessoa e Estação de Campanhã (a cada 30 minutos).

Comodidades a Menos de 1 km
● Educação: 3 min de carro da escola básica e jardim de infância.
● Saúde: 3 min de carro da unidade de saúde local.
● Farmácia: 2 min de carro.
● Clínica Dentária: 4 min a pé.
● Lazer: 7 min a pé da Marina de Melres.
● Supermercado: 2 min de carro (Meu Super).
● Praia Fluvial de Melres: 2 min de carro.

Características específicas
107 m² área util
T3
2 casas de banho
Varanda
Lugar de garagem incluído no preço
Empreendimento de nova construção
Armários embutidos
Arrecadação
Orientação Sul
Prédio
2º andar
Com elevador

Localização

Rua do Bairro

Melres e Medas, Gondomar, Porto

Informação do anúncio

ID do anúncio 1355114
Referência Externa T3 _ P
Atualizado em 08/09/2025 14:53:03
wave invest
Referência do imóvel: T3 _ P
wave invest
Referência do imóvel: T3 _ P
1 / 20
Apartamento T3 para Venda em Melres Foto 1
Apartamento T3 para Venda em Melres Foto 2
Apartamento T3 para Venda em Melres Foto 3
Apartamento T3 para Venda em Melres Foto 4
Apartamento T3 para Venda em Melres Foto 5
Apartamento T3 para Venda em Melres Foto 6
Apartamento T3 para Venda em Melres Foto 7
Apartamento T3 para Venda em Melres Foto 8
Apartamento T3 para Venda em Melres Foto 9
Apartamento T3 para Venda em Melres Foto 10
Apartamento T3 para Venda em Melres Foto 11
Apartamento T3 para Venda em Melres Foto 12
Apartamento T3 para Venda em Melres Foto 13
Apartamento T3 para Venda em Melres Foto 14
Apartamento T3 para Venda em Melres Foto 15
Apartamento T3 para Venda em Melres Foto 16
Apartamento T3 para Venda em Melres Foto 17
Apartamento T3 para Venda em Melres Foto 18
Apartamento T3 para Venda em Melres Foto 19
Apartamento T3 para Venda em Melres Foto 20
Clicky