Voltar
Terreno para Venda em São Felix da Marinha Foto 1
Terreno para Venda em São Felix da Marinha Foto 2
Terreno para Venda em São Felix da Marinha Foto 3
Terreno para Venda em São Felix da Marinha Foto 4
Terreno para Venda em São Felix da Marinha Foto 5

Terreno para Venda em São Felix da Marinha

170.000 €

Tipo
Terreno
Negócio
Venda
Área Bruta
1162 m²
Área Útil
1162 m²
Condição
Certificado Energético
NC
Área do Terreno
1162 m²

Terreno para venda

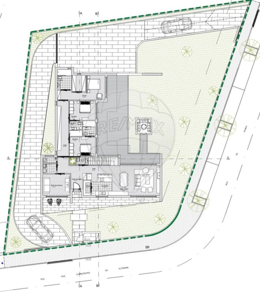
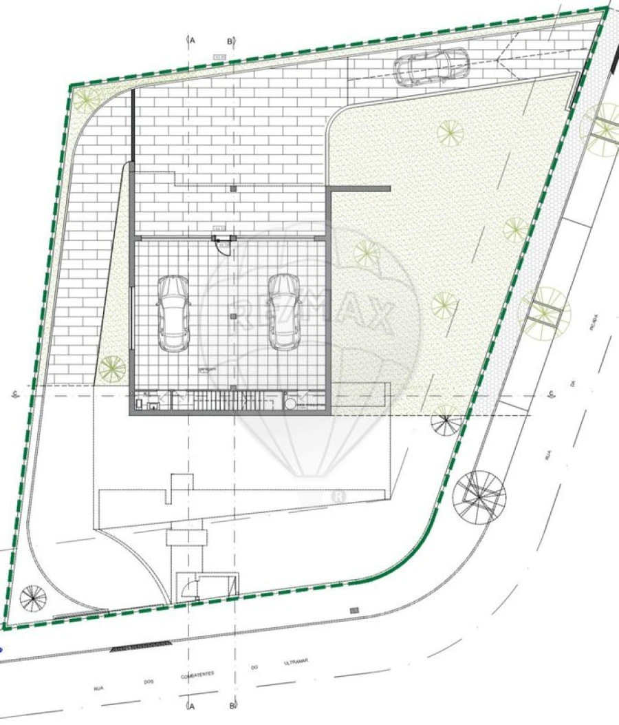
Terreno com projeto aprovado em São Felix da Marinha
Se procura uma oportunidade para construir a sua casa de sonho sem ter que passar por todas as burocracias e tempos de espera para começar a sua obra, não precisa procurar mais! Esta é a oportunidade ideal!
Este terreno já tem projeto aprovado para moradia T3+1 , é só levantar licença de construção e pôr mãos á obra! Poupa tempo e dinheiro!

Terreno com 1162m2 na Rua Combatentes do Ultramar em São Felix da Marinha com projeto aprovado para moradia T3+1 e furo de água subterrâneo.
A moradia é dividida em dois pisos: cave/garagem e rés do chão.
Todos os quartos são suites e o +1 poderá ser usado como escritório, sala de leitura, zona de brincar ou adaptar ás necessidades da sua família. Para mais informações relacionadas com o projeto, não hesite em me contactar. Estou disponível para esclarecer qualquer dúvida que possa ter.
Este imóvel prima pela sua localização, fácil acesso ás principais vias rodoviárias de acesso a Espinho, Gaia e Porto e a proximidade de vários serviços e comércios:

A 5min das praias de São Felix da Marinha
A 5min do Intermarché de Arcozelo
A 5min do acesso a A29
A 5min da escola EB 2/3 Sophia de Mello Breyner
A 5min da Estação de Comboios da Granja
A 8min do centro de Espinho
A 15min do centro de Vila Nova de Gaia

Não perca mais tempo, ligue já para mais informações!

;ID RE/MAX: 124881130-24

Localização

São Felix da Marinha, Vila Nova de Gaia, Porto

Informação do anúncio

ID do anúncio 1360065
Referência Externa 124881130-24
Atualizado em 12/01/2026 13:51:06
Vantagem Litoral AMI 7772
Referência do imóvel: 124881130-24
Phone
Chamada para a rede fixa nacional
Vantagem Litoral AMI 7772
Referência do imóvel: 124881130-24
Phone
Chamada para a rede fixa nacional
1 / 15
Terreno para Venda em São Felix da Marinha Foto 1
Terreno para Venda em São Felix da Marinha Foto 2
Terreno para Venda em São Felix da Marinha Foto 3
Terreno para Venda em São Felix da Marinha Foto 4
Terreno para Venda em São Felix da Marinha Foto 5
Terreno para Venda em São Felix da Marinha Foto 6
Terreno para Venda em São Felix da Marinha Foto 7
Terreno para Venda em São Felix da Marinha Foto 8
Terreno para Venda em São Felix da Marinha Foto 9
Terreno para Venda em São Felix da Marinha Foto 10
Terreno para Venda em São Felix da Marinha Foto 11
Terreno para Venda em São Felix da Marinha Foto 12
Terreno para Venda em São Felix da Marinha Foto 13
Terreno para Venda em São Felix da Marinha Foto 14
Terreno para Venda em São Felix da Marinha Foto 15
Clicky