Voltar
Terreno para Venda em Boliqueime Foto 1
Terreno para Venda em Boliqueime Foto 2
Terreno para Venda em Boliqueime Foto 3
Terreno para Venda em Boliqueime Foto 4
Terreno para Venda em Boliqueime Foto 5

Terreno para Venda em Boliqueime

499.000 €

Tipo
Terreno
Negócio
Venda
Área Bruta
502 m²
Área Útil
502 m²
Condição
Não aplicável
Certificado Energético
Não aplicável
Área do Terreno
3441 m²

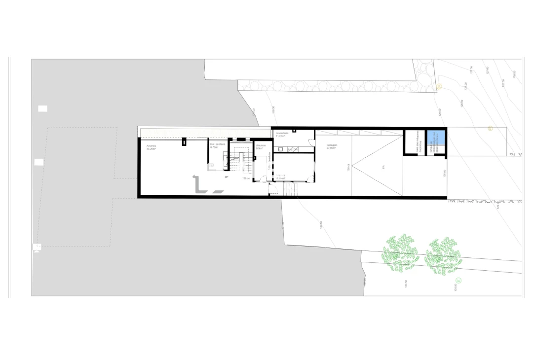
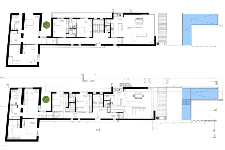
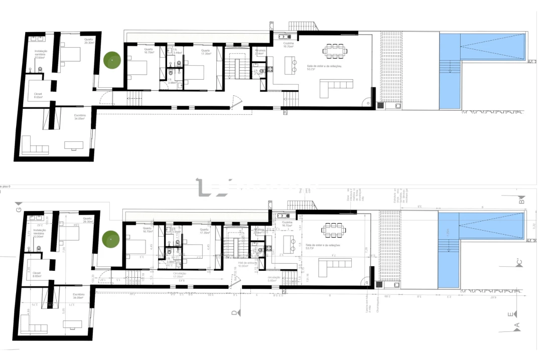
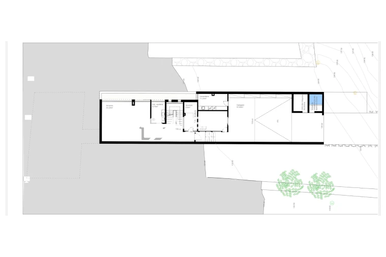
Terreno com Projeto Aprovado para Moradia V3 com Piscina e Vista Mar em Boliqueime, Algarv

Situado na tranquila zona rural de Malhadais, Boliqueime, este generoso lote de 3.441 m² oferece uma oportunidade excecional para construir a sua casa de sonho no Algarve. Com projeto aprovado para uma moradia moderna de três quartos com piscina, a propriedade combina privacidade, espaço e conveniência numa localização privilegiada.

O projeto contempla uma área total de construção de 502 m², garantindo uma residência espaçosa para viver, passar férias ou investir. Já foram realizados trabalhos iniciais, incluindo escavação e colocação de ferro, representando um investimento de cerca de 50.000, um avanço valioso para o novo proprietário.

O terreno já dispõe de ligações à rede pública de água, saneamento, eletricidade e internet por fibra ótica. Destaca-se ainda pela vista mar deslumbrante a 180 graus, o cenário perfeito para uma moradia de luxo com piscina.

A localização é ideal: perto da vila de Boliqueime, com fácil acesso à EN125 e do lado mais próximo da autoestrada A22, permitindo rápidas ligações a Vilamoura, Loulé, Albufeira e ao Aeroporto de Faro.

Uma oportunidade rara para adquirir um lote de dimensão generosa com projeto aprovado, num local tranquilo mas bem conectado no Algarve, com vistas magníficas e grande potencial de valorização e estilo de vida.

Marque já a sua visita e descubra todo o potencial desta propriedade única.

AlgarveProperty.com - AMI: 2196 - T.: 00351 289310310

Localização

Boliqueime, Loulé, Faro

Informação do anúncio

ID do anúncio 1377022
Referência Externa TC258675D
Atualizado em 12/01/2026 03:04:29
Algarve Property Lda AMI 2196
Referência do imóvel: TC258675D
Phone
Chamada para a rede fixa nacional
Algarve Property Lda AMI 2196
Referência do imóvel: TC258675D
Phone
Chamada para a rede fixa nacional
1 / 12
Terreno para Venda em Boliqueime Foto 1
Terreno para Venda em Boliqueime Foto 2
Terreno para Venda em Boliqueime Foto 3
Terreno para Venda em Boliqueime Foto 4
Terreno para Venda em Boliqueime Foto 5
Terreno para Venda em Boliqueime Foto 6
Terreno para Venda em Boliqueime Foto 7
Terreno para Venda em Boliqueime Foto 8
Terreno para Venda em Boliqueime Foto 9
Terreno para Venda em Boliqueime Foto 10
Terreno para Venda em Boliqueime Foto 11
Terreno para Venda em Boliqueime Foto 12
Clicky