Voltar
Apartamento T3 para Venda em Avenidas Novas Foto 1
Apartamento T3 para Venda em Avenidas Novas Foto 2
Apartamento T3 para Venda em Avenidas Novas Foto 3
Apartamento T3 para Venda em Avenidas Novas Foto 4
Apartamento T3 para Venda em Avenidas Novas Foto 5

Apartamento T3 para Venda em Avenidas Novas

1.475.000 €

Tipo
Apartamento
Negócio
Venda
Ano de Construção
2027
Quartos
3
Casas de Banho
4
Área Bruta
161 m²
Área Útil
154 m²
Condição
Novo
Certificado Energético
A+

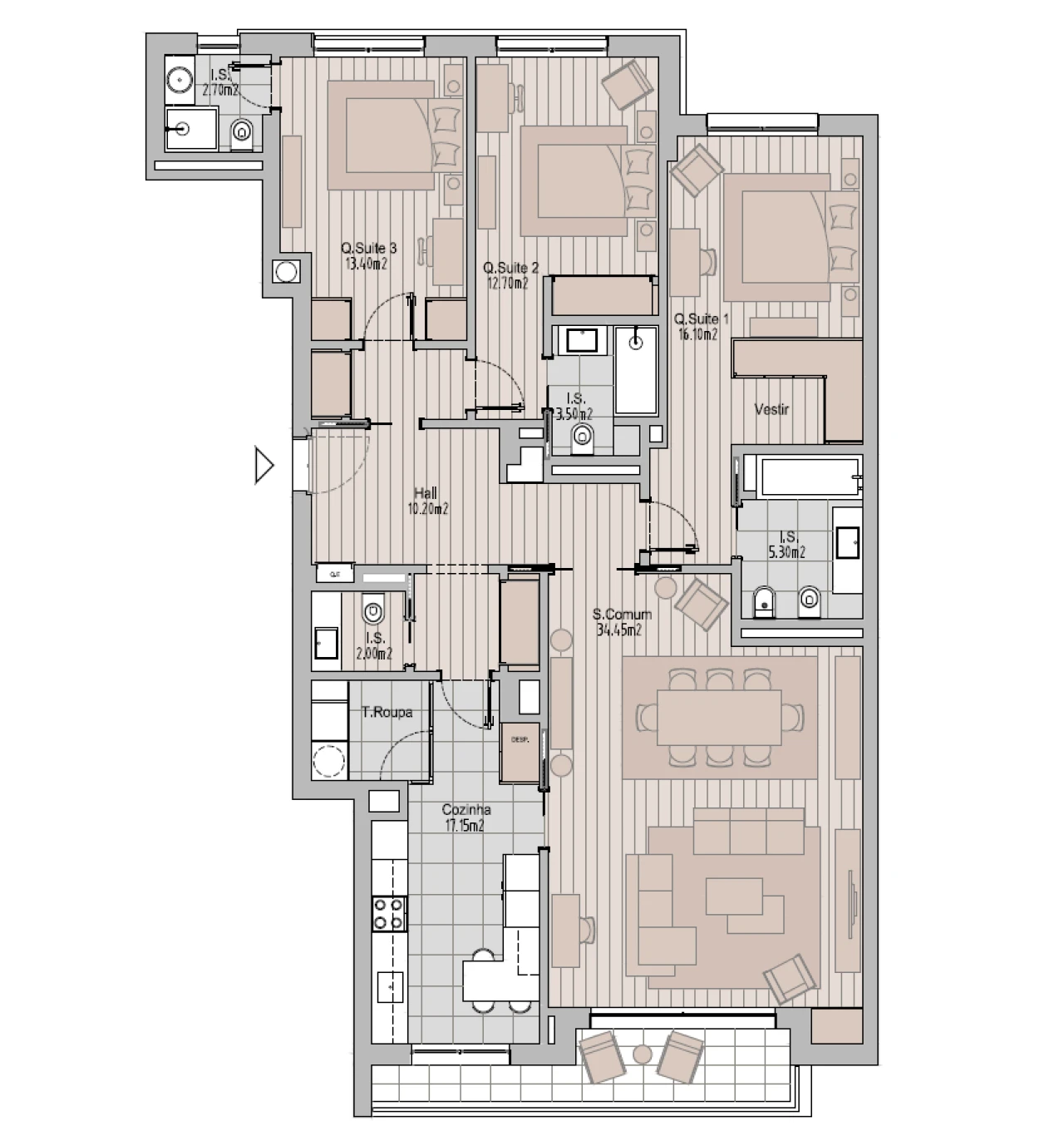
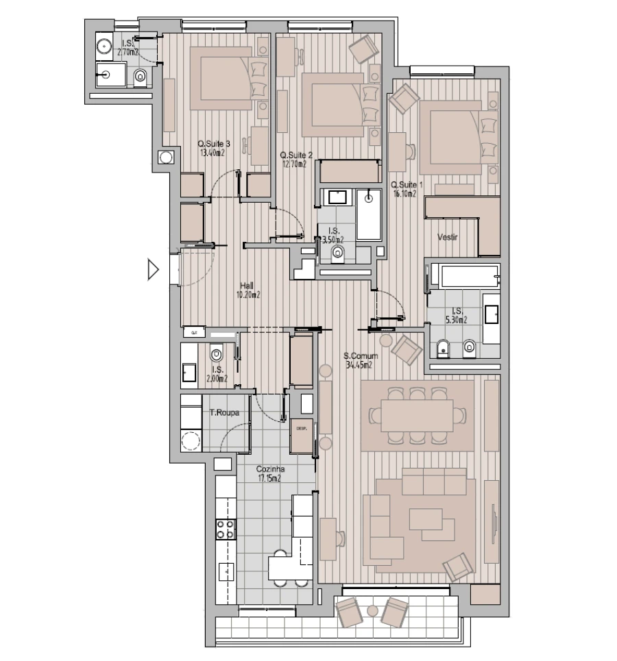
Apartamento T3 no Edifício NATURA, nas Avenidas Novas

Apartamento T3 no Piso 1 do Edifício Natura, com Varanda, Arrecadação e Estacionamento, no coração das Avenidas Novas, entre o Campo Pequeno e a Praça do Saldanha, a poucos minutos de uma vasta oferta de comércio, serviços, restauração e transportes públicos.

Com uma área bruta privativa de 154,50 m², este exclusivo apartamento T3 combina design moderno, funcionalidade e conforto no centro de Lisboa.

A zona social é composta por uma sala de 34,45 m² com acesso direto a uma varanda com 7,35 m², uma cozinha totalmente equipada e com uma zona de lavandaria, perfazendo um total de 17,15 m², e uma casa de banho social com 2,00 m². Contém ainda um hall de entrada com 10,20 m².
A zona privada, é composta por três suítes com 13,45 m², 12,70 m² e 16,10 m², tendo a última um closet. As casas de banho das suítes têm 2,70 m², 3,50 m² e 5,30 m².

O apartamento dispõe ainda de uma arrecadação e de dois lugares de estacionamento, acrescentando conveniência ao seu quotidiano.

Conclusão da obra prevista para junho de 2027.

Viva com sofisticação, conforto e centralidade numa das zonas mais nobres de Lisboa.

Localização

Avenidas Novas, Lisboa, Lisboa

Informação do anúncio

ID do anúncio 1380460
Referência Externa MN125_T3C_Piso_1
Atualizado em 10/05/2026 00:39:12
Machado Nunes AMI 20741
Referência do imóvel: MN125_T3C_Piso_1
Phone
Chamada para a rede móvel nacional
Machado Nunes AMI 20741
Referência do imóvel: MN125_T3C_Piso_1
Phone
Chamada para a rede móvel nacional
1 / 13
Apartamento T3 para Venda em Avenidas Novas Foto 1
Apartamento T3 para Venda em Avenidas Novas Foto 2
Apartamento T3 para Venda em Avenidas Novas Foto 3
Apartamento T3 para Venda em Avenidas Novas Foto 4
Apartamento T3 para Venda em Avenidas Novas Foto 5
Apartamento T3 para Venda em Avenidas Novas Foto 6
Apartamento T3 para Venda em Avenidas Novas Foto 7
Apartamento T3 para Venda em Avenidas Novas Foto 8
Apartamento T3 para Venda em Avenidas Novas Foto 9
Apartamento T3 para Venda em Avenidas Novas Foto 10
Apartamento T3 para Venda em Avenidas Novas Foto 11
Apartamento T3 para Venda em Avenidas Novas Foto 12
Apartamento T3 para Venda em Avenidas Novas Foto 13
Planta 1 / 1
Apartamento T3 para Venda em Avenidas Novas Planta 1
Clicky