Voltar
Apartamento T3 para Venda em Sesimbra (Castelo) Foto 1
Apartamento T3 para Venda em Sesimbra (Castelo) Foto 2
Apartamento T3 para Venda em Sesimbra (Castelo) Foto 3
Apartamento T3 para Venda em Sesimbra (Castelo) Foto 4
Apartamento T3 para Venda em Sesimbra (Castelo) Foto 5

Apartamento T3 para Venda em Sesimbra (Castelo)

405.000 €

Tipo
Apartamento
Negócio
Venda
Ano de Construção
2023
Quartos
3
Casas de Banho
2
Área Útil
106 m²
Garagem
1 lugar
Condição
Novo
Certificado Energético
A
Área do Terreno
132 m²

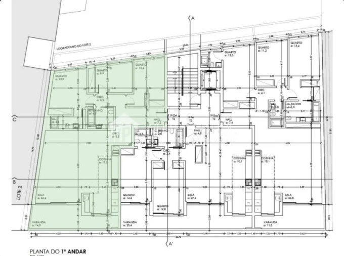
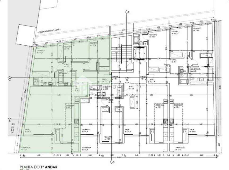
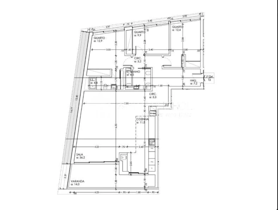
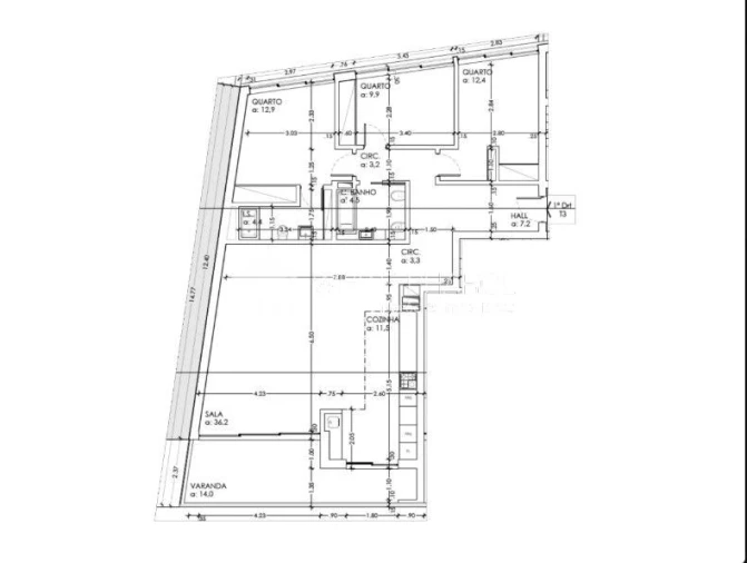
Viva o Encanto de Sesimbra – Apartamento T3 no 1.º Andar, junto ao Castelo

Descubra este magnífico apartamento T3, situado no 1.º andar, em Sesimbra, uma localização única que combina o charme histórico do Castelo de Sesimbra com a proximidade das deslumbrantes praias da região.
Com excelente exposição solar e áreas generosas, este imóvel é a escolha perfeita para quem procura conforto, qualidade de vida e um estilo de vida junto ao mar.
________________________________________
Destaques do Imóvel:
• Tipologia T3, ideal para famílias ou como investimento15
• Piso: 1º andar
• Varanda ampla (11,3 m²), perfeita para relaxar ao final do dia
• Sala espaçosa (33,8 m²) com zona de estar e jantar integradas
• Cozinha independente (10,1 m²) com layout funcional
• Três quartos luminosos, incluindo uma suíte (15,4 m²)
• Duas casas de banho completas
• Layout inteligente, com separação clara entre zonas sociais e privadas
________________________________________
Áreas Principais:
• Sala: 33,8 m²
• Cozinha: 10,1 m²
• Quarto 1: 15,0 m²
• Quarto 2: 11,2 m²
• Quarto 3 (suíte): 15,4 m²
• Casa de banho principal: 6,0 m²
• Varanda: 11,3 m²
________________________________________
Localização Privilegiada:
• A poucos minutos do Castelo de Sesimbra, uma joia histórica da região
• Praia a curta distância, ideal para dias de lazer e atividades ao ar livre
• Zona envolvente com comércio, restaurantes típicos e serviços essenciais
• Boas acessibilidades, com ligações rápidas a Lisboa e arredores
________________________________________
Oportunidade Única
Este apartamento oferece uma excelente oportunidade para:
• Habitação própria, com qualidade de vida e proximidade ao mar
• Casa de férias para desfrutar de Sesimbra durante todo o ano
• Investimento em arrendamento turístico, numa das zonas mais procuradas da costa portuguesa

Localização

Sesimbra (Castelo), Sesimbra, Setúbal

A localização exacta do imóvel não está disponível. O mapa apresenta a zona aproximada.

Informação do anúncio

ID do anúncio 1381731
Referência Externa 001-1046SG
Atualizado em 22/02/2026 09:06:59
WHITEPHAROL AMI 11930
Referência do imóvel: 001-1046SG
Phone
Chamada para a rede fixa nacional
WHITEPHAROL AMI 11930
Referência do imóvel: 001-1046SG
Phone
Chamada para a rede fixa nacional
1 / 13
Apartamento T3 para Venda em Sesimbra (Castelo) Foto 1
Apartamento T3 para Venda em Sesimbra (Castelo) Foto 2
Apartamento T3 para Venda em Sesimbra (Castelo) Foto 3
Apartamento T3 para Venda em Sesimbra (Castelo) Foto 4
Apartamento T3 para Venda em Sesimbra (Castelo) Foto 5
Apartamento T3 para Venda em Sesimbra (Castelo) Foto 6
Apartamento T3 para Venda em Sesimbra (Castelo) Foto 7
Apartamento T3 para Venda em Sesimbra (Castelo) Foto 8
Apartamento T3 para Venda em Sesimbra (Castelo) Foto 9
Apartamento T3 para Venda em Sesimbra (Castelo) Foto 10
Apartamento T3 para Venda em Sesimbra (Castelo) Foto 11
Apartamento T3 para Venda em Sesimbra (Castelo) Foto 12
Apartamento T3 para Venda em Sesimbra (Castelo) Foto 13
Clicky