Moradia T3 para Venda em Arco da Calheta
2.280.000 €
Tipo
Moradia
Negócio
Venda
Ano de Construção
2025
Quartos
3
Casas de Banho
4
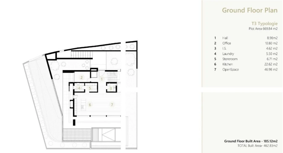
Área Bruta
462 m²
Área Útil
273 m²
Certificado Energético
A
Área do Terreno
669 m²
Moradia T3| Calheta | Em construção
Moradia de Luxo T3 com Piscina e Vista Mar – Calheta
Apresentamos-lhe uma extraordinária moradia de luxo situada na deslumbrante zona da Calheta, uma das localizações mais privilegiadas e procuradas da costa sul da Ilha da Madeira. Esta propriedade única combina elegância contemporânea, conforto moderno e uma envolvente natural excecional, oferecendo um estilo de vida sofisticado e tranquilo. Ideal para quem procura uma residência principal, uma casa de férias ou até um investimento imobiliário de alto padrão, esta moradia reúne todas as condições para proporcionar uma experiência habitacional incomparável.
Com uma arquitetura moderna e linhas elegantes, a moradia destaca-se pelos acabamentos de luxo e pela qualidade superior dos materiais utilizados em toda a sua construção. Cada detalhe foi cuidadosamente pensado para oferecer funcionalidade e requinte, criando espaços amplos, luminosos e acolhedores. Composta por três magníficas suítes, esta propriedade garante o máximo de conforto e privacidade a todos os residentes e convidados. Cada suíte possui casa de banho privativa, roupeiros embutidos e janelas generosas que permitem a entrada abundante de luz natural, beneficiando de uma excelente exposição solar ao longo de todo o dia.
A área social desta moradia é um verdadeiro convite ao convívio e à tranquilidade. A sala de estar, ampla e elegante, foi concebida em conceito open space e integra-se harmoniosamente com a zona de refeições e a cozinha moderna, totalmente equipada com eletrodomésticos de última geração e materiais de alta qualidade. A ligação direta a amplas varandas e ao espaço exterior cria uma transição perfeita entre o interior e o exterior, permitindo desfrutar plenamente da envolvente natural e da deslumbrante vista panorâmica sobre o oceano Atlântico.
No exterior, encontra-se um dos maiores destaques desta propriedade: uma magnífica piscina privativa, ideal para momentos de lazer e relaxamento, enquanto aprecia o pôr do sol sobre o mar. A zona envolvente foi pensada ao pormenor, com áreas ajardinadas e espaços que convidam a refeições ao ar livre, churrascos em família ou simplesmente a momentos de descanso absoluto ao som do mar.
A localização desta moradia é outro dos seus grandes trunfos. Situada a apenas 5 minutos da praia da Calheta, uma das mais belas e conhecidas praias de areia da ilha, oferece fácil acesso a uma vasta gama de serviços e comodidades, como restaurantes, supermercados, marinas e centros de lazer. A Calheta é também conhecida pelo seu clima ameno durante todo o ano, tornando esta propriedade perfeita para viver ou passar férias em qualquer estação.
Combinando luxo, conforto, localização privilegiada e uma paisagem deslumbrante, esta moradia representa uma oportunidade rara no mercado imobiliário madeirense. Quer procure um refúgio tranquilo junto ao mar, quer deseje investir num imóvel de prestígio com elevado potencial de valorização, esta propriedade é a escolha ideal.
? Não perca a oportunidade de conhecer esta moradia única na Calheta. Contacte-nos hoje mesmo para mais informações ou para agendar a sua visita e deixe-se encantar por este verdadeiro paraíso.
Apresentamos-lhe uma extraordinária moradia de luxo situada na deslumbrante zona da Calheta, uma das localizações mais privilegiadas e procuradas da costa sul da Ilha da Madeira. Esta propriedade única combina elegância contemporânea, conforto moderno e uma envolvente natural excecional, oferecendo um estilo de vida sofisticado e tranquilo. Ideal para quem procura uma residência principal, uma casa de férias ou até um investimento imobiliário de alto padrão, esta moradia reúne todas as condições para proporcionar uma experiência habitacional incomparável.
Com uma arquitetura moderna e linhas elegantes, a moradia destaca-se pelos acabamentos de luxo e pela qualidade superior dos materiais utilizados em toda a sua construção. Cada detalhe foi cuidadosamente pensado para oferecer funcionalidade e requinte, criando espaços amplos, luminosos e acolhedores. Composta por três magníficas suítes, esta propriedade garante o máximo de conforto e privacidade a todos os residentes e convidados. Cada suíte possui casa de banho privativa, roupeiros embutidos e janelas generosas que permitem a entrada abundante de luz natural, beneficiando de uma excelente exposição solar ao longo de todo o dia.
A área social desta moradia é um verdadeiro convite ao convívio e à tranquilidade. A sala de estar, ampla e elegante, foi concebida em conceito open space e integra-se harmoniosamente com a zona de refeições e a cozinha moderna, totalmente equipada com eletrodomésticos de última geração e materiais de alta qualidade. A ligação direta a amplas varandas e ao espaço exterior cria uma transição perfeita entre o interior e o exterior, permitindo desfrutar plenamente da envolvente natural e da deslumbrante vista panorâmica sobre o oceano Atlântico.
No exterior, encontra-se um dos maiores destaques desta propriedade: uma magnífica piscina privativa, ideal para momentos de lazer e relaxamento, enquanto aprecia o pôr do sol sobre o mar. A zona envolvente foi pensada ao pormenor, com áreas ajardinadas e espaços que convidam a refeições ao ar livre, churrascos em família ou simplesmente a momentos de descanso absoluto ao som do mar.
A localização desta moradia é outro dos seus grandes trunfos. Situada a apenas 5 minutos da praia da Calheta, uma das mais belas e conhecidas praias de areia da ilha, oferece fácil acesso a uma vasta gama de serviços e comodidades, como restaurantes, supermercados, marinas e centros de lazer. A Calheta é também conhecida pelo seu clima ameno durante todo o ano, tornando esta propriedade perfeita para viver ou passar férias em qualquer estação.
Combinando luxo, conforto, localização privilegiada e uma paisagem deslumbrante, esta moradia representa uma oportunidade rara no mercado imobiliário madeirense. Quer procure um refúgio tranquilo junto ao mar, quer deseje investir num imóvel de prestígio com elevado potencial de valorização, esta propriedade é a escolha ideal.
? Não perca a oportunidade de conhecer esta moradia única na Calheta. Contacte-nos hoje mesmo para mais informações ou para agendar a sua visita e deixe-se encantar por este verdadeiro paraíso.
Localização
Arco da Calheta, Calheta (Madeira), Ilha da Madeira
Informação do anúncio
ID do anúncio
1389974
Referência Externa
00521-AC-03
Atualizado em
04/05/2026 23:22:31
Anunciante
Chamada para a rede fixa nacional
Sapiens - Mediação Imobiliária, Lda
AMI 17708
Referência do imóvel:
00521-AC-03
Moradia T3 para Venda em Arco da Calheta