Terreno para Venda em Salir de Matos
67.500 €
Tipo
Terreno
Negócio
Venda
Área Bruta
303 m²
Condição
Não aplicável
Área do Terreno
2026 m²
São Martinho do Porto - Terreno Isolado com Projeto Aprovado entre Caldas da Rainha e São
Já pode construir: terreno com projeto aprovado a minutos das praias e das Caldas da Rainha.
Se procura construir casa na zona Oeste, sabe que encontrar um terreno com privacidade, boa exposição solar e já com projeto aprovado é cada vez mais raro. Este é um daquelas situações que permite avançar sem esperas nem incertezas algo hoje altamente valorizado por quem quer construir com segurança.
Imagine chegar a casa e encontrar o silêncio do campo, espaço à sua volta e uma envolvência natural tranquila, sabendo que em poucos minutos está na cidade ou junto às praias mais bonitas da Costa de Prata.
É exatamente isso que este terreno com 2.026 m², situado em S. Domingos, Salir de Matos, tem para oferecer.
Mais do que um simples terreno, trata-se de uma oportunidade para criar um estilo de vida equilibrado, onde conforto, natureza e modernidade convivem em perfeita harmonia.
Projeto Aprovado Pode começar a construir
O terreno dispõe de projeto aprovado para moradia contemporânea T3 com piscina, cuidadosamente pensada para privilegiar luminosidade, funcionalidade e ligação ao exterior.
A arquitetura moderna aposta em linhas elegantes e grandes vãos envidraçados, permitindo que a luz natural acompanhe os espaços ao longo de todo o dia e criando uma continuidade natural entre interior e jardim.
Distribuição da Moradia
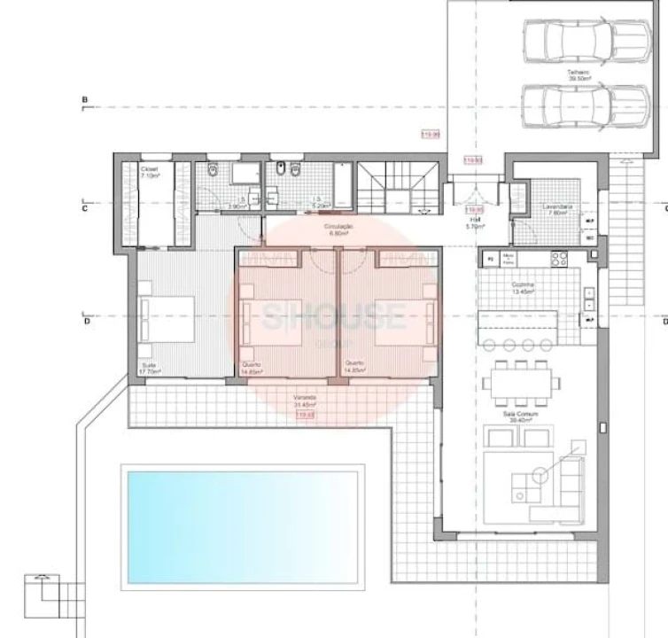
Rés do Chão
Suíte com closet 28,70 m²
Dois quartos 14,85 m² cada
Instalação sanitária 5,20 m²
Hall de entrada 5,70 m²
Corredor 6,80 m²
Sala e cozinha em open space 52,85 m²
Lavandaria 7,80 m²
Varanda ampla 31,45 m²
Telheiro coberto 39,50 m²
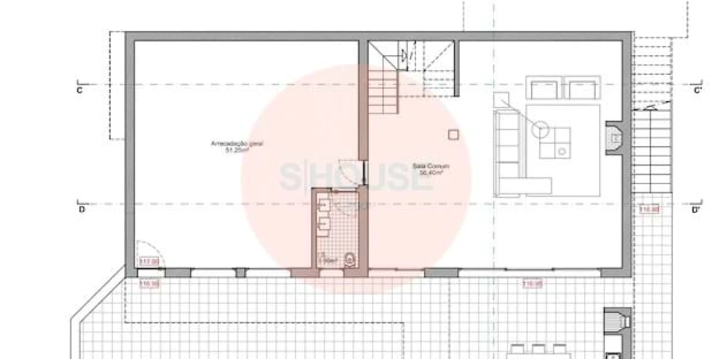
Piso -1
Sala comum multifuncional 56,40 m²
Arrecadação ampla 51,25 m²
Telheiro exterior com churrasqueira 32,40 m²
Piscina 31,20 m²
A área exterior permite criar um verdadeiro refúgio privado: jardim paisagístico, zonas de lazer, espaço para refeições ao ar livre ou até uma horta, valorizando a vivência exterior durante todo o ano.
Localização campo, cidade e mar no mesmo ponto
Inserido numa zona calma e rodeada de natureza, este terreno beneficia de uma localização estratégica cada vez mais procurada por famílias e por quem trabalha em Lisboa mas procura qualidade de vida.
10 minutos de Caldas da Rainha (escolas, hospital, comércio e serviços)
Menos de 15 minutos das praias de São Martinho do Porto, Foz do Arelho e Lagoa de Óbidos
Acesso rápido à A8
Cerca de 1 hora de Lisboa
Viver em S. Domingos é escolher tranquilidade sem abdicar da proximidade urbana e do mar.
Porque esta oportunidade é diferente
Projeto aprovado elimina anos de espera e incerteza
Moradia moderna com piscina já definida
Terreno amplo com excelente privacidade
Forte potencial de valorização na Costa de Prata
Ideal para residência permanente ou segunda habitação
Um projeto de vida já pensado para si
Aqui não está apenas a comprar terreno está a adquirir tempo, segurança e visão. O trabalho técnico já foi realizado, permitindo focar-se apenas na construção da casa que sempre idealizou.
Num mercado onde os processos de licenciamento são cada vez mais demorados, encontrar um lote pronto a avançar representa uma vantagem real.
Oportunidade com procura crescente
Terrenos com projeto aprovado nesta localização são cada vez mais escassos.
A procura pela zona Oeste continua a crescer, sobretudo por compradores vindos de Lisboa e do estrangeiro.
Quem procura construir sabe que começar já faz toda a diferença.
Contacte para mais informações ou agende a sua visita e descubra o potencial deste terreno.
Se procura construir casa na zona Oeste, sabe que encontrar um terreno com privacidade, boa exposição solar e já com projeto aprovado é cada vez mais raro. Este é um daquelas situações que permite avançar sem esperas nem incertezas algo hoje altamente valorizado por quem quer construir com segurança.
Imagine chegar a casa e encontrar o silêncio do campo, espaço à sua volta e uma envolvência natural tranquila, sabendo que em poucos minutos está na cidade ou junto às praias mais bonitas da Costa de Prata.
É exatamente isso que este terreno com 2.026 m², situado em S. Domingos, Salir de Matos, tem para oferecer.
Mais do que um simples terreno, trata-se de uma oportunidade para criar um estilo de vida equilibrado, onde conforto, natureza e modernidade convivem em perfeita harmonia.
Projeto Aprovado Pode começar a construir
O terreno dispõe de projeto aprovado para moradia contemporânea T3 com piscina, cuidadosamente pensada para privilegiar luminosidade, funcionalidade e ligação ao exterior.
A arquitetura moderna aposta em linhas elegantes e grandes vãos envidraçados, permitindo que a luz natural acompanhe os espaços ao longo de todo o dia e criando uma continuidade natural entre interior e jardim.
Distribuição da Moradia
Rés do Chão
Suíte com closet 28,70 m²
Dois quartos 14,85 m² cada
Instalação sanitária 5,20 m²
Hall de entrada 5,70 m²
Corredor 6,80 m²
Sala e cozinha em open space 52,85 m²
Lavandaria 7,80 m²
Varanda ampla 31,45 m²
Telheiro coberto 39,50 m²
Piso -1
Sala comum multifuncional 56,40 m²
Arrecadação ampla 51,25 m²
Telheiro exterior com churrasqueira 32,40 m²
Piscina 31,20 m²
A área exterior permite criar um verdadeiro refúgio privado: jardim paisagístico, zonas de lazer, espaço para refeições ao ar livre ou até uma horta, valorizando a vivência exterior durante todo o ano.
Localização campo, cidade e mar no mesmo ponto
Inserido numa zona calma e rodeada de natureza, este terreno beneficia de uma localização estratégica cada vez mais procurada por famílias e por quem trabalha em Lisboa mas procura qualidade de vida.
10 minutos de Caldas da Rainha (escolas, hospital, comércio e serviços)
Menos de 15 minutos das praias de São Martinho do Porto, Foz do Arelho e Lagoa de Óbidos
Acesso rápido à A8
Cerca de 1 hora de Lisboa
Viver em S. Domingos é escolher tranquilidade sem abdicar da proximidade urbana e do mar.
Porque esta oportunidade é diferente
Projeto aprovado elimina anos de espera e incerteza
Moradia moderna com piscina já definida
Terreno amplo com excelente privacidade
Forte potencial de valorização na Costa de Prata
Ideal para residência permanente ou segunda habitação
Um projeto de vida já pensado para si
Aqui não está apenas a comprar terreno está a adquirir tempo, segurança e visão. O trabalho técnico já foi realizado, permitindo focar-se apenas na construção da casa que sempre idealizou.
Num mercado onde os processos de licenciamento são cada vez mais demorados, encontrar um lote pronto a avançar representa uma vantagem real.
Oportunidade com procura crescente
Terrenos com projeto aprovado nesta localização são cada vez mais escassos.
A procura pela zona Oeste continua a crescer, sobretudo por compradores vindos de Lisboa e do estrangeiro.
Quem procura construir sabe que começar já faz toda a diferença.
Contacte para mais informações ou agende a sua visita e descubra o potencial deste terreno.
Localização
Salir de Matos, Caldas da Rainha, Leiria
Informação do anúncio
ID do anúncio
1390136
Referência Externa
SH-10
Atualizado em
21/05/2026 00:45:21
Terreno para Venda em Salir de Matos
Vídeo