Voltar
Terreno para Venda em Loule (São Sebastião) Foto 1
Terreno para Venda em Loule (São Sebastião) Foto 2
Terreno para Venda em Loule (São Sebastião) Foto 3
Terreno para Venda em Loule (São Sebastião) Foto 4
Terreno para Venda em Loule (São Sebastião) Foto 5

Terreno para Venda em Loule (São Sebastião)

430.000 €

Tipo
Terreno
Negócio
Venda
Condição
Não aplicável
Área do Terreno
755 m²

Lote de terreno com ruína e projeto aprovado, Vale Judeu - perto de Vilamoura

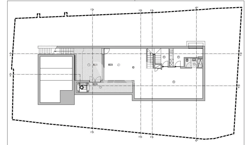
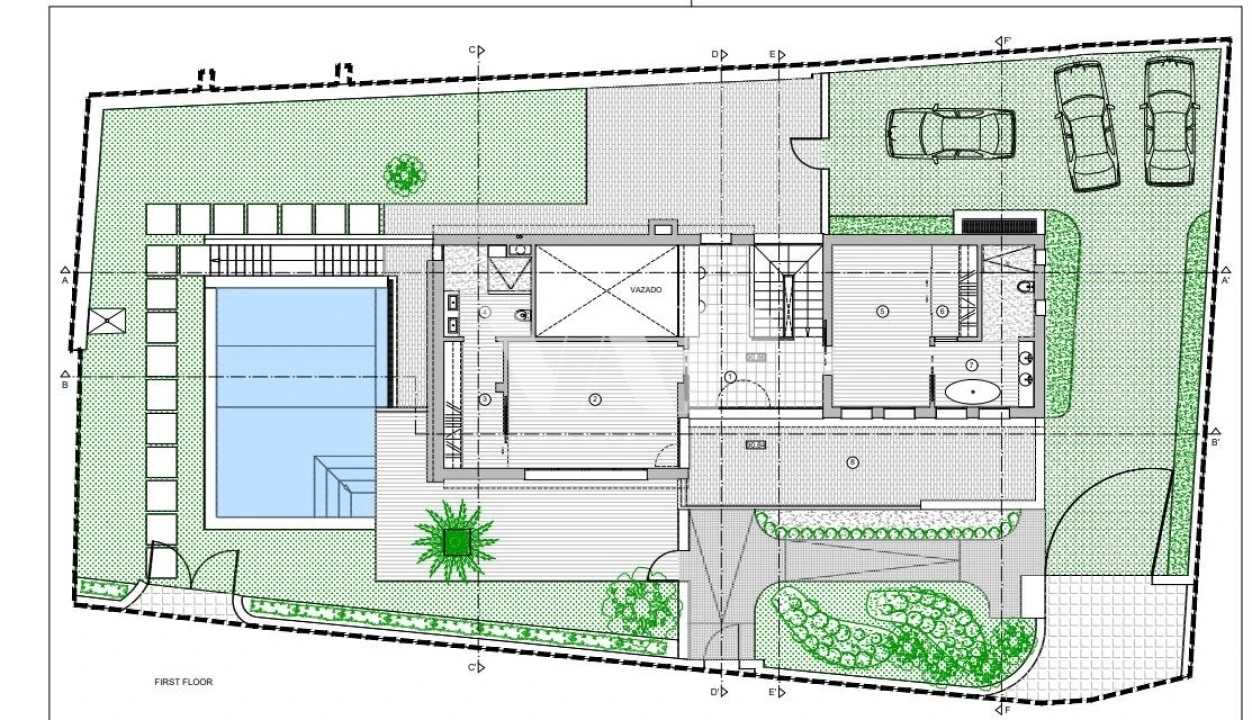
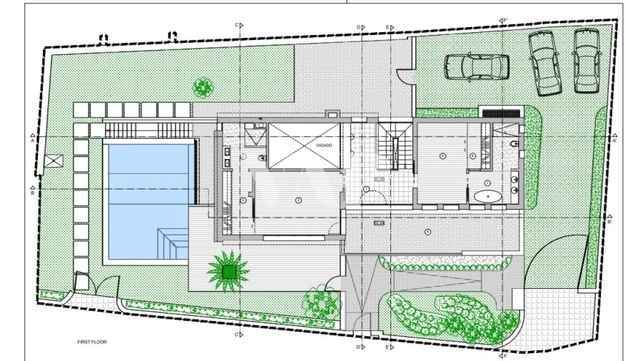
Lote de terreno com ruína e projeto aprovado em Vale Judeu, nas colinas aos arredores de Vilamoura. Este imóvel oferece uma oportunidade única para quem deseja construir a moradia dos seus sonhos, numa localização tranquila e ao mesmo tempo próxima de Vilamoura, um dos destinos turísticos mais exclusivos do Algarve. Com projeto já aprovado para uma villa moderna com piscina, este terreno combina o sossego do interior com a proximidade das praias, campos de golfe e todas as comodidades da região.

Principais Características
- Lote de terreno com 755 m²
- Ruína existente no terreno
- Projeto aprovado para moradia moderna com piscina
- Dois pisos mais cave
- Área de construção proposta: 271 m² (excluindo piso -1)
- Área de implantação: 170,99 m²

Oportunidade de Construção
- Possibilidade de construir uma moradia de sonho
- Acompanhar de perto todo o processo de construção
- Ambiente residencial tranquilo com poucas casas ao redor
- Excelente opção tanto para residência permanente como para casa de férias

Localização Vale Judeu, nas colinas aos arredores de Vilamoura
- Inserido numa zona calma e com ambiente de interior
- Apenas a poucos minutos de carro do centro de Vilamoura
- Próximo de campos de golfe de renome, marina e praias de águas cristalinas
- Fácil acesso a comércio local, serviços e restaurantes típicos
- Localização estratégica no Algarve, a 20 minutos do Aeroporto de Faro

VAP21327

Localização

Loule (São Sebastião), Loulé, Faro

Informação do anúncio

ID do anúncio 1399271
Referência Externa VAP213227
Atualizado em 15/01/2026 03:49:31
VAP Real Estate AMI 10094
Referência do imóvel: VAP213227
Phone
Chamada para a rede fixa nacional
VAP Real Estate AMI 10094
Referência do imóvel: VAP213227
Phone
Chamada para a rede fixa nacional
1 / 5
Terreno para Venda em Loule (São Sebastião) Foto 1
Terreno para Venda em Loule (São Sebastião) Foto 2
Terreno para Venda em Loule (São Sebastião) Foto 3
Terreno para Venda em Loule (São Sebastião) Foto 4
Terreno para Venda em Loule (São Sebastião) Foto 5
Clicky