Voltar
Moradia T3 para Venda em Idães Foto 1
Moradia T3 para Venda em Idães Foto 2
Moradia T3 para Venda em Idães Foto 3
Moradia T3 para Venda em Idães Foto 4
Moradia T3 para Venda em Idães Foto 5

Moradia T3 para Venda em Idães

309.500 €

Tipo
Moradia
Negócio
Venda
Quartos
3
Área Bruta
227 m²
Área Útil
163 m²
Condição
Novo
Certificado Energético
A
Área do Terreno
550 m²

Moradia Geminada T3 Venda em Idães,Felgueiras

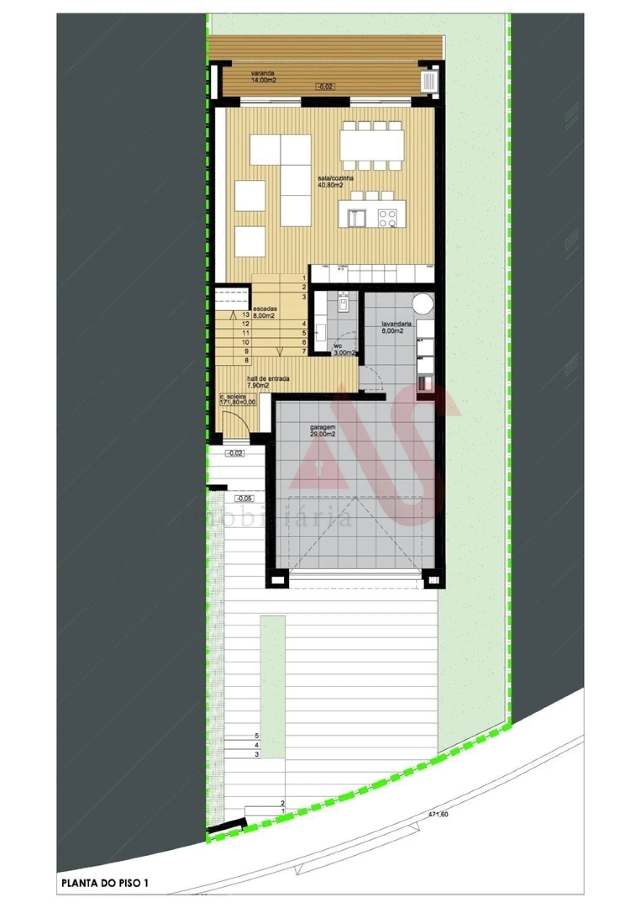
Moradia T3 em construção em Idães, Felgueiras

🏡 Moradia Nova T3 com 550 m² de Terreno e 4 Lugares de Estacionamento – Barrosas, Felgueiras

Descubra esta moradia T3 de arquitetura moderna, inserida numa zona habitacional calma e em plena valorização, junto ao futuro parque urbano da Vila de Barrosas.

Com áreas generosas, excelente exposição solar e uma envolvente familiar e tranquila, esta moradia é ideal para quem procura qualidade de vida, espaço exterior e uma casa com acabamentos contemporâneos e possibilidade de personalização.

🔹 Principais características:

Terreno com 550 m²

Área bruta de construção: 227 m²

Sala e cozinha em open space, com ligação direta à zona de lazer exterior

3 quartos (incluindo uma suíte)

3 casas de banho (1 privativa, 1 comum e 1 social)

Lavandaria

Garagem fechada para 2 viaturas + 2 lugares exteriores

🛠 Equipamentos e acabamentos incluídos:

Isolamento térmico e acústico de alta eficiência

Caixilharia com corte térmico e vidros duplos

Estores elétricos

Portão de garagem seccionado e automatizado

Pré-instalação de ar condicionado

Bomba de calor para águas quentes

Cozinha com orçamento de 5.000€ incluído (personalizável)

Tetos falsos em gesso cartonado com sancas

Escadas interiores com guardas em ferro personalizadas

Pavimento flutuante e cerâmico (à escolha, até 15€/m²)

Louças sanitárias incluídas (até 3.000€)

Possibilidade de piscina no exterior

📍 Localização estratégica:

A 3 minutos da A11

A 10 minutos de Felgueiras, Vizela, Guimarães e Lousada

A 35 minutos do Porto e do Aeroporto Sá Carneiro

💰 Valor de venda com campanha em vigor: 309.500€
(opção sem cozinha: 304.500€)
🔁 Possibilidade de descontos extra consoante o valor do sinal de entrada
📆 Conclusão da obra prevista: setembro de 2027

Referência: ASV25060

Por sermos intermediários de crédito devidamente autorizados pelo Banco de Portugal (Reg. 2736) fazemos a gestão de todo o seu processo de financiamento, sempre com as melhores soluções de mercado.

Porquê escolher a AS Imobiliária
Com mais de 10 anos no ramo imobiliário e milhares de famílias felizes, dispomos de 8 agências estrategicamente localizadas, para o servir com proximidade, corresponder à suas expectativas e ajudá-lo a adquirir a sua casa de sonho. Compromisso, Competência e Confiança são os nossos valores que entregamos aos nossos Clientes na hora de comprar, arrendar ou vender o seu imóvel.

A nossa prioridade é a sua Felicidade!

Especialistas imobiliários em Vizela ; Guimarães ; Felgueiras ; Lousada ; Santo Tirso ; Barcelos ; São João da Madeira ; Porto ; Braga ; Trofa ; Lisboa ;

Localização

Idães, Felgueiras, Porto

Informação do anúncio

ID do anúncio 1399400
Referência Externa ASV25060
Atualizado em 16/03/2026 03:05:56
AS Imobiliária AMI 13249
Referência do imóvel: ASV25060
Phone
Chamada para a rede fixa nacional
AS Imobiliária AMI 13249
Referência do imóvel: ASV25060
Phone
Chamada para a rede fixa nacional
1 / 13
Moradia T3 para Venda em Idães Foto 1
Moradia T3 para Venda em Idães Foto 2
Moradia T3 para Venda em Idães Foto 3
Moradia T3 para Venda em Idães Foto 4
Moradia T3 para Venda em Idães Foto 5
Moradia T3 para Venda em Idães Foto 6
Moradia T3 para Venda em Idães Foto 7
Moradia T3 para Venda em Idães Foto 8
Moradia T3 para Venda em Idães Foto 9
Moradia T3 para Venda em Idães Foto 10
Moradia T3 para Venda em Idães Foto 11
Moradia T3 para Venda em Idães Foto 12
Moradia T3 para Venda em Idães Foto 13
Clicky