Voltar
Moradia T3 para Venda em Vimeiro Foto 1
Moradia T3 para Venda em Vimeiro Foto 2
Moradia T3 para Venda em Vimeiro Foto 3
Moradia T3 para Venda em Vimeiro Foto 4
Moradia T3 para Venda em Vimeiro Foto 5

Moradia T3 para Venda em Vimeiro

449.900 €

Tipo
Moradia
Negócio
Venda
Ano de Construção
2003
Quartos
3
Casas de Banho
4
Área Bruta
456 m²
Área Útil
228 m²
Condição
Não aplicável
Certificado Energético
A
Área do Terreno
3621 m²

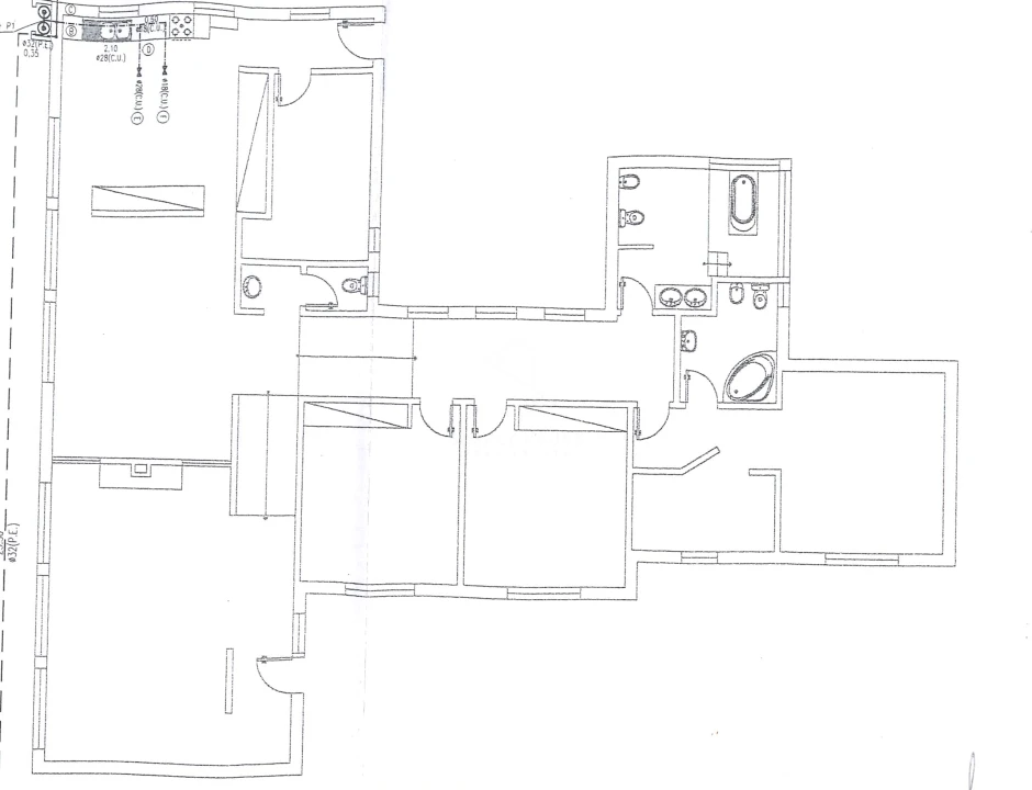
Moradia T3 Semi-térrea com Jardim e Terreno – 1h de Lisboa e 15 Minutos das Praias

Descubra esta fantástica moradia semi-térrea T3, com 456 m² de área bruta (228 m² de área útil), inserida num generoso lote de 3.621 m², localizada em zona central, com excelentes acessos a apenas 1 hora de Lisboa e a 15 minutos das praias.

Composição do Imóvel:

Piso principal:

Hall de entrada

Cozinha equipada

Despensa

Ampla sala de estar e jantar com pé direito alto, que confere uma sensação de grande amplitude e luminosidade

WC Social

1 Suite com closet e WC privativo

2 Quartos com roupeiros embutidos

1 Casa de banho com banheira de hidromassagem

Cave (multiusos) com entrada independente:

Espaço versátil ideal para sala de estar, sala de jogos, ginásio ou escritório

1 Casa de banho de apoio

Garagem:

Estacionamento para 1 ou 2 veículos

Lavandaria / Arrumos

Características e Equipamentos:

Ar condicionado

Recuperador de calor com saídas em todos os quartos

Salamandra

Vidros Duplos

Portas de sacada para facilitar o acesso à zona exterior

Excelente exposição solar

Vistas desafogadas

Paredes com caixa de ar e isolamento térmico roofmate

Pavimento exterior em calçada à portuguesa

Churrasqueira próxima da cozinha para maior praticidade

Jardim com palmeiras

Terreno totalmente murado

Portões automáticos

Poço de água

Árvores de fruto

Espaço exterior com potencial para construção de piscina

Esta é uma excelente oportunidade para quem procura conforto, espaço e tranquilidade, sem abdicar da proximidade ao litoral e à capital.

Ideal para habitação permanente, casa de férias ou investimento.

Agende já a sua visita e venha conhecer o seu próximo lar!

Não perca esta oportunidade única.

Localização

Vimeiro, Alcobaça, Leiria

Informação do anúncio

ID do anúncio 1406895
Referência Externa 712101-181
Atualizado em 17/12/2025 08:13:06
Simply House AMI 22662
Referência do imóvel: 712101-181
Phone
Chamada para a rede móvel nacional
Simply House AMI 22662
Referência do imóvel: 712101-181
Phone
Chamada para a rede móvel nacional
1 / 43
Moradia T3 para Venda em Vimeiro Foto 1
Moradia T3 para Venda em Vimeiro Foto 2
Moradia T3 para Venda em Vimeiro Foto 3
Moradia T3 para Venda em Vimeiro Foto 4
Moradia T3 para Venda em Vimeiro Foto 5
Moradia T3 para Venda em Vimeiro Foto 6
Moradia T3 para Venda em Vimeiro Foto 7
Moradia T3 para Venda em Vimeiro Foto 8
Moradia T3 para Venda em Vimeiro Foto 9
Moradia T3 para Venda em Vimeiro Foto 10
Moradia T3 para Venda em Vimeiro Foto 11
Moradia T3 para Venda em Vimeiro Foto 12
Moradia T3 para Venda em Vimeiro Foto 13
Moradia T3 para Venda em Vimeiro Foto 14
Moradia T3 para Venda em Vimeiro Foto 15
Moradia T3 para Venda em Vimeiro Foto 16
Moradia T3 para Venda em Vimeiro Foto 17
Moradia T3 para Venda em Vimeiro Foto 18
Moradia T3 para Venda em Vimeiro Foto 19
Moradia T3 para Venda em Vimeiro Foto 20
Moradia T3 para Venda em Vimeiro Foto 21
Moradia T3 para Venda em Vimeiro Foto 22
Moradia T3 para Venda em Vimeiro Foto 23
Moradia T3 para Venda em Vimeiro Foto 24
Moradia T3 para Venda em Vimeiro Foto 25
Moradia T3 para Venda em Vimeiro Foto 26
Moradia T3 para Venda em Vimeiro Foto 27
Moradia T3 para Venda em Vimeiro Foto 28
Moradia T3 para Venda em Vimeiro Foto 29
Moradia T3 para Venda em Vimeiro Foto 30
Moradia T3 para Venda em Vimeiro Foto 31
Moradia T3 para Venda em Vimeiro Foto 32
Moradia T3 para Venda em Vimeiro Foto 33
Moradia T3 para Venda em Vimeiro Foto 34
Moradia T3 para Venda em Vimeiro Foto 35
Moradia T3 para Venda em Vimeiro Foto 36
Moradia T3 para Venda em Vimeiro Foto 37
Moradia T3 para Venda em Vimeiro Foto 38
Moradia T3 para Venda em Vimeiro Foto 39
Moradia T3 para Venda em Vimeiro Foto 40
Moradia T3 para Venda em Vimeiro Foto 41
Moradia T3 para Venda em Vimeiro Foto 42
Moradia T3 para Venda em Vimeiro Foto 43
Moradia T3 para Venda em Vimeiro
Clicky