Voltar
Moradia T4 para Venda em Silveira Foto 1
Moradia T4 para Venda em Silveira Foto 2
Moradia T4 para Venda em Silveira Foto 3
Moradia T4 para Venda em Silveira Foto 4
Moradia T4 para Venda em Silveira Foto 5

Moradia T4 para Venda em Silveira

790.000 €

Tipo
Moradia
Negócio
Venda
Quartos
4
Casas de Banho
3
Área Bruta
3228 m²
Área Útil
2745 m²
Condição
Novo
Certificado Energético
B-
Área do Terreno
3228 m²

Condomínio para venda em Casalinhos de Alfaiata, Silveira

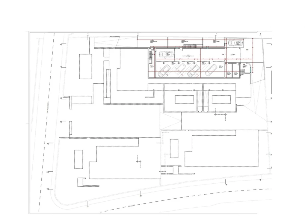
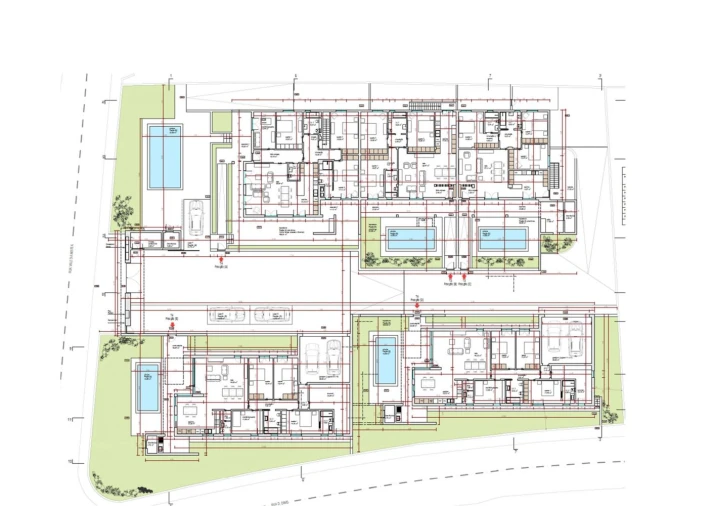
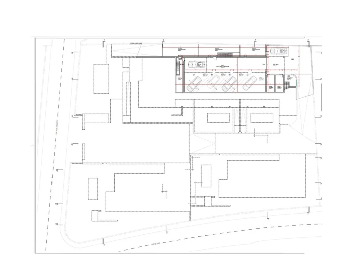
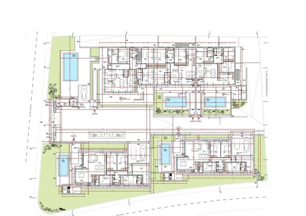
Excelente oportunidade para construção de um condomínio localizado em Casalinhos de Alfaiata, Silveira, muito próximo da cidade de Torres Vedras e a menos de 10 minutos da praia de Santa Cruz.

Com projecto aprovado e licença a pagamento, permitindo iniciar a construção de imediato, este condomínio dispõe de cinco moradias térreas, das quais três geminadas com tipologias T3 e T4 e duas isoladas com tipologia T4, as mesmas incluem logradouro próprio, piscina, garagem e arrecadação.

Neste momento o lote existente, com uma área de 3228m2 engloba um solar com uma área de construção já existente de 926,69m2, estando prevista no projecto a transformação deste edifício existente em três moradias geminadas. As duas moradias isoladas serão implantadas na restante área com, respectivamente, áreas de construção de 242,64 e 254,10m2.

O projecto de construção aprovado pode ser consultado em anexo.

Venha visitar!

A informação facultada é meramente informativa pelo que não pode ser considerada vinculativa e está sujeita a alterações.

Localização

Silveira, Torres Vedras, Lisboa

Informação do anúncio

ID do anúncio 1409884
Referência Externa RC2004-049
Atualizado em 15/10/2025 09:41:23
RC20 Mediação Imobiliária AMI 20071
Referência do imóvel: RC2004-049
Phone
Chamada para a rede fixa nacional
RC20 Mediação Imobiliária AMI 20071
Referência do imóvel: RC2004-049
Phone
Chamada para a rede fixa nacional
1 / 48
Moradia T4 para Venda em Silveira Foto 1
Moradia T4 para Venda em Silveira Foto 2
Moradia T4 para Venda em Silveira Foto 3
Moradia T4 para Venda em Silveira Foto 4
Moradia T4 para Venda em Silveira Foto 5
Moradia T4 para Venda em Silveira Foto 6
Moradia T4 para Venda em Silveira Foto 7
Moradia T4 para Venda em Silveira Foto 8
Moradia T4 para Venda em Silveira Foto 9
Moradia T4 para Venda em Silveira Foto 10
Moradia T4 para Venda em Silveira Foto 11
Moradia T4 para Venda em Silveira Foto 12
Moradia T4 para Venda em Silveira Foto 13
Moradia T4 para Venda em Silveira Foto 14
Moradia T4 para Venda em Silveira Foto 15
Moradia T4 para Venda em Silveira Foto 16
Moradia T4 para Venda em Silveira Foto 17
Moradia T4 para Venda em Silveira Foto 18
Moradia T4 para Venda em Silveira Foto 19
Moradia T4 para Venda em Silveira Foto 20
Moradia T4 para Venda em Silveira Foto 21
Moradia T4 para Venda em Silveira Foto 22
Moradia T4 para Venda em Silveira Foto 23
Moradia T4 para Venda em Silveira Foto 24
Moradia T4 para Venda em Silveira Foto 25
Moradia T4 para Venda em Silveira Foto 26
Moradia T4 para Venda em Silveira Foto 27
Moradia T4 para Venda em Silveira Foto 28
Moradia T4 para Venda em Silveira Foto 29
Moradia T4 para Venda em Silveira Foto 30
Moradia T4 para Venda em Silveira Foto 31
Moradia T4 para Venda em Silveira Foto 32
Moradia T4 para Venda em Silveira Foto 33
Moradia T4 para Venda em Silveira Foto 34
Moradia T4 para Venda em Silveira Foto 35
Moradia T4 para Venda em Silveira Foto 36
Moradia T4 para Venda em Silveira Foto 37
Moradia T4 para Venda em Silveira Foto 38
Moradia T4 para Venda em Silveira Foto 39
Moradia T4 para Venda em Silveira Foto 40
Moradia T4 para Venda em Silveira Foto 41
Moradia T4 para Venda em Silveira Foto 42
Moradia T4 para Venda em Silveira Foto 43
Moradia T4 para Venda em Silveira Foto 44
Moradia T4 para Venda em Silveira Foto 45
Moradia T4 para Venda em Silveira Foto 46
Moradia T4 para Venda em Silveira Foto 47
Moradia T4 para Venda em Silveira Foto 48
Clicky