Voltar
Apartamento T2 para Venda em Alfena Foto 1
Apartamento T2 para Venda em Alfena Foto 2
Apartamento T2 para Venda em Alfena Foto 3
Apartamento T2 para Venda em Alfena Foto 4
Apartamento T2 para Venda em Alfena Foto 5

Apartamento T2 para Venda em Alfena

265.000 €

Tipo
Apartamento
Negócio
Venda
Ano de Construção
2025
Quartos
2
Casas de Banho
2
Área Bruta
101 m²
Área Útil
84 m²
Certificado Energético
A

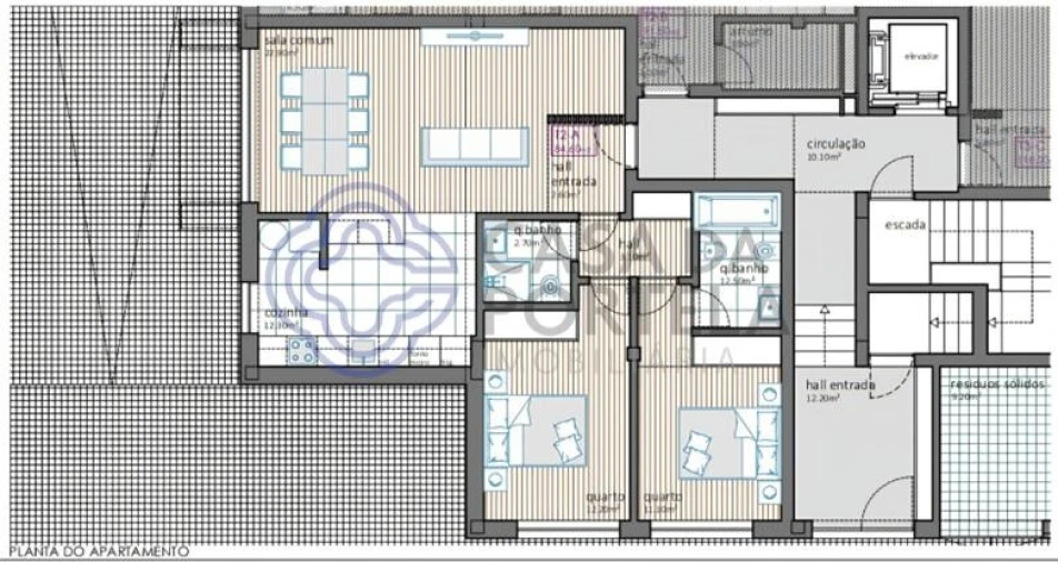
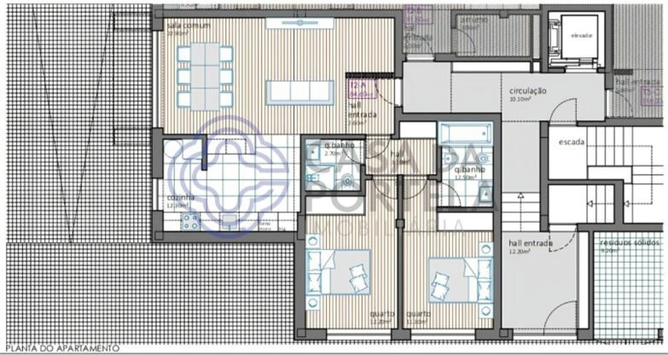
Apartamento T2 Alfena| 101,20 m² (84,60 m² + 16,60 m² – Garagem)

✨ Apartamento T2 com garagem – moderno, confortável e cheio de estilo!

Descubra este fantástico apartamento T2 no rés-do-chão esquerdo, com lugar de garagem privativo e uma área total de 101,20 m² (84,60 m² + 16,60 m²).
Projetado com materiais de alta qualidade e pensado ao detalhe, oferece o equilíbrio perfeito entre conforto, design e eficiência.

? Destaques do imóvel:
- Rés-do-chão com ótima luz
- Garagem individual com 16,60 m²
- Varanda na Sala
- Ar condicionado em todas as divisões
- Estores elétricos com isolamento térmico e acústico
- Porta de segurança de alta resistência
- Sistema de vídeo porteiro
- Tomada de carregamento para carros eléctricos

?️ Cozinha totalmente equipada:
- Móveis modernos em melamina hidrófuga (cinza/branco)
- Placa, forno, combinado e máquina de lavar loiça incluídos
- Bomba de calor para aquecimento de águas sanitárias
- Misturadoras monocomando de qualidade

? Casas de banho sofisticadas:
- Louças sanitárias suspensas
- Móveis lacados suspensos
- Revestimentos cerâmicos modernos
- Iluminação LED embutida e tetos falsos com tinta anti-fungos

?️ Áreas de descanso e convívio:
- Pavimento em madeira natural no hall, sala e quartos
- Roupeiros lacados com portas de abrir
- Carpintarias lacadas a branco, criando um ambiente clean e elegante

?️ Localização
- Rua residencial tranquila, situada no centro de Alfena, concelho de Valongo, distrito do Porto.
-Boa ligação às vias principais da cidade (como a Av. Dr. Francisco Sá Carneiro).

? Transportes
- Paragens de autocarro muito próximas (Travessa de Baguim e Alexandre Herculano).
- Linhas de autocarro: 6013, 6016, 6603, 6613, 7011, que ligam Alfena a Ermesinde, Valongo e Porto.
- Estações de comboio mais próximas: Ermesinde, Travagem e Cabeda (a 30–40 min a pé).

? Escolas
- Escola Básica 2.º e 3.º Ciclo de Alfena (~600 m).
- Escola Secundária de Alfena (~1,4 km).
- Outras escolas básicas no Agrupamento de Escolas de Alfena (Codiceira, Barreiro, Cabeda).

? Serviços e comércio
- Supermercado Lidl (~300 m).
- Clínica Médico-Dentária Otília Lopes (~200 m).
- Farmácia de Alfena (~900 m).
- Vários cafés, restaurantes e pequenos comércios nas redondezas.

? Ambiente geral
- Zona calma, residencial e segura.
- Boa oferta de transportes, escolas e serviços a curta distância.


?Com uma construção sólida, paredes duplas e isolamento de alta densidade, este apartamento garante excelente conforto térmico e acústico durante todo o ano.

? Ideal para quem procura qualidade, modernidade e tranquilidade num só lugar!
Marque já a sua visita e venha apaixonar-se por este apartamento único.

? As fotos publicadas são meramente ilustrativas.
?️Conclusão em 2026

Localização

Alfena, Valongo, Porto

Informação do anúncio

ID do anúncio 1423360
Referência Externa 1113991
Atualizado em 05/12/2025 01:58:48
Casa da Portela AMI 10340
Referência do imóvel: 1113991
Phone
Chamada para a rede fixa nacional
Casa da Portela AMI 10340
Referência do imóvel: 1113991
Phone
Chamada para a rede fixa nacional
1 / 10
Apartamento T2 para Venda em Alfena Foto 1
Apartamento T2 para Venda em Alfena Foto 2
Apartamento T2 para Venda em Alfena Foto 3
Apartamento T2 para Venda em Alfena Foto 4
Apartamento T2 para Venda em Alfena Foto 5
Apartamento T2 para Venda em Alfena Foto 6
Apartamento T2 para Venda em Alfena Foto 7
Apartamento T2 para Venda em Alfena Foto 8
Apartamento T2 para Venda em Alfena Foto 9
Apartamento T2 para Venda em Alfena Foto 10
Apartamento T2 para Venda em Alfena
Clicky