Terreno para Venda em Carnaxide e Queijas
3.700.000 €
Tipo
Terreno
Negócio
Venda
Ano de Construção
2025
Área Bruta
5011 m²
Certificado Energético
N/A
Área do Terreno
805 m²
Terreno com Projeto Aprovado para Prédio de 39 Frações | Carnaxide
?️ Terreno com Projeto Aprovado para Prédio de 39 Frações | Carnaxide
Apresentamos uma oportunidade única de investimento em Carnaxide, uma das zonas mais procuradas e valorizadas da Grande Lisboa.
Este terreno, com projeto de construção aprovado, oferece um potencial de rentabilidade excecional e um enquadramento urbano ideal, num local tranquilo, com vistas desafogadas e rodeado de zonas verdes.
? Principais características do projeto:
Projeto totalmente aprovado e pronto a iniciar construção
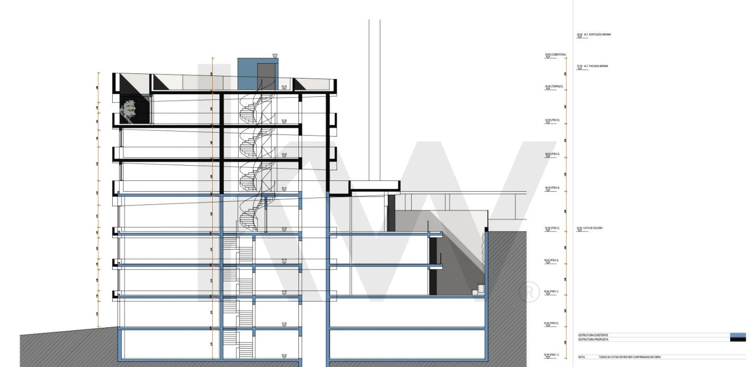
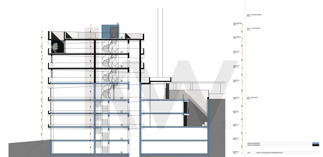
Edifício existente com 5 pisos construídos e licença para mais 3 pisos
39 frações aprovadas, distribuídas da seguinte forma:
21 Ateliers / T0 com áreas médias de 70m²
14 T1 com áreas médias de 55m²
4 T2 com áreas médias de 80m²
Todas as frações com estacionamento privativo
2 elevadores previstos no projeto
Algumas frações com terraços
Margem líquida estimada acima dos 30%
? Vantagens da localização:
Inserido numa zona calma, consolidada e de elevada procura residencial
Vistas desafogadas e excelente exposição solar
Proximidade ao Parque do Jamor e às principais vias de acesso (A5, CRIL e IC19)
A poucos minutos de Lisboa, Oeiras e Cascais
Zona envolvente com escolas, supermercados, restaurantes e transportes públicos
Procura elevada e pouca oferta — ideal para projetos de habitação moderna e investimento seguro
? Oportunidade de investimento:
Com um projeto pronto a avançar e margens atrativas, este terreno representa uma excelente oportunidade para promotores ou investidores que procuram desenvolver um empreendimento com forte valorização e procura assegurada.
?️ Um projeto sólido, numa localização estratégica e com retorno acima da média.
? Ligue +351 919917800 e marque hoje a sua visita, mas cuidado, pode apaixonar-se!
Apresentamos uma oportunidade única de investimento em Carnaxide, uma das zonas mais procuradas e valorizadas da Grande Lisboa.
Este terreno, com projeto de construção aprovado, oferece um potencial de rentabilidade excecional e um enquadramento urbano ideal, num local tranquilo, com vistas desafogadas e rodeado de zonas verdes.
? Principais características do projeto:
Projeto totalmente aprovado e pronto a iniciar construção
Edifício existente com 5 pisos construídos e licença para mais 3 pisos
39 frações aprovadas, distribuídas da seguinte forma:
21 Ateliers / T0 com áreas médias de 70m²
14 T1 com áreas médias de 55m²
4 T2 com áreas médias de 80m²
Todas as frações com estacionamento privativo
2 elevadores previstos no projeto
Algumas frações com terraços
Margem líquida estimada acima dos 30%
? Vantagens da localização:
Inserido numa zona calma, consolidada e de elevada procura residencial
Vistas desafogadas e excelente exposição solar
Proximidade ao Parque do Jamor e às principais vias de acesso (A5, CRIL e IC19)
A poucos minutos de Lisboa, Oeiras e Cascais
Zona envolvente com escolas, supermercados, restaurantes e transportes públicos
Procura elevada e pouca oferta — ideal para projetos de habitação moderna e investimento seguro
? Oportunidade de investimento:
Com um projeto pronto a avançar e margens atrativas, este terreno representa uma excelente oportunidade para promotores ou investidores que procuram desenvolver um empreendimento com forte valorização e procura assegurada.
?️ Um projeto sólido, numa localização estratégica e com retorno acima da média.
? Ligue +351 919917800 e marque hoje a sua visita, mas cuidado, pode apaixonar-se!
Localização
Carnaxide e Queijas, Oeiras, Lisboa
Informação do anúncio
ID do anúncio
1428509
Referência Externa
KWPT-022904
Atualizado em
10/04/2026 12:14:19
Anunciante
Chamada para a rede fixa nacional
KW Sol Oeiras
AMI 12223
Referência do imóvel:
KWPT-022904
Terreno para Venda em Carnaxide e Queijas
Vídeo
Terreno para Venda em Carnaxide e Queijas