Consultor imobiliário em Degrau Ascendente - Lda - AMI: 20927
Comprar
Arrendar
495.000 €
3 Quartos
Área bruta : 0 m²
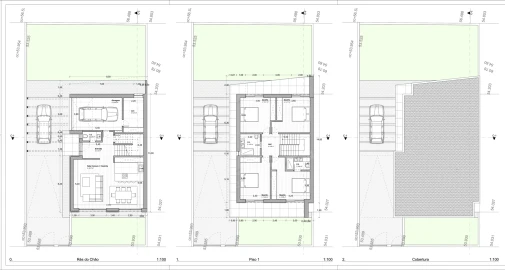
🏡 Moradia T3 de Arquitetura Moderna em Tebosa, Braga.Apresentamos esta magnífica moradia unifamiliar T3, distribuída por cave e rés-do-chão, localizada na tranquila freguesia de Tebosa, no concelho de Braga — o equilíbrio perfeito entre conforto, modernidade e qualidade de vida.✨ Composição e Áreas Cave: ampla garagem com portão seccionado e comando automático. Rés-do-chão: hall de entrada, cozinha parcialmente equipada, sala ampla e luminosa, wc de serviço e três suítes, incluindo master suíte com closet e wc privativo.🍳 CozinhaCozinha equipada com eletrodomésticos: Forno Placa Micro-ondas Exaustor⚙️ Equipamentos e Acabamentos Porta de entrada de alta segurança Janelas e portas em alumínio minimalista com rutura térmica e vidro duplo Estores elétricos em alumínio Vídeo porteiro e pré-instalação de alarme anti-intrusão🌡️ Conforto e Eficiência Sistema completo de ar condicionado por condutas (tipo VRV) Pré-instalação de painéis solares Pré-instalação de recuperador de calor Termoacumulador com bomba de calor integrada para aquecimento de águas Instalação de condutas de ventilação nos wc’s e o respetivo dispositivo elétricoEsta moradia destaca-se pela qualidade dos materiais, excelente exposição solar e design contemporâneo, ideal para quem procura uma casa prática, confortável e eficiente, a poucos minutos do centro de Braga.📍 Localização: Tebosa, Braga💎 Tipologia: T3🚗 Garagem: Sim🌞 Eficiência e conforto garantidos!Quer esteja no mercado para comprar, ou vender um imóvel, trabalharemos consigo, de forma personalizada, para que consigamos, juntos, o melhor negócio.A nossa equipa de consultores imobiliários é experiente, formada e orientada para a obtenção de resultados e serviço ao cliente. Sabemos que não basta uma ótima carteira de imóveis para atender às necessidades de quem procura uma casa. Preocupamo-nos em estudar o mercado local para que lhe possamos dar as melhores recomendações. Diga-nos o que procura, e nós iremos ajudá-lo/a.
AMI: 20927
Ref. Externa: MP518
Id: 1565043
Inicie sessão para guardar este imóvel e aceder à sua lista de favoritos em qualquer dispositivo.
3 Quartos
Área bruta : 125 m²
Arrendamento – Andar Moradia T3 (1.º Piso) – Caldas das TaipasArrenda-se andar moradia no 1.º piso, localizado numa zona tranquila e de fácil acesso em Caldas das Taipas.O imóvel apresenta áreas amplas e boa exposição solar, sendo composto por: Hall de entrada acolhedor Sala com varanda, ideal para momentos de lazer e convívio Cozinha funcional, com armários de arrumação e acesso prático às restantes divisões Hall dos quartos, garantindo maior privacidade à zona de descanso 3 quartos luminosos Outras características: Imóvel em bom estado geral Sem garagem Ambiente calmo, perfeito para casal ou família Com algumas peças de mobília incluída (conforme as imagens)Excelente oportunidade para quem procura conforto e tranquilidade numa zona agradável das Taipas.Mais informações e agendamento de visitas disponíveis mediante contacto.
AMI: 20927
Ref. Externa: MP522
Id: 1480307
Inicie sessão para guardar este imóvel e aceder à sua lista de favoritos em qualquer dispositivo.
500.000 €
4 Quartos
Área bruta : 200 m²
🏡 Moradia Geminada T4 com 2 Suítes – PalmeiraApresentamos esta fantástica moradia geminada de 2 pisos, localizada numa zona tranquila de Palmeira, perfeita para quem procura conforto, modernidade e qualidade de vida.Com uma arquitetura contemporânea e acabamentos de excelência, esta moradia distingue-se pelo seu design funcional e pela atenção ao detalhe em cada espaço.✨ Principais Características: Tipologia T4, com 2 suítes amplas e luminosas Caixilharia em PVC com vidros duplos de rutura térmica, garantindo isolamento e eficiência energética Estores elétricos em todas as divisões Ar condicionado por sistema split, com unidades Mitsubishi – Ref. SRK25Z5P-W Recuperador de calor ventilado na sala, para maior conforto nos dias mais frios Bomba de calor para aquecimento das águas sanitárias Material elétrico Efapel – Série 9000 (branco), com design moderno e funcional🚗 Exterior: Garagem exterior para 1 viatura Portão seccionado da garagem e portões de acesso automatizados Churrasqueira, ideal para momentos de lazer em família ou com amigosEsta moradia combina elegância, conforto e eficiência energética, sendo a escolha perfeita para quem valoriza qualidade de construção e bem-estar no dia a dia.📍 Localização: PalmeiraUma zona residencial tranquila, próxima de serviços, escolas e acessos principais.Quer esteja no mercado para comprar, ou vender um imóvel, trabalharemos consigo, de forma personalizada, para que consigamos, juntos, o melhor negócio.A nossa equipa de consultores imobiliários é experiente, formada e orientada para a obtenção de resultados e serviço ao cliente. Sabemos que não basta uma ótima carteira de imóveis para atender às necessidades de quem procura uma casa. Preocupamo-nos em estudar o mercado local para que lhe possamos dar as melhores recomendações. Diga-nos o que procura, e nós iremos ajudá-lo/a.
AMI: 20927
Ref. Externa: MP519
Id: 1432990
Inicie sessão para guardar este imóvel e aceder à sua lista de favoritos em qualquer dispositivo.
2.100.000 €
4 Quartos
Área bruta : 1628 m²
🏡 Quinta Histórica de 1937 com 8.000 m² – Palmeira, BragaOportunidade única com elevado potencial habitacional, turístico ou comercialApresentamos-lhe esta magnífica quinta histórica, datada de 1937, localizada na prestigiada freguesia de Palmeira, em Braga. Com uma área total de terreno de aproximadamente 8.000 m², esta propriedade combina o charme arquitetónico de época com o potencial de modernização e valorização para diversos fins.📍 Localização PremiumSituada numa das zonas mais procuradas de Braga, a quinta beneficia de excelente acessibilidade, a poucos minutos do centro da cidade, com fáceis ligações a vias rápidas e à autoestrada, mantendo, no entanto, a tranquilidade e privacidade típicas de um espaço rural.🏠 Características da Propriedade Área total coberta: 1.185 m² Tipologia do edifício principal: Rés-do-chão, 1º andar e sótão Estado: Parcialmente remodelada, com estruturas sólidas e elementos originais preservados Estilo arquitetónico: Tradicional, com traços distintivos da década de 1930🌳 Espaço Exterior Terreno plano e arborizado, ideal para jardins, piscina, zonas de lazer ou cultivo Potencial para construção adicional, mediante consulta junto das entidades competentes Perfeito para projetos de turismo rural, eventos, restauração, lar residencial, ou para quem procura uma moradia de charme com grande privacidade💡 Potencial de RequalificaçãoA propriedade oferece um leque vasto de possibilidades de reabilitação e valorização, seja para: Habitação própria com carácter exclusivo Boutique hotel ou turismo de habitação Restaurante de referência com ambiente histórico Espaço para eventos e celebrações✨ Uma Quinta com História, Esperando o FuturoEsta é uma oportunidade rara para adquirir um imóvel com história, dimensão e localização privilegiada no coração do Minho. Se procura autenticidade aliada ao potencial de investimento, esta quinta em Palmeira é a escolha certa.📞 Contacte-nos para mais informações ou para agendar a sua visita.Quer esteja no mercado para comprar, ou vender um imóvel, trabalharemos consigo, de forma personalizada, para que consigamos, juntos, o melhor negócio.A nossa equipa de consultores imobiliários é experiente, formada e orientada para a obtenção de resultados e serviço ao cliente. Sabemos que não basta uma ótima carteira de imóveis para atender às necessidades de quem procura uma casa. Preocupamo-nos em estudar o mercado local para que lhe possamos dar as melhores recomendações. Diga-nos o que procura, e nós iremos ajudá-lo/a.
AMI: 20927
Ref. Externa: MP517
Id: 1418121
Inicie sessão para guardar este imóvel e aceder à sua lista de favoritos em qualquer dispositivo.
150.000 €
Área de terreno : 6148 m²
🏡 Terreno com Projeto para 2 Moradias T4 + Escritório – Crespos, Braga.Excelente oportunidade de investimento! Terreno com 6148 m² situado na freguesia de Crespos, Braga, com projeto para a construção de duas moradias individuais de arquitetura moderna, com 2 pisos e tipologia T4 + escritório.📐 Características do Projeto:Cada moradia é composta por: Hall de entrada Cozinha funcional e moderna Lavandaria Sala de estar/jantar ampla Wc de serviço Sala de estudo / Escritório Corredor de distribuição Wc completo Suíte principal com Wc privativo Dois quartos adicionais Segunda suíte com closet e Wc privativo Garagem na cave🌿 Envolvente: Localização tranquila e com boa exposição solar Fácil acesso ao centro de Braga Ideal para quem procura construir em zona residencial com qualidade de vidaQuer esteja no mercado para comprar, ou vender um imóvel, trabalharemos consigo, de forma personalizada, para que consigamos, juntos, o melhor negócio.A nossa equipa de consultores imobiliários é experiente, formada e orientada para a obtenção de resultados e serviço ao cliente. Sabemos que não basta uma ótima carteira de imóveis para atender às necessidades de quem procura uma casa. Preocupamo-nos em estudar o mercado local para que lhe possamos dar as melhores recomendações. Diga-nos o que procura, e nós iremos ajudá-lo/a.
AMI: 20927
Ref. Externa: MP516
Id: 1418120
Inicie sessão para guardar este imóvel e aceder à sua lista de favoritos em qualquer dispositivo.
150.000 €
Área de terreno : 1476 m²
🏡 Terreno Urbano com Projeto para 2 Moradias T4 + Escritório – Crespos, Braga.Excelente oportunidade de investimento! Parcela de 1476 m² situada na freguesia de Crespos, Braga, com projeto para a construção de duas moradias individuais de arquitetura moderna, com 2 pisos e tipologia T4 + escritório.📐 Características do Projeto:Cada moradia é composta por: Hall de entrada Cozinha funcional e moderna Lavandaria Sala de estar/jantar ampla Wc de serviço Sala de estudo / Escritório Corredor de distribuição Wc completo Suíte principal com Wc privativo Dois quartos adicionais Segunda suíte com closet e Wc privativo Garagem na cave🌿 Envolvente: Localização tranquila e com boa exposição solar Fácil acesso ao centro de Braga Ideal para quem procura construir em zona residencial com qualidade de vidaQuer esteja no mercado para comprar, ou vender um imóvel, trabalharemos consigo, de forma personalizada, para que consigamos, juntos, o melhor negócio.A nossa equipa de consultores imobiliários é experiente, formada e orientada para a obtenção de resultados e serviço ao cliente. Sabemos que não basta uma ótima carteira de imóveis para atender às necessidades de quem procura uma casa. Preocupamo-nos em estudar o mercado local para que lhe possamos dar as melhores recomendações. Diga-nos o que procura, e nós iremos ajudá-lo/a.
AMI: 20927
Ref. Externa: MP515
Id: 1418119
Inicie sessão para guardar este imóvel e aceder à sua lista de favoritos em qualquer dispositivo.
Área de terreno : 688 m²
🏡 Terreno para Construção de Moradia Individual – 688 m² | Santa Lucrécia de Algeriz, BragaApresentamos um excelente terreno com 688 m², ideal para a construção da sua moradia unifamiliar, localizado na tranquila freguesia de Santa Lucrécia de Algeriz, em Braga.Este lote oferece o espaço e a privacidade perfeitos para quem procura qualidade de vida.🔹 Área do terreno: 688 m²🔹 Zona residencial calma e em crescimento🔹 Fáceis acessos a Braga e principais vias🌟 Temos outros lotes disponíveis na mesma localização, com diferentes áreas.Aproveite esta oportunidade para construir a casa dos seus sonhos.📞 Entre em contacto para mais informações ou para agendar uma visita!Quer esteja no mercado para comprar, ou vender um imóvel, trabalharemos consigo, de forma personalizada, para que consigamos, juntos, o melhor negócio.A nossa equipa de consultores imobiliários é experiente, formada e orientada para a obtenção de resultados e serviço ao cliente. Sabemos que não basta uma ótima carteira de imóveis para atender às necessidades de quem procura uma casa. Preocupamo-nos em estudar o mercado local para que lhe possamos dar as melhores recomendações. Diga-nos o que procura, e nós iremos ajudá-lo/a.
AMI: 20927
Ref. Externa: MP514
Id: 1414103
Inicie sessão para guardar este imóvel e aceder à sua lista de favoritos em qualquer dispositivo.
Área de terreno : 548 m²
🏡 Lote de Terreno para Construção de Moradia Individual – 548 m² | Santa Lucrécia de Algeriz, BragaOportunidade imperdível para quem deseja construir a casa dos sonhos!Terreno com 548 m², com projeto para moradia de 2 pisos, situado numa zona tranquila e em desenvolvimento, em Santa Lucrécia de Algeriz, Braga.📍 Localização privilegiada, com fácil acesso ao centro da cidade.🌿 Ambiente calmo, perfeito para quem procura qualidade de vida, natureza e privacidade.🔹 Área total: 548 m²🔹 Excelente exposição solarNão perca esta oportunidade de investir num local promissor de Braga.Entre em contacto para mais informações ou agendar uma visita ao local!Quer esteja no mercado para comprar, ou vender um imóvel, trabalharemos consigo, de forma personalizada, para que consigamos, juntos, o melhor negócio.A nossa equipa de consultores imobiliários é experiente, formada e orientada para a obtenção de resultados e serviço ao cliente. Sabemos que não basta uma ótima carteira de imóveis para atender às necessidades de quem procura uma casa. Preocupamo-nos em estudar o mercado local para que lhe possamos dar as melhores recomendações. Diga-nos o que procura, e nós iremos ajudá-lo/a.
AMI: 20927
Ref. Externa: MP513
Id: 1414102
Inicie sessão para guardar este imóvel e aceder à sua lista de favoritos em qualquer dispositivo.
87.500 €
Área de terreno : 630 m²
🏡 Terreno Urbano para Construção de Moradia Individual | Turiz / Barbudo – Vila Verde📐 630 m²Procura o local ideal para construir a sua moradia de sonho?Temos para si um terreno urbano plano, com excelente exposição solar, vistas panorâmicas sobre a cidade de Braga e inseridos numa zona tranquila, na fronteira entre Turiz e Barbudo, no concelho de Vila Verde.🔹 Características principais: Terreno plano com 630 m² Possibilidade de construção de moradia individual Vistas desafogadas e excelente orientação solar Zona calma e residencial, com ótimos acessos A poucos minutos do centro de Vila Verde Ambiente natural e envolvente com excelente qualidade de vida📍 Localização estratégica:No extremo de Turiz e Barbudo, oferece o equilíbrio perfeito entre o campo e a cidade.🛠️ Ideal para quem deseja construir uma casa térrea ou de dois pisos, com espaço exterior e tranquilidade.⚠️ Só visitando perceberá o verdadeiro potencial deste local.📞 Agende já a sua visita!Quer esteja no mercado para comprar, ou vender um imóvel, trabalharemos consigo, de forma personalizada, para que consigamos, juntos, o melhor negócio.A nossa equipa de consultores imobiliários é experiente, formada e orientada para a obtenção de resultados e serviço ao cliente. Sabemos que não basta uma ótima carteira de imóveis para atender às necessidades de quem procura uma casa. Preocupamo-nos em estudar o mercado local para que lhe possamos dar as melhores recomendações. Diga-nos o que procura, e nós iremos ajudá-lo/a.
AMI: 20927
Ref. Externa: MP508
Id: 1381349
Inicie sessão para guardar este imóvel e aceder à sua lista de favoritos em qualquer dispositivo.
110.000 €
Área de terreno : 1500 m²
Terreno para Construção com saneamento – 1.500 m² | Turiz, Vila Verde (Braga)🌿 Terreno plano com excelente localização e ótimas condições para construir a sua moradia de sonho!Apresentamos este magnífico terreno urbano com 1.500 m², ideal para construção de moradia térrea individual.Situado em Turiz – Vila Verde, o lote destaca-se pela sua topografia plana, excelente exposição solar e vistas desafogadas sobre a natureza envolvente.Quer esteja no mercado para comprar, ou vender um imóvel, trabalharemos consigo, de forma personalizada, para que consigamos, juntos, o melhor negócio.A nossa equipa de consultores imobiliários é experiente, formada e orientada para a obtenção de resultados e serviço ao cliente. Sabemos que não basta uma ótima carteira de imóveis para atender às necessidades de quem procura uma casa. Preocupamo-nos em estudar o mercado local para que lhe possamos dar as melhores recomendações. Diga-nos o que procura, e nós iremos ajudá-lo/a.
AMI: 20927
Ref. Externa: MP507
Id: 1381348
Inicie sessão para guardar este imóvel e aceder à sua lista de favoritos em qualquer dispositivo.
3 Quartos
Área bruta : 203 m²
Apartamento T3 Duplex localizado em Vila Verde, perfeito para quem procura conforto e modernidade.Equipado com várias comodidades que tornam o dia a dia mais prático e agradável: Sistema de produção de águas quentes com bomba de calor MILEI de 300 litros, garantindo economia e eficiência; Ar-condicionado de parede da marca MITSUBISHI, para manter o ambiente sempre agradável; Caixilharia de alumínio com corte térmico “TECHNAL - ECOTHERMIC PLUS”, acabamento no elegante tom NOIR 900 SABLE, com vidro duplo “FOCOLIT GUARDIAM SUN” de 6mm/14AR/4mm, que oferece isolamento térmico e acústico; Estores motorizados em régua de alumínio térmico, também no acabamento NOIR 900 SABLE, para maior praticidade; Vídeo porteiro com intercomunicador, garantindo segurança e facilidade na comunicação; Portão seccionado automático, feito em painel sandwich com acabamento pré-lacado, para maior segurança e comodidade.Este apartamento combina conforto, segurança e tecnologia. Quer esteja no mercado para comprar, ou vender um imóvel, trabalharemos consigo, de forma personalizada, para que consigamos, juntos, o melhor negócio.A nossa equipa de consultores imobiliários é experiente, formada e orientada para a obtenção de resultados e serviço ao cliente. Sabemos que não basta uma ótima carteira de imóveis para atender às necessidades de quem procura uma casa. Preocupamo-nos em estudar o mercado local para que lhe possamos dar as melhores recomendações. Diga-nos o que procura, e nós iremos ajudá-lo/a.
AMI: 20927
Ref. Externa: MP500
Id: 1320214
Inicie sessão para guardar este imóvel e aceder à sua lista de favoritos em qualquer dispositivo.
550.000 €
4 Quartos
Área bruta : 276 m²
Fabulosa Moradia Individual em Lago, Amares – Um Refúgio de Paz e Charme!Se procura um lugar tranquilo para viver ou investir, esta é a oportunidade perfeita! Localizada em Lago, Amares, esta maravilhosa moradia T4 (com duas suítes) oferece o equilíbrio ideal entre conforto, natureza e sossego.Destaques da Propriedade: Casa Principal: Implantada num lote de 1.000 m², com uma arquitetura acolhedora e espaços bem distribuídos, perfeita para o dia a dia em família ou momentos de lazer. Segunda Moradia em Pedra: Um encanto à parte, com cozinha regional e espaço exterior equipado com churrasqueiras, mesa com bancos em pedra e um jardim repleto de árvores de fruta, como pessegueiro, laranjeira, ameixeira e videira, ideal para quem gosta de cultivar e desfrutar de produtos naturais. Terreno Amplo: Com um total de 3.200 m², dividido em dois artigos distintos (1000 m2 casa principal e 2200 m2 com casa em pedra e potencial construtivo). Essa configuração oferece a possibilidade de vender parte do terreno, caso não necessite de toda a área, proporcionando flexibilidade e potencial de investimento.Potencial e Oportunidades:Venha descobrir tudo o que esta propriedade tem a oferecer! Seja para viver em paz, criar um espaço de lazer ou investir, esta é uma oportunidade única de adquirir um imóvel com muito potencial numa zona tranquila e privilegiada.Se desejar mais informações ou agendar uma visita, estamos à disposição para o ajudar a explorar tudo o que esta maravilhosa propriedade tem para oferecer!Quer esteja no mercado para comprar, ou vender um imóvel, trabalharemos consigo, de forma personalizada, para que consigamos, juntos, o melhor negócio.A nossa equipa de consultores imobiliários é experiente, formada e orientada para a obtenção de resultados e serviço ao cliente. Sabemos que não basta uma ótima carteira de imóveis para atender às necessidades de quem procura uma casa. Preocupamo-nos em estudar o mercado local para que lhe possamos dar as melhores recomendações. Diga-nos o que procura, e nós iremos ajudá-lo/a.
AMI: 20927
Ref. Externa: MP496
Id: 1257726
Inicie sessão para guardar este imóvel e aceder à sua lista de favoritos em qualquer dispositivo.
3 Quartos
Área bruta : 300 m²
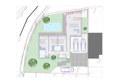
Conceito Único no Centro de Braga: Moradias Térreas com Cave!Se procura uma casa moderna, confortável e com privacidade no coração de Braga, esta é a oportunidade perfeita para si!Moradias Térreas em BragaImagine viver em espaços privados (suítes) e sociais, com interiores e exteriores interligados ao mesmo nível, garantindo máxima privacidade. No piso inferior, dispõe de uma ampla garagem, uma sala multiusos e uma lavandaria, tudo com muita luz natural, criando um ambiente acolhedor e funcional.Viva a Sua Privacidade ao MáximoCada moradia conta com 3 suítes, sendo a suíte master equipada com closet, proporcionando conforto e privacidade para toda a família.Distribuição dos Pisos: Piso 0: Sala, cozinha, quartos, wc’s e zona de lazer/trabalho, tudo ao seu alcance. Piso -1: Garagem para três carros, lavandaria, WC e uma zona multifuncional com acesso ao jardim traseiro, ideal para momentos de lazer ou trabalho em casa. Garagem interior para três carros e espaço exterior para mais um ou dois.Exterior e Conforto: Amplo jardim privativo com relva e sistema de rega automática. Piscina de 21m² para relaxar e desfrutar do verão. Churrasqueira para momentos de convívio ao ar livre.Tecnologia e Eficiência: Bomba de calor para aquecimento de águas sanitárias; Recuperador de calor para maior eficiência energética; Sistema de climatização com piso radiante para aquecimento e arrefecimento, complementado por VMC de duplo fluxo para renovação do ar interior; Sistema de domótica para maior comodidade: Pré-instalação de painéis fotovoltaicos e aspiração central; Sistema de segurança com alarme e vídeo vigilância.Detalhes de Qualidade: Caixilharia em alumínio minimalista termo lacado com vidro duplo, garantindo isolamento térmico e acústico; Fachadas ventiladas revestidas a travertino, conferindo elegância às fachadas; Portões automáticos em chapa de alumínio lacada Noir 200, com automatismo e fotocélulas; Iluminação exterior com projetores apoiados no solo.Cozinha:Mobilada e equipada com eletrodomésticos Bosch (forno, micro-ondas, placa, chaminé, máquina de lavar louça e combinado), pronta para uso.Se deseja viver com conforto, privacidade e estilo no centro de Braga, estas moradias são a escolha ideal! Entre em contato para saber mais ou agendar uma visita.Quer esteja no mercado para comprar, ou vender um imóvel, trabalharemos consigo, de forma personalizada, para que consigamos, juntos, o melhor negócio.A nossa equipa de consultores imobiliários é experiente, formada e orientada para a obtenção de resultados e serviço ao cliente. Sabemos que não basta uma ótima carteira de imóveis para atender às necessidades de quem procura uma casa. Preocupamo-nos em estudar o mercado local para que lhe possamos dar as melhores recomendações. Diga-nos o que procura, e nós iremos ajudá-lo/a.
AMI: 20927
Ref. Externa: MP494
Id: 1248984
Inicie sessão para guardar este imóvel e aceder à sua lista de favoritos em qualquer dispositivo.
3 Quartos
Área bruta : 220 m²
Procura uma moradia em banda pronta para entrar e morar? Temos uma excelente opção para si!Apresentamos uma linda moradia em fase de finalização, ideal para quem deseja mudar de casa de forma rápida e sem preocupações.Descrição da Moradia: Piso 0: Área de open space que combina sala, cozinha e espaço de convivência, além de um wc de serviço para maior praticidade. Piso 1: Hall dos quartos, uma suíte com wc privativo e acesso ao terraço, dois quartos adicionais e um wc completo, oferecendo conforto e privacidade para toda a família. Piso Cave: Garagem ampla, juntamente com uma área destinada à casa das máquinas e lavandaria, garantindo funcionalidade e comodidade.Se deseja saber mais ou agendar uma visita, estamos aqui para o ajudar a encontrar o seu novo lar!Quer esteja no mercado para comprar, ou vender um imóvel, trabalharemos consigo, de forma personalizada, para que consigamos, juntos, o melhor negócio.A nossa equipa de consultores imobiliários é experiente, formada e orientada para a obtenção de resultados e serviço ao cliente. Sabemos que não basta uma ótima carteira de imóveis para atender às necessidades de quem procura uma casa. Preocupamo-nos em estudar o mercado local para que lhe possamos dar as melhores recomendações. Diga-nos o que procura, e nós iremos ajudá-lo/a.
AMI: 20927
Ref. Externa: MP493
Id: 1245406
Inicie sessão para guardar este imóvel e aceder à sua lista de favoritos em qualquer dispositivo.
550.000 €
3 Quartos
Área bruta : 230 m²
Moradia Térrea T3 com Piscina – O Lar dos Seus Sonhos!Sonha viver numa casa feita à sua medida, refletindo todas as suas ideias, gostos e estilo de vida? Pode personalizar cada detalhe, tanto no exterior quanto no interior, para criar o espaço perfeito para si. O objetivo é oferecer a melhor experiência, projetando ambientes que transmitam conforto, segurança e elegância.Destaques da sua nova moradia: Arquitetura moderna, com acabamentos de alta qualidade, segurança e conforto garantidos; Excelente exposição solar, para aproveitar ao máximo a luz natural; Construção sólida com superestrutura em betão armado; Sistema de ar condicionado completo com conduta Bosch; Bomba de calor para aquecimento de águas sanitárias; Gás canalizado; Sistema de alarme e câmeras de vídeo vigilância para sua tranquilidade; Pré-instalação de painéis solares térmicos e elétricos; Pré-instalação de ventilação mecânica controlada (VMC); Estores elétricos para maior praticidade; Iluminação LED interior e exterior, incluindo sancas de luz sofisticadas; Cozinha personalizada com móveis em lacado de alta qualidade, equipada com eletrodomésticos Bosch; Sala com piso em pavimento flutuante AC5, lareira com recuperador de calor a lenha, acabamento em ferro forjado e porta de vidro de abertura ampla; Churrasqueira exterior para momentos de convívio ao ar livre; Quartos com roupeiros embutidos, piso em pavimento AC5 e acesso ao exterior; Móveis suspensos nas casas de banho, com louças sanitárias suspensas e acabamento personalizado; Carpintaria em lacado (cor à sua escolha) até ao teto; Vídeo porteiro por IP de alta qualidade; Caixilharia de corte térmico com vidro duplo, garantindo isolamento; Ponto para carregador de automóvel elétrico; Portões exteriores automáticos em alumínio; Revestimentos exteriores com detalhes em pedra, conferindo elegância; Sistema de domótica opcional, integrando iluminação, climatização, estores elétricos, som ambiente e alarme de intrusão; Piscina completa com tratamento a sal, perfeita para relaxar e desfrutar do verão.Dados da propriedade: Área do lote: 450 m² Área de construção: 230 m² Localização: 📌 Freguesia de Palmeira (apenas 5 minutos do centro de Braga) Fácil acesso a transportes, escolas, comércio e serviços.Se deseja transformar este projeto no seu novo lar, estamos à disposição para ajudar! Entre em contato e venha conhecer esta oportunidade única de viver com qualidade e estilo.Quer esteja no mercado para comprar, ou vender um imóvel, trabalharemos consigo, de forma personalizada, para que consigamos, juntos, o melhor negócio.A nossa equipa de consultores imobiliários é experiente, formada e orientada para a obtenção de resultados e serviço ao cliente. Sabemos que não basta uma ótima carteira de imóveis para atender às necessidades de quem procura uma casa. Preocupamo-nos em estudar o mercado local para que lhe possamos dar as melhores recomendações. Diga-nos o que procura, e nós iremos ajudá-lo/a.
AMI: 20927
Ref. Externa: MP492
Id: 1241711
Inicie sessão para guardar este imóvel e aceder à sua lista de favoritos em qualquer dispositivo.
3 Quartos
Área bruta : 315 m²
Moradia de gaveto de tipologia T3 localizada em Santa Lucrécia, Braga.Apresentamos uma excelente oportunidade de viver com conforto e praticidade nesta moradia de 3 pisos, ideal para famílias que procuram espaço e funcionalidade.Descrição da Moradia: Cave: Espaço dedicado à garagem, garantindo segurança e comodidade. Piso 0: Hall de entrada, sala com acesso ao logradouro, cozinha, lavandaria e wc de serviço, perfeito para o dia a dia. Piso 1: Hall de distribuição, suíte com wc privativo, varanda, dois quartos adicionais e um wc completo, oferecendo espaço e privacidade para toda a família.Equipamentos e Características: Vídeo-porteiro para maior segurança e conveniência Ar condicionado para o seu conforto em todas as estações Bomba de calor de 300L, eficiente e económica Portão automático na garagem, facilitando o acesso Caixilharia com rutura térmica e vidros duplos, garantindo melhor isolamento energético e acústico Estores elétricos com caixa de estore térmica, para maior praticidade Cozinha mobilada e equipada com frigorífico combinado, máquina de lavar roupa, forno, placa elétrica e exaustorOpções disponíveis:Temos moradias em banda e gaveto, para atender às suas necessidades.Se desejar mais informações ou agendar uma visita, estamos à disposição para o ajudar a encontrar o seu novo lar, Braga!"As imagens exibidas são de uma unidade já vendida no mesmo local e servem apenas como referência do padrão de acabamento e layout disponível."Quer esteja no mercado para comprar, ou vender um imóvel, trabalharemos consigo, de forma personalizada, para que consigamos, juntos, o melhor negócio.A nossa equipa de consultores imobiliários é experiente, formada e orientada para a obtenção de resultados e serviço ao cliente. Sabemos que não basta uma ótima carteira de imóveis para atender às necessidades de quem procura uma casa. Preocupamo-nos em estudar o mercado local para que lhe possamos dar as melhores recomendações. Diga-nos o que procura, e nós iremos ajudá-lo/a.
AMI: 20927
Ref. Externa: MP490
Id: 1226670
Inicie sessão para guardar este imóvel e aceder à sua lista de favoritos em qualquer dispositivo.
395.000 €
3 Quartos
Área bruta : 204 m²
Oportunidade imperdível!Moradia de gaveto, com 2 pisos em avançado estado de construção.Localizada na Póvoa de Lanhoso. Apresentamos uma linda moradia de tipologia T3, com três suítes, perfeita para quem procura conforto, modernidade e uma localização privilegiada.Características principais: Estado de construção: Em fase avançada, pronta para finalização. Distribuição: Rés-do-chão e primeiro andar, oferecendo espaço e privacidade para toda a família.No rés-do-chão: Hall de entrada acolhedor; Sala e cozinha em open space, ideais para convivência e momentos em família; Lavandaria e WC de serviço para maior praticidade; Arrumos para organização eficiente; Churrasqueira para momentos de lazer ao ar livre; Garagem para duas viaturas em paralelo.No primeiro piso: Hall de circulação Três suítes espaçosas, cada uma com WC privativo, garantindo conforto e privacidadeEquipamentos e comodidades modernas: Cozinha mobilada e equipada com forno, placa, micro-ondas e exaustor Sistema de ar condicionado para o seu bem-estar Instalação de bomba de calor, garantindo eficiência energética Pré-instalação de painéis solares Robô de limpeza automatizado nos dois pisos, facilitando a manutenção Vídeo porteiro para maior segurança Sistema de alarme anti-intrusão e câmeras de vídeo-vigilância, proporcionando tranquilidade Estores elétricos em alumínio, para maior praticidade e conforto Portão seccionado na garagem com comando remoto Portas e janelas em alumínio de corte térmico com vidro duplo, garantindo isolamento térmico e acústicoObservação: Temos disponíveis moradias em banda e gavetos, oferecendo diversas opções para atender às suas necessidades.Se deseja mais informações ou agendar uma visita, estamos à disposição para o ajudar a transformar essa oportunidade na sua nova casa!Quer esteja no mercado para comprar, ou vender um imóvel, trabalharemos consigo, de forma personalizada, para que consigamos, juntos, o melhor negócio.A nossa equipa de consultores imobiliários é experiente, formada e orientada para a obtenção de resultados e serviço ao cliente. Sabemos que não basta uma ótima carteira de imóveis para atender às necessidades de quem procura uma casa. Preocupamo-nos em estudar o mercado local para que lhe possamos dar as melhores recomendações. Diga-nos o que procura, e nós iremos ajudá-lo/a.
AMI: 20927
Ref. Externa: MP488
Id: 1215917
Inicie sessão para guardar este imóvel e aceder à sua lista de favoritos em qualquer dispositivo.
400.000 €
3 Quartos
Área bruta : 300 m²
Moradia em banda localizada na freguesia de Lomar, Braga.Apresentamos uma excelente oportunidade de residência nesta moradia de 3 pisos, cuidadosamente projetada para oferecer conforto e funcionalidade.Distribuição dos espaços: Piso 0: Hall de entrada, ampla sala e cozinha em open space, além de um WC de serviço. Piso 1: Hall dos quartos, suíte com WC privativo, mais dois quartos e um WC completo para atender às necessidades da família. Piso Cave: Espaçosa garagem para estacionamento e armazenamento.Equipamentos e características adicionais: Caixilharia em alumínio com rutura térmica e vidro térmico, garantindo isolamento e eficiência energética. Sistema de ar condicionado por conduta, proporcionando conforto em todas as estações. Aspiração central completa, facilitando a limpeza diária. Portão da garagem com automatismo, para maior comodidade. Painéis solares para apoio às águas sanitárias e banhos, promovendo economia de energia. Vídeo porteiro a cores, para maior segurança e praticidade.As imagens apresentadas são meramente ilustrativas.Se desejar mais informações ou agendar uma visita, estamos à disposição para ajudar!Quer esteja no mercado para comprar, ou vender um imóvel, trabalharemos consigo, de forma personalizada, para que consigamos, juntos, o melhor negócio.A nossa equipa de consultores imobiliários é experiente, formada e orientada para a obtenção de resultados e serviço ao cliente. Sabemos que não basta uma ótima carteira de imóveis para atender às necessidades de quem procura uma casa. Preocupamo-nos em estudar o mercado local para que lhe possamos dar as melhores recomendações. Diga-nos o que procura, e nós iremos ajudá-lo/a.
AMI: 20927
Ref. Externa: MP482
Id: 1189625
Inicie sessão para guardar este imóvel e aceder à sua lista de favoritos em qualquer dispositivo.
Área de terreno : 646 m²
Se procura um terreno para construir a sua moradia ideal, temos excelentes opções para si!Apresentamos um lote com 646,00 m², localizado na freguesia de São Pedro d' Este, em Braga. Este espaço oferece a liberdade de criar a casa dos seus sonhos num ambiente tranquilo e privilegiado.Além deste, também disponhamos de outros lotes com diferentes áreas e valores, garantindo opções variadas para atender às suas necessidades e realizar o seu sonho de construir a sua moradia.Se desejar mais informações ou agendar uma visita, estamos prontos para o ajudar a transformar esse projeto em realidade.Entre em contato conosco e vamos juntos dar o primeiro passo rumo ao seu novo lar!Quer esteja no mercado para comprar, ou vender um imóvel, trabalharemos consigo, de forma personalizada, para que consigamos, juntos, o melhor negócio.A nossa equipa de consultores imobiliários é experiente, formada e orientada para a obtenção de resultados e serviço ao cliente. Sabemos que não basta uma ótima carteira de imóveis para atender às necessidades de quem procura uma casa. Preocupamo-nos em estudar o mercado local para que lhe possamos dar as melhores recomendações. Diga-nos o que procura, e nós iremos ajudá-lo/a.
AMI: 20927
Ref. Externa: MP479
Id: 1181600
Inicie sessão para guardar este imóvel e aceder à sua lista de favoritos em qualquer dispositivo.
99.000 €
Área de terreno : 335 m²
Se procura um terreno perfeito para construir uma moradia de gaveto, temos uma excelente opção especialmente para si!Este terreno está localizado na freguesia de Gualtar, em Braga, oferecendo uma oportunidade única para construir o lar dos seus sonhos.Se desejar saber mais detalhes sobre o terreno, as suas características ou as possibilidades de construção, estamos aqui para ajudar em tudo o que precisar.Vamos transformar o seu projeto em realidade!Além disso, também temos lotes disponíveis para construção de moradias em banda no mesmo local, oferecendo ainda mais opções para atender às suas necessidades.Entre em contato conosco e vamos dar o próximo passo rumo ao seu novo lar!Quer esteja no mercado para comprar, ou vender um imóvel, trabalharemos consigo, de forma personalizada, para que consigamos, juntos, o melhor negócio.A nossa equipa de consultores imobiliários é experiente, formada e orientada para a obtenção de resultados e serviço ao cliente. Sabemos que não basta uma ótima carteira de imóveis para atender às necessidades de quem procura uma casa. Preocupamo-nos em estudar o mercado local para que lhe possamos dar as melhores recomendações. Diga-nos o que procura, e nós iremos ajudá-lo/a.
AMI: 20927
Ref. Externa: MP477
Id: 1176390
Inicie sessão para guardar este imóvel e aceder à sua lista de favoritos em qualquer dispositivo.
Inicie sessão para ocultar este imóvel das suas pesquisas e manter a sua lista de resultados organizada.
Primeiro Degrau
Consultor imobiliário em Degrau Ascendente - Lda - AMI: 20927
Compre créditos para poder destacar os seus imóveis! Desta forma eles são os primeiros a aparecer nas pesquisas e têm uma maior chance de serem vistos pelos utilizadores.
Guardar favoritos
Este imóvel foi guardados nos seus favoritos com sucesso.
Para poder guardar pesquisa deverá ter a sua sessão iniciada.
Caso não tenha uma conta, deverá criar uma.
A sua pesquisa foi guardada com sucesso!
© Copyright 2023 | CASACERTA. All rights reserved
Este site utiliza cookies. Ao navegar no site estará a consentir a sua utilização.
Para mais informações sobre os cookies pode consultar a
política de privacidade.