"Onde o ritmo da cidade se encontra com a calma do rio"
Apartamento T2 com lugar de garagem e arrumos, localizado em Melres, Gondomar
Previsão para entrega de chaves: Outubrobro 2025
**Não fazemos partilha com imobiliárias**
●A 8 minutos da saída da A41 (Medas), permitindo rápido acesso às áreas circundantes do Porto.
●A 24 minutos da Ponte do Freixo.
Transportes Públicos:
● Autocarros da Unir a 1 minuto a pé, com ligação a Paredes, Hospital Fernando Pessoa e Estação de Campanhã (a cada 30 minutos).
Comodidades a Menos de 1 km:
● Educação: 3 min de carro da escola básica e jardim de infância.
● Saúde: 3 min de carro da unidade de saúde local.
● Farmácia: 2 min de carro.
● Clínica Dentária: 4 min a pé.
● Lazer: 7 min a pé da Marina de Melres.
● Supermercado: 2 min de carro (Meu Super).
● Praia Fluvial de Melres: 2 min de carro.
Ler comentário completo
Características específicas
87 m² área bruta
T2
1 casa de banho
Lugar de garagem incluído no preço
Empreendimento de nova construção
Armários embutidos
Arrecadação
Orientação Sul
Prédio
Rés do chão
Com elevador
Melres Apartments:
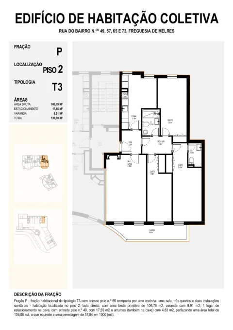
Apartamentos T2 e T3 com lugar de garagem e arrumos, localizado em Melres, Gondomar
**Não fazemos partilha com imobiliárias**
●A 8 minutos da saída da A41 (Medas), permitindo rápido acesso às áreas circundantes do Porto.
●A 24 minutos da Ponte do Freixo.
Transportes Públicos
● Autocarros da Unir a 1 minuto a pé, com ligação a Paredes, Hospital Fernando Pessoa e Estação de Campanhã (a cada 30 minutos).
Comodidades a Menos de 1 km
● Educação: 3 min de carro da escola básica e jardim de infância.
● Saúde: 3 min de carro da unidade de saúde local.
● Farmácia: 2 min de carro.
● Clínica Dentária: 4 min a pé.
● Lazer: 7 min a pé da Marina de Melres.
● Supermercado: 2 min de carro (Meu Super).
● Praia Fluvial de Melres: 2 min de carro.
Características específicas
107 m² área util
T3
2 casas de banho
Varanda
Lugar de garagem incluído no preço
Empreendimento de nova construção
Armários embutidos
Arrecadação
Orientação Sul
Prédio
2º andar
Com elevador
Este site utiliza cookies. Ao navegar no site estará a consentir a sua utilização. Para mais informações sobre os cookies pode consultar a
política de privacidade.