Filtros
0 · 8 resultados1.200.000 €
3 WCs
Área útil : 1275 m²
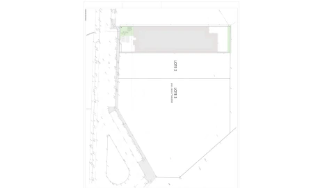
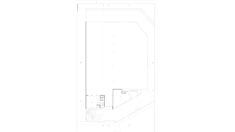
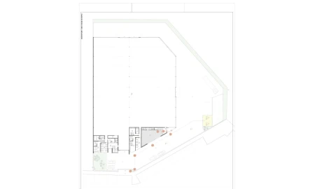
Armazém Industrial Novo em Arrifana – Santa Maria da Feira | Construção 2026 Apresentamos este armazém industrial Tipo 3, novo, com construção concluída em 2026, localizado no coração da Zona Industrial de Arrifana, uma das zonas empresariais mais procuradas da região. Com uma construção moderna e funcional, este imóvel foi pensado para responder às exigências de logística, produção e armazenagem. Principais características: Pé direito de 8 metros, ideal para armazenamento em altura ou instalação de estruturas industriais Ampla área de nave industrial, com excelente iluminação natural Preparado para instalação de ponte rolante, oferecendo grande versatilidade operacional Entradas trifásicas já instaladas na zona de produção Rede armada contra incêndios 2 portões seccionados automatizados + portão principal de acesso automatizado 2 portas corta-fogo com barras antipânico. Zona administrativa e apoio (totalmente equipada):.--,. Escritório com cerca de 100 m², com instalações sanitárias masculinas e femininas Sala de refeições (18 m²) Sala de espera (24 m²) Balneários masculino e feminino (17 m² cada) As plantas evidenciam uma organização funcional, com clara separação entre área produtiva e zona administrativa (ver ), garantindo eficiência operacional no dia a dia. Espaços exteriores: Logradouro frontal com 230 m², com estacionamento privado para 6 viaturas Estacionamento público nas imediações com elevada capacidade Logradouro traseiro com 250 m², com potencial para construção de anexo ou expansão (conforme visível na implantação ) Localização estratégica com excelentes acessos: A32 – 3 min A1 – 6 min N1 – 2 min São João da Madeira – 5 min Santa Maria da Feira – 6 min Vila Nova de Gaia – 20 min Porto – 25 min Outros: Imóvel isento de certificado energético Este armazém destaca-se pela sua qualidade construtiva, localização privilegiada e elevada capacidade de adaptação a diferentes atividades industriais ou logísticas. Ideal para empresas que procuram instalações modernas, com imagem profissional e prontas a operar. Para mais informações ou agendamento de visita, entre em contacto.
AMI: 7917
Ref. Externa: 801267005
Id: 1813714
Inicie sessão para guardar este imóvel e aceder à sua lista de favoritos em qualquer dispositivo.
1.350.000 €
Área útil : 2000 m²
Armazém Industrial. Portugal, ARRIFANA, S.ta M. da Feira. Vende-se, em bom estado de conservação, armazém de 2.000m2 implantado em terreno plano de 7.700m2. Adequado para Serviços, Comércio e Indústria. Localizado próximo de S. João da Madeira e do IC2. Com ótimos acessos. A breves minutos da autoestrada Porto-Lisboa. A 30 minutos do Porto. A cerca de 40 minutos de Aveiro. A cerca de 1 hora de Coimbra. JPP tem experiência e saber em vendas a compradores ingleses e franceses e pode guiá-lo pormenorizadamente e em confiança durante todo o processo de visita e compra. Preço excecional de venda: 1.350.000€. Referência 9225. Imagem indicativa.
AMI: 445
Ref. Externa: 9225_A
Id: 1791515
Inicie sessão para guardar este imóvel e aceder à sua lista de favoritos em qualquer dispositivo.
475.000 €
Área bruta : 1132 m²
Edifício destinado a armazém e atividade industrial composto de rés-do-chão, 1.º andar, anexos e alpendre Edifício com área de 1132,4 m2, distribuído em 2 pisos (rés-do-chão e 1.º andar), inserido num terreno de 1330 m2, está localizado na Rua Dom Dinis no lugar de Outeiro, Arrifana, Santa Maria da Feira Este armazém está dividido em diferentes espaços funcionais: zona de receção, escritórios, refeitório, balneários/wc’s e espaços amplos de trabalho/armazenamento. - Imóvel isento de certificado energético - Imóvel com licença de indústria do tipo 3 Acessos: - Fácil e rápido acesso à N1/IC2: estrada nacional e itinerário complementar que serve como uma das principais vias de acesso à área - A1 e A32: autoestradas que permite uma ligação rápida às cidades mais próximas como Porto, São João da Madeira, entre outras Proximidades: - a 100 metros do Pavilhão Municipal de Arrifana - a 550 metros Intermarché Arrifana - a 800 metros Clube Desportivo Arrifanense - a 900 metros BP Arrifana - a 950 metros Galp Este edifício oferece uma excelente localização e infraestrutura para suportar uma variedade de atividades industriais e de armazenamento. Com acesso rápido às principais vias e proximidade a serviços essenciais, é uma oportunidade imperdível para empresas em expansão ou que buscam uma nova sede.
AMI: 21331
Ref. Externa: KWPT-003456
Id: 1428016
Inicie sessão para guardar este imóvel e aceder à sua lista de favoritos em qualquer dispositivo.
225.000 €
Área útil : 850 m²
Casa com armazem, ideal para quem precisa de habitação e sitio para desenvolver um negocio
AMI: 16183
Ref. Externa: 1174-ARM
Id: 872136
Inicie sessão para guardar este imóvel e aceder à sua lista de favoritos em qualquer dispositivo.
Profissionais que conhecem esta zona a fundo — contacte-os para uma avaliação personalizada.
Sob consulta
Área bruta : 1700 m²
Armazem com licença industrial, muito bem localizado e bons acessos. Ideal para empresa de transportes, logística ou qualquer outro negocio de comercio.
AMI: 16183
Ref. Externa: 1172-ARM
Id: 872135
Inicie sessão para guardar este imóvel e aceder à sua lista de favoritos em qualquer dispositivo.
1.120.000 €
5 WCs
Área bruta : 1266 m²
Lote com armazém em projeto de construção em Arrifana. Destinado a comércio / serviços / armazém / indústria tipo 3. Localiza-se numa zona industrial a 1,7km do acesso à autoestrada. Áreas: - total do terreno: 1703m2 - implantação da construção: 1266m2 - total da construção: 1304m2 - impermeabilizada: 1630m2 - altura da fachada principal: 10,7m. Constituído por: R/C: - Receção; - Área administrativa; - WC; - Arrumos/área técnica; - Sala de pessoal; - Duas instalações sanitárias com balneário; - Espaço de armazém. 1º andar: - Dois WC; - Área administrativa; - Terraço. Este imóvel encontra-se isento de Certificação Energética segundo o Artigo 18º do Decreto-Lei nº 101-D/2020 de 07 de dezembro. Venha conhecer todos os pormenores. Somos Intermediários de Crédito, autorizados pelo Banco de Portugal, tratamos de todo o processo de financiamento bancário.
AMI: 9966
Ref. Externa: 7579
Id: 731822
Inicie sessão para guardar este imóvel e aceder à sua lista de favoritos em qualquer dispositivo.
1.155.000 €
5 WCs
Área bruta : 1304 m²
Lote com armazém em projeto de construção em Arrifana. Destinado a comércio / serviços / armazém / indústria tipo 3. Localiza-se numa zona industrial a 1,7km do acesso à autoestrada. Áreas: - total do terreno: 1703m2 - implantação da construção: 1304m2 - total da construção: 1444m2 - impermeabilizada: 1630m2 - altura da fachada principal: 10,7m. Constituído por: R/C: - Receção; - Área administrativa; - WC; - Arrumos/área técnica; - Sala de pessoal; - Duas instalações sanitárias com balneário; - Espaço de armazém. 1º andar: - Dois WC; - Área administrativa; - Terraço. Este imóvel encontra-se isento de Certificação Energética segundo o Artigo 18º do Decreto-Lei nº 101-D/2020 de 07 de dezembro. Venha conhecer todos os pormenores. Somos Intermediários de Crédito, autorizados pelo Banco de Portugal, tratamos de todo o processo de financiamento bancário.
AMI: 9966
Ref. Externa: 7580
Id: 731824
Inicie sessão para guardar este imóvel e aceder à sua lista de favoritos em qualquer dispositivo.
2.468.000 €
5 WCs
Área bruta : 2815 m²
Lote com armazém em projeto de construção em Arrifana. Destinado a comércio / serviços / armazém / indústria tipo 3. Localiza-se numa zona industrial a 1,7km do acesso à autoestrada. Áreas: - total do terreno: 5071m2 - implantação da construção: 2815m2 - total da construção: 3091,7m2 - impermeabilizada: 4567,3m2 - altura da fachada principal: 10,7m. Constituído por: R/C: - Receção; - Área administrativa; - WC; - Arrumos/área técnica; - Sala de pessoal; - Duas instalações sanitárias com balneário; - Espaço de armazém. 1º andar: - Dois WC; - Área administrativa; - Terraço. Este imóvel encontra-se isento de Certificação Energética segundo o Artigo 18º do Decreto-Lei nº 101-D/2020 de 07 de dezembro. Venha conhecer todos os pormenores. Somos Intermediários de Crédito, autorizados pelo Banco de Portugal, tratamos de todo o processo de financiamento bancário.
AMI: 9966
Ref. Externa: 7581
Id: 731814
Inicie sessão para guardar este imóvel e aceder à sua lista de favoritos em qualquer dispositivo.
© Copyright 2023 | CASACERTA. All rights reserved
Guardar favoritos
Este imóvel foi guardados nos seus favoritos com sucesso.
Para poder guardar pesquisa deverá ter a sua sessão iniciada.
Caso não tenha uma conta, deverá criar uma.
A sua pesquisa foi guardada com sucesso!
Este site utiliza cookies. Ao navegar no site estará a consentir a sua utilização.
Para mais informações sobre os cookies pode consultar a
política de privacidade.