Armazém para Venda em Arrifana
2.468.000 €
Tipo
Armazém
Negócio
Venda
Casas de Banho
5
Área Bruta
2815 m²
Condição
Em projecto
Certificado Energético
Isento
Área do Terreno
5071 m²
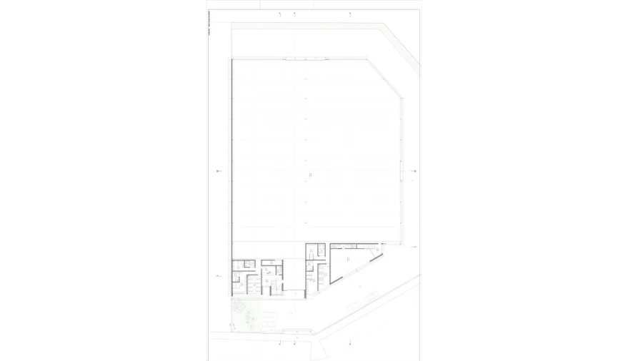
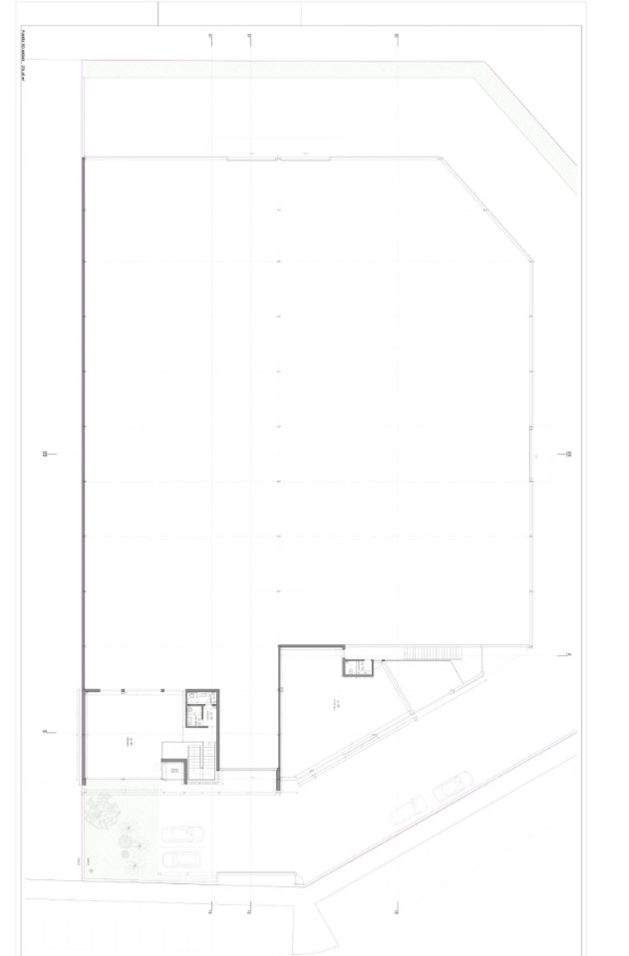
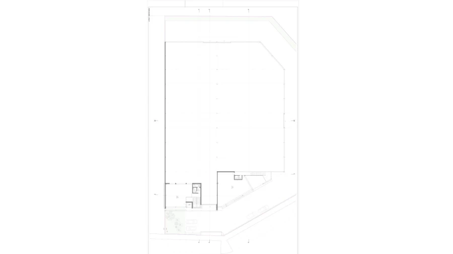
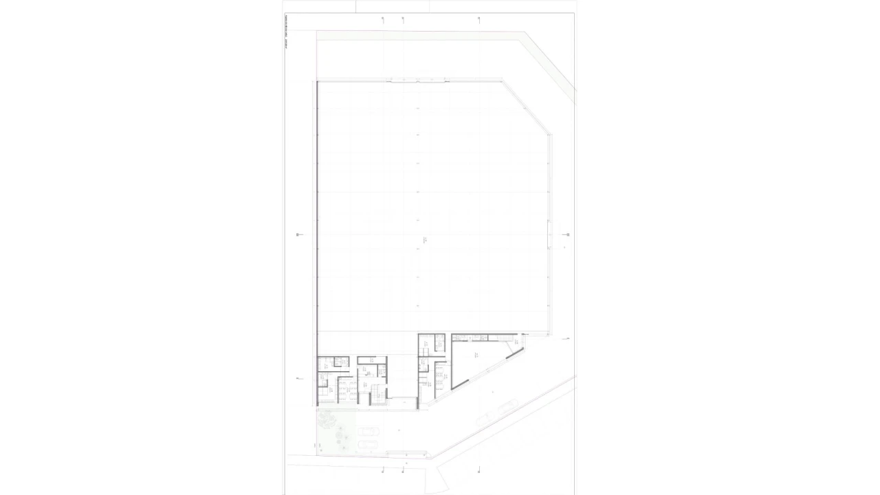
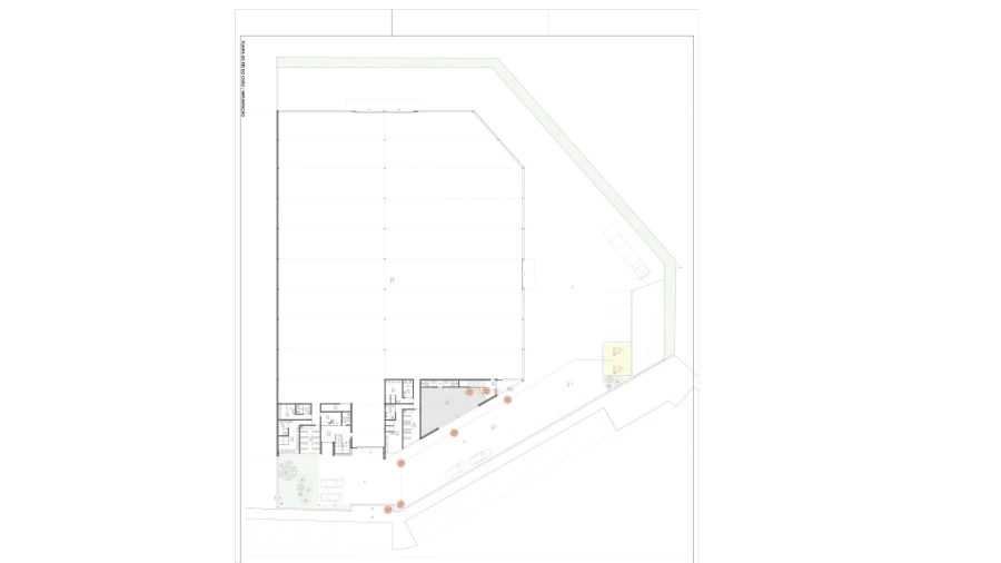
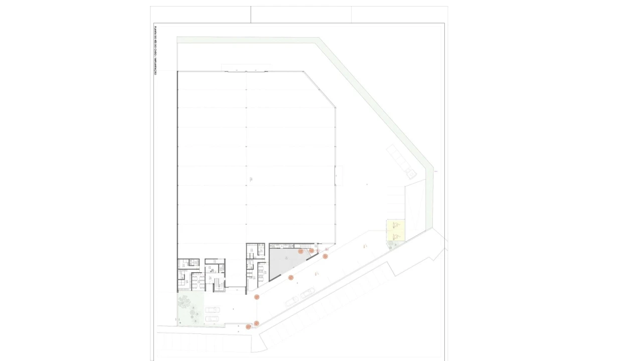
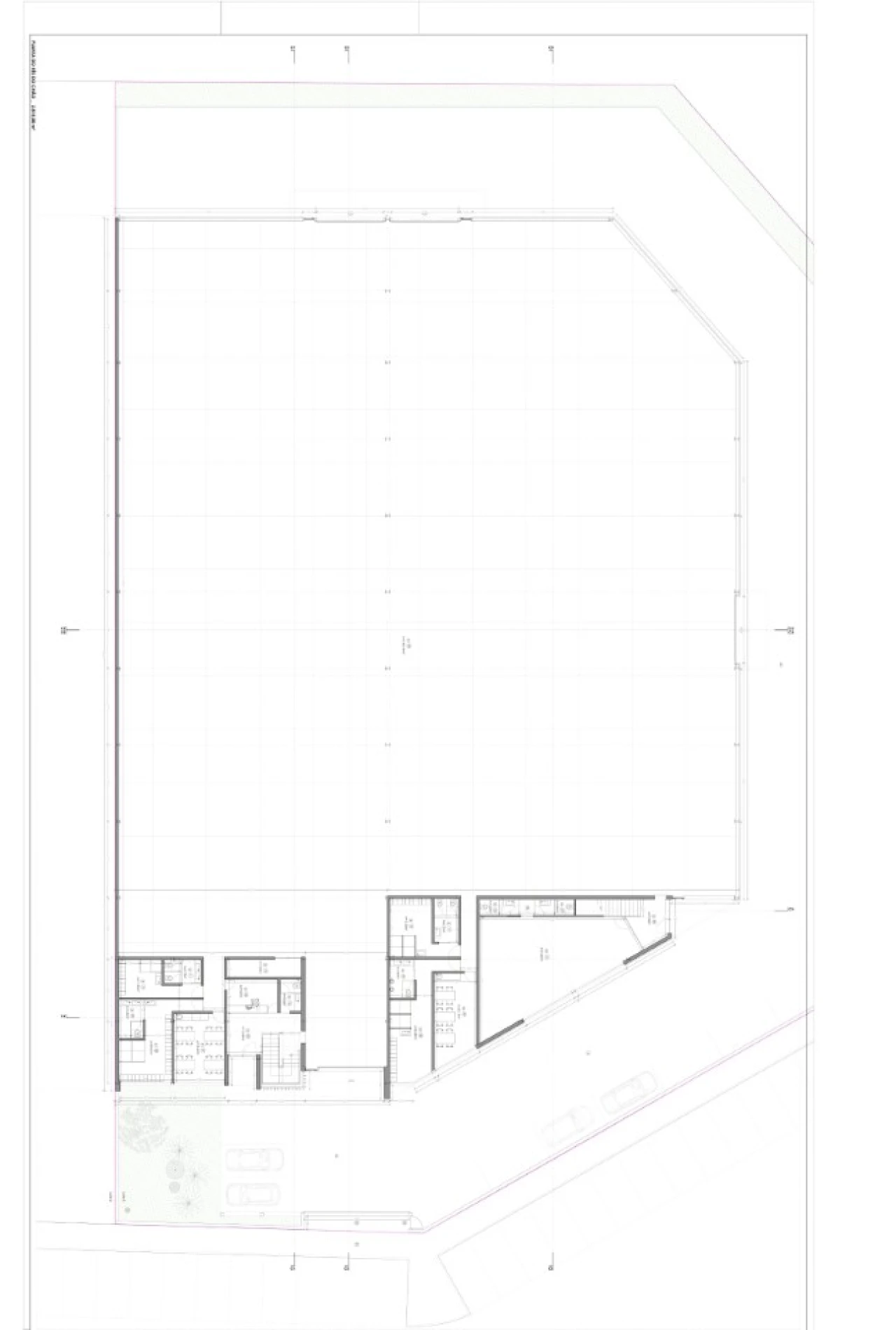
Armazém em Arrifana
Lote com armazém em projeto de construção em Arrifana.
Destinado a comércio / serviços / armazém / indústria tipo 3.
Localiza-se numa zona industrial a 1,7km do acesso à autoestrada.
Áreas:
- total do terreno: 5071m2
- implantação da construção: 2815m2
- total da construção: 3091,7m2
- impermeabilizada: 4567,3m2
- altura da fachada principal: 10,7m.
Constituído por:
R/C:
- Receção;
- Área administrativa;
- WC;
- Arrumos/área técnica;
- Sala de pessoal;
- Duas instalações sanitárias com balneário;
- Espaço de armazém.
1º andar:
- Dois WC;
- Área administrativa;
- Terraço.
Este imóvel encontra-se isento de Certificação Energética segundo o Artigo 18º do Decreto-Lei nº 101-D/2020 de 07 de dezembro.
Venha conhecer todos os pormenores.
Somos Intermediários de Crédito, autorizados pelo Banco de Portugal, tratamos de todo o processo de financiamento bancário.
Destinado a comércio / serviços / armazém / indústria tipo 3.
Localiza-se numa zona industrial a 1,7km do acesso à autoestrada.
Áreas:
- total do terreno: 5071m2
- implantação da construção: 2815m2
- total da construção: 3091,7m2
- impermeabilizada: 4567,3m2
- altura da fachada principal: 10,7m.
Constituído por:
R/C:
- Receção;
- Área administrativa;
- WC;
- Arrumos/área técnica;
- Sala de pessoal;
- Duas instalações sanitárias com balneário;
- Espaço de armazém.
1º andar:
- Dois WC;
- Área administrativa;
- Terraço.
Este imóvel encontra-se isento de Certificação Energética segundo o Artigo 18º do Decreto-Lei nº 101-D/2020 de 07 de dezembro.
Venha conhecer todos os pormenores.
Somos Intermediários de Crédito, autorizados pelo Banco de Portugal, tratamos de todo o processo de financiamento bancário.
Localização
Arrifana, Santa Maria da Feira, Aveiro
Informação do anúncio
ID do anúncio
731814
Referência Externa
7581
Atualizado em
13/03/2025 04:09:07
Armazém para Venda em Arrifana