Lista
Comprar
Arrendar
Área útil : 147 m²
Armazém em São João da Madeira* Área do terreno 393m²* Área exterior* Balneário* EscritórioComprar Armazém em São João da Madeira?Armazém com área de total de terreno de 393m², localizado em zona muito boa da cidade e com bons acessos.O imóvel está construído todo ao mesmo nível, tendo áreas amplas com luz natural, composto por divisões, balneário e escritório.Não perca esta oportunidade!Marque já visita!Impacto a sua imobiliária.Ref.ª IT-8897Coloque o seu imóvel para venda / arrendamento diretamente no nosso site.No separador "Vender Imóvel" preencha os dados pedidos. Será de seguida contactado para concluir.Porquê comprar e vender com a Impacto?- Somos especialistas no mercado imobiliário;- Os nossos colaboradores, são profissionais e conhecedores do mercado;- Estamos comprometidos em negociar no seu interesse;- Temos uma ótima divulgação, para facilitar a venda/compra da sua casa;- Estamos no mercado há mais de 20 anos;- Apoiamos no processo de financiamento;- Acompanhamos a avaliação do imóvel;- Acompanhamos todos os atos do CPCV e da Escritura Pública/Título/DPA.Contacte-nos através do telefone ou email.Visite o nosso Website e a nossa página de Facebook.
AMI: 2455
Ref. Externa: IT-8897
Id: 1734973
Inicie sessão para guardar este imóvel e aceder à sua lista de favoritos em qualquer dispositivo.
2 Quartos
3 WCs
Área bruta : 318 m²
Armazém com projeto a ser aprovado para apartamento T2 composto por 2 suites (uma delas com closet), 2 salas (estar e jantar), e um belíssimo terraço com 28m².Conta ainda com garagem individual e arrumos.No centro da cidade.Warehouse with approved project for 2-bedr. flat comprising 2 suites (one with dressing room), 2 living rooms (living and dining), and a beautiful 28m² terrace.It also has a single garage and storage.In the city centre.CaracterísticasGeralQuarto de Banho: PróprioZonaAcessos: Auto-Estrada, Bons, Transportes Púb.Centralidade: Centro da CidadeProximidade: Bancos, Bombeiros, Centros Comerciais, Clínica, Escolas, Farmácia, Ginásio, Hospital, Jardins Infância, Padaria, Polícia, Serviços Públicos, Supermercado
AMI: 7004
Ref. Externa: GD-174250154
Id: 1729693
Inicie sessão para guardar este imóvel e aceder à sua lista de favoritos em qualquer dispositivo.
1 WCs
Área útil : 366 m²
O imóvel tem uma área com loja, armazém e ainda possui um terraço e logradouro.- Armazém: 366m²;- Casa de banho;- Escritório;- Terraço com 160m²;- Logradouro com 1.185m².O imovel tem também um portão com acesso para camiões e veiculos ligeiros.Bem localizado e de fácil acesso.
AMI: 22503
Ref. Externa: PD-053373
Id: 1725166
Inicie sessão para guardar este imóvel e aceder à sua lista de favoritos em qualquer dispositivo.
1.200.000 €
Área bruta : 3178 m²
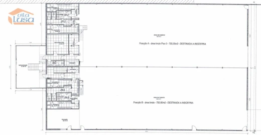
Oportunidade de Investimento: Pavilhão Industrial em S. João da Madeira Apresentamos um pavilhão industrial de excelência, estrategicamente localizado na prestigiada Zona Industrial de São João da Madeira. Com uma configuração versátil e áreas generosas, este imóvel é ideal para empresas que procuram expandir a sua capacidade produtiva ou logística num dos principais polos empresariais do Norte de Portugal. Características Principais • Área Total do Terreno: 3190 m² • Área Útil: 3178 m² (máximo aproveitamento do solo) • Pé Direito: Aproximadamente 6 metros, permitindo elevada capacidade de armazenamento vertical. • Estado: Pronto a operar, com divisões funcionais bem delineadas. Distribuição do Espaço O imóvel foi desenhado para separar a vertente administrativa da operacional de forma eficiente: • Zona Administrativa: 6 escritórios independentes, ideais para gestão, contabilidade e reuniões. • Área Operacional: Amplas zonas de armazém e fábrica com excelente fluidez de movimento. • Logística: Equipado com cais de carga, facilitando a entrada e saída de mercadorias e a operação de pesados. • Facilidades: Balneários completos e várias casas de banho para colaboradores e clientes. • Exterior: Zona de estacionamento privativo. Localização Estratégica Situado em São João da Madeira, o pavilhão beneficia de: • Proximidade aos principais eixos rodoviários (A1 e IC2). • Inserção num ecossistema industrial consolidado (setores de calçado, componentes automóveis e tecnologia).
AMI: 21331
Ref. Externa: KWPT-028731
Id: 1676241
Inicie sessão para guardar este imóvel e aceder à sua lista de favoritos em qualquer dispositivo.
2.300.000 €
Área bruta : 2801 m²
Apresentamos este armazém com 2800 m² de área bruta privativa, localizado na zona industrial de São João da Madeira, uma das áreas mais estratégicas da região para logística, armazenagem e atividade industrial. O imóvel oferece amplas áreas para produção, armazenamento e distribuição, com bons acessos rodoviários, incluindo proximidade à A1 e à A32. Ideal para empresas que procuram espaço, funcionalidade e uma localização privilegiada no norte do País. Características principais: Área total: 2800 m² Pé-direito elevado Bons acessos para veículos pesados Zona de escritórios e instalações sanitárias Localização em zona industrial consolidada Uma excelente oportunidade para expandir ou estabelecer a sua operação industrial.
AMI: 11371
Ref. Externa: MAG_4702
Id: 1632313
Inicie sessão para guardar este imóvel e aceder à sua lista de favoritos em qualquer dispositivo.
Área bruta : 446 m²
O imóvel tem uma área com loja , armazém e ainda possui um terraço e logradouro.- Armazém: 366m2;- Casa de banho;- Escritório;- Terraço com 160m2;- Logradouro com 1.185m2.O imovel tem também um portão com acesso para camiões e veiculos ligeiros .Bem localizado e de fácil acesso.Predimed Imobiliária, Mediação Imobiliária, Lda.Avenida Brasil 43, 12º Andar, 1700-062 LisboaLicença AMI nº 22503Pessoa Coletiva nº 517 239 345Seguro Responsabilidade Civil: Nº de Apólice RC65379424 Fidelidade
AMI: 13558
Ref. Externa: 053373
Id: 1250570
Inicie sessão para guardar este imóvel e aceder à sua lista de favoritos em qualquer dispositivo.
Área bruta : 164 m²
Armazém Industrial com Anexo e Logradouro – São João da MadeiraO espaço ideal para o crescimento do seu negócio!Apresentamos este excelente armazém industrial, estrategicamente localizado em São João da Madeira, uma zona de forte dinâmica empresarial e fácil acesso às principais vias de comunicação.Composto por um armazém amplo, anexo funcional e um generoso logradouro, esta propriedade oferece condições ideais para atividades industriais, logísticas ou de armazenamento.🔹 Área versátil e bem distribuída🔹 Anexo complementar para escritórios, apoio técnico ou stock adicional🔹 Logradouro privativo com ótimos acessos para cargas e descargas🔹 Excelente localização, a poucos minutos dos principais eixos rodoviáriosAproveite esta oportunidade para instalar ou expandir a sua empresa num espaço que oferece funcionalidade, visibilidade e potencial.📞 Entre em contacto para mais informações ou agende já a sua visita!
AMI: 16262
Ref. Externa: EU1991F
Id: 1173853
Inicie sessão para guardar este imóvel e aceder à sua lista de favoritos em qualquer dispositivo.
1.400.000 €
4 WCs
Área útil : 2572 m²
Oportunidade Única! Pavilhão Industrial Moderno à Venda em São João da Madeira Venda de armazém industrial semi-novo, com arquitetura moderna, localizado na prestigiada zona industrial de São João da Madeira, junto à EN1 e com ligação direta à A32 e A1 — garantindo excelente acessibilidade logística O imóvel é composto por duas frações contíguas (aprox. 870m² cada), totalizando cerca de 1.740m² de área bruta privativa, sobre um terreno de 4.600m². Esta configuração permite utilização própria e/ou arrendamento parcial, otimizando o seu investimento, Características principais Pé direito: 6m nas extremidades, 7m na zona central Hall de entrada independente Zona de produção ampla e funcional Instalações sanitárias completas Piso superior com escritórios, salas de reunião e áreas técnicas Logradouro com 8 lugares de estacionamento, Área traseira para manobras de camiões e cargas pesadas Área exterior de 99,10m². Este pavilhão é ideal para empresas industriais, logísticas ou de armazenagem que valorizem qualidade construtiva, localização estratégica e versatilidade operacional. Não perca esta oportunidade! Agende já a sua visita e conheça de perto o espaço ideal para impulsionar o seu negócio
AMI: 7917
Ref. Externa: 801257009
Id: 1144850
Inicie sessão para guardar este imóvel e aceder à sua lista de favoritos em qualquer dispositivo.
Área útil : 164 m²
Procura um espaço para desenvolver o seu negócio ou para investimento? Apresento-lhe este armazém localizado em São João da Madeira com 408m² de terreno e 164m² de área útil. Uma oportunidade de investimento única para empresas que aqui se queiram estabelecer e desenvolver atividades industriais. Não perca esta oportunidade única de adquirir um armazém que combina modernidade, funcionalidade e localização privilegiada. Agende já a sua visita! Mais informações sobre este ou outro imóvel e marcações de visita, contacte-nos: CHAVE NOVA – MADALENA Rua António Francisco de Sousa, Nº584 – R/Chão Esq. 4405-996, Madalena – Vila Nova de Gaia. 222 444 629 | 939 672 002
AMI: 7142
Ref. Externa: MAD/01968
Id: 1032096
Inicie sessão para guardar este imóvel e aceder à sua lista de favoritos em qualquer dispositivo.
1.400.000 €
6 WCs
Área bruta : 2733 m²
* Pavilhão de arquitetura moderna seminovo , para venda em Zona Industrial em São João da Madeira * Arrendamento das duas fracoes do pavilhão sob consulta. Pavilhão industrial de arquitetura moderna e em excelente estado de conservação, localizado em São João da Madeira, ideal para operações logísticas, armazenamento e atividades industriais,. Situado numa zona industrial de referência, este imóvel oferece ampla infraestrutura e funcionalidade, proporcionando eficiência e conforto para as operações empresariais. Dado ser constituído por 2 frações, poderá utilizar uma delas e arrendar a outra, permitindo rentabilizar o investimento. * Características do Imóvel: - área total do terreno : 4.600m², garantindo ampla capacidade e flexibilidade de uso. - área bruta privativa : 2 frações contíguas com cerca de 870m² cada, totalizando um espaço eficiente e bem distribuído para processos industriais e armazenamento. - pé direito : 6m nas extremidades e 7m na zona central, permitindo uma disposição de equipamentos e armazenamento verticais com excelente aproveitamento. *Cada fração está cuidadosamente planeada, incluindo: -hall de entrada independente para recepção e acesso controlado - área de produção ampla e moderna - área de apoio com instalações sanitárias completas - piso superior constituído por gabinetes de escritório, salas de reunião, áreas de arquivo, hall e escadas de ligação, otimizando o espaço e facilitando a integração entre áreas administrativas e operacionais * Área Externa e Logística: - espaçosa área traseira para circulação de camiões e veículos pesados, facilitando a logística e a movimentação de cargas - logradouro com área de 99,10m² e 8 lugares de estacionamento, ideal para visitantes e equipa operacional Este pavilhão reúne todas as características para negócios industriais que procuram um espaço de alto padrão, seguro, bem localizado e preparado para operações complexas. Agende uma visita e descubra como este imóvel pode servir para as suas necessidades empresariais.
AMI: 15098
Ref. Externa: MUDDA.2022.15098
Id: 927803
Inicie sessão para guardar este imóvel e aceder à sua lista de favoritos em qualquer dispositivo.
Área bruta : 3680 m²
Armazém , com excelente infraestrutura e localização central. Com um pé direito de 4 metros, o imóvel possui uma área coberta de 368 m², ideal para armazenamento de mercadorias ou para instalação de uma pequena indústria. O armazém está equipado com dois banheiros, um masculino e um feminino, garantindo conveniência para os funcionários. Além disso, conta com um portão amplo, facilitando o acesso para cargas e descargas. Esta é uma oportunidade imperdível para quem busca um espaço versátil e bem localizado, com todas as comodidades necessárias para o bom funcionamento do seu negócio. Na Espaço60, acreditamos firmemente que a compra, venda ou arrendamento de uma propriedade vai além de uma simples transação - é a concretização de sonhos e aspirações. Com mais de 35 anos de experiência dedicada à mediação imobiliária exclusiva, consolidamos a nossa posição como líderes confiáveis neste setor em constante evolução. A nossa equipa é formada por consultores profissionais apaixonados e experientes, cada um comprometido em oferecer um serviço personalizado e eficiente. Desde o primeiro contacto até à conclusão da transação, estamos ao seu lado, fornecendo orientação especializada e soluções à medida para satisfazer as suas necessidades únicas. Na Espaço60, a transparência e a integridade são os pilares de todas as nossas ações. Valorizamos cada cliente e cada negociação, buscando construir relações de confiança baseadas em comunicação aberta, honestidade e resultados excecionais. Ao escolher o Espaço60, está a optar por um parceiro confiável e dedicado que irá superar as suas expectativas e tornar o processo imobiliário uma experiência tranquila e gratificante. Estamos aqui para transformar os seus sonhos imobiliários em realidade.
AMI: 23515
Ref. Externa: 01230413
Id: 878212
Inicie sessão para guardar este imóvel e aceder à sua lista de favoritos em qualquer dispositivo.
1.200.000 €
Área útil : 1100 m²
Edifício em zona central da cidade. Área de implantação 1100 m2. Área de construção actual 1700 m2. Possibilidade de aumento de área até 3850 m2. Utilização actual aprovada para armazenagem, indústria, serviços, podendo facilmente ser alterado para habitação. Edifício construído em 1940, com traça original da época, esteticamente apelativo. A MILLION GROUP surge da união de sinergias, da complementaridade e experiência dos seus fundadores. Que iniciaram a sua colaboração sob a matriz de uma marca internacional e decidem criar um novo conceito para o setor imobiliário. Sentiram os desafios com uma perspetiva mais universal e flexível na abordagem do mercado imobiliário, e a criação da marca MILLION GROUP vem responder a todas as necessidades. Era preciso dar corpo a uma filosofia e uma forma de estar no mercado, nova e diferenciadora. Os nossos valores CONFIANÇA, PROXIMIDADE, MATURIDADE, UNIVERSALIDADE. CONFIANÇA – Conquistada interna e externamente pelo rigor e a lealdade na relação que estabelecemos com os nossos Consultores, Parceiros, Clientes e Amigos. PROXIMIDADE – Uma relação sincera, com acompanhamento, apoio e disponibilidade permanente. MATURIDADE – Um património de experiência e conhecimento no mercado imobiliário. UNIVERSALIDADE – Baseada numa presença abrangente em todos os segmentos de mercado, a profissionalizar os nossos consultores com foco na satisfação dos nossos clientes. O que fazemos "Concretizamos sonhos" Uma verdadeira síntese emocional do que fazemos todos os dias. Conciliamos compradores e vendedores, promovemos negócios e apoiamos a sua concretização.
AMI: 22034
Ref. Externa: MG01155
Id: 793033
Inicie sessão para guardar este imóvel e aceder à sua lista de favoritos em qualquer dispositivo.
1.000.000 €
3 WCs
Área bruta : 686 m²
Armazém com possibilidade para indústria, como relatado no PDM, na zona industrial em São João da Madeira. Construído com materiais/equipamentos de topo à altura, este armazém conta com: - Cave, com balneários e elevador monta-cargas até ao rés do chão; - Rés do chão, com casa de banho, escritório, cozinha e espaço de armazenagem com acesso ao monta-cargas; - 1º andar com escritório e casa de banho. Áreas: - Bruta Privativa: 686m2; - Total do Terreno: 708m2; - Bruta de Construção: 1.281m2; Equipamentos/Características: - Blackouts automáticos; - Ar condicionado com tecnologia de exposição fotográfica nos mesmos; - Claraboias com abertura automática; - Vidros do escritório superior com abertura automática; - Portões automáticos. Este imóvel encontra-se isento de Certificação Energética segundo o Artigo 18º do Decreto-Lei nº 101-D/2020 de 07 de dezembro. Venha conhecer todos os pormenores. Somos Intermediários de Crédito, autorizados pelo Banco de Portugal, tratamos de todo o processo de financiamento bancário.
AMI: 9966
Ref. Externa: 7594
Id: 726337
Inicie sessão para guardar este imóvel e aceder à sua lista de favoritos em qualquer dispositivo.
Área bruta : 224 m²
Armazém em São João da Madeira* Área do terreno 393m2* Área exterior* Balneário* EscritórioComprar Armazém em São João da Madeira?Armazém com área de total de terreno de 393m2, localizado em zona muito boa da cidade e com bons acessos.O imóvel está construído todo ao mesmo nível, tendo áreas amplas com luz natural, composto por divisões, balneário e escritório.Não perca esta oportunidade!Marque já visita!Impacto a sua imobiliária.Ref.ª IT-8897Coloque o seu imóvel para venda / arrendamento diretamente no nosso site.No separador "Vender Imóvel" preencha os dados pedidos. Será de seguida contactado para concluir.Porquê comprar e vender com a Impacto?- Somos especialistas no mercado imobiliário;- Os nossos colaboradores, são profissionais e conhecedores do mercado;- Estamos comprometidos em negociar no seu interesse;- Temos uma ótima divulgação, para facilitar a venda/compra da sua casa;- Estamos no mercado há mais de 20 anos;- Apoiamos no processo de financiamento;- Acompanhamos a avaliação do imóvel;- Acompanhamos todos os atos do CPCV e da Escritura Pública/Título/DPA.Contacte-nos através do telefone ou email.Visite o nosso Website e a nossa página de Facebook.
AMI: 2455
Ref. Externa: IT-8897
Id: 517820
Inicie sessão para guardar este imóvel e aceder à sua lista de favoritos em qualquer dispositivo.
Área bruta : 472 m²
Armazém de 2 pisos com 472 m2 para restauro inserido num lote de terreno com 407 m2 localizado no centro de São João da Madeira perto de todo o comércio e serviços essenciais.
AMI: 19727
Ref. Externa: CDV219
Id: 491744
Inicie sessão para guardar este imóvel e aceder à sua lista de favoritos em qualquer dispositivo.
1.750.000 €
4 WCs
Área bruta : 3178 m²
Espaçoso Pavilhão, com muita luz natural, muito bem localizado numa região com muitas Industrias. Inserido num terreno de 3.200 m2 Composto por rés do chão, 1º e 2º andares e logradouro para cargas e descargas, com licença Industrial e bom pé direito. - Rés chão: Recessão, Armazém e balneários. - 1º Andar: Escritórios, Sala Reuniões, Bar para equipa e casas de banho. - 2º Andar Diversos Arrumos e arrecadação e arquivos. Possibilidade de venda com o recheio e equipamentos Possibilidade de venda da empresa em funcionamento Possibilidade de venda somente do imóvel. ============================================================================== A rede imobiliária MUDDA nasce da ambição de colocar no mercado uma marca próxima de todas as pessoas, elevando os padrões de qualidade, rigor e integridade existentes no mercado imobiliário. A MUDDA é uma evolução do grupo de agências imobiliárias pertencente ao Grupo STARS, que atualmente conta com 7 agências reconhecidas, implementadas no mercado imobiliário do distrito de Aveiro, Porto e Coimbra. A rede imobiliária MUDDA e todos os seus colaboradores partilham dos mesmos valores e da mesma cultura. Focados em ajudar a mudar vidas, pretendemos prestar um serviço de elevada proximidade, qualidade, rigor e com a maior transparência possível. Para isso toda a rede e as pessoas que a constituem encontram-se em permanente evolução e mudança. Na MUDDA Rede Imobiliária guiamo-nos pelos seguintes valores: _ Ética, Transparência e Versatilidade _ Paixão _ Trabalho em equipa _ Partilha _ Evolução contínua Para atingir esse propósito, dispomos de uma equipa de profissionais qualificados com vasta experiência em mediação imobiliária que nos permite apresentar e sugerir as melhores alternativas para os seus objetivos de venda, arrendamento ou investimento imobiliário. Caso pretenda recorrer a financiamento, trabalhamos em parceria com a MAXFINANCE TOP, que dispõe de uma ampla rede de Intermediários de Crédito.
AMI: 15098
Ref. Externa: MUDDA.1813.15098
Id: 491117
Inicie sessão para guardar este imóvel e aceder à sua lista de favoritos em qualquer dispositivo.
Área de terreno : 408 m²
-CSIFINANCIAL - Crédito Seguros Imóveis-Armazém situado em zona de excelência em São João da Madeira, o que lhe permite ter uns ótimos acessos às principais vias rodoviárias.Com uma área de 408 m2, sendo que a área Bruta Privativa é de 164 m2.Constituído por dois pavilhões e um outro espaço coberto.Nas instalações, ainda dispõe de espaço para estacionamento de 5 viaturas.A sua última atividade foi na área de Serralharia, sendo que está apto para todo o tipo de serviços, comércio ou pequena indústria não poluente.O imóvel necessita de algumas obras de reabilitação.Marque já a sua visita!
AMI: 22269
Ref. Externa: 134
Id: 358318
Inicie sessão para guardar este imóvel e aceder à sua lista de favoritos em qualquer dispositivo.
1.325.000 €
Área bruta : 3200 m²
Descrição do Pavilhão Industrial à Venda Este pavilhão industrial está situado em um lote de 3200m² e é ideal para empresas que buscam um espaço funcional e bem equipado para suas operações. A propriedade é composta por três andares e oferece diversas facilidades que atendem às necessidades industriais e administrativas. A seguir, uma descrição detalhada do imóvel: Características do Imóvel: Área Total: 3200m² Composição do Imóvel: Rés do Chão: Receção Armazém Instalações sanitárias 1º Andar: Zona administrativa (escritórios, sala de reuniões, gabinetes) Bar para colaboradores Instalações sanitárias 2º Andar: Arrumos Arrecadação Arquivos Outras Facilidades: Logradouro para cargas e descargas Escritório de apoio à produção Balneários com duche Refeitório Sala de café Sala de reuniões Destaques: Luz Natural: O pavilhão é projetado para aproveitar ao máximo a luz natural, proporcionando um ambiente de trabalho agradável. Acessibilidade: A propriedade tem ótimos acessos, facilitando a logística e o transporte. Licença Industrial: O imóvel possui licença industrial e atualmente abriga uma empresa em funcionamento. Condições de Venda: Preço de Venda: Negociável Opções de Venda: Venda com o recheio e equipamentos Venda da empresa em funcionamento Venda somente do imóvel Este pavilhão é uma excelente oportunidade para empresas que buscam expandir suas operações ou iniciar uma nova fase de produção com instalações prontas para uso. As várias opções de venda oferecem flexibilidade para atender às necessidades específicas dos compradores. Interessados podem entrar em contato para mais detalhes e para agendar uma visita ao imóvel.
AMI: 7142
Ref. Externa: AVR/00188
Id: 353888
Inicie sessão para guardar este imóvel e aceder à sua lista de favoritos em qualquer dispositivo.
Área útil : 366 m²
Comprar armazém em São João da Madeira* Comércio ou Serviços* Armazém: 366m2* Terraço: 160,40m2* Logradouro / Terreno: 1.185,85m2* Wc´s* EscritóriosQuer comprar Armazém em São João da Madeira?Armazém destinado a Comércio ou Serviços, composto por loja com montra, armazém, dois escritórios, wc´s, logradouro e terreno. O terreno tem possibilidade de outra entrada, para além de ter área de construção. Dispõe de entrada de carros e camião que também dá acesso ao logradouro e ao terreno, portões automatizados.Marque a sua visita e venha conhecer!Um Excelente espaço para o seu negócio!Impacto a sua imobiliáriaRefª It- 9214Porquê comprar e vender com a Impacto?Somos especialistas no mercado imobiliário.- Os nossos colaboradores, são profissionais e conhecedores do mercado.- Estamos comprometidos em negociar no seu interesse.- Temos uma ótima divulgação, para facilitar a venda/compra da sua casa.- Estamos no mercado há mais de 20 anos.- Apoio no processo de financiamento- Acompanhamento na avaliação do imóvel- Acompanhamento em todos os atos do contrato e escritura.Contacte-nos através dos nossos contactos.
AMI: 2455
Ref. Externa: 9214
Id: 279146
Inicie sessão para guardar este imóvel e aceder à sua lista de favoritos em qualquer dispositivo.
Estes agentes são especialistas nesta zona:
Inicie sessão para ocultar este imóvel das suas pesquisas e manter a sua lista de resultados organizada.
© Copyright 2023 | CASACERTA. All rights reserved
Guardar favoritos
Este imóvel foi guardados nos seus favoritos com sucesso.
Para poder guardar pesquisa deverá ter a sua sessão iniciada.
Caso não tenha uma conta, deverá criar uma.
A sua pesquisa foi guardada com sucesso!
Este site utiliza cookies. Ao navegar no site estará a consentir a sua utilização.
Para mais informações sobre os cookies pode consultar a
política de privacidade.