Lista
Comprar
Arrendar
2 Quartos
1 WCs
Área bruta : 71 m²
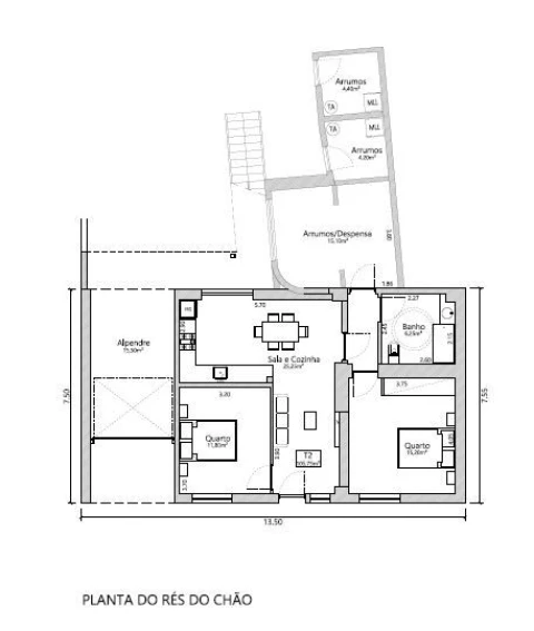
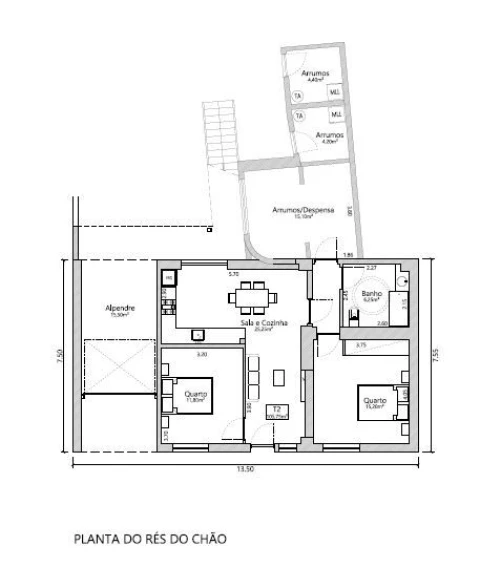
Apartamento T2 situado na Avenida da Régua, na zona da Cova do Frade, área bem localizada e valorizada da cidade. Inserido num 3.º andar sem elevador. O imóvel é composto por sala e cozinha em open space, com acesso a um amplo terraço coberto, dois quartos, casa de banho completa e armários embutidos no corredor. Dispõe ainda de arrumos na cave e de uma divisão de arrumos no interior da fração (desvão do telhado), com luz natural através de claraboia, com potencial para escritório ou quarto extra. Não possui garagem. Excelente opção para habitação própria ou investimento. Para mais informações ou para agendamento de visita, fale comigo. Eu ajudo a decidir.
AMI: 14393
Ref. Externa: 104.1263
Id: 1593396
Inicie sessão para guardar este imóvel e aceder à sua lista de favoritos em qualquer dispositivo.
5 Quartos
4 WCs
Área bruta : 730 m²
Moradia de Luxo T5 na Ria de Aveiro em Ovar — Privacidade, Natureza & Conforto ao seu alcance. . Descubra um refúgio singular onde a tranquilidade da Ria e o verde do bosque se encontram com o convívio, o lazer e a elegância.. Inserida num ambiente residencial calmo, esta moradia distingue-se pela sua solidez construtiva, boa exposição solar e versatilidade de utilização, sendo ideal tanto para habitação própria como para investimento a médio e longo prazo.. O imóvel dispõe de áreas bem distribuídas, permitindo uma vivência confortável e funcional, com espaço exterior que valoriza a experiência residencial e oferece múltiplas possibilidades de usufruto ou valorização futura.. Inserida num lote exclusivo de 5.150 m2, esta moradia de 730 m2 convida-o a viver com espaço, conforto e liberdade — com piscina grande, court de ténis ou campo de futebol de salão, sauna, bonitos jardins e áreas amplas distribuídas por três pisos.. . Com 5 quartos(3 suítes), 7 casas de banho, garagem para 5 viaturas e estacionamento exterior amplo, esta casa foi pensada para acolher família, amigos e proporcionar momentos inesquecíveis.. . Imagine acordar com o som da Ria, tomar um café na varanda com vista sobre o bosque, passar o dia a relaxar junto à água ou no jardim, terminar à beira da piscina ao pôr-do-sol ou organizar um churrasco com quem ama. Tudo isso com a praia a poucos minutos de carro e ao centro de Ovar acessível em instantes.. . Mais do que uma casa — um estilo de vida.. . Ideal para: quem procura primeira habitação de alto padrão, segunda casa junto à natureza, residência de férias ou investimento de prestígio.. . Bons acessos A29 e A1. Proximidade a serviços, comércio e escolas. Ambiente familiar e consolidado. Fácil ligação às principais vias da região. . Trata-se de uma oportunidade sólida para quem procura segurança patrimonial, qualidade de vida e potencial de valorização, num mercado onde a oferta de moradias independentes é cada vez mais limitada.. Imóvel com características que justificam visita.. Para mais informações ou agendamento, entre em contacto.. .
AMI: 10354
Ref. Externa: JH001/12019
Id: 1593277
Inicie sessão para guardar este imóvel e aceder à sua lista de favoritos em qualquer dispositivo.
4 Quartos
1 WCs
Área bruta : 203 m²
Casa antiga de tipologia T4, com logradouro, anexo e excelente potencial de reabilitação. Dispõe de um amplo sótão com mirantes, que permite a ampliação da área privativa da habitação, acrescentando versatilidade e valorização ao imóvel. Trata-se de um imóvel de traça antiga, em bom estado de conservação, tendo em conta a idade do edifício, preservando elementos característicos que reforçam o seu caráter e autenticidade. Localizada no centro da cidade, numa das ruas mais tradicionais de Ovar, encontra-se enquadrada em zona ARU, permitindo usufruir de benefícios fiscais associados à reabilitação urbana. Este imóvel representa uma excelente oportunidade para quem procura uma casa com identidade, localização privilegiada e elevado potencial de valorização, ideal para transformar no seu próximo lar ou como projeto de investimento. Para mais informações entre em contacto connosco!
AMI: 1725
Ref. Externa: 362-OVR
Id: 1589817
Inicie sessão para guardar este imóvel e aceder à sua lista de favoritos em qualquer dispositivo.
1 Quartos
Área bruta : 181 m²
Oportunidade de investimento para reabilitação total. Imóvel em ruína, implantado em terreno com 400 m², com 126 m² de área de implantação, conforme documentação existente (55 m² de área bruta privativa e 126 m² de área bruta dependente). Localização privilegiada, entre Ovar e Santa Maria da Feira, zona com potencial de valorização. Ideal para projeto de reconstrução ou investimento. Para mais informações, fale comigo. Eu ajudo a decidir.
AMI: 14393
Ref. Externa: 104.1235
Id: 1587236
Inicie sessão para guardar este imóvel e aceder à sua lista de favoritos em qualquer dispositivo.
2 Quartos
1 WCs
Área bruta : 72 m²
Apartamento T2 com ampla varanda - Cova do Frade, Ovar Excelente oportunidade para quem procura conforto, localização e qualidade de vida. Este apartamento T2, situado no 3.º piso de um prédio sem elevador, localiza-se na Cova do Frade, em Ovar, numa zona tranquila e ao mesmo tempo muito bem servida de acessos. A proximidade às principais rodovias A29 e A1 permite deslocações rápidas e cómodas tanto para o Grande Porto como para Aveiro. O apartamento é composto por cozinha e sala em open space, com acesso direto a um amplo terraço virado a poente, garantindo excelente exposição solar. Dispõe ainda de dois quartos, sendo que um deles tem acesso direto ao terraço, uma casa de banho com poliban, um espaço adicional que poderá ser transformado em quarto ou escritório, ideal para trabalho remoto, e um espaço destinado a arrumos na cave, acrescentando funcionalidade ao imóvel. Encontra-se muito próximo do centro de Ovar, onde poderá usufruir de todos os serviços públicos, estação de comboios, comércio tradicional, escolas básicas e secundárias, shopping e toda a restante infraestrutura urbana. Para os amantes do mar, a Praia do Furadouro fica a cerca de 3 km, permitindo desfrutar facilmente de momentos de lazer junto ao oceano. Uma excelente opção para habitação própria ou investimento. Venha conhecer e apaixone-se pelo seu próximo lar!
AMI: 20562
Ref. Externa: UNU.I.1310.20562
Id: 1587226
Inicie sessão para guardar este imóvel e aceder à sua lista de favoritos em qualquer dispositivo.
3 Quartos
2 WCs
Área bruta : 125 m²
Apartamento T3 no centro da cidade de Ovar, com todos os serviços, comércio e lazer na sua envolvência. O imóvel conta com ampla sala com lareira e varanda, uma cozinha de boas proporções com uma boa despensa, três quartos orientados a poente com armários embutidos e servidos por duas casas de banho completas. Possui duas varandas, uma orientada a nascente, com vistas sobre o Mercado Municipal de Ovar e outra orientada a poente com vistas desafogadas. Faz parte do negócio uma fração autónoma destinada a lugar de garagem, na cave do mesmo prédio. Imóvel com uma excelente localização e com boa luminosidade. Interessado? Agende a sua visita.
AMI: 1725
Ref. Externa: 360-OVR
Id: 1580910
Inicie sessão para guardar este imóvel e aceder à sua lista de favoritos em qualquer dispositivo.
3 Quartos
2 WCs
Área bruta : 188 m²
Apresentamos esta elegante moradia T3 para venda em Ovar, onde a modernidade, o conforto e a funcionalidade se unem numa localização tranquila e de fácil acesso. Distribuída por dois pisos e sótão aproveitado, esta moradia destaca-se pelos seus acabamentos de qualidade, áreas bem distribuídas e excelente luminosidade natural. Equipada com ar-condicionado em todas as divisões, oferece conforto durante todo o ano, sendo ideal para famílias que valorizam bem-estar e qualidade de vida. Piso Térreo: -Hall de entrada acolhedor -Sala de estar ampla e luminosa -Cozinha moderna com ilha, totalmente integrada e funcional -WC completo com design contemporâneo -Acesso direto à garagem -Pátio exterior com churrasqueira e banca de apoio, perfeito para momentos de lazer e convívio 1.º Piso: -Dois quartos espaçosos, ambos com closet -WC completo moderno -Terraço privado, ideal para relaxar e desfrutar de momentos ao ar livre -Acesso ao sótão aproveitado, com excelente isolamento e luz natural, ideal para sala adicional, escritório ou quarto extra Destaques do Imóvel: -Arquitetura contemporânea -Acabamentos premium -Ambientes amplos e bem iluminados -Ar-condicionado -Garagem com acesso interior -Pátio com zona de churrasco -Sótão multifuncional com excelente impermeabilização -Localização calma, próxima de comércio, serviços e principais acessos Esta moradia é a escolha perfeita para quem procura um estilo de vida moderno, funcional e confortável, num ambiente familiar e acolhedor. A E60 Real Estate – Mais do que imóveis, realizamos projetos de vida Com mais de 35 anos de experiência, a E60 Real Estate é uma referência no setor imobiliário, reconhecida pela transparência e dedicação. A nossa equipa acompanha cada cliente em todo o processo, garantindo um serviço personalizado, rigoroso e eficiente. Trabalhamos com uma abordagem completa que integra mediação imobiliária, apoio jurídico e consultoria estratégica, atuando em todo o país nos mercados habitacional, comercial e industrial. Realizamos também estudos de mercado para identificar oportunidades e orientar investimentos. Oferecemos serviços complementares como projetos de arquitetura, levantamentos topográficos, registos BUPI, tratamento de documentação, marcação de escrituras e apoio jurídico. Assentamos o nosso trabalho em integridade, confiança e resultados. Escolher a E60 Real Estate é optar por uma experiência imobiliária segura, simples e profissional, em qualquer ponto do país.
AMI: 23515
Ref. Externa: 18260010E
Id: 1580732
Inicie sessão para guardar este imóvel e aceder à sua lista de favoritos em qualquer dispositivo.
3 Quartos
2 WCs
Área bruta : 128 m²
Moradia Duplex T3 em Ovar - Conforto, Localização e Qualidade de Vida Apresentamos esta excelente moradia duplex T3, com 128 m² de área bruta, situada numa zona tranquila e residencial, a apenas 1,5 km do centro de Ovar e 5 km da Praia do Furadouro, ideal para quem procura viver com conforto perto de todas as comodidades. A localização beneficia de fácil acesso às principais rodovias A1 e A29, permitindo chegar rapidamente ao Grande Porto ou a Aveiro, o que torna esta moradia uma excelente opção tanto para habitação própria como para investimento. Nas proximidades encontra piscina municipal, escolas (primária, básica e secundária), parque infantil, padarias e diversos serviços, proporcionando uma vivência prática e familiar. No rés do chão, a moradia dispõe de uma agradável sala e cozinha em open space, criando um ambiente moderno e funcional, uma casa de banho com chuveiro e acesso a um espaço exterior com churrasqueira, ideal para momentos de convívio. Conta ainda com zona de lavandaria/arrumos, prática e funcional. No primeiro andar, encontram-se três quartos, um closet e uma casa de banho completa com chuveiro, garantindo conforto e privacidade para toda a família. A moradia está equipada com caixilharia com vidro duplo, ar condicionado e sistema de alarme, assegurando conforto térmico, eficiência energética e segurança. Uma excelente oportunidade para quem valoriza qualidade de vida, localização estratégica e proximidade ao centro da cidade e à praia. Procura uma moradia T3 com uma excelente localização? Agende já a sua visita!
AMI: 20562
Ref. Externa: UNU.I.1309.20562
Id: 1580251
Inicie sessão para guardar este imóvel e aceder à sua lista de favoritos em qualquer dispositivo.
2 Quartos
3 WCs
Área bruta : 198 m²
Apartamento T2+2 Duplex Totalmente Renovado a 200 m da Praia do Furadouro Apresentamos este fantástico apartamento T2+2 duplex, totalmente renovado, localizado no Furadouro, a apenas 200 metros do areal da praia. Inserido no 3º andar de um edifício sem elevador, este imóvel destaca-se pela qualidade da renovação, conforto e localização privilegiada, sendo ideal para habitação permanente, casa de férias ou investimento. A nível de acessibilidades, encontra-se a 2,5 km da Ria de Aveiro, a 5 km do centro de Ovar e muito próximo das principais vias rodoviárias (A29 e A1), permitindo deslocações rápidas e cómodas para Aveiro e para o Grande Porto. O apartamento desenvolve-se em dois pisos: 1.º piso: - Uma sala comum com varanda, em conceito open space com a cozinha; - Uma cozinha totalmente mobilada e equipada; - Uma casa de banho completa com banheira; - Um quarto com armário embutido e varanda fechada; - Uma suíte com armário embutido e casa de banho privativa com poliban. 2.º piso: - Um amplo salão com zona de lavandaria e arrumos; - Uma casa de banho completa com poliban; - Dois quartos com armários embutidos e janelas Velux, que garantem excelente luminosidade natural. O imóvel conta ainda com lugar de garagem e está equipado com ar condicionado em todas as divisões, janelas duplas com caixilharia com vidros duplos, um termoacumulador e toalheiros elétricos nas casas de banho, assegurando conforto térmico e eficiência durante todo o ano. Na zona envolvente dispõe de uma ampla oferta de comércio e serviços, como minimercados, restaurantes, padarias, infantário, escola primária, centro de saúde, farmácia e lota do peixe. No centro de Ovar encontra ainda todos os serviços públicos, a estação de comboios, todo o tipo de comércio tradicional, escolas básicas e secundárias, um shopping e toda a restante infraestrutura urbana. Uma excelente oportunidade para quem procura um imóvel moderno, funcional e próximo do mar, com ótimos acessos e todas as comodidades do dia a dia. Venha conhecer e apaixone-se pelo seu próximo lar no Furadouro.
AMI: 20562
Ref. Externa: UNU.I.1308.20562
Id: 1580240
Inicie sessão para guardar este imóvel e aceder à sua lista de favoritos em qualquer dispositivo.
3 Quartos
Área bruta : 247 m²
Moradia isolada inserida em lote com 1389m2, a apenas 10 mn do centro da cidade. Oportunidade de investimento. Moradia em zona nobre e de beleza natural inquestionável. Para quem idealiza ter uma casa de sonho, esta poderá ser a solução ideal. A moradia situa-se a apenas 10 min do centro, com excelentes acessos. Localizada entre a Ria de Aveiro e o Mar, rodeada de excelentes praias com extensos areais, nomeadamente a Torreira e próxima do centro, onde se encontram todos os serviços de utilidade. A zona envolvente destaca-se pela sua beleza e acessos a praias praticamente virgens, pela calma e tranquilidade que é viver nesta zona e pela proximidade a todos os serviços. Viver aqui, é viver uma sensação única, como se estivesse de férias todo o ano. Necessita de obras de restauro. A exposição solar é excelente, uma vez que é uma moradia isolada e encontra-se rodeada de moradias onde se respeitaram as alturas e distanciamentos, permitindo assim que cada casa obtenha o maior partido da luz solar. A área de logradouro permite piscina na lateral, ou na frente da casa junto à área de lazer. Não perca a oportunidade de ter uma casa de sonho. Melhore-a e torne-a a sua casa. Excelente investimento e excelente relação preço/localização. Para mais informações não hesite em contactar. Fale comigo. Com mais de 20 anos no mercado imobiliário, a nossa equipa estará disponível para prestar um serviço completo em todas as fases do processo de compra ou venda de um imóvel, bem como em todos os serviços adjacentes. Consulte-nos para o ajudarmos e aconselharmos na tomada de decisão de compra, venda ou arrendamento do seu imóvel. Confie na experiência de largos anos no setor imobiliário. Porque mais do que imóveis lidamos com pessoas.
AMI: 12821
Ref. Externa: 1160315/26 OV
Id: 1579525
Inicie sessão para guardar este imóvel e aceder à sua lista de favoritos em qualquer dispositivo.
4 Quartos
3 WCs
Área útil : 160 m²
Esta moradia em banda T4, construída em 2020, combina um design moderno com uma excelente distribuição interior, ideal tanto para residência permanente como para famílias que valorizam conforto e qualidade de vida. R/C — Espaços de Convívio e Funcionalidade Sala de estar e jantar integradas, de ambiente amplo e luminoso — perfeito para momentos em família. Cozinha equipada com ligação prática à lavandaria e despensa, maximizando organização. Quarto no rés‑do‑chão — excelente para visitas ou para quem procura conforto sem escadas. Casa de banho completa no piso. Espaço exterior frontal e traseiro com pátio social coberto por alpendre — ideal para churrascos, descanso ou lazer ao ar livre. Garagem fechada para 1 carro com acesso direto à área exterior. 1º Piso — Conforto Privado Suite principal com amplo closet e varanda privada, oferecendo um refúgio confortável. 3 quartos no total, sendo que os outros 2 partilham uma casa de banho completa, com um desses quartos a dispor ainda de pequeno closet próprio. 2 varandas (frente e traseira) que regulam luz natural e visão exterior, criando ambientes tranquilos. ? Características Adicionais e Eficiência Painéis solares para maior eficiência energética. Vidros duplos que asseguram isolamento térmico e acústico. Aspiração central e salamandra de pellets, oferecendo conforto térmico durante todo o ano. ? Localização Privilegiada — Vida Junto ao Mar e Serviços Esta moradia encontra‑se na zona residencial do Furadouro, uma das áreas mais procuradas do concelho de Ovar, conhecida pela sua proximidade ao mar e qualidade de vida costeira. ? Praia do Furadouro:A extensa e belíssima praia urbana com Bandeira Azul, com areal convidativo e serviços de apoio (restaurantes, cafés, duches, guarda‑sóis, estacionamento e zonas de lazer), encontra‑se a uma curta distância do imóvel — ideal para passeios, surf, bodyboard ou simplesmente contemplar o pôr do sol junto ao mar. ? Acessos e Mobilidade: Bons acessos às principais vias rodoviárias (incluindo ligações rápidas a Norte e Sul). Estação de comboios de Ovar nas proximidades, facilitando deslocações regionais. Aeroporto Francisco Sá Carneiro (Porto) acessível por autoestrada. ? Serviços e Conveniências: Escolas e comércio local (supermercados, cafés, serviços de saúde e lazer) a curta distância. Zona familiar e tranquila, com ambiente seguro e acolhedor para crianças e adultos. ✨ Porquê escolher esta moradia?Esta propriedade é ideal para famílias ou para quem procura uma residência com conforto, estilo e proximidade à natureza e à praia, sem comprometer o acesso a serviços e comodidades. A combinação de espaços interiores versáteis, áreas exteriores privadas e características eficientes tornam este imóvel uma oportunidade única no mercado imobiliário do Furadouro. ;ID RE/MAX: 120931529-7
AMI: 7772
Ref. Externa: 120931529-7
Id: 1577451
Inicie sessão para guardar este imóvel e aceder à sua lista de favoritos em qualquer dispositivo.
2 Quartos
1 WCs
Área bruta : 100 m²
Apartamento T2 renovado no Centro de Ovar Excelente oportunidade de adquirir um apartamento totalmente renovado, localizado no coração de Ovar, com todas as facilidades à porta. O imóvel destaca-se pela renovação recente, apresentando acabamentos modernos, um ambiente acolhedor e uma ótima organização dos espaços. Conta com uma sala ampla e muito luminosa, ideal para momentos de convívio, e cozinha totalmente equipada, prática e funcional. Dispõe de dois quartos de boas dimensões, ambos com roupeiros embutidos, garantindo conforto e arrumação, bem como uma casa de banho completa. O apartamento beneficia ainda de excelente luminosidade natural ao longo do dia. Como mais-valias, inclui um agradável terraço, perfeito para lazer ao ar livre, e lugar de garagem, uma grande vantagem numa localização tão central. Uma opção ideal para habitação própria ou investimento, combinando localização privilegiada, modernidade e conforto.
AMI: 19461
Ref. Externa: RF306
Id: 1577350
Inicie sessão para guardar este imóvel e aceder à sua lista de favoritos em qualquer dispositivo.
3 Quartos
1 WCs
Área bruta : 143 m²
Moradia T3 Térrea e Isolada em Ovar Apresentamos esta Moradia Térrea Isolada em São João de Ovar A casa conta com uma sala de estar luminosa, dispõe ainda de três quartos, casa de banho e uma cozinha de estilo tradicional, que oferece um ótimo potencial para ser renovada e transformada num espaço mais moderno e acolhedor. No exterior, encontramos anexos versáteis, que podem servir como arrumos, lavandaria ou ser adaptados a outras necessidades. A propriedade inclui também garagem, garantindo maior comodidade no dia a dia. Um dos pontos altos é o amplo logradouro/terreno, um espaço exterior generoso, ideal para quem aprecia atividades ao ar livre, jardinagem ou simplesmente desfrutar da tranquilidade da zona. A excelente exposição solar assegura luminosidade natural ao longo de todo o dia. A localização é outro grande destaque. A moradia encontra-se perto de todo o tipo de comércio e serviços, como supermercados, cafés, escolas, farmácias e transportes, oferecendo o equilíbrio perfeito entre conveniência e serenidade. O acesso rápido às principais vias permite deslocações fáceis para outras áreas de Ovar e concelhos vizinhos. Uma excelente oportunidade para quem procura uma moradia térrea, bem situada e com grande potencial — seja para residência própria, investimento ou um projeto de remodelação.
AMI: 19461
Ref. Externa: RF301
Id: 1577346
Inicie sessão para guardar este imóvel e aceder à sua lista de favoritos em qualquer dispositivo.
3 Quartos
2 WCs
Área bruta : 128 m²
Moradia T3 Renovada com terraço em Ovar – Qualidade, Conforto e Estilo em Ovar! Apresentamos esta moradia T3 em banda, totalmente renovada com excelente gosto e materiais de qualidade, pensada para proporcionar conforto, funcionalidade e uma atmosfera moderna e acolhedora. Características: Distribuída por dois pisos, esta moradia combina elegância com praticidade: ➡ 1º Piso: •Sala ampla com acesso direto ao terraço virado a poente, perfeita para momentos de lazer e convívio. •Cozinha moderna, com muita arrumação, equipada com placa, forno, exaustor e máquina de lavar loiça, e complementada por uma salamandra a pellets, que confere um toque de conforto e eficiência energética. •Casa de banho de serviço, prática e funcional. ➡ 2º Piso: •Três quartos luminosos, todos com roupeiros embutidos, garantindo organização e conforto. •Casa de banho completa com janela, oferecendo ventilação natural e um ambiente agradável. ➡ Zona Exterior: •Lavandaria independente e espaçosa, ideal para manter a casa organizada. •Pequeno logradouro à frente da moradia, que adiciona charme e funcionalidade ao espaço exterior. Localização Privilegiada – Viver na Habitovar: Situada numa zona residencial consolidada em Ovar, a Habitovar oferece tranquilidade, segurança e a conveniência de ter comércio, serviços e escolas por perto. Uma excelente oportunidade para quem procura uma casa moderna, confortável e pronta a habitar, onde o único trabalho será decorá-la ao seu gosto.~ Não perca esta oportunidade! Contacte-nos hoje e venha conhecer a sua nova casa em Ovar.
AMI: 19461
Ref. Externa: RF296
Id: 1577347
Inicie sessão para guardar este imóvel e aceder à sua lista de favoritos em qualquer dispositivo.
3 Quartos
2 WCs
Área bruta : 213 m²
Apresentamos, em pleno Centro de Ovar, uma maravilhosa Moradia T3 renovada com acabamentos de alta qualidade. Dispondo de orientação solar Nascente/Poente, zona exterior com churrasqueira, um terraço e duas entradas distintas incluindo garagem coberta, esta Moradia posiciona-se como a opção ideal para famílias que valorizem bem-estar e qualidade de vida. Rés-do-chão: • Hall de Entrada c/ projeção para a zona social; • Sala com abundante luz natural; • Cozinha totalmente equipada e mobilada, c/ ligação direta ao exterior; • Casa de Banho completa; • Arrumos; 1º Andar: • Hall de ligação aos Quartos; • 2 Quartos ambos com walk-in closet, sendo que um deles dispõe ainda de acesso a um ótimo terraço orientado a Poente; • Terraço orientado a Poente; • Casas de Banho completa; Aproveitamento de Sótão: • Espaço com área magnífica e exposição direta a luz Solar, ideal para aproveitar como Escritório ou até como um Quarto adicional; Exterior: • Churrasqueira; • Bancada com ponto de água e móveis de apoio; • Zona de lavandaria; • Garagem coberta; Acabamentos: • Ar-condicionado em todas as divisões; • Caixilharia em alumínio c/ corte térmico e vidro duplo; • Pavimento vinílico Hydrocork; • Esquentador a gás natural; • Churrasqueira; Renovada em 2020, esta Propriedade representa uma excelente oportunidade para quem procura viver num ambiente moderno e sofisticado, usufruindo de todo o conforto e praticidade, bem como de uma localização central e próxima a todos os bens e serviços. Ovar Ovar é uma cidade que alia tranquilidade, qualidade de vida e uma localização estratégica entre o mar e a natureza. Com uma envolvência rica em espaços verdes, praias deslumbrantes e uma vibrante vida cultural, Ovar oferece o equilíbrio perfeito entre serenidade e comodidade urbana. Esta é a oportunidade ideal para investir num imóvel numa zona com forte valorização, bem servida de acessos, comércio local, escolas e serviços. Fale comigo, Eu ajudo a decidir!
AMI: 14393
Ref. Externa: 102.1267
Id: 1575672
Inicie sessão para guardar este imóvel e aceder à sua lista de favoritos em qualquer dispositivo.
4 Quartos
2 WCs
Área bruta : 200 m²
Moradia térrea isolada T3+1, atualmente em fase de construção, localizada em Arada, a apenas 2 minutos do centro de Santa Maria da Feira.. . Este imóvel distingue-se pelas suas áreas generosas, ambientes acolhedores e excelente iluminação natural, fruto da sua exposição solar nascente/poente.. . O imovél é composto por:. Hall de entrada com ligação direta à zona social. Sala e cozinha em open space, criando um ambiente moderno e funcional. Despensa/arrumos. 2 casas de banho completas. Escritório (espaço adicional que pode ser adaptado às suas necessidades). 1 suíte com closet. 2 quartos com roupeiros embutidos. . Exterior:. Garagem fechada com capacidade para duas viaturas. Espaço exterior versátil, ideal para criação de: Jardim, Zona de lazer e Churrasqueira. . Acabamentos e Infraestruturas:. Painéis solares com termo sifão de 300L para aquecimento de águas sanitárias. Pré-instalação de ar condicionado. Sistema de ventilação mecânica controlada (VMV). Pré-instalação para sistema de alarme e videovigilância. Caixilharia em alumínio termolacado com vidro duplo. Estores elétricos em alumínio lacado. Pavimentos em soalho flutuante vinílico (cerâmico ou vinílico nos WC’s). . Neste momento, o imóvel ainda permite a personalização de alguns acabamentos, oferecendo-lhe a oportunidade de criar o lar com que sempre sonhou.. . Conclusão da obra prevista para o final de 2026/início de 2027.. . Características e detalhes:. Área Útil: 145 m2. Área Terreno: a partir de 704m2. Ano: Conclusão 2026/2027. CE: A. Exposição Solar: Nascente/Poente. Valor: 450000€. . Não perca esta oportunidade! Partilhas com bons parceiros são sempre bem vindas.. . Crédito Habitação: Transformando Sonhos em Lares.. Além de oferecer as melhores opções de imóveis, estamos aqui para tornar o seu processo de compra ainda mais tranquilo. . Como intermediários de Crédito à Habitação autorizados pelo Banco de Portugal, estamos capacitados para auxiliá-lo em todas as etapas do processo de aquisição.. Deixe-nos simplificar todo o caminho até a conquista do seu novo lar.. . Registo no Banco de Portugal: 0007581. Villa Unique Real Estate. Fernanda Daniele. Sua Consultoria Imobiliária de Confiança. www.villaunique.pt. Licença AMI: 20749
AMI: 20749
Ref. Externa: VU0003920/12430
Id: 1573567
Inicie sessão para guardar este imóvel e aceder à sua lista de favoritos em qualquer dispositivo.
2 Quartos
1 WCs
Área bruta : 70 m²
Descubra esta acolhedora moradia T2, atualmente em fase de renovação, situada em Ovar ideal para quem procura conforto, funcionalidade e um agradável espaço exterior para disfrutar do dia a dia. A renovação do imóvel foi pensada para criar um ambiente moderno e harmonioso. A moradia contará com dois quartos, sala, cozinha e casa de banho. No espaço exterior terá ainda com um pequeno anexo. Localizada numa zona tranquila, com fáceis acessos e próxima de todos os serviços, representa uma excelente oportunidade para habitação própria ou até mesmo investimento. Entre em contato para mais informações sobre o estado da obra ou para agendar visita! A Equipa Mudda Castelo, trabalha com toda a paixão, para prestar o melhor serviço a todos os clientes. A Mudda, preza o trabalho em equipa, partilha e estamos em constante evolução. Para nós, é importante o contato e o cuidado com os clientes. Privamos um acompanhamento exclusivo, onde apresentamos várias soluções. Contacte-nos para mais informações ou para agendar uma visita. Mais do que Vender Casas, MUDDAmos Vidas!
AMI: 21110
Ref. Externa: MUDDA.1573.21110
Id: 1571500
Inicie sessão para guardar este imóvel e aceder à sua lista de favoritos em qualquer dispositivo.
2 Quartos
1 WCs
Área bruta : 87 m²
Apartamento T2 na Praia do Furadouro Excelente apartamento T2 localizado no 3.º andar de um edifício agradável, a poucos minutos da praia do Furadouro. Com fácil acesso às principais vias rápidas (A29 e A1), encontra-se a apenas 35 km do Aeroporto Sá Carneiro (Porto) e a 35 km do centro de Aveiro, garantindo uma localização prática tanto para residência permanente como para investimento. O imóvel beneficia de excelente orientação solar (norte/sul), com duas frentes que proporcionam abundante luz natural ao longo do dia. É composto por: Hall de entrada Sala comum ampla com lareira Cozinha funcional e totalmente equipada Lavandaria Casa de banho completa Dois quartos com piso em madeira Dispõe ainda de lugar de garagem de fácil acesso na cave do edifício. Na zona envolvente encontra: Praia Áreas verdes Campo de jogos Ciclovia Infantários e escola primária Centro de saúde e farmácia Comércio e serviços variados ✨ Procura um apartamento junto à praia, com conforto e excelente localização? Esta é a oportunidade ideal para si. Agende já a sua visita!
AMI: 12989
Ref. Externa: MUDDA.3575.12989
Id: 1571490
Inicie sessão para guardar este imóvel e aceder à sua lista de favoritos em qualquer dispositivo.
3 Quartos
1 WCs
Área bruta : 121 m²
Apresentamos esta moradia térrea acolhedora, ideal para quem procura conforto, funcionalidade e uma localização verdadeiramente privilegiada no coração de Ovar. Situada em plena Avenida da Régua, uma das zonas mais nobres da cidade, esta propriedade oferece uma excelente qualidade de vida, aliando tranquilidade e centralidade. O imóvel é composto por três quartos, uma sala aconchegante com lareira, ideal para momentos em família, uma cozinha funcional e uma casa de banho completa. Inserida num generoso terreno com 1.000 m², esta moradia destaca-se pelo amplo espaço exterior, perfeito para lazer, jardim, convívio ou simplesmente para quem valoriza privacidade e contacto com o ar livre. Dispõe ainda de garagem fechada e de arrumos no exterior, que acrescentam praticidade ao dia a dia. Trata-se de uma excelente opção para quem deseja viver de forma descomplicada, numa moradia térrea, com muito espaço exterior e numa das melhores localizações da cidade. Para mais informações ou marcação de visita, entre em contacto comigo.
AMI: 14393
Ref. Externa: 107.1255
Id: 1571429
Inicie sessão para guardar este imóvel e aceder à sua lista de favoritos em qualquer dispositivo.
2 Quartos
1 WCs
Área bruta : 87 m²
Apresentamos um funcional Apartamento T2 com duas frentes, situado no Furadouro a escassos 2 minutos da praia. Usufruindo de excelente luminosidade e beneficiando de uma localização central, este imóvel combina conforto, tranquilidade e conveniência, sendo ideal para refúgio de férias ou para famílias que valorizem bem-estar e qualidade de vida. Este Apartamento está posicionado no 3º piso de prédio sem elevador, sendo composto por: • Entrada com projeção ampla para a zona social e armário embutido; • Cozinha totalmente equipada; • Varanda/Marquise; • Sala com lareira e abundante luz natural; • Hall de acesso aos Quartos; • Dois Quartos, sendo que um tem acesso direto à varanda; • Casa de Banho completa; • Lugar de Garagem; Acabamentos: • Caixilharia em alumínio com corte térmico e vidro duplo; • Lareira; Furadouro A zona do Furadouro combina o melhor da tranquilidade natural com uma infraestrutura urbana completa, tornando-a um local ideal para viver. A poucos passos dos apartamentos, encontrará uma variedade de restaurantes, cafés, bares e lojas, oferecendo tudo o que precisa para o seu dia a dia. Desfrute da gastronomia local, passeie pela charmosa avenida à beira-mar e experimente atividades aquáticas emocionantes. Com diversas ciclovias e a proximidade de Ovar e da Ria de Aveiro, o Furadouro é perfeito para quem procura um estilo de vida ativo e pretende estar em contato direto com a natureza, tudo em um ambiente vibrante e acolhedor. Fale comigo, Eu ajudo a resolver!
AMI: 14393
Ref. Externa: 102.1262
Id: 1571405
Inicie sessão para guardar este imóvel e aceder à sua lista de favoritos em qualquer dispositivo.
Estes agentes são especialistas nesta zona:
Inicie sessão para ocultar este imóvel das suas pesquisas e manter a sua lista de resultados organizada.
Guardar favoritos
Este imóvel foi guardados nos seus favoritos com sucesso.
Para poder guardar pesquisa deverá ter a sua sessão iniciada.
Caso não tenha uma conta, deverá criar uma.
A sua pesquisa foi guardada com sucesso!
© Copyright 2023 | CASACERTA. All rights reserved
Este site utiliza cookies. Ao navegar no site estará a consentir a sua utilização.
Para mais informações sobre os cookies pode consultar a
política de privacidade.