Lista
Comprar
Arrendar
500.000 €
3 Quartos
2 WCs
Área bruta : 190 m²
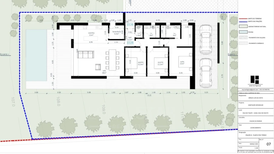
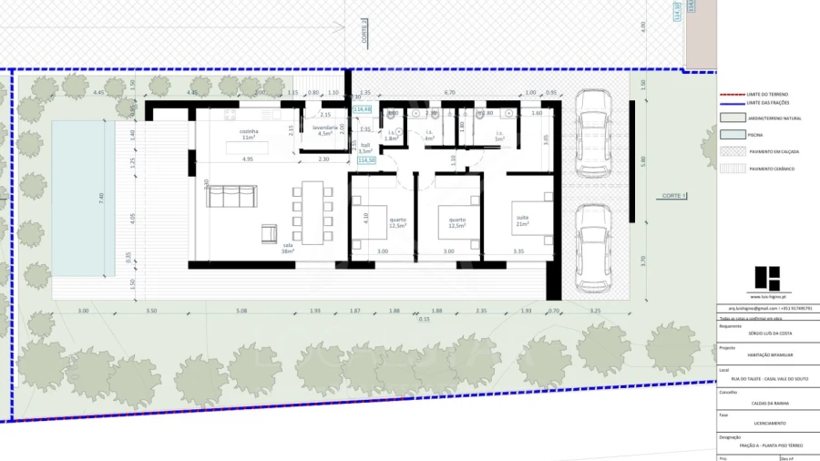
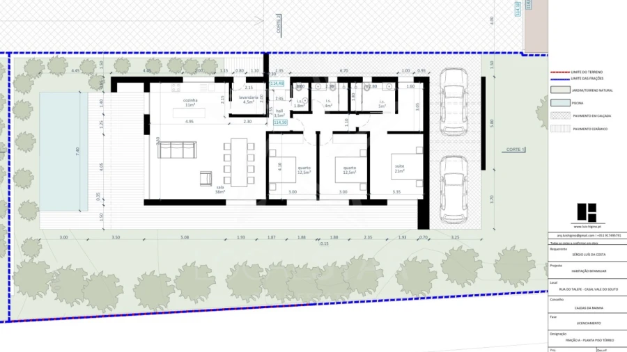
Moradia T3, térrea com Jardim, Garagem e Piscina Inserida num condomínio de 3 moradias independentes. Moderna moradia térrea com uma sala e cozinha em harmonia com bastante luz natural, cozinha equipada com eletrodomésticos, vista sobre a piscina, pode disfrutar de 56M2 de convívio com a família, amigos, instalação de ar condicionado em todas as divisões para ajudar a climatizar todo o ambiente, seja verão ou inverno. Tem ainda uma instalação sanitária de serviço. Dispõe de 3 generosos quartos com roupeiros embutidos, usufrui de uma casa de banho de apoio a dois dos quartos, sendo o terceiro uma suite com as instalações sanitárias completas. A garagem têm acesso direto para a cozinha com uns generosos 30M2, para uma viatura e alguns arrumos, bicicleta, mota, o que for de encontro a sua necessidade. Acabamentos e informações importantes a reter desta moradia: - As carpintarias interiores serão todas em madeira. - As caixilharias serão em alumínio, de abrir ou correr, com vidro duplo e estores automatizados. - O piso será em mosaico ou flutuante. - Instalação de ar condicionado. - Inclui um termossifão de 300L com painéis solares (tanque no telhado com painéis), para todo o sistema de funcionamento do aquecimento das águas. - Intercomunicadores - Portão automático na garagem e na entrada do condomínio. Fração B - Área bruta de construção: 187.45 M2 - Lote: 654 M2- 500.000,00€
AMI: 24609
Ref. Externa: 049B
Id: 1593137
Inicie sessão para guardar este imóvel e aceder à sua lista de favoritos em qualquer dispositivo.
500.000 €
3 Quartos
2 WCs
Área bruta : 190 m²
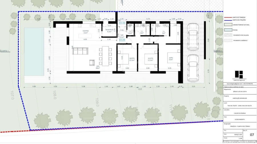
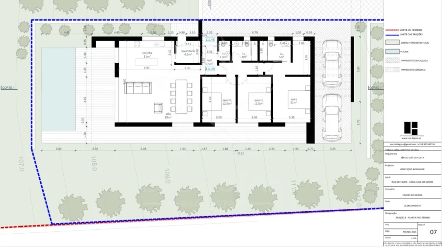
Moradia T3, térrea com Jardim, Garagem e Piscina Inserida num condomínio de 3 moradias independentes. Moderna moradia térrea com uma sala e cozinha em harmonia com bastante luz natural, cozinha equipada com eletrodomésticos, vista sobre a piscina, pode disfrutar de 56M2 de convívio com a família, amigos, instalação de ar condicionado em todas as divisões para ajudar a climatizar todo o ambiente, seja verão ou inverno. Tem ainda uma instalação sanitária de serviço. Dispõe de 3 generosos quartos com roupeiros embutidos, usufrui de uma casa de banho de apoio a dois dos quartos, sendo o terceiro uma suite com as instalações sanitárias completas. A garagem têm acesso direto para a cozinha com uns generosos 30M2, para uma viatura e alguns arrumos, bicicleta, mota, o que for de encontro a sua necessidade. Acabamentos e informações importantes a reter desta moradia: - As carpintarias interiores serão todas em madeira. - As caixilharias serão em alumínio, de abrir ou correr, com vidro duplo e estores automatizados. - O piso será em mosaico ou flutuante. - Instalação de ar condicionado. - Inclui um termossifão de 300L com painéis solares (tanque no telhado com painéis), para todo o sistema de funcionamento do aquecimento das águas. - Intercomunicadores - Portão automático na garagem e na entrada do condomínio. Fração A - Área bruta construção: 190.55 M2 - Lote:764 M2 - 500.000,00€
AMI: 24609
Ref. Externa: 0049A
Id: 1591124
Inicie sessão para guardar este imóvel e aceder à sua lista de favoritos em qualquer dispositivo.
550.000 €
3 Quartos
Área bruta : 347 m²
Moradia térrea em construção, de estilo português tradicional, pensada para quem valoriza conforto, qualidade e uma arquitetura com identidade e carisma. Inserida num generoso lote de terreno com 1.198 m², esta moradia destaca-se pelas suas linhas elegantes e harmoniosas, onde o traço tradicional português se alia a soluções modernas de funcionalidade e bem-estar. O imóvel é composto por 3 suites, todas com casa de banho privativa, proporcionando privacidade e conforto a toda a família. A zona social foi idealizada para criar uma ligação fluida entre os espaços interiores e o exterior, beneficiando de excelente luminosidade natural. Conta ainda com garagem, oferecendo comodidade e segurança, e uma agradável piscina, perfeita para momentos de lazer e convívio, enquadrada num espaço exterior amplo que permite jardins, zonas de descanso e usufruto pleno do terreno. Os acabamentos são de elevada qualidade, cuidadosamente selecionados para garantir durabilidade, conforto e uma estética intemporal, mantendo o charme característico da arquitetura tradicional portuguesa. Localizada numa zona tranquila e residencial, a moradia encontra-se a apenas 6 km da cidade de Caldas da Rainha, com todos os serviços, comércio e acessos, e a 12 km da praia da Foz do Arelho, conhecida pela sua beleza natural e ligação à Lagoa de Óbidos. Uma localização ideal para quem procura tranquilidade sem abdicar da proximidade à cidade e ao mar.
AMI: 23990
Ref. Externa: 66915-TEAM60788
Id: 1589150
Inicie sessão para guardar este imóvel e aceder à sua lista de favoritos em qualquer dispositivo.
120.000 €
3 Quartos
1 WCs
Área bruta : 90 m²
Moradia em Ruínas – Salir de Matos | Caldas da Rainha Moradia em ruínas situada nolugar das Cruzes, freguesia de Salir de Matos, concelho de Caldas da Rainha.Inserida numa zona tranquila, com excelente localização, vistasdesafogadas e bons acessos à cidade de Caldas daRainha, a poucos minutos de carro. Oimóvel dispõe de água da rede pública e eletricidade, o quefacilita qualquer projeto de reconstrução ou reabilitação. Ideal para quemprocura investir, construir a sua moradia de sonho ou desenvolver um projeto deturismo rural, beneficiando da envolvência calma e da proximidade a serviços,comércio e praias da região Oeste. Não se encontra disponível qualquer documento que ateste quepara o presente imóvel foi emitida licença de utilização, que o mesmo estáisento de tal certificação ou foi apresentado qualquer recibo de pagamento dastaxas legalmente devidas, pelo que o imóvel pode não dispor dos títulosurbanísticos necessários para a utilização e/ou construção. ;ID RE/MAX: 124311042-162
AMI: 7772
Ref. Externa: 124311042-162
Id: 1587125
Inicie sessão para guardar este imóvel e aceder à sua lista de favoritos em qualquer dispositivo.
500.000 €
3 Quartos
3 WCs
Área bruta : 187 m²
Moradia T3 em construção - Salir de Matos Apresentamos esta excelente moradia T3, localizada na tranquila freguesia de Salir de Matos, atualmente em fase de construção, com obra prevista para conclusão ainda este ano, o que permite ao futuro proprietário escolher alguns acabamentos ao seu gosto. A moradia é composta por três quartos, sendo um deles suite, todos com roupeiros embutidos, no hall de entrada encontra ainda um roupeiro adicional, pensado para maximizar a arrumação e funcionalidade do espaço. A cozinha e a sala em conceito open space criam um ambiente moderno, amplo e muito luminoso, ideal para o dia a dia em família ou para receber amigos. A garagem, com 28 m² com acesso direto á casa, dispõe de portão automatizado, oferecendo conforto e segurança. Ao nível dos equipamentos e conforto, destaca-se: * Caixilharia em alumínio com vidros duplos * Estores em alumínio automatizados * Ar condicionado * Termossifão de 300 litros * Painel solar para aquecimento de águas A construção foi pensada ao detalhe, com rigor técnico e materiais de elevada qualidade, refletindo um padrão de construção de referência. Inserida numa envolvente de natureza e tranquilidade, esta moradia permite desfrutar de um ambiente extremamente calmo, sem abdicar da proximidade a pontos de interesse, encontra-se a curta distância da cidade das Caldas da Rainha e de praias emblemáticas da Costa Oeste, como: * São Martinho do Porto, com a sua baía em forma de concha e extenso areal acompanhado por um passadiço de 3 km * Foz do Arelho, com a sua lagoa de beleza ímpar * Nazaré, referência mundial do surf Venha visitar e sinta o conforto, a qualidade e a localização única deste imóvel.
AMI: 8148
Ref. Externa: S4U132-V110
Id: 1580666
Inicie sessão para guardar este imóvel e aceder à sua lista de favoritos em qualquer dispositivo.
500.000 €
3 Quartos
3 WCs
Área bruta : 187 m²
Moradia T3 com Piscina com piscina em Cabreiros - Em Construção, Conforto e Elegância! Apresentamos uma magnífica moradia térrea T3 localizada em Cabreiros, inserida no Condomínio do Sobreirinho. Com uma arquitetura moderna e bem distribuída, esta casa foi projetada para oferecer máximo conforto, funcionalidade e qualidade de vida à sua família. Características principais: Área bruta de construção: 187,45 m² Espaço exterior: 71,45 m², incluindo piscina privativa Terreno de 562 m² Interior: Sala ampla de 41,40 m², perfeita para convívio Cozinha moderna de 14,10 m², integrada na zona social Suíte de 16,00 m² com casa de banho privativa de 5,30 m² Dois quartos de 13,50 m² cada, ideais para família ou escritório Casa de banho completa de apoio (3,50 m²) Instalação sanitária social (1,85 m²) Garagem privativa de 27,75 m² com acesso direto à habitação Exterior: Espaço ao ar livre de 71,45 m² com piscina privativa para desfrutar nos dias de sol Áreas de lazer e relaxamento ao ar livre Previsão de conclusão: Final de 2026. Esta moradia combina elegância, espaço e conforto, ideal para quem busca uma residência com identidade e qualidade de construção superior. Venha viver num espaço pensado para o seu bem-estar a apenas 10 minutos de Caldas da Rainha e a 20 minutos das belas praias do Oeste! Para mais informações ou agendamento de visita não hesite em contactar.
AMI: 10595
Ref. Externa: CAS_1228
Id: 1579954
Inicie sessão para guardar este imóvel e aceder à sua lista de favoritos em qualquer dispositivo.
500.000 €
3 Quartos
3 WCs
Área bruta : 190 m²
Moradia T3 com Piscina com piscina em Cabreiros - Em Construção, Conforto e Elegância! Apresentamos uma magnífica moradia térrea T3 localizada em Cabreiros, inserida no Condomínio do Sobreirinho. Com uma arquitetura moderna e bem distribuída, esta casa foi projetada para oferecer máximo conforto, funcionalidade e qualidade de vida à sua família. Características principais: Área bruta de construção: 190,55 m² Espaço exterior: 89,60 m², incluindo piscina privativa Terreno de 764 m² Interior: Sala ampla de 41,40 m², perfeita para convívio Cozinha moderna de 14,50 m², integrada na zona social Suíte de 16,00 m² com casa de banho privativa de 5,30 m² Dois quartos de 13,50 m² cada, ideais para família ou escritório Casa de banho completa de apoio (3,50 m²) Instalação sanitária social (1,90 m²) Garagem privativa de 30,10 m² com acesso direto à habitação Exterior: Espaço ao ar livre de 89,60 m² com piscina privativa para desfrutar nos dias de sol Áreas de lazer e relaxamento ao ar livre Previsão de conclusão: Final de 2026. Esta moradia combina elegância, espaço e conforto, ideal para quem busca uma residência com identidade e qualidade de construção superior. Venha viver num espaço pensado para o seu bem-estar a apenas 10 minutos de Caldas da Rainha e a 20 minutos das belas praias do Oeste! Para mais informações ou agendamento de visita não hesite em contactar.
AMI: 10595
Ref. Externa: CAS_1227
Id: 1579953
Inicie sessão para guardar este imóvel e aceder à sua lista de favoritos em qualquer dispositivo.
550.000 €
3 Quartos
3 WCs
Área bruta : 219 m²
Moradia tradicional rústica portuguesa T3,3 suítes, 4 casas de banho, piscina, garagem, espaço exterior espaçoso, zona tranquila, excelente construção. Perto da cidade de Caldas da Rainha. A construção desta habitação, assenta numa casa tradicional, sem prejuízo dos padrões atuais de comodidade. No descanso merecido numa casa com uma traça rustica, mas atual, descobrimos uma joia com características impares. Aleados a uma sublime construção, os acabamentos serão em conformidade com a mesma. Esta moradia é o projeto certo para uma família que goste de viver no campo e que necessite da proximidade á cidade e no que respeita ao interior da habitação , com 3 suites oferecendo privacidade a todos os moradores. A moradia está pensada quer para pessoas jovens quer de mais idade. Aos cerca de 1200 m2 de terreno, implantamos uma moradia com 219 m2, uma piscina virada a sul, com privacidade e tranquilidade. Para os amantes da natureza, e com tendencias e vivencias simples, localizamo-nos numa aldeia, com potencial usufruir de caminhadas no campo, com trilhos para os apaixonados do BTT, e outros desportos. Interior: - Hall de entrada - 3 Suítes - Sala com lareira e Cozinha ( c/ despensa) - 4 casas de banho - garagem Exterior: - Piscina - murado com blocos de pedra natural - Pérgula Extras: - Bomba de Calor - Automatismos portas ( entrada e garagem) - Sistema VMC - Pré instalação ar condicionado - Portas de Sacada e janelas de alumínio termo lacado com sistema de rotura térmica e vidros duplos Zona muito tranquila, com excelente exposição solar. Localizado a escassos 5 minutos da cidade de Caldas da Rainha, Castelo de Óbidos a 10 minutos, praias da Foz do Arelho e de São Martinho do Porto a menos 20 minutos, Nazaré e Peniche a 30 minutos, acesso A8 em 10 minutos, Aeroporto de Lisboa a menos de 1 hora. PARTILHA IMOBILIÁRIA: - Este imóvel está disponível para fazer partilha com imobiliárias titulares de AMI e profissionais, em regime de 50/50. - “Caríssimo colega, traga um comprador, dividimos a comissão!!” Para mais informações ou marcar visita, contate: Rui Pedro Tel: (+351) 919 076 116 [email protected] ROYAL CALDAS IMOBILIÁRIA Ami: 26671
AMI: 26671
Ref. Externa: Mor_11/26
Id: 1577399
Inicie sessão para guardar este imóvel e aceder à sua lista de favoritos em qualquer dispositivo.
445.000 €
3 Quartos
3 WCs
Área bruta : 164 m²
Moradia isolada T3 tradicional, áreas amplas, garagem p/ vários carros e com wc, casa maquinas, piscina, churrasqueira num terraço panorâmico, espaço exterior com 1265 m2, vista panorâmica campestre, encantadora e verdejante. Uma delicia para a vista!! Zona muito tranquila, com excelente exposição solar. Num dialogo que possui tanto de harmonia como de descontraído, os espaços da habitação dividem-se e ao mesmo tempo abraçam-se, de forma a ter a zona social separada da zona privada. Em boa medida, com a relação em que o desenho da casa fica implantada num sublime terreno no qual aproveitam a paisagem em seu redor. Simplicidade e bom gosto, num contexto geral, e um toque de cor, caracterizam esta belíssima moradia, conjugando espaços interiores quer exteriores, no qual assenta uma casa tradicional, sem prejuízo da comodidade apresentada. As características do terreno, serviram de mote para colocar as várias peças do "puzzle" no seu devido lugar, referindo-me á entrada reservada, a um plano de lazer junto a uma linda e protegida piscina, a implantação do imóvel, com a sua deslumbrante vista, espaço em caçada a seguir á moradia, onde as crianças poderão estar á sua vontade, e um terreno agrícola, não muito grande mas que serve para lides agrícolas. Localizada a 6 km de Caldas da Rainha, cidade turística e repleta de historia, a 15 minutos do famoso Castelo de Óbidos com as suas majestosas muralhas, praias tranquilas da Foz do Arelho e São Martinho do Porto a menos 20 minutos. Acesso A8 em 10 minutos onde poderá deslizar até ao aeroporto de Lisboa em 1 hora, e aas praias da Nazaré e Peniche a 30 minutos. NOTA: Esta moradia está em processo de legalização da licença de utilização. Reúne todos os critérios para a sua aprovação - O novo certificado energético terá uma classificação bastante superior devido aos acabamentos utilizados, quer acústicos e térmicos. PARTILHA IMOBILIÁRIA: - Este imóvel está disponível para fazer partilha com imobiliárias titulares de AMI e profissionais, em regime de 50/50. - “Caríssimo colega, traga um comprador, dividimos a comissão!!” Para mais informações ou agendamento de visita, contate: Rui Pedro Tel: (+351) 919 076 116 [email protected] ROYAL CALDAS IMOBILIÁRIA Ami: 26671
AMI: 26671
Ref. Externa: Mor_10/26
Id: 1577400
Inicie sessão para guardar este imóvel e aceder à sua lista de favoritos em qualquer dispositivo.
500.000 €
3 Quartos
3 WCs
Área bruta : 190 m²
Moradia Moderna T3 em Construção - Conclusão Prevista para 2026 | Salir de Matos Apresentamos esta elegante moradia em construção, com conclusão prevista ainda em 2026, inserida num generoso lote de cerca de 882 m², localizada na tranquila e bem servida freguesia de Salir de Matos. Com uma área bruta de construção de 190 m², esta moradia foi pensada para oferecer conforto, funcionalidade e eficiência energética. A aquisição nesta fase da obra permite ainda a escolha de alguns acabamentos interiores, possibilitando personalizar a casa ao seu gosto. A habitação dispõe de 3 quartos com roupeiros embutidos, sendo um deles suíte com casa de banho privativa, e ainda duas casas de banho sociais, a sala e cozinha em open space proporcionam um ambiente amplo e luminoso, ideal para o convívio familiar.A cozinha será entregue totalmente equipada com placa vitrocerâmica, exaustor e forno. As louças sanitárias suspensas, a iluminação LED com projetores embutidos no teto e os acabamentos modernos reforçam o caráter contemporâneo do imóvel. No exterior, a moradia conta com garagem com portão automatizado, piscina, zona ajardinada e excelente exposição solar a sul, garantindo luz natural ao longo de todo o dia. Características e Conforto: * Termossifão de 300 litros com painel solar * Caixilharia em alumínio com vidros duplos * Estores em alumínio automatizados * Pré-instalação de ar condicionado * Sistema de vídeo porteiro * Classe energética A+ Localização: Salir de Matos é uma freguesia com ótimas acessibilidades e serviços, dispondo de supermercados, cafés, restaurantes, posto de combustível, farmácia e escola. Situa-se a: * 8 km da cidade de Caldas da Rainha * 15 km da vila histórica de Óbidos * 17 km da Foz do Arelho e Lagoa de Óbidos * 100 km do Aeroporto de Lisboa Uma excelente oportunidade para quem procura uma moradia moderna, eficiente e bem localizada, com a vantagem de poder personalizar alguns acabamentos interiores ainda em fase de construção.
AMI: 8148
Ref. Externa: S4U132-V109
Id: 1575974
Inicie sessão para guardar este imóvel e aceder à sua lista de favoritos em qualquer dispositivo.
550.000 €
3 Quartos
4 WCs
Área bruta : 219 m²
Implantada num terreno generoso com cerca de 1.200 m², numa zona residencial de prestígio a poucos minutos de Caldas da Rainha, esta propriedade oferece o equilíbrio perfeito entre privacidade, conforto e sofisticação, em plena harmonia com a natureza envolvente. Com 219 m² de área bruta e pérgula de 44.4m2, a moradia T3 desenvolve-se num único piso, privilegiando uma vivência fluida, elegante e sem barreiras. As linhas arquitetónicas unem o charme da tradição à sobriedade do design contemporâneo, criando espaços amplos e luminosos, onde o interior se prolonga naturalmente para o exterior. A excelente orientação solar a sul banha a casa de luz ao longo de todo o dia, tornando cada divisão acolhedora e valorizando a zona da piscina como o verdadeiro coração do lar. Um interior onde o conforto é elevado a arte. Cada espaço foi pensado para proporcionar uma experiência de habitação distinta: Três suítes generosas, verdadeiros refúgios de descanso, todas com roupeiros embutidos, quatro casas de banho com acabamentos elegantes e linhas modernas, cozinha contemporânea com península, ideal para momentos de convívio e partilha Garagem integrada, garantindo comodidade e discrição. Projeto arquitetónico atual com possibilidade de personalização total dos acabamentos, permitindo criar uma casa à sua imagem. Construção nova com materiais premium e soluções de elevada eficiência energética. Um exterior que convida a viver devagar. O espaço exterior foi desenhado como um verdadeiro oásis privado. A piscina, com 3,5 m x 9 m, integra-se de forma harmoniosa no jardim, criando o cenário perfeito para dias longos de verão, momentos de lazer em família ou encontros ao final da tarde. As amplas áreas ajardinadas e zonas de descanso oferecem privacidade absoluta e uma ligação constante à natureza. Características principais Moradia independente 219 m² de área bruta | 170 m² de área útil Tipologia T3 casas de banho Terraço e varanda Garagem incluída no preço Roupeiros embutidos e arrecadação Orientação solar: Norte, Sul, Este e Oeste Aquecimento individual por bomba de calor/frio Equipamentos Piscina Jardim Certificação energética: Classe energética A+ Uma moradia pensada para quem valoriza exclusividade, conforto e qualidade de vida, onde cada detalhe reflete bom gosto, serenidade e sofisticação. * Todas as informações apresentadas não têm qualquer carácter vinculativo, não dispensa a confirmação por parte da mediadora, bem como a consulta da documentação do imóvel.
AMI: 13359
Ref. Externa: P630
Id: 1567108
Inicie sessão para guardar este imóvel e aceder à sua lista de favoritos em qualquer dispositivo.
550.000 €
3 Quartos
4 WCs
Área bruta : 229 m²
Descubra a harmonia perfeita entre o charme rústico e o conforto moderno nesta moradia excecional. Com um design exclusivo e arquitetura que se funde naturalmente com a paisagem, esta propriedade é um convite ao bem-estar e à qualidade de vida. Inserida num ambiente de total tranquilidade e privacidade, a casa oferece áreas generosas e acabamentos de excelência. Relaxe junto à piscina, desfrute dos jardins maduros ou encontre paz sob as pérgulas convidativas. Características Principais: Design Exclusivo: Arquitetura rústica de charme. Espaço e Conforto: 3 suites elegantes com roupeiros, 4 casas de banho (totais). Exterior de Sonho: Piscina, jardins exuberantes, pérgulas e garagem. Localização Privilegiada: Apenas a 10 minutos da cidade, oferecendo o melhor do campo sem abdicar da conveniência urbana. Ideal para famílias que procuram um estilo de vida sereno e sofisticado.
AMI: 14165
Ref. Externa: 02179
Id: 1566841
Inicie sessão para guardar este imóvel e aceder à sua lista de favoritos em qualquer dispositivo.
500.000 €
3 Quartos
3 WCs
Área bruta : 184 m²
Moradia moderna T3, térrea, com piscina, localizada em Caldas da Rainha - Salir de Matos Composição do imóvel: Piso térreo: - Hall de entrada com roupeiro - Sala e cozinha ampla - em open space com 41 m2 - 3 Quartos, um dos quais Suite com 20m2 ( todos com roupeiros - 2 WC Sociais No Exterior: - Piscina - Garagem com 31m2 - zona de Jardim Conforto / características: - Ar condicionado - Termossifão de 300 litros - Caixilharia em alumínio com vidros duplos - Estores em alumínio automatizados - Estores elétricos Nota: - Os acabamentos interiores podem ser á escolha do cliente, atribuindo aos moveis de cozinha (12.000 euros + iva), chão poderá ser flutuante ou mosaico com possibilidade de escolha até 25 euros m2. Esta moradia, virada a sul, com uma piscina com a mesma orientação solar, está implantada num lote de terreno de dimensão adequada. Composta por 3 quartos, um dos quais suíte, todos com roupeiros, sala e cozinha sob a forma de open space, 3 Casas de banho. O cuidado na construção e os materiais utilizados de boa qualidade formam esta moderna moradia, que junta o conformo interior ao elegante espaço exterior no qual pode usufruir de uma vista magnifica e de um sossego desejável. Encontra-se na aldeia de Salir de Matos, com todas das comodidades, tais como supermercado, cafés, restaurantes, posto de abastecimento de combustível, farmácia escola até ao 4º ano, jardim infantil, comércio regional entre outros. Este local, é extremamente tranquilo, com a natureza como vizinha, onde pode passear, correr e praticar outros desportos tais como BTT, equitação, entre outros. A proximidade às praias, tais como as emblemáticas praias da Foz do Arelho, Baia de São Martinho do Porto e a de Salir do Porto com a sua imponente duna, ficam a 15 minutos. Qualquer uma destas praias é possível fazer desportos náuticos quer motorizados, a remos ou vela. Aguas tranquilas, a temperaturas convidativas a um mergulho ou simplesmente proporcionar um ambiente saudável em família. Localizada a 10 minutos da cidade termal de Caldas da Rainha, cidade cheia de vida, comercio tradicional, vários pontos turísticos de relevo nacional, acesso á Auto Estrada que liga Lisboa em menos de 1 hora. Apontamento: - Neste momento está em fase de construção, concluindo-se durante 2026. A arquitetura exterior é invejável, com linhas contemporâneas, complementando-se com uma excelente distribuição dos espaços/divisões interiores e uma envolvente sublime. PARTILHA IMOBILIÁRIA: - NOTA: Este imóvel está disponível para fazer partilha com imobiliárias titulares de AMI e profissionais, em regime de 50/50. "Caríssimo colega, traga um comprador, dividimos a comissão!" Para mais informações ou visita ao imóvel, não hesite em contactar-me!! Rui Pedro T: 919076116 [email protected] ROYAL CALDAS IMOBILIÁRIA AMI: 26671
AMI: 26671
Ref. Externa: Mor_01/26
Id: 1555477
Inicie sessão para guardar este imóvel e aceder à sua lista de favoritos em qualquer dispositivo.
500.000 €
3 Quartos
3 WCs
Área bruta : 188 m²
Moradia T3, térrea, com piscina, localizada em Caldas da Rainha - Salir de Matos Composição do imóvel: Piso térreo: - Hall de entrada com roupeiro - Sala e cozinha ampla - em open space com 55,50 m2 - 3 Quartos, um dos quais Suite com 21m2 ( todos com roupeiros - 2 WC Sociais No Exterior: - Piscina - Garagem com 28m2 - zona de Jardim Conforto / características: - Ar condicionado - Termossifão de 300 litros - Caixilharia em alumínio com vidros duplos - Estores em alumínio automatizados - Estores elétricos Nota: - Os acabamentos interiores podem ser á escolha do cliente, atribuindo aos moveis de cozinha (12.000 euros + iva), chão poderá ser flutuante ou mosaico com possibilidade de escolha até 25 euros m2. Esta moradia, virada a sul, com uma piscina com a mesma orientação solar, está implantada num lote de terreno de dimensão adequada. Composta por 3 quartos, um dos quais suíte, todos com roupeiros, sala e cozinha sob a forma de open space, 3 Casas de banho. O cuidado na construção e os materiais utilizados de boa qualidade formam esta moderna moradia, que junta o conformo interior ao elegante espaço exterior no qual pode usufruir de uma vista magnifica e de um sossego desejável. Encontra-se na aldeia de Salir de Matos, com todas das comodidades, tais como supermercado, cafés, restaurantes, posto de abastecimento de combustível, farmácia escola até ao 4º ano, jardim infantil, comércio regional entre outros. Este local, é extremamente tranquilo, com a natureza como vizinha, onde pode passear, correr e praticar outros desportos tais como BTT, equitação, entre outros. A proximidade às praias, tais como as emblemáticas praias da Foz do Arelho, Baia de São Martinho do Porto e a de Salir do Porto com a sua imponente duna, ficam a 15 minutos. Qualquer uma destas praias é possível fazer desportos náuticos quer motorizados, a remos ou vela. Aguas tranquilas, a temperaturas convidativas a um mergulho ou simplesmente proporcionar um ambiente saudável em família. Localizada a 10 minutos da cidade termal de Caldas da Rainha, cidade cheia de vida, comercio tradicional, vários pontos turísticos de relevo nacional, acesso á Auto Estrada que liga Lisboa em menos de 1 hora. Apontamento: - Neste momento está em fase de construção, concluindo-se durante 2026. A arquitetura exterior é invejável, com linhas contemporâneas, complementando-se com uma excelente distribuição dos espaços/divisões interiores e uma envolvente sublime. PARTILHA IMOBILIÁRIA: - Este imóvel está disponível para fazer partilha com imobiliárias titulares de AMI e profissionais, em regime de 50/50. - "Caríssimo colega, traga um comprador, dividimos a comissão!" Para mais informações ou visita ao imóvel, não hesite em contactar-me!! Rui Pedro T: 919076116 [email protected] ROYAL CALDAS IMOBILIÁRIA AMI: 26671
AMI: 26671
Ref. Externa: Mor_03/26
Id: 1555478
Inicie sessão para guardar este imóvel e aceder à sua lista de favoritos em qualquer dispositivo.
650.000 €
4 Quartos
4 WCs
Área bruta : 280 m²
Moradia moderna T4, térrea, com piscina, terreno com área considerável (3920 m2), localizada em Caldas da Rainha - Salir de Matos Composição do imóvel: Piso térreo: - Hall de entrada com roupeiro - Sala e cozinha ampla - - 4 Quartos( todos com roupeiros) - 2 WC Sociais No Exterior: - Piscina - Garagem (2 carros) - zona de Jardim - Terreno extenso (3920 m29 Conforto / características: - Ar condicionado - Termossifão de 300 litros - Caixilharia em alumínio com vidros duplos - Estores em alumínio automatizados - Estores elétricos Nota: - Os acabamentos interiores podem ser á escolha do cliente, atribuindo aos moveis de cozinha (12.000 euros + iva), chão poderá ser flutuante ou mosaico com possibilidade de escolha até 25 euros m2. Esta propriedade, podemos considerar de quintinha, pela área considerável de terreno que possui, a moradia tem orientação solar - sul, com uma piscina com a mesma orientação. Composta por 3 quartos, um dos quais suíte, todos com roupeiros, sala e cozinha sob a forma de open space, 3 Casas de banho. O cuidado na construção e os materiais utilizados de boa qualidade formam esta moderna moradia, que junta o conformo interior ao elegante espaço exterior no qual pode usufruir de uma vista magnifica e de um sossego desejável. Encontra-se na aldeia de Salir de Matos, com todas das comodidades, tais como supermercado, cafés, restaurantes, posto de abastecimento de combustível, farmácia escola até ao 4º ano, jardim infantil, comércio regional entre outros. Este local, é extremamente tranquilo, com a natureza como vizinha, onde pode passear, correr e praticar outros desportos tais como BTT, equitação, entre outros. A proximidade às praias, tais como as emblemáticas praias da Foz do Arelho, Baia de São Martinho do Porto e a de Salir do Porto com a sua imponente duna, ficam a 15 minutos. Qualquer uma destas praias é possível fazer desportos náuticos quer motorizados, a remos ou vela. Aguas tranquilas, a temperaturas convidativas a um mergulho ou simplesmente proporcionar um ambiente saudável em família. Localizada a 10 minutos da cidade termal de Caldas da Rainha, cidade cheia de vida, comercio tradicional, vários pontos turísticos de relevo nacional, acesso á Auto Estrada que liga Lisboa em menos de 1 hora. Apontamento: - Neste momento está em fase de construção, concluindo-se durante 2026. A arquitetura exterior é invejável, com linhas contemporâneas, complementando-se com uma excelente distribuição dos espaços/divisões interiores e uma envolvente sublime. PARTILHA IMOBILIÀRIA: - Este imóvel está disponível para fazer partilha com imobiliárias titulares de AMI e profissionais, em regime de 50/50. - "Caríssimo colega, traga um comprador, dividimos a comissão!" Para mais informações ou visita ao imóvel, não hesite em contactar-me!! Rui Pedro T: 919076116 [email protected] ROYAL CALDAS IMOBILIÁRIA AMI: 26671
AMI: 26671
Ref. Externa: Mor_02/26
Id: 1555479
Inicie sessão para guardar este imóvel e aceder à sua lista de favoritos em qualquer dispositivo.
550.000 €
3 Quartos
4 WCs
Área bruta : 229 m²
Apresentamos esta elegante moradia nova, inspirada na arquitetura tradicional portuguesa e construída com elevados padrões de qualidade, implantada num amplo terreno de 1197 m², numa zona tranquila e muito procurada da Torre - Salir de Matos. Virada a sul, beneficia de excelente luminosidade natural durante todo o dia, tornando todos os espaços mais acolhedores e a piscina ainda mais agradável. Com áreas generosas, exposição solar privilegiada e um exterior pensado para lazer, esta propriedade inclui uma fantástica piscina de 3,5m x 9m, ideal para aproveitar o clima ameno da região durante grande parte do ano. Área do Terreno: 1.197,50M2 Área de Construção Bruta (Moradia, Alpendres e Garagem): 218,50M2 Área de construção de Pérgulas: 43,60M2 Distribuição Interior Cozinha: 14,10 m² Despensa: 1,90 m² Sala de Estar/Jantar: 42,80 m² Hall dos Quartos: 14,90 m² Quarto 1: 14,05 m² Quarto 2: 14,05 m² Quarto 3: 16,80 m² Possibilidade de personalização de acabamentos (mediante fase da obra). Espaço Exterior Terreno amplo com excelente privacidade Piscina de 3,5m x 9m Exposição solar a sul, ideal para jardim, zonas de descanso e refeições ao ar livre Localização & Estilo de Vida Situada na charmosa aldeia da Torre, esta moradia oferece: Tranquilidade e paisagem natural A 10 minutos das Caldas da Rainha 15-20 minutos das praias da Foz do Arelho e São Martinho do Porto 1 hora de Lisboa Comércio local e bons acessos Esta moradia na Torre é uma oportunidade única para quem procura uma casa nova, de elevada qualidade, sem enfrentar os longos processos de licenciamento e incertezas de iniciar uma construção do zero. A obra já está em andamento, realizada por um construtor de confiança e reconhecida qualidade, garantindo acabamentos de excelência e cumprimento rigoroso de prazos. Tempo de conclusão e vantagem para o comprador Uma das grandes mais-valias deste projeto é o tempo ganho: em cerca de 13 meses , terá uma moradia fantástica, pronta a habitar. Isto representa uma vantagem significativa em termos de tranquilidade, planeamento e investimento comparativamente a iniciar uma obra do zero. Localização premium e potencial de rendimento A moradia situa-se em Salir de Matos, uma das zonas mais procuradas para arrendamento de curta duração (RBN), oferecendo excelente potencial de rentabilidade e valorização. Benefícios do imóvel: Obra já em andamento, pronta para acompanhamento Prazo de conclusão definido Elevado padrão de construção e acabamentos de qualidade Redução significativa de riscos e atrasos Entrada rápida na nova casa ou início imediato de rentabilização Localização estratégica para turismo e arrendamento de curta duração Esta é a escolha ideal para quem valoriza qualidade, segurança no investimento e rapidez na concretização do sonho de uma casa nova, com potencial de rendimento garantido. Agende agora a sua visita! Contacte-nos! New Traditional Portuguese House with Swimming Pool | Plot 1197 m² |Torre - Salir de Matos -Caldas da Rainha We are pleased to present this elegant newly built house, inspired by traditional Portuguese architecture and constructed with high-quality standards, located on a spacious 1197 m² plot in the tranquil and sought-after village of Torre - Salir de Matos. Facing south, the property benefits from excellent natural light throughout the day, making all rooms welcoming and enhancing the enjoyment of the 3.5m x 9m swimming pool, perfect for relaxing in the warm Portuguese climate. Main Areas Built Area: 228.75 m² Private Built Area: 166.20 m² Plot Footprint: 228.75 m² Interior Layout Kitchen: 14.10 m² Pantry: 1.90 m² Living/Dining Room: 42.80 m² Hallway to Bedrooms: 14.90 m² Bedroom 1: 14.05 m² Bedroom 2: 14.05 m² Bedroom 3: 16.80 m² Possibility to customize finishes during the construction phase. Outdoor Space Spacious plot with privacy Swimming Pool 3.5m x 9m South-facing, ideal for garden, relaxation, and outdoor dining 10 minutes from Caldas da Rainha 15-20 minutes from Foz do Arelho and São Martinho do Porto beaches 1 hour from Lisbon Ideal for those seeking the authentic Portuguese lifestyle with modern comfort, natural light, and proximity to the sea. This villa in Torre is a unique opportunity for anyone looking for a new, high-quality home, without facing the long licensing processes and uncertainties of starting construction from scratch. The construction is already underway, carried out by a trusted builder with a recognized reputation for quality, ensuring excellent finishes and strict adherence to deadlines. Completion Time and Buyer Advantage One of the biggest advantages of this project is the time saved: in approximately 13 months, you will have a fantastic villa, ready to move in. This represents a significant benefit in terms of peace of mind, planning, and investment, compared to starting a project from scratch. Premium Location and Rental Potential The villa is located in Salir de Matos, one of the most sought-after areas for short-term rentals (RBN), offering excellent potential for income generation and property value appreciation. Property Benefits: Construction already underway, ready for monitoring Defined completion timeline High standard of construction and quality finishes Significant reduction of risks and delays Quick move-in or immediate rental potential Strategic location for tourism and short-term rentals This is the ideal choice for those who value quality, investment security, and a fast path to realizing the dream of a new home, with guaranteed rental potential. Contact us now for plans, finishes, construction details and schedule a visit! Nouvelle Villa Traditionnelle Portugaise avec Piscine | Exposition Sud | Torre - Salir de Matos -Caldas da Rainha Découvrez cette élégante villa neuve, inspirée de l'architecture traditionnelle portugaise et construite selon des standards de haute qualité, sur un terrain spacieux de 1197m² dans le quartier calme et prisé de Torre - Salir de Matos. Orientée sud, elle bénéficie d'une excellente luminosité naturelle toute la journée, rendant les espaces intérieurs lumineux et accueillants, et sublimant la piscine extérieure. La propriété comprend une piscine de 3,5m x 9m, idéale pour profiter du climat doux de la région toute l'année. Principales surfaces : Surface de construction : 228,75 m² Surface privative : 166,20 m² Empreinte au sol : 228,75 m² Répartition intérieure : Cuisine : 14,10 m² Garde-manger : 1,90 m² Salon/Salle à manger : 42,80 m² Hall : 14,90 m² Chambre 1 : 14,05 m² Chambre 2 : 14,05 m² Chambre 3 : 16,80 m² Extérieur & style de vie : Terrain spacieux et privé Orientation sud, parfaite pour jardin, espaces détente et repas en extérieur 10 minutes de Caldas da Rainha 15-20 minutes des plages de Foz do Arelho et São Martinho do Porto 1 heure de Lisbonne Idéale pour ceux qui recherchent le style de vie portugais authentique, avec confort moderne, lumière naturelle et proximité de la mer. Contactez-nous pour les plans, les finitions, les détails de construction ou pour organiser une visite! Nederlands - Nieuwe Traditionele Portugese Villa met Zwembad | Zuidgericht | Torre - Salir de Matos (aldas da Rainha. Ontdek deze elegante nieuwe villa, geïnspireerd op traditionele Portugese architectuur en gebouwd volgens hoge kwaliteitsnormen, gelegen op een ruim perceel van 1197m² in het rustige en gewilde gebied van Torre - Salir de Matos. Zuidgericht, met uitstekend natuurlijk licht de hele dag door, waardoor de binnenruimtes helder en uitnodigend zijn en het buitenzwembad extra aantrekkelijk wordt. De woning beschikt over een zwembad van 3,5m x 9m, ideaal om het milde klimaat van de regio het hele jaar door te benutten. Belangrijkste oppervlakten: Bouwoppervlakte: 228,75 m² Privé bouwoppervlakte: 166,20 m² Grondoppervlakte: 228,75 m² Indeling binnen: Keuken: 14,10 m² Bijkeuken: 1,90 m² Woon-/eetkamer: 42,80 m² Hal: 14,90 m² Slaapkamer 1: 14,05 m² Slaapkamer 2: 14,05 m² Slaapkamer 3: 16,80 m² Buiten & levensstijl: Ruim perceel met privacy Zuidgerichte ligging, perfect voor tuin, lounge en buiten dineren 10 minuten van Caldas da Rainha 15-20 minuten van de stranden van Foz do Arelho en São Martinho do Porto 1 uur van Lissabon Ideaal voor wie de authentieke Portugese levensstijl zoekt, met modern comfort, veel natuurlijk licht en nabijheid van de zee. Neem contact op voor plannen, afwerkingsdetails, bouwinformatie of een bezoek ter plaatse!
AMI: 10312
Ref. Externa: LM1103M
Id: 1525209
Inicie sessão para guardar este imóvel e aceder à sua lista de favoritos em qualquer dispositivo.
2 Quartos
Área bruta : 30 m²
Procuras uma pequena casa para reconstruir e com espaço exterior?Pretendes viver numa zona tranquila e próximo das Caldas da Rainha? Se procuras privacidade total e um espaço onde possas criar o teu refúgio, esta pequena casa de 30 m², inserida num terreno com cerca de 11.000 m², é a oportunidade perfeita.O terreno dispõe de água da rede pública, eletricidade e poço, oferecendo todas as condições essenciais para desenvolveres o teu projeto.Localizado na freguesia de Salir de Matos, a poucos minutos do centro de Caldas da Rainha, este é o sítio ideal para quem valoriza tranquilidade, proximidade aos serviços e uma excelente exposição solar.Aqui vives a apenas 5 minutos de Caldas da Rainha, muito perto da A8 e das praias da Foz do Arelho, Salir do Porto e da encantadora Baía de São Martinho do Porto.Um lugar perfeito para desfrutares do campo, sem abdicares da comodidade da cidade.Não percas esta oportunidade, marca já a tua visita!Sónia Pereira
AMI: 21697
Ref. Externa: IDR248
Id: 1513773
Inicie sessão para guardar este imóvel e aceder à sua lista de favoritos em qualquer dispositivo.
500.000 €
3 Quartos
3 WCs
Área bruta : 184 m²
Moradia Térrea T3 Contemporânea com Piscina – Em Construção Moradia térrea T3 em construção, de arquitetura contemporânea, com uma área de implantação de 184.10m², inserida num lote de 562 m². Projetada para oferecer conforto, elegância e eficiência, esta propriedade distingue-se pela excelente luminosidade natural, pela qualidade dos materiais utilizados e pela harmoniosa integração entre os espaços interiores e exteriores. A moradia é composta por sala e cozinha em open space, 1 suíte, 2 quartos, todos com roupeiros embutidos, além de 3 casas de banho e garagem. No exterior, conta ainda com zona ajardinada e piscina, proporcionando um ambiente ideal para lazer, convívio e bem-estar. Equipamentos e acabamentos: •Caixilharia em alumínio de elevada qualidade; •Vidro duplo; •Sistema de aquecimento de águas com termossifão de 300 litros e painéis solares; •Pré-instalação de ar condicionado; •Classe energética A+, garantindo eficiência e redução de custos energéticos. Localização Situada a apenas 10 km do centro de Caldas da Rainha, na Costa de Prata, esta moradia beneficia da proximidade a uma cidade conhecida pela sua dinâmica cultural, mercados tradicionais, escolas de referência, parques, serviços, hospital e excelentes acessos. As Caldas da Rainha são também reconhecidas pela sua história termal, fundada pela Rainha D. Leonor no século XV, e pela qualidade de vida que oferecem aos seus residentes. A poucos minutos encontra as deslumbrantes praias do Oeste, como a Foz do Arelho, São Martinho do Porto, Nazaré e Baleal, ideais para prática de desportos náuticos, passeios à beira-mar e para desfrutar da beleza natural da Costa de Prata. A 50 minutos do Aeroporto Internacional de Lisboa. Previsão para a conclusão da construção: Final de 2026. * Todas as informações apresentadas não têm qualquer carácter vinculativo, não despensa a confirmação por parte da mediadora, bem como a consulta da documentação do imóvel.
AMI: 13359
Ref. Externa: P627
Id: 1513194
Inicie sessão para guardar este imóvel e aceder à sua lista de favoritos em qualquer dispositivo.
500.000 €
3 Quartos
3 WCs
Área bruta : 185 m²
Moradia Térrea T3 Contemporânea com Piscina – Em Construção Moradia térrea T3 em construção, de arquitetura contemporânea, com uma área de implantação de 190,57 m², inserida num lote de 764 m². Projetada para oferecer conforto, elegância e eficiência, esta propriedade distingue-se pela excelente luminosidade natural, pela qualidade dos materiais utilizados e pela harmoniosa integração entre os espaços interiores e exteriores. A moradia é composta por sala e cozinha em open space, 1 suíte, 2 quartos, todos com roupeiros embutidos, além de 3 casas de banho e garagem. No exterior, conta ainda com zona ajardinada e piscina, proporcionando um ambiente ideal para lazer, convívio e bem-estar. Equipamentos e acabamentos: •Caixilharia em alumínio de elevada qualidade; •Vidro duplo; •Sistema de aquecimento de águas com termossifão de 300 litros e painéis solares; •Pré-instalação de ar condicionado; •Classe energética A+, garantindo eficiência e redução de custos energéticos. Localização Situada a apenas 10 km do centro de Caldas da Rainha, na Costa de Prata, esta moradia beneficia da proximidade a uma cidade conhecida pela sua dinâmica cultural, mercados tradicionais, escolas de referência, parques, serviços, hospital e excelentes acessos. As Caldas da Rainha são também reconhecidas pela sua história termal, fundada pela Rainha D. Leonor no século XV, e pela qualidade de vida que oferecem aos seus residentes. A poucos minutos encontra as deslumbrantes praias do Oeste, como a Foz do Arelho, São Martinho do Porto, Nazaré e Baleal, ideais para prática de desportos náuticos, passeios à beira-mar e para desfrutar da beleza natural da Costa de Prata. A 50 minutos do Aeroporto Internacional de Lisboa. * Todas as informações apresentadas não têm qualquer carácter vinculativo, não despensa a confirmação por parte da mediadora, bem como a consulta da documentação do imóvel.
AMI: 13359
Ref. Externa: P626
Id: 1513193
Inicie sessão para guardar este imóvel e aceder à sua lista de favoritos em qualquer dispositivo.
490.000 €
3 Quartos
3 WCs
Área bruta : 385 m²
Moradia térrea acolhedora com 3 quartos e 3 casas de banho, situada em Salir de Matos, com uma área bruta de 278m². Implantada num terreno amplo com 2.325m², dos quais 866m² são urbanos, esta propriedade oferece uma vista desafogada sobre a paisagem envolvente e garante excelente privacidade. Sala de estar ampla, com pé-direito alto, mezanino em madeira atualmente usado como escritório e lareira única em pedra, construída com degraus originais do icónico Mosteiro de Alcobaça, um pedaço da história da região no coração da casa Sala de jantar envidraçada, com imensidão de luz natural, perfeita para desfrutar das refeições com vista para o jardim Quarto principal en-suite com 24m² Segundo quarto com 14m² Terceiro quarto com 13,9m², atualmente utilizado como arrumos interiores, mas facilmente reversível 3 casas de banho no total, sendo uma delas privativa (suíte) Lavandaria dedicada, separada da cozinha No exterior, a propriedade inclui: Garagem com portão automático 59m² Dois anexos: Um espaço de arrumos com 20m² Um segundo anexo com casa de banho e cerca de 22m², perfeito para converter numa zona de lazer ou estúdio , com deck exterior Telheiro com 9m² ideal para usar em dias de chuva Painéis solares Esta propriedade está localizada: A apenas 10 minutos do centro de Caldas da Rainha, onde encontrará os principais supermercados, comércio, escolas secundárias, hospital e serviços públicos A 18 minutos da Praia da Foz do Arelho e a 19 minutos da Baía de São Martinho do Porto A 1h10 do centro de Lisboa, com fácil acesso à A8 A vila de Salir de Matos dispõe de escolas básicas, restaurantes, pequenos mercados e farmácia, oferecendo o equilíbrio ideal entre vida rural e acesso rápido à cidade e à costa. Esta propriedade é perfeita para quem valoriza o conforto, o espaço e a versatilidade com zonas interiores e exteriores que se adaptam facilmente ao seu estilo de vida, seja para viver, trabalhar ou receber. Um verdadeiro refúgio com alma, luz e história. ---------------------------------------------------------------------- Charming single-story 3-bedroom, 3-bathroom home located in Salir de Matos, with a total built area of 278m². Set on a generous plot of 2,325m², including 866m² of urban land, this property offers uninterrupted views over the surrounding landscape and exceptional privacy. Bright living room with high ceilings, a wooden mezzanine currently used as an office, and a striking stone fireplace built using original steps from the iconic Monastery of Alcobaça — a rare piece of local history right in your living space Glass-enclosed dining room, bathed in natural light Main bedroom ensuite of 24m² Second bedroom of 14m² Third bedroom of 13.9m², currently used as indoor storage, but easily convertible 3 bathrooms in total Dedicated laundry room, separate from the kitchen Outside, the property includes: Garage with 59m² Two annexes: One used for storage (20m²) A second one with a bathroom and approx. 22m², ideal for conversion into a leisure area or studio, complete with an outdoor deck Covered structure ('telheiro') with 9m², perfect for rainy days Solar panels This property is located: Just 10 minutes from Caldas da Rainha city center, where you’ll find all major supermarkets, shops, secondary schools, hospital, and public services Only 18 minutes from Foz do Arelho Beach and 19 minutes from São Martinho do Porto Bay 1 hour and 10 minutes from Lisbon city center, with quick access via the A8 motorway The village of Salir de Matos has local schools, restaurants, small markets, and a pharmacy, offering the perfect balance between countryside charm and proximity to the coast and city A unique home for those who value comfort, space, light, and authenticity, with versatile indoor and outdoor areas and a living room that literally holds a piece of Alcobaça’s soul. ;ID RE/MAX: 124311205-10
AMI: 7772
Ref. Externa: 124311205-10
Id: 1495107
Inicie sessão para guardar este imóvel e aceder à sua lista de favoritos em qualquer dispositivo.
Estes agentes são especialistas nesta zona:
Inicie sessão para ocultar este imóvel das suas pesquisas e manter a sua lista de resultados organizada.
Guardar favoritos
Este imóvel foi guardados nos seus favoritos com sucesso.
Para poder guardar pesquisa deverá ter a sua sessão iniciada.
Caso não tenha uma conta, deverá criar uma.
A sua pesquisa foi guardada com sucesso!
© Copyright 2023 | CASACERTA. All rights reserved
Este site utiliza cookies. Ao navegar no site estará a consentir a sua utilização.
Para mais informações sobre os cookies pode consultar a
política de privacidade.