Filtros
0 · 18 resultados375.000 €
6 Quartos
7 WCs
Área útil : 506 m²
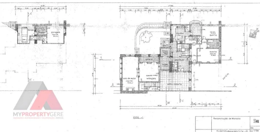
Prédio Urbano com moradia de 4 pisos com a estrutura concluída e Capela do Séc XVI (Capela e Sacristia de 1539), com Alvara de construção aprovado e licença levantada até 03/02/2025. Inserida em Lote de terreno com 10,240 m2 com vista deslumbrante de campo e vinha com os campos de golfe do Campo real no horizonte. Localizada na freguesia do Turcifal, Concelho Torres Vedras junto Campo de Golf e Hotel 5* e da Serra do Socorro, a 20 min AE A8. É Lugar para a sua quinta privada com vista deslumbrante onde o toque de identidade será a seu gosto. Distribuida por: Piso 0 : Zona circulação, 3 quartos (1 em suite), 3 wc, sala estar Piso 1 : Master suite completa, terraço vista campo, sala de estar Piso -1 : Cozinha, 2 quartos, copa, sala estar, sala refeições, pátio interior coberto, zona arrumos, varanda Piso -2: Garagem (4 viaturas), lavandaria e terraço. Local excelente para usufruir de tranquilidade na zona oeste, Pelo que não deve deixar de avaliar e visitar esta oportunidade que lhe oferecemos!! Junto á cidade de torres Vedras com comercio, serviços, escolas, transportes e espaços de lazer. de praias Galardoada com Bandeira Azul em Zona reconhecida como Quality-Coast., a região Oeste usufrui também de crescente interesse do turismo de ondas, e a zona usufrui também da proximidade da Ericeira, Peniche, Foz do Sizandro. Com infraestruturas de suporte como os hotéis Golf Mar Resort, Termas do Vimeiro e da qualidade do Campo Real Golf & Spa Resort e Areias do Seixo Charme-Hotel. Releva-se local de diversidades, Hipismo; Golf; Parapente; Surf; Body Board; aviação de lazer(aeródromo santa Cruz); aeromodelismo; Natação; Pesca Desportiva; Caminhada Junto ao Mar e pela serras e muitas outras atividades. Com festivais que se estão cada vez mais a afirmar de Ondas e dos Frutos do Mar, Festival Ocean-Spirit e o Festival da Sapateira. São por certo fatores a ter em conta ao analisar esta oportunidade !!! Consulte o nosso website www.mypropertygere.pt, ou simplesmente visite-nos e visite os nossos imóveis. Contacte-nos via Telefs: (+351) 261932270 (chamada para rede fixa nacional) /(+351) 968457472 (chamada para rede móvel nacional) ou email: [email protected], estamos abertos todos os dias, inclusive sábados, domingos e feriados. Não se esqueça prestamos serviços a pensar em si! O seu imóvel é a nossa prioridade! Mypropertygere, Mediação Imobiliária, Administração e valorização de Imóveis – Lic.-A.M.I. Nº 12844 Todas as informações presentes nesta página devem ser sempre verificadas pelos interessados. Estas informações não têm qualquer carácter vinculativo!
AMI: 12844
Ref. Externa: 220101
Id: 1806797
Inicie sessão para guardar este imóvel e aceder à sua lista de favoritos em qualquer dispositivo.
480.000 €
5 Quartos
4 WCs
Área bruta : 431 m²
Moradia Senhorial 431 m² com 2 entradas independentes – Perto de Lisboa | Investimento ou família Apresentamos esta distinta moradia senhorial de 1870, localizada em Turcifal, a curta distância de Lisboa. Uma propriedade única pela sua dimensão, carácter e versatilidade — ideal tanto para habitação própria como para investimento. Com 431 m² de área bruta de construção, esta casa oferece espaço raro no mercado, excelente luminosidade natural e uma configuração que permite múltiplas utilizações. Distribuição do imóvel Rés do chão (entrada independente) 3 quartos, 2 salas, 2 cozinhas, 2 casas de banho Acesso direto a logradouro/jardim Primeiro andar (entrada independente) 5 quartos, 2 salas amplas, 1 cozinha, 2 casas de banho Ligação interior ao rés do chão e ao sótão Sótão Pé direito elevado com excelente potencial de aproveitamento ✔ Possibilidade de criar duas ou mais habitações independentes (mediante legalização) ✔ Ideal para famílias numerosas ou projeto multifamiliar ✔ Excelente opção para investimento, arrendamento ou alojamento local ✔ Moradia com carácter histórico e grande margem de valorização ✔ Zona tranquila com bons acessos Localização estratégica A poucos minutos de Torres Vedras Rápido acesso à A8 Próximo das praias da Costa Oeste (Santa Cruz, Ericeira) A cerca de 30 minutos de Lisboa Não perca esta oportunidade Imóveis com esta dimensão, versatilidade e potencial são cada vez mais escassos. Ideal para quem procura viver, investir ou ambos. Marque já a sua visita — oportunidades assim não ficam muito tempo no mercado. #ref: 876522
AMI: 11220
Ref. Externa: 876522
Id: 1804115
Inicie sessão para guardar este imóvel e aceder à sua lista de favoritos em qualquer dispositivo.
299.837 €
2 Quartos
4 WCs
Área útil : 150 m²
Descubra o equilíbrio perfeito entre sofisticação contemporânea e tranquilidade rural nesta exclusiva moradia totalmente renovada, onde cada detalhe foi pensado para proporcionar conforto, elegância e bem-estar. Inserida numa pitoresca aldeia, esta propriedade beneficia de uma vista absolutamente desafogada sobre um prado de vinhas, criando um cenário envolvente, sereno e verdadeiramente inspirador. Com uma distribuição harmoniosa e funcional, a moradia desenvolve-se em três pisos: ? Piso térreo Uma cozinha moderna totalmente equipada, com eletrodomésticos, abre-se para uma luminosa sala de estar com ligação direta ao exterior, o espaço ideal para momentos de convívio e relaxamento. Conta ainda com lavandaria independente e uma casa de banho de apoio. ? Primeiro piso Duas elegantes suites, concebidas para garantir total conforto e privacidade, ambas com zona de closet. ? Sótão Um espaço surpreendente, com pé direito alto e uma claraboia contemporânea que inunda o ambiente de luz natural. Inclui ainda uma casa de banho, permitindo múltiplas utilizações, desde escritório exclusivo a quarto adicional ou refúgio privado. ? Características de excelência: Ar condicionado em todas as divisões Painéis solares para maior eficiência energética Caixilharia com vidro duplo Estores elétricos Excelente luminosidade natural ? Localização privilegiada, com rápidos acessos à autoestrada e a apenas 30 minutos de Lisboa, permitindo desfrutar da serenidade do campo sem abdicar da proximidade urbana. ? Uma propriedade distinta, ideal para quem valoriza qualidade de vida, conforto e exclusividade ** Temos disponível o serviço Finance 21, um departamento que o ajudará a conseguir as melhores condições financeiras para o seu crédito habitação. Solicite mais informações. Intermediário de crédito vinculado registado com o número 4561 no Banco de Portugal.
AMI: 12743
Ref. Externa: C0283-01196
Id: 1798597
Inicie sessão para guardar este imóvel e aceder à sua lista de favoritos em qualquer dispositivo.
319.500 €
Área bruta : 212 m²
BAIXA DE PREÇO: Agora 319.500 € Antes: 342.750 € (Poupe 23.250 €) Propriedade com área total de 2144 m² e edifício de 177 m² (Arrecadações e Arrumos), localizada na zona do Turcifal, Torres Vedras. Terreno totalmente plano, vedado e com ótimos acessos. Destaques do Imóvel: - Áreas: 2144 m² de terreno e 177 m² de área de construção implantada. - Estado: Propriedade plana e totalmente vedada. - Enquadramento Legal: Vendido ao abrigo do Simplex Urbanístico (Decreto-Lei n.º 10/2024). - Localização: Turcifal, em zona calma e próxima de referências como a Quinta do Fez. *** A informação facultada, embora precisa, é meramente informativa pelo que não pode ser considerada vinculativa e está sujeita a alterações. Para mais informações ou agendamento de visita contacte: Agência milCasas #milCasas #VendaTurcifal #TerrenoTorresVedras #EdificioArrecadacao #SimplexUrbanistico #QuintaDoFez #InvestimentoImobiliario #OestePortugal #TurcifalRealEstate
AMI: 8798
Ref. Externa: M157LX TVD (2)
Id: 1783654
Inicie sessão para guardar este imóvel e aceder à sua lista de favoritos em qualquer dispositivo.
1.500.000 €
4 Quartos
4 WCs
Área bruta : 463 m²
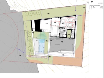
Moradia V4 de luxo com piscina — Quinta de Fez, Turcifal PROPRIEDADE A VENDA EM PORTUGAL, NO DISTRITO DE LISBOA. Inserida na exclusiva Quinta de Fez — condomínio privado com piscina, campo de ténis, restaurante e jardins — esta moradia de prestígio localiza‑se a 500 m da vila, a 5 minutos da A8, de Torres Vedras e do complexo Campo Real (campo de golfe e centro equestre), assim como a 15 minutos das praias da Costa de Prata e a 30 minutos do Aeroporto de Lisboa. Bridge House é uma moradia de arquitetura contemporânea, com 379 m² de área bruta e lote privado de 1.080 m². Destaca‑se pela ponte‑entrada que marca o acesso à casa, amplas áreas e abundante luz natural, assegurando uma transição fluida entre o interior e o exterior. O projecto privilegia o conforto, a eficiência energética e acabamentos de luxo, integrando soluções sustentáveis como painéis fotovoltaicos INTERIOR PISO 0: garagem, arrumos, hall, jardim, pátio exterior para estacionamento adicional. PISO 1: cozinha equipada com lavandaria; acesso a churrasqueira coberta; sala de refeições, sala principal COM LAREIRA com vista panorâmica sobre a piscina infinita; suite com closet, 3 quartos, WC e acesso ao jardim EXTERIOR Jardim projectado com zonas de relaxamento e convívio; churrasqueira coberta; piscina e estacionamento privado. EQUIPAMENTOS: Piso radiante, vídeo-porteiro, portões automáticos, sistema de rega, bomacalor para aquecimento de águas quentes, piscina e piso radiante; ar condicionado, piscina coberta e aquecida Marque já a sua visita! Viva na Região Oeste — Torres Vedras: cidade segura e sustentável, distinguida com o European Green Leaf, reconhecida pela oferta cultural, gastronomia, paisagem natural e pelas praias da Costa de Prata, com excelentes acessos a Lisboa. Na CASAS COM ISTÓRIA oferecemos acompanhamento personalizado, com análise rigorosa e apoio jurídico e de crédito ao longo de todo o processo, até à escritura. Compre sem burocracia e sem custos adicionais. A informação disponibilizada carece de confirmação e não é vinculativa. ---INGLES Portugal | LISBON | Real Estate Investment • Golden Visa (ARI) For sale — Luxury 4‑bed villa with pool — Quinta de Fez, Turcifal Contemporary villa of 379 m² on a 1,080 m² plot, Bridge House, located in a private condominium. Strategic location: 5 minutes from Torres Vedras, 15 minutes from the Costa de Prata beaches and 30 minutes from Lisbon Airport. Layout: 1 suite with walk‑in closet, 3 bedrooms, equipped kitchen, garage for 2 cars, covered barbecue area and pool. Premium finishes and sustainable solutions. Viewings by appointment. Personalized support and full legal assistance provided by CASAS COM ISTÓRIA. ---FRANCES Portugal | LISBON | Real Estate Investment • Golden Visa (ARI) For sale — Luxury 4‑bed villa with pool — Quinta de Fez, Turcifal Contemporary villa of 379 m² on a 1,080 m² plot, Bridge House, located in a private condominium. Strategic location: 5 minutes from Torres Vedras, 15 minutes from the Costa de Prata beaches and 30 minutes from Lisbon Airport. Layout: 1 suite with walk‑in closet, 3 bedrooms, equipped kitchen, garage for 2 cars, covered barbecue area and pool. Premium finishes and sustainable solutions. Viewings by appointment. Personalized support and full legal assistance provided by CASAS COM ISTÓRIA. ----ALEMAO Portugal | LISSABON | Immobilieninvestment • Golden Visa (ARI) Zu verkaufen — Luxus‑Villa V4 mit Pool — Quinta de Fez, Turcifal Zeitgenössische Villa mit 379 m² auf einem 1.080 m² Grundstück, Bridge House, gelegen in einer privaten Wohnanlage. Strategische Lage: 5 Minuten von Torres Vedras, 15 Minuten von den Stränden der Costa de Prata und 30 Minuten vom Flughafen Lissabon. Aufteilung: 1 Suite mit begehbarem Kleiderschrank, 3 Schlafzimmer, ausgestattete Küche, Garage für 2 Fahrzeuge, überdachte Grillstelle und Pool. Premium‑Ausstattung und nachhaltige Lösungen.
AMI: 11900
Ref. Externa: V4SA.T26
Id: 1783516
Inicie sessão para guardar este imóvel e aceder à sua lista de favoritos em qualquer dispositivo.
375.000 €
6 Quartos
7 WCs
Área bruta : 645 m²
Terreno de 10.240 m², com capela do século XVI e estrutura para uma moradia V6+1, situado perto da Serra do Socorro, na Vila do Turcifal. Localização privilegiada: a 2 minutos do Hotel 5★ Campo Real, com campo de golfe e Centro Equestre, a 5 minutos da A8, 8 minutos do centro de Torres Vedras e 35 minutos do Aeroporto de Lisboa. Edificação em fase de construção, devidamente licenciada, com alvará de construção válido até 03/02/2025, sendo da responsabilidade do futuro comprador proceder à respetiva validação junto das entidades camarárias competentes. A estrutura contempla fundações e estrutura em betão já concluídas para moradia de 4 pisos, com Área Bruta de Construção (ABC) de 645 m². Distribuição prevista: * Piso 2: 1 quarto, 1 escritorio, 2 casas de banho e 1 terraço. * Piso 1: 3 quartos, 3 casas de banho, sala, pórtico e 2 varandas. 1 terraço * Piso 0: 2 quartos, vestíbulo, copa, cozinha, 2 casas de banho, 3 varandas e pátio coberto. * Piso -1: 2 garagens e lavandaria. A Capela, datada de 1539, possui sacristia em fase de acabamento, conferindo à propriedade um caráter histórico e único. Nesta quinta poderá usufruir de uma **panorâmica magnífica sobre o campo**, vivendo em plena harmonia com a natureza. Grande potencial para investimento e turismo, com possibilidade de fracionamento. Inserida no PDM Nível IV, sendo aproximadamente 1/3 da área classificada como agroflorestal e o restante como área agrícola especial. **PROPRIEDADE À VENDA EM PORTUGAL, NO DISTRITO DE LISBOA.** Descubra Torres Vedras, um município com forte compromisso ambiental e reconhecido internacionalmente como destino sustentável, seguro e de prestígio, junto à Costa de Prata. Na *CASAS COM ISTÓRIA, oferecemos acompanhamento personalizado e adaptado a cada cliente, garantindo análise rigorosa e apoio jurídico durante todo o processo, até à escritura. Marque já a sua visita! *As informações aqui constantes são de caráter meramente informativo e não vinculativo, devendo ser confirmadas junto da mediadora.* ---- English 10,240 m² plot with 16th‑century chapel and concrete structure for a 4‑storey V6 villa near Serra do Socorro, Turcifal. Prime location: 2 min to 5★ Campo Real Hotel, golf and equestrian centre, 5 min to A8, 8 min to Torres Vedras centre and 35 min to Lisbon Airport. Licensed construction with foundations and structure completed (645 m² GCA). Historic chapel with sacristy in finishing phase. Panoramic countryside views, high investment and tourism potential with subdivision possibility. Classified PDM Level IV: approx. ⅓ agro‑forestry and remaining special agricultural land. PROPERTY FOR SALE IN PORTUGAL, LISBON DISTRICT. Info for guidance only and non‑binding ------ Français Terrain de 10 240 m² avec chapelle du XVIᵉ siècle et structure en béton pour villa V6 sur 4 niveaux, près de Serra do Socorro à Turcifal. Emplacement privilégié : 2 min de l’hôtel 5★ Campo Real, golf et centre équestre, 5 min de l’A8, 8 min du centre de Torres Vedras et 35 min de l’aéroport de Lisbonne. Construction licenciée avec fondations et structure achevées (645 m² SDC). Chapelle historique avec sacristie en phase de finition. Vues panoramiques sur la campagne, fort potentiel d’investissement et tourisme avec possibilité de lotissement. Classé PDM Niveau IV : env. ⅓ zone agro‑forestière et reste zone agricole spéciale. ------ Deutsch 10.240 m² Grundstück mit Kapelle aus dem 16. Jahrhundert und Betonstruktur für eine 4‑stöckige V6‑Villa nahe der Serra do Socorro, Turcifal. Top-Lage: 2 Minuten zum 5★ Hotel Campo Real mit Golf- und Reitzentrum, 5 Minuten zur A8, 8 Minuten zum Zentrum von Torres Vedras und 35 Minuten zum Flughafen Lissabon. Genehmigter Bau mit abgeschlossenen Fundamenten und Struktur (645 m² BGF). Historische Kapelle mit Sakristei in Fertigstellung. Panoramablick auf die Landschaft, hohes Investitions- und Tourismuspotezial mit Teilungsmöglichkeit. Eingetragen im PDM Level IV: ca. ⅓ Agroforstfläche, Rest Spezial-Ackerland.
AMI: 11900
Ref. Externa: QTSA.T26
Id: 1771842
Inicie sessão para guardar este imóvel e aceder à sua lista de favoritos em qualquer dispositivo.
790.000 €
5 Quartos
4 WCs
Área bruta : 640 m²
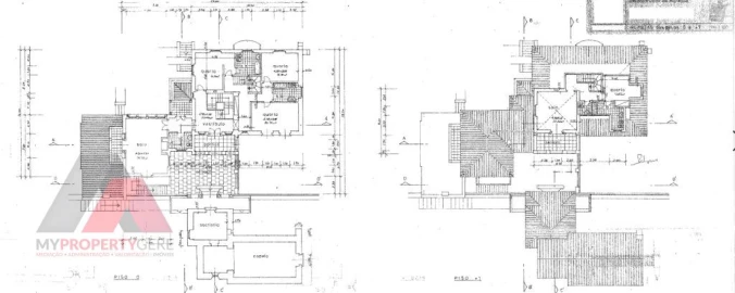
Magnifica moradia independente de tipologia T4+1, dotada de um espaço exterior apetecível, bastante privacidade e iluminação natural, bons acessos e serviços em redor que lhe proporcionarão uma qualidade de vida superior, tranquila e equilibrada. A propriedade é composta por piso térreo, piso superior e cave. O piso térreo conta com sala generosa de 68m2, com lareira e recuperador de calor, hall de entrada de 11m2, cozinha generosa, equipada, com 31m2, despensa de 6m2, um quarto com 16m2, escritório de 12m2, corredor e casa de banho comum de 7m2. O piso superior dispõe de um hall de quartos de 7m2, uma fantástica suite com 30m2, closet de 9m2 e casa de banho privativa de 6m2, dois quartos de 18m2, casa de banho comum de 9m2 e uma varanda com 22m2. Todas as divisões do imóvel possuem janelas, dando uma iluminação excelente a todas as áreas. A cave detém uma adega típica com 25m2, garagem de 75m2 com capacidade para a colocação de 3 viaturas, área de arrumos de 40m2 e uma casa de banho de apoio com 4m2. No seu espaço exterior conta com um anexo com sala de convívio, bar, churrasqueira, forno, criando uma área lounge ideal para momentos de lazer inesquecíveis com a sua família ou entre amigos. O seu extenso jardim de 200 m2, extremamente bem cuidado, com rega sustentável através do furo existente, confere a esta moradia uma envolvência de natureza e bem estar, disponibilizando ainda espaço, se mais tarde desejar, para a colocação de uma piscina. A moradia encontra-se inserida numa Urbanização Exclusiva, de ambiente muito familiar, com campo de ténis, duas piscinas, campo de futebol e clubhouse, o match perfeito para quem tem crianças, para que estas possam usufruir de momentos de pura diversão, em segurança. Aqui estará a apenas 20 minutos das bonitas praias de Santa Cruz, a 30 minutos da Vila Piscatória da Ericeira, a 6 minutos do centro da cidade de Torres Vedras e a 4 minutos do acesso à autoestrada A8, colocando-o a 45 minutos do coração da cidade de Lisboa. Se pretende elevar a sua qualidade de vida e da sua família, não espere mais e agende já a sua visita! Confie no nosso profissionalismo e experiência. ---------------- REF. 5339WT ---------------- Torres Vedras é um concelho marcado pela sua economia essencialmente agrícola e pela sua paisagem de vinhedos, com cheiro a Mar Atlântico. Esta é uma excelente região que tem bom vinho e deliciosa gastronomia para experienciar! Na cidade, que dá nome ao concelho, também não falta património rico que merece uma visita, como ruas e ruelas que traçam a vivência de uma urbe dinâmica, num contraste de modernidade que integra a história aqui decorreram guerras, feitos heroicos de resistência (Linhas de Torres Vedras, forte de S. Vicente) e grandes vitórias. * Todas as informações apresentadas não têm qualquer carácter vinculativo, não dispensa a confirmação por parte da mediadora, bem como a consulta da documentação do imóvel * Crédito à habitação? Sem preocupações, nós tratamos de todo o processo até ao dia da escritura. Explique-nos a sua situação e nós procuramos o banco que lhe proporciona as melhores condições de financiamento.
AMI: 6463
Ref. Externa: 5339WT (2)
Id: 1741351
Inicie sessão para guardar este imóvel e aceder à sua lista de favoritos em qualquer dispositivo.
1.500.000 €
4 Quartos
3 WCs
Área bruta : 379 m²
Excelente Moradia T4 em Construção Descubra esta incrível moradia T4, com linhas contemporâneas e acabamentos de alta qualidade que oferece todo o conforto. Localização ideal para quem busca paz e tranquilidade. Situa-se a poucos minutos da autoestrada com acesso a Lisboa, perto da cidade de Torres Vedras, campo de golfe e praias do Oeste. Características: 4 quartos espaçosos. Piscina privada para momentos de lazer. Terraço perfeito para relaxar e desfrutar do ar livre. Jardim bem cuidado. Churrasqueira para momentos de convívio. Desfrute de um estilo de vida equilibrado entre o campo, o mar e a cidade! Agende já a sua visita e não perca esta oportunidade única. A informação facultada é meramente informativa pelo que não pode ser considerada vinculativa e está sujeita a alterações.
AMI: 20071
Ref. Externa: RC2004-022
Id: 1701743
Inicie sessão para guardar este imóvel e aceder à sua lista de favoritos em qualquer dispositivo.
1.600.000 €
5 Quartos
4 WCs
Área bruta : 463 m²
Esta exclusiva moradia de luxo, situada na prestigiada Quinta de Fez, no Turcifal, destaca-se pelo seu design contemporâneo, elegante e intemporal. O projeto foi desenvolvido com um elevado nível de exigência técnica, funcional e estética, privilegiando o conforto, a eficiência energética, a sustentabilidade e a elevada qualidade construtiva. Os espaços interiores foram cuidadosamente concebidos para proporcionar amplas áreas, abundante luz natural e uma forte ligação entre o interior e o exterior, graças aos grandes vãos envidraçados. As soluções construtivas adotadas asseguram excelentes níveis de isolamento térmico e acústico, garantindo conforto e bem-estar durante todo o ano. A sustentabilidade assume um papel central, com a integração de painéis solares fotovoltaicos, sistemas de reaproveitamento de água e equipamentos energeticamente eficientes, promovendo uma vivência moderna e responsável. Inserida numa localização privilegiada, esta moradia combina tranquilidade e privacidade com a proximidade a Lisboa, às praias da região Oeste, a campos de golfe e aos principais eixos rodoviários, oferecendo uma qualidade de vida ímpar. A informação facultada é meramente informativa pelo que não pode ser considerada vinculativa e está sujeita a alterações.
AMI: 20071
Ref. Externa: RC2004-061
Id: 1589114
Inicie sessão para guardar este imóvel e aceder à sua lista de favoritos em qualquer dispositivo.
Profissionais que conhecem esta zona a fundo — contacte-os para uma avaliação personalizada.
1.500.000 €
10 Quartos
5 WCs
Área bruta : 378 m²
Magnífica Propriedade com 5.685 m² no Turcifal – Exclusividade, Espaço e Qualidade de Vida. Inserida num amplo terreno com 5.685 m², esta extraordinária moradia unifamiliar destaca-se pela sua dimensão, privacidade e envolvente natural, localizada no Casal do Anjo, Turcifal, numa zona urbana periférica de carácter rural. A apenas 30 minutos de Lisboa, 10 minutos de Torres Vedras, 5 minutos de um prestigiado campo de golfe e muito próxima das praias do Oeste, esta propriedade oferece o equilíbrio perfeito entre tranquilidade e acessibilidade. A moradia desenvolve-se por três pisos destinados a habitação e apresenta uma tipologia superior a T6, ideal para famílias numerosas, habitação multifamiliar ou projetos de turismo residencial. O interior é composto por treze divisões principais, vários vestíbulos e zonas de circulação amplas, duas cozinhas, despensa e cinco instalações sanitárias, proporcionando conforto e funcionalidade em todos os espaços. No exterior, a propriedade é valorizada por piscina, terraços, alpendres e jardins, convidando ao lazer, convívio e desfrute da natureza envolvente, com total privacidade. Uma oportunidade única para quem procura uma propriedade de grandes dimensões, com enorme potencial, numa localização privilegiada do Oeste. Venha visitar. A informação facultada é meramente informativa pelo que não pode ser considerada vinculativa e está sujeita a alterações.
AMI: 20071
Ref. Externa: RC2004-058
Id: 1567128
Inicie sessão para guardar este imóvel e aceder à sua lista de favoritos em qualquer dispositivo.
99.000 €
Área bruta : 193 m²
Casas para recuperar com 193m2 de área total, inseridas num tereno de 440m2. Na Cadriceira, num aglomerado junto ao famoso condomínio fechado Campo Real, com Golf e hotel a 15 minutos de Torres Vedras. Estas edificações perfeitas para a recuperação de uma moradia térrea, ainda com espaço para ajardinar e construir uma piscina. Uma das grandes mais valias deste imóvel, é a possibilidade de reconstruir as edificações existentes, evitando a necessidade de elaborar um projeto de raiz. Permitindo agilizar significativamente todo o processo burocrático e reduzir prazos de licenciamento. Tem uma ótima exposição solar, zona abrigada, boa acessibilidade á A8, apenas a 7 minutos. Tudo isto a 40 minutos de Lisboa e a 15 minutos da cidade de Torres Vedras , onde se vive tranquilamente com todo o comércio e serviços que uma cidade pode oferecer. Estou ao seu dispor para lhe fornecer toda a documentação necssária e colaborar num possivel financiamento bancário.
AMI: 21960
Ref. Externa: KWPT-022924
Id: 1431672
Inicie sessão para guardar este imóvel e aceder à sua lista de favoritos em qualquer dispositivo.
790.000 €
5 Quartos
4 WCs
Área bruta : 640 m²
Localizada no Turcifal, esta moradia independente de três pisos, com uma área total de terreno de 1.011 m², oferece um ambiente de conforto e tranquilidade. Inserida numa urbanização exclusiva com campo de ténis, duas piscinas, campo de futebol e clubhouse, esta moradia oferece um ambiente seguro e familiar, ideal para famílias. Com uma área bruta de construção de 640,5 m², a propriedade está bem distribuída em três pisos: • Cave: Adega de 25 m², garagem de 75 m² com capacidade para três viaturas, quatro arrecadações (totalizando 40 m²) e uma casa de banho de apoio. • Rés-do-chão: Sala de 68 m² com lareira, cozinha equipada de 31 m², despensa de 6 m², quarto de 16 m², escritório de 12 m² e casa de banho de 7 m². Acesso direto ao terraço e logradouro. • Primeiro Andar: Suite principal de 30 m² com closet de 9 m² e casa de banho privativa, dois quartos de 18 m² cada, casa de banho comum de 9 m² e varanda de 22 m² com vista para o jardim. A moradia encontra-se equipada com aquecimento central e lareira com recuperador de calor. O exterior combina elementos tradicionais com acabamentos modernos. Dispõe de um pátio em calçada portuguesa, terraço coberto com churrasqueira e forno. Um anexo com área de convívio e bar oferece um espaço adicional para lazer. O jardim de 200 m², com rega sustentável, tem espaço suficiente para instalação de uma piscina. Localização: • 20 minutos das praias de Santa Cruz • 30 minutos da Ericeira • 6 minutos do centro de Torres Vedras • 4 minutos da autoestrada A8, com acesso rápido a Lisboa (45 minutos) Uma moradia que oferece espaço, privacidade e acesso fácil a serviços e áreas de lazer, ideal para quem procura uma localização equilibrada entre o campo e a cidade. Na KW Portugal acreditamos na partilha (50% - 50%) como uma forma de prestar o melhor serviço ao cliente e por isso se é profissional do sector e tem um cliente comprador qualificado, contacte-me e agende a sua visita!
AMI: 7183
Ref. Externa: KWPT-007811
Id: 1429065
Inicie sessão para guardar este imóvel e aceder à sua lista de favoritos em qualquer dispositivo.
1.200.000 €
3 Quartos
3 WCs
Área bruta : 461 m²
Campo Real - Viva entre a Natureza e a Cidade, num Cenário Único e Inspirador Situado em plena Paisagem Protegida da Serra do Socorro e Archeira, em Torres Vedras distinguida com o Galardão Green Destination o Campo Real proporciona-lhe um equilíbrio perfeito entre tranquilidade, natureza e proximidade urbana. A apenas 30 minutos de Lisboa, este é o lugar ideal para quem procura uma vida plena, rodeada de beleza natural e todas as comodidades modernas. O empreendimento é reconhecido pelas suas vistas desafogadas e pela envolvente natural ímpar, oferecendo um ambiente perfeito para viver, relaxar e aproveitar o melhor que a natureza tem para dar. Um Empreendimento de Excelência Aqui encontrará um conjunto de infraestruturas que elevam a qualidade de vida: Campo de golfe de referência Piscinas para toda a família Segurança 24 horas Zona envolvente privilegiada, com acesso a: Praias deslumbrantes do Oeste Trilhos e passeios pedestres em plena natureza virgem Experiências gastronómicas e vínicas únicas Atividade cultural e vida noturna, tanto local como próxima da capital Torres Vedras - Qualidade de Vida e Comodidade O maior município do distrito de Lisboa oferece tudo o que precisa: Equipamentos hospitalares de qualidade Escolas de referência Oferta desportiva variada Comércio diversificado Cultura e património histórico Tudo isto, aliado a uma forte ligação à natureza e à tranquilidade característica da região. A Moradia A moradia inicia construção em Julho, tendo uma previsão de conclusão para Abril 2027. Uma oportunidade rara de garantir o seu espaço num dos empreendimentos mais exclusivos da região. Viva com calma, equilíbrio e qualidade de vida num lugar onde o campo e a cidade se unem em harmonia. Venha morar neste paraíso! Marque já a sua visita. REF:JA082501
AMI: 278
Ref. Externa: JA082501
Id: 1316452
Inicie sessão para guardar este imóvel e aceder à sua lista de favoritos em qualquer dispositivo.
1.275.000 €
3 Quartos
3 WCs
Área bruta : 421 m²
CampoReal - Viva Entre a Cidade e o Campo num Cenário Único e Inspirador Em plena Paisagem Protegida da Serra do Socorro e Archeira, em Torres Vedras distinguida com o Galardão Green Destination encontra o CampoReal, um lugar pensado para quem procura qualidade de vida, tranquilidade e contacto direto com a natureza. A apenas 30 minutos de Lisboa, este é o destino ideal para viver em pleno, longe do ritmo intenso da cidade, mas perto de tudo o que ela oferece. O CampoReal é amplamente reconhecido pelo seu contexto natural privilegiado, com vistas amplas e uma paisagem ímpar que convida ao descanso e à contemplação. Aqui, cada dia é uma oportunidade para desfrutar do melhor que a natureza nos proporciona. Um Empreendimento Diferenciador Entre as várias características que tornam este local único, destacam-se: Campo de Golfe de excelência Piscinas para toda a família Segurança 24 horas Acesso a uma envolvente rica e variada: Praias deslumbrantes do Oeste Trilhos pedestres em plena natureza virgem Experiências gastronómicas e vínicas de referência Oferta cultural e noturna diversificada E, claro, a proximidade à capital, a apenas 30 minutos de carro Torres Vedras - Qualidade de Vida e Comodidade O maior município do distrito de Lisboa oferece uma combinação exemplar de património natural, histórico e serviços essenciais: Infraestruturas hospitalares de qualidade Escolas de referência Oferta desportiva diversificada Comércio e cultura para todas as idades e estilos de vida É o local perfeito para quem procura conforto, segurança e uma vivência completa. A Moradia Esta moradia encontra-se em fase de construção, com conclusão prevista para setembro de 2027 a oportunidade ideal para garantir já o seu novo lar num dos empreendimentos mais exclusivos da região. Desfrute de calma, tranquilidade e qualidade de vida num lugar verdadeiramente único. Venha morar neste paraíso. Marque já a sua visita! REF:JA082502
AMI: 278
Ref. Externa: JA082502
Id: 1316451
Inicie sessão para guardar este imóvel e aceder à sua lista de favoritos em qualquer dispositivo.
1.500.000 €
4 Quartos
3 WCs
Área bruta : 379 m²
Ref: 3167-V4NBM Moradia em fase de construção, inserida num terreno com 1083 m2, com piscina. Bons Acessos, 35 minutos Lisboa, 20 minutos das praias. Área do tereno - 1083m2 Área de bruta de construção 379m2 Composta por: Piso 0: Garagem, arrumos, hall, jardim Piso -1: hall, Sala Estar, Sala refeições, Cozinha, lavandaria, 2 instalações sanitárias sociais, arrumos, 3 quartos, 1 suites com clouset, jardim. Equipamentos: - Vãos exteriores em vidros duplos; - Cozinha totalmente equipada com (placa, exaustor, forno, máquina de lavar louça, máquina de lavar roupa, frigorífico combinado); - Lareiras - Vídeo Porteiro; - Piso Radiante em toda casa. - Portões automatizados; - Jardim - Sistema de rega; - Bomba de calor para aquecimento águas quentes sanitárias, piscina e piso radiante; - Ar-condicionado com todos os compartimentos; - Piscina Coberta e água aquecida; - Churrasqueira; A informação disponibilizada, ainda que precisa, não dispensa a sua confirmação nem pode ser considerada vinculativa. Tratamos do seu processo de crédito, sem burocracias e sem custos. Intermediário de Crédito n.º 0002292.
AMI: 9369
Ref. Externa: 3167-V4NBM
Id: 944884
Inicie sessão para guardar este imóvel e aceder à sua lista de favoritos em qualquer dispositivo.
790.000 €
5 Quartos
4 WCs
Área bruta : 640 m²
Magnifica moradia independente de tipologia T4+1, dotada de um espaço exterior apetecível, bastante privacidade e iluminação natural, bons acessos e serviços em redor que lhe proporcionarão uma qualidade de vida superior, tranquila e equilibrada. A propriedade é composta por piso térreo, piso superior e cave. O piso térreo conta com sala generosa de 68m2, com lareira e recuperador de calor, hall de entrada de 11m2, cozinha generosa, equipada, com 31m2, despensa de 6m2, um quarto com 16m2, escritório de 12m2, corredor e casa de banho comum de 7m2. O piso superior dispõe de um hall de quartos de 7m2, uma fantástica suite com 30m2, closet de 9m2 e casa de banho privativa de 6m2, dois quartos de 18m2, casa de banho comum de 9m2 e uma varanda com 22m2. Todas as divisões do imóvel possuem janelas, dando uma iluminação excelente a todas as áreas. A cave detém uma adega típica com 25m2, garagem de 75m2 com capacidade para a colocação de 3 viaturas, área de arrumos de 40m2 e uma casa de banho de apoio com 4m2. No seu espaço exterior conta com um anexo com sala de convívio, bar, churrasqueira, forno, criando uma área lounge ideal para momentos de lazer inesquecíveis com a sua família ou entre amigos. O seu extenso jardim de 200 m2, extremamente bem cuidado, com rega sustentável através do furo existente, confere a esta moradia uma envolvência de natureza e bem estar, disponibilizando ainda espaço, se mais tarde desejar, para a colocação de uma piscina. A moradia encontra-se inserida numa Urbanização Exclusiva, de ambiente muito familiar, com campo de ténis, duas piscinas, campo de futebol e clubhouse, o match perfeito para quem tem crianças, para que estas possam usufruir de momentos de pura diversão, em segurança. Aqui estará a apenas 20 minutos das bonitas praias de Santa Cruz, a 30 minutos da Vila Piscatória da Ericeira, a 6 minutos do centro da cidade de Torres Vedras e a 4 minutos do acesso à autoestrada A8, colocando-o a 45 minutos do coração da cidade de Lisboa. Se pretende elevar a sua qualidade de vida e da sua família, não espere mais e agende já a sua visita! Confie no nosso profissionalismo e experiência. ---------------- REF. 5339WT ---------------- Torres Vedras é um concelho marcado pela sua economia essencialmente agrícola e pela sua paisagem de vinhedos, com cheiro a Mar Atlântico. Esta é uma excelente região que tem bom vinho e deliciosa gastronomia para experienciar! Na cidade, que dá nome ao concelho, também não falta património rico que merece uma visita, como ruas e ruelas que traçam a vivência de uma urbe dinâmica, num contraste de modernidade que integra a história aqui decorreram guerras, feitos heroicos de resistência (Linhas de Torres Vedras, forte de S. Vicente) e grandes vitórias. * Todas as informações apresentadas não têm qualquer carácter vinculativo, não dispensa a confirmação por parte da mediadora, bem como a consulta da documentação do imóvel * Crédito à habitação? Sem preocupações, nós tratamos de todo o processo até ao dia da escritura. Explique-nos a sua situação e nós procuramos o banco que lhe proporciona as melhores condições de financiamento.
AMI: 6463
Ref. Externa: 5339WT
Id: 923090
Inicie sessão para guardar este imóvel e aceder à sua lista de favoritos em qualquer dispositivo.
125.000 €
3 Quartos
4 WCs
Área bruta : 260 m²
Ref.ª: MTL3237 - Terreno com projeto PRONTO A CONSTRUIR para Moradia | Turcifal, Torres Vedras. == LICENÇA PAGA - PRONTO A CONSTRUIR! == Terreno com 2.000 m2 para a construção de Moradia T3+1 com 260 m2. Com garagem e piscina. Em localidade tranquila a apenas 5 km de Torres Vedras e da A8 Lisboa-Leiria. A 40 km de Lisboa e do aeroporto. Terreno atualmente com ruína com 150 m2. Com poço. Não perca esta oportunidade! Marque já a sua visita connosco! MediPred - Soluções Globais em Imobiliário!
AMI: 8388
Ref. Externa: MTL3237M
Id: 727647
Inicie sessão para guardar este imóvel e aceder à sua lista de favoritos em qualquer dispositivo.
79.000 €
1 Quartos
Área útil : 99 m²
Casa de habitação para reabilitar /remodelar. Localizada na freguesia do Turcifal a 10 minutos da cidade de Torres Vedras e a 40 minutos de Lisboa. A aldeia está situada junto à Estrada Nacional 8, com ótimos acessos tanto de carro como de transportes públicos (autocarros) para a cidade de Torres Vedras e/ou Malveira e Lisboa (dispõe de 3 paragens de autocarro). Ao seu dispor tem um supermercado, padaria, cafés e bar/restaurante, parque infantil , ginásio e ringue para desportos e actividades diversas. Distâncias: A 10 minutos da Cidade de Torres Vedras A 7 min do acesso Autoestrada A8 (Lisboa-Porto) A 40 minutos de LISBOA (aeroporto ) A 20 minutos das PRAIAS da Ericeira e Santa Cruz A 15 minutos da Malveira /autoestrada A8 Imóvel sem Licença de Utilização para venda nesta condição ao abrigo do Simplex. Não perca esta oportunidade de viver na tranquilidade do campo mas próximo da cidade. Contacte-me e marque já a sua visita ! #ref: 72314
AMI: 11220
Ref. Externa: 72314
Id: 595892
Inicie sessão para guardar este imóvel e aceder à sua lista de favoritos em qualquer dispositivo.
© Copyright 2023 | CASACERTA. All rights reserved
Guardar favoritos
Este imóvel foi guardados nos seus favoritos com sucesso.
Para poder guardar pesquisa deverá ter a sua sessão iniciada.
Caso não tenha uma conta, deverá criar uma.
A sua pesquisa foi guardada com sucesso!
Este site utiliza cookies. Ao navegar no site estará a consentir a sua utilização.
Para mais informações sobre os cookies pode consultar a
política de privacidade.