Lista
Comprar
Arrendar
5 Quartos
2 WCs
Área bruta : 200 m²
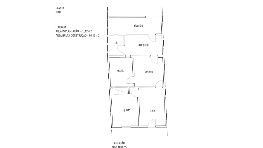
Moradia de dois pisos situada no centro da vila de Cabeço de Vide, numa localização privilegiada junto ao mercado e ao infantário. Esta propriedade, para recuperar, apresenta uma excelente volumetria e grande potencial, sendo ideal tanto para habitação própria e criação de um confortável espaço familiar, como para investimento no mercado de arrendamento ou alojamento local. O imóvel dispõe de uma distribuição generosa de áreas, contando com duas cozinhas, duas salas de estar, cinco quartos e duas casas de banho, o que permite uma organização versátil dos espaços ou até a possibilidade de criação de duas unidades habitacionais independentes. No exterior, a moradia beneficia de espaço ao ar livre, perfeito para momentos de lazer, refeições em família ou criação de uma pequena zona de jardim. Conta ainda com garagem e arrecadação, oferecendo comodidade e espaço adicional de arrumação. Com uma localização central e próxima de serviços essenciais, esta é uma excelente oportunidade para quem procura um projeto de recuperação com grande potencial de valorização numa das zonas mais tranquilas do concelho. Venha visitar! A ' EU LISBOA - Actividades Imobiliárias, Lda.', com escritório na Rua Latino Coelho, 87, 1050- 134 Lisboa, Licença AMI 12244, é a entidade responsável pelo anúncio através do qual os Utilizadores, Destinatários do Serviço ou Clientes têm acesso remoto aos serviços e produtos da ' EU LISBOA - Actividades Imobiliárias, Lda.', que são apresentados, comercializados ou prestados.
AMI: 12244
Ref. Externa: EuLisboa5162
Id: 1689820
Inicie sessão para guardar este imóvel e aceder à sua lista de favoritos em qualquer dispositivo.
16.000 €
1 Quartos
Área bruta : 45 m²
Casa para Renovação com Potencial no Centro de Fronteira Apresentamos esta casa com grande potencial localizada na vila de Fronteira, uma zona tranquila e característica do Alentejo, ideal para quem procura um projeto de renovação com personalidade. O imóvel dispõe de 45 m² de área de terreno e 45 m² de área bruta de construção, distribuídos por três divisões, incluindo um quarto, sala de estar e cozinha. A propriedade necessita de obras de renovação, oferecendo assim a oportunidade de transformar este espaço num lar acolhedor e adaptado ao seu estilo. Esta pode ser uma excelente opção tanto para habitação própria, casa de férias ou investimento, permitindo criar um ambiente confortável e personalizado num cenário calmo e autêntico. Localizada numa vila típica alentejana, a casa beneficia de um ambiente tranquilo e rural, ideal para quem valoriza qualidade de vida, proximidade com a natureza e um ritmo de vida mais sereno. Se procura um imóvel com potencial para renovar e transformar num projeto único, esta pode ser a oportunidade certa. Entre em contacto para mais informações ou para agendar a sua visita. #ref: 837312
AMI: 11220
Ref. Externa: 837312
Id: 1680547
Inicie sessão para guardar este imóvel e aceder à sua lista de favoritos em qualquer dispositivo.
249.500 €
1 Quartos
Área bruta : 500 m²
Magnífico Monte Alentejano com vista para a charmosa vila de Cabeço de Vide Este imóvel prima pela fantástica localização e pelo fácil acesso. Com um terreno agrícola com 4ha, furo e eletricidade, este imóvel dispõem de bastante potencial para reabilitar e rentabilizar ou para transformá-lo no refúgio de sonho no Alentejo, para toda a família desfrutar. Com duas lareiras alentejanas, chão em pedra e o telhado em excelente estado de conservação, o imóvel respeita a traça da região, o que lhe concede uma beleza única e as características ideais para construir um luxuoso loft com 300m2. Localizado a escassos metros da N369. Sito na charmosa vila de Cabeço de Vide numa freguesia do Alto Alentejo, localizada na encosta meridional de um monte, estendendo-se até à planície e aí formando um rossio, tido como o mais amplo entre o Tejo e o Guadiana. Cabeço de Vide é amplamente conhecida pelas sua água termais, utilizadas nas Termas da Sulfúrea. Estima-se que estas águas possuam cerca de 3500 anos e que os primeiros utilizadores desta para fins termais terão sido povos romanos. Em termos de distâncias aproximadas, a vila de Cabeço de Vide encontra-se a: Portugal - 182 km de Lisboa - 36 km de Portalegre - 45 km de Estremoz - 12 km Fronteira - 10 km Alter do Chão - 10 km Vaiamonte Espanha - 67 km de Badajoz Marque já a sua visita e dê o primeiro passo em direção à concretização do seu sonho! A 'EU LISBOA - Atividades Imobiliárias, Lda.', com escritório na Rua Latino Coelho, (telefone) Lisboa, Licença AMI 12244, é a entidade responsável pelo anúncio através do qual os Utilizadores, Destinatários do Serviço ou Clientes têm acesso remoto aos serviços e produtos da 'EU LISBOA - Atividades Imobiliárias, Lda.', que são apresentados, comercializados ou prestados. The 'EU LISBOA - Actividades Imobiliárias, Lda', is the entity responsible for the advertisement through which Users, Service Recipients or Clients have remote access to the services and products of 'EU LISBOA - Actividades Imobiliárias, Lda.', Which are presented, marketed or provided.
AMI: 12244
Ref. Externa: M&A0007
Id: 1671296
Inicie sessão para guardar este imóvel e aceder à sua lista de favoritos em qualquer dispositivo.
150.000 €
3 Quartos
2 WCs
Área bruta : 163 m²
Charmosa moradia pronta a habitar com terraço em Fronteira - Possibilidade de rentabilizar Excelente moradia, com localização privilegiada e perto de todos os serviços. O imóvel é composto por r/c e 1º andar, no r/c encontra uma sala com salamandra, 2 quartos, cozinha, WC e um pequeno logradouro, ao nível do 1º andar, encontra 1 sala bastante ampla e luminosa, um quarto com closet, um WC, uma despensa de apoio ao corredor, uma cozinha e um magnifico terraço. A moradia tem duas entradas independentes o que permite a divisão do imóvel em duas frações, possibilitando a utilização do r/c e 1º andar de forma independente. O imóvel encontra-se em excelente estado de conservação e com a traça alentejana preservada. Aproveite já esta excelente oportunidade! A ' EU LISBOA - Actividades Imobiliárias, Lda.', com escritório na Rua Latino Coelho, 87, Lisboa, Licença AMI 12244, é a entidade responsável pelo anúncio através do qual os Utilizadores, Destinatários do Serviço ou Clientes têm acesso remoto aos serviços e produtos da ' EU LISBOA - Actividades Imobiliárias, Lda.', que são apresentados, comercializados ou prestados.
AMI: 12244
Ref. Externa: EuLisboa5159
Id: 1671295
Inicie sessão para guardar este imóvel e aceder à sua lista de favoritos em qualquer dispositivo.
250.000 €
3 Quartos
2 WCs
Área bruta : 128 m²
Procura uma moradia familiar acolhedora, com todas as comodidades e com uma vista deslumbrante? Então, não perca mais tempo e agende já a sua visita! Esta moradia térrea, dispõem de 2 quartos com roupeiro, 1 suite, 1 WC com banheira, 1 sala e cozinha equipada em open space. O imóvel encontra-se equipado com 3 ar condicionados, aquecimento central, janelas com vidros duplos, caldeira eléctrica e sala com recuperador de calor. Dispõem ainda de uma despensa de apoio à cozinha e outra no corredor. No espaço exterior, encontramos um espaço amplo na lateral da moradia, uma zona de barbecue, uma zona de refeições e de estar onde é possível desfrutar da paisagem alentejana e o acesso à garagem com portão eléctrico. A moradia encontra-se muito bem dividida, com espaços de lazer e arrumações para que possa viver o Alentejo com todo o conforto e comodidade. Por fim, com acesso pela garagem e acesso independente encontramos uma cave com potencial para ser transformada em ginásio, escritórios ou em outra habitação. A ' EU LISBOA - Actividades Imobiliárias, Lda.', com escritório na Rua Latino Coelho, (87), Lisboa, Licença AMI 12244, é a entidade responsável pelo anúncio através do qual os Utilizadores, Destinatários do Serviço ou Clientes têm acesso remoto aos serviços e produtos da ' EU LISBOA - Actividades Imobiliárias, Lda.', que são apresentados, comercializados ou prestados.
AMI: 12244
Ref. Externa: EuLisboa5158
Id: 1667812
Inicie sessão para guardar este imóvel e aceder à sua lista de favoritos em qualquer dispositivo.
147.000 €
4 Quartos
2 WCs
Área bruta : 198 m²
Apresentamos esta excelente moradia T4 situada na tranquila vila de Cabeço de Vide, ideal para quem procura qualidade de vida, conforto e vistas deslumbrantes sobre a paisagem alentejana. Com uma distribuição harmoniosa e áreas generosas, esta moradia dispõe de quatro quartos luminosos, perfeitos para acomodar toda a família ou criar espaços adicionais como escritório ou sala de lazer. Conta ainda com duas casas de banho completas, funcionais e bem dimensionadas. A zona social destaca-se pela sua cozinha equipada em estilo alentejano, onde o charme rústico se conjuga com a funcionalidade, criando um ambiente acolhedor e tradicional, perfeito para momentos em família. No exterior, a propriedade oferece dois amplos terraços com vista desafogada, ideais para desfrutar da tranquilidade da paisagem envolvente, seja para relaxar ao final do dia ou para convívios ao ar livre. Uma excelente oportunidade para quem valoriza o sossego, a autenticidade e o encanto do Alentejo. Agende já a sua visita e venha descobrir o potencial desta fantástica moradia! Realty ONE Group A Realty ONE Group é atualmente a marca imobiliária com o crescimento mais rápido nos Estados Unidos. Com mais de 20 anos de experiência, está presente em 26 países e continua a expandir-se a nível global. À frente da marca está Vinnie Tracey, presidente da Realty ONE Group, que durante 40 anos liderou uma das maiores referências mundiais do setor. Com a sua vasta experiência, está a consolidar a Realty ONE Group como uma das marcas líderes nos Estados Unidos e no mundo. Motivos para escolher a ONE As Pessoas Primeiro. Os nossos consultores recebem formação de excelência, nacional e internacional, ministrada pelos melhores especialistas em todas as vertentes do negócio. Toda a formação é gratuita, garantindo que a equipa está preparada para o apoiar com máxima eficiência. “Enquanto desfruta dos prazeres da sua vida, compre e venda o seu imóvel de forma rápida, simples e segura.” ONE House. ONE Dream. ONE Life(style).
AMI: 25448
Ref. Externa: ONE501846-2
Id: 1653691
Inicie sessão para guardar este imóvel e aceder à sua lista de favoritos em qualquer dispositivo.
150.000 €
2 Quartos
1 WCs
Área bruta : 140 m²
Moradia situada em Cabeço de Vide, com excelente exposição solar e muita luz natural ao longo de todo o dia, ideal para quem procura conforto, espaço e potencial de valorização. A habitação é composta por 2 quartos, uma sala acolhedora e luminosa, hall de entrada, casa de banho e cozinha funcional, contando ainda com um logradouro agradável e um telheiro com função de garagem. Dispõe igualmente de um sótão aproveitado em fase de acabamentos, onde se encontram três quartos adicionais, oferecendo uma excelente versatilidade de espaços. Equipada com janelas em alumínio e portadas, esta moradia destaca-se pela sua luminosidade, ótimo aproveitamento das áreas e múltiplas possibilidades de utilização, sendo perfeita para habitação própria, para uma família numerosa ou como investimento. Venha visitar! A 'EU LISBOA - Atividades Imobiliárias, Lda.', com escritório na Rua Latino Coelho, 87, Lisboa, Licença AMI 12244, é a entidade responsável pelo anúncio através do qual os Utilizadores, Destinatários do Serviço ou Clientes têm acesso remoto aos serviços e produtos da 'EU LISBOA - Atividades Imobiliárias, Lda.', que são apresentados, comercializados ou prestados.
AMI: 12244
Ref. Externa: EuLisboa5155
Id: 1638014
Inicie sessão para guardar este imóvel e aceder à sua lista de favoritos em qualquer dispositivo.
160.000 €
4 Quartos
2 WCs
Área bruta : 199 m²
Apartamento T5 recentemente renovado, situado no coração da vila de Fronteira, que se destaca pela amplitude das áreas e pela raridade das suas valências. Com 169 m² de área bruta privativa e garagem exclusiva com cerca de 30 m², reúne características pouco comuns no núcleo urbano consolidado, onde o estacionamento privativo constitui um verdadeiro privilégio. A distribuição interior privilegia o espaço e a funcionalidade. O apartamento integra sala e quatro quartos, um deles em suite com acesso a logradouro privativo, criando um equilíbrio entre áreas sociais generosas e zonas de descanso reservadas. A infraestrutura técnica foi pensada para o conforto do quotidiano. A cozinha encontra-se totalmente equipada e a habitação dispõe de dois termoacumuladores independentes, permitindo uma gestão eficiente de águas entre as diferentes zonas da casa. A lareira e a caixilharia com vidro duplo reforçam o conforto térmico ao longo de todo o ano. Inserido na envolvente autêntica do Alto Alentejo, este imóvel beneficia de uma localização que combina tranquilidade, património e qualidade de vida. A poucos minutos da Praia Fluvial da Ponte e a cerca de 10 minutos de Cabeço de Vide, conhecida pelas suas Termas da Sulfúrea, permite usufruir plenamente da natureza e do bem-estar característicos da região. A proximidade à fronteira, a cerca de 50 km de Espanha, acrescenta ainda uma dimensão estratégica de mobilidade e ligação internacional, reforçando o potencial de utilização tanto como residência permanente, casa de férias ou investimento. Uma oportunidade distinta para quem valoriza tranquilidade, autenticidade e qualidade de vida no Alto Alentejo.
AMI: 1032
Ref. Externa: CB02-0360
Id: 1564967
Inicie sessão para guardar este imóvel e aceder à sua lista de favoritos em qualquer dispositivo.
535.000 €
6 Quartos
Área bruta : 77610 m²
Moradia T6 com uma área de construção de 776m2, construída no século XVIII, restaurada em 1950 e completamente renovada (canalização, eletricidade e telhado), em 2024, destaca-se pelos seus detalhes originais e espaços amplos . Ao entrarmos deparamo-nos com um hall imponente de painéis de azulejos do século XVII e uma escadaria que conduz à área social. A sala de estar e a sala de jantar mantêm a elegância da época, com portas antigas, pavimento em casquinha em excelente estado, estuques decorativos e um candelabro histórico. A cozinha, muito funcional, inclui copa, bastante arrumação e acesso direto a uma varanda ampla com 31 m2 que conduz ao pátio com piscina. No piso superior, existem seis quartos e duas casas de banho (com possibilidade de criar mais casas de banho). No piso inferior, encontra diversas divisões adaptáveis, zona para staff, sala de jogos, garagem e mais um hall com azulejos originais. O pátio e a piscina oferecem total privacidade, perfeitos para momentos ao ar livre. Atualmente, a casa dispõe de 6 quartos, com várias áreas que podem ser convertidas em mais alojamentos. A propriedade é vendida com parte do mobiliário incluído. Um espaço ideal não só para habitação, mas também para investimento, graças ao seu potencial para funcionar como alojamento local, casamentos ou festas empresariais/privadas. Sobre Fronteira: A Torre do Relógio, situada no centro da vila, oferece uma vista panorâmica sobre a vila. A Igreja Matriz de Nossa Senhora da Atalaia e a Igreja de Nossa Senhora da Vila Velha, representam o património religioso e arquitetônico local. O Pelourinho de Fronteira, é símbolo da autonomia municipal e justiça. As 24 Horas TT de Fronteira realizam-se anualmente, num fim de semana entre os meses de novembro e dezembro. Uma visita à Praia Fluvial da Ribeira Grande é obrigatória. De referir ainda o Centro de Interpretação da Batalha dos Atoleiros. Situa-se a apenas 30 km de Estremoz, com boas acessibilidades para Évora (45 min) e Lisboa (1h30). Localizada numa região rica em património, vinhos e cultura, esta propriedade combina história, charme e potencial de rentabilização. A Castelhana agora é Dils. Com mais de 25 anos de experiência no mercado imobiliário português, a Castelhana é agora Dils, uma empresa internacional com mais de 50 anos de história e presença em Itália, Países Baixos, Espanha e Portugal. Sob a marca Dils, continuamos a prestar serviços especializados de consultoria, compra, venda, arrendamento e desenvolvimento de imóveis residenciais. Estamos ao seu lado, com uma equipa dedicada nos nossos escritórios em Lisboa, Estoril, Comporta, Porto e Algarve, prontos para apoiar o seu próximo investimento. Quando o mundo muda, é hora de reescrever as regras. It's time to imagine your future space.
AMI: 3497
Ref. Externa: 35401
Id: 1541081
Inicie sessão para guardar este imóvel e aceder à sua lista de favoritos em qualquer dispositivo.
600.000 €
4 Quartos
3 WCs
Área bruta : 200 m²
Monte Alentejano junto à vila de Cabeço de Vide Encantador monte alentejano, situado numa localização privilegiada junto à vila de Cabeço de Vide, inserido num terreno com 5 hectares, totalmente murado e vedado, garantindo privacidade. A propriedade encontra-se em estado razoável, oferecendo uma excelente base para pequenos melhoramentos e personalização ao seu gosto. Dispõe de uma moradia confortável com 4 quartos, ideal para residência permanente ou para acolher família e amigos, combinando funcionalidade com o charme típico do Alentejo. No exterior, destaca-se a piscina, perfeita para os dias quentes, vários anexos, garagem, uma charca e furo de água, assegurando ótimas condições para agricultura, lazer ou desenvolvimento de um projeto de turismo rural. Beneficia de um ambiente calmo e natural, com excelente exposição solar e vista desafogada sobre a paisagem alentejana e a vila. Localiza-se a apenas 1 km das Termas da Sulfúrea, reconhecidas pelas suas propriedades terapêuticas, e conta com bons acessos rodoviários, facilitando a ligação às localidades vizinhas. Uma propriedade única que alia qualidade de vida, espaço e contacto direto com a natureza, perfeita como residência permanente, refúgio de fim de semana ou investimento turístico. Agende já a sua visita e venha descobrir este verdadeiro refúgio no coração do Alentejo. A 'EU LISBOA - Atividades Imobiliárias, Lda.', com escritório na Rua Latino Coelho, (telefone) Lisboa, Licença AMI 12244, é a entidade responsável pelo anúncio através do qual os Utilizadores, Destinatários do Serviço ou Clientes têm acesso remoto aos serviços e produtos da 'EU LISBOA - Atividades Imobiliárias, Lda.', que são apresentados, comercializados ou prestados.
AMI: 12244
Ref. Externa: EuLisboa5149
Id: 1535637
Inicie sessão para guardar este imóvel e aceder à sua lista de favoritos em qualquer dispositivo.
750.000 €
4 Quartos
2 WCs
Área bruta : 290 m²
Esta encantadora Quinta T4, situado junto à serena localidade de Cabeço de Vide onde existem as Termas , e a 9 km da bela Vila de Alter do Chão , Distrito de Portalegre, apresenta um interior cuidadosamente mobilado e irradiando luminosidade. Os espaços são amplamente iluminados pela luz natural que flui através das janelas em alumínio com estores elétricos. A sala principal é aquecida por um recuperador de calor a pellets, proporcionando conforto nos meses mais frios. O imóvel conta ainda com armários embutidos e closet generoso no quarto principal, otimizando o espaço para arrumação. Além disso, a cozinha está equipada com modernos eletrodomésticos como placa de indução, exaustor,máquina de lavar loiça, frigorífico, forno eléctrico e um cilindro para águas quentes de 80 litros. A moradia é composta por 2 pisos. No Piso 0 estão a Sala comum com Cozinha , 2 casas de banho e 3 quartos. No piso 1 estão 2 quartos . No exterior estão 2 garagens com espaço para 3 viaturas e com portões automáticos. 1 Piscina , casa de máquinas, casa de furo de água e arrecadação. Área de implantação de 289 m2. Os quartos estão todos equipados com ar condicionado. O exterior do imóvel complementa as suas características interiores excepcionalmente bem; rodeado por vastas áreas verdes pontuadas por jardins majestosos e pastagens extensivas criam um ambiente agradável ao ar livre. A piscina exterior comum proporciona refresco durante os dias quentes da estação quente enquanto várias zonas ajardinadas oferecem privacidade aos seus visitantes ou moradores permanentes. Também há acesso às comodidades típicas do campo rural português sem abrir mão dos benefícios da vida moderna: furo/poço disponível garantem água abundante à propriedade. O terreno tem uma área de 3 hectares, composto por cerca de 250 oliveiras que produzem anualmente cerca de 5 toneladas de azeitona. Localizado junto à cidade mas envolto pelo sossego campestre característico desta região alentejana oferece fácil acesso a diversas infraestruturas essenciais tais como escolas locais reconhecidas pela sua qualidade educacional assim como serviços públicos disponíveis nas imediações – farmácias ou supermercados estão apenas a poucos minutos distantes garantindo conveniência diária aos residentes deste magnífico lar familiar onde tudo se encontra numa distância accessível perfeita! Adicionalmente realce-se o portão automático que facilita entradas seguras ,ideal tanto para famílias numerosas quanto indivíduos à procura de refúgio após longos períodos laborais! Este não é somente um lugar habitável; representa sim condições ótimas unir modernismo aliada beleza atemporal rústica num só endereço privilegiado propício viver pleno equilíbrio entre lazer laboral tornando-o verdadeiramente único! A informação disponibilizada, ainda que precisa, não dispensa a sua confirmação nem pode ser considerada vinculativa.
AMI: 20843
Ref. Externa: 190684
Id: 1528930
Inicie sessão para guardar este imóvel e aceder à sua lista de favoritos em qualquer dispositivo.
170.000 €
7 Quartos
6 WCs
Área bruta : 285 m²
Apresentam-se duas Moradias inseridas em zona tranquila, na vila de Cabeço de Vide.. Ideal para quem procura conforto, versatilidade e uma excelente oportunidade de investimento.. Cada moradia dispõe de entrada independente, garantindo total privacidade e autonomia.. Uma das moradias é composta por quatro assoalhadas, oferecendo amplos espaços e luminosidade natural, perfeita para residência familiar.. O outro imóvel, com três assoalhadas, combina funcionalidade e conforto, sendo uma excelente opção para arrendamento ou alojamento local.. O proprietário pretende vender as duas moradias em conjunto (apesar de cada uma uma ter a sua caderneta urbana), proporcionando ao comprador múltiplas possibilidades num único investimento: usufruir das duas habitações, viver numa e rentabilizar a outra, ou transformar o conjunto num projeto turístico ou familiar.. Ambos os imóveis encontram-se remodelados.. Uma oportunidade única para quem valoriza qualidade de vida, privacidade e investimento inteligente.. As Termas da Sulfúrea situam-se a 4 minutos, possuindo um complexo termal com águas terapêuticas reconhecidas, o que acrescenta um beneficio extra em termos de saúde, bem estar ou lazer.. O artesanato, as tradições Alentejanas, a gastronomia local.... O centro histórico da Vila de Cabeço de Vide está classificado e é um ponto de interesse.. A 180Km de Lisboa.. A 45Km de Estremoz.. A 36Km de Portalegre.. A 10Km de Fronteira.. A 10Km de Alter do Chão.. As Termas da Sulfúrea situam-se a 4 minutos, possuindo um complexo termal com águas terapêuticas reconhecidas, o que acrescenta um beneficio extra em termos de saúde, bem estar ou lazer.. O artesanato, as tradições Alentejanas, a gastronomia local.... O centro histórico da Vila de Cabeço de Vide está classificado e é um ponto de interesse.. A 180Km de Lisboa.. A 45Km de Estremoz.. A 36Km de Portalegre.. A 10Km de Fronteira.. A 10Km de Alter do Chão.. A 66Km de Espanha.. Não perca esta oportunidade !. Marque já a sua visita e descubra todo o potencial deste investimento único.. Venha descobrir "O Lugar dos Sonhos".. "A informação disponibilizada ainda que precisa, não dispensa a sua confirmação nem pode ser considerada vinculativa". Mostrar menos ^
AMI: 16812
Ref. Externa: ALM14-51/12326
Id: 1507031
Inicie sessão para guardar este imóvel e aceder à sua lista de favoritos em qualquer dispositivo.
2 Quartos
1 WCs
Área bruta : 76 m²
Moradia T2 com Quintal | Tranquilidade e Potencial em Vale de Maceiras Portalegre Se procura sossego, autenticidade e uma ligação à natureza, esta moradia em Vale de Maceiras, sito na Rua General Humberto Delgado. nº40, pode ser a escolha ideal para si. Composta por 2 quartos (um deles com janela), 1 casa de banho, uma marquise e um quintal espaçoso, esta casa de traça simples oferece um ambiente acolhedor com a vantagem de um espaço exterior onde pode criar a sua horta, zona de lazer ou até um recanto para refeições ao ar livre. Localizada em Vale de Maceiras, uma aldeia típica do concelho de Portalegre, esta moradia insere-se numa paisagem rural encantadora, onde o tempo corre devagar e a qualidade de vida fala mais alto. É ideal para quem procura uma segunda habitação, um refúgio de fim de semana ou até um projeto de reabilitação com potencial para alojamento local. DESTAQUES: - Moradia T2 com marquise - 1 casa de banho - Quintal espaçoso com diversas possibilidades - Zona tranquila, ideal para descanso e reconexão com a natureza - Excelente para habitação própria, casa de férias ou investimento rural - Proximidade à Serra de São Mamede e a localidades turísticas A região de Vale de Maceiras: - Esta pequena localidade do Alto Alentejo é perfeita para quem valoriza a calma do interior, com vista para campos abertos e fácil acesso à natureza. - Próxima da Serra de São Mamede, Vale de Maceiras está a curta distância de trilhos, miradouros e espaços naturais protegidos, sendo ideal para amantes do turismo rural e caminhadas ao ar livre. A região oferece património histórico, gastronomia rica e um ambiente genuíno, perfeito para quem quer fugir ao stress urbano. Com um pouco de renovação, esta casa pode tornar-se o seu cantinho perfeito no Alto Alentejo. Agende já a sua visita!
AMI: 8303
Ref. Externa: 318/M/03727
Id: 1469533
Inicie sessão para guardar este imóvel e aceder à sua lista de favoritos em qualquer dispositivo.
800.000 €
4 Quartos
5 WCs
Área bruta : 251 m²
Monte alentejano totalmente reconstruído em 2020, em excelente estado de conservação, inserido num terreno de 10 hectares. Localizado em Cabeço de Vide, concelho de Fronteira, este imóvel oferece conforto, e uma envolvente natural única. Ideal para residência permanente, refúgio de fim de semana ou projeto turístico. Tipologia: T4 Sala ampla em open space (100 m²) com cozinha integrada e lareira natural 4 suítes 1 WC social Sala multiusos (zona técnica e bomba de calor) Sótão para arrumos Área urbana: 510 m² Área rústica: 10 ha (cultura arvense e curso de água) Área total: 10,3 ha Furo de água próprio e sistema de tratamento de água Bomba de calor Pré-instalação de sistema de alarme Inserido no Plano de Urbanização da Freguesia de Cabeço de Vide Ambiente calmo e natural, com excelente exposição solar e vista desafogada sobre a paisagem alentejana. Apenas a 7 km das Termas da Sulfúrea, conhecidas pelas suas propriedades terapêuticas. Acesso fácil por estrada e boas condições para agricultura, turismo rural ou simples desfrute do campo. Uma propriedade única, que combina conforto moderno com o charme tradicional do Alentejo. Perfeita para quem procura qualidade de vida, espaço e contacto com a natureza. Agende já a sua visita e descubra este refúgio alentejano! A 'EU LISBOA - Atividades Imobiliárias, Lda.', com escritório na Rua Latino Coelho, (telefone) Lisboa, Licença AMI 12244, é a entidade responsável pelo anúncio através do qual os Utilizadores, Destinatários do Serviço ou Clientes têm acesso remoto aos serviços e produtos da 'EU LISBOA - Atividades Imobiliárias, Lda.', que são apresentados, comercializados ou prestados. The 'EU LISBOA - Actividades Imobiliárias, Lda', is the entity responsible for the advertisement through which Users, Service Recipients or Clients have remote access to the services and products of 'EU LISBOA - Actividades Imobiliárias, Lda.', Which are presented, marketed or provided.
AMI: 12244
Ref. Externa: EuLisboa0402
Id: 1463673
Inicie sessão para guardar este imóvel e aceder à sua lista de favoritos em qualquer dispositivo.
175.000 €
7 Quartos
2 WCs
Área bruta : 600 m²
Descubra o privilégio de viver ou investir num verdadeiro pedaço de história. Este Solar do século XVIII, em Cabeço de Vide, é um testemunho de elegância, oferecendo uma arquitetura nobre e uma vista deslumbrante de 180º sobre a paisagem alentejana. Este magnífico palacete está localizado na zona histórica e possui um terreno de 2000 m², com uma área bruta de construção de 600 m². Ao entrar no rés-do-chão, será recebido por um majestoso hall de entrada, seguido por espaços de arrumos, três quartos, e duas amplas salas de estar, perfeitas para momentos de lazer e convívio. No primeiro andar, a propriedade dispõe de quatro quartos, uma sala de estar, uma zona de refeições, uma biblioteca, uma cozinha e uma área de arrumos. Além disso, conta com um corredor e uma escadaria em pedra que conferem um toque de elegância e requinte a toda a propriedade. O telhado encontra-se em bom estado, garantindo a durabilidade e resistência do imóvel. O terreno inclui ainda edificações em ruínas que podem ser reabilitadas para armazém, garagem e criação de uma zona de piscina, transformando-se num espaço ideal para quem deseja investir no turismo. Todo o terreno está murado, proporcionando privacidade e segurança aos seus futuros hóspedes. Com uma vista privilegiada para a vila e para os campos alentejanos, este é um espaço verdadeiramente único e apaixonante. Venha visitar! A ' EU LISBOA - Actividades Imobiliárias, Lda.', com escritório na Rua Latino Coelho, (telefone) Lisboa, Licença AMI 12244, é a entidade responsável pelo anúncio através do qual os Utilizadores, Destinatários do Serviço ou Clientes têm acesso remoto aos serviços e produtos da ' EU LISBOA - Actividades Imobiliárias, Lda.', que são apresentados, comercializados ou prestados.
AMI: 12244
Ref. Externa: EuLisboa5017/
Id: 1445315
Inicie sessão para guardar este imóvel e aceder à sua lista de favoritos em qualquer dispositivo.
89.000 €
1 Quartos
1 WCs
Área útil : 94 m²
Vila de Fronteira, Moradia renovada T1 com Garagem e Terraço com vistas panorâmicas. 94m2 de Área bruta privativa com res de chão, 1 andar e 2 andar dos quais 30m2 e o terraço com vistas espetaculares Alentejanas ( e o único espaço exterior) Garagem já esta legalizada como Habitação , instalação elétrica, Canalizações e esgotos renovados em toda a propriedade, Licença de Utilização que da viabilidade a credito a Habitação. Moradia numa transversal da Praça principal da Vila. Vila de Fronteira e Sede de Município, com banco, bomba de Gasolina, centro de saúde, câmara, finanças, conservatória, vários supermercados, restaurantes, piscina municipal, Praia fluvial. Fronteira fica a 2 horas de Lisboa, 30 minutos de Portalegre, 1 hora de Évora , 1 hora de Badajoz e 1 hora das Termas de Castelo de Vide. Localização Ideal para quem procura o sossego do Alentejo e todas as comodidades junto a Praia fluvial, piscinas e a um pulo das Termas. Se esta a procura de um imóvel que e só por a chave ,entrar e usufruir , encontrou. Fale com o Coelho para mais informações e visitas.
AMI: 13123
Ref. Externa: 124771127-63
Id: 1417935
Inicie sessão para guardar este imóvel e aceder à sua lista de favoritos em qualquer dispositivo.
850.000 €
7 Quartos
5 WCs
Área bruta : 800 m²
Encanto de Viver o Alentejo. No coração de Cabeço de Vide, ergue-se este magnífico edifício reabilitado, onde o bom gosto se revela em cada detalhe. Um verdadeiro refúgio onde a elegância rústica se funde com a arquitetura tradicional alentejana, preservando a autenticidade de outros tempos através de materiais simples que refletem, com fidelidade, a alma e a essência da região. Com ceerca de 800 m² de área construída, distribuída por dois pisos amplos e banhados de luz natural, esta propriedade oferece o equilíbrio perfeito entre conforto, funcionalidade e charme: 7 quartos acolhedores, sendo alguns suites 1 sala com lareira antiga e salamandra ideal para os dias frios de inverno 1 escritório privado 1 sala de estar serena, perfeita para momentos de leitura e contemplação 1 sala de jantar distinta Aconchegante zona de refeições junto à cozinha Cozinha funcional e bem equipada, com ampla despensa 5 casas de banho Antigas cavalariças com grande potencial para diversos usos No exterior, o encanto continua: uma varanda com alpendre e um terraço no primeiro andar tornam-se os cenários ideais para apreciar os longos fins de tarde alentejanos. O jardim cuidado e repleto de charme convida à tranquilidade e à contemplação, enquanto a piscina, rodeada de vegetação exuberante, oferece um verdadeiro oásis para os dias quentes de verão, complementando de forma perfeita o ambiente bucólico da propriedade. Versátil e cheio de possibilidades, este imóvel é ideal para quem procura: Um boutique hotel com possibilidade para o mínimo de 12 quartos, de espaço para restaurante e de uma adega para provas de vinhos Uma residência permanente Uma charmosa casa de férias Um projeto de turismo rural ou investimento para alojamento local. Mais do que uma propriedade, esta é uma rara oportunidade de viver o Alentejo com autenticidade, conforto e sofisticação. Um lugar onde reina a calma, onde cada parede conta uma história e onde cada pôr do sol é um espetáculo silencioso de beleza natural. Venha conhecer! 'O lugar de tudo, a sua casa, o seu Alentejo.' The Charm of Living the Alentejo In the heart of Cabeço de Vide stands this magnificent renovated building, where refined taste reveals itself in every detail. A true refuge where rustic elegance blends seamlessly with traditional Alentejo architecture, preserving the authenticity of times gone by through simple materials that faithfully reflect the soul and essence of the region. With approximately 800 m² of built area spread over two spacious, light-filled floors, this property offers the perfect balance between comfort, functionality, and charm: 7 cozy bedrooms, some of which are suites 1 living room with an old fireplace and wood-burning stove ideal for cold winter days 1 private office 1 serene sitting room, perfect for reading and quiet contemplation 1 distinctive dining room A welcoming breakfast nook next to the kitchen A functional, well-equipped kitchen with a large pantry 5 bathrooms Former stables with great potential for a variety of uses Outside, the charm continues: a covered veranda and a first-floor terrace offer the perfect setting to enjoy the long Alentejo afternoons. The well-kept, enchanting garden invites peace and contemplation, while the swimming pool, surrounded by lush greenery, creates a true oasis for hot summer days beautifully complementing the property's bucolic ambiance. Versatile and full of potential, this property is ideal for those seeking: A boutique hotel with the potential for at least 12 rooms, a restaurant area, and a wine cellar for tastings A permanent residence A charming holiday home A rural tourism project or local accommodation investment More than just a property, this is a rare opportunity to experience the Alentejo with authenticity, comfort, and sophistication. A place where calm reigns, where every wall tells a story, and every sunset is a silent spectacle of natural beauty. Come and see it! 'The place for everything your home, your Alentejo.'
AMI: 12244
Ref. Externa: EuLisboa5124
Id: 1291017
Inicie sessão para guardar este imóvel e aceder à sua lista de favoritos em qualquer dispositivo.
47.000 €
1 Quartos
1 WCs
Área bruta : 50 m²
Moradia Simpática na Vila de Fronteira Um Refúgio no Coração do Alentejo Descubra, esta simpática moradia T1 situada na pitoresca vila de Fronteira, no distrito de Portalegre uma oportunidade única para quem procura qualidade de vida, tranquilidade e um ambiente genuinamente alentejano. Pode ser adquirida com todos os móveis e equipamentos de cozinha, dispõe de Ar condicionado e janela velux na parte superior. Fronteira, sede de município, conta com uma área de 248,60 km² e cerca de 2 974 habitantes (dados de 2023), distribuídos por três freguesias. A vila está estrategicamente localizada a cerca de 2 horas de Lisboa e apenas a 12 km de Cabeço de Vide, onde se encontram as afamadas termas com águas mineromedicinais únicas em Portugal sulfúreas, hipossalinas, oxilidradas e com propriedades terapêuticas reconhecidas. Além do sossego e da beleza natural, Fronteira é uma vila vibrante, conhecida pelos seus eventos anuais como os Balões de Ar Quente, que tingem os céus de cor, e as 24 Horas de Todo-o-Terreno, realizadas no prestigiado Terródromo local. Ideal para residência permanente, casa de férias ou investimento turístico, esta moradia é o ponto de partida perfeito para desfrutar de dias serenos e experiências autênticas no Alto Alentejo. Agende a sua visita e venha sentir o verdadeiro espírito alentejano.
AMI: 10960
Ref. Externa: DSSXLMJ17
Id: 1260447
Inicie sessão para guardar este imóvel e aceder à sua lista de favoritos em qualquer dispositivo.
800.000 €
5 Quartos
3 WCs
Área bruta : 400 m²
Monte alentejano com 6 hectares de terreno vedado, situado na charmosa vila de Cabeço de Vide. A propriedade está estrategicamente localizada a apenas 450 metros da estrada nacional, garantindo fácil acesso e tranquilidade. Moradia 1: Com uma área de 160 m², esta casa de tipologia T2 oferece conforto e elegância. Conta com uma sala espaçosa equipada com lareira e recuperador de calor, uma cozinha totalmente equipada, uma suite, um quarto adicional, e dois WC. A casa é rodeada por telheiros que somam 70 m², proporcionando espaços exteriores agradáveis e uma soberba vista panorâmica. A moradia inclui ainda uma piscina de 62 m², painéis solares para eficiência energética, caixilharia em vidro duplo, e anexos com mais dois quartos exteriores. Debaixo da piscina, uma cave permite fácil acesso às máquinas. Moradia 2: Com 60 m² de área e mais 60 m² de telheiros, esta segunda habitação oferece uma cozinha, uma sala, um quarto e um WC, sendo ideal para hóspedes ou familiares. O terreno é adornado por um olival milenar, extremamente bem cuidado, garantindo uma paisagem única e produção de azeite de alta qualidade. Um furo artesiano fornece água para todo o terreno e para a piscina, e uma garagem de 50 m² oferece amplo espaço de estacionamento. Armazém com box para 2 cavalos. A entrada da propriedade é valorizada por um portão automático, assegurando privacidade e segurança. Não perca a oportunidade de visitar este magnífico monte alentejano! with 6 hectares of fenced land, located in the charming village of Cabeço de Vide. The property is strategically located just 450 meters from the national road, ensuring easy access and tranquility. House 1: With an area of 160 m², this T2 house offers comfort and elegance. It has a spacious living room equipped with a fireplace and stove, a fully equipped kitchen, a suite, an additional bedroom, and two bathrooms. The house is surrounded by sheds totaling 70 m², providing pleasant outdoor spaces and superb panoramic views. The villa also includes a 62 m² swimming pool, solar panels for energy efficiency, double-glazed windows, and annexes with two more exterior bedrooms. Underneath the pool, a basement allows easy access to the machines. House 2: With an area of 60 m² and a further 60 m² of sheds, this second house offers a kitchen, a living room, a bedroom and a bathroom, making it ideal for guests or family. The land is adorned by an ancient olive grove, extremely well cared for, guaranteeing a unique landscape and the production of high quality olive oil. An artesian well supplies water to the entire land and to the swimming pool, and a 50 m² garage offers ample parking space. Warehouse with box for 2 horses. The entrance to the property is enhanced by an automatic gate, ensuring privacy and security. Don't miss the opportunity to visit this in Alentejo! A 'EU LISBOA - Atividades Imobiliárias, Lda.', com escritório na Rua Latino Coelho, (telefone) Lisboa, Licença AMI 12244, é a entidade responsável pelo anúncio através do qual os Utilizadores, Destinatários do Serviço ou Clientes têm acesso remoto aos serviços e produtos da 'EU LISBOA - Atividades Imobiliárias, Lda.', que são apresentados, comercializados ou prestados.
AMI: 12244
Ref. Externa: EuLisboa5045 (2)
Id: 1201319
Inicie sessão para guardar este imóvel e aceder à sua lista de favoritos em qualquer dispositivo.
166.500 €
2 WCs
Área bruta : 937 m²
Moradia em Fronteira. Composta por dois pisos. No rés de chão, espaço de antigo bar, com várias divisões, cozinha e casas de banho. No 1º piso composta por dois amplos quartos, 2 casas de banho, espaço de arrumos, ampla sala com lareira de chão, mezanino com duas divisões, cozinha, terraço com uma vista agradável que se avista o campo alentejano e terreno. Com uma localização central, perto de todos os serviços e espaços de lazer. Para mais informações contacte. Consultora Patricia Fontelas Marque já uma visita.
AMI: 16801
Ref. Externa: DSPDSPAF30
Id: 1126884
Inicie sessão para guardar este imóvel e aceder à sua lista de favoritos em qualquer dispositivo.
Este agente é especialista nesta zona:
Inicie sessão para ocultar este imóvel das suas pesquisas e manter a sua lista de resultados organizada.
© Copyright 2023 | CASACERTA. All rights reserved
Guardar favoritos
Este imóvel foi guardados nos seus favoritos com sucesso.
Para poder guardar pesquisa deverá ter a sua sessão iniciada.
Caso não tenha uma conta, deverá criar uma.
A sua pesquisa foi guardada com sucesso!
Este site utiliza cookies. Ao navegar no site estará a consentir a sua utilização.
Para mais informações sobre os cookies pode consultar a
política de privacidade.