Lista
Comprar
Arrendar
0 Quartos
0 WCs
Área útil : 378 m²
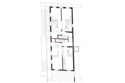
Prédio em planta para venda Vila Nova de Gaia - Mafamude - Alto das Torres Com projeto de arquitetura já aprovado pela Câmara Municipal de Vila Nova de Gaia. Localizado entre os Supermercados Continente e Mercadona. É constituído por 2 pisos acima do solo e cave para estacionamento e arrumos: R/C T1 ABP: 54m2; Garagem: 13m2; Arrumos: 5m2 T3 APB:107m2; Garagem: 29m2; Arrumos: 8m2 + Varanda 1º Andar T1 ABP: 75m2; Garagem: 36m2; Arrumos: 4m2 T3 ABP: 139m2; Garagem: 28m2; Arrumos: 8m2 + 2 varandas Conforme as plantas em anexo. Dados Numéricos Área total do terreno antes cedência ao domínio público 472,00m² Área total do terreno após cedência ao domínio público 465,70m² Área total de cedências ao domínio público 6,30m² Área de implantação 242,50m² Área de impermeabilização 262,50m² Área bruta de construção 430,00m² Área total de construção 609,50m² Piso -1 (Garagem) 231,50m² Piso 0 (Habitação) 184,00m² Piso 1 (Habitação) 194,00m² Cércea 6,80m Volumetria 1 134,00m³ Nº de pisos abaixo da cota de soleira 1 Nº de pisos acima da cota de soleira 2 Nº de frações 4 Nº de lugares de estacionamento privado 5 ;ID RE/MAX: 120931201-66
AMI: 7772
Ref. Externa: 120931201-66
Id: 1665949
Inicie sessão para guardar este imóvel e aceder à sua lista de favoritos em qualquer dispositivo.
Sob consulta
Área bruta : 282 m²
Apresentamos este prédio exclusivo em Santo Ovídio, uma das zonas mais procuradas de Vila Nova de Gaia, a apenas 250 metros da estação de metro, garantindo mobilidade excecional e proximidade ao centro do Porto. O imóvel está atualmente em propriedade total, mas pode ser convertido em propriedade horizontal, aumentando o potencial de valorização e rentabilidade. -Composto por 6 apartamentos T2: -4 apartamentos com 50m² + varanda -1 apartamento com 37m² + varanda -1 apartamento com 45m² 3 dos apartamentos estarão disponíveis até março de 2026, permitindo uma gestão faseada e estratégica da ocupação ou renovação. Embora não tenha garagem, o prédio beneficia de estacionamento gratuito na rua e acesso imediato ao metro, um diferencial competitivo para quem privilegia a mobilidade urbana. Ideal para investidores que procuram um ativo sólido, numa zona em valorização, e que podem aguardar pelo momento certo para maximizar o retorno. Não perca esta oportunidade única de adquirir um prédio completo numa das zonas mais dinâmicas de Vila Nova de Gaia. Contacte-nos já e agende a sua visita!
AMI: 17836
Ref. Externa: CC-EDI_1035
Id: 1591607
Inicie sessão para guardar este imóvel e aceder à sua lista de favoritos em qualquer dispositivo.
4 Quartos
4 WCs
Área bruta : 192 m²
Identificação do imóvel: ZMPT584683Prédio de 2 pisos com 4 T0s no centro de Vila Nova de GaiaPrédio com excelente localização, no centro de Gaia!Rua de Soares do Reis, junto ao Jardim Soares dos Reis.Vendido mobilado e equipado conforme fotografias.Desocupado e sem contratos de arrendamento.Excelente oportunidade para investimento!Descrição do prédioTipo de Prédio: Prédio em Propriedade Total sem Andares nem Divisões Susceptíveis de Utilização IndependentePISO 0Entrada e corredor,2 quartos (com cozinha e casa de banho),Sala de estar com sofá e móvel aparador,Escadas de acesso ao 1º piso.PISO 1Corredor2 quartos (com cozinha e casa de banho)Janela com vista para o terraçoLavandaria:Espaço entre sala de estar e o terraçoLavatório em mármoreMáquina de Lavar RoupaLogradouro / Terraço:Espaço de lazer com churrasqueiraCaracterísticas:Boa exposição solar: Nascente / Poente.Certificação Energética: ELocalização e envolvente:Localizado na Rua de Soares dos Reis, 16, Vila Nova de Gaia.Na envolvente existe oferta de serviços completa (restaurantes, cafés, padarias, talhos, mercearias, supermercados, farmácias, escolas, bancos, correios) e transportes públicos (autocarros e metro).Transportes:- paragem de autocarro a 120 metros- a 5 minutos da Estação de Comboios das Devesas- a 9 minutos a pé (600 metros) do METRO D. João II- a 9 minutos a pé (700 metros) do METRO João de DeusÁreas (de acordo com a Caderneta Predial):- Área total do terreno: 168,0000 m²- Área de implantação do edifício: 96,0000 m²- Área bruta de construção: 192,0000 m²- Área bruta privativa: 192,0000 m²Nota: para maior facilidade na identificação deste imóvel, por favor, refira o respectivo ID. Em caso de agendamento de visita, faça-se acompanhar de um documento de identificação. Muito obrigado!Prédio de 2 pisos com 4 T0s no centro de Vila Nova de Gaia3 razões para comprar com a Zome+ acompanhamentoCom uma preparação e experiência única no mercado imobiliário, os consultores Zome põem toda a sua dedicação em dar-lhe o melhor acompanhamento, orientando-o com a máxima confiança, na direção certa das suas necessidades e ambições.Daqui para a frente, vamos criar uma relação próxima e escutar com atenção as suas expectativas, porque a nossa prioridade é a sua felicidade! Porque é importante que sinta que está acompanhado, e que estamos consigo sempre.+ simplesOs consultores Zome têm uma formação única no mercado, ancorada na partilha de experiência prática entre profissionais e fortalecida pelo conhecimento de neurociência aplicada que lhes permite simplificar e tornar mais eficaz a sua experiência imobiliária.Deixe para trás os pesadelos burocráticos porque na Zome encontra o apoio total de uma equipa experiente e multidisciplinar que lhe dá suporte prático em todos os aspetos fundamentais, para que a sua experiência imobiliária supere as expectativas.+ felizO nosso maior valor é entregar-lhe felicidade!Liberte-se de preocupações e ganhe o tempo de qualidade que necessita para se dedicar ao que lhe faz mais feliz.Agimos diariamente para trazer mais valor à sua vida com o aconselhamento fiável de que precisa para, juntos, conseguirmos atingir os melhores resultados.Com a Zome nunca vai estar perdido ou desacompanhado e encontrará algo que não tem preço: a sua máxima tranquilidade!É assim que se vai sentir ao longo de toda a experiência: Tranquilo, seguro, confortável e... FELIZ!Notas:1. Caso seja um consultor imobiliário, este imóvel está disponível para partilha de negócio. Não hesite em apresentar aos seus clientes compradores e fale connosco para agendar a sua visita.2. Para maior facilidade na identificação deste imóvel, por favor, refira o respetivo ID ZMPT ou o respetivo agente que lhe tenha enviado a sugestão.
AMI: 17432
Ref. Externa: ZMPT584683
Id: 1589747
Inicie sessão para guardar este imóvel e aceder à sua lista de favoritos em qualquer dispositivo.
Área útil : 312 m²
VENDA | PRÉDIO URBANO | DEVESAS – VILA NOVA DE GAIA Prédio com 3 pisos acima do solo com área de implantação do edifício de 78m2 e área bruta privativa de 312m2. Ao nível do Rés-do-chão encontra-se um comércio e no 1º piso uma habitação com 78m2, ambos arrendados, assegurando rendimento imediato, enquanto o último piso está devoluto, oferecendo flexibilidade para valorização através de reabilitação. Destaques principais: • Localização privilegiada, situado nas Devesas, a curta distância a pé da estação de comboios e servido de uma boa rede de transportes públicos. • Potencial de valorização: último piso devoluto, com possibilidade de recuperação para arrendamento, transformação em habitação de qualidade. • Perfil do mercado: zona com forte procura por residentes e trabalhadores que utilizam o comboio, presença de comércio local, cafés e serviços essenciais, excelente apetência para arrendamento e valorização a médio/longo prazo. • Ideal para: investidores que queiram comprar o imóvel na totalidade, promotores de reabilitação urbana ou particulares com carteira de arrendamento. Marque já a sua visita!!
AMI: 842
Ref. Externa: 8953
Id: 1493076
Inicie sessão para guardar este imóvel e aceder à sua lista de favoritos em qualquer dispositivo.
5 Quartos
3 WCs
Área útil : 126 m²
Prédio para venda Prédio renovado com loja + 5 quartos + T2 nas traseiras – Coração de Vila Nova de Gaia Descrição: Oportunidade única no centro de Vila Nova de Gaia! Prédio completamente renovado, com múltiplas valências – ideal para investimento, alojamento local ou habitação. Excelente localização, com todos os serviços e transportes à porta. Características principais: Rés-do-chão com loja ampla de frente para a rua, excelente visibilidade para comércio. Primeiro andar, com 5 quartos e 3 casas de banho. Espaços amplos e luminosos. Traseiras com um T2 independente: 2 quartos, 1 casa de banho, cozinha. Perfeito para rentabilizar ou separar fração. Sala comum espaçosa e corredor de entrada partilhado (prédio comum). Totalmente renovado – pronto a utilizar, sem necessidade de grandes intervenções. Vantagens: Excelente para construção de novos apartamentos ou adaptação como alojamento local. Localização privilegiada no centro da cidade: comércio local, supermercados, bancos, farmácias, centro de saúde, hospital – tudo perto. Óptimos transportes públicos: comboio, metro e múltiplas linhas de autocarros. Boa rentabilidade potencial, dada a versatilidade do imóvel e o forte mercado em Gaia. Informações adicionais: Tipologia: Mistura entre frações de habitação + loja comercial. Estado: Remodelado. Área útil/total: 212 m2 Preço de venda: 400 000€. Documentação completa e prontidão para visitas. Ideal para: Investidores procurando rendimento imediato ou médio prazo. Quem pretende explorar alojamento local com múltiplos quartos. Famílias que querem habitar e gerar rendimento com o T2, ou negócio próprio (loja). SIMPLEX Não se encontra disponível qualquer documento que ateste que para o presente imóvel foi emitida licença de utilização, que o mesmo está isento de tal certificação ou foi apresentado qualquer recibo de pagamento das taxas legalmente devidas, pelo que o imóvel pode não dispor dos títulos urbanísticos necessários para a utilização e/ou construção" Voz ;ID RE/MAX: 126401158-3
AMI: 7772
Ref. Externa: 126401158-3
Id: 1434673
Inicie sessão para guardar este imóvel e aceder à sua lista de favoritos em qualquer dispositivo.
1 WCs
Área bruta : 357 m²
EXCELENTE OPORTUNIDADE PARA INVESTIDOR - VILA NOVA DE GAIA Disponibilização de 2 prédios em propriedade total, ideal para conversão em 10 apartamentos T1, dos quais 7 são unidades duplex e 3 são simplex. O modelo de construção, permitirá em vez dos 10 apartamentos T1, fazer 5 unidades T2 ou um misto desta solução. #A Duplex 33,56 m2 #B Duplex 30,06 m2 #C Duplex 45,08 m2 #D Duplex 45,75 m2 #E Simplex 23,18 m2 #F Simplex 23,34 m2 #G Simplex 28,42 m2 #H Duplex 42,98 m2 #I Duplex 46,46 m2 #J Duplex 37,22 m2 O projeto para a construção dos 10 apartamentos está concluído e dado que dispensa consulta prévia à Câmara de Gaia, o novo proprietário pode iniciar as obras imediatamente após a escritura. O projeto de edificação será cedido ao comprador, com a possibilidade de o arquiteto responsável acompanhar a execução da obra. O custo estimado para a construção dos 10 apartamentos fica abaixo dos 370.000. O projeto foi concebido para otimizar ao máximo o aproveitamento do espaço existente, incorporando soluções construtivas e mobiliário feito à medida. No valor de venda anunciado, está incluído um outro lote de terreno localizado nas traseiras, que possibilita a construção de mais apartamentos. Para essa expansão, será necessário apresentar um projeto de construção à Câmara Municipal, com orçamento próprio a ser definido. Localizado a apenas 100 metros da Estação de Metro de Sto Ovídeo e em frente ao local da futura Estação de Alta Velocidade, este imóvel oferece uma localização privilegiada e representa um investimento sólido, com potencial de retorno significativo para o futuro proprietário. A Câmara Municipal de Gaia desenvolveu um Plano de Pormenor para esta área, que vai valorizar sobremaneira este imóvel, atendendo ao destaque que vai ser dado à rua onde está inserido (https://www.gaiurb.pt/gaiurb/uploads/writer_file/document/1124/3_termosreferencia.pdf). Nas fotos disponibilizadas do Plano de Pormenor, é visivel o enquadramento deste prédio e a ligação que passará a ter ao novo jardim a poente, que se localiza na envolvente da rotunda de Sto. Ovídeo. INTERESSADO? Marque já a sua visita e descubra todas as vantagens deste investimento! Para qualquer informação sobre este imóvel, por favor refira sempre o código de identificação ID: 1214-4095. Quando agendar e efetuar uma visita, faça-se sempre acompanhar do seu Cartão de Cidadão, Passaporte ou qualquer outro documento de identificação. Este imóvel está disponível para partilha de comissão de mediação (50-50%) com QUALQUER mediadora imobiliária - com licença AMI válida - que apresente comprador que efetive uma transação. PORQUÊ COMPRAR COM A KELLER WILLIAMS? Nós gostamos de ajudar os nossos clientes a encontrar o seu imóvel de sonho!É por isso que trabalhamos com cada cliente individual, dedicando o tempo necessário para entender o que procura, o seu estilo de vida, necessidades e desejos. Somos especialistas em trabalhar com as pessoas que estão a vender/comprar um imóvel e gostaríamos de mostrar de que forma o podemos ajudar. A Keller Williams assenta a sua actividade em princípios humanos e sociais que nos distinguem no setor imobiliário: Win-Win - ou não há acordo Integridade - fazer o que está certo, sempre Clientes - estão sempre em primeiro lugar Compromisso - em tudo Comunicação - procurar entender primeiro Criatividade - ideias antes dos resultados Trabalho em equipa - em conjunto alcançamos mais Confiança - começa com honestidade Equidade todos merecem as mesmas oportunidades Sucesso - resultados envolvendo as pessoas QUANDO ESCOLHE A KELLER WILLIAMS, OBTÉM: Um agente imobiliário profissional e conhecedor do mercadoUm aliado comprometido em negociar no seu interesseOs sistemas e ferramentas necessárias para agilizar a compra/venda do seu imóvelO apoio de uma empresa de confiança. NA KELLER WILLIAMS, conta com mais de 3.000 profissionais especializados. Agradecemos aos clientes a confiança demonstrada no nosso trabalho, o que nos permite ser hoje uma referência Nacional. Ao seu dispor, dedico todo o dia de trabalho para prestar um serviço de excelência Estou à sua disposição total para o ajudar a vender ou para comprar o seu imóvel de SONHO! Contacte-me! Características: Características Gerais - Para remodelar; Orientação - Norte; Sul; Poente;
AMI: 23524
Ref. Externa: 1214-4095
Id: 1432653
Inicie sessão para guardar este imóvel e aceder à sua lista de favoritos em qualquer dispositivo.
Área bruta : 235 m²
? Investimento único em Santo Ovídeo – Junto ao Metro! ? Oportunidade imperdível para investidores! Este conjunto habitacional exclusivo, localizado em Santo Ovídeo, destaca-se pela sua localização estratégica, a apenas 3 minutos a pé do metro e da futura estação do TGV, garantindo uma valorização contínua do imóvel. Obra entregue chave na mão. ? Características do imóvel: ✅ 6 habitações distribuídas por 4 artigos urbanos anteriores a 1951. ✅ 5 unidades já renovadas, prontas para o mercado de arrendamento. ✅ Tipologias disponíveis: ? T3 totalmente renovado ? T2 totalmente renovado ? 3x T1 totalmente renovados ? 1x T1 com inquilina vitalícia (renda antiga) ? Localização altamente atrativa, numa zona em crescimento e com elevada procura para arrendamento. ? Excelente potencial de rentabilidade e valorização a curto e longo prazo. ? Proximidade a comércio, serviços e transportes públicos, garantindo conveniência para os futuros inquilinos. ? Não perca esta oportunidade única! Para mais informações, entre em contacto.
AMI: 11829
Ref. Externa: KWPT-018749
Id: 1425360
Inicie sessão para guardar este imóvel e aceder à sua lista de favoritos em qualquer dispositivo.
7 Quartos
5 WCs
Área de terreno : 148 m²
Conjunto de 6 habitações para investimento em Santo Ovídio – Vila Nova de Gaia Conjunto de 6 casas de ilha, localizado numa zona estratégica de Santo Ovídio, em Vila Nova de Gaia. Situa-se a poucos minutos a pé da estação de metro e da Avenida da República, uma das principais artérias da cidade, com acesso fácil a comércio, serviços e transportes. Composto por 4 artigos urbanos anteriores a 1951, este conjunto é ideal para o mercado de arrendamento, beneficiando de grande procura na zona. Composição das habitações: 1 T3 totalmente renovado 1 T2 totalmente renovado 3 T1 totalmente renovados 1 T1 (de origem, atualmente arrendado) Cinco das seis habitações foram recentemente renovadas, proporcionando conforto moderno num ambiente residencial típico e de charme. Excelente oportunidade de rendimento imediato e valorização futura numa das zonas mais dinâmicas e procuradas da cidade. Para mais informações: CHAVE NOVA - PORTO Rua Augusto Lessa 669, Paranhos, Porto Lic. AMI-7142.
AMI: 7142
Ref. Externa: PRT/01472
Id: 1302318
Inicie sessão para guardar este imóvel e aceder à sua lista de favoritos em qualquer dispositivo.
4 Quartos
2 WCs
Área útil : 104 m²
Imóvel com rentabilidade || Indisponível para visitas Excelente oportunidade de investimento ou habitação própria no coração de Vila Nova de Gaia! Prédio composto por rés-do-chão e 1º andar, com dois apartamentos independentes, ambos com entradas separadas, garantindo total privacidade. Cada apartamento foi recentemente remodelado e apresenta uma disposição funcional e acolhedora: ✔️ 2 quartos ✔️ 1 sala de estar ✔️ 1 casa de banho ✔️ 1 cozinha totalmente equipada ✔️ Espaço exterior privativo ?️ Localização privilegiada: situado numa zona central, com acesso facilitado a transportes públicos, escolas, comércio tradicional, supermercados e todos os serviços essenciais. Ideal para quem procura viver com conforto e conveniência urbana, ou para quem deseja investir num imóvel com excelente rentabilidade. ?Não perca esta oportunidade única em Gaia. Agende já a sua visita! Property with rental income || Not available for viewing Excellent investment opportunity or home ownership in the heart of Vila Nova de Gaia! Building comprising ground floor and first floor, with two independent apartments, both with separate entrances, ensuring total privacy. Each apartment has been recently remodeled and features a functional and welcoming layout: ✔️ 2 bedrooms ✔️ 1 living room ✔️ 1 bathroom ✔️ 1 fully equipped kitchen ✔️ Private outdoor space ?️ Prime location: situated in a central area, with easy access to public transport, schools, traditional shops, supermarkets, and all essential services. Ideal for those looking to live in comfort and urban convenience, or for those who want to invest in a property with excellent returns. ?Don't miss this unique opportunity in Gaia. Schedule your visit now! ;ID RE/MAX: 126401158-2
AMI: 7772
Ref. Externa: 126401158-2
Id: 1240493
Inicie sessão para guardar este imóvel e aceder à sua lista de favoritos em qualquer dispositivo.
Área bruta : 350 m²
Conjunto de 6 casas , 1 artigo urbano em Vila Nova de Gaia T3 com 3 suites 3 fracções T1 1 fracção T2 Todas estas foram renovadas de raíz 1 fração T1 arrendada Todas prometidas arrendadas, com rendimento possível de 4000 mil euros mensais 1 contrato antigo (85 euros), Excelente localização, em Sto. Ovideo, Vila Nova de Gaia Não perca esta oportunidade! Marque a sua visita A CASA DA PORTELA Imobiliária – É uma empresa de mediação imobiliária e Intermediação de Crédito criada em 2013. Os seus sócios fundadores possuem um sólido conhecimento acumulado desde 1994 sobre o mercado imobiliário, mantendo-se atentos às suas tendências e evolução, e com uma Intermediação de Crédito registado no Banco de Portugal com o nº 0004889. A empresa começou por centrar-se na região do Grande Porto, conseguindo, desde o início, um grande volume de transações. O sucesso do modelo de negócio fez com que a marca Casa da Portela imobiliária chegasse em 2022 a Vila Nova de Famalicão. A Casa da Portela imobiliária pretende valorizar o trabalho dos consultores e prestar um serviço de excelência aos seus clientes, proporcionando um serviço de qualidade e tranquilidade, de forma a realizar bons negócios, garantindo a satisfação dos nossos clientes e parceiros. Para atingir esse propósito, dispomos de uma equipa multidisciplinar de profissionais qualificados, com vasta experiência em mediação imobiliária que nos permite apresentar e sugerir as melhores alternativas para os seus objetivos de venda, de arrendamento, ou de investimento imobiliário. Possuímos uma rede de contatos privilegiada que nos permite potenciar a divulgação, a gestão e a concretização de negócio do seu imóvel em vários formatos. 3 Pilares fundamentais da Casa da Portela: Missão A nossa missão é orientar os nossos objetivos excecionais (financeiros, humanos e sociais) na nossa organização e uni-los aos nossos não menos excecionais clientes, atendendo sempre às suas necessidades, desejos e expectativas. A Casa da Portela imobiliária nasceu para que fosse possível prestar um acompanhamento e apoio contínuos, explicação e esclarecimento de dúvidas, sobre todo o processo de compra, venda ou arrendamento de imóveis em Portugal. A concretização de tudo isto faz com que a nossa máxima ambição seja sermos os melhores no mercado imobiliário. Visão A nossa visão é sermos a empresa de referência no mercado imobiliário, assim como sermos reconhecidos como a melhor opção para os nossos clientes. Para isso, fazemos sempre por manter um espírito inovador e de liderança que nos levará ao reconhecimento pela nossa excelência no mercado. Valores Os nossos valores são sempre o conjunto das nossas atitudes e crenças, que envolvem todas as pessoas da organização, para que, em uníssono, consigamos atingir os resultados de excelência a que nos propomos sempre que são baseados na Qualidade, Profissionalismo, Responsabilidade, Respeito e Inovação.
AMI: 10340
Ref. Externa: 195801
Id: 1010512
Inicie sessão para guardar este imóvel e aceder à sua lista de favoritos em qualquer dispositivo.
7 Quartos
Área bruta : 516 m²
Prédios c/ PIP p/ 7 frações T2 - Av. República, Vila Nova de GaiaRefª.: 3175-P3 Prédios devolutos, para restauro, localizado junto à Avenida da República, em Vila Nova de Gaia.A escassos metros do Jardim do Morro, Serra do Pilar e Ponte D. Luís I.Excelente para fazer Hostels ou espaço comercial, devido a proximidade que tem da zona turística.Imóvel situado em zona ARU.Com PIP aprovado para aumento de mais 1 piso e área de construção de 728m².Localização privilegiada, com proximidade a todos os serviços e comodidades, transporte público (autocarros / metro / camionetas) supermercados, escolas e hospitais.Junto à Avenida da República, na zona mais central e turística de Vila Nova de Gaia, este imóvel torna-se um excelente investimento, e já possui um Pedido de Informação Prévia (PIP) aprovado para a criação de 7 frações de tipologia T2, com uma área bruta de construção de mais cerca de 728m².Quadro sinópticoÁrea total do terreno: 327,60m²Área de implantação: 311,23m²Área bruta de construção (total): 709,76m²R/Chão à cota 79.27: 187,48m²R/Chão à cota 78.00: 115,52m²Piso à cota 80.70: 103,76m²Piso à cota 82.93 / 83.40: 303,00m²Área de Terraços / Varandas: 13,70m²Número total de pisos: 02/03Número de piso acima da cota de soleira: 02/03Número de pisos abaixo da cota de soleira: 00Altura da fachada: 9,96 m / 9,87 mVolumetria: 3017,88m3Ótima oportunidade de investimento.Contacte-nos hoje!
AMI: 11665
Ref. Externa: 3175
Id: 548627
Inicie sessão para guardar este imóvel e aceder à sua lista de favoritos em qualquer dispositivo.
Estes agentes são especialistas nesta zona:
Inicie sessão para ocultar este imóvel das suas pesquisas e manter a sua lista de resultados organizada.
© Copyright 2023 | CASACERTA. All rights reserved
Guardar favoritos
Este imóvel foi guardados nos seus favoritos com sucesso.
Para poder guardar pesquisa deverá ter a sua sessão iniciada.
Caso não tenha uma conta, deverá criar uma.
A sua pesquisa foi guardada com sucesso!
Este site utiliza cookies. Ao navegar no site estará a consentir a sua utilização.
Para mais informações sobre os cookies pode consultar a
política de privacidade.