Lista
Comprar
Arrendar
1.300.000 €
5 Quartos
Área bruta : 135130 m²
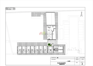
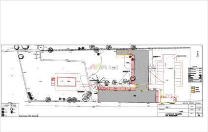
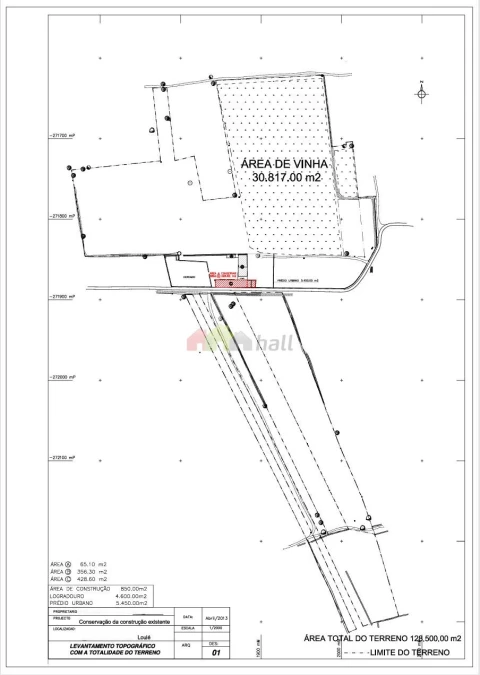
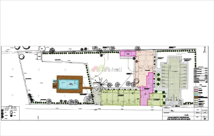
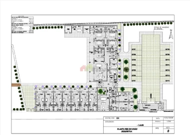
Quinta, na localidade de Benafim - Loulé, com 95.000 m² no levantamento, mas com 135.130 m² registados. Tem 850 m² de construção que corresponde à implantação do imóvel, onde 500 m² já foram recuperados com telhado e a parte exterior, encontrando-se para recuperar os restantes 350 m². O interior encontra-se por recuperar e organizar conforme o fim a que se destinar. Nas plantas do projecto, conforme fotos, destinava-se a um hotel rural, estando previsto 15 quartos e uma área residencial para os proprietários com piscina independente. Propriedade isenta de licenciamento de habitabilidade por trata-se de imóvel anterior a 1951. ÁREAS A área total registada de 135.130 m² resulta da soma dos seguintes três prédios: Prédio rústico descrito sob o n.º 2348 – 128.500 m² Prédio rústico descrito sob o n.º 21161 – 1.180 m² Prédio urbano descrito sob o n.º 737 – 5.450 m² Contudo, conforme o levantamento topográfico realizado, a área que foi apurada é de 95.000 m². A área construída dispõe de levantamento do existente e de estudo/proposta apresentada à Câmara Municipal de Loulé para reconstrução e adaptação à funcionalidade de turismo rural. LOCALIZAÇÃO Enquadrada em zona de paisagem protegida e no coração de uma área de quintas, hotéis e resorts de renome, dispõe de uma excelente localização de fáceis acessos com estrada alcatroada até à entrada da propriedade, com condições excelentes para residir e para a atividade hoteleira. Dispõe de condições e autorização de reconstrução de toda a área existente. Atendendo à localização e área, dispõe das melhores condições para a atividade de turismo rural. Encontra-se a 6,9 km do local da Rocha da Pena (paisagem protegida), a 5,8 km da praia fluvial do Alte, a 5,3 k m da queda do Vigário, a 3 km da Quinta do Freixo, a 6 km do Resort da Viceroy at Ombria Algarve com lagos e campo de golfe, a cerca de 15 km de Vila Moura e a 39km do aeroporto de Faro. Encontra-se disponível para visita e fornecimento de elementos ou documentação que considere relevantes para a aquisição do imóvel. A empresa proprietária considera a possibilidade de analisar propostas de aquisição. Venha conhecer esta propriedade. Agende a sua visita com VITAL ALVES Referência : 006_193_546 Crédito à Habitação / Construção / outro? Os nossos parceiros tratam de todo o processo do seu Crédito Habitação por si e gratuitamente. Agência imobiliária - Hall Versátil Setúbal - Praça do Brasil, 1-B, 2900-285 Setúbal.
AMI: 14802
Ref. Externa: 006.193.546
Id: 1217196
Inicie sessão para guardar este imóvel e aceder à sua lista de favoritos em qualquer dispositivo.
5 Quartos
Área bruta : 225 m²
Herdade composta por 2 moradias térreas para reabilitar inseridas num lote com aproximadamente 13 hectares de terreno. As moradias possuem 2 artigos matriciais distintos e estão implantadas numa zona que permite a construção/ampliação das moradias até à área de construção de 300 m2 cada. Oferece ainda, em alternativa, a possibilidade de construção de dois empreendimentos turísticos, sendo a área máxima de construção de 2.000 m2 por cada empreendimento, num total de 4.000 m2 de área de construção (conforme alínea b) do n.º 4 do artigo 88ºB do PDM). Localizada em pleno barrocal algarvio, a 5 km de Querença, numa zona de grande tranquilidade e rara beleza natural, oferece vista desafogada sobre o campo. A propriedade encontra-se amplamente arborizada, possuindo uma plantação recente de cerca de 10 mil pinheiros mansos, para além de diversos medronheiros, sobreiras e azinheiras que enriquecem o cenário e promovem um ambiente sustentável. Os acessos fazem-se por meio de estrada asfaltada até cerca de 250m da entrada da propriedade. Com bastante privacidade, aqui poderá construir a casa dos seus sonhos ou desenvolver o seu projeto turístico em espaço rural.
AMI: 16017
Ref. Externa: DPM_1545
Id: 862350
Inicie sessão para guardar este imóvel e aceder à sua lista de favoritos em qualquer dispositivo.
2 Quartos
Área bruta : 82 m²
Moradia localizada na pacata Aldeia do Sobradinho, a 20 km da linda cidade de Loulé e pertíssimo de tudo o que o Algarve tem para oferecer, as belíssimas praias... Na realidade são dois edifícios separados, o que pode dar bastante jeito para rentabilizar, habitar num e arrendar o outro, ter um espaço de habitação e outro de escritório, as possibilidades são muitas . Viabilizar um edifício com um T1 e o outro com um estúdio, pode ser uma hipótese, há um pequeno quintal nas traseiras do edifício mais pequeno e há um quintal entre os dois edifícios. Também poderá optar por construir edifícios com mais área de construção. Zona de PDM urbano tipo C Com agua de rede Facilidade de estacionamento. Possível de adquirir terreno perto com 1400 m2 em urbano tipo C Para mais informações é só entrar em contacto.
AMI: 13004
Ref. Externa: CAS_1062
Id: 726921
Inicie sessão para guardar este imóvel e aceder à sua lista de favoritos em qualquer dispositivo.
Estes agentes são especialistas nesta zona:
Inicie sessão para ocultar este imóvel das suas pesquisas e manter a sua lista de resultados organizada.
© Copyright 2023 | CASACERTA. All rights reserved
Guardar favoritos
Este imóvel foi guardados nos seus favoritos com sucesso.
Para poder guardar pesquisa deverá ter a sua sessão iniciada.
Caso não tenha uma conta, deverá criar uma.
A sua pesquisa foi guardada com sucesso!
Este site utiliza cookies. Ao navegar no site estará a consentir a sua utilização.
Para mais informações sobre os cookies pode consultar a
política de privacidade.