Lista
Comprar
Arrendar
Área de terreno : 12000 m²
Terreno com 12.000 m² em Brejos de Azeitão. Classificação PDM: Espaços Habitacionais Consolidados Tipo I. Uso dominante: Habitação. Parâmetros urbanísticos: - Alinhamento obrigatório com frente urbana existente; - Respeito pelos afastamentos laterais em edificações isoladas; - Manutenção da tipologia edificada dominante nas áreas confinantes; - Índice de utilização aplicável em operações de loteamento: 0,5. Terreno com forte potencial para desenvolvimento habitacional em contexto consolidado. Localização tranquila, com bons acessos e excelente potencial de valorização. Ideal para quem procura um terreno com escala e segurança urbanística para desenvolver um projeto diferenciado. Caso queira saber alguma informação adicional não hesite em contactar-nos. Se quiser conhecer/visitar o imóvel agende connosco uma visita sem compromisso! Na Veigas Roma, temos uma equipa de profissionais especializada no acompanhamento de todo o processo de angariação e venda. Esperamos por si.
AMI: 7388
Ref. Externa: ROM-216534
Id: 1513727
Inicie sessão para guardar este imóvel e aceder à sua lista de favoritos em qualquer dispositivo.
Área de terreno : 68866 m²
Oportunidade Única: Terreno Rústico com Potencial Construtivo! Apresentamos-lhe um terreno com uma localização estratégica, situado entre as localidades de Moita, Palmela, Pinhal Novo e Quinta do Anjo. Este terreno possui uma vantagem única, uma vez que beneficia das comodidades das localidades vizinhas, incluindo serviços, comércio e transporte. Espaço para o Futuro: Este terreno rústico, com uma área de 68.866 m2, oferece uma oportunidade extraordinária para o desenvolvimento imobiliário. Estão previstos 82 lotes para construção de moradias unifamiliares, com áreas variando entre um mínimo de 360 m2 e um máximo de 888 m2. A estrutura viária, incluindo acessos rodoviários e pedestres, foi cuidadosamente planeada para garantir conveniência e mobilidade. Localização Estratégica: A localização deste terreno é verdadeiramente potencializada pelas quatro localidades circundantes. Moita, Palmela, Pinhal Novo e Quinta do Anjo proporcionam um acesso fácil a uma variedade de serviços, desde escolas a supermercados, e oferecem conexões de transporte que encurtam as distâncias para os principais destinos. Investimento Inteligente: Este terreno não é apenas uma oportunidade de construção, mas também um investimento estratégico. Com uma localização privilegiada e potencial para desenvolvimento imobiliário, é uma opção atrativa para quem procura expandir a sua carteira de investimentos. Agende uma Visita: A melhor forma de compreender todo o potencial deste terreno é visitá-lo pessoalmente. Estamos à disposição para mostrar-lhe o local e discutir as possibilidades para o desenvolvimento deste espaço. Construa o Futuro Aqui: Se procura um investimento sólido ou um projeto de construção inovador, este terreno é uma tela em branco à espera das suas ideias. Com possibilidades de desenvolvimento imobiliário diversificadas, esta é a oportunidade perfeita para moldar o futuro. Contacte-nos Agora: Não perca a oportunidade de explorar este terreno com potencial construtivo. Entre em contacto para obter mais informações e dar o primeiro passo em direção a um investimento sólido e promissor.
AMI: 9532
Ref. Externa: 6572
Id: 1494892
Inicie sessão para guardar este imóvel e aceder à sua lista de favoritos em qualquer dispositivo.
Área de terreno : 15000 m²
Um Refúgio nas Lagameças, Agualva de Cima, com Potencial Único. Descubra esta oportunidade ímpar de adquirir uma vasta propriedade rústica de 15.000 m², estrategicamente localizada em Agualva de Cima, nas Lagameças, no fértil e pitoresco concelho de Palmela. Inserida numa região conhecida pela sua beleza natural, tranquilidade e forte ligação à agricultura e vitivinicultura famosa, em particular, pelo Moscatel de Setúbal e Queijo de Azeitão esta quinta oferece o equilíbrio perfeito entre o sossego do campo e a proximidade aos principais centros urbanos. O concelho de Palmela é reconhecido pela sua qualidade de vida, património histórico (com o imponente Castelo de Palmela a destacar-se na paisagem) e pela integração na encosta da Serra da Arrábida, entre os estuários do Tejo e do Sado. Com uma área generosa de 1,5 hectares, o terreno apresenta um potencial notável, ideal tanto para quem procura um refúgio privado e tranquilo, como para quem pretende desenvolver um projeto agrícola, turístico ou habitacional de sonho. A área de Palmela é propícia para atividades ao ar livre, como caminhadas e ciclismo, inserida numa zona de grande valor paisagístico. Destaques da Propriedade: Localização Privilegiada: Em Agualva de Cima, Lagameças, a poucos minutos dos acessos a Palmela, Setúbal e Lisboa. Vasto Potencial: Espaço ideal para projetos de habitação, lazer ou exploração agrícola, com autorização do ministério do ambiente para a captação de águas subterrâneas, sendo o furo de captação de água com 96 metros com cota a 40 metros. Dispõem também de certificado de exploração da instalação elétrica trifásica. Enquadramento Natural: Proximidade à deslumbrante Serra da Arrábida e a áreas de interesse natural e cultural. Qualidade de Vida: Uma zona em franco desenvolvimento, que mantém a sua identidade rural e a genuinidade da região de Setúbal. Esta quinta é a tela em branco que procura para materializar a sua visão de um estilo de vida mais calmo, em harmonia com a natureza, sem abdicar da conveniência e acessibilidade. Para mais informações ou agendamento de visita, contacte-nos.
AMI: 9532
Ref. Externa: 10084
Id: 1492909
Inicie sessão para guardar este imóvel e aceder à sua lista de favoritos em qualquer dispositivo.
Área bruta : 21250 m²
Terrenos rústicos com vinha e PIP aprovado em Serralheiras, Palmela Excelente oportunidade para quem procura investir ou viver num ambiente tranquilo, a poucos minutos de Palmela. Apresentam-se dois terrenos rústicos, com áreas de 9.000 m² e 12.000 m², localizados nas Serralheiras, a cerca de 5 minutos da A2 e do St. Peter's International School. Estes terrenos distinguem-se pelo seu potencial agrícola e habitacional, contando já com infraestruturas essenciais que tornam o projeto mais prático e viável: PIP (Pedido de Informação Prévia) válido até julho de 2026, autorizando a edificação de uma moradia até 200 m²; Furo de água com bomba instalada, garantindo total autonomia de abastecimento; Sistema de rega funcional, ideal para a manutenção da vinha ou outras culturas; Ligação à rede elétrica, assegurando conforto e conveniência. A propriedade encontra-se atualmente plantada com vinha da casta Moscatel Graúdo, conhecida pela sua excelente qualidade e tradição na região de Palmela, proporcionando uma produção anual estável e de valor reconhecido. Com uma localização privilegiada, estas parcelas oferecem o equilíbrio perfeito entre tranquilidade rural e proximidade urbana. Seja para construir a sua casa num cenário natural ou para investir na produção vitivinícola, trata-se de uma oportunidade única numa das zonas mais promissoras do concelho. Venha conhecer este espaço e descubra todo o potencial das Serralheiras, onde natureza, acessibilidade e rentabilidade se encontram. ____________________________________ Rural land with vineyard and approved PIP in Serralheiras, Palmela Excellent opportunity for those looking to invest or live in a peaceful environment, just a few minutes from Palmela. Two plots of rustic land are available, with areas of 9,000 m² and 12,000 m², located in Serralheiras, about 5 minutes from the A2 motorway and St. Peter's International School. These plots are distinguished by their agricultural and residential potential, already having essential infrastructure that makes the project more practical and viable: PIP (Prior Information Request) valid until July 2026, authorising the construction of a house up to 200 m²; Water well with pump installed, ensuring total autonomy of supply; Functional irrigation system, ideal for maintaining vineyards or other crops; Connection to the electricity grid, ensuring comfort and convenience. The property is currently planted with Moscatel Graúdo vines, known for their excellent quality and tradition in the Palmela region, providing stable annual production and recognised value. With a privileged location, these plots offer the perfect balance between rural tranquillity and urban proximity. Whether you want to build your home in a natural setting or invest in wine production, this is a unique opportunity in one of the most promising areas of the municipality. Come and see this space and discover the full potential of Serralheiras, where nature, accessibility and profitability come together.
AMI: 19224
Ref. Externa: CMAR/185
Id: 1455886
Inicie sessão para guardar este imóvel e aceder à sua lista de favoritos em qualquer dispositivo.
Área de terreno : 108627 m²
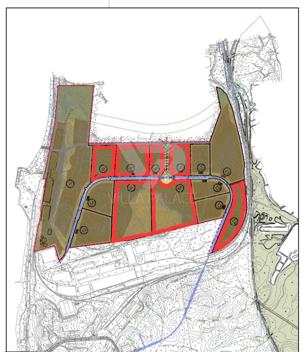
Na Moita, em continuidade com o conceituado empreendimento Casas do Campo, encontra-se este terreno com 10,86 hectares, que já conta com PIP aprovado para Operação de Loteamento.. . O projeto contempla uma área de intervenção de cerca de 2,21 hectares, prevendo a criação de 31 lotes com áreas entre 299 e 675 m2, destinados à construção de moradias unifamiliares de 2 pisos, com áreas de implantação entre 135 e 171 m2 e áreas brutas de construção entre 239 e 350 m2.. . Situado numa zona tranquila e com bom enquadramento urbano, este terreno beneficia de uma excelente localização, bem servido de comércio, escolas, serviços e transportes.. . A sua posição estratégica permite um rápido acesso a Lisboa, Barreiro e Montijo, através das principais vias IC21 e IC32, estando ainda próximo dos dois acessos à capital por sul — Ponte 25 de Abril e Ponte Vasco da Gama.. . Um investimento com grande potencial, numa zona em crescimento e com proximidade ao futuro aeroporto de Lisboa e à terceira travessia sobre o Tejo.. . Ideal para promotores imobiliários ou investidores à procura de uma oportunidade sólida na Margem Sul.
AMI: 20576
Ref. Externa: DRS_QK413/12758
Id: 1434687
Inicie sessão para guardar este imóvel e aceder à sua lista de favoritos em qualquer dispositivo.
Área de terreno : 22800 m²
Terreno com 22.800 m2 situado no Areias com viabilidade para construção de 11 prédios (108 fogos) Uma zona nobre em crescimento, com espaços verdes. Excelente localização, junto à ciclovia, principais acessos, perto do centro. Junto a uma das principais rotundas do Montijo Zona central e em forte crescimento Fácil acesso a comércio, serviços, transportes e à Ponte Vasco da Gama, que liga rapidamente a Lisboa Uma oportunidade única para investidores e promotores imobiliários que procuram um projeto de grande dimensão numa das zonas mais procuradas do Montijo.
AMI: 16087
Ref. Externa: HA588
Id: 1433325
Inicie sessão para guardar este imóvel e aceder à sua lista de favoritos em qualquer dispositivo.
Área de terreno : 129100 m²
Situada a apenas 8 km de Santiago do Cacém e a 25 km de Sines, esta quinta com 12,9 hectares oferece todo o charme e tranquilidade do Alentejo, com acessos fáceis (cerca de 1 km em caminho de terra batida). O imóvel conta com uma habitação em processo de legalização. De acordo com o PDM de Santiago do Cacém, existe a possibilidade de construção de até 500 m² para habitação (sem prejuízo de consulta prévia às entidades competentes). A propriedade dispõe de eletricidade na extrema e apresenta uma topografia suave, com algumas ondulações que proporcionam vistas deslumbrantes sobre a paisagem alentejana a partir dos pontos mais altos. Localizada a apenas 1h40 de Lisboa, esta quinta é uma excelente oportunidade para quem procura investimento, turismo rural ou residência de sonho no Alentejo.
AMI: 7307
Ref. Externa: PT03T-0586
Id: 1433194
Inicie sessão para guardar este imóvel e aceder à sua lista de favoritos em qualquer dispositivo.
Área de terreno : 109000 m²
Tratamos de todo os processos necessários com transparência e dedicação! Somos também intermediários de crédito vinculados pelo Banco de Portugal com o nº 0006464 e caso deseje, tratamos do seu empréstimo bancário. Somos parceiros de várias entidades bancárias para lhe garantir total satisfação. Contacte-nos! Ana Paula Gião 917703023 AMI 7419 APEMIP 2353 Há mais de 25 anos, dedicamo-nos a acrescentar felicidade à vida dos nossos clientes!
AMI: 7419
Ref. Externa: MPSANCD054
Id: 1410775
Inicie sessão para guardar este imóvel e aceder à sua lista de favoritos em qualquer dispositivo.
Área de terreno : 1250 m²
Terreno Rústico com Olival na Periferia de Grândola - Vista bonita para a Serra! Procura um refúgio no coração do Alentejo Litoral? Apresentamos este terreno rústico situado nos arredores tranquilos da vila de Grândola, numa zona muito agradável e com vista desafogada para a bonita serra de Grândola. Características do terreno: Terreno plano e de fácil acesso Com Olival Excelente exposição solar Ideal para projeto agrícola ou de lazer Perfeito para colocar uma tenda e desfrutar de fins de semana tranquilos com amigos Ambiente calmo, natural e com privacidade A poucos minutos do centro de Grândola, este espaço oferece o melhor dos dois mundos: natureza e proximidade a serviços. Um excelente investimento para quem valoriza o ar puro, a tranquilidade e o potencial de um terreno versátil no Litoral Alentejano.
AMI: 15219
Ref. Externa: PHS790/25
Id: 1401300
Inicie sessão para guardar este imóvel e aceder à sua lista de favoritos em qualquer dispositivo.
Área de terreno : 109000 m²
TERRENO RÚSTICO EM PEGOES
AMI: 5222
Ref. Externa: TER_21954
Id: 1400843
Inicie sessão para guardar este imóvel e aceder à sua lista de favoritos em qualquer dispositivo.
Área de terreno : 70750 m²
Terreno rústico com 7,075 hectares, situado a apenas 7 km do Cercal do Alentejo, em plena região do Litoral Alentejano. O acesso é feito por caminho de terra batida (cerca de 1 km), garantindo tranquilidade e privacidade. A propriedade apresenta alguma ondulação natural e é maioritariamente composta por montado de eucalipto, inserindo-se numa paisagem típica da região. A sua localização é privilegiada: 20 km de Vila Nova de Milfontes e das suas praias, 35 km de Santiago do Cacém, rodeada pelo ambiente autêntico do Alentejo. Uma excelente oportunidade para quem procura contacto com a natureza, investimento agrícola ou simplesmente um refúgio no coração do Litoral Alentejano.
AMI: 7307
Ref. Externa: PT03T-0664
Id: 1390370
Inicie sessão para guardar este imóvel e aceder à sua lista de favoritos em qualquer dispositivo.
Área de terreno : 13200 m²
Terreno Rustico para construção de imóveis com viabilidade datada de janeiro 2025 Terreno dividido em duas parcelas : A com 3575m2 separada do remanescente do prédio, em que se insere em área classificada em espaço urbano, área consolidada de edifícios isolados e térreos e a B com 9408 m2 isolada fisicamente separada pelo atravessamento da Rua dos Foros e ao abrigo do PDM insere-se em duas classe uma Área classificada como espaço Para-urbano para construção de 159 m2 de implantação 2 pisos e área dependente 40m2 e Área classificada com espaço Urbano, Área Consolidada, Área de edifícios isolados, área de implantação máxima 2706 m2 Um piso Área dependente 541 m2 Indicações recebidas pela Câmara Municipal de Setúbal em 15/ 01/ 2025
AMI: 4914
Ref. Externa: TV-004.25
Id: 1378544
Inicie sessão para guardar este imóvel e aceder à sua lista de favoritos em qualquer dispositivo.
2.780.000 €
Área de terreno : 68440 m²
OFERTA ATO ÚNICO ESCRITURA E REGISTOS. CONSULTE CONDIÇÕES. ! Os vários lotes estão localizados no Parque Industrial da Península de Setúbal, na Herdade das Praias. O imóvel (LOTE 5) insere-se numa zona industrial perto da Central Termoelétrica de Setúbal, caracterizada pela presença de armazéns e indústria, nomeadamente algumas atividades industriais de grande dimensão, onde se destaca a Alstom, Portucel, Setenave, Porto de Setúbal e uma envolvente mais distante diversificada, contando com áreas residenciais nas Praias Sado, Manteigadas e o Politécnico de Setúbal. A rede viária garante uma grande proximidade aos eixos de circulação local, regional e nacional, encontrando-se igualmente próxima da via-férrea. Dadas as características e implantação de indústrias, a zona é ponto de passagem de veículos ligeiros e pesados. Em termos de desenvolvimento urbanístico, trata-se de uma zona industrial estabilizada, existindo parcelas de terreno sem ocupação perto dos imóveis. O local beneficia de bons acessos rodoviários, encontrando-se a cerca de 5km da EN10 e 8km da A12. A estação ferroviária de Praias - Sado localiza-se a cerca de 3kms. Existe ainda um ramal ferroviário que serve o parque industrial, bem como um cais portuário. O estacionamento em superfície processa-se sem dificuldade à entrada dos lotes através de espaços destinados a esse fim. O local dispõe igualmente de zonas de parqueamento de veículos pesados. Lotes desde 14.565 m2 até 74.367 m2.
AMI: 9240
Ref. Externa: T/02190
Id: 1365586
Inicie sessão para guardar este imóvel e aceder à sua lista de favoritos em qualquer dispositivo.
Área de terreno : 12500 m²
Excelente oportunidade para quem procura investir na tranquilidade do Alentejo! Este terreno rústico, com a área total de 1,25 hectares, apresenta-se como uma figura geométrica regular em forma de quadrado, o que facilita a sua organização e aproveitamento. Atualmente é composto maioritariamente por olival, oferecendo um ambiente típico e produtivo da região. Além disso, o terreno permite a construção de apoio agrícola até 500 m², ideal para edificação de armazém, abrigo ou outras infraestruturas de suporte à atividade agrícola. A poucos minutos de Grândola, com acessos práticos e rodeado pela serenidade do campo, este imóvel é perfeito tanto para cultivo como para lazer em contacto direto com a natureza. Não perca esta oportunidade de garantir um espaço versátil no coração do Alentejo. Contacte-nos para mais informações ou agende já a sua visita!
AMI: 487
Ref. Externa: 2025043
Id: 1356810
Inicie sessão para guardar este imóvel e aceder à sua lista de favoritos em qualquer dispositivo.
Área útil : 248300 m²
Excelente oportunidade de investimento no coração da costa alentejana - ideal para quem procura um refúgio tranquilo com potencial agrícola ou turístico. Situado numa zona de excelência, este terreno beneficia de uma localização estratégica: a apenas 5 minutos do centro de Grândola, 15 minutos de Melides, e com acesso rápido à autoestrada (a 10 minutos), permitindo uma ligação eficiente a Lisboa, à Comporta e a toda a costa alentejana. Com uma área generosa, o terreno não está inserido em áreas REN (Reserva Ecológica Nacional) nem RAN (Reserva Agrícola Nacional), o que amplia significativamente as possibilidades de uso e valorização. Potencial de construção: - Pedido de Informação Prévia (PIP) em curso. - Possibilidade de construção de uma habitação até 500m², destinada ao proprietário-agricultor. - Permite ainda a edificação de estruturas de apoio agrícola até 8.000m². - Excelente para projetos de turismo rural, agricultura biológica ou residência de fim de semana. Características naturais e infraestrutura: - Terreno rústico predominantemente composto por montado de sobro, típico da região. - Localizado em zona elevada, oferece vistas panorâmicas deslumbrantes sobre a paisagem alentejana. - Ribeira nas proximidades, com abundância de água. - Rede elétrica já presente dentro da propriedade - apenas necessita ser ligada. - A estrada nacional 261-2 atravessa o terreno, garantindo ótimo acesso e visibilidade. Valorização futura: Inserido numa região em plena valorização imobiliária, especialmente com a aguardada entrada em vigor do novo PDM, que poderá ampliar as possibilidades construtivas e aumentar significativamente o valor do imóvel. Ref- D3184 Proximidade às conhecidas praias da Comporta, Melides, Carvalhal, Tróia e à Reserva Natural da Lagoa de Santo André. Precisa de apoio no financiamento? Somos intermediários de crédito autorizados pelo Banco de Portugal e acompanhamos todo o processo de financiamento com as melhores soluções do mercado - desde a primeira visita até à assinatura da escritura.
AMI: 2251
Ref. Externa: D3184
Id: 1324821
Inicie sessão para guardar este imóvel e aceder à sua lista de favoritos em qualquer dispositivo.
Área de terreno : 6000 m²
Terreno rústico com 6.000m² Localizado em zona calma e de fácil acesso. De acordo com as informações prestadas pelo proprietário junto da camara municipal, existe a possibilidade de construção de uma moradia unifamiliar até 150m² de área bruta. A área de implantação da moradia é de 138,85m², estando ainda contempladas áreas complementares para piscina e muro com vedação, dentro dos limites legais e regulamentares aplicáveis. As informações encontra-se totalmente em conformidade com as normas legais e regulamentares, bem como com os planos municipais e intermunicipais de ordenamento do território, garantindo total segurança ao comprador. Características principais: • Área total do terreno: 6.000m² • Área de implantação da moradia: 138,85m² • Construção até 150m² de área bruta • Possibilidade de 1 ou 2 pisos • Número de fogos: 1 • Projeto contempla piscina e muro com vedação Destaques: • Excelente oportunidade para construção própria ou investimento • Ideal para primeira habitação, casa de férias ou ativo para futura revenda • Terreno com grande potencial de valorização Situado a • 20 minutos de Pinhal Novo e Palmela • 15 minutos do Continente Modelo • 8 minutos da Escola Básica de Algeruz -Lau • 16 minutos da Escola Secundária de Pinhal Novo O acesso é feito por estrada por alcatroar, mas a Câmara Municipal de Palmela já iniciou o processo público para pavimentação (informação disponível no site oficial). Uma oportunidade única para construir a casa dos seus sonhos, com a tranquilidade e privacidade que procura. Agende já a sua visita!
AMI: 17164
Ref. Externa: 6-T-001490
Id: 1318809
Inicie sessão para guardar este imóvel e aceder à sua lista de favoritos em qualquer dispositivo.
Área de terreno : 987 m²
Terreno Rústico localizado na Lagoa de Albufeira - Sesimbra Descrição: Excelente oportunidade para investimento ou construção! Terreno rústico com 987,00 m², localizado na zona AUGI 2 da Lagoa de Albufeira, Sesimbra. Potencial de Construção: Moradia isolada com até 2 pisos; Área de construção prevista: 260,00 m²; Localização Privilegiada: Proximidade da Lagoa de Albufeira, ideal para quem aprecia natureza e tranquilidade; Fácil acesso a serviços e infraestruturas urbanas. Condições: Terreno pronto para licenciamento, conforme parecer técnico da Câmara Municipal de Sesimbra Ótima oportunidade para projeto personalizado. Não perca esta chance! Agende já uma visita.
AMI: 7555
Ref. Externa: 3417
Id: 1313556
Inicie sessão para guardar este imóvel e aceder à sua lista de favoritos em qualquer dispositivo.
Área bruta : 5000 m²
FAÇA CONNOSCO O MELHOR NEGÓCIO Apresentamos uma rara oportunidade de investimento num terreno rústico com elevado potencial agrícola e patrimonial, situado na prestigiada zona da Rabasqueira, na freguesia de Canha, concelho do Montijo. Com uma área total de 0,5 hectares (5.000m²), esta propriedade encontra-se classificada como Olival de Classe 4, com rendimento rural já estabelecido, ideal para quem procura investir na cultura do olival, turismo rural ou simplesmente um refúgio em plena natureza. Localização Premium: A propriedade situa-se junto à Estrada da Sesmaria, em Canha, com excelentes acessos e rodeada por paisagens naturais deslumbrantes. A apenas 40 minutos de Lisboa, esta localização combina tranquilidade rural com proximidade urbana. Características do Terreno: Área Total: 5.000m²; Classificação: Olival (Q.C.: OL); Solo fértil, com historial agrícola; Boa exposição solar e acessibilidade direta. É um terreno cuidado, com linhas de oliveiras bem definidas, áreas limpas e acessos delineados. Perfeito para produção, lazer ou desenvolvimento de projeto rural sustentável. Ideal para: Agricultores ou investidores agrícolas; Famílias que procuram um refúgio rural; Projetos de permacultura, turismo rural ou eco-agricultura; Quem valoriza património com história. Tratamos do seu processo de crédito, sem burocracias apresentando as melhores soluções para cada cliente. Intermediário de crédito certificado pelo Banco de Portugal com o nº 0001802. Ajudamos com todo o processo! Entre em contacto connosco ou deixe-nos os seus dados e entraremos em contacto assim que possível! CB97752MA
AMI: 8989
Ref. Externa: CB97752MA
Id: 1311648
Inicie sessão para guardar este imóvel e aceder à sua lista de favoritos em qualquer dispositivo.
Área bruta : 78 m²
Vende-se terreno agrícola na Azóia, Sesimbra, com 15.600,00 m2, a 5 minutos da praia da Foz, plano, junto a via pública, com capacidade de construção de 78 m2 + cave para garagem e arrunos, podendo ter igualmente sótão o terraço de cobertura, alpendres e piscina. Excelente para agricultura (Pomar, vinha, hortícolas, ou outras cumpturas), encontra-se a poucos minutos das praias (praia da Foz, Meco e outras), tem excelente exposição solar (todo o dia) e eletricidade no caminho público. Oportunidade de investimento para viver ou para turismo, em espaço rural, usufruíndo do que a natureza tem de bom, mas perto do mar e a 40 minutos de Lisboa.
AMI: 9476
Ref. Externa: TER_1398
Id: 1308114
Inicie sessão para guardar este imóvel e aceder à sua lista de favoritos em qualquer dispositivo.
1.240.000 €
Área de terreno : 34320 m²
OFERTA ATO ÚNICO ESCRITURA E REGISTOS, CONSULTE CONDIÇÕES. ! O lote está localizado no Parque Industrial da Península de Setúbal, na Herdade das Praias. O imóvel insere-se numa zona industrial perto da Central Termoelétrica de Setúbal, caracterizada pela presença de armazéns e indústria, nomeadamente algumas atividades industriais de grande dimensão, onde se destaca a Alstom, Portucel, Setenave, Porto de Setúbal e uma envolvente mais distante diversificada, contando com áreas residenciais nas Praias Sado, Manteigadas e o Politécnico de Setúbal. A rede viária garante uma grande proximidade aos eixos de circulação local, regional e nacional, encontrando-se igualmente próxima da via-férrea. Dadas as características e implantação de indústrias, a zona é ponto de passagem de veículos ligeiros e pesados. Em termos de desenvolvimento urbanístico, trata-se de uma zona industrial estabilizada, existindo parcelas de terreno sem ocupação perto dos imóveis. O local beneficia de bons acessos rodoviários, encontrando-se a cerca de 5km da EN10 e 8km da A12. A estação ferroviária de Praias - Sado localiza-se a cerca de 3kms. Existe ainda um ramal ferroviário que serve o parque industrial, bem como um cais portuário. O estacionamento em superfície processa-se sem dificuldade à entrada dos lotes através de espaços destinados a esse fim. O local dispõe igualmente de zonas de parqueamento de veículos pesados.
AMI: 9240
Ref. Externa: T/02187
Id: 1304075
Inicie sessão para guardar este imóvel e aceder à sua lista de favoritos em qualquer dispositivo.
Estes agentes são especialistas nesta zona:
Inicie sessão para ocultar este imóvel das suas pesquisas e manter a sua lista de resultados organizada.
Guardar favoritos
Este imóvel foi guardados nos seus favoritos com sucesso.
Para poder guardar pesquisa deverá ter a sua sessão iniciada.
Caso não tenha uma conta, deverá criar uma.
A sua pesquisa foi guardada com sucesso!
© Copyright 2023 | CASACERTA. All rights reserved
Este site utiliza cookies. Ao navegar no site estará a consentir a sua utilização.
Para mais informações sobre os cookies pode consultar a
política de privacidade.