Lista
Comprar
Arrendar
3 Quartos
3 WCs
Área bruta : 160 m²
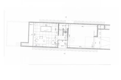
Magnífico T3 com vistas deslumbrantes e conforto de excelência em Nogueiró Apresentamos este extraordinário apartamento T3 (com duas suites), situado numa das zonas mais valorizadas e centrais de Braga, a poucos minutos da Universidade do Minho, do INL e de todos os serviços essenciais. Localizado num edifício moderno e bem cuidado, este imóvel combina elegância, conforto e uma excelente exposição solar, com vistas privilegiadas para a Rodovia e para o Bom Jesus/Sameiro. Principais características do imóvel - Tipologia: T3 (com duas suites); - Áreas generosas e excelente distribuição dos espaços; - 3 varandas: com vistas para a Rodovia ou para o Bom Jesus! - Sala de estar e jantar em open space, com hall de entrada amplo e luminoso; - Cozinha independente, com duas portas de acesso e varanda própria; - 3 casas de banho (duas nas suites e uma de serviço); Equipamentos e acabamentos - Aquecimento central e ar condicionado; - Música ambiente integrada; - Aspiração central; - Vidros duplos e caixilharia em alumínio com isolamento térmico e acústico; - Renovado em 2018, mantendo uma estética contemporânea e funcional; - Cozinha equipada com forno, placa, exaustor, máquina de lavar loiça e frigorífico; Localização privilegiada Situado em frente à Rodovia, este apartamento oferece o equilíbrio perfeito entre tranquilidade e conveniência. A poucos passos, encontra pastelarias, restaurantes, comércio local, farmácias e transportes públicos, bem como o Parque da Rodovia, ideal para passeios ao ar livre e momentos de lazer até com o seu animal de estimação, existindo, perto um parque canino. A zona oferece ainda excelente conectividade, com várias paragens de autocarro e acesso rápido ao centro histórico de Braga, ao Braga Parque e ao Hospital de Braga. Porquê escolher este T3? Este apartamento é perfeito para quem procura um lar espaçoso, moderno e bem localizado em Braga. A vista desafogada, o conforto térmico e acústico, e os detalhes de qualidade fazem deste imóvel uma oportunidade única de viver com qualidade e estilo. Agende já a sua visita e descubra o conforto, a elegância e a praticidade deste magnífico T3 no coração de Braga. Sofia Lucas | +351910030453 DS PRIVATE Braga | Agência Imobiliária em Braga Labmarl, Lda Lic. AMI 18810 Rua Gabriel Pereira de Castro n.3 Loja J, 4700-385 Braga
AMI: 18810
Ref. Externa: DSPBRAGASL40
Id: 1495477
Inicie sessão para guardar este imóvel e aceder à sua lista de favoritos em qualquer dispositivo.
3 Quartos
2 WCs
Área bruta : 150 m²
Vende-se apartamento T3 em Tenões O apartamento localiza-se na Rua dos Prados. Próximo a cafés, pastelaria e polo de negócios. Ótimos acessos ao centro da cidade de Braga e a outros concelhos limítrofes como Póvoa de Lanhoso. Está inserido num prédio com elevador. Está em muito bom estado de conservação. Tem garagem fechada para uma viatura e com arrumos. Apresenta as seguintes características: Hall de entrada; cozinha mobilada e equipada com placa, forno, exaustor, bomba de calor, frigorífico, microondas, máquina de lavar roupa; sala ampla com varanda; 1 suíte com WC com base de chuveiro com acesso a varanda; 2 quartos com janela e roupeiros embutidos; WC completo de apoio aos quartos com pia dupla e banheira. Licença de utilização: 399/2009 Morada: Rua dos Prados, 18 - Tenões Para agendar a sua visita: Tlf. 253 254 081 (Chamada para a rede fixa nacional) Url. www.florestaimobiliaria.pt Ref. 013-4278 Comprar ou vender a casa é provavelmente a maior e mais importante investimento que algum dia irá fazer. É por isso que tantos clientes confiam em nós. Somos uma agência imobiliária de Braga, que se tem vindo a destacar no mercado imobiliário em Portugal graças ao seu profissionalismo, dedicação e inovação. Conhecemos o mercado imobiliário em Braga como poucos e queremos ajudar em tudo o que necessitar durante o processo. Trabalhamos com rigor, eficiência e transparência! Com um histórico comprovado e uma equipa eficaz, estamos comprometidos em criar experiências extraordinárias em cada etapa do caminho. - Estamos aqui para ajudar com conhecimento especializado em todos os momentos-chave da compra e venda da sua casa. - Estamos ao seu lado para orientar e ajudar a tomar decisões informadas. Temos várias opções de casas à venda no distrito de Braga. Desde apartamentos para comprar, moradias, terrenos, lojas, escritórios, entre outras soluções. Pode entrar em contacto por: \ Telefone: 253 254 081 (Chamada para a rede fixa nacional) \ Whatsapp: 918 022 389 \ Email: [email protected] Também dispomos de um serviço gratuito de avaliação de imóveis para que possa ter conhecimento do valor da sua casa. Somos Intermediários de Crédito Bancário autorizados pelo Banco de Portugal, e podemos auxilia-lo(a) na gestão de todo o seu processo de financiamento. Desde 2007 a tratar dos seus projetos imobiliários com toda a transparência, rigor e eficiência. Quer comprar, arrendar ou vender casa no distrito de Braga através de uma agência imobiliária? Deixe connosco! Entre em contacto com a nossa agência imobiliária de Braga. floresta Imobiliária o caminho seguro para a sua casa Visite-nos na Rua do Taxa nº 5 em São Vitor Licença AMI 7630
AMI: 7630
Ref. Externa: 013-4278
Id: 1475852
Inicie sessão para guardar este imóvel e aceder à sua lista de favoritos em qualquer dispositivo.
2 Quartos
2 WCs
Área bruta : 94 m²
Apresentamos este apartamento T2, um espaço onde o conforto se encontra com a elegância de um design cuidadosamente pensado. Inserido num edifício recente, este imóvel, destaca-se pela qualidade dos acabamentos, excelente luminosidade e pela atenção a cada detalhe - pronto a habitar e pensado para o bem-estar no dia a dia. Principais características: Sala e cozinha em open space, totalmente equipada - criando um ambiente acolhedor, que prima pela praticidade; Dois quartos, sendo um deles suíte com closet e o outro com roupeiro embutido; Ar condicionado e recuperador de calor; Lavandaria; Duas casas de banho modernas; Varanda acolhedora, ideal para relaxar ou receber amigos; Garagem individual. Com uma localização de excelência, em Tenões zona tranquila e com tudo o que precisa por perto. Recente, elegante e funcional, este apartamento é ideal para quem procura um lar distinto, onde o conforto e a qualidade são notórios! Proximidades: Universidade do Minho; INL; Hospital de Braga; Shopping e Centro da cidade; 20 minutos da praia e 30 minutos do aeroporto Sá Carneiro.
AMI: 8398
Ref. Externa: 3897/O
Id: 1454050
Inicie sessão para guardar este imóvel e aceder à sua lista de favoritos em qualquer dispositivo.
4 Quartos
4 WCs
Área bruta : 234 m²
Identificação do imóvel: ZMPT582288 Moradia T4 Convertida em T3 de Luxo com Suite Master e Closet Premium – Nogueiró, BragaApresentamos esta magnífica moradia de luxo, localizada numa das zonas mais prestigiadas e tranquilas de Nogueiró, Braga. Uma propriedade distinta, onde cada detalhe foi pensado para proporcionar conforto, elegância e funcionalidade.Distribuída por meios pisos, esta casa combina de forma harmoniosa a arquitetura moderna com acabamentos de elevada qualidade.Com um lote de 209 m² e uma área bruta de construção de 378 m², esta moradia foi cuidadosamente convertida de T4 para T3, destacando-se pela sua Suite Master com closet premium, sapateira e casa de banho privativa com luz natural.Características Gerais- Espaço reservado para instalação de elevador- Ar condicionado por condutas- Aquecimento central a gás natural- Sistema de alarme e vídeo porteiro- Som ambiente e intercomunicador por pisos- Pré-instalação de sancas iluminadas- Aspiração central- Parqueamento para um automóvel e garagem fechada para 2 carrosDistribuição dos EspaçosPiso R/C- Hall de entrada acolhedor- Sala de estar com recuperador de calor, pé direito de 4 metros e abundante luz natural- Casa de banho de serviçoPiso Sala de Jantar e Cozinha- Ampla sala de jantar com ligação direta ao exterior- Cozinha totalmente mobilada e equipada com eletrodomésticos Bosch (placa de indução, forno, micro-ondas, máquina de lavar loiça) e exaustor Teka- Frigorífico e arca congeladora side by side integrados em móvel despenseiro- Ambos os espaços com acesso direto ao exterior, zona perfeita para momentos de convívio e lazer, com possibilidade de instalação de piscinaPiso dos Quartos- Hall com roupeiro e excelente luminosidade- Suite Master de grandes dimensões, com varanda, closet, sapateira e casa de banho com banheira e luz natural- Dois quartos amplos, ambos com roupeiro e varanda comum- Duas casas de banho completas com base de duche- Possibilidade de usar estes dois quartos como suítes independentesPiso ½ Cave- Sala de estar e salão de jogos com luz natural- LavandariaPiso Cave- Zona de arrumos sob as escadas- Garagem fechada para dois automóveis, com armários de arrumação adicionaisPontos de interesse- Centro Comercial Minho Center, Staples, LIDL e Farmácia Pipa 3 min (1.4km);- Supermercados Mercadona e ALDI 3 min (1.5km);- INL e Parque da Rodovia 4 min (1.6km);- Creche de Lamaçães e Escola Básica 2/3 de Lamaçães 4 min (1.6km);- Universidade do Minho 4 min (1.7km);- Ginásio Holmes Place 5 min (2.4km);- CLIB - Colégio Luso Internacional de Braga 7 min (3.5km);- Centro da cidade 7 min (3.5km);- Colégio Dom Diogo de Sousa 7 min (4.7km);- Hospital Privado Trofa 8 min (4.5km);- Hospital de Braga 8 min (4.6km);Esta moradia é a escolha ideal para quem procura qualidade de vida, conforto e privacidade, numa localização de excelência próxima do centro de Braga, com fácil acesso a serviços, escolas e vias rápidas. Elegância, conforto e exclusividade — a casa perfeita para a sua família em Nogueiró.3 razões para comprar com a Zome+ acompanhamentoCom uma preparação e experiência única no mercado imobiliário, os consultores Zome põem toda a sua dedicação em dar-lhe o melhor acompanhamento, orientando-o com a máxima confiança, na direção certa das suas necessidades e ambições.Daqui para a frente, vamos criar uma relação próxima e escutar com atenção as suas expectativas, porque a nossa prioridade é a sua felicidade! Porque é importante que sinta que está acompanhado, e que estamos consigo sempre.+ simplesOs consultores Zome têm uma formação única no mercado, ancorada na partilha de experiência prática entre profissionais e fortalecida pelo conhecimento de neurociência aplicada que lhes permite simplificar e tornar mais eficaz a sua experiência imobiliária.Deixe para trás os pesadelos burocráticos porque na Zome encontra o apoio total de uma equipa experiente e multidisciplinar que lhe dá suporte prático em todos os aspetos fundamentais, para que a sua experiência imobiliária supere as expectativas.+ felizO nosso maior valor é entregar-lhe felicidade!Liberte-se de preocupações e ganhe o tempo de qualidade que necessita para se dedicar ao que lhe faz mais feliz.Agimos diariamente para trazer mais valor à sua vida com o aconselhamento fiável de que precisa para, juntos, conseguirmos atingir os melhores resultados.Com a Zome nunca vai estar perdido ou desacompanhado e encontrará algo que não tem preço: a sua máxima tranquilidade!É assim que se vai sentir ao longo de toda a experiência: Tranquilo, seguro, confortável e... FELIZ!Notas:1. Caso seja um consultor imobiliário, este imóvel está disponível para partilha de negócio. Não hesite em apresentar aos seus clientes compradores e fale connosco para agendar a sua visita.2. Para maior facilidade na identificação deste imóvel, por favor, refira o respetivo ID ZMPT ou o respetivo agente que lhe tenha enviado a sugestão.
AMI: 17432
Ref. Externa: ZMPT582288
Id: 1443452
Inicie sessão para guardar este imóvel e aceder à sua lista de favoritos em qualquer dispositivo.
3 Quartos
2 WCs
Área bruta : 175 m²
Magnífico apartamento T3, localizado numa das zonas mais nobres e procuradas da cidade de Braga, a poucos minutos do centro histórico; da Universidade do Minho; do Forum Braga e de várias zonas comerciais e de lazer. Área: Com uma área total de 145 m², este imóvel combina elegância, conforto e funcionalidade, ideal para famílias modernas ou para quem valoriza espaço, localização e qualidade de vida. Área Social: A entrada principal dá acesso a uma ampla sala de estar e jantar, com excelente luminosidade natural, graças às grandes janelas e ao acesso direto a uma das três varandas, onde poderá desfrutar de momentos de tranquilidade ou convívio. Conta, ainda, com uma cozinha espaçosa, totalmente mobilada e equipada com eletrodomésticos modernos, oferecendo também uma zona de refeições e acesso direto à varanda. Zona Privativa: Na zona privativa, encontramos três quartos com boas áreas, todos com roupeiros embutidos, oferecendo bastante arrumação. Um dos quartos é uma confortável suíte, com casa de banho privativa e varanda, ideal para quem valoriza privacidade. A segunda casa de banho, completa e funcional, serve os restantes dois quartos e visitas. Principais características: Este apartamento está equipado com ar condicionado em várias divisões, janelas com vidro duplo e estores elétricos, garantindo conforto térmico e acústico ao longo de todo o ano. A existência de três varandas proporciona não só uma excelente ventilação cruzada, mas também agradáveis espaços exteriores em diferentes orientações solares. Outro grande destaque deste imóvel é a garagem fechada, com capacidade para dois carros, o que representa uma mais-valia significativa em zonas urbanas como esta. O edifício conta ainda com elevador, acesso facilitado e boas áreas comuns, mantendo-se em excelente estado de conservação. Localização: A sua localização estratégica permite um acesso rápido ao centro da cidade, zonas escolares, hospitais, centros comerciais, supermercados, transportes públicos, e está bem servida por vias de ligação às principais saídas da cidade. Se procura um apartamento com boas áreas, numa zona valorizada de Braga, com todos os serviços por perto e pronto a habitar, esta é a oportunidade ideal. Marque já a sua visita e venha conhecer aquele que pode ser o seu próximo lar! O Grupo Mérito foi fundado no ano 2000 e desde logo procurou cimentar uma posição de solidez, competência e credibilidade junto dos mais diversos atores do mercado imobiliário, nomeadamente através de uma equipa que, desde logo, se compôs por profissionais com competência técnica e experiência. Atento à responsabilidade de prestar um serviço de excelente qualidade, foi pelo Grupo Mérito definida uma nova estratégia de crescimento geográfica, que levou à abertura de novas lojas nas cidades de Barcelos, Guimarães, Vila do Conde, Vila Nova de Famalicão, Porto e Póvoa do Varzim, contando com cerca de 40 consultores e uma carteira de imóveis alargada e diversificada. Sempre "de portas abertas para fazer bons negócios", o Grupo Mérito rege-se por um conjunto de princípios e valores que se têm revelado fatores de sucesso no setor imobiliário: sigilo profissional sobre factos e documentos, elevado sentido de responsabilidade, dever de informação e defesa intransigente dos interesses de todos os seus clientes. A experiência, a credibilidade e a competência do Grupo Mérito, são reconhecidas tanto pelos promotores imobiliários como pelos compradores (sejam Particulares, Empresas ou Investidores). Só assim é possível estabelecer relações fortes com instituições públicas e privadas e com as restantes mediadoras. Aguardamos a sua visita em qualquer uma das nossas sete lojas do Grupo Mérito… porque o nosso Mérito é Investir em Si.
AMI: 4760
Ref. Externa: MI-A/0256
Id: 1432731
Inicie sessão para guardar este imóvel e aceder à sua lista de favoritos em qualquer dispositivo.
1.200.000 €
4 Quartos
5 WCs
Área bruta : 400 m²
Fabulosa moradia individual em Nogueiró. Esta moradia térrea localiza-se numa das zonas mais nobres da cidade de Braga. Com uma envolvência muito tranquila mas muito próxima dos espaços comerciais e de serviços mais importantes da cidade. Com 4 quartos, 3 deles suite, conta também com espaços para escritório e ginásio. Possui duas salas com áreas generosas, cozinha e lavandaria. Conta com um espaço exterior soberbo, com uma zona ajardinada e uma piscina deslumbrante. Esta moradia possui um furo que alimenta a piscina e o sistema de rega automático. Venha conhecer esta exclusiva moradia. Muito mais há para mostrar!
AMI: 18810
Ref. Externa: DSPBRAGAPAV96
Id: 1418034
Inicie sessão para guardar este imóvel e aceder à sua lista de favoritos em qualquer dispositivo.
2 Quartos
2 WCs
Área bruta : 135 m²
Apresentamos este apartamento T2 em ótimo estado de conservação, localizado na prestigiada freguesia de Nogueiró, uma das zonas mais procuradas de Braga pela sua tranquilidade e proximidade a pontos de interesse. Este imóvel tem como destaque a sua localização priveligiada, uma vez que fica a 5 minutos a pé da Universidade do Minho, a 2 minutos do INL (Laboratório Ibérico Internacional de Nanotecnologia) e a 10 minutos de carro do Santuário do Bom Jesus do Monte. Bons acessos rodoviários e transportes públicos nas proximidades Este apartamento encontra-se perto de todos os bens e serviços que são importantes para o nosso quotidiano, tais como escolas, farmácias, supermercados. Características gerais: - Ar condicionado por conduta; - Cozinha e lavandaria equipada; - Churrasqueira; - Bomba de calor; - Paineis Solares; - Garagem fechada para 1 carro. Possibilidade de vender o imóvel mobilado conforme está nas fotografias. Este imóvel é ideal para quem procura conforto, praticidade e uma excelente localização, seja para habitação própria ou como investimento com elevado potencial de rentabilidade. Para mais informações ou agendamento de visita entre em contacto connosco! Porquê comprar com a BRANA Imobiliária? Com mais de 25 anos de experiência, a BRANA é formada por uma equipa de colaboradores qualificados com conhecimento e experiência no âmbito dos serviços que nos propomos prestar, seja para compra, venda e arrendamento. É da nossa responsabilidade explorar as suas necessidades e ajudá-lo a conseguir o melhor negócio para si! Acreditamos que a compra de uma casa é dos investimentos mais importantes da vida e que deve ser uma decisão ponderada, ajustada e bem acompanhada. Na BRANA, juntamos experiência com dedicação, confiança e profissionalismo. Trabalhamos com o objetivo de fazer tudo o que está ao nosso alcance para encontrar a casa ideal para si!
AMI: 4288
Ref. Externa: BRN1225/25 MA
Id: 1406898
Inicie sessão para guardar este imóvel e aceder à sua lista de favoritos em qualquer dispositivo.
2 Quartos
2 WCs
Área bruta : 120 m²
Apresentamos este magnífico apartamento T2+1, praticamente novo, situado no 3.º andar de um prédio moderno com elevador, na prestigiada zona de Tenões, Braga uma localização tranquila e ao mesmo tempo próxima do centro da cidade. Principais Características: - 3 quartos, incluindo uma suíte com excelentes áreas e um quarto extra ideal para escritório, closet ou quarto de apoio - Sala e cozinha em open space, com cozinha totalmente equipada e ilha central, criando um ambiente moderno e funcional - 1 casa de banho completa de apoio aos restantes quartos - Lavandaria/arrecadação independente, garantindo praticidade e organização Conforto e Equipamentos: - Ar condicionado - Piso radiante - Aquecimento central - Recuperador de calor a pellets, para maior eficiência e conforto térmico em dias frios Exterior e Extras: - Varanda tipo terraço, ampla e soalheira, perfeita para momentos de lazer - Churrasqueira, ideal para convívios com família e amigos - Garagem fechada, com acesso direto pelo elevador Este apartamento destaca-se pela qualidade de construção, design contemporâneo e excelentes acabamentos perfeito para quem procura conforto, modernidade e uma excelente localização em Braga. Está a procura de um imóvel mas não sabe por onde começar?! Não se preocupe! Com a Lanhoso Gold só precisa de se procurar com os seus gostos, pois terá um acompanhamento personalizado pelas suas expectativas! IMPORTANTE O sonho dos clientes é a nossa única preocupação, então se é um consultor imobiliário e que, na Lanhoso Gold, tenha o imóvel dos sonhos do seu cliente não hesite em nos contactar para agendar uma visita! Seu sonho é o que nos motiva! Lanhoso Gold Largo António Ferreira Lopes n.º 54 Licença de AMI - 21374
AMI: 21374
Ref. Externa: ID - 125442 - MP
Id: 1404258
Inicie sessão para guardar este imóvel e aceder à sua lista de favoritos em qualquer dispositivo.
4 Quartos
4 WCs
Área bruta : 300 m²
Moradia T4 em Nogueiró Braga Excelentes áreas | Localização privilegiada | Conforto e luminosidade Apresentamos esta fantástica moradia T4 situada em Nogueiró, uma das zonas mais nobres, tranquilas e centrais de Braga. Com excelentes áreas em todas as divisões, esta casa foi pensada para oferecer conforto, funcionalidade e qualidade de vida a toda a família. Exposição solar excecional em todas as frentes da casa, com varandas em todos os quartos, proporcionando luz natural abundante e uma ligação direta ao exterior. 4 quartos espaçosos 4 casas de banho Sala de estar com lareira, ideal para momentos de convívio Localização privilegiada: a poucos minutos do INL, Universidade do Minho e Parque da Rodovia Na cave, encontrará um amplo salão com luz natural e acesso direto ao logradouro, perfeito para criar uma área de lazer, ginásio ou escritório. Dispõe ainda de: Lavandaria independente Aspiração central Logradouro privativo, ideal para momentos ao ar livre Zona calma e com acesso rápido a todo o tipo de serviços e vias principais Aquecimento central Esta moradia é ideal para quem procura viver com tranquilidade sem abdicar da proximidade ao centro e às principais instituições da cidade. Agende já a sua visita e venha conhecer a sua nova casa!
AMI: 14573
Ref. Externa: DSBRGNDC134
Id: 1378838
Inicie sessão para guardar este imóvel e aceder à sua lista de favoritos em qualquer dispositivo.
2 Quartos
Área útil : 99 m²
Apartamentos T2 Novos – Braga Apresentamos uma excelente oportunidade de aquisição de apartamentos T2 novos, inseridos numa zona residencial de referência em Braga. Estes imóveis distinguem-se pela sua localização privilegiada, qualidade de construção e áreas generosas, proporcionando um elevado padrão de conforto e funcionalidade. Situados numa envolvente urbana tranquila e bem estruturada, com acesso facilitado a todo o tipo de serviços, comércio, escolas e transportes, estes apartamentos oferecem as condições ideais para residência própria ou investimento seguro.
AMI: 19003
Ref. Externa: VI-0019
Id: 1373148
Inicie sessão para guardar este imóvel e aceder à sua lista de favoritos em qualquer dispositivo.
3 Quartos
2 WCs
Área bruta : 172 m²
Apresentamos este espaçoso apartamento T3, com cerca de 140 m², situado no 3.º andar de um prédio com elevador, em zona tranquila e de fácil acesso em Tenões. Situado em Tenões, numa zona sossegada e residencial, este apartamento beneficia de excelentes acessos ao centro da cidade de Braga, ficando a poucos minutos de carro. Nas proximidades encontra uma oferta variada de restaurantes, padarias, supermercados e serviços essenciais, proporcionando o equilíbrio ideal entre tranquilidade e conveniência. O imóvel destaca-se pela qualidade dos acabamentos e conforto: Pavimento em soalho pregado Tectos falsos com iluminação embutida Vidros duplos, ar condicionado, som ambiente e aspiração central Estores elétricos Hall de entrada com roupeiro embutido; Cozinha equipada (placa, forno, exaustor, esquentador e frigorífico), com despensa e lavandaria; Sala ampla com recuperador de calor e varanda; 1 suíte com WC completo (banheira); 2 quartos com roupeiros embutidos; Varandas nos quartos. Com detalhes únicos, como paredes revestidas a pedra natural, que conferem um charme especial ao espaço. A propriedade dispõe, ainda, de garagem fechada para dois carros, o que garante comodidade e segurança. Para conhecer e obter mais informações: Tlm. 918 022 380 - Gonçalo Silva (Chamada para a rede móvel nacional) Ref. 013-4244 Url. www.florestaimobiliaria.pt Comprar ou vender a casa é provavelmente a maior e mais importante investimento que algum dia irá fazer. É por isso que tantos clientes confiam em nós. Somos uma agência imobiliária de Braga, que se tem vindo a destacar no mercado imobiliário em Portugal graças ao seu profissionalismo, dedicação e inovação. Conhecemos o mercado imobiliário em Braga como poucos e queremos ajudar em tudo o que necessitar durante o processo. Trabalhamos com rigor, eficiência e transparência! Com um histórico comprovado e uma equipa eficaz, estamos comprometidos em criar experiências extraordinárias em cada etapa do caminho. - Estamos aqui para ajudar com conhecimento especializado em todos os momentos-chave da compra e venda da sua casa. - Estamos ao seu lado para orientar e ajudar a tomar decisões informadas. Temos várias opções de casas à venda no distrito de Braga. Desde apartamentos para comprar, moradias, terrenos, lojas, escritórios, entre outras soluções. Pode entrar em contacto por: \ Telefone: 253 254 081 (Chamada para a rede fixa nacional) \ Whatsapp: 918 022 389 \ Email: [email protected] Somos Intermediários de Crédito Bancário autorizados pelo Banco de Portugal, e podemos auxilia-lo(a) na gestão de todo o seu processo de financiamento. Desde 2007 a tratar dos seus projetos imobiliários com toda a transparência, rigor e eficiência. Quer comprar, arrendar ou vender casa no distrito de Braga através de uma agência imobiliária? Deixe connosco! Entre em contacto com a nossa agência imobiliária de Braga. floresta Imobiliária o caminho seguro para a sua casa Visite-nos na Rua do Taxa nº 5 em São Vitor Licença AMI 7630
AMI: 7630
Ref. Externa: 013-4244
Id: 1368213
Inicie sessão para guardar este imóvel e aceder à sua lista de favoritos em qualquer dispositivo.
2 Quartos
1 WCs
Área bruta : 88 m²
Vista Deslumbrante para o Bom Jesus Descubra este elegante apartamento T2+1 situado em Nogueiró, uma das zonas mais valorizadas e procuradas de Braga. Um imóvel que alia conforto, funcionalidade e uma vista privilegiada sobre o Bom Jesus, perfeito para quem procura qualidade de vida. Localizado no 5.º andar de um prédio com dois elevadores, este apartamento destaca-se pela sua luminosidade excecional, graças à dupla exposição solar: -A nascente, os quartos desfrutam de uma vista única sobre o Bom Jesus, oferecendo manhãs repletas de tranquilidade e luz natural; -A poente, a cozinha e a sala recebem a luz dourada do final do dia, criando ambientes acolhedores para momentos em família ou convívio entre amigos. Principais características: -Sala ampla equipada com lareira; -Cozinha mobilada e equipada com forno, placa, frigorífico, micro-ondas, esquentador e exaustor; -Despensa para arrumação extra; -Dois quartos com roupeiros embutidos; -Espaço adicional (+1), ideal para escritório, quarto de apoio ou zona de lazer; -Garagem fechada para uma viatura, com espaço extra para arrumos. -Edifício renovado e valorizado: O prédio encontra-se em excelente estado de conservação, fruto das recentes intervenções: -Substituição e melhoria do telhado; -Aplicação de capoto na fachada nascente, aumentando o conforto térmico e eficiência energética; -Modernização dos elevadores, garantindo maior comodidade e segurança. Este apartamento é mais do que uma casa: é um espaço onde cada detalhe foi pensado para proporcionar bem-estar, aliado a uma localização privilegiada, próxima dos principais acessos, serviços e da serenidade que só Nogueiró oferece. Marque já a sua visita! Pode também contar com a nossa ajuda na Intermediação de Crédito, uma vez que a CALCULACERTADO - Mediação Imobiliária Lda, Lic. AMI 10030, está registada junto do Banco de Portugal, como Intermediário de Crédito Vinculado, sob o nº 4786, verificável em https://www.bportugal.pt/intermediariocreditofar/calculacertado-lda
AMI: 10030
Ref. Externa: 000177
Id: 1355476
Inicie sessão para guardar este imóvel e aceder à sua lista de favoritos em qualquer dispositivo.
1.990.000 €
4 Quartos
6 WCs
Área bruta : 450 m²
De arquitetura contemporânea, esta moradia com quatro quartos todos eles suíte conta com acabamentos de elevado detalhe e requinte. Inserida num lote em plena encosta de Dadim, Nogueiró, com umas vistas únicas para a cidade de Braga Desenvolvendo-se em dois pisos, o rés-do-chão possui uma área mais técnica e multifuncional onde encontramos duas salas polivalentes usadas no momento como ginásio e sala de jogos, podendo facilmente transformar em sala de cinema ou outro tipo de utilização e ainda um quarto suíte, a garagem, lavandaria e sala de tratamento de roupa com grande arrumação. O piso principal recebe-nos com um hall de entrada, uma sala comum ampla virada a cidade apoiada por um pátio e varanda com piscina aquecida que nos levam a desfrutar de um por do sol invejável com a Cidade Braga aos nossos pés e ainda a zona de cozinha, isto como áreas de serviço, na zona mais reservada dispomos ainda de mais três quartos todos eles suíte e closet tendo a master suíte dimensões mais generosas. De salientar que facilmente vivemos a moradia em um só piso e nos deslocamos facilmente no elevador que nos leva do piso de entrada para o piso superior. Ao nível de acabamentos a moradia transporta-nos para para um ambiente de alto requinte, toda ela preparada ao detalhe desde toda a iluminação que nos confere um ambiente acolhedor ás madeiras naturais utilizadas em revestimentos de parede e pavimento, as pedras naturais aplicadas nas casas de banho bem como em toda a área exterior, o piso radiante que no inverno nós fornece um conforto inconfundível até à ventilo convecção por conduta que nos ajuda a refrescar a moradia nas tardes mais quentes de verão, dispõe ainda de cozinha de alto padrão de acabamento equipada com eletrodomésticos Bosh, domótica, vídeo vigilância e alarme, aspiração central e Wallbox EV Charger. Venha conhecer este imóvel com características únicas Contacte para mais informações... Marque sua visita!!! N.Houses - Mediação Imobiliária, Lda AMI:14093 Fundada em Braga mas criada para uma aposta ao nível nacional Uma aposta em ser uma empresa reconhecida no mercado imobiliário. Temos como objetivo um compromisso com rigorosos padrões de profissionalismo. Oferecer serviços de excelência com os melhores produtos de mercado a todos clientes dentro dos trâmites legais vigentes. Responsabilidade, veracidade, agilidade, ambição e empenho na concretização negócios e ideias junto dos nossos clientes. Pretendemos conquistar a confiança e a preferência de todos aqueles que apostarem em nós.
AMI: 14093
Ref. Externa: NH720
Id: 1338591
Inicie sessão para guardar este imóvel e aceder à sua lista de favoritos em qualquer dispositivo.
4 Quartos
5 WCs
Área bruta : 231 m²
Identificação do imóvel: ZMPT580191Moradia T4 em banda em Nogueiró - Braga.Características e atributos:- 4 quartos, sendo 3 deles suite:- Quarto sul: fica cama de 135 cm;- Suite principal: fica cama de160 cm e tapete;- 3º quarto: fica cama de 160 cm e tapete;- Ficam cortinas nas divisões a sul e tela blackout em 2 janelas a nascente.- 5 wc's;- 2 varandas;- 1 logradouro;- Hall de entrada: bengaleiro;- Cozinha mobilada e equipada com microondas, forno, Whirpool 6 th Sense , frigorífico americano Smeg, placa de indução 90 cm whirlpool, exaustor Falmec 90 cm e máquina de lavar louça da Beko;- Churrasqueira;- Despensa: 2 estantes em madeira;- Garagem fechada para 2 carros e incluído máquina de lavar LG e máquina de secar Candy + 2 estantes em madeira para arrumos;- Salão de baixo: sofá Branco com 3 lugares;- Biblioteca em madeira + móvel de Tv + móvel de arrumos e secretária branca e com Carvalho que está no espaço menor do salão, mesa de vidro com 8 cadeiras de tecido, 2 aparadores e uma cristaleira;- Tomada para carregamento carro eléctrico;- 2 painéis solares;- Pré-instalação de gás canalizado;- Aspiração central;- Lareira a pellets;- Ar condicionado por split;- Estores elétricos;- Portões elétricos;- Alarme;- Vídeo porteiro;- Sistema de rega automática;- Vidros duplos;- As águas são aquecidas através de bomba de calor.Proximidades:- a 5 min do Parque Desportivo da Rodovia;- a 5 min da Universidade do Minho;- a 5 min da Farmácia Lamaçães;- a 6 min da Escola Básica 2/3 de Lamaçães.Proximidades (comércios):- a 4 min do restaurante Ohlálá;- a 5 min do parque Canino de Nogueiró;- a 5 min do supermercado ALDI;- a 5 min do supermercado Mercadona;- a 5 min do restaurante Tourigalo;- a 5 min do supermercado Makro;- a 5 min do banco Santander;- a 5 min do banco Caixa Geral de Depósitos;- a 5 min do banco Bankinter;- a 5 min do supermercado Lidl;- a 5 min do supermercado Continente;- a 5 min do posto de combustível Galp;- a 6 min da Escola Secundária Alberto Sampaio;- a 7 min do Miradouro do Picoto;- a 7 min do Parque da Ponte.3 razões para comprar com a Zome+ acompanhamentoCom uma preparação e experiência única no mercado imobiliário, os consultores Zome põem toda a sua dedicação em dar-lhe o melhor acompanhamento, orientando-o com a máxima confiança, na direção certa das suas necessidades e ambições.Daqui para a frente, vamos criar uma relação próxima e escutar com atenção as suas expectativas, porque a nossa prioridade é a sua felicidade! Porque é importante que sinta que está acompanhado, e que estamos consigo sempre.+ simplesOs consultores Zome têm uma formação única no mercado, ancorada na partilha de experiência prática entre profissionais e fortalecida pelo conhecimento de neurociência aplicada que lhes permite simplificar e tornar mais eficaz a sua experiência imobiliária.Deixe para trás os pesadelos burocráticos porque na Zome encontra o apoio total de uma equipa experiente e multidisciplinar que lhe dá suporte prático em todos os aspetos fundamentais, para que a sua experiência imobiliária supere as expectativas.+ felizO nosso maior valor é entregar-lhe felicidade!Liberte-se de preocupações e ganhe o tempo de qualidade que necessita para se dedicar ao que lhe faz mais feliz.Agimos diariamente para trazer mais valor à sua vida com o aconselhamento fiável de que precisa para, juntos, conseguirmos atingir os melhores resultados.Com a Zome nunca vai estar perdido ou desacompanhado e encontrará algo que não tem preço: a sua máxima tranquilidade!É assim que se vai sentir ao longo de toda a experiência: Tranquilo, seguro, confortável e... FELIZ!Notas:1. Caso seja um consultor imobiliário, este imóvel está disponível para partilha de negócio. Não hesite em apresentar aos seus clientes compradores e fale connosco para agendar a sua visita.2. Para maior facilidade na identificação deste imóvel, por favor, refira o respetivo ID ZMPT ou o respetivo agente que lhe tenha enviado a sugestão.
AMI: 17432
Ref. Externa: ZMPT580191
Id: 1336104
Inicie sessão para guardar este imóvel e aceder à sua lista de favoritos em qualquer dispositivo.
459.000 €
Área bruta : 230 m²
Moradia T4 em Banda com Vista Panorâmica para o Bom Jesus – Tenões, BragaApresentamos uma oportunidade única em Tenões: moradia em banda T4, em fase final de remodelação e acabamentos, situada numa localização privilegiada, a apenas 5 minutos do centro de Braga.Características do imóvel: Rés-do-chão: Cozinha totalmente equipada com armários embutidos, frigorífico americano, placa elétrica, micro-ondas, lava-loiça e forno elétrico; ampla sala de estar e jantar; casa de banho de serviço; jardim de inverno com espaço coberto para barbecue e acesso direto ao logradouro. 1º Piso: Suite principal com closet; três quartos espaçosos; casa de banho completa. Exterior: Logradouro com mais de 70 m², ideal para instalação de piscina e área gourmet com pérgola.Este imóvel destaca-se pela sua excelente localização, acabamentos de qualidade e vistas deslumbrantes para o Santuário do Bom Jesus, reunindo todos os requisitos para quem procura conforto, funcionalidade e bem-estar.Nota: As imagens são meramente ilustrativas; a moradia não será entregue com piscina.Não perca esta oportunidade exclusiva. Contacte-nos para agendar a sua visita e conhecer este imóvel excecional.Sobre a VBR Invest:Na VBR Invest, oferecemos assessoria personalizada para suas necessidades imobiliárias. Com uma seleção de imóveis cuidadosamente escolhidos, ajudamos você a realizar seus projetos com excelência — seja para moradia, investimento ou negócios.
AMI: 22750
Ref. Externa: VBR380
Id: 1316627
Inicie sessão para guardar este imóvel e aceder à sua lista de favoritos em qualquer dispositivo.
4 Quartos
Área bruta : 315 m²
Moradia Individual T4 com Piscina – Encosta do Bom Jesus, BragaMoradia T4 individual com piscina, situada na prestigiada encosta do Bom Jesus, em Nogueiró, uma das zonas mais valorizadas e procuradas de Braga.Com uma localização privilegiada e vistas deslumbrantes sobre a cidade, esta propriedade oferece o equilíbrio ideal entre tranquilidade, conforto e proximidade ao centro urbano. A poucos metros do icónico Elevador do Bom Jesus, combina o charme da natureza com a conveniência de uma excelente rede de acessos.Características principais: Lote com 610m² Área distribuída por 3 pisos (R/C, 1º e 2º andares) Piscina privada Necessita de remodelação, oferecendo enorme potencial para personalizaçãoDistribuição dos espaços: R/C: Garagem ampla, escritório e cozinha regional com acesso direto ao exterior 1º Andar: Sala de estar com boa exposição solar, cozinha principal e duas suítes 2º Andar: Dois quartos adicionais, casa de banho completa e espaço de arrumos no sótãoEsta é uma excelente oportunidade para quem procura uma moradia exclusiva, com potencial de valorização, numa localização de referência em Braga.Marque já a sua visita e venha descobrir o seu próximo lar na encosta mais icónica da cidade!Contacte a sua Agência VIVAS Imobiliária, para saber mais. Somos uma equipa com mais de 20 anos de Know-how no setor, o que nos permite compreender as necessidades das famílias que acompanhamos neste processo importante das suas vidas.Estamos prontos para ajudá-lo a encontrar o seu lar!Dispomos de diversas ferramentas de Marketing e Comunicação, permitindo ir ao encontro de um maior número de potenciais clientes.Outros serviços que lhe podem interessar: Venda, Compra, Arrendamento, Avaliação de Imóveis, Gestão Processual, Realização de contratos (Compra e Venda, Arrendamento, entre outros), Aconselhamento e orientação na obtenção de Crédito Habitação, Apoio nos serviços de contratação junto dos fornecedores, energia, gás, água e certificação energética, entre outros.Redwarrior, Lda. | AMI 23746
AMI: 23746
Ref. Externa: 02-0175
Id: 1308401
Inicie sessão para guardar este imóvel e aceder à sua lista de favoritos em qualquer dispositivo.
3 Quartos
2 WCs
Área bruta : 140 m²
Fantástico apartamento T3 novo, situado em Vila de Prado, com uma localização privilegiada e vista aberta para o rio/pesqueira. O imóvel destaca-se por: - 2 frentes, garantindo luz natural abundante; - Varanda com vista desafogada, ideal para relaxar; - Ar condicionado completo em todas as divisões; - Garagem fechada, prática e segura; O apartamento está totalmente finalizado e pronto a habitar, proporcionando uma excelente oportunidade para quem procura um lar moderno, confortável e bem localizado. Condições especiais de financiamento disponíveis. Perto de escolas, comércio, serviços e com bons acessos. Agende a sua visita e venha conhecer o seu futuro lar!
AMI: 14573
Ref. Externa: DSBRGNAO112
Id: 1299326
Inicie sessão para guardar este imóvel e aceder à sua lista de favoritos em qualquer dispositivo.
2.750.000 €
8 Quartos
9 WCs
Área bruta : 716 m²
Identificação do imóvel: ZMPT578823Moradia única e exclusiva, situada numa zona nobre e das mais procuradas na cidade de Braga, com vistas infinitas e intermináveis, fazem desta propriedade o que há de mais extraordinário.Projetada exclusivamente e arquitetada pelo renomado e saudoso Sr. Arq. Fernando Jorge, por si só dispensa comentários, mas os olhos hão de confirmar o que é de mais belo e detalhado em termos de construção e acabamentos.A propriedade tem duas entradas, uma principal e outra pela garagem para 3 carros, são 3 pisos de pura excelência. No piso inferior, temos uma suíte, uma cozinha, um salão de jogos, com vista para a parte imersa da piscina, dois balneários, um ginásio e uma sauna, além do acesso a piscina e a área externa da moradia.Subindo um piso, pelas escadas iluminadas e paralelas a uma parede de Pedras, que torna o caminhar muito mais aconchegante, temos, a entrada para a moradia, um Hall de entrada fantástico e muito bem decorado, vistas para a piscina, sala de jantar e estar, cozinha equipada e mobilada com equipamentos Miele e frigoríficos GE. Na sala de estar, podem se abrir os estores e ter a vista da piscina, com uma cascata e privacidade total. Na área externa, temos uma churrasqueira e a primeira sensação de liberdade ao poder observar uma das melhores vistas de Braga. Ao subirmos para o piso superior, temos um escritório as suítes, voltadas para a piscina. Subindo mais um piso, temos a um escritório, que dá acesso a uma sala 360º toda em vidro, o que lhe trará claramente a sensação de estar no melhor lugar do mundo para contemplar a vista, que pode ser sua e mais duas suítes, também voltadas para a varanda que dá acesso as vistas para a cidade.A moradia conta com um elevador Schindler, para acesso a todos os pisos.Mármores da centrais do Minho;4 casas de banho em pedra travertino incolor polido (paredes e pavimentos);2 wcs em Pedra moca creme Polido (paredes e pavimentos)O exterior em Pedra Granito Amarelo bujardado;Carpintaria Cips, todo o soalho em madeira Afizélia c20/3,2cm;Caixilharia em Alumínio Acetinado com ruptura térmica, vidros de 6mm com pelicula térmica, 12mm de caixa de ar, e 4mm de cada vidro.Mais do que uma propriedade, essa moradia é o exemplo concreto e real de que os detalhes fazem todo o sentido, para nos sentirmos bem, confortáveis e tranquilos num ambiente só nosso.Agende uma visita e venha conferir você mesmo!3 razões para comprar com a Zome+ acompanhamentoCom uma preparação e experiência única no mercado imobiliário, os consultores Zome põem toda a sua dedicação em dar-lhe o melhor acompanhamento, orientando-o com a máxima confiança, na direção certa das suas necessidades e ambições.Daqui para a frente, vamos criar uma relação próxima e escutar com atenção as suas expectativas, porque a nossa prioridade é a sua felicidade! Porque é importante que sinta que está acompanhado, e que estamos consigo sempre.+ simplesOs consultores Zome têm uma formação única no mercado, ancorada na partilha de experiência prática entre profissionais e fortalecida pelo conhecimento de neurociência aplicada que lhes permite simplificar e tornar mais eficaz a sua experiência imobiliária.Deixe para trás os pesadelos burocráticos porque na Zome encontra o apoio total de uma equipa experiente e multidisciplinar que lhe dá suporte prático em todos os aspetos fundamentais, para que a sua experiência imobiliária supere as expectativas.+ felizO nosso maior valor é entregar-lhe felicidade!Liberte-se de preocupações e ganhe o tempo de qualidade que necessita para se dedicar ao que lhe faz mais feliz.Agimos diariamente para trazer mais valor à sua vida com o aconselhamento fiável de que precisa para, juntos, conseguirmos atingir os melhores resultados.Com a Zome nunca vai estar perdido ou desacompanhado e encontrará algo que não tem preço: a sua máxima tranquilidade!É assim que se vai sentir ao longo de toda a experiência: Tranquilo, seguro, confortável e... FELIZ!Notas:1. Caso seja um consultor imobiliário, este imóvel está disponível para partilha de negócio. Não hesite em apresentar aos seus clientes compradores e fale connosco para agendar a sua visita.2. Para maior facilidade na identificação deste imóvel, por favor, refira o respetivo ID ZMPT ou o respetivo agente que lhe tenha enviado a sugestão.
AMI: 17432
Ref. Externa: ZMPT578823
Id: 1291154
Inicie sessão para guardar este imóvel e aceder à sua lista de favoritos em qualquer dispositivo.
3 Quartos
2 WCs
Área bruta : 116 m²
Descubra esta fantástica moradia T3 localizada em Tenões, uma das zonas mais privilegiadas, tranquilas e valorizadas de Braga, conhecida como a Cooperativa Chenog. Com uma envolvente residencial calma e excelentes acessos, este imóvel é perfeita para quem procura qualidade de vida sem abdicar da proximidade ao centro da cidade e a pontos de interesse como o Bom Jesus do Monte, e a Universidade do Minho.A moradia subdivide-se em dois pisos bem distribuídos.No rés do chão, encontra-se uma cozinha totalmente equipada, funcional e moderna, uma casa de banho completa que serve a zona social da casa, e uma sala ampla com acesso direto a um terraço, perfeita para momentos de lazer em família ou com amigos.No primeiro piso, a zona privada é composta por três quartos espaçosos, todos com roupeiros embutidos e acesso direto ao terraço, o que permite uma excelente entrada de luz natural em todas as divisões, uma segunda casa de banho completa de apoio aos quartos e neste piso encontra-se ainda uma acolhedora sala de convívio, ideal como espaço de leitura, trabalho ou lazer.Além disso, a moradia está equipada com ar condicionado e aquecimento central, que garantem conforto em todas as estações do ano. O teto falso em toda a casa confere um acabamento moderno e cuidado, enquanto a caixilharia oscilobatente assegura um ótimo isolamento térmico e acústico. A moradia dispõe ainda de uma garagem fechada com pré-instalação de carregamento para carros elétricos.Esta é uma oportunidade única para viver com tranquilidade, conforto e qualidade, numa moradia pensada ao detalhe, situada numa das zonas mais procuradas de Braga.Predimed Imobiliária, Mediação Imobiliária, Lda.Avenida Brasil 43, 12º Andar, 1700-062 LisboaLicença AMI nº 22503Pessoa Coletiva nº 517 239 345Seguro Responsabilidade Civil: Nº de Apólice RC65379424 Fidelidade Características: Aquecimento Central;Ar Condicionado;Exaustor;Fogão;Forno;Cozinha equipada;Frigorífico
AMI: 13558
Ref. Externa: 053413
Id: 1279157
Inicie sessão para guardar este imóvel e aceder à sua lista de favoritos em qualquer dispositivo.
1.500.000 €
4 Quartos
5 WCs
Área bruta : 544 m²
Moradia Térrea de Luxo em Braga Uma residência singular que combina sofisticação, conforto e elegância. Esta moradia T4 (com 4 suítes e escritório), que também pode ser adaptada para T3 (com 3 suítes e escritório), destaca-se pela sua arquitetura contemporânea e espaços amplos, projetados para proporcionar uma experiência única de bem-estar. Localização Privilegiada: Situada numa das áreas mais prestigiadas de Braga, esta propriedade oferece vistas panorâmicas da cidade e uma envolvência distinta. Exterior Deslumbrante: Desfrute de um belíssimo jardim e uma piscina orientada a poente, ideal para momentos de lazer e relaxamento enquanto contempla o pôr do sol. Interior Elegante e Funcional: - Área social com impressionantes 58 m², projetada em conceito open space, que integra harmoniosamente sala e cozinha. - Master suíte espaçosa de 41 m², com closet integrado. - Outras suítes de 20 m², com acabamentos de alta qualidade e atenção aos detalhes. Características de Construção Premium: - Estrutura de construção de excelência, com isolamento térmico e acústico superior. - Sistema de climatização por Ventiloconvectores de alta eficiência. - VMC (ventilação mecânica centralizada) que assegura a renovação contínua do ar e maior conforto ambiental. E Muito mais... Esta moradia representa um equilíbrio perfeito entre modernidade, funcionalidade e luxo, oferecendo todo o conforto e qualidade que merece. O caderno de encargos será disponibilizado aquando da visita e apresentação de todo o projeto. Aproveite já esta oportunidade, marque a sua visita!! ️ Ligue com Nuno Barrocas + (telefone) WhatsApp)
AMI: 10825
Ref. Externa: clix mais M 1286
Id: 1272208
Inicie sessão para guardar este imóvel e aceder à sua lista de favoritos em qualquer dispositivo.
Estes agentes são especialistas nesta zona:
Inicie sessão para ocultar este imóvel das suas pesquisas e manter a sua lista de resultados organizada.
Guardar favoritos
Este imóvel foi guardados nos seus favoritos com sucesso.
Para poder guardar pesquisa deverá ter a sua sessão iniciada.
Caso não tenha uma conta, deverá criar uma.
A sua pesquisa foi guardada com sucesso!
© Copyright 2023 | CASACERTA. All rights reserved
Este site utiliza cookies. Ao navegar no site estará a consentir a sua utilização.
Para mais informações sobre os cookies pode consultar a
política de privacidade.