Lista
Comprar
Arrendar
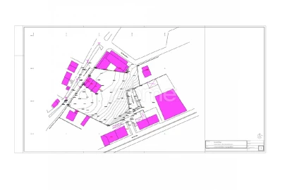
Área bruta : 1178 m²
Identificação do imóvel: ZMPT576328Descrição do imóvel:Armazém e terreno ao centro de São João da MadeiraLocalização e envolvente:Localização na rua Dom Afonso Henriques, São João da Madeira, em área de habitação do tipo unifamiliar e multifamiliar. Zona calma. Fácil acesso/distribuição automóvel e pedonal. Na envolvente existe oferta de serviços (cafés, padarias, farmácias, talhos, mercearias, supermercados, escolas, hospitais, centros comerciais, comércio automóvel, abastecedoras de combustíveis...) e transportes públicos (comboio, autocarros). Junto ao Estádio Conde Dias Garcia.Prédios (de acordo com a Caderneta Predial):Armazém“Tipo de Prédio: Prédio em Prop. Total sem Andares nem Div. Susc. de Utiliz. Independente Afectação: Armazéns e actividade industrial Nº de pisos: 1 Tipologia/Divisões: 1”Terreno“Cultura, Pomar, Mato e Vinho”P.D.M.Artigo 12.º Espaço residencial1 — O espaço residencial caracteriza -se por ser uma área em transformação, com um elevado nível de infraestruturação e com uma ocupação funcional mista: habitação, comércio, turismo e atividades terciárias.2 — Parâmetros urbanísticos máximos:a) Iv: 4,0 m3/m2;b) Iu: 1,33;c) Cércea máxima: 6 pisos (r/c+5).”“Artigo 13.º Espaço urbano de baixa densidade1 — O espaço urbano de baixa densidade é caracterizado por possuir baixa densidade de edificação, infraestruturação adequada e uma ocupação funcional predominantemente residencial.2 — Parâmetros urbanísticos máximos:a) Iv: 2,0 m3/m2;b) Iu: 0,66;c) Cércea máxima: 4 pisos (r/c + 3)."Principais características:ArmazémBloco A (Serviços)- 3 pisos (3 x 400m2)- escritórios- salas- instalações sanitáriasBloco B (Pavilhão)- pavilhão com 900m2- pé direito útil 5m (até tecto falso)Bloco C (Apoio)- refeitório c/ sala- arrumos- instalações sanitárias M / F (funcionários)Terreno- capacidade construtiva- acesso por 3 arruamentos (rua Dom Afonso Henriques, Avenida do Brasil e rua das Quintelas)Outras características e valências:Armazém- painéis solares (c/ ligação à rede)- zona para estacionamento- zona de articulação de viaturas- portão de acessoPontos de interesse:- a 280m do Pingo Doce São João da Madeira - Casaldelo- a 600m do Estádio Conde Dias Garcia- a 1,1 km do Hospital São João da Madeira- a 1,2km do Centro de Saúde de S. João da Madeira- a 1,3km da Escola Secundária "Dr. Serafim Leite"- a 1,6km da Piscina Municipal- a 2,2km da Igreja MatrizTransportes e acessos:- a 1,4km da estação de comboio São João da Madeira- a 2,9km da N1- a 40,8km do Porto- a 50,7km do Aeroporto Francisco Sá CarneiroÁreas (de acordo com a Caderneta Predial Urbana):Armazém- Área total do terreno: 2.442,0000 m²- Área de implantação do edifício: 1.178,0000 m²- Área bruta de construção: 1.475,0000 m²- Área bruta dependente: 297,0000 m²- Área bruta privativa: 1.178,0000 m²Terreno- Área total do terreno: 4.867,0000 m²Outros valores:Armazém- Valor do IMI: 944,64€ (anual)Terreno- Valor do IMI: 0,97€ (anual)NOTA: para maior facilidade na identificação deste imóvel, por favor, refira o respectivo ID. Em caso de agendamento de visita, faça-se acompanhar de um documento de identificação. Muito obrigado!*****3 razões para comprar com a Zome+ acompanhamentoCom uma preparação e experiência única no mercado imobiliário, os consultores Zome põem toda a sua dedicação em dar-lhe o melhor acompanhamento, orientando-o com a máxima confiança, na direção certa das suas necessidades e ambições.Daqui para a frente, vamos criar uma relação próxima e escutar com atenção as suas expectativas, porque a nossa prioridade é a sua felicidade! Porque é importante que sinta que está acompanhado, e que estamos consigo sempre.+ simplesOs consultores Zome têm uma formação única no mercado, ancorada na partilha de experiência prática entre profissionais e fortalecida pelo conhecimento de neurociência aplicada que lhes permite simplificar e tornar mais eficaz a sua experiência imobiliária.Deixe para trás os pesadelos burocráticos porque na Zome encontra o apoio total de uma equipa experiente e multidisciplinar que lhe dá suporte prático em todos os aspetos fundamentais, para que a sua experiência imobiliária supere as expectativas.+ felizO nosso maior valor é entregar-lhe felicidade!Liberte-se de preocupações e ganhe o tempo de qualidade que necessita para se dedicar ao que lhe faz mais feliz.Agimos diariamente para trazer mais valor à sua vida com o aconselhamento fiável de que precisa para, juntos, conseguirmos atingir os melhores resultados.Com a Zome nunca vai estar perdido ou desacompanhado e encontrará algo que não tem preço: a sua máxima tranquilidade!É assim que se vai sentir ao longo de toda a experiência: Tranquilo, seguro, confortável e... FELIZ!Notas:1. Caso seja um consultor imobiliário, este imóvel está disponível para partilha de negócio. Não hesite em apresentar aos seus clientes compradores e fale connosco para agendar a sua visita.2. Para maior facilidade na identificação deste imóvel, por favor, refira o respetivo ID ZMPT ou o respetivo agente que lhe tenha enviado a sugestão.
AMI: 17432
Ref. Externa: ZMPT576328
Id: 1208889
Inicie sessão para guardar este imóvel e aceder à sua lista de favoritos em qualquer dispositivo.
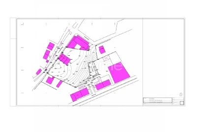
Área bruta : 1178 m²
Identificação do imóvel: ZMPT576318Descrição do imóvel:Armazém ao centro de São João da MadeiraLocalização e envolvente:Localização na Avenida do Brasil, São João da Madeira, em área de habitação do tipo unifamiliar e multifamiliar. Zona calma. Fácil acesso/distribuição automóvel e pedonal.Na envolvente existe oferta de serviços (cafés, padarias, farmácias, talhos, mercearias, supermercados, escolas, hospitais, centros comerciais, comércio automóvel, abastecedoras de combustíveis...) e transportes públicos (comboio, autocarros). Junto ao Estádio Conde Dias Garcia.Prédio (de acordo com a Caderneta Predial):“Tipo de Prédio: Prédio em Prop. Total sem Andares nem Div. Susc. de Utiliz. Independente. Afectação: Armazéns e actividade industrial. Nº de pisos: 1.”P.D.M.“Artigo 13.º Espaço urbano de baixa densidade1 — O espaço urbano de baixa densidade é caracterizado por possuir baixa densidade de edificação, infraestruturação adequada e uma ocupação funcional predominantemente residencial.2 — Parâmetros urbanísticos máximos:a) Iv: 2,0 m3/m2;b) Iu: 0,66;c) Cércea máxima: 4 pisos (r/c + 3).Artigo 12.º Espaço residencial1 — O espaço residencial caracteriza -se por ser uma área em transformação, com um elevado nível de infraestruturação e com uma ocupação funcional mista: habitação, comércio, turismo e atividades terciárias.2 — Parâmetros urbanísticos máximos:a) Iv: 4,0 m3/m2;b) Iu: 1,33;c) Cércea máxima: 6 pisos (r/c+5).”Principais características:Bloco A (Serviços)- 3 pisos (3 x 400m2)- escritórios- salas- instalações sanitáriasBloco B (Pavilhão)- pavilhão com 900m2- pé direito útil 5m (até tecto falso)Bloco C (Apoio)- refeitório c/ sala- arrumos- instalações sanitárias M / F (funcionários)Outras características e valências:- painéis solares (c/ ligação à rede)- zona para estacionamento- zona de articulação de viaturas- portão de acessoPontos de interesse:- a 280m do Pingo Doce São João da Madeira - Casaldelo- a 600m do Estádio Conde Dias Garcia- a 1,1 km do Hospital São João da Madeira- a 1,2km do Centro de Saúde de S. João da Madeira- a 1,3km da Escola Secundária "Dr. Serafim Leite"- a 1,6km da Piscina Municipal- a 2,2km da Igreja MatrizTransportes e acessos:- a 1,4km da estação de comboio São João da Madeira- a 2,9km da N1- a 40,8km do Porto- a 50,7km do Aeroporto Francisco Sá CarneiroÁreas (de acordo com a Caderneta Predial Urbana):- Área total do terreno: 2.442,0000 m²- Área de implantação do edifício: 1.178,0000 m²- Área bruta de construção: 1.475,0000 m²- Área bruta dependente: 297,0000 m²- Área bruta privativa: 1.178,0000 m²Áreas (de acordo com o existente construído):- Área total do terreno: 2.442,0000 m²- Área bruta de construção: 2.675,0000 m²Outros valores:- Valor do IMI: 944,64€ (anual)NOTA: para maior facilidade na identificação deste imóvel, por favor, refira o respectivo ID. Em caso de agendamento de visita, faça-se acompanhar de um documento de identificação. Muito obrigado!*****3 razões para comprar com a Zome+ acompanhamentoCom uma preparação e experiência única no mercado imobiliário, os consultores Zome põem toda a sua dedicação em dar-lhe o melhor acompanhamento, orientando-o com a máxima confiança, na direção certa das suas necessidades e ambições.Daqui para a frente, vamos criar uma relação próxima e escutar com atenção as suas expectativas, porque a nossa prioridade é a sua felicidade! Porque é importante que sinta que está acompanhado, e que estamos consigo sempre.+ simplesOs consultores Zome têm uma formação única no mercado, ancorada na partilha de experiência prática entre profissionais e fortalecida pelo conhecimento de neurociência aplicada que lhes permite simplificar e tornar mais eficaz a sua experiência imobiliária.Deixe para trás os pesadelos burocráticos porque na Zome encontra o apoio total de uma equipa experiente e multidisciplinar que lhe dá suporte prático em todos os aspetos fundamentais, para que a sua experiência imobiliária supere as expectativas.+ felizO nosso maior valor é entregar-lhe felicidade!Liberte-se de preocupações e ganhe o tempo de qualidade que necessita para se dedicar ao que lhe faz mais feliz.Agimos diariamente para trazer mais valor à sua vida com o aconselhamento fiável de que precisa para, juntos, conseguirmos atingir os melhores resultados.Com a Zome nunca vai estar perdido ou desacompanhado e encontrará algo que não tem preço: a sua máxima tranquilidade!É assim que se vai sentir ao longo de toda a experiência: Tranquilo, seguro, confortável e... FELIZ!Notas:1. Caso seja um consultor imobiliário, este imóvel está disponível para partilha de negócio. Não hesite em apresentar aos seus clientes compradores e fale connosco para agendar a sua visita.2. Para maior facilidade na identificação deste imóvel, por favor, refira o respetivo ID ZMPT ou o respetivo agente que lhe tenha enviado a sugestão.
AMI: 17432
Ref. Externa: ZMPT576318
Id: 1208888
Inicie sessão para guardar este imóvel e aceder à sua lista de favoritos em qualquer dispositivo.
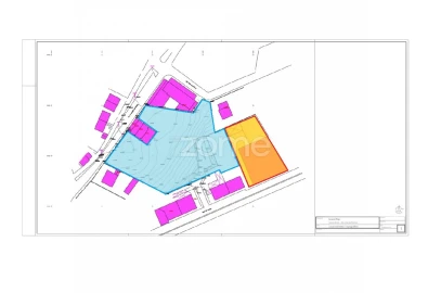
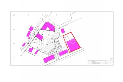
Área de terreno : 6600 m²
Terreno industrial e comercial, muito bom para grande estabelecimento comercial
AMI: 16183
Ref. Externa: 1175-TRI
Id: 872133
Inicie sessão para guardar este imóvel e aceder à sua lista de favoritos em qualquer dispositivo.
Estes agentes são especialistas nesta zona:
Inicie sessão para ocultar este imóvel das suas pesquisas e manter a sua lista de resultados organizada.
© Copyright 2023 | CASACERTA. All rights reserved
Guardar favoritos
Este imóvel foi guardados nos seus favoritos com sucesso.
Para poder guardar pesquisa deverá ter a sua sessão iniciada.
Caso não tenha uma conta, deverá criar uma.
A sua pesquisa foi guardada com sucesso!
Este site utiliza cookies. Ao navegar no site estará a consentir a sua utilização.
Para mais informações sobre os cookies pode consultar a
política de privacidade.