Lista
Comprar
Arrendar
Área de terreno : 749 m²
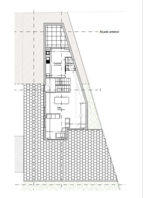
**Terreno à venda em Fraião, Braga - Oportunidade Imperdível!** Descubra este terreno excecionalmente bem localizado, com uma área total de 749 m² e vistas deslumbrantes para a cidade de Braga. Com um índice de construção de 1,2, há a possibilidade de edificar até 898,8 m², permitindo a criação de uma moradia de 2 pisos que proporcionará uma vista panorâmica incrível. A localização é privilegiada, inserida em um dos melhores zonas da cidade, garantindo uma boa exposição solar e fácil acesso via urbana. Este terreno oferece todas as infraestruturas necessárias, incluindo água, luz e rede de esgotos, além de iluminação pública. Ideal para quem busca construir a casa dos sonhos em um ambiente urbano e acolhedor. Não perca a chance de investir em um espaço que combina qualidade de vida e potencial de valorização. Venha conhecer este terreno e visualize o futuro que pode ser construído aqui! Terreno muito bem localizado, com vistas para a cidade de braga, com 749 m2 e com um índice de de construção pelo novo pdm de 1,2 que dá 898,8 m2. Pormenor de construção o nível do piso 1 ficar a cerca de 1,5 m do nível da estrada de acesso. Maximizando a exposição solar que é muito boa e numa das melhores localizações. Poderá ser construída uma moradia de 2 pisos, com vistas para a cidade. Com a Clix Mais pode ter: + confiança, + acompanhamento, + negócios, + casas felizes. Aproveite e marque a sua visita, ou para questões ligue com Nuno Barrocas + (telefone)
AMI: 10825
Ref. Externa: clix mais T 1324
Id: 1759518
Inicie sessão para guardar este imóvel e aceder à sua lista de favoritos em qualquer dispositivo.
Área útil : 828 m²
Nos arredores de braga este fantástico terreno de 828m²Com uma esplendida vista, inserido no meio da naturezaUm terreno perfeito para construir a casa dos vossos sonhos.Marque já a sua visita para este terreno imperdível
AMI: 17184
Ref. Externa: SF-SAFTI:00545
Id: 1757547
Inicie sessão para guardar este imóvel e aceder à sua lista de favoritos em qualquer dispositivo.
Área bruta : 3800 m²
Vende-se Terreno com 3800m² em São Paio Merelim, Braga!Terreno localizado em zona agrícola, junto a um ribeiro; Plano; Bons acessos; Frente com estrada; Saneamento; Excelente exposição solar; Perto da Paria fluvial; Zona tranquila a poucos minutos da Vila de Prado e de Braga!- Tratamos do seu crédito habitação, sem custos nem burocracias.A INOVA Imobiliária é intermediário de crédito autorizada pelo Banco de Portugal com o registo 934. Fazemos a gestão de todo o processo de financiamento, sempre com as melhores condições do mercado e sem qualquer custo associado.VIVER em BRAGABraga é a terceira melhor cidade para viver em Portugal!A capital minhota está no "Top 3" da lista dos melhores municípios portugueses para viver e fazer negócios. Arte, cultura, ciência, conhecimento e desporto caracterizam a nossa cidade, visto que Braga se transformou na capital do desporto e da juventude, onde é possível ter acesso a variados espetáculos, concertos, teatro, diversas feiras, festas, exposições, entre outras atividades, tanto desportivas como recreativas.E a gastronomia? Tem mesmo de conhecer...É bom viver em Braga e a INOVA Imobiliária pode ajudar a descobrir a sua casa de sonho!Se pretende vender ou comprar casa, confie-nos essa missão...INOVA IMOBILIÁRIA... MUITO + QUE VENDER CASAS!
AMI: 10088
Ref. Externa: IV-08685
Id: 1755346
Inicie sessão para guardar este imóvel e aceder à sua lista de favoritos em qualquer dispositivo.
Área útil : 182 m²
Lote para construção de Moradia T3+1, em S. Pedro Merelim, em BragaProjeto para uma espaçosa e luminosa moradia de gaveto com três quartos e um escritório, localizada na freguesia de Merelim S. Pedro, no concelho de Braga, numa das zonas mais tranquilas e valorizadas de Braga.Este loteamento destaca-se pela sua localização privilegiada, ideal para famílias que procuram conforto, privacidade e proximidade com a cidade e outras localizações arredores.Projeto:3 quartos + 1 escritórioSala ampla com ótima iluminação natural3 casas de banhoGaragem e arrumosJardim com terraço, perfeito para momentos em famíliaLocalizado em Merelim, a poucos minutos do centro de Braga, próxima de comércio, escolas e bons acessos rodoviários.Excelente oportunidade para quem procura uma moradia com espaço, conforto e qualidade de vida.Agende a sua visita e venha conhecer o projeto do seu futuro Lar!
AMI: 22503
Ref. Externa: PD-054932
Id: 1753311
Inicie sessão para guardar este imóvel e aceder à sua lista de favoritos em qualquer dispositivo.
Área útil : 182 m²
Lote para construção de Moradia T3+1, em S. Pedro Merelim, em BragaProjeto para uma espaçosa e luminosa moradia com três quartos e um escritório, localizada na freguesia de Merelim S. Pedro, no concelho de Braga, numa das zonas mais tranquilas e valorizadas de Braga.Este loteamento destaca-se pela sua localização privilegiada, ideal para famílias que procuram conforto, privacidade e proximidade com a cidade e outras localizações arredores.Projeto:3 quartos + 1 escritórioSala ampla com ótima iluminação natural3 casas de banhoGaragem e arrumosJardim com terraço, perfeito para momentos em famíliaLocalizado em Merelim, a poucos minutos do centro de Braga, próxima de comércio, escolas e bons acessos rodoviários.Excelente oportunidade para quem procura uma moradia com espaço, conforto e qualidade de vida.Agende a sua visita e venha conhecer o projeto do seu futuro Lar!
AMI: 22503
Ref. Externa: PD-054929
Id: 1753314
Inicie sessão para guardar este imóvel e aceder à sua lista de favoritos em qualquer dispositivo.
Área de terreno : 213 m²
Terreno com 213, Projeto aprovado M2 em Real, BragaÁrea útil 120m², bruta 157m²Para moradia T3Junto ao centro da cidade de BragaJunto ao estádio AXA e cidade desportiva, SC BragaZona onde estão a ser muitas casas restauradasVários serviços de interesseServiços de InteresseServiços Públicos: A União das Freguesias de Real, Dume e Semelhe (cuja sede é em Real) disponibiliza diversos serviços administrativos. Existe também um Espaço Cidadão local onde pode tratar de assuntos como a renovação do Cartão de Cidadão e da carta de condução.Educação: A freguesia possui infraestruturas como Jardim de Infância, Escola Básica do 1º Ciclo e um Colégio.Saúde e Social: Estão disponíveis serviços de Centro de Dia e Serviço de Apoio Domiciliário.Comércio e Imobiliário: A zona é bem servida por comércio local, existindo lojas, padarias e bancos nas proximidades. O mercado imobiliário também é dinâmico, com várias opções de habitação disponíveis.Desporto e Lazer: A freguesia dispõe de equipamentos como piscina, polidesportivo, campos de futebol e um gimnodesportivo.Outros: Existem ainda sedes de associações locais, como o Corpo Nacional de Escutas
AMI: 22503
Ref. Externa: PD-057328
Id: 1752976
Inicie sessão para guardar este imóvel e aceder à sua lista de favoritos em qualquer dispositivo.
110.000 €
Área de terreno : 165 m²
Este terreno com 165,39 m² encontra-se em Gualtar, Braga, numa zona pacata, com uma vizinhança acolhedora e excelente acessibilidade. O espaço é plano e ideal para a construção, proporcionando um ambiente tranquilo sem abrir mão da proximidade ao centro de Braga. Uma oportunidade perfeita para quem quer investir ou construir num local com grande potencial de crescimento. Entre em contacto para saber mais ou agendar a sua visita! A Arcada Braga é uma agência especializada na mediação e intermediação de negócios imobiliários, com vasta experiência e uma equipa de profissionais dedicados a oferecer o melhor serviço aos seus clientes na compra e venda de imóveis, arrendamento e trespasse. A Arcada Braga atua com transparência, seriedade e compromisso, assegurando que todos os processos de compra e venda, arrendamento e trespasse sejam realizados de forma eficiente e segura. Além dos serviços de mediação imobiliária, a Arcada Braga também se destaca pela sua atuação na intermediação de crédito, ajudando os seus clientes a encontrar as melhores soluções financeiras para a aquisição de imóveis. Com parcerias estratégicas com diversas instituições financeiras, a Arcada Braga oferece consultoria especializada e apoio na escolha dos melhores produtos de crédito, seja para compra de casa, seja para outras necessidades, designadamente, crédito automóvel, pessoal, consolidação e transferências de créditos. A Arcada Braga é a parceira ideal para quem procura confiança, competência e qualidade nos serviços imobiliários, seja na compra e venda, arrendamento ou financiamento. Estamos aqui para facilitar o seu caminho, oferecendo o melhor apoio para a concretização dos seus sonhos imobiliários e financeiros.
AMI: 22660
Ref. Externa: 1340115/26BG
Id: 1749010
Inicie sessão para guardar este imóvel e aceder à sua lista de favoritos em qualquer dispositivo.
Área de terreno : 281 m²
Identificação do imóvel: ZMPT587117Terreno Urbano para Construção | Lugar da Naia – BragaEste lote destaca-se pela sua excelente localização e envolvente tranquila, oferecendo as condições ideais para quem procura construir a sua moradia numa zona residencial de qualidade. O terreno já dispõe de projeto para construção de moradia, o que representa uma vantagem significativa para quem pretende iniciar o processo de construção com maior rapidez.Destaques:- Localização privilegiada em Braga – Lugar da Naia- Zona residencial tranquila e valorizada- Projeto de construção de moradia já existente- Bons acessos e proximidade a serviços e comércio- 281m2Uma excelente oportunidade para construir a casa que sempre idealizou, numa das zonas mais agradáveis da cidade.3 razões para comprar com a Zome+ acompanhamentoCom uma preparação e experiência única no mercado imobiliário, os consultores Zome põem toda a sua dedicação em dar-lhe o melhor acompanhamento, orientando-o com a máxima confiança, na direção certa das suas necessidades e ambições.Daqui para a frente, vamos criar uma relação próxima e escutar com atenção as suas expectativas, porque a nossa prioridade é a sua felicidade! Porque é importante que sinta que está acompanhado, e que estamos consigo sempre.+ simplesOs consultores Zome têm uma formação única no mercado, ancorada na partilha de experiência prática entre profissionais e fortalecida pelo conhecimento de neurociência aplicada que lhes permite simplificar e tornar mais eficaz a sua experiência imobiliária.Deixe para trás os pesadelos burocráticos porque na Zome encontra o apoio total de uma equipa experiente e multidisciplinar que lhe dá suporte prático em todos os aspetos fundamentais, para que a sua experiência imobiliária supere as expectativas.+ felizO nosso maior valor é entregar-lhe felicidade!Liberte-se de preocupações e ganhe o tempo de qualidade que necessita para se dedicar ao que lhe faz mais feliz.Agimos diariamente para trazer mais valor à sua vida com o aconselhamento fiável de que precisa para, juntos, conseguirmos atingir os melhores resultados.Com a Zome nunca vai estar perdido ou desacompanhado e encontrará algo que não tem preço: a sua máxima tranquilidade!É assim que se vai sentir ao longo de toda a experiência: Tranquilo, seguro, confortável e... FELIZ!Notas:1. Caso seja um consultor imobiliário, este imóvel está disponível para partilha de negócio. Não hesite em apresentar aos seus clientes compradores e fale connosco para agendar a sua visita.2. Para maior facilidade na identificação deste imóvel, por favor, refira o respetivo ID ZMPT ou o respetivo agente que lhe tenha enviado a sugestão.
AMI: 17432
Ref. Externa: ZMPT587117
Id: 1747516
Inicie sessão para guardar este imóvel e aceder à sua lista de favoritos em qualquer dispositivo.
300.000 €
Área de terreno : 315 m²
Lote com Moradia T3 + Escritório em ESTRUTURA – Gualtar, Braga ✨Apresentamos uma excelente oportunidade para adquirir uma moradia em fase de estrutura, localizada numa zona tranquila e valorizada de Gualtar. Ideal para quem procura personalizar a sua casa de sonho ao seu gosto. Esta moradia, quando terminada, distribui-se por três pisos: Cave: Garagem ampla (3/4 carros) Lavandaria Divisão adicional para arrumos Rés do chão: Cozinha espaçosa Sala de jantar e sala de estar amplas, com ótima luminosidade WC de serviço 1º andar: Três quartos, incluindo uma confortável suíte Casa de banho completa de apoio aos restantes quartos Escritório, ideal para trabalho remoto ou zona de estudo ✨Com uma distribuição funcional e áreas generosas, esta moradia oferece o equilíbrio perfeito entre conforto, privacidade e potencial de valorização. Destaques: Possibilidade de personalização de acabamentos Excelente exposição solar Zona residencial calma, com bons acessos Não perca esta oportunidade de investir numa moradia com elevado potencial numa das zonas mais procuradas! Para mais informações ou agendamento de visita, não hesite em contactar. Maïvas Imobiliária - Vila Verde ???? ? ?e???? ???????! ? Avenida António Sérgio, 585 4730-709 Vila Verde [email protected]
AMI: 24290
Ref. Externa: A018-0183
Id: 1745160
Inicie sessão para guardar este imóvel e aceder à sua lista de favoritos em qualquer dispositivo.
600.000 €
Área de terreno : 10200 m²
Apresenta-se uma excelente oportunidade de investimento: terreno rústico situado na Rua da Cerca, em Adaúfe, Braga, inserido numa zona tranquila e de fácil acesso. Este terreno destaca-se pela sua envolvente natural e sossegada, ideal para quem procura um espaço para cultivo, lazer ou projeto agrícola. Com bons acessos rodoviários e proximidade a zonas habitacionais, oferece o equilíbrio perfeito entre natureza e conveniência. A propriedade beneficia de uma localização privilegiada, a poucos minutos do centro de Braga, permitindo usufruir da calma do campo sem abdicar da proximidade à cidade. Características: • Terreno plano e de fácil acesso • Inserido em zona calma e verdejante • Boa exposição solar • Proximidade a habitações e infraestruturas • A poucos minutos do centro de Braga Ideal para agricultura, lazer ou investimento futuro. Excluído do SCE, ao abrigo da alínea f), do artigo 4.º, do Dec-Lei N.º 118/2013 de 20 de agosto Marque já a sua visita! Pode também contar com a nossa ajuda na Intermediação de Crédito, uma vez que a CALCULACERTADO - Mediação Imobiliária Lda, Lic. AMI 10030, está registada junto do Banco de Portugal, como Intermediário de Crédito Vinculado, sob o nº 4786, verificável em https://www.bportugal.pt/intermediariocreditofar/calculacertado-lda
AMI: 10030
Ref. Externa: 000394
Id: 1744721
Inicie sessão para guardar este imóvel e aceder à sua lista de favoritos em qualquer dispositivo.
167.500 €
Área de terreno : 632 m²
MORADIAS INDIVIDUAIS ÀS PORTAS DA CIDADE... LOTES DE 632 A 1150m²... A PARTIR DE 162.500€Vai nascer um empreendimento único, próximo do centro da cidade de Braga, onde poderá usufruir de um modo de vida singular, com uma herança pura e invejável.As moradias serão reconhecidas como uma urbanização delimitada apenas por espaços verdes e de lazer, para uso quase exclusivo dos moradores.Um espaço residencial fechado com uma imensa preocupação em manter a privacidade das habitações com uma envolvência incrível, abraçada pela natureza.Tem a oportunidade de escolher a localização da sua casa, com vários projetos concebidos, com características particulares.VENHA ESCOLHER O SEU!
AMI: 22503
Ref. Externa: PD-032530
Id: 1725496
Inicie sessão para guardar este imóvel e aceder à sua lista de favoritos em qualquer dispositivo.
Área de terreno : 360 m²
Venda Terreno Individual, em Aveleda, Braga Este terreno, situado em Aveleda, Braga, oferece uma oportunidade única para quem procura construir a sua moradia dos sonhos. Com uma área aproximada de 360 m2, proporciona espaço suficiente para a construção de uma moradia individual com todas as comodidades desejadas. A área de implantação da moradia está prevista para 80 m2, permitindo uma distribuição inteligente dos espaços interiores e exteriores. Além disso, a área bruta de construção de 160 m2 possibilita a criação de um ambiente amplo e confortável para toda a família. Um dos principais destaques deste terreno é a sua excelente exposição solar, garantindo uma luminosidade natural durante grande parte do dia. Esta característica contribui não apenas para o conforto dos futuros moradores, mas também para a eficiência energética da residência. Os acessos ao terreno são facilitados, proporcionando uma deslocação rápida e conveniente para diferentes pontos da região. Além disso, a sua localização privilegiada coloca uma variedade de serviços e comércios nas proximidades, garantindo praticidade e conveniência no dia a dia. Esta é, sem dúvida, uma oportunidade imperdível para quem deseja construir a casa ideal em um ambiente tranquilo e bem localizado. Não perca tempo e agende já a sua visita para conhecer este terreno único em Aveleda, Braga.
AMI: 5389
Ref. Externa: 6496
Id: 1709666
Inicie sessão para guardar este imóvel e aceder à sua lista de favoritos em qualquer dispositivo.
162.500 €
Área de terreno : 583 m²
Situado a poucos quilómetros do centro de Braga, esta zona habitacional de Palmeira tem ao seu dispor 19 lotes de terreno de construção aptos para a implantação da sua casa de sonho. Disponíveis a partir de 583m2 até 1125m2 de área, com preços a partir de 162.500€. Por forma a inspirá-lo na criação da sua casa de sonho, dispomos de dez projetos de arquitetura com características de design e funcionalidade que seguramente se adaptarão às variadas espectativas e gostos das famílias que aqui escolham viver. Os projetos de arquitetura não estão incluídos na compra do terreno. Campanha: Na compra deste imóvel, oferecemos 1 semana de férias na Madeira, Açores, Algarve ou norte de Portugal.
AMI: 824
Ref. Externa: SC-4266
Id: 1709436
Inicie sessão para guardar este imóvel e aceder à sua lista de favoritos em qualquer dispositivo.
Área de terreno : 742 m²
Terreno para Construção com 741 m2. Excelente exposição solar. Muito bons acessos. Possibilidade de construir Moradia Térrea. Contacte-nos para mais informações.
AMI: 25612
Ref. Externa: 3975 (4)
Id: 1709069
Inicie sessão para guardar este imóvel e aceder à sua lista de favoritos em qualquer dispositivo.
Área de terreno : 3000 m²
Terreno com 3000m² em Arentim, Braga - Zona de Construção e Agrícola Apresenta-se uma excelente oportunidade de investimento em Arentim, Braga. Este terreno com uma área total de 3.000m² encontra-se parcialmente inserido em zona de construção, sendo o restante classificado como terreno agrícola, oferecendo assim múltiplas possibilidades de utilização. Situado numa zona tranquila e com bons acessos, o imóvel beneficia da proximidade a infraestruturas essenciais, como redes de água, eletricidade e saneamento, o que facilita eventuais projetos de construção ou cultivo. Com excelente exposição solar e envolvente natural agradável, este terreno é ideal tanto para construção de habitação como para atividades agrícolas ou de lazer. Características principais: Área total: 3.000 m² Parte urbana e parte agrícola Bons acessos rodoviários Infra-estruturas próximas (água, luz) Zona calma e com potencial de valorização Não perca esta oportunidade de investir numa das zonas em crescimento do concelho de Braga.
AMI: 10931
Ref. Externa: TER_3437
Id: 1707481
Inicie sessão para guardar este imóvel e aceder à sua lista de favoritos em qualquer dispositivo.
Área de terreno : 104 m²
Terreno com aprox. 103.8 m2 com área de implantação do edifício com cerca de 80 m2 e logradouro com aprox. 24m2. Situado na freguesia de Real em Braga, esta propriedade possui atualmente um prédio em ruína ideal para quem procura uma remodelação e ampliação para construção de uma moradia unifamiliar localizada as portas do centro da cidade. Possui projeto aprovado, para edificação de uma moradia de 3 pisos. Logradouro perfeito para uma zona de lazer ao ar livre. Inserido numa urbanização a 5 minutos do centro de Braga, este terreno prima pela proximidade a escolas, transportes públicos, comércio e serviços, sendo que observando a geografia da cidade ele situa-se num local estratégico permitindo a rápida locomoção para a parte Oeste ou Sul da cidade. Excelente exposição solar, zona residencial tranquila e com bons acessos rodoviários. Para mais informações contacte-nos. Excluído do SCE, ao abrigo da alínea f), do artigo 4.º, do Dec-Lei N.º 118/2013 de 20 de agosto
AMI: 22660
Ref. Externa: 1340072/24BG
Id: 1706574
Inicie sessão para guardar este imóvel e aceder à sua lista de favoritos em qualquer dispositivo.
Área de terreno : 5588 m²
PARA VENDA - Terreno com a área de 5587 m2 - 'ESPAÇOS PARA ATIVIDADES ECONÓMICAS' ou HABITACIONAL (uso compatível). Está localizado em Merelim S. Paio, Braga, próximo de um parque de jogos, de zonas residenciais, escolas, de praia fluvial e a cerca de 5 km do centro histórico da cidade de Braga. Possui bons acessos pois confronta com dois arruamentos. Temos disponíveis, para apresentação presencial, três estudos para o local: Estudo 1 - 'Small Business Park' - 10 lotes para atividades económicas, com unidades de pequena dimensão; Estudo 2 - 'Small Business Park' - 5 lotes para atividades Económicas com unidades um pouco maiores. Estudo 3 - 'Parque Residencial', 10 lotes destinados à construção de habitação, prevendo também um espaço comercial para café/pastelaria/mercadinho; De acordo com o PDM, o terreno está classificado atualmente na categoria ESPAÇOS DE ATIVIDADES ECONÓMICAS, subcategoria AE3 - Área predominantemente comercial de média ou pequena dimensão . Conforme previsto na alínea c) do n.º2 do Artº 68.º do Regulamento do PDM, correspondem a áreas existentes ou previstas de média ou pequena dimensão, destinadas à implantação de edifícios cujo uso predominantemente é o comércio, serviços ou investigação científica e tecnológica. Os parâmetros urbanísticos máximos a aplicar às áreas AE3 são os seguintes: a) O índice de utilização máximo admitido é de 1.30 m2/m2, sendo que acima da cota de soleira só é admitido o índice máximo de 0.70 m2/m2; b) O índice ocupação máximo admitido é de 70%; c) A altura máxima da edificação é de 10 m; d) admite-se no máximo 2 pisos acima da cota de soleira. De acordo com o n.º 4 do mesmo art. 68.º, admite-se como uso compatível, o HABITACIONAL, desde que a construção se implante na faixa de 40 m contígua à via e respeite os seguintes parâmetros urbanísticos: a) índice de utilização máximo é de 0.60m2/m2, sendo que acima da cota de soleira só é admitido o índice máximo de 0.40 m2/m2.; b) o número máximo de pisos admissível, acima da cota de soleira, nas edificações é 2; c) admite-se excecionalmente, os 3 pisos, acima da cota de soleira, em situações de colmatação e continuidade urbana, adotando uma volumetria similar à envolvente imediata; d) o índice de impermeabilização máximo admitido é de 70%. A proposta de revisão do PDM de Braga, atualmente em fase de discussão pública prevê a alteração da classificação do terreno para EC3 - ESPAÇO CENTRAL3. . Estamos disponíveis para o agendamento de reunião com vista a esclarecimentos suplementares e para o agendamento de visita ao local. Notas: 1. As informações prestadas e os estudos são meramente informativos, não dispensando a consulta atenta dos regulamentos indicados e opinião técnica especializada. 2. Salvaguardam-se eventuais erros ou omissões #atividadeseconómicas #habitacional #vendadeterreno #terrenos #construção #imobiliária #mediaçãoimobiliária #imobiliarias
AMI: 12586
Ref. Externa: 132
Id: 1704561
Inicie sessão para guardar este imóvel e aceder à sua lista de favoritos em qualquer dispositivo.
85.000 €
Área de terreno : 460 m²
Lotes de terreno para construção de moradias geminadas de 2 pisos, com 143,8 m2 de construção no piso 0, em que 27,6 m2 são de garagem e depois no piso 1 temos mais 143,8 m2 para os quartos. Podendo ser T3 + escritório ou T4. Muito bem localizados, zona tranquila, com boa exposição solar, a 6 km do centro de Braga, a 6,5 km do colégio CLIB em Gualtar. A nível de exposição solar, depois varia com o lote escolhido. Preços desde 85.000€ a 100.000€, áreas de terreno desde 340 m2 a 826 m2. Aproveite e marque já a sua visita, ligue com Nuno Barrocas + (telefone) WhatsApp) #moradiabraga #moradialuxo #ébomviverembraga #moradiainvividual #clixmais
AMI: 10825
Ref. Externa: clix mais T 1289
Id: 1704529
Inicie sessão para guardar este imóvel e aceder à sua lista de favoritos em qualquer dispositivo.
120.000 €
Área de terreno : 3218 m²
Terreno com projeto aprovado. Excelente terreno de 3218 m2 e uma moradia funcional em que temos parte da zona social e quartos no mesmo piso, depois temos no piso inferior a zona da garagem, escritório, lavandaria e um espaço multifuncional/ polivalente. Local de fácil acesso, com boa exposição solar, em que a moradia fica virada a sul/ poente. Está projetada uma moradia funcional com as seguintes áreas (plantas apresentadas no anúncio): Piso 0 - Zona social de 48 m2, cozinha e sala estão em separados no projeto mas pode vir a ser open space; - Master Suite com closet, num total de 26 m2; - Quartos com 16 m2; - Lavandaria com 5 m2; No piso inferior (todas as divisões ficam com janela) - Salão multifuncional/ polivalente com 61 m2 e igualmente iluminado pelo pátio; - Escritório 20 m2; - Garagem 50 m2; A nível de distâncias a apenas 3,4 km da auto estrada (portagem até Braga 0,75€). a 9 km de Braga e a Famalicão, pela estrada nacional. Entre em contato com Nuno Barrocas ️ + (telefone) WhatsApp) Link direto para o WhatsApp - (url) (telefone) Oferecemos diversos canais de comunicação e divulgação: Instagram - (url) Facebook - (url) WhatsApp - (url) (telefone) Página na web - (url) Twitter (X) - (url) Linkedin - (url) Youtube - (url) @Clixmais #clixmais #ebomviverembraga #viverembraga #moradiabraga #investimentosbraga #investimentosimobiliarios #isgoodtoliveinbraga #bragaportugal #liveinbraga #realestatebraga #corretorimoveisbraga #investinbraga #realestate #imobiliaria #mediacao #apartamentobraga #braga #investimento #falperraresidence #apartamentofalperraresidence #investments #investment #realestateagent #corretorabraga #investimentoimobiliario
AMI: 10825
Ref. Externa: clix mais T 1196 (2)
Id: 1704528
Inicie sessão para guardar este imóvel e aceder à sua lista de favoritos em qualquer dispositivo.
Área de terreno : 194 m²
Terreno bem localizado, num alto ficando com vistas desafogadas para o vale. As traseiras da moradia viradas a nascente e a frente da casa a poente. Para construção de moradia em Banda com 3 pisos, área bruta de 270 m2, área útil de 180 m2 e terreno total de 194 m2, área de jardim nas traseiras +/- 43 m2. A disposição dos pisos desnivelados permite separar eficazmente as áreas sociais, privadas e de serviço, garantindo privacidade quando necessário, mas mantendo sempre uma ligação visual e espacial entre os diferentes ambientes. A circulação é feita de forma natural e fluída, proporcionando conforto e uma utilização mais versátil dos espaços. Ver sugestão de planta, onde temos 1 Suite e pode vir a ter 3 suites. E no piso social, junto da entrada possibilidade de um pequeno escritório/ estúdio com 6,3 m2, ou ampliar a cozinha. Possibilidade de construção, preço final 395.000€, com bons acabamentos e equipada. Com supermercado, talho, peixaria, pastelaria a cerca de 800 m. A 6 km do centro de Braga Entre em contacto com Nuno Barrocas pelo número + (telefone) WhatsApp)
AMI: 10825
Ref. Externa: clix mais T 1325
Id: 1704527
Inicie sessão para guardar este imóvel e aceder à sua lista de favoritos em qualquer dispositivo.
Estes agentes são especialistas nesta zona:
Inicie sessão para ocultar este imóvel das suas pesquisas e manter a sua lista de resultados organizada.
© Copyright 2023 | CASACERTA. All rights reserved
Guardar favoritos
Este imóvel foi guardados nos seus favoritos com sucesso.
Para poder guardar pesquisa deverá ter a sua sessão iniciada.
Caso não tenha uma conta, deverá criar uma.
A sua pesquisa foi guardada com sucesso!
Este site utiliza cookies. Ao navegar no site estará a consentir a sua utilização.
Para mais informações sobre os cookies pode consultar a
política de privacidade.