Lista
Comprar
Arrendar
15.000.000 €
Área de terreno : 250000 m²
Excelente Terreno com 25 Ha( 250.000m2) situado na Rua Friminho e na estrada EN310, em Gondar -Guimarães Pouca Inclinação, o que facilita a divisão e a construção. Terreno com PIP para industria, lotes para Industria, Centro de Logística, Equipamentos, etc. O Terreno tem parecer favorável da CM Guimarães para ampliação da zona Industrial Friminho construção de Resort Sénior, Hotel e centro Hípico. O terreno tem rede de alta e média tensão, bem servido por estradas e está na margem esquerda do Rio Ave. Possibilidade de adquirir o terreno contíguo (aprox. 20 hectares) que permite transformar em zona residencial .
AMI: 11829
Ref. Externa: 1202-2762
Id: 1425931
Inicie sessão para guardar este imóvel e aceder à sua lista de favoritos em qualquer dispositivo.
1.500.000 €
Área de terreno : 39212 m²
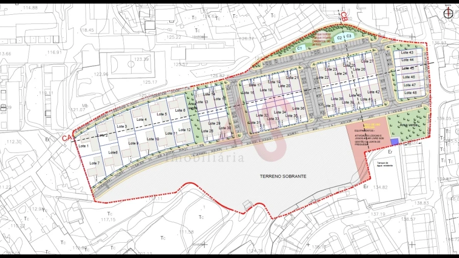
Terreno para Construção com 39.212 m² em Gondar, GuimarãesPIP aprovado para a construção de 84 habitações.Características principais:Área total do terreno - 39 212.00 m²Terreno urbanizável - 27 238.00 m²Área do terreno a lotear - 13 635.50 m²Área de habitável - 12 738.00 m²Área de bruta de construção - 18 173.00 m²Terreno sobrante - 11 405.00 m²Coeficiente da ocupação do solo (c.o.s.) - 0.34Áreas a ceder ao domínio público* Passeios propostos - 2 750.00 m²* Arruamento proposto - 4 351.00 m²* Estacionamentos propostos - 2 613.00 m²* Área verde - 2 590.11 m²* Área de equipamentos de utilização coletiva - 1405.60 m²Total - 13 709.71 m²- Situado próximo da igreja de Gondar.- Possibilidade de construção de loteamento de grandes dimensões.- Bons acessos e boa exposição solar.Não perca esta oportunidade! Entre em contacto para mais informações ou agendamento de visita.Referência: ASBR25027Por sermos intermediários de crédito devidamente autorizados pelo Banco de Portugal (Reg. 2736) fazemos a gestão de todo o seu processo de financiamento, sempre com as melhores soluções de mercado.Porquê escolher a AS ImobiliáriaCom mais de 10 anos no ramo imobiliário e milhares de famílias felizes, dispomos de 8 agências estrategicamente localizadas, para o servir com proximidade, corresponder à suas expectativas e ajudá-lo a adquirir a sua casa de sonho. Compromisso, Competência e Confiança são os nossos valores que entregamos aos nossos Clientes na hora de comprar, arrendar ou vender o seu imóvel.A nossa prioridade é a sua Felicidade!Especialistas imobiliários em Vizela ; Guimarães ; Felgueiras ; Lousada ; Santo Tirso ; São João da Madeira ; Porto ; Braga ; Trofa ;
AMI: 13249
Ref. Externa: ASBR25027
Id: 1390167
Inicie sessão para guardar este imóvel e aceder à sua lista de favoritos em qualquer dispositivo.
25.000 €
Área de terreno : 5005 m²
Descubra um espaço incrível para cultivar! Apresentamos um terreno amplo, perfeito para o desenvolvimento de atividades agrícolas. Este espaço oferece uma excelente oportunidade para aqueles que desejam investir na agricultura e na produção sustentável. Situado numa região com solo fértil e clima adequado, ideal para diversas culturas; um grande espaço livre para plantações, hortas ou até mesmo pomares. Invista em práticas agrícolas que respeitam o meio ambiente e promovem a biodiversidade. Não perca a oportunidade de transformar este terreno num verdadeiro oásis agrícola! Seja um agricultor experiente ou um iniciante apaixonado pela natureza, este espaço é a tela em branco perfeita para suas ideias. Venha conhecer e visualize o potencial que este terreno pode oferecer para o seu projeto agrícola! Entre em contacto hoje mesmo e comece a cultivar o seu futuro! ABRIMOS PORTAS AO SEU FUTURO! Decisões & Variáveis - Mediação Imobiliária, Lda | Lic AMI 9581
AMI: 9581
Ref. Externa: DSAMTRM30
Id: 1376983
Inicie sessão para guardar este imóvel e aceder à sua lista de favoritos em qualquer dispositivo.
75.000 €
Área de terreno : 20050 m²
Imagine um refúgio onde a natureza se encontra com o potencial de investimento. Esta quinta, situada em Amarante, oferece mais de 20.000 m2 de terreno com margem privada do rio Ovelha, um verdadeiro tesouro natural com possibilidade de construção até 300 m2 para projeto turístico. Localização de excelência: Rodeada por propriedades já convertidas em empreendimentos turísticos de sucesso, esta quinta insere-se numa zona com provas dadas, ideal para desenvolver um alojamento local, glamping ou turismo de natureza. Acessos facilitados: A propriedade conta com acessos diretos e em excelente estado, permitindo circulação de viaturas ligeiras ou pesadas sem limitações. Topografia versátil: A parte plana do terreno (mais de metade da área) é perfeita para construção, zonas comuns ou bungalows, enquanto a zona inclinada junto ao rio oferece vistas incríveis e experiências únicas com a natureza. Potencial puro: Ainda sem construção, oferece liberdade total para desenvolver um conceito personalizado, com privacidade e tranquilidade total um verdadeiro paraíso escondido. Ambiente natural: Algumas árvores de grande porte já existentes contribuem para o charme do local e podem ser integradas em projetos de sustentabilidade ou bem-estar. Infraestruturas por instalar, o que permite total liberdade na escolha e planeamento dos sistemas de água, energia e acessos internos. Para quem é esta propriedade? Ideal para quem procura um investimento sólido num local com forte atratividade turística, com natureza, água, privacidade e viabilidade de construção. Seja para criar um negócio próprio, valorizar capital com segurança ou desenvolver um projeto de vida com qualidade, esta é uma oportunidade rara no mercado. Contacte para mais informações, estudo de viabilidade ou visita ao local.
AMI: 19099
Ref. Externa: DSPAMARLAF23
Id: 1259165
Inicie sessão para guardar este imóvel e aceder à sua lista de favoritos em qualquer dispositivo.
135.000 €
Área de terreno : 6400 m²
Terreno de localização privilegiada, acessos diretos da estrada, com uma enorme visibilidade, face à Estrada Nacional 310 (estrada com enorme fluxo de tráfego). Com 6400m2 de área. Excelente para o seu Stand de Automóveis, o seu Estaleiro, Parque de Camiões/Autocarros/Caravanas. Pode também ser considerado para um horto. Terreno com 70 metros de frente de estrada. Com fácil acesso a transportes públicos e à entrada da auto estrada. Todos os serviços essenciais ficam perto, tais como, escolas, infantário, centro de saúde, farmácia, correios, padarias, cafés, entre outros. Para mais informações, contacte-nos!! Comprarcasa Guimarães Concretizamos os seus sonhos! Rede Imobiliária da APEMIP | Famagui - Mediação Imobiliária, Lda | APEMIP: 5130 AMI: 10736 Com o firme objetivo de satisfação do cliente a Comprarcasa Guimarães dispõe de 2 lojas para o atender: Pevidém e Guimarães. Tem ao seu dispor Consultores Imobiliários e um Departamento Processual especializados, com formação contínua, para lhe prestar o melhor atendimento e serviço, acompanhando-o em todo o processo da Mediação Imobiliária. Formamos uma Equipa que trabalha em prol do cliente e das suas necessidades. Este é um momento importante da sua vida, seja na compra, venda, trespasse ou arrendamento de qualquer imóvel e nós temos as pessoas, os meios e o conhecimento para o acompanhar! A Comprarcasa Guimarães está autorizada pelo Banco de Portugal para exercer funções de Intermediária de Crédito Vinculado. Assim dispomos de pessoas e meios para o ajudar na contratação segura do seu crédito à habitação. INTERMEDIÁRIO DE CRÉDITO REGISTADO NO BANCO DE PORTUGAL Nº 0000858. Defendendo o superior interesse dos seus clientes, levamos ao expoente máximo a frase que melhor nos caracteriza - A Imobiliária que cuida de Si!
AMI: 10736
Ref. Externa: 336/T/01769
Id: 954447
Inicie sessão para guardar este imóvel e aceder à sua lista de favoritos em qualquer dispositivo.
39.000 €
Área de terreno : 1000 m²
Identificação do imóvel: ZMPT549930Ao comprar este lote de terreno Nº 27, de 1000 m2, em Gondar, Guimarães, está a investir num lote de terreno com as seguintes características: Lote de terreno Nº 27, com possibilidade de Área bruta de construção, inserido numa zona habitacional, excelente exposição solar, vistas desafogadas e bons acessos.Pela sua boa localização, podemos beneficiar da tranquilidade do local e com facilidade aceder aos centros urbanos como por exemplo: Guimarães, V. N. de Famalicão, Santo Tirso, Porto, Póvoa de Varzim, assim como a 5 minutos da entrada da Auto-estrda A7A Zome está à sua total disposição para o (a) ajudar a comprar este lote de terreno de 1000 m2, em Gondar, Guimarães.3 razões para comprar com a Zome+ acompanhamentoCom uma preparação e experiência única no mercado imobiliário, os consultores Zome põem toda a sua dedicação em dar-lhe o melhor acompanhamento, orientando-o com a máxima confiança, na direção certa das suas necessidades e ambições.Daqui para a frente, vamos criar uma relação próxima e escutar com atenção as suas expectativas, porque a nossa prioridade é a sua felicidade! Porque é importante que sinta que está acompanhado, e que estamos consigo sempre.+ simplesOs consultores Zome têm uma formação única no mercado, ancorada na partilha de experiência prática entre profissionais e fortalecida pelo conhecimento de neurociência aplicada que lhes permite simplificar e tornar mais eficaz a sua experiência imobiliária.Deixe para trás os pesadelos burocráticos porque na Zome encontra o apoio total de uma equipa experiente e multidisciplinar que lhe dá suporte prático em todos os aspetos fundamentais, para que a sua experiência imobiliária supere as expectativas.+ felizO nosso maior valor é entregar-lhe felicidade!Liberte-se de preocupações e ganhe o tempo de qualidade que necessita para se dedicar ao que lhe faz mais feliz.Agimos diariamente para trazer mais valor à sua vida com o aconselhamento fiável de que precisa para, juntos, conseguirmos atingir os melhores resultados.Com a Zome nunca vai estar perdido ou desacompanhado e encontrará algo que não tem preço: a sua máxima tranquilidade!É assim que se vai sentir ao longo de toda a experiência: Tranquilo, seguro, confortável e... FELIZ!Notas:1. Caso seja um consultor imobiliário, este imóvel está disponível para partilha de negócio. Não hesite em apresentar aos seus clientes compradores e fale connosco para agendar a sua visita.2. Para maior facilidade na identificação deste imóvel, por favor, refira o respetivo ID ZMPT ou o respetivo agente que lhe tenha enviado a sugestão.
AMI: 17432
Ref. Externa: ZMPT549930
Id: 469367
Inicie sessão para guardar este imóvel e aceder à sua lista de favoritos em qualquer dispositivo.
87.500 €
Área de terreno : 782 m²
Lote de terreno com o total de 782m2 e área bruta de construção de 291,08m2. Com excelente localização, envolvência e exposição solar este lote tem projecto aprovado para construção de uma moradia individual. Guimarães é uma cidade portuguesa situada no Distrito de Braga, região do Norte e sub-região do Ave (uma das sub-regiões mais industrializadas do país). É das mais importantes cidades históricas do país, sendo o seu centro histórico considerado Património Cultural da Humanidade, tornando-a definitivamente um dos maiores centros turísticos da região. As suas ruas e monumentos respiram história e encantam quem a visita. Possui diversos espaços culturais de referência na região e a nível nacional. Em Guimarães encontra comércio diverso…Comércio tradicional, grandes superfícies, serviços, bancos, farmácias, escolas públicas e privadas de jardins de infância, ensino primário, ensino básico e secundário e a Universidade do Minho. Venha conhecer!
AMI: 7899
Ref. Externa: 2562
Id: 301655
Inicie sessão para guardar este imóvel e aceder à sua lista de favoritos em qualquer dispositivo.
58.000 €
Área de terreno : 650 m²
Terreno de construção com área de 650m2. Com projeto aprovado para moradia individual. O terreno dispõe de excelentes acessos e ótima localização. Fica a 15 minutos de Guimarães. A sua localização permite-lhe um acesso facilitado às principais artérias de circulação e aos transportes públicos. Próximo dos principais serviços, tais como, escolas, supermercados, bombas de gasolina, bancos, entre outros. Para mais informações, contacte-nos! Comprarcasa Guimarães Concretizamos os seus sonhos! Rede Imobiliária da APEMIP | Famagui - Mediação Imobiliária, Lda | APEMIP: 5130 AMI: 10736 Com o firme objetivo de satisfação do cliente a Comprarcasa Guimarães dispõe de 2 lojas para o atender: Pevidém e Guimarães. Tem ao seu dispor Consultores Imobiliários e um Departamento Processual especializados, com formação contínua, para lhe prestar o melhor atendimento e serviço, acompanhando-o em todo o processo da Mediação Imobiliária. Formamos uma Equipa que trabalha em prol do cliente e das suas necessidades. Este é um momento importante da sua vida, seja na compra, venda, trespasse ou arrendamento de qualquer imóvel e nós temos as pessoas, os meios e o conhecimento para o acompanhar! A Comprarcasa Guimarães está autorizada pelo Banco de Portugal para exercer funções de Intermediária de Crédito Vinculado. Assim dispomos de pessoas e meios para o ajudar na contratação segura do seu crédito à habitação. INTERMEDIÁRIO DE CRÉDITO REGISTADO NO BANCO DE PORTUGAL Nº 0000858. Defendendo o superior interesse dos seus clientes, levamos ao expoente máximo a frase que melhor nos caracteriza - A Imobiliária que cuida de Si!
AMI: 10736
Ref. Externa: 336/T/00424
Id: 286165
Inicie sessão para guardar este imóvel e aceder à sua lista de favoritos em qualquer dispositivo.
Estes agentes são especialistas nesta zona:
Inicie sessão para ocultar este imóvel das suas pesquisas e manter a sua lista de resultados organizada.
Guardar favoritos
Este imóvel foi guardados nos seus favoritos com sucesso.
Para poder guardar pesquisa deverá ter a sua sessão iniciada.
Caso não tenha uma conta, deverá criar uma.
A sua pesquisa foi guardada com sucesso!
© Copyright 2023 | CASACERTA. All rights reserved
Este site utiliza cookies. Ao navegar no site estará a consentir a sua utilização.
Para mais informações sobre os cookies pode consultar a
política de privacidade.