Lista
Comprar
Arrendar
130.000 €
Área de terreno : 953 m²
Oportunidade Imperdível! Terreno incrível com projeto APROVADO e construção já iniciada! A terraplanagem e as fundações já estão concluídas, permitindo-lhe poupar tempo e avançar de imediato com a construção. Localizado numa zona privilegiada, às portas da cidade de Vila Nova de Famalicão, este terreno oferece um ambiente super tranquilo, mas próximo de todas as comodidades o equilíbrio perfeito entre privacidade e conveniência. Infraestruturas incluídas: Furo de água Rede elétrica Gás Abastecimento de água Não perca esta oportunidade! Ligue já! Isabel Costa (telefone) CASAFAMA FAMALICÃO E PÓVOA DE VARZIM - Triplo-s, Investments, unipessoal, lda AMI 12339
AMI: 12339
Ref. Externa: CF-130-3381
Id: 1515604
Inicie sessão para guardar este imóvel e aceder à sua lista de favoritos em qualquer dispositivo.
Área de terreno : 514 m²
Terreno para Construção - 514 m² em Outiz Oportunidade única para quem procura construir a casa dos sonhos numa zona tranquila, rodeada pela natureza e com excelente qualidade de vida. O terreno situa-se numa área residencial em crescimento, com bons acessos e proximidade a serviços essenciais, tais como escolas, padaria, farmácia, restauração e ciclovia. O lote apresenta ótima exposição solar, superfície plana e espaço suficiente para um projeto moderno e funcional. Ideal para moradia unifamiliar, com margem para jardim, zona de lazer ou piscina. Se procura um local onde possa criar o seu futuro com conforto e privacidade, este terreno é a escolha certa. Características principais: - Área total: 514 m² - Localização tranquila - Acesso à estrada nacional Póvoa de Varzim / Famalicão a apenas 50 metros - Excelente exposição solar - Água de poço e de companhia - Árvores de fruto Aproveite esta oportunidade! Para mais informações ou visita ao local, entre em contacto.
AMI: 4923
Ref. Externa: 2295
Id: 1515330
Inicie sessão para guardar este imóvel e aceder à sua lista de favoritos em qualquer dispositivo.
70.000 €
Área de terreno : 4500 m²
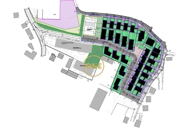
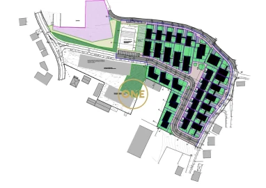
Terreno Rústico – Ribeirão, Vila Nova de Famalicão Terreno rústico localizado em Ribeirão, numa zona de excelentes acessos e forte potencial de valorização futura. Inserido numa área plana e aberta, beneficia de uma envolvente tranquila, com vista completamente desafogada sobre campos agrícolas e a zona urbana de Famalicão, transmitindo um ambiente de natureza em plena proximidade à cidade. A poucos minutos do centro de Ribeirão e com acesso rápido às vias principais, este terreno destaca-se pela ótima exposição solar e pela facilidade de utilização para exploração agrícola, lazer ou investimento a médio/longo prazo. A proximidade ao Rio Ave confere-lhe ainda um enquadramento natural privilegiado. Ideal para quem procura um ativo rústico bem localizado, com acessibilidade, amplitude e excelente potencial. Principais características: ✔️Terreno rústico plano ✔️Excelente exposição solar ✔️Acessos diretos por estrada ✔️Envolvente tranquila, com vista ampla ✔️Próximo do Rio Ave, zona industrial e serviços ✔️Localização estratégica entre Famalicão, Trofa e Vila do Conde Quer saber mais? Contacte para mais informações! Realty ONE Group A Realty ONE Group é atualmente a marca imobiliária com o crescimento mais rápido nos Estados Unidos. Com mais de 20 anos de experiência, está presente em 26 países e continua a expandir-se a nível global. À frente da marca está Vinnie Tracey, presidente da Realty ONE Group, que durante 40 anos liderou uma das maiores referências mundiais do setor. Com a sua vasta experiência, está a consolidar a Realty ONE Group como uma das marcas líderes nos Estados Unidos e no mundo. Motivos para escolher a ONE As Pessoas Primeiro. Os nossos consultores recebem formação de excelência, nacional e internacional, ministrada pelos melhores especialistas em todas as vertentes do negócio. Toda a formação é gratuita, garantindo que a equipa está preparada para o apoiar com máxima eficiência. “Enquanto desfruta dos prazeres da sua vida, compre e venda o seu imóvel de forma rápida, simples e segura.” ONE House. ONE Dream. ONE Life(style).
AMI: 8815
Ref. Externa: ONE0011365-59
Id: 1505192
Inicie sessão para guardar este imóvel e aceder à sua lista de favoritos em qualquer dispositivo.
57.000 €
Área de terreno : 221 m²
Terreno à Venda - Ideal para Construção de Moradia Individual Área: 221 m² Infraestrutura: Poço de água Acessibilidade: Fácil acesso, junto à Estrada N206 Localização: Apenas a 5 minutos da A7 - Nó de Seide Excelente oportunidade para construir a sua casa num local calmo, com bons acessos e próximo das principais vias. Casafama Santo Tirso - Progresswave, Unipessoal, lda AMI 25171
AMI: 12339
Ref. Externa: CFS-57-13
Id: 1503466
Inicie sessão para guardar este imóvel e aceder à sua lista de favoritos em qualquer dispositivo.
65.000 €
Área de terreno : 391 m²
LOTE DE TERRENO PARA CONSTRUÇÃOLote de terreno de construção, inserido numa Urbanização e com projeto aprovado para uma Moradia e anexo.Todas as infraestruras realizadas.
AMI: 12847
Ref. Externa: 25CLT16
Id: 1501636
Inicie sessão para guardar este imóvel e aceder à sua lista de favoritos em qualquer dispositivo.
65.000 €
Área de terreno : 381 m²
LOTE DE TERRENO PARA CONSTRUÇÃOLote de terreno de construção, inserido numa Urbanização e com projeto aprovado para uma Moradia e anexo.Todas as infraestruras realizadas.
AMI: 12847
Ref. Externa: 25CLT15
Id: 1501635
Inicie sessão para guardar este imóvel e aceder à sua lista de favoritos em qualquer dispositivo.
Área de terreno : 3680 m²
Terreno rústico com viabilidade de construção em Oliveira S. Mateus – possibilidade de construção até 3 pisos acima do solo Excelente terreno rústico localizado em Oliveira São Mateus, muito próximo de Riba d' Ave, inserido numa zona residencial tranquila e com ótimos acessos. Com uma área ampla, boa exposição solar e uma geometria regular, o terreno oferece o enquadramento ideal para diversos tipos de projeto. O grande destaque é a viabilidade de construção com índice de 0.6 e até 3 pisos acima do solo, e duas frentes uma delas com 35 metros e a outra com 18,5 metros permitindo desenvolver, um projeto multifamiliar , moradias em banda ou uma solução arquitetônica moderna que tire o máximo partido do espaço e da vista envolvente. Com acessos alcatroados e infraestruturas na via principal, este terreno beneficia da proximidade a comércio, serviços, escolas e às principais ligações rodoviárias da região. Uma oportunidade perfeita para quem procura construir com liberdade, conforto e potencial de valorização numa das zonas mais tranquilas e bem localizadas de Oliveira S. Mateus. Aceita Permuta. O Grupo Mérito Invest foi fundado no ano 2000 e desde logo procurou cimentar uma posição de solidez, competência e credibilidade junto dos mais diversos atores do mercado imobiliário, nomeadamente através de uma equipa que, desde logo, se compôs por profissionais com competência técnica e experiência. Atento à responsabilidade de prestar um serviço de excelente qualidade, foi pelo Grupo Mérito Invest definida uma nova estratégia de crescimento geográfica, que levou à abertura de novas lojas nas cidades de Barcelos, Guimarães, Vila do Conde, Vila Nova de Famalicão, Porto e Póvoa do Varzim, contando com cerca de 40 consultores e uma carteira de imóveis alargada e diversificada. Sempre "de portas abertas para fazer bons negócios", o Grupo Mérito Invest rege-se por um conjunto de princípios e valores que se têm revelado fatores de sucesso no setor imobiliário: sigilo profissional sobre factos e documentos, elevado sentido de responsabilidade, dever de informação e defesa intransigente dos interesses de todos os seus clientes. A experiência, a credibilidade e a competência do Grupo Mérito Invest, são reconhecidas tanto pelos promotores imobiliários como pelos compradores (sejam Particulares, Empresas ou Investidores). Só assim é possível estabelecer relações fortes com instituições públicas e privadas e com as restantes mediadoras. Aguardamos a sua visita em qualquer uma das nossas sete lojas do Grupo Mérito Invest… porque o nosso Mérito é Investir em Si.
AMI: 4760
Ref. Externa: MIFC-C/0156
Id: 1497322
Inicie sessão para guardar este imóvel e aceder à sua lista de favoritos em qualquer dispositivo.
Área de terreno : 3608 m²
Identificação do imóvel: ZMPT583160Terreno rústico com 3608 m² em Vila Nova de Famalicão , com possibilidades para desenvolvimento de um empreendimento habitacional.Localização privilegiada, a 2 minutos do centro de Vila Nova de Famalicão, a cerca de 5 minutos da autoestrada, e de múltiplos serviços e equipamentos, como o Colégio "The Sailors" ou o novo centro de atletismo da cidade. Para além disso, localiza-se em zona de franco crescimento de construção.3 razões para comprar com a Zome+ acompanhamentoCom uma preparação e experiência única no mercado imobiliário, os consultores Zome põem toda a sua dedicação em dar-lhe o melhor acompanhamento, orientando-o com a máxima confiança, na direção certa das suas necessidades e ambições.Daqui para a frente, vamos criar uma relação próxima e escutar com atenção as suas expectativas, porque a nossa prioridade é a sua felicidade! Porque é importante que sinta que está acompanhado, e que estamos consigo sempre.+ simplesOs consultores Zome têm uma formação única no mercado, ancorada na partilha de experiência prática entre profissionais e fortalecida pelo conhecimento de neurociência aplicada que lhes permite simplificar e tornar mais eficaz a sua experiência imobiliária.Deixe para trás os pesadelos burocráticos porque na Zome encontra o apoio total de uma equipa experiente e multidisciplinar que lhe dá suporte prático em todos os aspetos fundamentais, para que a sua experiência imobiliária supere as expectativas.+ felizO nosso maior valor é entregar-lhe felicidade!Liberte-se de preocupações e ganhe o tempo de qualidade que necessita para se dedicar ao que lhe faz mais feliz.Agimos diariamente para trazer mais valor à sua vida com o aconselhamento fiável de que precisa para, juntos, conseguirmos atingir os melhores resultados.Com a Zome nunca vai estar perdido ou desacompanhado e encontrará algo que não tem preço: a sua máxima tranquilidade!É assim que se vai sentir ao longo de toda a experiência: Tranquilo, seguro, confortável e... FELIZ!Notas:1. Caso seja um consultor imobiliário, este imóvel está disponível para partilha de negócio. Não hesite em apresentar aos seus clientes compradores e fale connosco para agendar a sua visita.2. Para maior facilidade na identificação deste imóvel, por favor, refira o respetivo ID ZMPT ou o respetivo agente que lhe tenha enviado a sugestão.
AMI: 17432
Ref. Externa: ZMPT583160
Id: 1489321
Inicie sessão para guardar este imóvel e aceder à sua lista de favoritos em qualquer dispositivo.
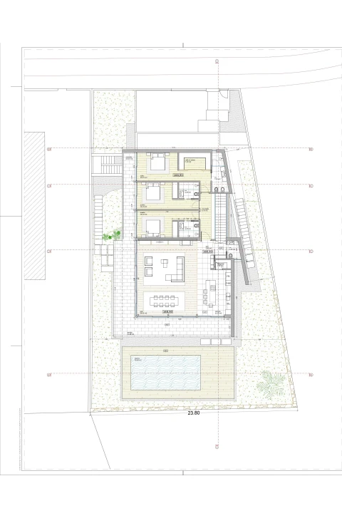
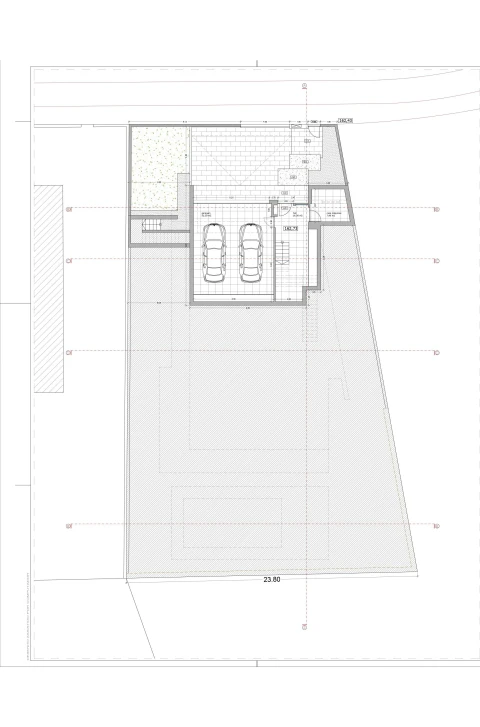
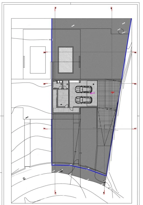
Área de terreno : 2600 m²
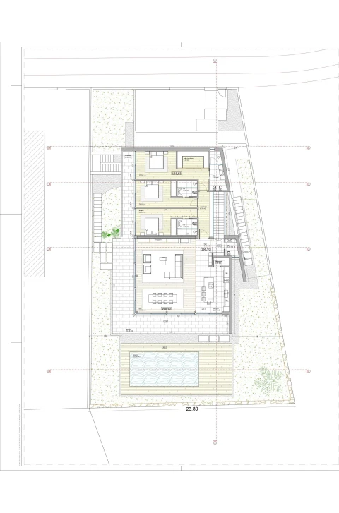
Ref. Interna: TC1405 Dois lotes de terreno para venda em conjunto, com projeto de construção de moradia geminada, de tipologia T3 e 3 frentes localizado em Vila Nova de Famalicão. Cada moradia composta por três pisos (cave, r/c e primeiro andar), inseridas em terreno de cerca de 2600m2, sendo a área bruta de construção de cerca de 623,78m2. Na cave existe uma lavandaria e uma garagem fechada com lugar para dois carros com cerca de 50m2. O r/c possui no exterior um excelente terraço com piscina de 28m2 e no interior a zona social (cozinha em open space com cerca de 70m2) e uma casa de banho de serviço. No primeiro andar encontram-se uma fantástica suíte com closet e terraço com cerca de 46m2, dois quartos com roupeiros embutidos e uma casa de banho completa de apoio aos quartos. Situado a cerca de 6 minutos do centro da cidade. Nas imediações podemos encontrar fácil acesso a todo o tipo de produtos, serviços e transportes. Não se preocupe com a burocracia ou com a extenuante tarefa de analisar as propostas de crédito; temos à sua disposição um departamento jurídico que assegura que tudo é tratado dentro dos trâmites legais e de forma a salvaguardar os seus interesses, e departamento de análise de crédito que o auxiliará na interpretação das melhores propostas conseguidas. Marque já a sua visita. IMPACTUS, a criar impacto desde o primeiro clique! Internal Ref.: TC1405 Two plots of land for sale together, with a project to build a semi-detached house, type T3 and 3 fronts, located in Vila Nova de Famalicão. Each house consists of three floors (basement, ground floor and first floor), located on a plot of approximately 2600m2, with a gross construction area of approximately 623.78m2. In the basement there is a laundry room and a closed garage with space for two cars measuring around 50m2. The ground floor has an excellent terrace outside with a 28m2 swimming pool and inside the social area (open space kitchen measuring around 70m2) and a guest bathroom. On the first floor there is a fantastic suite with dressing room and terrace measuring approximately 46m2, two bedrooms with built-in wardrobes and a complete bathroom to support the bedrooms. Located about 6 minutes from the city center. Nearby we can find easy access to all types of products, services and transport. Don't worry about bureaucracy or the exhausting task of analyzing credit proposals; We have at your disposal a legal department that ensures that everything is handled within legal procedures and in a way that safeguards your interests, and a credit analysis department that will assist you in interpreting the best proposals obtained. Mark your visit. IMPACTUS, creating impact from the first click!
AMI: 18066
Ref. Externa: TC1405
Id: 1479563
Inicie sessão para guardar este imóvel e aceder à sua lista de favoritos em qualquer dispositivo.
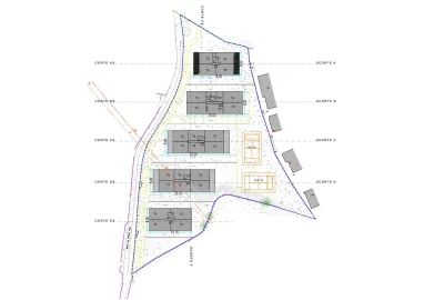
Área de terreno : 361 m²
Bem-vindo à Encosta do Mosteiro, um novo e moderno loteamento com projeto aprovado de um empreendimento que está prestes a nascer em uma localização privilegiada em Oliveira Santa maria, Vila Nova de Famalicão. Com uma área notável e vistas deslumbrantes, este projeto oferece um conceito inovador e sustentável, criado para proporcionar uma experiência de vida excepcional. ??????????????? ?? ??????????: ????????çã? ??????é????: Situado em pleno centro da freguesia de Oliveira Santa Maria em Vila Nova de Famalicão, o loteamento conta com excelentes acessos à VIM, à entrada da A7 em Riba de Ave (5 minutos) e a entrada de Seide (10 minutos). A Encosta do Mosteiro oferece a combinação perfeita entre tranquilidade e acesso a todas as comodidades urbanas. Com distância das principais cidades : ????? (20 minutos), ????? (15 minutos), ??????ã?? ( 10 minutos), ???????ã? (10 minutos) e ????? ????? ( 15 minutos). Os seus futuros moradores poderão desfrutar de uma excelente qualidade de vida. ????? ??????: O empreendimento possui 30 lotes espaçosos, ideais para a construção de 30 moradias exclusivas e modernas. Cada lote foi cuidadosamente planejado para garantir o máximo de espaço e privacidade para os futuros moradores. ??çõ?? ?? ????????:: A Encosta do Mosteiro (lotes) oferece uma seleção diversificada para a construção de moradias individuais térreas, em banda e geminadas, projetadas para atender às necessidades e preferências de diferentes estilos de vida. Seja qual for o seu desejo, encontrará uma casa que reflete a sua personalidade única. ?????????????? ????????: Pensando no conforto e comodidade dos residentes, a Encosta do Mosteiro contará com uma infraestrutura completa, incluindo vias bem planeadas, iluminação moderna, áreas verdes cuidadas e acesso conveniente aos principais serviços e comércios da região. ??????? ? ??? ?????: Se procura uma vida tranquila e ao mesmo tempo em contacto com todas as facilidades urbanas, a Encosta do Mosteiro é o lugar ideal para si e para a sua família. Garanta o seu lugar nesta urbanização única e faça parte de uma experiência de vida verdadeiramente especial. Não perca esta oportunidade de investir em um novo começo na Encosta do Mosteiro em Oliveira Santa Maria, Vila Nova de Famalicão. Entre em contato para mais informações e reservas. Motivos para escolher o Grupo Sucesso: No Grupo Sucesso - AS PESSOAS PRIMEIRO... O Grupo Sucesso conta há vários anos, com vários agentes premiados. Faça parte desta equipa de sucesso! Envie o seu currículo para [email protected] ou contacte-nos através do 914 559 946. -Com a experiência única no mercado imobiliário com mais de 20 anos e 18.000 negócios, os nossos consultores podem dar-lhe o melhor serviço e acompanhamento, levando-o a escolher o melhor caminho para as suas necessidades. -Os consultores têm formação de alto nível, nacional e internacional, com os melhores formadores nacionais e internacionais, em todas as vertentes do negócio, e de forma gratuita para o poder ajudar com mais eficiência. -Fomos a primeira empresa nacional que teve serviço 360, onde pode fazer tudo nas nossas lojas, desde o início da compra à fase da escritura, quer seja a pronto pagamento ou com financiamento, com 7 pessoas no departamento processual e 3 advogados, para que tenha todo o apoio necessário, e possa usufruir dos prazeres da vida com a sua família. “Enquanto usufrui dos prazeres da sua vida, compre e venda o seu imóvel de forma rápida e segura...” ONE house, ONE dream, ONE life (style) A Realty One Group, é a marca que mais cresce nos Estados Unidos, com mais de 17 anos, e quase 1.000 lojas e 20.000 colaboradores em 16 países, estando já aberto em Portugal, Espanha, Itália e em breve em França e Alemanha. O presidente da Realty One Group é o Vinnie Tracey, que foi presidente durante 40 anos de uma das marcas líderes mundiais, e é hoje é o Líder da Realty One Group, que com toda sua experiência esta a tornar a Realty One Group, uma das marcas Líderes nos Estados Unidos, e que já alguns anos, se espalhar para todo mundo. Motivos para escolher a ONE AS PESSOAS PRIMEIRO.. Contamos com vários anos, com vários agentes premiados. -Os consultores têm formação de alto nível nacional e internacional, como os melhores formadores nacionais e internacionais, em todas vertentes do negócio, e de forma gratuita para o pode ajudar com mais eficiência. “Enquanto usufrui dos prazeres da sua vida, compre e venda o seu imóvel de forma rápida e segura...” ONE house, ONE dream, ONE life (style) A Realty One Group, é a marca que mais cresce nos Estados Unidos, com mais de 17 anos, e quase 1.000 lojas e 20.000 colaboradores em 16 países, estando já aberto em Portugal, Espanha, Itália e em breve em França e Alemanha. O presidente da Realty One Group é o Vinnie Tracey, que foi presidente durante 40 anos de uma das marcas líderes mundiais, e é hoje é o Líder da Realty One Group, que com toda sua experiência esta a tornar a Realty One Group, uma das marcas Líderes nos Estados Unidos, e que já alguns anos, se espalhar para todo mundo. Motivos para escolher a ONE AS PESSOAS PRIMEIRO.. Contamos com vários anos, com vários agentes premiados. -Os consultores têm formação de alto nível nacional e internacional, como os melhores formadores nacionais e internacionais, em todas vertentes do negócio, e de forma gratuita para o pode ajudar com mais eficiência. “Enquanto usufrui dos prazeres da sua vida, compre e venda o seu imóvel de forma rápida e segura...” ONE house, ONE dream, ONE life (style) A Realty One Group, é a marca que mais cresce nos Estados Unidos, com mais de 17 anos, e quase 1.000 lojas e 20.000 colaboradores em 16 países, estando já aberto em Portugal, Espanha, Itália e em breve em França e Alemanha. O presidente da Realty One Group é o Vinnie Tracey, que foi presidente durante 40 anos de uma das marcas líderes mundiais, e é hoje é o Líder da Realty One Group, que com toda sua experiência esta a tornar a Realty One Group, uma das marcas Líderes nos Estados Unidos, e que já alguns anos, se espalhar para todo mundo. Motivos para escolher a ONE AS PESSOAS PRIMEIRO.. Contamos com vários anos, com vários agentes premiados. -Os consultores têm formação de alto nível nacional e internacional, como os melhores formadores nacionais e internacionais, em todas vertentes do negócio, e de forma gratuita para o pode ajudar com mais eficiência. “Enquanto usufrui dos prazeres da sua vida, compre e venda o seu imóvel de forma rápida e segura...” ONE house, ONE dream, ONE life (style) A Realty One Group, é a marca que mais cresce nos Estados Unidos, com mais de 17 anos, e quase 1.000 lojas e 20.000 colaboradores em 16 países, estando já aberto em Portugal, Espanha, Itália e em breve em França e Alemanha. O presidente da Realty One Group é o Vinnie Tracey, que foi presidente durante 40 anos de uma das marcas líderes mundiais, e é hoje é o Líder da Realty One Group, que com toda sua experiência esta a tornar a Realty One Group, uma das marcas Líderes nos Estados Unidos, e que já alguns anos, se espalhar para todo mundo. Motivos para escolher a ONE AS PESSOAS PRIMEIRO.. Contamos com vários anos, com vários agentes premiados. -Os consultores têm formação de alto nível nacional e internacional, como os melhores formadores nacionais e internacionais, em todas vertentes do negócio, e de forma gratuita para o pode ajudar com mais eficiência. “Enquanto usufrui dos prazeres da sua vida, compre e venda o seu imóvel de forma rápida e segura...” ONE house, ONE dream, ONE life (style) A Realty One Group, é a marca que mais cresce nos Estados Unidos, com mais de 17 anos, e quase 1.000 lojas e 20.000 colaboradores em 16 países, estando já aberto em Portugal, Espanha, Itália e em breve em França e Alemanha. O presidente da Realty One Group é o Vinnie Tracey, que foi presidente durante 40 anos de uma das marcas líderes mundiais, e é hoje é o Líder da Realty One Group, que com toda sua experiência esta a tornar a Realty One Group, uma das marcas Líderes nos Estados Unidos, e que já alguns anos, se espalhar para todo mundo. Motivos para escolher a ONE AS PESSOAS PRIMEIRO.. Contamos com vários anos, com vários agentes premiados. -Os consultores têm formação de alto nível nacional e internacional, como os melhores formadores nacionais e internacionais, em todas vertentes do negócio, e de forma gratuita para o pode ajudar com mais eficiência. “Enquanto usufrui dos prazeres da sua vida, compre e venda o seu imóvel de forma rápida e segura...” ONE house, ONE dream, ONE life (style) A Realty One Group, é a marca que mais cresce nos Estados Unidos, com mais de 17 anos, e quase 1.000 lojas e 20.000 colaboradores em 16 países, estando já aberto em Portugal, Espanha, Itália e em breve em França e Alemanha. O presidente da Realty One Group é o Vinnie Tracey, que foi presidente durante 40 anos de uma das marcas líderes mundiais, e é hoje é o Líder da Realty One Group, que com toda sua experiência esta a tornar a Realty One Group, uma das marcas Líderes nos Estados Unidos, e que já alguns anos, se espalhar para todo mundo. Motivos para escolher a ONE AS PESSOAS PRIMEIRO.. Contamos com vários anos, com vários agentes premiados. -Os consultores têm formação de alto nível nacional e internacional, como os melhores formadores nacionais e internacionais, em todas vertentes do negócio, e de forma gratuita para o pode ajudar com mais eficiência. “Enquanto usufrui dos prazeres da sua vida, compre e venda o seu imóvel de forma rápida e segura...” ONE house, ONE dream, ONE life (style) A Realty One Group, é a marca que mais cresce nos Estados Unidos, com mais de 17 anos, e quase 1.000 lojas e 20.000 colaboradores em 16 países, estando já aberto em Portugal, Espanha, Itália e em breve em França e Alemanha. O presidente da Realty One Group é o Vinnie Tracey, que foi presidente durante 40 anos de uma das marcas líderes mundiais, e é hoje é o Líder da Realty One Group, que com toda sua experiência esta a tornar a Realty One Group, uma das marcas Líderes nos Estados Unidos, e que já alguns anos, se espalhar para todo mundo. Motivos para escolher a ONE AS PESSOAS PRIMEIRO.. Contamos com vários anos, com vários agentes premiados. -Os consultores têm formação de alto nível nacional e internacional, como os melhores formadores nacionais e internacionais, em todas vertentes do negócio, e de forma gratuita para o pode ajudar com mais eficiência. “Enquanto usufrui dos prazeres da sua vida, compre e venda o seu imóvel de forma rápida e segura...” ONE house, ONE dream, ONE life (style) A Realty One Group, é a marca que mais cresce nos Estados Unidos, com mais de 17 anos, e quase 1.000 lojas e 20.000 colaboradores em 16 países, estando já aberto em Portugal, Espanha, Itália e em breve em França e Alemanha. O presidente da Realty One Group é o Vinnie Tracey, que foi presidente durante 40 anos de uma das marcas líderes mundiais, e é hoje é o Líder da Realty One Group, que com toda sua experiência esta a tornar a Realty One Group, uma das marcas Líderes nos Estados Unidos, e que já alguns anos, se espalhar para todo mundo. Motivos para escolher a ONE AS PESSOAS PRIMEIRO.. Contamos com vários anos, com vários agentes premiados. -Os consultores têm formação de alto nível nacional e internacional, como os melhores formadores nacionais e internacionais, em todas vertentes do negócio, e de forma gratuita para o pode ajudar com mais eficiência. “Enquanto usufrui dos prazeres da sua vida, compre e venda o seu imóvel de forma rápida e segura...” ONE house, ONE dream, ONE life (style) A Realty One Group, é a marca que mais cresce nos Estados Unidos, com mais de 17 anos, e quase 1.000 lojas e 20.000 colaboradores em 16 países, estando já aberto em Portugal, Espanha, Itália e em breve em França e Alemanha. O presidente da Realty One Group é o Vinnie Tracey, que foi presidente durante 40 anos de uma das marcas líderes mundiais, e é hoje é o Líder da Realty One Group, que com toda sua experiência esta a tornar a Realty One Group, uma das marcas Líderes nos Estados Unidos, e que já alguns anos, se espalhar para todo mundo. Motivos para escolher a ONE AS PESSOAS PRIMEIRO.. Contamos com vários anos, com vários agentes premiados. -Os consultores têm formação de alto nível nacional e internacional, como os melhores formadores nacionais e internacionais, em todas vertentes do negócio, e de forma gratuita para o pode ajudar com mais eficiência. “Enquanto usufrui dos prazeres da sua vida, compre e venda o seu imóvel de forma rápida e segura...” ONE house, ONE dream, ONE life (style) A Realty One Group, é a marca que mais cresce nos Estados Unidos, com mais de 17 anos, e quase 1.000 lojas e 20.000 colaboradores em 16 países, estando já aberto em Portugal, Espanha, Itália e em breve em França e Alemanha. O presidente da Realty One Group é o Vinnie Tracey, que foi presidente durante 40 anos de uma das marcas líderes mundiais, e é hoje é o Líder da Realty One Group, que com toda sua experiência esta a tornar a Realty One Group, uma das marcas Líderes nos Estados Unidos, e que já alguns anos, se espalhar para todo mundo. Motivos para escolher a ONE AS PESSOAS PRIMEIRO.. Contamos com vários anos, com vários agentes premiados. -Os consultores têm formação de alto nível nacional e internacional, como os melhores formadores nacionais e internacionais, em todas vertentes do negócio, e de forma gratuita para o pode ajudar com mais eficiência. “Enquanto usufrui dos prazeres da sua vida, compre e venda o seu imóvel de forma rápida e segura...” ONE house, ONE dream, ONE life (style) A Realty One Group, é a marca que mais cresce nos Estados Unidos, com mais de 17 anos, e quase 1.000 lojas e 20.000 colaboradores em 16 países, estando já aberto em Portugal, Espanha, Itália e em breve em França e Alemanha. O presidente da Realty One Group é o Vinnie Tracey, que foi presidente durante 40 anos de uma das marcas líderes mundiais, e é hoje é o Líder da Realty One Group, que com toda sua experiência esta a tornar a Realty One Group, uma das marcas Líderes nos Estados Unidos, e que já alguns anos, se espalhar para todo mundo. Motivos para escolher a ONE AS PESSOAS PRIMEIRO.. Contamos com vários anos, com vários agentes premiados. -Os consultores têm formação de alto nível nacional e internacional, como os melhores formadores nacionais e internacionais, em todas vertentes do negócio, e de forma gratuita para o pode ajudar com mais eficiência. “Enquanto usufrui dos prazeres da sua vida, compre e venda o seu imóvel de forma rápida e segura...” ONE house, ONE dream, ONE life (style) A Realty One Group, é a marca que mais cresce nos Estados Unidos, com mais de 17 anos, e quase 1.000 lojas e 20.000 colaboradores em 16 países, estando já aberto em Portugal, Espanha, Itália e em breve em França e Alemanha. O presidente da Realty One Group é o Vinnie Tracey, que foi presidente durante 40 anos de uma das marcas líderes mundiais, e é hoje é o Líder da Realty One Group, que com toda sua experiência esta a tornar a Realty One Group, uma das marcas Líderes nos Estados Unidos, e que já alguns anos, se espalhar para todo mundo. Motivos para escolher a ONE AS PESSOAS PRIMEIRO.. Contamos com vários anos, com vários agentes premiados. -Os consultores têm formação de alto nível nacional e internacional, como os melhores formadores nacionais e internacionais, em todas vertentes do negócio, e de forma gratuita para o pode ajudar com mais eficiência. “Enquanto usufrui dos prazeres da sua vida, compre e venda o seu imóvel de forma rápida e segura...” ONE house, ONE dream, ONE life (style) A Realty One Group, é a marca que mais cresce nos Estados Unidos, com mais de 17 anos, e quase 1.000 lojas e 20.000 colaboradores em 16 países, estando já aberto em Portugal, Espanha, Itália e em breve em França e Alemanha. O presidente da Realty One Group é o Vinnie Tracey, que foi presidente durante 40 anos de uma das marcas líderes mundiais, e é hoje é o Líder da Realty One Group, que com toda sua experiência esta a tornar a Realty One Group, uma das marcas Líderes nos Estados Unidos, e que já alguns anos, se espalhar para todo mundo. Motivos para escolher a ONE AS PESSOAS PRIMEIRO.. Contamos com vários anos, com vários agentes premiados. -Os consultores têm formação de alto nível nacional e internacional, como os melhores formadores nacionais e internacionais, em todas vertentes do negócio, e de forma gratuita para o pode ajudar com mais eficiência. “Enquanto usufrui dos prazeres da sua vida, compre e venda o seu imóvel de forma rápida e segura...” ONE house, ONE dream, ONE life (style)
AMI: 8815
Ref. Externa: ONE0011018-271
Id: 1477840
Inicie sessão para guardar este imóvel e aceder à sua lista de favoritos em qualquer dispositivo.
Área de terreno : 450 m²
Bem-vindo à Encosta do Mosteiro, um novo e moderno loteamento com projeto aprovado de um empreendimento que está prestes a nascer em uma localização privilegiada em Oliveira Santa maria, Vila Nova de Famalicão. Com uma área notável e vistas deslumbrantes, este projeto oferece um conceito inovador e sustentável, criado para proporcionar uma experiência de vida excepcional. ??????????????? ?? ??????????: ????????çã? ??????é????: Situado em pleno centro da freguesia de Oliveira Santa Maria em Vila Nova de Famalicão, o loteamento conta com excelentes acessos à VIM, à entrada da A7 em Riba de Ave (5 minutos) e a entrada de Seide (10 minutos). A Encosta do Mosteiro oferece a combinação perfeita entre tranquilidade e acesso a todas as comodidades urbanas. Com distância das principais cidades : ????? (20 minutos), ????? (15 minutos), ??????ã?? ( 10 minutos), ???????ã? (10 minutos) e ????? ????? ( 15 minutos). Os seus futuros moradores poderão desfrutar de uma excelente qualidade de vida. ????? ??????: O empreendimento possui 30 lotes espaçosos, ideais para a construção de 30 moradias exclusivas e modernas. Cada lote foi cuidadosamente planejado para garantir o máximo de espaço e privacidade para os futuros moradores. ??çõ?? ?? ????????:: A Encosta do Mosteiro (lotes) oferece uma seleção diversificada para a construção de moradias individuais térreas, em banda e geminadas, projetadas para atender às necessidades e preferências de diferentes estilos de vida. Seja qual for o seu desejo, encontrará uma casa que reflete a sua personalidade única. ?????????????? ????????: Pensando no conforto e comodidade dos residentes, a Encosta do Mosteiro contará com uma infraestrutura completa, incluindo vias bem planeadas, iluminação moderna, áreas verdes cuidadas e acesso conveniente aos principais serviços e comércios da região. ??????? ? ??? ?????: Se procura uma vida tranquila e ao mesmo tempo em contacto com todas as facilidades urbanas, a Encosta do Mosteiro é o lugar ideal para si e para a sua família. Garanta o seu lugar nesta urbanização única e faça parte de uma experiência de vida verdadeiramente especial. Não perca esta oportunidade de investir em um novo começo na Encosta do Mosteiro em Oliveira Santa Maria, Vila Nova de Famalicão. Entre em contato para mais informações e reservas. Motivos para escolher o Grupo Sucesso: No Grupo Sucesso - AS PESSOAS PRIMEIRO... O Grupo Sucesso conta há vários anos, com vários agentes premiados. Faça parte desta equipa de sucesso! Envie o seu currículo para [email protected] ou contacte-nos através do 914 559 946. -Com a experiência única no mercado imobiliário com mais de 20 anos e 18.000 negócios, os nossos consultores podem dar-lhe o melhor serviço e acompanhamento, levando-o a escolher o melhor caminho para as suas necessidades. -Os consultores têm formação de alto nível, nacional e internacional, com os melhores formadores nacionais e internacionais, em todas as vertentes do negócio, e de forma gratuita para o poder ajudar com mais eficiência. -Fomos a primeira empresa nacional que teve serviço 360, onde pode fazer tudo nas nossas lojas, desde o início da compra à fase da escritura, quer seja a pronto pagamento ou com financiamento, com 7 pessoas no departamento processual e 3 advogados, para que tenha todo o apoio necessário, e possa usufruir dos prazeres da vida com a sua família. “Enquanto usufrui dos prazeres da sua vida, compre e venda o seu imóvel de forma rápida e segura...” ONE house, ONE dream, ONE life (style) A Realty One Group, é a marca que mais cresce nos Estados Unidos, com mais de 17 anos, e quase 1.000 lojas e 20.000 colaboradores em 16 países, estando já aberto em Portugal, Espanha, Itália e em breve em França e Alemanha. O presidente da Realty One Group é o Vinnie Tracey, que foi presidente durante 40 anos de uma das marcas líderes mundiais, e é hoje é o Líder da Realty One Group, que com toda sua experiência esta a tornar a Realty One Group, uma das marcas Líderes nos Estados Unidos, e que já alguns anos, se espalhar para todo mundo. Motivos para escolher a ONE AS PESSOAS PRIMEIRO.. Contamos com vários anos, com vários agentes premiados. -Os consultores têm formação de alto nível nacional e internacional, como os melhores formadores nacionais e internacionais, em todas vertentes do negócio, e de forma gratuita para o pode ajudar com mais eficiência. “Enquanto usufrui dos prazeres da sua vida, compre e venda o seu imóvel de forma rápida e segura...” ONE house, ONE dream, ONE life (style) A Realty One Group, é a marca que mais cresce nos Estados Unidos, com mais de 17 anos, e quase 1.000 lojas e 20.000 colaboradores em 16 países, estando já aberto em Portugal, Espanha, Itália e em breve em França e Alemanha. O presidente da Realty One Group é o Vinnie Tracey, que foi presidente durante 40 anos de uma das marcas líderes mundiais, e é hoje é o Líder da Realty One Group, que com toda sua experiência esta a tornar a Realty One Group, uma das marcas Líderes nos Estados Unidos, e que já alguns anos, se espalhar para todo mundo. Motivos para escolher a ONE AS PESSOAS PRIMEIRO.. Contamos com vários anos, com vários agentes premiados. -Os consultores têm formação de alto nível nacional e internacional, como os melhores formadores nacionais e internacionais, em todas vertentes do negócio, e de forma gratuita para o pode ajudar com mais eficiência. “Enquanto usufrui dos prazeres da sua vida, compre e venda o seu imóvel de forma rápida e segura...” ONE house, ONE dream, ONE life (style) A Realty One Group, é a marca que mais cresce nos Estados Unidos, com mais de 17 anos, e quase 1.000 lojas e 20.000 colaboradores em 16 países, estando já aberto em Portugal, Espanha, Itália e em breve em França e Alemanha. O presidente da Realty One Group é o Vinnie Tracey, que foi presidente durante 40 anos de uma das marcas líderes mundiais, e é hoje é o Líder da Realty One Group, que com toda sua experiência esta a tornar a Realty One Group, uma das marcas Líderes nos Estados Unidos, e que já alguns anos, se espalhar para todo mundo. Motivos para escolher a ONE AS PESSOAS PRIMEIRO.. Contamos com vários anos, com vários agentes premiados. -Os consultores têm formação de alto nível nacional e internacional, como os melhores formadores nacionais e internacionais, em todas vertentes do negócio, e de forma gratuita para o pode ajudar com mais eficiência. “Enquanto usufrui dos prazeres da sua vida, compre e venda o seu imóvel de forma rápida e segura...” ONE house, ONE dream, ONE life (style) A Realty One Group, é a marca que mais cresce nos Estados Unidos, com mais de 17 anos, e quase 1.000 lojas e 20.000 colaboradores em 16 países, estando já aberto em Portugal, Espanha, Itália e em breve em França e Alemanha. O presidente da Realty One Group é o Vinnie Tracey, que foi presidente durante 40 anos de uma das marcas líderes mundiais, e é hoje é o Líder da Realty One Group, que com toda sua experiência esta a tornar a Realty One Group, uma das marcas Líderes nos Estados Unidos, e que já alguns anos, se espalhar para todo mundo. Motivos para escolher a ONE AS PESSOAS PRIMEIRO.. Contamos com vários anos, com vários agentes premiados. -Os consultores têm formação de alto nível nacional e internacional, como os melhores formadores nacionais e internacionais, em todas vertentes do negócio, e de forma gratuita para o pode ajudar com mais eficiência. “Enquanto usufrui dos prazeres da sua vida, compre e venda o seu imóvel de forma rápida e segura...” ONE house, ONE dream, ONE life (style)
AMI: 8815
Ref. Externa: ONE0011018-262
Id: 1477821
Inicie sessão para guardar este imóvel e aceder à sua lista de favoritos em qualquer dispositivo.
Área de terreno : 401 m²
Bem-vindo à Encosta do Mosteiro, um novo e moderno loteamento com projeto aprovado de um empreendimento que está prestes a nascer em uma localização privilegiada em Oliveira Santa maria, Vila Nova de Famalicão. Com uma área notável e vistas deslumbrantes, este projeto oferece um conceito inovador e sustentável, criado para proporcionar uma experiência de vida excepcional. ??????????????? ?? ??????????: ????????çã? ??????é????: Situado em pleno centro da freguesia de Oliveira Santa Maria em Vila Nova de Famalicão, o loteamento conta com excelentes acessos à VIM, à entrada da A7 em Riba de Ave (5 minutos) e a entrada de Seide (10 minutos). A Encosta do Mosteiro oferece a combinação perfeita entre tranquilidade e acesso a todas as comodidades urbanas. Com distância das principais cidades : ????? (20 minutos), ????? (15 minutos), ??????ã?? ( 10 minutos), ???????ã? (10 minutos) e ????? ????? ( 15 minutos). Os seus futuros moradores poderão desfrutar de uma excelente qualidade de vida. ????? ??????: O empreendimento possui 30 lotes espaçosos, ideais para a construção de 30 moradias exclusivas e modernas. Cada lote foi cuidadosamente planejado para garantir o máximo de espaço e privacidade para os futuros moradores. ??çõ?? ?? ????????:: A Encosta do Mosteiro (lotes) oferece uma seleção diversificada para a construção de moradias individuais térreas, em banda e geminadas, projetadas para atender às necessidades e preferências de diferentes estilos de vida. Seja qual for o seu desejo, encontrará uma casa que reflete a sua personalidade única. ?????????????? ????????: Pensando no conforto e comodidade dos residentes, a Encosta do Mosteiro contará com uma infraestrutura completa, incluindo vias bem planeadas, iluminação moderna, áreas verdes cuidadas e acesso conveniente aos principais serviços e comércios da região. ??????? ? ??? ?????: Se procura uma vida tranquila e ao mesmo tempo em contacto com todas as facilidades urbanas, a Encosta do Mosteiro é o lugar ideal para si e para a sua família. Garanta o seu lugar nesta urbanização única e faça parte de uma experiência de vida verdadeiramente especial. Não perca esta oportunidade de investir em um novo começo na Encosta do Mosteiro em Oliveira Santa Maria, Vila Nova de Famalicão. Entre em contato para mais informações e reservas. Motivos para escolher o Grupo Sucesso: No Grupo Sucesso - AS PESSOAS PRIMEIRO... O Grupo Sucesso conta há vários anos, com vários agentes premiados. Faça parte desta equipa de sucesso! Envie o seu currículo para [email protected] ou contacte-nos através do 914 559 946. -Com a experiência única no mercado imobiliário com mais de 20 anos e 18.000 negócios, os nossos consultores podem dar-lhe o melhor serviço e acompanhamento, levando-o a escolher o melhor caminho para as suas necessidades. -Os consultores têm formação de alto nível, nacional e internacional, com os melhores formadores nacionais e internacionais, em todas as vertentes do negócio, e de forma gratuita para o poder ajudar com mais eficiência. -Fomos a primeira empresa nacional que teve serviço 360, onde pode fazer tudo nas nossas lojas, desde o início da compra à fase da escritura, quer seja a pronto pagamento ou com financiamento, com 7 pessoas no departamento processual e 3 advogados, para que tenha todo o apoio necessário, e possa usufruir dos prazeres da vida com a sua família. “Enquanto usufrui dos prazeres da sua vida, compre e venda o seu imóvel de forma rápida e segura...” ONE house, ONE dream, ONE life (style) A Realty One Group, é a marca que mais cresce nos Estados Unidos, com mais de 17 anos, e quase 1.000 lojas e 20.000 colaboradores em 16 países, estando já aberto em Portugal, Espanha, Itália e em breve em França e Alemanha. O presidente da Realty One Group é o Vinnie Tracey, que foi presidente durante 40 anos de uma das marcas líderes mundiais, e é hoje é o Líder da Realty One Group, que com toda sua experiência esta a tornar a Realty One Group, uma das marcas Líderes nos Estados Unidos, e que já alguns anos, se espalhar para todo mundo. Motivos para escolher a ONE AS PESSOAS PRIMEIRO.. Contamos com vários anos, com vários agentes premiados. -Os consultores têm formação de alto nível nacional e internacional, como os melhores formadores nacionais e internacionais, em todas vertentes do negócio, e de forma gratuita para o pode ajudar com mais eficiência. “Enquanto usufrui dos prazeres da sua vida, compre e venda o seu imóvel de forma rápida e segura...” ONE house, ONE dream, ONE life (style) A Realty One Group, é a marca que mais cresce nos Estados Unidos, com mais de 17 anos, e quase 1.000 lojas e 20.000 colaboradores em 16 países, estando já aberto em Portugal, Espanha, Itália e em breve em França e Alemanha. O presidente da Realty One Group é o Vinnie Tracey, que foi presidente durante 40 anos de uma das marcas líderes mundiais, e é hoje é o Líder da Realty One Group, que com toda sua experiência esta a tornar a Realty One Group, uma das marcas Líderes nos Estados Unidos, e que já alguns anos, se espalhar para todo mundo. Motivos para escolher a ONE AS PESSOAS PRIMEIRO.. Contamos com vários anos, com vários agentes premiados. -Os consultores têm formação de alto nível nacional e internacional, como os melhores formadores nacionais e internacionais, em todas vertentes do negócio, e de forma gratuita para o pode ajudar com mais eficiência. “Enquanto usufrui dos prazeres da sua vida, compre e venda o seu imóvel de forma rápida e segura...” ONE house, ONE dream, ONE life (style) A Realty One Group, é a marca que mais cresce nos Estados Unidos, com mais de 17 anos, e quase 1.000 lojas e 20.000 colaboradores em 16 países, estando já aberto em Portugal, Espanha, Itália e em breve em França e Alemanha. O presidente da Realty One Group é o Vinnie Tracey, que foi presidente durante 40 anos de uma das marcas líderes mundiais, e é hoje é o Líder da Realty One Group, que com toda sua experiência esta a tornar a Realty One Group, uma das marcas Líderes nos Estados Unidos, e que já alguns anos, se espalhar para todo mundo. Motivos para escolher a ONE AS PESSOAS PRIMEIRO.. Contamos com vários anos, com vários agentes premiados. -Os consultores têm formação de alto nível nacional e internacional, como os melhores formadores nacionais e internacionais, em todas vertentes do negócio, e de forma gratuita para o pode ajudar com mais eficiência. “Enquanto usufrui dos prazeres da sua vida, compre e venda o seu imóvel de forma rápida e segura...” ONE house, ONE dream, ONE life (style) A Realty One Group, é a marca que mais cresce nos Estados Unidos, com mais de 17 anos, e quase 1.000 lojas e 20.000 colaboradores em 16 países, estando já aberto em Portugal, Espanha, Itália e em breve em França e Alemanha. O presidente da Realty One Group é o Vinnie Tracey, que foi presidente durante 40 anos de uma das marcas líderes mundiais, e é hoje é o Líder da Realty One Group, que com toda sua experiência esta a tornar a Realty One Group, uma das marcas Líderes nos Estados Unidos, e que já alguns anos, se espalhar para todo mundo. Motivos para escolher a ONE AS PESSOAS PRIMEIRO.. Contamos com vários anos, com vários agentes premiados. -Os consultores têm formação de alto nível nacional e internacional, como os melhores formadores nacionais e internacionais, em todas vertentes do negócio, e de forma gratuita para o pode ajudar com mais eficiência. “Enquanto usufrui dos prazeres da sua vida, compre e venda o seu imóvel de forma rápida e segura...” ONE house, ONE dream, ONE life (style) A Realty One Group, é a marca que mais cresce nos Estados Unidos, com mais de 17 anos, e quase 1.000 lojas e 20.000 colaboradores em 16 países, estando já aberto em Portugal, Espanha, Itália e em breve em França e Alemanha. O presidente da Realty One Group é o Vinnie Tracey, que foi presidente durante 40 anos de uma das marcas líderes mundiais, e é hoje é o Líder da Realty One Group, que com toda sua experiência esta a tornar a Realty One Group, uma das marcas Líderes nos Estados Unidos, e que já alguns anos, se espalhar para todo mundo. Motivos para escolher a ONE AS PESSOAS PRIMEIRO.. Contamos com vários anos, com vários agentes premiados. -Os consultores têm formação de alto nível nacional e internacional, como os melhores formadores nacionais e internacionais, em todas vertentes do negócio, e de forma gratuita para o pode ajudar com mais eficiência. “Enquanto usufrui dos prazeres da sua vida, compre e venda o seu imóvel de forma rápida e segura...” ONE house, ONE dream, ONE life (style) A Realty One Group, é a marca que mais cresce nos Estados Unidos, com mais de 17 anos, e quase 1.000 lojas e 20.000 colaboradores em 16 países, estando já aberto em Portugal, Espanha, Itália e em breve em França e Alemanha. O presidente da Realty One Group é o Vinnie Tracey, que foi presidente durante 40 anos de uma das marcas líderes mundiais, e é hoje é o Líder da Realty One Group, que com toda sua experiência esta a tornar a Realty One Group, uma das marcas Líderes nos Estados Unidos, e que já alguns anos, se espalhar para todo mundo. Motivos para escolher a ONE AS PESSOAS PRIMEIRO.. Contamos com vários anos, com vários agentes premiados. -Os consultores têm formação de alto nível nacional e internacional, como os melhores formadores nacionais e internacionais, em todas vertentes do negócio, e de forma gratuita para o pode ajudar com mais eficiência. “Enquanto usufrui dos prazeres da sua vida, compre e venda o seu imóvel de forma rápida e segura...” ONE house, ONE dream, ONE life (style) A Realty One Group, é a marca que mais cresce nos Estados Unidos, com mais de 17 anos, e quase 1.000 lojas e 20.000 colaboradores em 16 países, estando já aberto em Portugal, Espanha, Itália e em breve em França e Alemanha. O presidente da Realty One Group é o Vinnie Tracey, que foi presidente durante 40 anos de uma das marcas líderes mundiais, e é hoje é o Líder da Realty One Group, que com toda sua experiência esta a tornar a Realty One Group, uma das marcas Líderes nos Estados Unidos, e que já alguns anos, se espalhar para todo mundo. Motivos para escolher a ONE AS PESSOAS PRIMEIRO.. Contamos com vários anos, com vários agentes premiados. -Os consultores têm formação de alto nível nacional e internacional, como os melhores formadores nacionais e internacionais, em todas vertentes do negócio, e de forma gratuita para o pode ajudar com mais eficiência. “Enquanto usufrui dos prazeres da sua vida, compre e venda o seu imóvel de forma rápida e segura...” ONE house, ONE dream, ONE life (style) A Realty One Group, é a marca que mais cresce nos Estados Unidos, com mais de 17 anos, e quase 1.000 lojas e 20.000 colaboradores em 16 países, estando já aberto em Portugal, Espanha, Itália e em breve em França e Alemanha. O presidente da Realty One Group é o Vinnie Tracey, que foi presidente durante 40 anos de uma das marcas líderes mundiais, e é hoje é o Líder da Realty One Group, que com toda sua experiência esta a tornar a Realty One Group, uma das marcas Líderes nos Estados Unidos, e que já alguns anos, se espalhar para todo mundo. Motivos para escolher a ONE AS PESSOAS PRIMEIRO.. Contamos com vários anos, com vários agentes premiados. -Os consultores têm formação de alto nível nacional e internacional, como os melhores formadores nacionais e internacionais, em todas vertentes do negócio, e de forma gratuita para o pode ajudar com mais eficiência. “Enquanto usufrui dos prazeres da sua vida, compre e venda o seu imóvel de forma rápida e segura...” ONE house, ONE dream, ONE life (style) A Realty One Group, é a marca que mais cresce nos Estados Unidos, com mais de 17 anos, e quase 1.000 lojas e 20.000 colaboradores em 16 países, estando já aberto em Portugal, Espanha, Itália e em breve em França e Alemanha. O presidente da Realty One Group é o Vinnie Tracey, que foi presidente durante 40 anos de uma das marcas líderes mundiais, e é hoje é o Líder da Realty One Group, que com toda sua experiência esta a tornar a Realty One Group, uma das marcas Líderes nos Estados Unidos, e que já alguns anos, se espalhar para todo mundo. Motivos para escolher a ONE AS PESSOAS PRIMEIRO.. Contamos com vários anos, com vários agentes premiados. -Os consultores têm formação de alto nível nacional e internacional, como os melhores formadores nacionais e internacionais, em todas vertentes do negócio, e de forma gratuita para o pode ajudar com mais eficiência. “Enquanto usufrui dos prazeres da sua vida, compre e venda o seu imóvel de forma rápida e segura...” ONE house, ONE dream, ONE life (style) A Realty One Group, é a marca que mais cresce nos Estados Unidos, com mais de 17 anos, e quase 1.000 lojas e 20.000 colaboradores em 16 países, estando já aberto em Portugal, Espanha, Itália e em breve em França e Alemanha. O presidente da Realty One Group é o Vinnie Tracey, que foi presidente durante 40 anos de uma das marcas líderes mundiais, e é hoje é o Líder da Realty One Group, que com toda sua experiência esta a tornar a Realty One Group, uma das marcas Líderes nos Estados Unidos, e que já alguns anos, se espalhar para todo mundo. Motivos para escolher a ONE AS PESSOAS PRIMEIRO.. Contamos com vários anos, com vários agentes premiados. -Os consultores têm formação de alto nível nacional e internacional, como os melhores formadores nacionais e internacionais, em todas vertentes do negócio, e de forma gratuita para o pode ajudar com mais eficiência. “Enquanto usufrui dos prazeres da sua vida, compre e venda o seu imóvel de forma rápida e segura...” ONE house, ONE dream, ONE life (style) A Realty One Group, é a marca que mais cresce nos Estados Unidos, com mais de 17 anos, e quase 1.000 lojas e 20.000 colaboradores em 16 países, estando já aberto em Portugal, Espanha, Itália e em breve em França e Alemanha. O presidente da Realty One Group é o Vinnie Tracey, que foi presidente durante 40 anos de uma das marcas líderes mundiais, e é hoje é o Líder da Realty One Group, que com toda sua experiência esta a tornar a Realty One Group, uma das marcas Líderes nos Estados Unidos, e que já alguns anos, se espalhar para todo mundo. Motivos para escolher a ONE AS PESSOAS PRIMEIRO.. Contamos com vários anos, com vários agentes premiados. -Os consultores têm formação de alto nível nacional e internacional, como os melhores formadores nacionais e internacionais, em todas vertentes do negócio, e de forma gratuita para o pode ajudar com mais eficiência. “Enquanto usufrui dos prazeres da sua vida, compre e venda o seu imóvel de forma rápida e segura...” ONE house, ONE dream, ONE life (style) A Realty One Group, é a marca que mais cresce nos Estados Unidos, com mais de 17 anos, e quase 1.000 lojas e 20.000 colaboradores em 16 países, estando já aberto em Portugal, Espanha, Itália e em breve em França e Alemanha. O presidente da Realty One Group é o Vinnie Tracey, que foi presidente durante 40 anos de uma das marcas líderes mundiais, e é hoje é o Líder da Realty One Group, que com toda sua experiência esta a tornar a Realty One Group, uma das marcas Líderes nos Estados Unidos, e que já alguns anos, se espalhar para todo mundo. Motivos para escolher a ONE AS PESSOAS PRIMEIRO.. Contamos com vários anos, com vários agentes premiados. -Os consultores têm formação de alto nível nacional e internacional, como os melhores formadores nacionais e internacionais, em todas vertentes do negócio, e de forma gratuita para o pode ajudar com mais eficiência. “Enquanto usufrui dos prazeres da sua vida, compre e venda o seu imóvel de forma rápida e segura...” ONE house, ONE dream, ONE life (style)
AMI: 8815
Ref. Externa: ONE0011018-270
Id: 1477812
Inicie sessão para guardar este imóvel e aceder à sua lista de favoritos em qualquer dispositivo.
Área de terreno : 377 m²
Bem-vindo à Encosta do Mosteiro, um novo e moderno loteamento com projeto aprovado de um empreendimento que está prestes a nascer em uma localização privilegiada em Oliveira Santa maria, Vila Nova de Famalicão. Com uma área notável e vistas deslumbrantes, este projeto oferece um conceito inovador e sustentável, criado para proporcionar uma experiência de vida excepcional. ??????????????? ?? ??????????: ????????çã? ??????é????: Situado em pleno centro da freguesia de Oliveira Santa Maria em Vila Nova de Famalicão, o loteamento conta com excelentes acessos à VIM, à entrada da A7 em Riba de Ave (5 minutos) e a entrada de Seide (10 minutos). A Encosta do Mosteiro oferece a combinação perfeita entre tranquilidade e acesso a todas as comodidades urbanas. Com distância das principais cidades : ????? (20 minutos), ????? (15 minutos), ??????ã?? ( 10 minutos), ???????ã? (10 minutos) e ????? ????? ( 15 minutos). Os seus futuros moradores poderão desfrutar de uma excelente qualidade de vida. ????? ??????: O empreendimento possui 30 lotes espaçosos, ideais para a construção de 30 moradias exclusivas e modernas. Cada lote foi cuidadosamente planejado para garantir o máximo de espaço e privacidade para os futuros moradores. ??çõ?? ?? ????????:: A Encosta do Mosteiro (lotes) oferece uma seleção diversificada para a construção de moradias individuais térreas, em banda e geminadas, projetadas para atender às necessidades e preferências de diferentes estilos de vida. Seja qual for o seu desejo, encontrará uma casa que reflete a sua personalidade única. ?????????????? ????????: Pensando no conforto e comodidade dos residentes, a Encosta do Mosteiro contará com uma infraestrutura completa, incluindo vias bem planeadas, iluminação moderna, áreas verdes cuidadas e acesso conveniente aos principais serviços e comércios da região. ??????? ? ??? ?????: Se procura uma vida tranquila e ao mesmo tempo em contacto com todas as facilidades urbanas, a Encosta do Mosteiro é o lugar ideal para si e para a sua família. Garanta o seu lugar nesta urbanização única e faça parte de uma experiência de vida verdadeiramente especial. Não perca esta oportunidade de investir em um novo começo na Encosta do Mosteiro em Oliveira Santa Maria, Vila Nova de Famalicão. Entre em contato para mais informações e reservas. Motivos para escolher o Grupo Sucesso: No Grupo Sucesso - AS PESSOAS PRIMEIRO... O Grupo Sucesso conta há vários anos, com vários agentes premiados. Faça parte desta equipa de sucesso! Envie o seu currículo para [email protected] ou contacte-nos através do 914 559 946. -Com a experiência única no mercado imobiliário com mais de 20 anos e 18.000 negócios, os nossos consultores podem dar-lhe o melhor serviço e acompanhamento, levando-o a escolher o melhor caminho para as suas necessidades. -Os consultores têm formação de alto nível, nacional e internacional, com os melhores formadores nacionais e internacionais, em todas as vertentes do negócio, e de forma gratuita para o poder ajudar com mais eficiência. -Fomos a primeira empresa nacional que teve serviço 360, onde pode fazer tudo nas nossas lojas, desde o início da compra à fase da escritura, quer seja a pronto pagamento ou com financiamento, com 7 pessoas no departamento processual e 3 advogados, para que tenha todo o apoio necessário, e possa usufruir dos prazeres da vida com a sua família. “Enquanto usufrui dos prazeres da sua vida, compre e venda o seu imóvel de forma rápida e segura...” ONE house, ONE dream, ONE life (style) A Realty One Group, é a marca que mais cresce nos Estados Unidos, com mais de 17 anos, e quase 1.000 lojas e 20.000 colaboradores em 16 países, estando já aberto em Portugal, Espanha, Itália e em breve em França e Alemanha. O presidente da Realty One Group é o Vinnie Tracey, que foi presidente durante 40 anos de uma das marcas líderes mundiais, e é hoje é o Líder da Realty One Group, que com toda sua experiência esta a tornar a Realty One Group, uma das marcas Líderes nos Estados Unidos, e que já alguns anos, se espalhar para todo mundo. Motivos para escolher a ONE AS PESSOAS PRIMEIRO.. Contamos com vários anos, com vários agentes premiados. -Os consultores têm formação de alto nível nacional e internacional, como os melhores formadores nacionais e internacionais, em todas vertentes do negócio, e de forma gratuita para o pode ajudar com mais eficiência. “Enquanto usufrui dos prazeres da sua vida, compre e venda o seu imóvel de forma rápida e segura...” ONE house, ONE dream, ONE life (style) A Realty One Group, é a marca que mais cresce nos Estados Unidos, com mais de 17 anos, e quase 1.000 lojas e 20.000 colaboradores em 16 países, estando já aberto em Portugal, Espanha, Itália e em breve em França e Alemanha. O presidente da Realty One Group é o Vinnie Tracey, que foi presidente durante 40 anos de uma das marcas líderes mundiais, e é hoje é o Líder da Realty One Group, que com toda sua experiência esta a tornar a Realty One Group, uma das marcas Líderes nos Estados Unidos, e que já alguns anos, se espalhar para todo mundo. Motivos para escolher a ONE AS PESSOAS PRIMEIRO.. Contamos com vários anos, com vários agentes premiados. -Os consultores têm formação de alto nível nacional e internacional, como os melhores formadores nacionais e internacionais, em todas vertentes do negócio, e de forma gratuita para o pode ajudar com mais eficiência. “Enquanto usufrui dos prazeres da sua vida, compre e venda o seu imóvel de forma rápida e segura...” ONE house, ONE dream, ONE life (style) A Realty One Group, é a marca que mais cresce nos Estados Unidos, com mais de 17 anos, e quase 1.000 lojas e 20.000 colaboradores em 16 países, estando já aberto em Portugal, Espanha, Itália e em breve em França e Alemanha. O presidente da Realty One Group é o Vinnie Tracey, que foi presidente durante 40 anos de uma das marcas líderes mundiais, e é hoje é o Líder da Realty One Group, que com toda sua experiência esta a tornar a Realty One Group, uma das marcas Líderes nos Estados Unidos, e que já alguns anos, se espalhar para todo mundo. Motivos para escolher a ONE AS PESSOAS PRIMEIRO.. Contamos com vários anos, com vários agentes premiados. -Os consultores têm formação de alto nível nacional e internacional, como os melhores formadores nacionais e internacionais, em todas vertentes do negócio, e de forma gratuita para o pode ajudar com mais eficiência. “Enquanto usufrui dos prazeres da sua vida, compre e venda o seu imóvel de forma rápida e segura...” ONE house, ONE dream, ONE life (style) A Realty One Group, é a marca que mais cresce nos Estados Unidos, com mais de 17 anos, e quase 1.000 lojas e 20.000 colaboradores em 16 países, estando já aberto em Portugal, Espanha, Itália e em breve em França e Alemanha. O presidente da Realty One Group é o Vinnie Tracey, que foi presidente durante 40 anos de uma das marcas líderes mundiais, e é hoje é o Líder da Realty One Group, que com toda sua experiência esta a tornar a Realty One Group, uma das marcas Líderes nos Estados Unidos, e que já alguns anos, se espalhar para todo mundo. Motivos para escolher a ONE AS PESSOAS PRIMEIRO.. Contamos com vários anos, com vários agentes premiados. -Os consultores têm formação de alto nível nacional e internacional, como os melhores formadores nacionais e internacionais, em todas vertentes do negócio, e de forma gratuita para o pode ajudar com mais eficiência. “Enquanto usufrui dos prazeres da sua vida, compre e venda o seu imóvel de forma rápida e segura...” ONE house, ONE dream, ONE life (style) A Realty One Group, é a marca que mais cresce nos Estados Unidos, com mais de 17 anos, e quase 1.000 lojas e 20.000 colaboradores em 16 países, estando já aberto em Portugal, Espanha, Itália e em breve em França e Alemanha. O presidente da Realty One Group é o Vinnie Tracey, que foi presidente durante 40 anos de uma das marcas líderes mundiais, e é hoje é o Líder da Realty One Group, que com toda sua experiência esta a tornar a Realty One Group, uma das marcas Líderes nos Estados Unidos, e que já alguns anos, se espalhar para todo mundo. Motivos para escolher a ONE AS PESSOAS PRIMEIRO.. Contamos com vários anos, com vários agentes premiados. -Os consultores têm formação de alto nível nacional e internacional, como os melhores formadores nacionais e internacionais, em todas vertentes do negócio, e de forma gratuita para o pode ajudar com mais eficiência. “Enquanto usufrui dos prazeres da sua vida, compre e venda o seu imóvel de forma rápida e segura...” ONE house, ONE dream, ONE life (style) A Realty One Group, é a marca que mais cresce nos Estados Unidos, com mais de 17 anos, e quase 1.000 lojas e 20.000 colaboradores em 16 países, estando já aberto em Portugal, Espanha, Itália e em breve em França e Alemanha. O presidente da Realty One Group é o Vinnie Tracey, que foi presidente durante 40 anos de uma das marcas líderes mundiais, e é hoje é o Líder da Realty One Group, que com toda sua experiência esta a tornar a Realty One Group, uma das marcas Líderes nos Estados Unidos, e que já alguns anos, se espalhar para todo mundo. Motivos para escolher a ONE AS PESSOAS PRIMEIRO.. Contamos com vários anos, com vários agentes premiados. -Os consultores têm formação de alto nível nacional e internacional, como os melhores formadores nacionais e internacionais, em todas vertentes do negócio, e de forma gratuita para o pode ajudar com mais eficiência. “Enquanto usufrui dos prazeres da sua vida, compre e venda o seu imóvel de forma rápida e segura...” ONE house, ONE dream, ONE life (style) A Realty One Group, é a marca que mais cresce nos Estados Unidos, com mais de 17 anos, e quase 1.000 lojas e 20.000 colaboradores em 16 países, estando já aberto em Portugal, Espanha, Itália e em breve em França e Alemanha. O presidente da Realty One Group é o Vinnie Tracey, que foi presidente durante 40 anos de uma das marcas líderes mundiais, e é hoje é o Líder da Realty One Group, que com toda sua experiência esta a tornar a Realty One Group, uma das marcas Líderes nos Estados Unidos, e que já alguns anos, se espalhar para todo mundo. Motivos para escolher a ONE AS PESSOAS PRIMEIRO.. Contamos com vários anos, com vários agentes premiados. -Os consultores têm formação de alto nível nacional e internacional, como os melhores formadores nacionais e internacionais, em todas vertentes do negócio, e de forma gratuita para o pode ajudar com mais eficiência. “Enquanto usufrui dos prazeres da sua vida, compre e venda o seu imóvel de forma rápida e segura...” ONE house, ONE dream, ONE life (style) A Realty One Group, é a marca que mais cresce nos Estados Unidos, com mais de 17 anos, e quase 1.000 lojas e 20.000 colaboradores em 16 países, estando já aberto em Portugal, Espanha, Itália e em breve em França e Alemanha. O presidente da Realty One Group é o Vinnie Tracey, que foi presidente durante 40 anos de uma das marcas líderes mundiais, e é hoje é o Líder da Realty One Group, que com toda sua experiência esta a tornar a Realty One Group, uma das marcas Líderes nos Estados Unidos, e que já alguns anos, se espalhar para todo mundo. Motivos para escolher a ONE AS PESSOAS PRIMEIRO.. Contamos com vários anos, com vários agentes premiados. -Os consultores têm formação de alto nível nacional e internacional, como os melhores formadores nacionais e internacionais, em todas vertentes do negócio, e de forma gratuita para o pode ajudar com mais eficiência. “Enquanto usufrui dos prazeres da sua vida, compre e venda o seu imóvel de forma rápida e segura...” ONE house, ONE dream, ONE life (style) A Realty One Group, é a marca que mais cresce nos Estados Unidos, com mais de 17 anos, e quase 1.000 lojas e 20.000 colaboradores em 16 países, estando já aberto em Portugal, Espanha, Itália e em breve em França e Alemanha. O presidente da Realty One Group é o Vinnie Tracey, que foi presidente durante 40 anos de uma das marcas líderes mundiais, e é hoje é o Líder da Realty One Group, que com toda sua experiência esta a tornar a Realty One Group, uma das marcas Líderes nos Estados Unidos, e que já alguns anos, se espalhar para todo mundo. Motivos para escolher a ONE AS PESSOAS PRIMEIRO.. Contamos com vários anos, com vários agentes premiados. -Os consultores têm formação de alto nível nacional e internacional, como os melhores formadores nacionais e internacionais, em todas vertentes do negócio, e de forma gratuita para o pode ajudar com mais eficiência. “Enquanto usufrui dos prazeres da sua vida, compre e venda o seu imóvel de forma rápida e segura...” ONE house, ONE dream, ONE life (style) A Realty One Group, é a marca que mais cresce nos Estados Unidos, com mais de 17 anos, e quase 1.000 lojas e 20.000 colaboradores em 16 países, estando já aberto em Portugal, Espanha, Itália e em breve em França e Alemanha. O presidente da Realty One Group é o Vinnie Tracey, que foi presidente durante 40 anos de uma das marcas líderes mundiais, e é hoje é o Líder da Realty One Group, que com toda sua experiência esta a tornar a Realty One Group, uma das marcas Líderes nos Estados Unidos, e que já alguns anos, se espalhar para todo mundo. Motivos para escolher a ONE AS PESSOAS PRIMEIRO.. Contamos com vários anos, com vários agentes premiados. -Os consultores têm formação de alto nível nacional e internacional, como os melhores formadores nacionais e internacionais, em todas vertentes do negócio, e de forma gratuita para o pode ajudar com mais eficiência. “Enquanto usufrui dos prazeres da sua vida, compre e venda o seu imóvel de forma rápida e segura...” ONE house, ONE dream, ONE life (style) A Realty One Group, é a marca que mais cresce nos Estados Unidos, com mais de 17 anos, e quase 1.000 lojas e 20.000 colaboradores em 16 países, estando já aberto em Portugal, Espanha, Itália e em breve em França e Alemanha. O presidente da Realty One Group é o Vinnie Tracey, que foi presidente durante 40 anos de uma das marcas líderes mundiais, e é hoje é o Líder da Realty One Group, que com toda sua experiência esta a tornar a Realty One Group, uma das marcas Líderes nos Estados Unidos, e que já alguns anos, se espalhar para todo mundo. Motivos para escolher a ONE AS PESSOAS PRIMEIRO.. Contamos com vários anos, com vários agentes premiados. -Os consultores têm formação de alto nível nacional e internacional, como os melhores formadores nacionais e internacionais, em todas vertentes do negócio, e de forma gratuita para o pode ajudar com mais eficiência. “Enquanto usufrui dos prazeres da sua vida, compre e venda o seu imóvel de forma rápida e segura...” ONE house, ONE dream, ONE life (style) A Realty One Group, é a marca que mais cresce nos Estados Unidos, com mais de 17 anos, e quase 1.000 lojas e 20.000 colaboradores em 16 países, estando já aberto em Portugal, Espanha, Itália e em breve em França e Alemanha. O presidente da Realty One Group é o Vinnie Tracey, que foi presidente durante 40 anos de uma das marcas líderes mundiais, e é hoje é o Líder da Realty One Group, que com toda sua experiência esta a tornar a Realty One Group, uma das marcas Líderes nos Estados Unidos, e que já alguns anos, se espalhar para todo mundo. Motivos para escolher a ONE AS PESSOAS PRIMEIRO.. Contamos com vários anos, com vários agentes premiados. -Os consultores têm formação de alto nível nacional e internacional, como os melhores formadores nacionais e internacionais, em todas vertentes do negócio, e de forma gratuita para o pode ajudar com mais eficiência. “Enquanto usufrui dos prazeres da sua vida, compre e venda o seu imóvel de forma rápida e segura...” ONE house, ONE dream, ONE life (style) A Realty One Group, é a marca que mais cresce nos Estados Unidos, com mais de 17 anos, e quase 1.000 lojas e 20.000 colaboradores em 16 países, estando já aberto em Portugal, Espanha, Itália e em breve em França e Alemanha. O presidente da Realty One Group é o Vinnie Tracey, que foi presidente durante 40 anos de uma das marcas líderes mundiais, e é hoje é o Líder da Realty One Group, que com toda sua experiência esta a tornar a Realty One Group, uma das marcas Líderes nos Estados Unidos, e que já alguns anos, se espalhar para todo mundo. Motivos para escolher a ONE AS PESSOAS PRIMEIRO.. Contamos com vários anos, com vários agentes premiados. -Os consultores têm formação de alto nível nacional e internacional, como os melhores formadores nacionais e internacionais, em todas vertentes do negócio, e de forma gratuita para o pode ajudar com mais eficiência. “Enquanto usufrui dos prazeres da sua vida, compre e venda o seu imóvel de forma rápida e segura...” ONE house, ONE dream, ONE life (style) A Realty One Group, é a marca que mais cresce nos Estados Unidos, com mais de 17 anos, e quase 1.000 lojas e 20.000 colaboradores em 16 países, estando já aberto em Portugal, Espanha, Itália e em breve em França e Alemanha. O presidente da Realty One Group é o Vinnie Tracey, que foi presidente durante 40 anos de uma das marcas líderes mundiais, e é hoje é o Líder da Realty One Group, que com toda sua experiência esta a tornar a Realty One Group, uma das marcas Líderes nos Estados Unidos, e que já alguns anos, se espalhar para todo mundo. Motivos para escolher a ONE AS PESSOAS PRIMEIRO.. Contamos com vários anos, com vários agentes premiados. -Os consultores têm formação de alto nível nacional e internacional, como os melhores formadores nacionais e internacionais, em todas vertentes do negócio, e de forma gratuita para o pode ajudar com mais eficiência. “Enquanto usufrui dos prazeres da sua vida, compre e venda o seu imóvel de forma rápida e segura...” ONE house, ONE dream, ONE life (style)
AMI: 8815
Ref. Externa: ONE0011018-272
Id: 1477804
Inicie sessão para guardar este imóvel e aceder à sua lista de favoritos em qualquer dispositivo.
Área de terreno : 299 m²
Bem-vindo à Encosta do Mosteiro, um novo e moderno loteamento com projeto aprovado de um empreendimento que está prestes a nascer em uma localização privilegiada em Oliveira Santa maria, Vila Nova de Famalicão. Com uma área notável e vistas deslumbrantes, este projeto oferece um conceito inovador e sustentável, criado para proporcionar uma experiência de vida excepcional. ??????????????? ?? ??????????: ????????çã? ??????é????: Situado em pleno centro da freguesia de Oliveira Santa Maria em Vila Nova de Famalicão, o loteamento conta com excelentes acessos à VIM, à entrada da A7 em Riba de Ave (5 minutos) e a entrada de Seide (10 minutos). A Encosta do Mosteiro oferece a combinação perfeita entre tranquilidade e acesso a todas as comodidades urbanas. Com distância das principais cidades : ????? (20 minutos), ????? (15 minutos), ??????ã?? ( 10 minutos), ???????ã? (10 minutos) e ????? ????? ( 15 minutos). Os seus futuros moradores poderão desfrutar de uma excelente qualidade de vida. ????? ??????: O empreendimento possui 30 lotes espaçosos, ideais para a construção de 30 moradias exclusivas e modernas. Cada lote foi cuidadosamente planejado para garantir o máximo de espaço e privacidade para os futuros moradores. ??çõ?? ?? ????????:: A Encosta do Mosteiro (lotes) oferece uma seleção diversificada para a construção de moradias individuais térreas, em banda e geminadas, projetadas para atender às necessidades e preferências de diferentes estilos de vida. Seja qual for o seu desejo, encontrará uma casa que reflete a sua personalidade única. ?????????????? ????????: Pensando no conforto e comodidade dos residentes, a Encosta do Mosteiro contará com uma infraestrutura completa, incluindo vias bem planeadas, iluminação moderna, áreas verdes cuidadas e acesso conveniente aos principais serviços e comércios da região. ??????? ? ??? ?????: Se procura uma vida tranquila e ao mesmo tempo em contacto com todas as facilidades urbanas, a Encosta do Mosteiro é o lugar ideal para si e para a sua família. Garanta o seu lugar nesta urbanização única e faça parte de uma experiência de vida verdadeiramente especial. Não perca esta oportunidade de investir em um novo começo na Encosta do Mosteiro em Oliveira Santa Maria, Vila Nova de Famalicão. Entre em contato para mais informações e reservas. Motivos para escolher o Grupo Sucesso: No Grupo Sucesso - AS PESSOAS PRIMEIRO... O Grupo Sucesso conta há vários anos, com vários agentes premiados. Faça parte desta equipa de sucesso! Envie o seu currículo para [email protected] ou contacte-nos através do 914 559 946. -Com a experiência única no mercado imobiliário com mais de 20 anos e 18.000 negócios, os nossos consultores podem dar-lhe o melhor serviço e acompanhamento, levando-o a escolher o melhor caminho para as suas necessidades. -Os consultores têm formação de alto nível, nacional e internacional, com os melhores formadores nacionais e internacionais, em todas as vertentes do negócio, e de forma gratuita para o poder ajudar com mais eficiência. -Fomos a primeira empresa nacional que teve serviço 360, onde pode fazer tudo nas nossas lojas, desde o início da compra à fase da escritura, quer seja a pronto pagamento ou com financiamento, com 7 pessoas no departamento processual e 3 advogados, para que tenha todo o apoio necessário, e possa usufruir dos prazeres da vida com a sua família. “Enquanto usufrui dos prazeres da sua vida, compre e venda o seu imóvel de forma rápida e segura...” ONE house, ONE dream, ONE life (style) A Realty One Group, é a marca que mais cresce nos Estados Unidos, com mais de 17 anos, e quase 1.000 lojas e 20.000 colaboradores em 16 países, estando já aberto em Portugal, Espanha, Itália e em breve em França e Alemanha. O presidente da Realty One Group é o Vinnie Tracey, que foi presidente durante 40 anos de uma das marcas líderes mundiais, e é hoje é o Líder da Realty One Group, que com toda sua experiência esta a tornar a Realty One Group, uma das marcas Líderes nos Estados Unidos, e que já alguns anos, se espalhar para todo mundo. Motivos para escolher a ONE AS PESSOAS PRIMEIRO.. Contamos com vários anos, com vários agentes premiados. -Os consultores têm formação de alto nível nacional e internacional, como os melhores formadores nacionais e internacionais, em todas vertentes do negócio, e de forma gratuita para o pode ajudar com mais eficiência. “Enquanto usufrui dos prazeres da sua vida, compre e venda o seu imóvel de forma rápida e segura...” ONE house, ONE dream, ONE life (style) A Realty One Group, é a marca que mais cresce nos Estados Unidos, com mais de 17 anos, e quase 1.000 lojas e 20.000 colaboradores em 16 países, estando já aberto em Portugal, Espanha, Itália e em breve em França e Alemanha. O presidente da Realty One Group é o Vinnie Tracey, que foi presidente durante 40 anos de uma das marcas líderes mundiais, e é hoje é o Líder da Realty One Group, que com toda sua experiência esta a tornar a Realty One Group, uma das marcas Líderes nos Estados Unidos, e que já alguns anos, se espalhar para todo mundo. Motivos para escolher a ONE AS PESSOAS PRIMEIRO.. Contamos com vários anos, com vários agentes premiados. -Os consultores têm formação de alto nível nacional e internacional, como os melhores formadores nacionais e internacionais, em todas vertentes do negócio, e de forma gratuita para o pode ajudar com mais eficiência. “Enquanto usufrui dos prazeres da sua vida, compre e venda o seu imóvel de forma rápida e segura...” ONE house, ONE dream, ONE life (style) A Realty One Group, é a marca que mais cresce nos Estados Unidos, com mais de 17 anos, e quase 1.000 lojas e 20.000 colaboradores em 16 países, estando já aberto em Portugal, Espanha, Itália e em breve em França e Alemanha. O presidente da Realty One Group é o Vinnie Tracey, que foi presidente durante 40 anos de uma das marcas líderes mundiais, e é hoje é o Líder da Realty One Group, que com toda sua experiência esta a tornar a Realty One Group, uma das marcas Líderes nos Estados Unidos, e que já alguns anos, se espalhar para todo mundo. Motivos para escolher a ONE AS PESSOAS PRIMEIRO.. Contamos com vários anos, com vários agentes premiados. -Os consultores têm formação de alto nível nacional e internacional, como os melhores formadores nacionais e internacionais, em todas vertentes do negócio, e de forma gratuita para o pode ajudar com mais eficiência. “Enquanto usufrui dos prazeres da sua vida, compre e venda o seu imóvel de forma rápida e segura...” ONE house, ONE dream, ONE life (style) A Realty One Group, é a marca que mais cresce nos Estados Unidos, com mais de 17 anos, e quase 1.000 lojas e 20.000 colaboradores em 16 países, estando já aberto em Portugal, Espanha, Itália e em breve em França e Alemanha. O presidente da Realty One Group é o Vinnie Tracey, que foi presidente durante 40 anos de uma das marcas líderes mundiais, e é hoje é o Líder da Realty One Group, que com toda sua experiência esta a tornar a Realty One Group, uma das marcas Líderes nos Estados Unidos, e que já alguns anos, se espalhar para todo mundo. Motivos para escolher a ONE AS PESSOAS PRIMEIRO.. Contamos com vários anos, com vários agentes premiados. -Os consultores têm formação de alto nível nacional e internacional, como os melhores formadores nacionais e internacionais, em todas vertentes do negócio, e de forma gratuita para o pode ajudar com mais eficiência. “Enquanto usufrui dos prazeres da sua vida, compre e venda o seu imóvel de forma rápida e segura...” ONE house, ONE dream, ONE life (style)
AMI: 8815
Ref. Externa: ONE0011018-261
Id: 1477784
Inicie sessão para guardar este imóvel e aceder à sua lista de favoritos em qualquer dispositivo.
Área de terreno : 467 m²
Bem-vindo à Encosta do Mosteiro, um novo e moderno loteamento com projeto aprovado de um empreendimento que está prestes a nascer em uma localização privilegiada em Oliveira Santa maria, Vila Nova de Famalicão. Com uma área notável e vistas deslumbrantes, este projeto oferece um conceito inovador e sustentável, criado para proporcionar uma experiência de vida excepcional. ??????????????? ?? ??????????: ????????çã? ??????é????: Situado em pleno centro da freguesia de Oliveira Santa Maria em Vila Nova de Famalicão, o loteamento conta com excelentes acessos à VIM, à entrada da A7 em Riba de Ave (5 minutos) e a entrada de Seide (10 minutos). A Encosta do Mosteiro oferece a combinação perfeita entre tranquilidade e acesso a todas as comodidades urbanas. Com distância das principais cidades : ????? (20 minutos), ????? (15 minutos), ??????ã?? ( 10 minutos), ???????ã? (10 minutos) e ????? ????? ( 15 minutos). Os seus futuros moradores poderão desfrutar de uma excelente qualidade de vida. ????? ??????: O empreendimento possui 30 lotes espaçosos, ideais para a construção de 30 moradias exclusivas e modernas. Cada lote foi cuidadosamente planejado para garantir o máximo de espaço e privacidade para os futuros moradores. ??çõ?? ?? ????????:: A Encosta do Mosteiro (lotes) oferece uma seleção diversificada para a construção de moradias individuais térreas, em banda e geminadas, projetadas para atender às necessidades e preferências de diferentes estilos de vida. Seja qual for o seu desejo, encontrará uma casa que reflete a sua personalidade única. ?????????????? ????????: Pensando no conforto e comodidade dos residentes, a Encosta do Mosteiro contará com uma infraestrutura completa, incluindo vias bem planeadas, iluminação moderna, áreas verdes cuidadas e acesso conveniente aos principais serviços e comércios da região. ??????? ? ??? ?????: Se procura uma vida tranquila e ao mesmo tempo em contacto com todas as facilidades urbanas, a Encosta do Mosteiro é o lugar ideal para si e para a sua família. Garanta o seu lugar nesta urbanização única e faça parte de uma experiência de vida verdadeiramente especial. Não perca esta oportunidade de investir em um novo começo na Encosta do Mosteiro em Oliveira Santa Maria, Vila Nova de Famalicão. Entre em contato para mais informações e reservas. Motivos para escolher o Grupo Sucesso: No Grupo Sucesso - AS PESSOAS PRIMEIRO... O Grupo Sucesso conta há vários anos, com vários agentes premiados. Faça parte desta equipa de sucesso! Envie o seu currículo para [email protected] ou contacte-nos através do 914 559 946. -Com a experiência única no mercado imobiliário com mais de 20 anos e 18.000 negócios, os nossos consultores podem dar-lhe o melhor serviço e acompanhamento, levando-o a escolher o melhor caminho para as suas necessidades. -Os consultores têm formação de alto nível, nacional e internacional, com os melhores formadores nacionais e internacionais, em todas as vertentes do negócio, e de forma gratuita para o poder ajudar com mais eficiência. -Fomos a primeira empresa nacional que teve serviço 360, onde pode fazer tudo nas nossas lojas, desde o início da compra à fase da escritura, quer seja a pronto pagamento ou com financiamento, com 7 pessoas no departamento processual e 3 advogados, para que tenha todo o apoio necessário, e possa usufruir dos prazeres da vida com a sua família. “Enquanto usufrui dos prazeres da sua vida, compre e venda o seu imóvel de forma rápida e segura...” ONE house, ONE dream, ONE life (style) A Realty One Group, é a marca que mais cresce nos Estados Unidos, com mais de 17 anos, e quase 1.000 lojas e 20.000 colaboradores em 16 países, estando já aberto em Portugal, Espanha, Itália e em breve em França e Alemanha. O presidente da Realty One Group é o Vinnie Tracey, que foi presidente durante 40 anos de uma das marcas líderes mundiais, e é hoje é o Líder da Realty One Group, que com toda sua experiência esta a tornar a Realty One Group, uma das marcas Líderes nos Estados Unidos, e que já alguns anos, se espalhar para todo mundo. Motivos para escolher a ONE AS PESSOAS PRIMEIRO.. Contamos com vários anos, com vários agentes premiados. -Os consultores têm formação de alto nível nacional e internacional, como os melhores formadores nacionais e internacionais, em todas vertentes do negócio, e de forma gratuita para o pode ajudar com mais eficiência. “Enquanto usufrui dos prazeres da sua vida, compre e venda o seu imóvel de forma rápida e segura...” ONE house, ONE dream, ONE life (style) A Realty One Group, é a marca que mais cresce nos Estados Unidos, com mais de 17 anos, e quase 1.000 lojas e 20.000 colaboradores em 16 países, estando já aberto em Portugal, Espanha, Itália e em breve em França e Alemanha. O presidente da Realty One Group é o Vinnie Tracey, que foi presidente durante 40 anos de uma das marcas líderes mundiais, e é hoje é o Líder da Realty One Group, que com toda sua experiência esta a tornar a Realty One Group, uma das marcas Líderes nos Estados Unidos, e que já alguns anos, se espalhar para todo mundo. Motivos para escolher a ONE AS PESSOAS PRIMEIRO.. Contamos com vários anos, com vários agentes premiados. -Os consultores têm formação de alto nível nacional e internacional, como os melhores formadores nacionais e internacionais, em todas vertentes do negócio, e de forma gratuita para o pode ajudar com mais eficiência. “Enquanto usufrui dos prazeres da sua vida, compre e venda o seu imóvel de forma rápida e segura...” ONE house, ONE dream, ONE life (style) A Realty One Group, é a marca que mais cresce nos Estados Unidos, com mais de 17 anos, e quase 1.000 lojas e 20.000 colaboradores em 16 países, estando já aberto em Portugal, Espanha, Itália e em breve em França e Alemanha. O presidente da Realty One Group é o Vinnie Tracey, que foi presidente durante 40 anos de uma das marcas líderes mundiais, e é hoje é o Líder da Realty One Group, que com toda sua experiência esta a tornar a Realty One Group, uma das marcas Líderes nos Estados Unidos, e que já alguns anos, se espalhar para todo mundo. Motivos para escolher a ONE AS PESSOAS PRIMEIRO.. Contamos com vários anos, com vários agentes premiados. -Os consultores têm formação de alto nível nacional e internacional, como os melhores formadores nacionais e internacionais, em todas vertentes do negócio, e de forma gratuita para o pode ajudar com mais eficiência. “Enquanto usufrui dos prazeres da sua vida, compre e venda o seu imóvel de forma rápida e segura...” ONE house, ONE dream, ONE life (style) A Realty One Group, é a marca que mais cresce nos Estados Unidos, com mais de 17 anos, e quase 1.000 lojas e 20.000 colaboradores em 16 países, estando já aberto em Portugal, Espanha, Itália e em breve em França e Alemanha. O presidente da Realty One Group é o Vinnie Tracey, que foi presidente durante 40 anos de uma das marcas líderes mundiais, e é hoje é o Líder da Realty One Group, que com toda sua experiência esta a tornar a Realty One Group, uma das marcas Líderes nos Estados Unidos, e que já alguns anos, se espalhar para todo mundo. Motivos para escolher a ONE AS PESSOAS PRIMEIRO.. Contamos com vários anos, com vários agentes premiados. -Os consultores têm formação de alto nível nacional e internacional, como os melhores formadores nacionais e internacionais, em todas vertentes do negócio, e de forma gratuita para o pode ajudar com mais eficiência. “Enquanto usufrui dos prazeres da sua vida, compre e venda o seu imóvel de forma rápida e segura...” ONE house, ONE dream, ONE life (style) A Realty One Group, é a marca que mais cresce nos Estados Unidos, com mais de 17 anos, e quase 1.000 lojas e 20.000 colaboradores em 16 países, estando já aberto em Portugal, Espanha, Itália e em breve em França e Alemanha. O presidente da Realty One Group é o Vinnie Tracey, que foi presidente durante 40 anos de uma das marcas líderes mundiais, e é hoje é o Líder da Realty One Group, que com toda sua experiência esta a tornar a Realty One Group, uma das marcas Líderes nos Estados Unidos, e que já alguns anos, se espalhar para todo mundo. Motivos para escolher a ONE AS PESSOAS PRIMEIRO.. Contamos com vários anos, com vários agentes premiados. -Os consultores têm formação de alto nível nacional e internacional, como os melhores formadores nacionais e internacionais, em todas vertentes do negócio, e de forma gratuita para o pode ajudar com mais eficiência. “Enquanto usufrui dos prazeres da sua vida, compre e venda o seu imóvel de forma rápida e segura...” ONE house, ONE dream, ONE life (style) A Realty One Group, é a marca que mais cresce nos Estados Unidos, com mais de 17 anos, e quase 1.000 lojas e 20.000 colaboradores em 16 países, estando já aberto em Portugal, Espanha, Itália e em breve em França e Alemanha. O presidente da Realty One Group é o Vinnie Tracey, que foi presidente durante 40 anos de uma das marcas líderes mundiais, e é hoje é o Líder da Realty One Group, que com toda sua experiência esta a tornar a Realty One Group, uma das marcas Líderes nos Estados Unidos, e que já alguns anos, se espalhar para todo mundo. Motivos para escolher a ONE AS PESSOAS PRIMEIRO.. Contamos com vários anos, com vários agentes premiados. -Os consultores têm formação de alto nível nacional e internacional, como os melhores formadores nacionais e internacionais, em todas vertentes do negócio, e de forma gratuita para o pode ajudar com mais eficiência. “Enquanto usufrui dos prazeres da sua vida, compre e venda o seu imóvel de forma rápida e segura...” ONE house, ONE dream, ONE life (style) A Realty One Group, é a marca que mais cresce nos Estados Unidos, com mais de 17 anos, e quase 1.000 lojas e 20.000 colaboradores em 16 países, estando já aberto em Portugal, Espanha, Itália e em breve em França e Alemanha. O presidente da Realty One Group é o Vinnie Tracey, que foi presidente durante 40 anos de uma das marcas líderes mundiais, e é hoje é o Líder da Realty One Group, que com toda sua experiência esta a tornar a Realty One Group, uma das marcas Líderes nos Estados Unidos, e que já alguns anos, se espalhar para todo mundo. Motivos para escolher a ONE AS PESSOAS PRIMEIRO.. Contamos com vários anos, com vários agentes premiados. -Os consultores têm formação de alto nível nacional e internacional, como os melhores formadores nacionais e internacionais, em todas vertentes do negócio, e de forma gratuita para o pode ajudar com mais eficiência. “Enquanto usufrui dos prazeres da sua vida, compre e venda o seu imóvel de forma rápida e segura...” ONE house, ONE dream, ONE life (style) A Realty One Group, é a marca que mais cresce nos Estados Unidos, com mais de 17 anos, e quase 1.000 lojas e 20.000 colaboradores em 16 países, estando já aberto em Portugal, Espanha, Itália e em breve em França e Alemanha. O presidente da Realty One Group é o Vinnie Tracey, que foi presidente durante 40 anos de uma das marcas líderes mundiais, e é hoje é o Líder da Realty One Group, que com toda sua experiência esta a tornar a Realty One Group, uma das marcas Líderes nos Estados Unidos, e que já alguns anos, se espalhar para todo mundo. Motivos para escolher a ONE AS PESSOAS PRIMEIRO.. Contamos com vários anos, com vários agentes premiados. -Os consultores têm formação de alto nível nacional e internacional, como os melhores formadores nacionais e internacionais, em todas vertentes do negócio, e de forma gratuita para o pode ajudar com mais eficiência. “Enquanto usufrui dos prazeres da sua vida, compre e venda o seu imóvel de forma rápida e segura...” ONE house, ONE dream, ONE life (style) A Realty One Group, é a marca que mais cresce nos Estados Unidos, com mais de 17 anos, e quase 1.000 lojas e 20.000 colaboradores em 16 países, estando já aberto em Portugal, Espanha, Itália e em breve em França e Alemanha. O presidente da Realty One Group é o Vinnie Tracey, que foi presidente durante 40 anos de uma das marcas líderes mundiais, e é hoje é o Líder da Realty One Group, que com toda sua experiência esta a tornar a Realty One Group, uma das marcas Líderes nos Estados Unidos, e que já alguns anos, se espalhar para todo mundo. Motivos para escolher a ONE AS PESSOAS PRIMEIRO.. Contamos com vários anos, com vários agentes premiados. -Os consultores têm formação de alto nível nacional e internacional, como os melhores formadores nacionais e internacionais, em todas vertentes do negócio, e de forma gratuita para o pode ajudar com mais eficiência. “Enquanto usufrui dos prazeres da sua vida, compre e venda o seu imóvel de forma rápida e segura...” ONE house, ONE dream, ONE life (style) A Realty One Group, é a marca que mais cresce nos Estados Unidos, com mais de 17 anos, e quase 1.000 lojas e 20.000 colaboradores em 16 países, estando já aberto em Portugal, Espanha, Itália e em breve em França e Alemanha. O presidente da Realty One Group é o Vinnie Tracey, que foi presidente durante 40 anos de uma das marcas líderes mundiais, e é hoje é o Líder da Realty One Group, que com toda sua experiência esta a tornar a Realty One Group, uma das marcas Líderes nos Estados Unidos, e que já alguns anos, se espalhar para todo mundo. Motivos para escolher a ONE AS PESSOAS PRIMEIRO.. Contamos com vários anos, com vários agentes premiados. -Os consultores têm formação de alto nível nacional e internacional, como os melhores formadores nacionais e internacionais, em todas vertentes do negócio, e de forma gratuita para o pode ajudar com mais eficiência. “Enquanto usufrui dos prazeres da sua vida, compre e venda o seu imóvel de forma rápida e segura...” ONE house, ONE dream, ONE life (style) A Realty One Group, é a marca que mais cresce nos Estados Unidos, com mais de 17 anos, e quase 1.000 lojas e 20.000 colaboradores em 16 países, estando já aberto em Portugal, Espanha, Itália e em breve em França e Alemanha. O presidente da Realty One Group é o Vinnie Tracey, que foi presidente durante 40 anos de uma das marcas líderes mundiais, e é hoje é o Líder da Realty One Group, que com toda sua experiência esta a tornar a Realty One Group, uma das marcas Líderes nos Estados Unidos, e que já alguns anos, se espalhar para todo mundo. Motivos para escolher a ONE AS PESSOAS PRIMEIRO.. Contamos com vários anos, com vários agentes premiados. -Os consultores têm formação de alto nível nacional e internacional, como os melhores formadores nacionais e internacionais, em todas vertentes do negócio, e de forma gratuita para o pode ajudar com mais eficiência. “Enquanto usufrui dos prazeres da sua vida, compre e venda o seu imóvel de forma rápida e segura...” ONE house, ONE dream, ONE life (style) A Realty One Group, é a marca que mais cresce nos Estados Unidos, com mais de 17 anos, e quase 1.000 lojas e 20.000 colaboradores em 16 países, estando já aberto em Portugal, Espanha, Itália e em breve em França e Alemanha. O presidente da Realty One Group é o Vinnie Tracey, que foi presidente durante 40 anos de uma das marcas líderes mundiais, e é hoje é o Líder da Realty One Group, que com toda sua experiência esta a tornar a Realty One Group, uma das marcas Líderes nos Estados Unidos, e que já alguns anos, se espalhar para todo mundo. Motivos para escolher a ONE AS PESSOAS PRIMEIRO.. Contamos com vários anos, com vários agentes premiados. -Os consultores têm formação de alto nível nacional e internacional, como os melhores formadores nacionais e internacionais, em todas vertentes do negócio, e de forma gratuita para o pode ajudar com mais eficiência. “Enquanto usufrui dos prazeres da sua vida, compre e venda o seu imóvel de forma rápida e segura...” ONE house, ONE dream, ONE life (style) A Realty One Group, é a marca que mais cresce nos Estados Unidos, com mais de 17 anos, e quase 1.000 lojas e 20.000 colaboradores em 16 países, estando já aberto em Portugal, Espanha, Itália e em breve em França e Alemanha. O presidente da Realty One Group é o Vinnie Tracey, que foi presidente durante 40 anos de uma das marcas líderes mundiais, e é hoje é o Líder da Realty One Group, que com toda sua experiência esta a tornar a Realty One Group, uma das marcas Líderes nos Estados Unidos, e que já alguns anos, se espalhar para todo mundo. Motivos para escolher a ONE AS PESSOAS PRIMEIRO.. Contamos com vários anos, com vários agentes premiados. -Os consultores têm formação de alto nível nacional e internacional, como os melhores formadores nacionais e internacionais, em todas vertentes do negócio, e de forma gratuita para o pode ajudar com mais eficiência. “Enquanto usufrui dos prazeres da sua vida, compre e venda o seu imóvel de forma rápida e segura...” ONE house, ONE dream, ONE life (style) A Realty One Group, é a marca que mais cresce nos Estados Unidos, com mais de 17 anos, e quase 1.000 lojas e 20.000 colaboradores em 16 países, estando já aberto em Portugal, Espanha, Itália e em breve em França e Alemanha. O presidente da Realty One Group é o Vinnie Tracey, que foi presidente durante 40 anos de uma das marcas líderes mundiais, e é hoje é o Líder da Realty One Group, que com toda sua experiência esta a tornar a Realty One Group, uma das marcas Líderes nos Estados Unidos, e que já alguns anos, se espalhar para todo mundo. Motivos para escolher a ONE AS PESSOAS PRIMEIRO.. Contamos com vários anos, com vários agentes premiados. -Os consultores têm formação de alto nível nacional e internacional, como os melhores formadores nacionais e internacionais, em todas vertentes do negócio, e de forma gratuita para o pode ajudar com mais eficiência. “Enquanto usufrui dos prazeres da sua vida, compre e venda o seu imóvel de forma rápida e segura...” ONE house, ONE dream, ONE life (style) A Realty One Group, é a marca que mais cresce nos Estados Unidos, com mais de 17 anos, e quase 1.000 lojas e 20.000 colaboradores em 16 países, estando já aberto em Portugal, Espanha, Itália e em breve em França e Alemanha. O presidente da Realty One Group é o Vinnie Tracey, que foi presidente durante 40 anos de uma das marcas líderes mundiais, e é hoje é o Líder da Realty One Group, que com toda sua experiência esta a tornar a Realty One Group, uma das marcas Líderes nos Estados Unidos, e que já alguns anos, se espalhar para todo mundo. Motivos para escolher a ONE AS PESSOAS PRIMEIRO.. Contamos com vários anos, com vários agentes premiados. -Os consultores têm formação de alto nível nacional e internacional, como os melhores formadores nacionais e internacionais, em todas vertentes do negócio, e de forma gratuita para o pode ajudar com mais eficiência. “Enquanto usufrui dos prazeres da sua vida, compre e venda o seu imóvel de forma rápida e segura...” ONE house, ONE dream, ONE life (style) A Realty One Group, é a marca que mais cresce nos Estados Unidos, com mais de 17 anos, e quase 1.000 lojas e 20.000 colaboradores em 16 países, estando já aberto em Portugal, Espanha, Itália e em breve em França e Alemanha. O presidente da Realty One Group é o Vinnie Tracey, que foi presidente durante 40 anos de uma das marcas líderes mundiais, e é hoje é o Líder da Realty One Group, que com toda sua experiência esta a tornar a Realty One Group, uma das marcas Líderes nos Estados Unidos, e que já alguns anos, se espalhar para todo mundo. Motivos para escolher a ONE AS PESSOAS PRIMEIRO.. Contamos com vários anos, com vários agentes premiados. -Os consultores têm formação de alto nível nacional e internacional, como os melhores formadores nacionais e internacionais, em todas vertentes do negócio, e de forma gratuita para o pode ajudar com mais eficiência. “Enquanto usufrui dos prazeres da sua vida, compre e venda o seu imóvel de forma rápida e segura...” ONE house, ONE dream, ONE life (style)
AMI: 8815
Ref. Externa: ONE0011018-274
Id: 1477781
Inicie sessão para guardar este imóvel e aceder à sua lista de favoritos em qualquer dispositivo.
Área de terreno : 304 m²
Bem-vindo à Encosta do Mosteiro, um novo e moderno loteamento com projeto aprovado de um empreendimento que está prestes a nascer em uma localização privilegiada em Oliveira Santa maria, Vila Nova de Famalicão. Com uma área notável e vistas deslumbrantes, este projeto oferece um conceito inovador e sustentável, criado para proporcionar uma experiência de vida excepcional. ??????????????? ?? ??????????: ????????çã? ??????é????: Situado em pleno centro da freguesia de Oliveira Santa Maria em Vila Nova de Famalicão, o loteamento conta com excelentes acessos à VIM, à entrada da A7 em Riba de Ave (5 minutos) e a entrada de Seide (10 minutos). A Encosta do Mosteiro oferece a combinação perfeita entre tranquilidade e acesso a todas as comodidades urbanas. Com distância das principais cidades : ????? (20 minutos), ????? (15 minutos), ??????ã?? ( 10 minutos), ???????ã? (10 minutos) e ????? ????? ( 15 minutos). Os seus futuros moradores poderão desfrutar de uma excelente qualidade de vida. ????? ??????: O empreendimento possui 30 lotes espaçosos, ideais para a construção de 30 moradias exclusivas e modernas. Cada lote foi cuidadosamente planejado para garantir o máximo de espaço e privacidade para os futuros moradores. ??çõ?? ?? ????????:: A Encosta do Mosteiro (lotes) oferece uma seleção diversificada para a construção de moradias individuais térreas, em banda e geminadas, projetadas para atender às necessidades e preferências de diferentes estilos de vida. Seja qual for o seu desejo, encontrará uma casa que reflete a sua personalidade única. ?????????????? ????????: Pensando no conforto e comodidade dos residentes, a Encosta do Mosteiro contará com uma infraestrutura completa, incluindo vias bem planeadas, iluminação moderna, áreas verdes cuidadas e acesso conveniente aos principais serviços e comércios da região. ??????? ? ??? ?????: Se procura uma vida tranquila e ao mesmo tempo em contacto com todas as facilidades urbanas, a Encosta do Mosteiro é o lugar ideal para si e para a sua família. Garanta o seu lugar nesta urbanização única e faça parte de uma experiência de vida verdadeiramente especial. Não perca esta oportunidade de investir em um novo começo na Encosta do Mosteiro em Oliveira Santa Maria, Vila Nova de Famalicão. Entre em contato para mais informações e reservas. Motivos para escolher o Grupo Sucesso: No Grupo Sucesso - AS PESSOAS PRIMEIRO... O Grupo Sucesso conta há vários anos, com vários agentes premiados. Faça parte desta equipa de sucesso! Envie o seu currículo para [email protected] ou contacte-nos através do 914 559 946. -Com a experiência única no mercado imobiliário com mais de 20 anos e 18.000 negócios, os nossos consultores podem dar-lhe o melhor serviço e acompanhamento, levando-o a escolher o melhor caminho para as suas necessidades. -Os consultores têm formação de alto nível, nacional e internacional, com os melhores formadores nacionais e internacionais, em todas as vertentes do negócio, e de forma gratuita para o poder ajudar com mais eficiência. -Fomos a primeira empresa nacional que teve serviço 360, onde pode fazer tudo nas nossas lojas, desde o início da compra à fase da escritura, quer seja a pronto pagamento ou com financiamento, com 7 pessoas no departamento processual e 3 advogados, para que tenha todo o apoio necessário, e possa usufruir dos prazeres da vida com a sua família. “Enquanto usufrui dos prazeres da sua vida, compre e venda o seu imóvel de forma rápida e segura...” ONE house, ONE dream, ONE life (style) A Realty One Group, é a marca que mais cresce nos Estados Unidos, com mais de 17 anos, e quase 1.000 lojas e 20.000 colaboradores em 16 países, estando já aberto em Portugal, Espanha, Itália e em breve em França e Alemanha. O presidente da Realty One Group é o Vinnie Tracey, que foi presidente durante 40 anos de uma das marcas líderes mundiais, e é hoje é o Líder da Realty One Group, que com toda sua experiência esta a tornar a Realty One Group, uma das marcas Líderes nos Estados Unidos, e que já alguns anos, se espalhar para todo mundo. Motivos para escolher a ONE AS PESSOAS PRIMEIRO.. Contamos com vários anos, com vários agentes premiados. -Os consultores têm formação de alto nível nacional e internacional, como os melhores formadores nacionais e internacionais, em todas vertentes do negócio, e de forma gratuita para o pode ajudar com mais eficiência. “Enquanto usufrui dos prazeres da sua vida, compre e venda o seu imóvel de forma rápida e segura...” ONE house, ONE dream, ONE life (style) A Realty One Group, é a marca que mais cresce nos Estados Unidos, com mais de 17 anos, e quase 1.000 lojas e 20.000 colaboradores em 16 países, estando já aberto em Portugal, Espanha, Itália e em breve em França e Alemanha. O presidente da Realty One Group é o Vinnie Tracey, que foi presidente durante 40 anos de uma das marcas líderes mundiais, e é hoje é o Líder da Realty One Group, que com toda sua experiência esta a tornar a Realty One Group, uma das marcas Líderes nos Estados Unidos, e que já alguns anos, se espalhar para todo mundo. Motivos para escolher a ONE AS PESSOAS PRIMEIRO.. Contamos com vários anos, com vários agentes premiados. -Os consultores têm formação de alto nível nacional e internacional, como os melhores formadores nacionais e internacionais, em todas vertentes do negócio, e de forma gratuita para o pode ajudar com mais eficiência. “Enquanto usufrui dos prazeres da sua vida, compre e venda o seu imóvel de forma rápida e segura...” ONE house, ONE dream, ONE life (style) A Realty One Group, é a marca que mais cresce nos Estados Unidos, com mais de 17 anos, e quase 1.000 lojas e 20.000 colaboradores em 16 países, estando já aberto em Portugal, Espanha, Itália e em breve em França e Alemanha. O presidente da Realty One Group é o Vinnie Tracey, que foi presidente durante 40 anos de uma das marcas líderes mundiais, e é hoje é o Líder da Realty One Group, que com toda sua experiência esta a tornar a Realty One Group, uma das marcas Líderes nos Estados Unidos, e que já alguns anos, se espalhar para todo mundo. Motivos para escolher a ONE AS PESSOAS PRIMEIRO.. Contamos com vários anos, com vários agentes premiados. -Os consultores têm formação de alto nível nacional e internacional, como os melhores formadores nacionais e internacionais, em todas vertentes do negócio, e de forma gratuita para o pode ajudar com mais eficiência. “Enquanto usufrui dos prazeres da sua vida, compre e venda o seu imóvel de forma rápida e segura...” ONE house, ONE dream, ONE life (style) A Realty One Group, é a marca que mais cresce nos Estados Unidos, com mais de 17 anos, e quase 1.000 lojas e 20.000 colaboradores em 16 países, estando já aberto em Portugal, Espanha, Itália e em breve em França e Alemanha. O presidente da Realty One Group é o Vinnie Tracey, que foi presidente durante 40 anos de uma das marcas líderes mundiais, e é hoje é o Líder da Realty One Group, que com toda sua experiência esta a tornar a Realty One Group, uma das marcas Líderes nos Estados Unidos, e que já alguns anos, se espalhar para todo mundo. Motivos para escolher a ONE AS PESSOAS PRIMEIRO.. Contamos com vários anos, com vários agentes premiados. -Os consultores têm formação de alto nível nacional e internacional, como os melhores formadores nacionais e internacionais, em todas vertentes do negócio, e de forma gratuita para o pode ajudar com mais eficiência. “Enquanto usufrui dos prazeres da sua vida, compre e venda o seu imóvel de forma rápida e segura...” ONE house, ONE dream, ONE life (style) A Realty One Group, é a marca que mais cresce nos Estados Unidos, com mais de 17 anos, e quase 1.000 lojas e 20.000 colaboradores em 16 países, estando já aberto em Portugal, Espanha, Itália e em breve em França e Alemanha. O presidente da Realty One Group é o Vinnie Tracey, que foi presidente durante 40 anos de uma das marcas líderes mundiais, e é hoje é o Líder da Realty One Group, que com toda sua experiência esta a tornar a Realty One Group, uma das marcas Líderes nos Estados Unidos, e que já alguns anos, se espalhar para todo mundo. Motivos para escolher a ONE AS PESSOAS PRIMEIRO.. Contamos com vários anos, com vários agentes premiados. -Os consultores têm formação de alto nível nacional e internacional, como os melhores formadores nacionais e internacionais, em todas vertentes do negócio, e de forma gratuita para o pode ajudar com mais eficiência. “Enquanto usufrui dos prazeres da sua vida, compre e venda o seu imóvel de forma rápida e segura...” ONE house, ONE dream, ONE life (style) A Realty One Group, é a marca que mais cresce nos Estados Unidos, com mais de 17 anos, e quase 1.000 lojas e 20.000 colaboradores em 16 países, estando já aberto em Portugal, Espanha, Itália e em breve em França e Alemanha. O presidente da Realty One Group é o Vinnie Tracey, que foi presidente durante 40 anos de uma das marcas líderes mundiais, e é hoje é o Líder da Realty One Group, que com toda sua experiência esta a tornar a Realty One Group, uma das marcas Líderes nos Estados Unidos, e que já alguns anos, se espalhar para todo mundo. Motivos para escolher a ONE AS PESSOAS PRIMEIRO.. Contamos com vários anos, com vários agentes premiados. -Os consultores têm formação de alto nível nacional e internacional, como os melhores formadores nacionais e internacionais, em todas vertentes do negócio, e de forma gratuita para o pode ajudar com mais eficiência. “Enquanto usufrui dos prazeres da sua vida, compre e venda o seu imóvel de forma rápida e segura...” ONE house, ONE dream, ONE life (style)
AMI: 8815
Ref. Externa: ONE0011018-264
Id: 1477778
Inicie sessão para guardar este imóvel e aceder à sua lista de favoritos em qualquer dispositivo.
Área de terreno : 284 m²
Bem-vindo à Encosta do Mosteiro, um novo e moderno loteamento com projeto aprovado de um empreendimento que está prestes a nascer em uma localização privilegiada em Oliveira Santa maria, Vila Nova de Famalicão. Com uma área notável e vistas deslumbrantes, este projeto oferece um conceito inovador e sustentável, criado para proporcionar uma experiência de vida excepcional. ??????????????? ?? ??????????: ????????çã? ??????é????: Situado em pleno centro da freguesia de Oliveira Santa Maria em Vila Nova de Famalicão, o loteamento conta com excelentes acessos à VIM, à entrada da A7 em Riba de Ave (5 minutos) e a entrada de Seide (10 minutos). A Encosta do Mosteiro oferece a combinação perfeita entre tranquilidade e acesso a todas as comodidades urbanas. Com distância das principais cidades : ????? (20 minutos), ????? (15 minutos), ??????ã?? ( 10 minutos), ???????ã? (10 minutos) e ????? ????? ( 15 minutos). Os seus futuros moradores poderão desfrutar de uma excelente qualidade de vida. ????? ??????: O empreendimento possui 30 lotes espaçosos, ideais para a construção de 30 moradias exclusivas e modernas. Cada lote foi cuidadosamente planejado para garantir o máximo de espaço e privacidade para os futuros moradores. ??çõ?? ?? ????????:: A Encosta do Mosteiro (lotes) oferece uma seleção diversificada para a construção de moradias individuais térreas, em banda e geminadas, projetadas para atender às necessidades e preferências de diferentes estilos de vida. Seja qual for o seu desejo, encontrará uma casa que reflete a sua personalidade única. ?????????????? ????????: Pensando no conforto e comodidade dos residentes, a Encosta do Mosteiro contará com uma infraestrutura completa, incluindo vias bem planeadas, iluminação moderna, áreas verdes cuidadas e acesso conveniente aos principais serviços e comércios da região. ??????? ? ??? ?????: Se procura uma vida tranquila e ao mesmo tempo em contacto com todas as facilidades urbanas, a Encosta do Mosteiro é o lugar ideal para si e para a sua família. Garanta o seu lugar nesta urbanização única e faça parte de uma experiência de vida verdadeiramente especial. Não perca esta oportunidade de investir em um novo começo na Encosta do Mosteiro em Oliveira Santa Maria, Vila Nova de Famalicão. Entre em contato para mais informações e reservas. Motivos para escolher o Grupo Sucesso: No Grupo Sucesso - AS PESSOAS PRIMEIRO... O Grupo Sucesso conta há vários anos, com vários agentes premiados. Faça parte desta equipa de sucesso! Envie o seu currículo para [email protected] ou contacte-nos através do 914 559 946. -Com a experiência única no mercado imobiliário com mais de 20 anos e 18.000 negócios, os nossos consultores podem dar-lhe o melhor serviço e acompanhamento, levando-o a escolher o melhor caminho para as suas necessidades. -Os consultores têm formação de alto nível, nacional e internacional, com os melhores formadores nacionais e internacionais, em todas as vertentes do negócio, e de forma gratuita para o poder ajudar com mais eficiência. -Fomos a primeira empresa nacional que teve serviço 360, onde pode fazer tudo nas nossas lojas, desde o início da compra à fase da escritura, quer seja a pronto pagamento ou com financiamento, com 7 pessoas no departamento processual e 3 advogados, para que tenha todo o apoio necessário, e possa usufruir dos prazeres da vida com a sua família. “Enquanto usufrui dos prazeres da sua vida, compre e venda o seu imóvel de forma rápida e segura...” ONE house, ONE dream, ONE life (style) A Realty One Group, é a marca que mais cresce nos Estados Unidos, com mais de 17 anos, e quase 1.000 lojas e 20.000 colaboradores em 16 países, estando já aberto em Portugal, Espanha, Itália e em breve em França e Alemanha. O presidente da Realty One Group é o Vinnie Tracey, que foi presidente durante 40 anos de uma das marcas líderes mundiais, e é hoje é o Líder da Realty One Group, que com toda sua experiência esta a tornar a Realty One Group, uma das marcas Líderes nos Estados Unidos, e que já alguns anos, se espalhar para todo mundo. Motivos para escolher a ONE AS PESSOAS PRIMEIRO.. Contamos com vários anos, com vários agentes premiados. -Os consultores têm formação de alto nível nacional e internacional, como os melhores formadores nacionais e internacionais, em todas vertentes do negócio, e de forma gratuita para o pode ajudar com mais eficiência. “Enquanto usufrui dos prazeres da sua vida, compre e venda o seu imóvel de forma rápida e segura...” ONE house, ONE dream, ONE life (style) A Realty One Group, é a marca que mais cresce nos Estados Unidos, com mais de 17 anos, e quase 1.000 lojas e 20.000 colaboradores em 16 países, estando já aberto em Portugal, Espanha, Itália e em breve em França e Alemanha. O presidente da Realty One Group é o Vinnie Tracey, que foi presidente durante 40 anos de uma das marcas líderes mundiais, e é hoje é o Líder da Realty One Group, que com toda sua experiência esta a tornar a Realty One Group, uma das marcas Líderes nos Estados Unidos, e que já alguns anos, se espalhar para todo mundo. Motivos para escolher a ONE AS PESSOAS PRIMEIRO.. Contamos com vários anos, com vários agentes premiados. -Os consultores têm formação de alto nível nacional e internacional, como os melhores formadores nacionais e internacionais, em todas vertentes do negócio, e de forma gratuita para o pode ajudar com mais eficiência. “Enquanto usufrui dos prazeres da sua vida, compre e venda o seu imóvel de forma rápida e segura...” ONE house, ONE dream, ONE life (style)
AMI: 8815
Ref. Externa: ONE0011018-257
Id: 1477777
Inicie sessão para guardar este imóvel e aceder à sua lista de favoritos em qualquer dispositivo.
130.000 €
Área de terreno : 953 m²
Terreno urbano com projeto aprovado para vivenda individual de 3 pisos (cave, rés do chão e andar). Com excelente localização a cerca de 1 minuto do centro, está inserido numa agradável zona residencial. Dispõe de boa exposição solar! Venha conhecer! dinamica-imobiliaria.com
AMI: 7463
Ref. Externa: 2081
Id: 1477714
Inicie sessão para guardar este imóvel e aceder à sua lista de favoritos em qualquer dispositivo.
130.000 €
Área de terreno : 774 m²
Oportunidade única para construir a casa dos seus sonhos!. Vende-se terreno com projeto aprovado para moradia de luxo com piscina, situado numa zona calma e tranquila, ideal para quem privilegia privacidade e qualidade de vida.. O local oferece excelentes acessos e está próximo do centro de Vila Nova de Famalicão, garantindo toda a comodidade de serviços, comércio e escolas a poucos minutos.. Uma solução perfeita para quem deseja investir num projeto de excelência numa área em franco desenvolvimento.. Para mais informações, contacte!.
AMI: 11292
Ref. Externa: V202509F/12260
Id: 1477655
Inicie sessão para guardar este imóvel e aceder à sua lista de favoritos em qualquer dispositivo.
550.000 €
Área de terreno : 9100 m²
Oportunidade Única em Ribeirão! Terreno de construção industrial com cerca de 9100 m² e 140 metros de frente para a Estrada Nacional N14. Localização estratégica e de grande visibilidade, perfeita para potenciar qualquer negócio ou projeto industrial. Ideal para quem procura espaço amplo, acessos privilegiados e uma frente de estrada que garante destaque imediato. Não perca esta oportunidade! Contacte-nos hoje e dê o primeiro passo para fazer crescer o seu investimento. Realty ONE Group A Realty ONE Group é atualmente a marca imobiliária com o crescimento mais rápido nos Estados Unidos. Com mais de 20 anos de experiência, está presente em 26 países e continua a expandir-se a nível global. À frente da marca está Vinnie Tracey, presidente da Realty ONE Group, que durante 40 anos liderou uma das maiores referências mundiais do setor. Com a sua vasta experiência, está a consolidar a Realty ONE Group como uma das marcas líderes nos Estados Unidos e no mundo. Motivos para escolher a ONE As Pessoas Primeiro. Os nossos consultores recebem formação de excelência, nacional e internacional, ministrada pelos melhores especialistas em todas as vertentes do negócio. Toda a formação é gratuita, garantindo que a equipa está preparada para o apoiar com máxima eficiência. “Enquanto desfruta dos prazeres da sua vida, compre e venda o seu imóvel de forma rápida, simples e segura.” ONE House. ONE Dream. ONE Life(style).
AMI: 8815
Ref. Externa: ONE0011026-618
Id: 1454259
Inicie sessão para guardar este imóvel e aceder à sua lista de favoritos em qualquer dispositivo.
Estes agentes são especialistas nesta zona:
Inicie sessão para ocultar este imóvel das suas pesquisas e manter a sua lista de resultados organizada.
Guardar favoritos
Este imóvel foi guardados nos seus favoritos com sucesso.
Para poder guardar pesquisa deverá ter a sua sessão iniciada.
Caso não tenha uma conta, deverá criar uma.
A sua pesquisa foi guardada com sucesso!
© Copyright 2023 | CASACERTA. All rights reserved
Este site utiliza cookies. Ao navegar no site estará a consentir a sua utilização.
Para mais informações sobre os cookies pode consultar a
política de privacidade.