Lista
Comprar
Arrendar
57.000 €
Área de terreno : 221 m²
Terreno à Venda - Ideal para Construção de Moradia Individual Área: 221 m² Infraestrutura: Poço de água Acessibilidade: Fácil acesso, junto à Estrada N206 Localização: Apenas a 5 minutos da A7 - Nó de Seide Excelente oportunidade para construir a sua casa num local calmo, com bons acessos e próximo das principais vias. Casafama Santo Tirso - Progresswave, Unipessoal, lda AMI 25171
AMI: 12339
Ref. Externa: CFS-57-13
Id: 1533995
Inicie sessão para guardar este imóvel e aceder à sua lista de favoritos em qualquer dispositivo.
160.000 €
Área de terreno : 13125 m²
️ Terreno para Construção - Requião, Vila Nova de Famalicão Excelente terreno com 13.125 m², localizado em Requião, a poucos metros da EN206 (Famalicão - Guimarães), beneficiando de excelentes acessos e vistas desafogadas. Com grande potencial de construção, este imóvel é uma oportunidade imperdível para promotores ou construtores que procuram investir numa zona em crescimento e com ótima visibilidade. Área total: 13.125 m² Localização estratégica e vista privilegiada Ideal para desenvolvimento de projetos habitacionais. Venha visitar! REF: TER_597
AMI: 2795
Ref. Externa: TER_597
Id: 1397558
Inicie sessão para guardar este imóvel e aceder à sua lista de favoritos em qualquer dispositivo.
498.000 €
Área de terreno : 4520 m²
Se procura um terreno com grande potencial, esta é uma oportunidade a não perder!... Com localização privilegiada, acessos excecionais e infraestruturas essenciais, AGUA, SANEAMENTO E ELETRICIDADE, este terreno é perfeito para construção ou investimento. Destaques do Terreno: - Área total: 4.520 m² - Existência de poço com água em abundância - Localização privilegiada, a dois minutos da entrada da A7 - Frente á estrada nacional com 65 metros - Terreno plano, em espaço residencial e pronto para construção - Índice de construção 0.6 do total do terreno e 3 pisos acima do solo; - Muito próximo do centro de Famalicão e Guimarães - Possibilidade de construção de moradias ou apartamentos Aproveite a oportunidade para desenvolver o seu próximo projeto numa zona em forte expansão! Contacte-nos !..... Antes de avançar para as características do imóvel, permita-nos um breve esclarecimento: a localização que vê do imóvel é, na verdade, uma morada próxima do imóvel. Por uma questão de privacidade de dados (RGPD) não podemos divulgar a morada exata do imóvel. Gratos pela compreensão.
AMI: 17906
Ref. Externa: 8TC4009
Id: 1382828
Inicie sessão para guardar este imóvel e aceder à sua lista de favoritos em qualquer dispositivo.
127.500 €
Área de terreno : 663 m²
TERRENO,JUNTO AO CENTRO DA VILA DE RIBEIRÃO, com a área de 663m2, para construção de Edifício. Excelente localização, comércio e serviços nas proximidades, fazem com que possa usufruir da tranquilidade da periferia do núcleo urbano sem se privar da cidade. Nas imediações ser-lhe-ão disponibilizados todo o tipo de serviços e comércio como escolas, centros de saúde, supermercados, etc Contém toda a exposição solar, bons acessos e vistas desafogadas. Venha conhecer, não perca esta oportunidade de Negócio! LIGUE JÁ E MARQUE A SUA VISITA, , 252 314 007, 934143771, 934143707
AMI: 9610
Ref. Externa: 6469
Id: 1159383
Inicie sessão para guardar este imóvel e aceder à sua lista de favoritos em qualquer dispositivo.
230.000 €
Área de terreno : 6000 m²
EXCELENTE TERRENO, COM PINHAL, com a área de 9600m2, para construção de moradias, excelente localização, junto á DIDAX, de Vale de São Cosme, com vistas desafogadas, NO MEIO DA NATUREZA, A 15 MINUTOS DE VILA NOVA DE FAMALICÃO, Comércio e serviços nas proximidades, fazem com que possa usufruir da tranquilidade da periferia do núcleo urbano sem se privar da cidade. Nas imediações ser-lhe-ão disponibilizados todo o tipo de serviços e comércio como escolas, centros de saúde, supermercados, etc Contém toda a exposição solar, bons acessos e vistas desafogadas. Venha conhecer, não perca esta oportunidade de Negócio! LIGUE JÁ E MARQUE A SUA VISITA, , 252 314 007, 934143771, 934143707
AMI: 9610
Ref. Externa: 6468
Id: 1159382
Inicie sessão para guardar este imóvel e aceder à sua lista de favoritos em qualquer dispositivo.
1.000.000 €
Área de terreno : 16606 m²
Terreno às portas da cidades, com uma área construtiva de 16606M2 com estudo prévio de projecto para moradias...Óptima exposição solar, vistas desafogadas e bons acessos! Vale a pena investir em Famalicão! Mais imoveis em (url)
AMI: 7463
Ref. Externa: 1358
Id: 909368
Inicie sessão para guardar este imóvel e aceder à sua lista de favoritos em qualquer dispositivo.
Sob consulta
Área de terreno : 240000 m²
Bouça eucaliptal ... Com 24 hectares de terreno
AMI: 23263
Ref. Externa: TER_121
Id: 842908
Inicie sessão para guardar este imóvel e aceder à sua lista de favoritos em qualquer dispositivo.
325.000 €
Área de terreno : 22230 m²
Terreno com uma ruína de 400m2. O local com bons acessos, tem privacidade sem ser isolado. Perfeito para quem procura aliar a calma do campo com a proximidade ao centro urbano. A localização do terreno permite desfrutar de uma privacidade e tranquilidade inigualável. Venha conhecer!
AMI: 12847
Ref. Externa: 20LFT04
Id: 826616
Inicie sessão para guardar este imóvel e aceder à sua lista de favoritos em qualquer dispositivo.
1.200.000 €
Área de terreno : 16152 m²
Identificação do imóvel: ZMPT568079Este terreno já teve um Plano de Pormenor (PIP) aprovado para 23 lotes para vivendas em banda e um lote para uma propriedade horizontal, proporcionando uma excelente oportunidade para desenvolvimento imobiliário.Proximidades:A 6 Km do centro:A 8 minutos a pé do Parque da Devesa:A 3 minutos a pé do Colégio Machado Ruivo.3 razões para comprar com a Zome+ acompanhamentoCom uma preparação e experiência única no mercado imobiliário, os consultores Zome põem toda a sua dedicação em dar-lhe o melhor acompanhamento, orientando-o com a máxima confiança, na direção certa das suas necessidades e ambições.Daqui para a frente, vamos criar uma relação próxima e escutar com atenção as suas expectativas, porque a nossa prioridade é a sua felicidade! Porque é importante que sinta que está acompanhado, e que estamos consigo sempre.+ simplesOs consultores Zome têm uma formação única no mercado, ancorada na partilha de experiência prática entre profissionais e fortalecida pelo conhecimento de neurociência aplicada que lhes permite simplificar e tornar mais eficaz a sua experiência imobiliária.Deixe para trás os pesadelos burocráticos porque na Zome encontra o apoio total de uma equipa experiente e multidisciplinar que lhe dá suporte prático em todos os aspetos fundamentais, para que a sua experiência imobiliária supere as expectativas.+ felizO nosso maior valor é entregar-lhe felicidade!Liberte-se de preocupações e ganhe o tempo de qualidade que necessita para se dedicar ao que lhe faz mais feliz.Agimos diariamente para trazer mais valor à sua vida com o aconselhamento fiável de que precisa para, juntos, conseguirmos atingir os melhores resultados.Com a Zome nunca vai estar perdido ou desacompanhado e encontrará algo que não tem preço: a sua máxima tranquilidade!É assim que se vai sentir ao longo de toda a experiência: Tranquilo, seguro, confortável e... FELIZ!Notas:1. Caso seja um consultor imobiliário, este imóvel está disponível para partilha de negócio. Não hesite em apresentar aos seus clientes compradores e fale connosco para agendar a sua visita.2. Para maior facilidade na identificação deste imóvel, por favor, refira o respetivo ID ZMPT ou o respetivo agente que lhe tenha enviado a sugestão.
AMI: 17432
Ref. Externa: ZMPT568079
Id: 777212
Inicie sessão para guardar este imóvel e aceder à sua lista de favoritos em qualquer dispositivo.
265.000 €
Área de terreno : 4155 m²
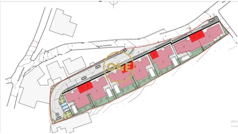
Oportunidade de investimento em Requião, com um terreno de 4155 m2. A apenas 300 metros da N206, oferece conveniência e acessibilidade a uma via principal. Imagine-se neste terreno , numa zona tranquila e em crescimento habitacional . Com vistas desafogadas para o Sudoeste (sul e poente) e para o Este (nascente). A localização estratégica, a poucos minutos da cidade de Vila Nova de Famalicão, proporciona a combinação perfeita entre tranquilidade e proximidade aos serviços urbanos essenciais. O terreno apresenta possibilidades ilimitadas para transformar sua visão em realidade. Pode ser dividido até sete lotes independentes, proporcionando uma excelente oportunidade de investimento com a opção de criar múltiplas propriedades. Alternativamente, pode optar por usar a totalidade do terreno para construir a moradia dos seus sonhos, desfrutando da privacidade e do espaço disponível Destacamos que um protocolo foi recentemente executado em colaboração com a Junta de Freguesia para o alargamento da via, garantindo melhor acessibilidade e valorização do terreno. Não perca a oportunidade de investir num terreno com potencial de crescimento e valorização. Entre em contato para obter mais informações e iniciar o caminho para a realização dos seus objetivos imobiliários em Requião. A Realty One Group, é a marca que mais cresce nos Estados Unidos, com mais de 17 anos, e quase 1.000 lojas e 20.000 colaboradores em 16 países, estando já aberto em Portugal, Espanha, Itália e em breve em França e Alemanha. O presidente da Realty One Group é o Vinnie Tracey, que foi presidente durante 40 anos de uma das marcas líderes mundiais, e é hoje é o Líder da Realty One Group, que com toda sua experiência esta a tornar a Realty One Group, uma das marcas Líderes nos Estados Unidos, e que já alguns anos, se espalhar para todo mundo. Motivos para escolher a ONE AS PESSOAS PRIMEIRO.. Contamos com vários anos, com vários agentes premiados. -Os consultores têm formação de alto nível nacional e internacional, como os melhores formadores nacionais e internacionais, em todas vertentes do negócio, e de forma gratuita para o pode ajudar com mais eficiência. “Enquanto usufrui dos prazeres da sua vida, compre e venda o seu imóvel de forma rápida e segura...” ONE house, ONE dream, ONE life (style)
AMI: 8815
Ref. Externa: ONE0011434-4
Id: 573153
Inicie sessão para guardar este imóvel e aceder à sua lista de favoritos em qualquer dispositivo.
Estes agentes são especialistas nesta zona:
Inicie sessão para ocultar este imóvel das suas pesquisas e manter a sua lista de resultados organizada.
Guardar favoritos
Este imóvel foi guardados nos seus favoritos com sucesso.
Para poder guardar pesquisa deverá ter a sua sessão iniciada.
Caso não tenha uma conta, deverá criar uma.
A sua pesquisa foi guardada com sucesso!
© Copyright 2023 | CASACERTA. All rights reserved
Este site utiliza cookies. Ao navegar no site estará a consentir a sua utilização.
Para mais informações sobre os cookies pode consultar a
política de privacidade.