Terreno para Venda em Requião
265.000 €
Tipo
Terreno
Negócio
Venda
Área Bruta
4155 m²
Certificado Energético
N/A
Área do Terreno
4155 m²
Descrição
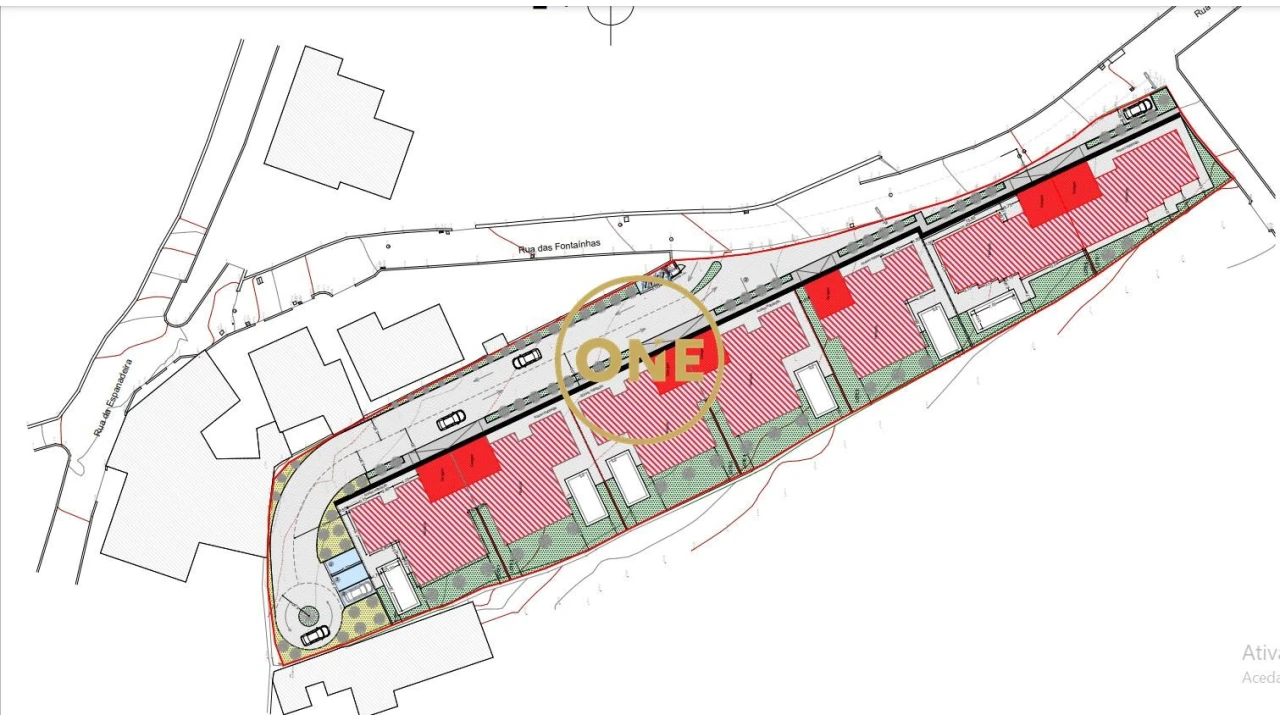
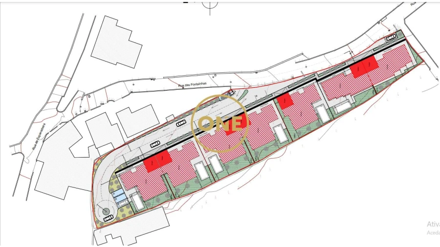
Oportunidade de investimento em Requião, com um terreno de 4155 m2.
A apenas 300 metros da N206, oferece conveniência e acessibilidade a uma via principal.
Imagine-se neste terreno , numa zona tranquila e em crescimento habitacional .
Com vistas desafogadas para o Sudoeste (sul e poente) e para o Este (nascente).
A localização estratégica, a poucos minutos da cidade de Vila Nova de Famalicão, proporciona a combinação perfeita entre tranquilidade e proximidade aos serviços urbanos essenciais.
O terreno apresenta possibilidades ilimitadas para transformar sua visão em realidade. Pode ser dividido até sete lotes independentes, proporcionando uma excelente oportunidade de investimento com a opção de criar múltiplas propriedades.
Alternativamente, pode optar por usar a totalidade do terreno para construir a moradia dos seus sonhos, desfrutando da privacidade e do espaço disponível
Destacamos que um protocolo foi recentemente executado em colaboração com a Junta de Freguesia para o alargamento da via, garantindo melhor acessibilidade e valorização do terreno.
Não perca a oportunidade de investir num terreno com potencial de crescimento e valorização.
Entre em contato para obter mais informações e iniciar o caminho para a realização dos seus objetivos imobiliários em Requião.
A Realty One Group, é a marca que mais cresce nos Estados Unidos, com mais de 17 anos, e quase 1.000 lojas e 20.000 colaboradores em 16 países, estando já aberto em Portugal, Espanha, Itália e em breve em França e Alemanha.
O presidente da Realty One Group é o Vinnie Tracey, que foi presidente durante 40 anos de uma das marcas líderes mundiais, e é hoje é o Líder da Realty One Group, que com toda sua experiência esta a tornar a Realty One Group, uma das marcas Líderes nos Estados Unidos, e que já alguns anos, se espalhar para todo mundo.
Motivos para escolher a ONE
AS PESSOAS PRIMEIRO..
Contamos com vários anos, com vários agentes premiados.
-Os consultores têm formação de alto nível nacional e internacional, como os melhores formadores nacionais e internacionais, em todas vertentes do negócio, e de forma gratuita para o pode ajudar com mais eficiência.
“Enquanto usufrui dos prazeres da sua vida, compre e venda o seu imóvel de forma rápida e segura...”
ONE house, ONE dream, ONE life (style)
A apenas 300 metros da N206, oferece conveniência e acessibilidade a uma via principal.
Imagine-se neste terreno , numa zona tranquila e em crescimento habitacional .
Com vistas desafogadas para o Sudoeste (sul e poente) e para o Este (nascente).
A localização estratégica, a poucos minutos da cidade de Vila Nova de Famalicão, proporciona a combinação perfeita entre tranquilidade e proximidade aos serviços urbanos essenciais.
O terreno apresenta possibilidades ilimitadas para transformar sua visão em realidade. Pode ser dividido até sete lotes independentes, proporcionando uma excelente oportunidade de investimento com a opção de criar múltiplas propriedades.
Alternativamente, pode optar por usar a totalidade do terreno para construir a moradia dos seus sonhos, desfrutando da privacidade e do espaço disponível
Destacamos que um protocolo foi recentemente executado em colaboração com a Junta de Freguesia para o alargamento da via, garantindo melhor acessibilidade e valorização do terreno.
Não perca a oportunidade de investir num terreno com potencial de crescimento e valorização.
Entre em contato para obter mais informações e iniciar o caminho para a realização dos seus objetivos imobiliários em Requião.
A Realty One Group, é a marca que mais cresce nos Estados Unidos, com mais de 17 anos, e quase 1.000 lojas e 20.000 colaboradores em 16 países, estando já aberto em Portugal, Espanha, Itália e em breve em França e Alemanha.
O presidente da Realty One Group é o Vinnie Tracey, que foi presidente durante 40 anos de uma das marcas líderes mundiais, e é hoje é o Líder da Realty One Group, que com toda sua experiência esta a tornar a Realty One Group, uma das marcas Líderes nos Estados Unidos, e que já alguns anos, se espalhar para todo mundo.
Motivos para escolher a ONE
AS PESSOAS PRIMEIRO..
Contamos com vários anos, com vários agentes premiados.
-Os consultores têm formação de alto nível nacional e internacional, como os melhores formadores nacionais e internacionais, em todas vertentes do negócio, e de forma gratuita para o pode ajudar com mais eficiência.
“Enquanto usufrui dos prazeres da sua vida, compre e venda o seu imóvel de forma rápida e segura...”
ONE house, ONE dream, ONE life (style)
Localização
Requião, Vila Nova de Famalicão, Braga
Informação do anúncio
ID do anúncio
573153
Referência Externa
ONE0011434-4
Atualizado em
25/04/2026 23:40:44
Anunciante
Chamada para a rede fixa nacional
RealtyOneGroup Sucesso
AMI 8815
Referência do imóvel:
ONE0011434-4
Terreno para Venda em Requião
Vídeo