Filtros
0 · 33 resultados120.000 €
Área de terreno : 3554 m²
:: Excelente Terreno Rústico de 3,544m² Desrtinado a Construção Habitacional ::.Geme, Vila Verde (Braga).Prédio Rústico com 3.554 m², localizado na freguesia de Geme, em Vila Verde.Uma oportunidade única para quem procura um espaço amplo, com excelente localização e versatilidade para projetos habitacionais.Principais Características: • Área total: 3.554 m² • Tipologia do solo: Rústico com grande potencial para construção habitacional • Vistas desafogadas • Frentes e acessos: O terreno faz frente a duas ruas, uma delas com acesso direto à Estrada Nacional N101, garantindo excelente mobilidade e facilidade de deslocação. • Dimensões generosas: A amplitude do terreno permite a construção de mais de uma moradia, ideal para projetos familiares, empreendimentos de investimento ou criação de um condomínio privado.Localização privilegiada:Situado numa zona tranquila e residencial de Geme, este terreno está próximo de: • Comércios locais e serviços essenciais • Escolas e equipamentos educativos • Supermercados e mercados tradicionais • Restaurantes, cafés e bares • A poucos minutos do centro de Vila Verde e com ligação facilitada a Braga através da N101Potencial e oportunidades: • Construção de moradias unifamiliares ou geminadas • Espaço para jardim, lazer e piscina • Investimento seguro numa região em expansãoSe procura um terreno amplo, com bons acessos, bem localizado e repleto de potencial, esta é a oportunidade perfeita!Contacte-nos para mais informações ou agende já a sua visita.-- xxx --Razões para escolher a Imóvel Portugal:• A Imóvel Portugal tem consultores que se dedicam a fornecer o melhor atendimento aos clientes. Percebemos quais suas as necessidades, as características essenciais e desejadas no seu futuro imóvel. E o mais importante, apresentar o imóvel ideal para si, adequado ao seu bolso!• O nosso foco é mostrar todos os pormenores dos imóveis; para isso oferecemos visitas acompanhadas pelos nossos consultores especialistas de modo a poder apresentar, esclarecer e orientar os nossos clientes, sobre qualquer dúvida, indecisão ou oportunidade de negociação.• A equipa de consultores da Imóvel Portugal é constituída por profissionais com formação e experiência na área imobiliária e vasto conhecimento detalhado das zonas de foco imobiliário, o que lhes permite recomendar os melhores locais para investir no seu futuro imóvel.• Oferecemos completo suporte de assessoria desde o início do processo de compra ou venda, dando pleno acompanhamento até sua conclusão; com a elaboração de toda a documentação necessária, através de corpo jurídico e fiscal da agência, provendo todos os contratos, procurações, escrituras e demais documentos obrigatórios no processo de venda/compra do imóvel.• Temos protocolos com empresas sólidas, experientes e eficazes, para oferecer total apoio e benefícios aos clientes, durante e no pós negócio imobiliário, como por exemplo: Bancos, Seguros, Gabinete de arquitectura/engenharia, Certificação energética, Contabilidade (particular e empresarial). Ou seja, todos os serviços que necessita para iniciar o seu processo de compra/venda, sem perder tempo, sem preocupações e com a perspectiva de um negócio rentável com sucesso garantido!Entre já em contato para saber um pouco mais sobre Imóvel Portugal(Disclaimer)
AMI: 17318
Ref. Externa: iPT.1312/25
Id: 1804545
Inicie sessão para guardar este imóvel e aceder à sua lista de favoritos em qualquer dispositivo.
120.000 €
Área bruta : 3554 m²
Vende-se Terreno com 3554m² em Gême, Vila Verde!Terreno localizado em zona de construção;Bons acessos;Vistas fantásticas;Excelente exposição solar;A 5 minutos do centro da Vila!Razões para comprar com a INOVAO melhor acompanhamentoCom uma vasta experiência no mercado imobiliário desde 2006, a INOVA é composta por uma equipa de profissionais jovens e dinâmicos, altamente qualificados, sempre disponíveis para ajudar os seus clientes, orientando-os com a máxima confiança na direção certa para as suas necessidades.E como é importante que sinta que está acompanhado, após o primeiro contacto vamos criar uma relação próxima de forma a perceber as suas expectativas e posteriormente a realização dos seus sonhos, porque é essa a nossa prioridade!Menos burocraciasA INOVA Imobiliária dispõe de um serviço pós-venda, assegurado pelo nosso departamento processual, que para além de todo o acompanhamento burocrático no processo de compra e venda do seu imóvel, oferece também um serviço gratuito de aconselhamento e consultoria ao nível do financiamento bancário, uma vez que somos uma empresa licenciada pelo Banco de Portugal para prestar serviços de Intermediação de Crédito.Deixe para trás os pesadelos burocráticos porque connosco encontra o apoio fundamental para que a sua experiência imobiliária supere todas as expectativas.Satisfação dos nossos clientesA nossa missão é garantir a satisfação dos nossos clientes, cumprindo o objetivo de vender/comprar a sua casa, ao melhor preço, em tempo útil e sem problemas. Liberte-se de preocupações e ganhe o tempo que merece para se dedicar ao que realmente o faz feliz.Inovação, seriedade, honestidade, rigor, proatividade, profissionalismo e ambição são alguns dos principais valores, que fazem parte do ADN dos nossos profissionais e é com estes princípios que lhe vamos prestar o melhor serviço!Se pretende vender ou comprar casa, confie-nos essa missão...INOVA IMOBILIÁRIA... MUITO + QUE VENDER CASAS!
AMI: 10088
Ref. Externa: IV-06919
Id: 1730180
Inicie sessão para guardar este imóvel e aceder à sua lista de favoritos em qualquer dispositivo.
79.000 €
Área bruta : 5000 m²
Vende-se Terreno com aproximadamente 5000m² em Gême, Vila Verde!Terreno com 2000m² localizado em zona de floresta de produção e 3000m² em zona agrícola; Possui 2 artigos; Bons acessos; Excelente exposição solar; A poucos minutos do centro de Vila Verde!- Tratamos do seu crédito habitação, sem custos nem burocracias.A INOVA Imobiliária é intermediário de crédito autorizada pelo Banco de Portugal com o registo 934. Fazemos a gestão de todo o processo de financiamento, sempre com as melhores condições do mercado e sem qualquer custo associado.Razões para comprar com a INOVAO melhor acompanhamentoCom uma vasta experiência no mercado imobiliário desde 2006, a INOVA é composta por uma equipa de profissionais jovens e dinâmicos, altamente qualificados, sempre disponíveis para ajudar os seus clientes, orientando-os com a máxima confiança na direção certa para as suas necessidades.E como é importante que sinta que está acompanhado, após o primeiro contacto vamos criar uma relação próxima de forma a perceber as suas expectativas e posteriormente a realização dos seus sonhos, porque é essa a nossa prioridade!Menos burocraciasA INOVA Imobiliária dispõe de um serviço pós-venda, assegurado pelo nosso departamento processual, que para além de todo o acompanhamento burocrático no processo de compra e venda do seu imóvel, oferece também um serviço gratuito de aconselhamento e consultoria ao nível do financiamento bancário, uma vez que somos uma empresa licenciada pelo Banco de Portugal para prestar serviços de Intermediação de Crédito.Deixe para trás os pesadelos burocráticos porque connosco encontra o apoio fundamental para que a sua experiência imobiliária supere todas as expectativas.Satisfação dos nossos clientesA nossa missão é garantir a satisfação dos nossos clientes, cumprindo o objetivo de vender/comprar a sua casa, ao melhor preço, em tempo útil e sem problemas. Liberte-se de preocupações e ganhe o tempo que merece para se dedicar ao que realmente o faz feliz.Inovação, seriedade, honestidade, rigor, proatividade, profissionalismo e ambição são alguns dos principais valores, que fazem parte do ADN dos nossos profissionais e é com estes princípios que lhe vamos prestar o melhor serviço!Se pretende vender ou comprar casa, confie-nos essa missão...INOVA IMOBILIÁRIA... MUITO + QUE VENDER CASAS!
AMI: 10088
Ref. Externa: IV-08649
Id: 1730172
Inicie sessão para guardar este imóvel e aceder à sua lista de favoritos em qualquer dispositivo.
360.000 €
Área bruta : 4500 m²
Vende-se Terreno Industrial com 4500m² em Gême, Vila Verde.Bons acessos; Excelente localização!- Tratamos do seu crédito habitação, sem custos nem burocracias.A INOVA Imobiliária é intermediário de crédito autorizada pelo Banco de Portugal com o registo 934. Fazemos a gestão de todo o processo de financiamento, sempre com as melhores condições do mercado e sem qualquer custo associado.Razões para comprar com a INOVAO melhor acompanhamentoCom uma vasta experiência no mercado imobiliário desde 2006, a INOVA é composta por uma equipa de profissionais jovens e dinâmicos, altamente qualificados, sempre disponíveis para ajudar os seus clientes, orientando-os com a máxima confiança na direção certa para as suas necessidades.E como é importante que sinta que está acompanhado, após o primeiro contacto vamos criar uma relação próxima de forma a perceber as suas expectativas e posteriormente a realização dos seus sonhos, porque é essa a nossa prioridade!Menos burocraciasA INOVA Imobiliária dispõe de um serviço pós-venda, assegurado pelo nosso departamento processual, que para além de todo o acompanhamento burocrático no processo de compra e venda do seu imóvel, oferece também um serviço gratuito de aconselhamento e consultoria ao nível do financiamento bancário, uma vez que somos uma empresa licenciada pelo Banco de Portugal para prestar serviços de Intermediação de Crédito.Deixe para trás os pesadelos burocráticos porque connosco encontra o apoio fundamental para que a sua experiência imobiliária supere todas as expectativas.Satisfação dos nossos clientesA nossa missão é garantir a satisfação dos nossos clientes, cumprindo o objetivo de vender/comprar a sua casa, ao melhor preço, em tempo útil e sem problemas. Liberte-se de preocupações e ganhe o tempo que merece para se dedicar ao que realmente o faz feliz.Inovação, seriedade, honestidade, rigor, proatividade, profissionalismo e ambição são alguns dos principais valores, que fazem parte do ADN dos nossos profissionais e é com estes princípios que lhe vamos prestar o melhor serviço!Se pretende vender ou comprar casa, confie-nos essa missão...INOVA IMOBILIÁRIA... MUITO + QUE VENDER CASAS!
AMI: 10088
Ref. Externa: IV-06875
Id: 1730137
Inicie sessão para guardar este imóvel e aceder à sua lista de favoritos em qualquer dispositivo.
350.000 €
Área bruta : 8368 m²
Vende-se Terreno com 8368m² em Gême, Vila Verde!Terreno localizado em zona de construção; Plano; Excelente exposição solar; Zona sossegada junto ao centro de Vila Verde!- Tratamos do seu crédito habitação, sem custos nem burocracias.A INOVA Imobiliária é intermediário de crédito autorizada pelo Banco de Portugal com o registo 934. Fazemos a gestão de todo o processo de financiamento, sempre com as melhores condições do mercado e sem qualquer custo associado.Venha Viver em Vila Verde!Inserido no seio de fantásticas paisagens verdes e banhado pelo Rio Homem e pelo Rio Cávado, Vila Verde é puro património natural. A localidade é passagem do Caminho de Santiago, palco de eventos emblemáticos como feiras e romarias. É uma terra marcada por monumentos históricos, excelente gastronomia minhota e cheia de vilaverdenses que preservam a todo o custo o artesanato português, como o linho e os Lenços de Namorados.Caracterizada pelos produtos da terra e as tradições locais, aqui vai descobrir o conforto de viver entre o campo e a cidade!A INOVA Imobiliária tem uma vasta carteira de imóveis em Vila Verde!Contacte já um dos nossos agentes e venha viver em Vila Verde!Se pretende vender ou comprar casa, confie-nos essa missão...INOVA IMOBILIÁRIA... MUITO + QUE VENDER CASAS!
AMI: 10088
Ref. Externa: IV-08770
Id: 1730126
Inicie sessão para guardar este imóvel e aceder à sua lista de favoritos em qualquer dispositivo.
79.900 €
Área bruta : 800 m²
Vende-se Terreno com 800m² em Gême, Vila Verde!Terreno localizado em zona industrial para construção de armazém com 540m² de área coberta; 480m² de implantação; Bons acessos junto à entrada do parque industrial!- Tratamos do seu crédito habitação, sem custos nem burocracias.A INOVA Imobiliária é intermediário de crédito autorizada pelo Banco de Portugal com o registo 934. Fazemos a gestão de todo o processo de financiamento, sempre com as melhores condições do mercado e sem qualquer custo associado.Razões para comprar com a INOVAO melhor acompanhamentoCom uma vasta experiência no mercado imobiliário desde 2006, a INOVA é composta por uma equipa de profissionais jovens e dinâmicos, altamente qualificados, sempre disponíveis para ajudar os seus clientes, orientando-os com a máxima confiança na direção certa para as suas necessidades.E como é importante que sinta que está acompanhado, após o primeiro contacto vamos criar uma relação próxima de forma a perceber as suas expectativas e posteriormente a realização dos seus sonhos, porque é essa a nossa prioridade!Menos burocraciasA INOVA Imobiliária dispõe de um serviço pós-venda, assegurado pelo nosso departamento processual, que para além de todo o acompanhamento burocrático no processo de compra e venda do seu imóvel, oferece também um serviço gratuito de aconselhamento e consultoria ao nível do financiamento bancário, uma vez que somos uma empresa licenciada pelo Banco de Portugal para prestar serviços de Intermediação de Crédito.Deixe para trás os pesadelos burocráticos porque connosco encontra o apoio fundamental para que a sua experiência imobiliária supere todas as expectativas.Satisfação dos nossos clientesA nossa missão é garantir a satisfação dos nossos clientes, cumprindo o objetivo de vender/comprar a sua casa, ao melhor preço, em tempo útil e sem problemas. Liberte-se de preocupações e ganhe o tempo que merece para se dedicar ao que realmente o faz feliz.Inovação, seriedade, honestidade, rigor, proatividade, profissionalismo e ambição são alguns dos principais valores, que fazem parte do ADN dos nossos profissionais e é com estes princípios que lhe vamos prestar o melhor serviço!Se pretende vender ou comprar casa, confie-nos essa missão...INOVA IMOBILIÁRIA... MUITO + QUE VENDER CASAS!
AMI: 10088
Ref. Externa: IV-08275
Id: 1730034
Inicie sessão para guardar este imóvel e aceder à sua lista de favoritos em qualquer dispositivo.
Sob consulta
Área bruta : 8280 m²
Vende-se Terreno com 8280m² na freguesia de Gême, Vila Verde!Terreno localizado em zona industrial;A facear com estrada nacional;Plano;Bons acessos!- Tratamos do seu crédito habitação, sem custos nem burocracias.A INOVA Imobiliária é intermediário de crédito autorizada pelo Banco de Portugal com o registo 934. Fazemos a gestão de todo o processo de financiamento, sempre com as melhores condições do mercado e sem qualquer custo associado.Razões para comprar com a INOVAO melhor acompanhamentoCom uma vasta experiência no mercado imobiliário desde 2006, a INOVA é composta por uma equipa de profissionais jovens e dinâmicos, altamente qualificados, sempre disponíveis para ajudar os seus clientes, orientando-os com a máxima confiança na direção certa para as suas necessidades.E como é importante que sinta que está acompanhado, após o primeiro contacto vamos criar uma relação próxima de forma a perceber as suas expectativas e posteriormente a realização dos seus sonhos, porque é essa a nossa prioridade!Menos burocraciasA INOVA Imobiliária dispõe de um serviço pós-venda, assegurado pelo nosso departamento processual, que para além de todo o acompanhamento burocrático no processo de compra e venda do seu imóvel, oferece também um serviço gratuito de aconselhamento e consultoria ao nível do financiamento bancário, uma vez que somos uma empresa licenciada pelo Banco de Portugal para prestar serviços de Intermediação de Crédito.Deixe para trás os pesadelos burocráticos porque connosco encontra o apoio fundamental para que a sua experiência imobiliária supere todas as expectativas.Satisfação dos nossos clientesA nossa missão é garantir a satisfação dos nossos clientes, cumprindo o objetivo de vender/comprar a sua casa, ao melhor preço, em tempo útil e sem problemas. Liberte-se de preocupações e ganhe o tempo que merece para se dedicar ao que realmente o faz feliz.Inovação, seriedade, honestidade, rigor, proatividade, profissionalismo e ambição são alguns dos principais valores, que fazem parte do ADN dos nossos profissionais e é com estes princípios que lhe vamos prestar o melhor serviço!Se pretende vender ou comprar casa, confie-nos essa missão...INOVA IMOBILIÁRIA... MUITO + QUE VENDER CASAS!
AMI: 10088
Ref. Externa: IV-06920
Id: 1730042
Inicie sessão para guardar este imóvel e aceder à sua lista de favoritos em qualquer dispositivo.
17.500 €
Área bruta : 1300 m²
Vende-se Terreno com 1300m² em Gême, Vila Verde!Terreno localizado em zona agrícola; Próximo da Vila!Bons acessos; Excelente exposição solar!- Tratamos do seu crédito habitação, sem custos nem burocracias.A INOVA Imobiliária é intermediário de crédito autorizada pelo Banco de Portugal com o registo 934. Fazemos a gestão de todo o processo de financiamento, sempre com as melhores condições do mercado e sem qualquer custo associado.Razões para comprar com a INOVAO melhor acompanhamentoCom uma vasta experiência no mercado imobiliário desde 2006, a INOVA é composta por uma equipa de profissionais jovens e dinâmicos, altamente qualificados, sempre disponíveis para ajudar os seus clientes, orientando-os com a máxima confiança na direção certa para as suas necessidades.E como é importante que sinta que está acompanhado, após o primeiro contacto vamos criar uma relação próxima de forma a perceber as suas expectativas e posteriormente a realização dos seus sonhos, porque é essa a nossa prioridade!Menos burocraciasA INOVA Imobiliária dispõe de um serviço pós-venda, assegurado pelo nosso departamento processual, que para além de todo o acompanhamento burocrático no processo de compra e venda do seu imóvel, oferece também um serviço gratuito de aconselhamento e consultoria ao nível do financiamento bancário, uma vez que somos uma empresa licenciada pelo Banco de Portugal para prestar serviços de Intermediação de Crédito.Deixe para trás os pesadelos burocráticos porque connosco encontra o apoio fundamental para que a sua experiência imobiliária supere todas as expectativas.Satisfação dos nossos clientesA nossa missão é garantir a satisfação dos nossos clientes, cumprindo o objetivo de vender/comprar a sua casa, ao melhor preço, em tempo útil e sem problemas. Liberte-se de preocupações e ganhe o tempo que merece para se dedicar ao que realmente o faz feliz.Inovação, seriedade, honestidade, rigor, proatividade, profissionalismo e ambição são alguns dos principais valores, que fazem parte do ADN dos nossos profissionais e é com estes princípios que lhe vamos prestar o melhor serviço!Se pretende vender ou comprar casa, confie-nos essa missão...INOVA IMOBILIÁRIA... MUITO + QUE VENDER CASAS!
AMI: 10088
Ref. Externa: IV-04028
Id: 1729952
Inicie sessão para guardar este imóvel e aceder à sua lista de favoritos em qualquer dispositivo.
20.000 €
Área bruta : 1300 m²
Vende-se Terreno com 1300m² em Gême, Vila Verde!Excelente exposição solar; Bons Acessos!- Tratamos do seu crédito habitação, sem custos nem burocracias.A INOVA Imobiliária é intermediário de crédito autorizada pelo Banco de Portugal com o registo 934. Fazemos a gestão de todo o processo de financiamento, sempre com as melhores condições do mercado e sem qualquer custo associado.Razões para comprar com a INOVAO melhor acompanhamentoCom uma vasta experiência no mercado imobiliário desde 2006, a INOVA é composta por uma equipa de profissionais jovens e dinâmicos, altamente qualificados, sempre disponíveis para ajudar os seus clientes, orientando-os com a máxima confiança na direção certa para as suas necessidades.E como é importante que sinta que está acompanhado, após o primeiro contacto vamos criar uma relação próxima de forma a perceber as suas expectativas e posteriormente a realização dos seus sonhos, porque é essa a nossa prioridade!Menos burocraciasA INOVA Imobiliária dispõe de um serviço pós-venda, assegurado pelo nosso departamento processual, que para além de todo o acompanhamento burocrático no processo de compra e venda do seu imóvel, oferece também um serviço gratuito de aconselhamento e consultoria ao nível do financiamento bancário, uma vez que somos uma empresa licenciada pelo Banco de Portugal para prestar serviços de Intermediação de Crédito.Deixe para trás os pesadelos burocráticos porque connosco encontra o apoio fundamental para que a sua experiência imobiliária supere todas as expectativas.Satisfação dos nossos clientesA nossa missão é garantir a satisfação dos nossos clientes, cumprindo o objetivo de vender/comprar a sua casa, ao melhor preço, em tempo útil e sem problemas. Liberte-se de preocupações e ganhe o tempo que merece para se dedicar ao que realmente o faz feliz.Inovação, seriedade, honestidade, rigor, proatividade, profissionalismo e ambição são alguns dos principais valores, que fazem parte do ADN dos nossos profissionais e é com estes princípios que lhe vamos prestar o melhor serviço!Se pretende vender ou comprar casa, confie-nos essa missão...INOVA IMOBILIÁRIA... MUITO + QUE VENDER CASAS!
AMI: 10088
Ref. Externa: IV-04027
Id: 1729954
Inicie sessão para guardar este imóvel e aceder à sua lista de favoritos em qualquer dispositivo.
17.000 €
Área de terreno : 1210 m²
Terreno em Gême, Vila Verde - Braga.Terreno rústico, com 1210m² de bouça.Ótimos acessos e bem localizado em Gême, Vila Verde.Para mais informações e agendamento de visita, entre em contato:com a Predimed Principal e agende uma visita.Predimed Principal: A Sua Parceira de Confiança no Mercado Imobiliário á mais de 20 anos!Na Predimed Principal, dedicamo-nos a encontrar o lar dos seus sonhos e a maximizar o valor do seu investimento. Com uma equipa experiente e altamente qualificada, oferecemos um serviço personalizado, desde a compra e venda de imóveis até arrendamentos e gestão de propriedades.- Porquê Escolher a Predimed Principal?- -Experiência Comprovada: - Anos de conhecimento no mercado imobiliário, ajudando clientes a realizar os seus sonhos.- -Atendimento Personalizado: - Ouvimos as suas necessidades e trabalhamos para encontrar a solução ideal.- -Diversidade de Imóveis: - Uma vasta gama de opções que vai desde apartamentos modernos a moradias familiares.- -Apoio Completo: - Acompanhamento em todas as etapas do processo, garantindo uma experiência tranquila e segura.Na Predimed Principal, a sua satisfação é a nossa prioridade. Entre em contato connosco e deixe-nos ajudá-lo a encontrar o imóvel perfeito!
AMI: 22503
Ref. Externa: PD-045517
Id: 1725419
Inicie sessão para guardar este imóvel e aceder à sua lista de favoritos em qualquer dispositivo.
Profissionais que conhecem esta zona a fundo — contacte-os para uma avaliação personalizada.
75.000 €
Área de terreno : 1670 m²
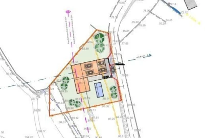
Excelente oportunidade de investimento em terreno urbano com 1.670m², ideal para construção de moradia unifamiliar. Localizado em Gême, Vila Verde, numa zona tranquila e com fácil acesso a serviços, comércio e transportes.O terreno apresenta uma excelente exposição solar e está pronto para construção, oferecendo um projeto flexível para quem procura espaço, privacidade e qualidade de vida. A área generosa permite jardins, piscina e outras amenidades, adaptando-se ao seu projeto residencial.· Área total: 1.670m²· Terreno urbano para construção de moradia· Localização privilegiada em Gême, Vila Verde· Bons acessos e proximidade a comércio, escolas e serviços· Excelente exposição solar e ambiente tranquiloNão perca esta oportunidade de construir a casa dos seus sonhos num dos concelhos mais procurados da
AMI: 22503
Ref. Externa: PD-057628
Id: 1723930
Inicie sessão para guardar este imóvel e aceder à sua lista de favoritos em qualquer dispositivo.
70.000 €
Área de terreno : 1536 m²
Terreno urbano para moradia - 1.536m² em Gême, Vila VerdeMagnífico terreno urbano com 1.536m², localizado no Lugar da Igreja, em Gême, com viabilidade para moradia unifamiliar com piscina. Inserido numa zona residencial calma e pouco densificada, proporciona excelente privacidade, tranquilidade e ótima exposição solar, ideal para quem valoriza conforto e qualidade de vida.A localização permite estar a poucos minutos do centro de Vila Verde, escolas, comércio e serviços, com rápidos acessos a Braga, EN 101 e A3.Uma oportunidade única para construir a sua moradia de sonho ou realizar um investimento seguro com elevado potencial de valorização.
AMI: 22503
Ref. Externa: PD-057626
Id: 1723931
Inicie sessão para guardar este imóvel e aceder à sua lista de favoritos em qualquer dispositivo.
350.000 €
Área de terreno : 8368 m²
Vende-se Terreno com 8368m2 em Gême, Vila Verde! Terreno localizado em zona de construção; Plano; Excelente exposição solar; Zona sossegada junto ao centro de Vila Verde! ***Tratamos do seu crédito habitação, sem custos nem burocracias. A INOVA Imobiliária é intermediário de crédito autorizada pelo Banco de Portugal com o registo 934. Fazemos a gestão de todo o processo de financiamento, sempre com as melhores condições do mercado e sem qualquer custo associado. Venha Viver em Vila Verde! Inserido no seio de fantásticas paisagens verdes e banhado pelo Rio Homem e pelo Rio Cávado, Vila Verde é puro património natural. A localidade é passagem do Caminho de Santiago, palco de eventos emblemáticos como feiras e romarias. É uma terra marcada por monumentos históricos, excelente gastronomia minhota e cheia de vilaverdenses que preservam a todo o custo o artesanato português, como o linho e os Lenços de Namorados. Caracterizada pelos produtos da terra e as tradições locais, aqui vai descobrir o conforto de viver entre o campo e a cidade! A INOVA Imobiliária tem uma vasta carteira de imóveis em Vila Verde! Contacte já um dos nossos agentes e venha viver em Vila Verde! Se pretende vender ou comprar casa, confie-nos essa missão... INOVA IMOBILIÁRIA... MUITO + QUE VENDER CASAS!
AMI: 10088
Ref. Externa: 08770
Id: 1671726
Inicie sessão para guardar este imóvel e aceder à sua lista de favoritos em qualquer dispositivo.
75.000 €
Área de terreno : 1670 m²
Excelenteoportunidade de investimento em terreno urbano com 1.670 m², ideal paraconstrução de moradia unifamiliar. Localizado em Gême, Vila Verde, numa zonatranquila e com fácil acesso a serviços, comércio e transportes.O terreno apresentauma excelente exposição solar e está pronto para construção, oferecendo umprojeto flexível para quem procura espaço, privacidade e qualidade de vida. Aárea generosa permite jardins, piscina e outras amenidades, adaptando-se ao seuprojeto residencial.· Áreatotal: 1.670 m²· Terrenourbano para construção de moradia· Localizaçãoprivilegiada em Gême, Vila Verde· Bonsacessos e proximidade a comércio, escolas e serviços· Excelenteexposição solar e ambiente tranquiloNão perca estaoportunidade de construir a casa dos seus sonhos num dos concelhos maisprocurados daPredimed Imobiliária, Mediação Imobiliária, Lda.Avenida Brasil 43, 12º Andar, 1700-062 LisboaLicença AMI nº 22503Pessoa Coletiva nº 517 239 345Seguro Responsabilidade Civil: Nº de Apólice RC65379424 Fidelidade
AMI: 13558
Ref. Externa: 057628
Id: 1564716
Inicie sessão para guardar este imóvel e aceder à sua lista de favoritos em qualquer dispositivo.
70.000 €
Área de terreno : 1536 m²
Terreno urbano para moradia –1.536 m² em Gême, Vila VerdeMagnífico terreno urbano com 1.536 m², localizado no Lugarda Igreja, em Gême, com viabilidade para moradia unifamiliar com piscina.Inserido numa zona residencial calma e pouco densificada, proporciona excelenteprivacidade, tranquilidade e ótima exposição solar, ideal para quem valorizaconforto e qualidade de vida.A localização permite estar a poucos minutos do centrode Vila Verde, escolas, comércio e serviços, com rápidos acessos a Braga, EN101 e A3.Uma oportunidade única para construir a sua moradia desonho ou realizar um investimento seguro com elevado potencial de valorização.Predimed Imobiliária, Mediação Imobiliária, Lda.Avenida Brasil 43, 12º Andar, 1700-062 LisboaLicença AMI nº 22503Pessoa Coletiva nº 517 239 345Seguro Responsabilidade Civil: Nº de Apólice RC65379424 Fidelidade
AMI: 13558
Ref. Externa: 057626
Id: 1564715
Inicie sessão para guardar este imóvel e aceder à sua lista de favoritos em qualquer dispositivo.
205.000 €
Área de terreno : 3144 m²
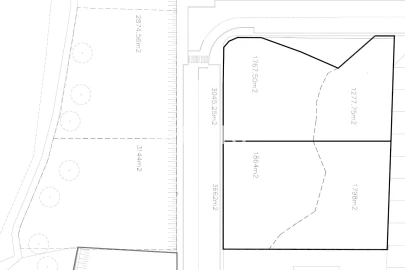
Lote Industrial em Geme, Vila Verde – 3.144 m² Excelente oportunidade de investimento! Apresenta-se este lote industrial com 3.144 m², localizado na freguesia de Geme, Vila Verde, uma zona em crescimento e com ótimos acessos rodoviários. O terreno insere-se em área destinada a atividade industrial e logística, ideal para a construção de armazém, pavilhão ou instalação fabril. Dispõe de bons acessos para veículos pesados, infraestruturas próximas (eletricidade, água e saneamento) e excelente exposição solar. A localização estratégica, a poucos minutos do centro de Vila Verde e com rápido acesso à EN101 e à A3 (Braga–Porto), torna este lote perfeito para empresas que procuram espaço para expansão ou novas instalações. Características principais: • Área total: 3.144 m² • Inserido em zona industrial • Bons acessos e visibilidade • Potencial de construção industrial/logística • Próximo de Braga e principais vias de comunicação Ideal para investimento, instalação de pavilhão industrial ou sede empresarial. O Grupo Mérito foi fundado no ano 2000 e desde logo procurou cimentar uma posição de solidez, competência e credibilidade junto dos mais diversos atores do mercado imobiliário, nomeadamente através de uma equipa que, desde logo, se compôs por profissionais com competência técnica e experiência. Atento à responsabilidade de prestar um serviço de excelente qualidade, foi pelo Grupo Mérito definida uma nova estratégia de crescimento geográfica, que levou à abertura de novas lojas nas cidades de Barcelos, Guimarães, Vila do Conde, Vila Nova de Famalicão, Porto e Póvoa do Varzim, contando com cerca de 40 consultores e uma carteira de imóveis alargada e diversificada. Sempre "de portas abertas para fazer bons negócios", o Grupo Mérito rege-se por um conjunto de princípios e valores que se têm revelado fatores de sucesso no setor imobiliário: sigilo profissional sobre factos e documentos, elevado sentido de responsabilidade, dever de informação e defesa intransigente dos interesses de todos os seus clientes. A experiência, a credibilidade e a competência do Grupo Mérito, são reconhecidas tanto pelos promotores imobiliários como pelos compradores (sejam Particulares, Empresas ou Investidores). Só assim é possível estabelecer relações fortes com instituições públicas e privadas e com as restantes mediadoras. Aguardamos a sua visita em qualquer uma das nossas sete lojas do Grupo Mérito… porque o nosso Mérito é Investir em Si.
AMI: 4760
Ref. Externa: MI-A/0261
Id: 1444903
Inicie sessão para guardar este imóvel e aceder à sua lista de favoritos em qualquer dispositivo.
55.000 €
Área de terreno : 969 m²
Apresentamos um lote com projeto aprovado , com uma área de 969m² . Um lote localizado perto do centro de vila verde, com bons acessos e boa exposição solar. Zona com crescente valorização e infraestrutura consolidada Não perca esta grande oportunidade!!
AMI: 22624
Ref. Externa: PAR_342
Id: 1371792
Inicie sessão para guardar este imóvel e aceder à sua lista de favoritos em qualquer dispositivo.
65.000 €
Área de terreno : 3314 m²
Apresentamos um excelente lote para construção com uma área de 3314m² . Um lote localizado perto do centro de vila verde, com bons acessos e boa exposição solar. Zona com crescente valorização e infraestrutura consolidada. Não perca esta grande oportunidade!!
AMI: 22624
Ref. Externa: PAR_343
Id: 1371791
Inicie sessão para guardar este imóvel e aceder à sua lista de favoritos em qualquer dispositivo.
79.000 €
Área de terreno : 5000 m²
Vende-se Terreno com aproximadamente 5000m2 em Gême, Vila Verde! Terreno com 2000m2 localizado em zona de floresta de produção e 3000m2 em zona agrícola; Possui 2 artigos; Bons acessos; Excelente exposição solar; A poucos minutos do centro de Vila Verde! ***Tratamos do seu crédito habitação, sem custos nem burocracias. A INOVA Imobiliária é intermediário de crédito autorizada pelo Banco de Portugal com o registo 934. Fazemos a gestão de todo o processo de financiamento, sempre com as melhores condições do mercado e sem qualquer custo associado. Razões para comprar com a INOVA O melhor acompanhamento Com uma vasta experiência no mercado imobiliário desde 2006, a INOVA é composta por uma equipa de profissionais jovens e dinâmicos, altamente qualificados, sempre disponíveis para ajudar os seus clientes, orientando-os com a máxima confiança na direção certa para as suas necessidades. E como é importante que sinta que está acompanhado, após o primeiro contacto vamos criar uma relação próxima de forma a perceber as suas expectativas e posteriormente a realização dos seus sonhos, porque é essa a nossa prioridade! Menos burocracias A INOVA Imobiliária dispõe de um serviço pós-venda, assegurado pelo nosso departamento processual, que para além de todo o acompanhamento burocrático no processo de compra e venda do seu imóvel, oferece também um serviço gratuito de aconselhamento e consultoria ao nível do financiamento bancário, uma vez que somos uma empresa licenciada pelo Banco de Portugal para prestar serviços de Intermediação de Crédito. Deixe para trás os pesadelos burocráticos porque connosco encontra o apoio fundamental para que a sua experiência imobiliária supere todas as expectativas. Satisfação dos nossos clientes A nossa missão é garantir a satisfação dos nossos clientes, cumprindo o objetivo de vender/comprar a sua casa, ao melhor preço, em tempo útil e sem problemas. Liberte-se de preocupações e ganhe o tempo que merece para se dedicar ao que realmente o faz feliz. Inovação, seriedade, honestidade, rigor, proatividade, profissionalismo e ambição são alguns dos principais valores, que fazem parte do ADN dos nossos profissionais e é com estes princípios que lhe vamos prestar o melhor serviço! Se pretende vender ou comprar casa, confie-nos essa missão... INOVA IMOBILIÁRIA... MUITO + QUE VENDER CASAS!
AMI: 10088
Ref. Externa: 08649
Id: 1239264
Inicie sessão para guardar este imóvel e aceder à sua lista de favoritos em qualquer dispositivo.
220.000 €
Área de terreno : 7344 m²
Descubra uma oportunidade única para investir num terreno exclusivo na encantadora cidade de Gême. Com uma excelente área, este terreno oferece imensas possibilidades para construir a sua casa de sonho ou desenvolver um projeto comercial. Localizado numa zona tranquila e repleta de história, Gême é um verdadeiro refúgio para quem procura tranquilidade sem abrir mão das comodidades do dia a dia. A poucos minutos a pé, encontrará a Escola Básica de Gême, uma instituição de ensino primário e secundário que garante uma educação de qualidade aos alunos da região. Para as suas compras diárias, o supermercado Intermarché fica a uma curta distância, assegurando que terá sempre tudo o que precisa ao seu alcance. E se quiser desfrutar de uma refeição autêntica, o restaurante Quinta da Aldeia está apenas a alguns passos de distância, oferecendo uma experiência culinária única e aconchegante. Em Gême, a história e a tranquilidade encontram-se num cenário pitoresco, proporcionando uma qualidade de vida invejável. Aproveite esta oportunidade única de adquirir um terreno neste local encantador e comece a construir o seu futuro hoje mesmo. Agende uma visita e apaixone-se pela magia de Gême. Excluído do SCE, ao abrigo da alínea f), do artigo 4.º, do Dec-Lei N.º 118/2013 de 20 de agosto Marque uma visita e comece a viver seus sonhos hoje mesmo. Pode também contar com a nossa ajuda na Intermediação de Crédito, uma vez que a CALCULACERTADO - Mediação Imobiliária Lda, Lic. AMI 10030, está registada junto do Banco de Portugal, como Intermediário de Crédito Vinculado, sob o nº 4786, verificável em https://www.bportugal.pt/intermediariocreditofar/calculacertado-lda
AMI: 10030
Ref. Externa: 589753
Id: 1102654
Inicie sessão para guardar este imóvel e aceder à sua lista de favoritos em qualquer dispositivo.
© Copyright 2023 | CASACERTA. All rights reserved
Guardar favoritos
Este imóvel foi guardados nos seus favoritos com sucesso.
Para poder guardar pesquisa deverá ter a sua sessão iniciada.
Caso não tenha uma conta, deverá criar uma.
A sua pesquisa foi guardada com sucesso!
Este site utiliza cookies. Ao navegar no site estará a consentir a sua utilização.
Para mais informações sobre os cookies pode consultar a
política de privacidade.