Lista
Comprar
Arrendar
Área de terreno : 470 m²
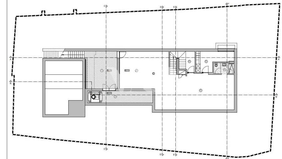
Oportunidade de investimento em Vale da Boa Hora - Loulé, Terreno urbano com 470 m², inserido em zona tranquila, de enquadramento natural e boa exposição solar, com projeto aprovado para construção de moradia familiar de dois pisos, pronto a iniciar obra, evitando demoras e incertezas de licenciamento.Projeto da Moradia: 3 quartos, sendo 1 em suíte com vestiário, 3 wc, com uma sala de estar ampla e luminosa, lavandaria, arrumos e carpot 2 automóveisA moradia foi concebida para oferecer conforto, funcionalidade e excelente aproveitamento de áreas, privilegiando a ligação ao espaço exterior, com potencial para jardim, zona de lazer e eventual piscina.Localização estratégica, a poucos minutos da autoestrada, do centro de Loulé e do aeroporto Internacional de Faro, com bons acessos, privacidade e ambiente campestre, ideal para residência permanente, segunda habitação ou investimento numa das zonas mais valorizadas do Algarve.Uma propriedade que reúne localização, dimensão e comodidade.Área do terreno: 470 m² -VU: 468,08 €/m²Descubra um projeto onde conforto, espaço e qualidade de vida se encontram de forma harmoniosa.+351 936 662 926 (chamada para rede móvel nacional) - [email protected] Imobiliária, Mediação Imobiliária, Lda.Avenida Brasil 43, 12º Andar, 1700-062 LisboaLicença AMI nº 22503Pessoa Coletiva nº 517 239 345Seguro Responsabilidade Civil: Nº de Apólice RC65379424 Fidelidade Características: Anexos;Arrecadação;Estacionamento Ar-Livre;Estacionamento Coberto;Jardim;Muro;Telheiro;Terraço;Vedação;Churrasqueira;Varanda;Árvores de Frutos;Campo;Terreno;Vista para Campo;Vista para Montanha
AMI: 13558
Ref. Externa: 058694
Id: 1690336
Inicie sessão para guardar este imóvel e aceder à sua lista de favoritos em qualquer dispositivo.
Área de terreno : 3400 m²
Terreno rústico com 3400 m², localizado em Matos da Picota, Loulé. Com estrada pavimentada a 300 metros o terreno localiza-se numa zona calma, com uma excelente vista panorâmica serra e mar. Conta com 15 alfarrobeiras. Há possibilidade de ser vendido com um contentor com 13,5 m de comprimento e 2,6 m de largura, com isolamento térmico e contador de eletricidade e ligação à rede elétrica. Contacte para mais informações ou agendamento de visita. #ref: 832983
AMI: 11220
Ref. Externa: 832983
Id: 1671738
Inicie sessão para guardar este imóvel e aceder à sua lista de favoritos em qualquer dispositivo.
Área de terreno : 14399 m²
Terreno com ruína independente para renovação, situado na tranquila encosta oriental do Cerro Cabeça de Câmara em Loulé, oferecendo privacidade, natureza e excelente potencial. A ruína existente pode ser reconstruída ou renovada até 300 m² num único piso, além de um terraço coberto e cave. A posição elevada oferece vistas abertas sobre a encosta verde e para o mar, criando um ambiente calmo e inspirador. A apenas cinco minutos do Mercado Municipal de Loulé e a menos de quinze minutos das praias de Quarteira e Vilamoura, esta é uma excelente oportunidade para criar uma casa permanente ou um projeto turístico numa localização privilegiada para o Algarve.
AMI: 7286
Ref. Externa: RPO2313P
Id: 1669585
Inicie sessão para guardar este imóvel e aceder à sua lista de favoritos em qualquer dispositivo.
Área de terreno : 3300 m²
Terreno Rústico com área total de 3300m. Situado em Vale Judeu, junto à estrada, totalmente vedado e com instalação elétrica. Os acessos facilitados à estrada, e o portão de acesso de dimensões generosas, permite que possa aceder à propriedade com maquinaria de porte pesado se necessário. As características da propriedade podem enquadrar-se num projeto agrícola. Neste momento encontra-se a ser utilizado para estaleiro. Este terreno permite o contacto com a natureza, ideal para quem valoriza a tranquilidade, privacidade e autonomia, sem abdicar da proximidade à cidade. Estando simultâneo próximo de uma das zonas mais procuradas do Algarve: Vilamoura - aprox. 6Km Quarteira - aprox. 8 Km Faro - aprox. 21 Km Na KW Flash partilhamos 50/50 com todos os profissionais do setor com licença AMI válida. Se é profissional do setor e tem um cliente qualificado, contacte-me para agendamento, pois este imóvel encontra-se em exclusivo. Marque a sua visita: Ana Antunes | +351 966 334 404
AMI: 23350
Ref. Externa: KWPT-027092
Id: 1647654
Inicie sessão para guardar este imóvel e aceder à sua lista de favoritos em qualquer dispositivo.
Área de terreno : 1459 m²
Descubra esta oportunidade única de adquirir uma ruína com potencial ilimitado numa localização privilegiada no coração de Loulé. Com acesso fácil e proximidade a todas as comodidades, este terreno de 1459m2 promete vistas deslumbrantes para o mar e para o campo. Localizado num bairro tranquilo e pitoresco, onde a vida quotidiana se funde na perfeição com a história e modernidade, este imóvel oferece uma oportunidade única para criar a casa dos seus sonhos. Com orientação solar a Sul e a Este, desfrute da luz natural abundante durante todo o dia. A apenas 30 minutos do aeroporto e da praia, e com fácil acesso à cidade e às montanhas, esta ruína é o refúgio perfeito para quem procura um local pacífico e relaxante. A proximidade do supermercado Lisete Mendes Guerreiro Guia e de outras conveniências a uma curta caminhada de distância garante uma vida prática e simples para residentes e visitantes. Não perca a oportunidade de transformar esta ruína num retiro paradisíaco e fazer parte de uma comunidade acolhedora e vibrante. Agende já uma visita e deixe-se encantar pela magia deste lugar único. ___________________________________________________________________________________________________________________________________________________________________ Discover this unique opportunity to acquire a ruin with unlimited potential in a prime location in the heart of Loulé. With easy access and proximity to all amenities, this 1459m2 plot promises breathtaking views of the sea and countryside. Located in a quiet and picturesque neighborhood, where daily life blends perfectly with history and modernity, this property offers a unique opportunity to create the home of your dreams. With south and east-facing orientation, enjoy abundant natural light throughout the day. Just 30 minutes from the airport and the beach, and with easy access to the city and mountains, this ruin is the perfect retreat for those seeking a peaceful and relaxing location. The proximity to the Lisete Mendes Guerreiro Guia supermarket and other conveniences within a short walk ensures a practical and simple life for residents and visitors. Don't miss the opportunity to transform this ruin into a paradisiacal retreat and become part of a welcoming and vibrant community. Schedule a visit now and let yourself be enchanted by the magic of this unique place. __________________________________________________________________________________________________________________________________________________________________ Découvrez cette opportunité unique d'acquérir une ruine au potentiel illimité, idéalement située au cur de Loulé. Facile d'accès et proche de toutes les commodités, ce terrain de 1459 m² offre des vues imprenables sur la mer et la campagne. Située dans un quartier calme et pittoresque, où l'histoire et la modernité se conjuguent harmonieusement, cette propriété vous offre une occasion unique de créer la maison de vos rêves. Orientée sud et est, elle bénéficie d'une luminosité naturelle abondante tout au long de la journée. À seulement 30 minutes de l'aéroport et de la plage, et avec un accès facile à la ville et aux montagnes, cette ruine est le refuge idéal pour ceux qui recherchent la tranquillité et la sérénité. La proximité du supermarché Lisete Mendes Guerreiro Guia et d'autres commerces de proximité, accessibles à pied, garantit un quotidien pratique et agréable aux résidents comme aux visiteurs. Ne manquez pas cette opportunité de transformer cette ruine en un havre de paix et de vous intégrer à une communauté accueillante et dynamique. Planifiez une visite dès maintenant et laissez-vous charmer par la magie de ce lieu unique. _______________________________________________________________________________________________________________________________________________________________ Entdecken Sie diese einzigartige Gelegenheit, eine Ruine mit unbegrenztem Potenzial in bester Lage im Herzen von Loulé zu erwerben. Dank der guten Anbindung und der Nähe zu allen Annehmlichkeiten bietet dieses 1459 m² große Grundstück einen atemberaubenden Blick auf das Meer und die umliegende Landschaft. In einer ruhigen und malerischen Gegend gelegen, wo sich Alltag, Geschichte und Moderne harmonisch verbinden, bietet Ihnen diese Immobilie die einmalige Chance, Ihr Traumhaus zu verwirklichen. Die Ausrichtung nach Süden und Osten sorgt für viel natürliches Licht den ganzen Tag über. Nur 30 Minuten vom Flughafen und Strand entfernt und mit guter Anbindung an die Stadt und die Berge ist diese Ruine der perfekte Rückzugsort für alle, die Ruhe und Entspannung suchen. Der Supermarkt Lisete Mendes Guerreiro Guia und weitere Geschäfte des täglichen Bedarfs sind fußläufig erreichbar und gewährleisten ein komfortables und unkompliziertes Leben für Bewohner und Besucher. Verpassen Sie nicht die Gelegenheit, diese Ruine in ein paradiesisches Refugium zu verwandeln und Teil einer einladenden und lebendigen Gemeinschaft zu werden. Vereinbaren Sie noch heute einen Besichtigungstermin und lassen Sie sich vom Zauber dieses einzigartigen Ortes verzaubern.
AMI: 8436
Ref. Externa: 1088-220
Id: 1591503
Inicie sessão para guardar este imóvel e aceder à sua lista de favoritos em qualquer dispositivo.
Área de terreno : 4690 m²
Este lote vem com um projeto aprovado para o desenvolvimento de uma Casa de Campo no âmbito do Turismo Rural, com uma moradia de 2 quartos complementada por 10 quartos adicionais en-suite, uma espaçosa sala de estar, uma cozinha e um spa de luxo. O projeto também inclui uma deslumbrante piscina em estilo lagoa/ praia, projetada para se misturar harmoniosamente com o ambiente natural. Os planos aprovados permitem uma área bruta total de construção de até 1.060m² acima do solo, oferecendo amplo espaço para um retiro exclusivo. Idealmente situada numa localização privilegiada em Loulé, perto de Parragil, esta propriedade oferece vistas panorâmicas deslumbrantes que se estendem por toda a costa do Algarve, incluindo Albufeira, Quarteira, Vilamoura e Faro. Este projeto é perfeito para quem procura uma residência rural de sonho com o benefício adicional de gerar rendimento através de oportunidades de arrendamento turístico, tornando-se um investimento excecional no Algarve.
AMI: 7286
Ref. Externa: RP2083P
Id: 1577774
Inicie sessão para guardar este imóvel e aceder à sua lista de favoritos em qualquer dispositivo.
Área de terreno : 8200 m²
Terreno para venda em Boliqueime, Loulé, junto à EN270, nas Campinas. Este terreno está classificado no PDM de Loulé como inserido em "novas zonas industriais". Acesso imediato à A22 (Via do Infante) e EN 125. Apesar do terreno estar inserido em novas zonas industriais não lhe garante a capacidade construtiva, deverá consultar a C.M. de Loulé.
AMI: 15990
Ref. Externa: 01-395-2
Id: 1577369
Inicie sessão para guardar este imóvel e aceder à sua lista de favoritos em qualquer dispositivo.
Área de terreno : 7971 m²
Rodeado por uma paisagem pitoresca e marcada por árvores típicas da região, nomeadamente 18 figueiras, 18 amendoeiras, 4 oliveiras e 3 alfarrobeiras entre outras. Graças ao seu solo fértil e às suas dimensões, este espaço abre portas a múltiplas possibilidades de exploração agrícola, permitindo criar um projeto sustentável e produtivo, em harmonia com o meio envolvente. Embora não seja possível construir, este terreno é perfeito para quem valoriza a terra e deseja investir com consciência, seja para cultivo ou simplesmente para desfrutar da serenidade rural.
AMI: 5604
Ref. Externa: 1009-2395
Id: 1573773
Inicie sessão para guardar este imóvel e aceder à sua lista de favoritos em qualquer dispositivo.
Área de terreno : 2596 m²
Propriedade bem localizada perto de Almancil, em Cerro Cabeça de Câmara numa envolvente com moradias de qualidade em zona tranquila. A propriedade está orienta a Sul com excelente exposição solar. Lote de terreno de 2.596 m2 que dispõe de todas as infra-estruturas, furo de água e bom acesso. A propriedade encontra-se inserida numa zona urbana permitindo uma área máxima de construção de 450 m2 + cave + piscina, 1 ou 2 moradias. Localizada perto das praias e apenas a 20 minutos do Aeroporto de Faro. Agende a sua visita!!! AlgarveProperty.com - AMI: 2196 - T.: 00351 289310310
AMI: 2196
Ref. Externa: TC268836J
Id: 1564922
Inicie sessão para guardar este imóvel e aceder à sua lista de favoritos em qualquer dispositivo.
Área de terreno : 1640 m²
Encantador terreno rústico com 1640 m², situado numa zona tranquila e envolvida pela natureza. A propriedade oferece uma vista desafogada para sul, com vista mar, perfeita para quem procura um refúgio de paz no coração do Algarve. O terreno conta com várias árvores de fruto, bons acessos e excelente exposição solar durante todo o dia. A sua localização é privilegiada: Apenas 10 minutos de Loulé, 9 minutos de Boliqueime, 20 minutos das praias de Quarteira e Vilamoura, E 5 minutos do acesso à A22. Ideal para quem valoriza o contacto com a natureza, tranquilidade e proximidade a todos os serviços essenciais.
AMI: 23350
Ref. Externa: KWPT-023495
Id: 1558358
Inicie sessão para guardar este imóvel e aceder à sua lista de favoritos em qualquer dispositivo.
Área de terreno : 535 m²
Fantástico lote de terreno virado a sul com planeamento para construir uma Moradia Isolada T4, moderna, na zona de Loulé. O projeto para esta moradia, com vista virada a sul, conta também com piscina e jardim para o mar. O terreno fica a 5 minutos a pé da estação ferroviária de Loulé e a 5 minutos de carro de Vilamoura/Quarteira onde pode encontrar restaurantes, farmácias, hospital, comércio local e todo o tipo de serviços. Marque já a sua visita através do nosso website! (Visite a seção vídeos para ficar a saber como o fazer!) Para mais informações não hesite em contactar. 'A SUA CASA NO ALGARVE'
AMI: 8923
Ref. Externa: GP_902_VEND
Id: 1508754
Inicie sessão para guardar este imóvel e aceder à sua lista de favoritos em qualquer dispositivo.
Área de terreno : 1430 m²
A propriedade conta com uma rica vegetação nativa, onde se destaca um pomar tradicional composto por alfarrobeiras, amendoeiras e várias figueiras entre outras. O solo, de elevada qualidade, proporciona ótimas condições para o desenvolvimento de projetos agrícolas sustentáveis, promovendo produtividade em sintonia com o meio ambiente. O acesso por estrada asfaltada facilita a logística de qualquer atividade rural. A construção não está permitida nesta zona, mas este lote representa uma excelente oportunidade para quem deseja investir na terra, praticar agricultura consciente ou simplesmente usufruir da serenidade e do valor ecológico.
AMI: 5604
Ref. Externa: 1009-2393
Id: 1477944
Inicie sessão para guardar este imóvel e aceder à sua lista de favoritos em qualquer dispositivo.
Área de terreno : 963 m²
A ruína está situada no ponto mais alto do terreno, o que otimiza a vista, e o terreno possui um ligeiro declive ideal para a criação de um jardim espetacular. Com acesso asfaltado, a localização é bastante central, a poucos quilómetros da cidade de Loulé. Além disso, todos os serviços essenciais como saneamento básico e eletricidade estão disponíveis para ligação, o que facilitará bastante o processo de construção. Embora existam algumas casas vizinhas nas redondezas, a privacidade da propriedade é totalmente preservada. A sua excelente localização permite desfrutar da tranquilidade do campo, mantendo todas as conveniências por perto. Nas imediações, encontrará também pontos de interesse ideais para longos e relaxantes passeios, permitindo a observação da natureza,. Esta é sem dúvida uma oportunidade fantástica para criar um refúgio personalizado sem comprometer a conveniência.
AMI: 5604
Ref. Externa: 1009-2399
Id: 1443052
Inicie sessão para guardar este imóvel e aceder à sua lista de favoritos em qualquer dispositivo.
Área de terreno : 1239 m²
Descubra uma oportunidade rara no coração do Algarve. Localizada nas colinas tranquilas de Parragil, esta propriedade oferece uma vantagem única na criação da sua casa de luxo de sonho. Com vista panorâmica para o mar e uma posição tranquila no final de um beco sem saída, esta é uma localização privilegiada que oferece paz e privacidade, mas a poucos minutos das vibrantes cidades de Loulé e Boliqueime. Por que esperar anos pela permissão de planejamento? Este imóvel é vendido com projeto municipal totalmente aprovado, sendo que a construção bruta (estrutura e paredes) já está concluída. Isso remove todo o risco, burocracia e incerteza do processo de construção, economizando tempo e dinheiro inestimáveis. Você entra na fase emocionante: escolher os acabamentos para personalizar sua casa. Os planos aprovados são para uma magnífica moradia de 4 quartos e 4 casas de banho projetada para uma vida moderna e para maximizar as vistas deslumbrantes: Térreo: Possui dois espaçosos quartos com banheiro privativo e uma impressionante sala de estar e cozinha em plano aberto. As janelas panorâmicas inundam o espaço de luz e conduzem diretamente ao futuro terraço da piscina. Primeiro andar: Lar de dois quartos principais com casa de banho privativa, ambos com vistas deslumbrantes sobre o mar e acesso a um terraço privado. Terraço na cobertura: Um grande espaço privativo na cobertura oferece o melhor "sky lounge" para banhos de sol, entretenimento ou simplesmente apreciar as vistas de 360 graus. Porão: Um nível inferior substancial inclui uma grande garagem para três carros, uma despensa e um banheiro. A oportunidade de bônus: terreno urbano adjacente incluído. Esta venda inclui exclusivamente um terreno urbano adjacente e separado. Este é um ativo incrível, dando a você a flexibilidade de: Construa uma casa de hóspedes separada para a família ou funcionários. Construa uma segunda moradia como investimento para arrendamento. Crie um extenso jardim privado e complexo de lazer. Esta é a solução perfeita para quem quer construir e personalizar a sua própria propriedade no Algarve, com permissão de construção garantida e uma vantagem significativa.
AMI: 5604
Ref. Externa: 1001-2402
Id: 1439022
Inicie sessão para guardar este imóvel e aceder à sua lista de favoritos em qualquer dispositivo.
Área de terreno : 1800 m²
Plano e rústico este terreno com 1800m2 e vista mar. Composto por cultura arvense, alfarrobeira e oliveira. Localizado num ponto alto oferece uma vista ampla a sul e norte. Confina a sul por estrada alcatroada, perto de todos os serviços. Agua e luz perto A 2 Km de Vale Judeu A 9 km de Quarteira A 11 Km de Loulé A 19 Km de Faro A Localização e coordenadas; 37°07'22.3"N 8°05'00.5"W 37.122867, -8.083476
AMI: 23329
Ref. Externa: KWPT-021288
Id: 1432002
Inicie sessão para guardar este imóvel e aceder à sua lista de favoritos em qualquer dispositivo.
Área de terreno : 1750 m²
Terreno rústico com 1750m2 em Sobradinho, Loulé. Localizado junto á estrada alcatroada e a 5 Km de Loulé. De momento estão em curso as obras de saneamento básico e colocação de água municipal. Terreno com ligeiro declive. Exposição solar norte e nascente. Terreno parcialmente limpo. Composto de várias árvores de sequeiro, oliveiras, alfarrobeiras, entre outras. Aqui pode desfrutar do ar puro, do canto dos pássaros, do cheiro das plantas naturais daquela região, plantar e criar um canto só seu. Estamos disponíveis para o/a acompanhar nesta visita.
AMI: 23350
Ref. Externa: KWPT-021027
Id: 1431607
Inicie sessão para guardar este imóvel e aceder à sua lista de favoritos em qualquer dispositivo.
Área de terreno : 1488 m²
Terreno rústico com 1488m2 em Várzea da Nora, São Sebastião, Loulé. Este terreno é quase plano, a eletricidade está ao pé, tem um bom acesso em terra batida de cerca de 100 metros até á estrada alcatroada. Tem várias alfarrobeiras entre outras árvores de sequeiro. A natureza impera, o som dos pássaros e o cheiro das plantas silvestres tranquilizam e acalmam quem por aqui passa. A 13 Km de algumas das melhores praias do algarve, Quarteira, Vilamoura, Quinta do Lago, entre outras. Localiza-se a 6 Km a oeste de Loulé, onde pode encontrar todo o comércio e serviços de que necessita. Aguardamos a sua visita!
AMI: 23350
Ref. Externa: KWPT-021040
Id: 1427159
Inicie sessão para guardar este imóvel e aceder à sua lista de favoritos em qualquer dispositivo.
Área de terreno : 5771 m²
| PT | EN | FR| ES | Terreno Rústico de 5.771 m² no Barranquinho São Sebastião, Loulé Apresentamos este terreno rústico com 5.771 m², localizado na zona tranquila do Barranquinho, freguesia de São Sebastião, a poucos minutos do centro de Loulé. O terreno destaca-se pela sua excelente exposição solar, um ambiente rural sereno, ideal para quem procura privacidade e contacto direto com a natureza. A propriedade é praticamente plana, o que facilita o acesso, o cultivo e a utilização de todo o espaço. Nos últimos 500 metros, o acesso é feito por caminho em terra batida, em boas condições, garantindo ao mesmo tempo tranquilidade e isolamento sem perder a proximidade à cidade. No seu interior, encontramos 26 amendoeiras, 4 alfarrobeiras e 4 figueiras, que conferem ao terreno beleza natural, sombra e potencial agrícola, refletindo o autêntico caráter do barrocal algarvio. Com o seu perfil plano e localização privilegiada, este terreno é ideal para quem pretende investir num projeto agrícola, espaço de lazer ou refúgio rural no coração do Algarve. Uma oportunidade imperdível para quem valoriza o sossego do campo, a proximidade de Loulé e o encanto natural da serra algarvia. Rustic land of 5,771 m² in Barranquinho São Sebastião, Loulé We present this rustic plot of land with 5,771 m², located in the quiet area of Barranquinho, parish of São Sebastião, a few minutes from the center of Loulé. The land stands out for its excellent sun exposure, a serene rural environment, ideal for those looking for privacy and direct contact with nature. The property is practically flat, which facilitates access, cultivation and use of all the space. In the last 500 meters, access is made by dirt road, in good conditions, while ensuring tranquility and isolation without losing proximity to the city. Within the property, there are 26 almond trees, 4 carob trees, and 4 fig trees, which give the land its natural beauty, shade, and agricultural potential, reflecting the authentic character of the Algarvian countryside. With its flat profile and privileged location, this land is ideal for those who want to invest in an agricultural project, leisure space or rural refuge in the heart of the Algarve. An unmissable opportunity for those who value the quiet of the countryside, the proximity of Loulé and the natural charm of the Algarve mountains. Terrain rustique de 5 771 m² à Barranquinho São Sebastião, Loulé Nous vous présentons ce terrain rustique de 5 771 m², situé dans le quartier calme de Barranquinho, paroisse de São Sebastião, à quelques minutes du centre de Loulé. Le terrain se distingue par son excellente exposition au soleil, un environnement rural serein, idéal pour ceux qui recherchent lintimité et le contact direct avec la nature. La propriété est pratiquement plate, ce qui facilite laccès, la culture et lutilisation de tout lespace. Dans les 500 derniers mètres, laccès se fait par un chemin de terre, dans de bonnes conditions, tout en assurant tranquillité et isolement sans perdre la proximité de la ville. À lintérieur du terrain, on trouve 26 amandiers, 4 caroubiers et 4 figuiers, qui apportent au lieu beauté naturelle, ombre et potentiel agricole, tout en reflétant le caractère authentique de la campagne de lAlgarve. Avec son profil plat et son emplacement privilégié, ce terrain est idéal pour ceux qui souhaitent investir dans un projet agricole, un espace de loisirs ou un refuge rural au cur de lAlgarve. Une opportunité à ne pas manquer pour ceux qui apprécient le calme de la campagne, la proximité de Loulé et le charme naturel des montagnes de lAlgarve. Terreno rústico de 5.771 m² en Barranquinho São Sebastião, Loulé Presentamos este terreno rústico con 5.771 m², ubicado en la tranquila zona de Barranquinho, parroquia de São Sebastião, a pocos minutos del centro de Loulé. El terreno destaca por su excelente exposición al sol, un entorno rural sereno, ideal para quienes buscan privacidad y contacto directo con la naturaleza. La propiedad es prácticamente plana, lo que facilita el acceso, el cultivo y el uso de todo el espacio. En los últimos 500 metros, el acceso se realiza por camino de tierra, en buenas condiciones, a la vez que se garantiza la tranquilidad y el aislamiento sin perder la proximidad a la ciudad. En su interior se encuentran 26 almendros, 4 algarrobos y 4 higueras, que aportan al terreno belleza natural, sombra y potencial agrícola, reflejando el auténtico carácter del campo algarvío. Con su perfil plano y su ubicación privilegiada, este terreno es ideal para aquellos que quieran invertir en un proyecto agrícola, espacio de ocio o refugio rural en el corazón del Algarve. Una oportunidad imperdible para aquellos que valoran la tranquilidad del campo, la proximidad de Loulé y el encanto natural de las montañas del Algarve.
AMI: 8436
Ref. Externa: 1136-75
Id: 1419950
Inicie sessão para guardar este imóvel e aceder à sua lista de favoritos em qualquer dispositivo.
Área de terreno : 755 m²
Lote de terreno com ruína e projeto aprovado em Vale Judeu, nas colinas aos arredores de Vilamoura. Este imóvel oferece uma oportunidade única para quem deseja construir a moradia dos seus sonhos, numa localização tranquila e ao mesmo tempo próxima de Vilamoura, um dos destinos turísticos mais exclusivos do Algarve. Com projeto já aprovado para uma villa moderna com piscina, este terreno combina o sossego do interior com a proximidade das praias, campos de golfe e todas as comodidades da região. Principais Características - Lote de terreno com 755 m² - Ruína existente no terreno - Projeto aprovado para moradia moderna com piscina - Dois pisos mais cave - Área de construção proposta: 271 m² (excluindo piso -1) - Área de implantação: 170,99 m² Oportunidade de Construção - Possibilidade de construir uma moradia de sonho - Acompanhar de perto todo o processo de construção - Ambiente residencial tranquilo com poucas casas ao redor - Excelente opção tanto para residência permanente como para casa de férias Localização Vale Judeu, nas colinas aos arredores de Vilamoura - Inserido numa zona calma e com ambiente de interior - Apenas a poucos minutos de carro do centro de Vilamoura - Próximo de campos de golfe de renome, marina e praias de águas cristalinas - Fácil acesso a comércio local, serviços e restaurantes típicos - Localização estratégica no Algarve, a 20 minutos do Aeroporto de Faro VAP21327
AMI: 10094
Ref. Externa: VAP213227
Id: 1399271
Inicie sessão para guardar este imóvel e aceder à sua lista de favoritos em qualquer dispositivo.
Área de terreno : 1948 m²
Oportunidade de Terreno para Construção em S. Sebastião, Loulé! Apresentamos um excelente terreno urbano com 1.948 m² de área total e uma área útil de 300 m², localizado em uma zona privilegiada de S. Sebastião, Loulé. Destaques do imóvel: Área total: 1.948 m² Área útil: 300 m² Projeto para construção Vista deslumbrante para a serra Localização tranquila e privilegiada, próximo de acessos e serviços Ideal para quem busca um espaço para desenvolver o seu projeto residencial ou comercial em uma das regiões mais apreciadas do Algarve. Entre em contato conosco para mais informações e agendar uma visita! Seu novo projeto começa aqui! #ref: 148456
AMI: 11220
Ref. Externa: 148456
Id: 1348639
Inicie sessão para guardar este imóvel e aceder à sua lista de favoritos em qualquer dispositivo.
Estes agentes são especialistas nesta zona:
Inicie sessão para ocultar este imóvel das suas pesquisas e manter a sua lista de resultados organizada.
© Copyright 2023 | CASACERTA. All rights reserved
Guardar favoritos
Este imóvel foi guardados nos seus favoritos com sucesso.
Para poder guardar pesquisa deverá ter a sua sessão iniciada.
Caso não tenha uma conta, deverá criar uma.
A sua pesquisa foi guardada com sucesso!
Este site utiliza cookies. Ao navegar no site estará a consentir a sua utilização.
Para mais informações sobre os cookies pode consultar a
política de privacidade.