Lista
Comprar
Arrendar
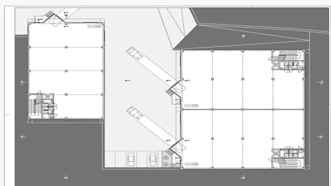
Área de terreno : 3107 m²
Oportunidade para promotores e investidores: Terreno com quase 3 200 m², localizado numa zona com forte dinâmica habitacional e elevado potencial de valorização. Este terreno representa uma excelente oportunidade para promotores e investidores que procuram desenvolver um projeto residencial moderno e de qualidade. Com P. I. P. favorável para a construção de 24 fogos, em um Condomínio Habitacional, com dois edifícios de habitação multifamiliar. Pedido de Informação Prévia: - 24 frações habitacionais - Arquitetura contemporânea e funcional - Duas entradas independestes, ideal para desenvolvimento de um condomínio privado - Inserido em área urbana consolidada, com infraestruturas completas (saneamento, eletricidade, vias pavimentadas) Bloco A Área de construção: 346.40 m² Nº Pisos: possibilidade de ter 4 pisos acima da cota de soleira (sendo o último recuado) e cave para estacionamento Bloco B Área de construção: 38340 m² Nº Pisos: possibilidade de ter 4 pisos acima da cota de soleira (sendo o último recuado) e cave para estacionamento Localizado no centro de Venda do Pinheiro, a 2 minutos a pé da famosa pastelaria 'Pão da Vila', numa zona com forte dinâmica habitacional e excelente acessibilidade. Acesso direto à autoestrada A8 e às principais vias da região. Próximo de supermercados, escolas, farmácias e comércio tradicional. Oportunidade perfeita para quem procura investir numa localização estratégica e com forte potencial de crescimento no concelho de Mafra. Para mais informações e agendamento de visita, entre em contacto!
AMI: 14860
Ref. Externa: 6068
Id: 1624229
Inicie sessão para guardar este imóvel e aceder à sua lista de favoritos em qualquer dispositivo.
Área de terreno : 10000 m²
Oportunidade Única de Investimento em AVESSADA, Mafra - TERRENO 10.000m2 Apresentamos este excelente terreno rústico com 10.000 m², localizado numa zona estratégica do concelho de Mafra, AVESSADA na União das Freguesias de Venda do Pinheiro e Santo Estêvão das Galés, com elevado potencial de valorização e investimento. ? Possibilidade de conversão para urbano ? Viabilidade de construção até 30% para atividades económicas ? Possibilidade de construção até 80% para condomínio habitacional, ➡️ mediante aprovação de projeto pela Câmara Municipal (informações cedidas pela Câmara Municipal de Mafra) Este terreno representa uma oportunidade rara tanto para investidores como para promotores imobiliários, permitindo o desenvolvimento de: ?projetos empresariais ?áreas comerciais ou serviços ?condomínio de habitação ?projetos mistos (habitação + atividade económica) ? Localização privilegiada, com bons acessos, inserido numa zona em crescimento e com forte procura, garantindo rentabilidade e valorização futura. ? Ideal para quem procura segurança no investimento, potencial construtivo elevado e flexibilidade de projeto. ➡️ Invista hoje num ativo com visão de futuro. Para mais informações ou agendamento de visita, entre em contacto. Este anúncio foi efetuado por uma rotina informática, todos os dados carecem de validação com a equipa comercial.
AMI: 15760
Ref. Externa: KWPT-027081
Id: 1582409
Inicie sessão para guardar este imóvel e aceder à sua lista de favoritos em qualquer dispositivo.
Área de terreno : 29687 m²
Terreno Rústico de 29.687m2 na Malveira Pinhal exposto a nascente. Ideal para parque fotovoltaico. Perto de serviços, comércio e entrada da auto-estrada. Observação: Possibilidade de compra do terreno contíguo com 10.312 m2.
AMI: 17750
Ref. Externa: 01022
Id: 1501664
Inicie sessão para guardar este imóvel e aceder à sua lista de favoritos em qualquer dispositivo.
Área de terreno : 7250 m²
Terreno rústico com 7.250 m², maioritariamente plano, ideal para quem procura um espaço funcional para agricultura, pequeno investimento rural ou projeto de lazer ao ar livre. Localizado numa zona calma e pouco movimentada, este terreno oferece excelente exposição solar, algumas árvores que criam sombra natural e um ribeiro no limite, permitindo uma utilização mais diversificada e agradável do espaço. A estrada alcatroada encontra-se a poucos metros e o acesso à A21 fica a apenas 10 minutos, garantindo deslocações rápidas para Mafra, Ericeira ou Lisboa. Pontos fortes: *Terreno plano, fácil de trabalhar e utilizar. *Ribeiro num dos limites. *Boa exposição solar, ideal para produção agrícola ou soluções energéticas autónomas. *Zona rural tranquila e com boa privacidade. *Estrada alcatroada muito próxima. *A21 a curta distância. O que deve considerar: *Não permite construção de habitação, sendo adequado para fins agrícolas, recreativos ou de lazer. *Sem eletricidade e água canalizada, o que abre espaço para soluções autónomas (painéis solares, furo, depósitos, etc.). *Acesso final por caminho não alcatroado. Projetos compatíveis: *Hortas, pomares, estufas ou produção agrícola. *Pequena criação de animais. *Atividades de lazer ao ar livre: caravanas, autocaravanas, cultura, apicultura, zona de descanso, etc. *Projeto de turismo de natureza não edificável (mediante regras aplicáveis). Porquê visitar? Para perceber a facilidade de utilização do terreno, o conforto do espaço plano e a envolvente calma. A visita ajuda a avaliar o potencial real do terreno para o seu projeto. Agende a sua visita. Contacte-me para mais informações ou para marcar visita. Partilha de negócio Na KW Alive fazemos partilha de 50% com todas as imobiliárias com AMI.
AMI: 21069
Ref. Externa: KWPT-007466
Id: 1495351
Inicie sessão para guardar este imóvel e aceder à sua lista de favoritos em qualquer dispositivo.
Área de terreno : 500 m²
Lote de terreno, com 500 m2, está localizado na Venda do Pinheiro, junto à Igreja de Santo António. O terreno tem edificações existentes em ruína e uma casa com 100 m2, que podem ser demolidas para construção de uma moradia nova multifamiliar com área bruta de construção de 330m2. O lote tem uma localização privilegiada, numa zona calma e residencial, com bons acessos a transportes e serviços. Este lote de terreno, tem a possibilidade de construção de uma moradia nova multifamiliar, com várias tipologias. A moradia poderá ter um ou dois pisos, com garagem e jardim. O projeto de construção poderá ser desenvolvido de acordo com as necessidades e preferências do comprador. A informação disponibilizada, ainda que precisa, não dispensa a sua confirmação nem pode ser considerada vinculativa. Mais informações não hesite em entrar em contacto connosco. Faça uma visita sem compromisso. Somos intermediários de crédito. Consulte-nos também para obter a melhor solução de financiamento. Licença Nº 1963.
AMI: 11371
Ref. Externa: TER_4377
Id: 1491199
Inicie sessão para guardar este imóvel e aceder à sua lista de favoritos em qualquer dispositivo.
Área de terreno : 5937 m²
Terreno Rústico à Venda - Campitos, União das Freguesias de Venda do Pinheiro e Santo Estêvão das Galés Apresenta-se uma excelente oportunidade para investimento ou usufruto próprio! Vende-se terreno rústico localizado em Campitos, na União das Freguesias de Venda do Pinheiro e Santo Estêvão das Galés, concelho de Mafra. Características do Terreno: Localização: Campitos, União das Freguesias de Venda do Pinheiro e Santo Estêvão das Galés Área Total: 0,593700 hectares (5.937 m²) Terreno de natureza rústica, ideal para atividades agrícolas, cultivo, colocação de pequenas estruturas de apoio agrícola ou lazer sustentável Acesso facilitado por estrada local, com bons acessos a serviços e vias principais Zona tranquila, com paisagem campestre e excelente exposição solar Potencialidades: Agricultura, hortas biológicas ou projetos de permacultura Olival, vinha, fruticultura ou criação de pequenos animais Espaço de lazer ou refúgio de fim de semana, em contacto direto com a natureza Investimento de futuro em zona em desenvolvimento e próxima de centros urbanos Proximidades: A poucos minutos de Venda do Pinheiro e Malveira Bons acessos à A8 e apenas a cerca de 30 minutos de Lisboa Comércio, escolas, transportes e serviços nas redondezas Uma excelente oportunidade para quem procura tranquilidade, natureza e um investimento seguro. Para mais informações ou visita ao local, não hesite em contactar!
AMI: 13187
Ref. Externa: HT_11215
Id: 1467612
Inicie sessão para guardar este imóvel e aceder à sua lista de favoritos em qualquer dispositivo.
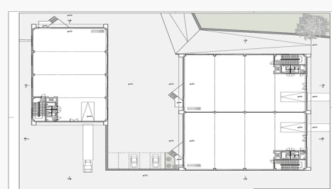
Área de terreno : 3108 m²
Terreno inserido em área habitacional consolidada da Venda do Pinheiro, com PIP aprovado para construção de dois edifícios multifamiliares (24 frações), 4 pisos acima da cota de soleira (último recuado) e cave para estacionamento. Projeto com enquadramento urbano sólido, pensado para condomínio privado e com rápida absorção comercial. - PIP favorável: viabilidade urbanística definida para 24 apartamentos. - Localização estratégica: a minutos da A21 (ligação direta à A8), com acessos rápidos a Lisboa e Mafra. - Duas frentes/entradas independentes: ideal para condomínio e gestão de fluxos — A21/A8. - Contexto consolidado: envolvente com moradias e edifícios residenciais, comércio, escolas e serviços. - Infraestruturas no local: saneamento, eletricidade, vias pavimentadas e iluminação pública. - Produto certo: tipologias T1–T2–T3 com forte procura local e regional (venda ao retalho ou BTR). Em zona residencial tranquila e valorizada, com comércio de proximidade, estabelecimentos de ensino e transportes nas imediações. A A21 está muito próxima, garantindo ligação imediata à A8 e, daí, a Lisboa e resto da Área Metropolitana. Excelente capilaridade viária para fornecedores, obra e clientes finais. Potencial de desenvolvimento (síntese do PIP) - Dois edifícios multifamiliares | 24 frações - 4 pisos acima da cota de soleira | cave para estacionamento - Leitura urbana ajustada à envolvente - Área total do lote: 3.108,8 m² - Área total de implantação prevista: 729,8 m² (Edif. 1: 346,4 m² | Edif. 2: 383,4 m²) Informação urbanística disponível para consulta. Documentação técnica e elementos do PIP disponíveis para investidores qualificados. Agende visita técnica e reunião de projeto para análise de implantação, acessos e estratégia de produto. Este anúncio foi efetuado por uma rotina informática, todos os dados carecem de validação com a equipa comercial.
AMI: 15760
Ref. Externa: KWPT-024008
Id: 1458407
Inicie sessão para guardar este imóvel e aceder à sua lista de favoritos em qualquer dispositivo.
Área de terreno : 10650 m²
Terreno Misto - Industrial em Santa Eulália, Santo Estêvão das Galés Apresenta-se uma excelente oportunidade de investimento num terreno misto (urbano e rústico), estrategicamente localizado em Santa Eulália - Santo Estêvão das Galés, ideal para instalação de unidades industriais, armazéns logísticos ou projetos empresariais de expansão. Características Principais Área total: 10.650 m² (misto: urbano + rústico) Área urbana: 1.150 m², destinada a armazém e atividades industriais Localização estratégica, a apenas 20 minutos da A8 (Loures) Bons acessos rodoviários e ligações às principais vias da região Inserido em zona de crescimento e valorização contínua Potencial construtivo sujeito a análise e parecer técnico Pontos Fortes Contexto territorial favorável ao desenvolvimento industrial e logístico Condições ideais para instalação ou ampliação de atividades empresariais Oportunidade de aquisição conjunta de terreno adjacente, totalizando 16.750 m² Enquadramento O imóvel encontra-se inserido numa zona com forte dinâmica económica e urbanística, beneficiando de uma localização privilegiada que conjuga tranquilidade e acessibilidade. Representa uma solução sólida e versátil para investidores, promotores ou empresários que valorizam espaço, potencial e localização. Não perca esta oportunidade de investimento estratégico. Para mais informações ou marcação de visita, contacte-nos.
AMI: 13187
Ref. Externa: HT_11214
Id: 1450092
Inicie sessão para guardar este imóvel e aceder à sua lista de favoritos em qualquer dispositivo.
Área de terreno : 2819 m²
Apresento-lhe uma moradia térrea contemporânea, atualmente em fase de construção, situada no Vale Murteira — Venda do Pinheiro, um local onde o conforto moderno se funde com a tranquilidade da natureza. Implantada num terreno de 2.819 m², esta habitação destaca-se pelo design arquitetónico elegante e funcional, pela excelente orientação solar e pela vista totalmente desafogada sobre o vale. Trata-se de uma moradia unifamiliar isolada, desenvolvida num só piso, concebida com foco na eficiência energética (Classe A) e na perfeita integração com o terreno natural. ? Composição e Áreas - Área de implantação: 130 m²; - Área bruta de construção: 150 m²; - Área bruta dependente: 20 m²; - Área útil estimada: 130 m². Distribuição interior: - Hall de entrada amplo e luminoso; - Sala ampla e luminosa com acesso direto ao exterior e à piscina; - Cozinha totalmente equipada e despensa funcional; - 1 master suite com closet e casa de banho privativa; - 2 suites com acesso aos alpendres exteriores; - 1 escritório / quarto adicional; - 3 casas de banho completas; - Garagem fechada para 2 viaturas. ? Exterior - Piscina orientada a sul, com vista panorâmica sobre o vale; - Amplo jardim envolvente com excelente exposição solar; - Vista panorâmica sobre o vale; - Muros de vedação com acabamento moderno e harmonioso. ? Localização - Situada no Vale Murteira, Venda do Pinheiro — concelho de Mafra — a poucos minutos de: - A8 (ligação rápida a Lisboa); - Centro de Venda do Pinheiro e Malveira; - Escolas, supermercados, serviços e restauração. - Zona tranquila, ideal para quem procura privacidade e proximidade urbana. ?️ Detalhes Técnicos - Projeto aprovado e em curso de construção - Arquitetura contemporânea assinada por Joaquim Caracol, Arquitetos Lda - Eficiência energética Classe A (Pré-Certificado Energético emitido) - Estrutura em betão armado, cobertura plana e caixilharias em alumínio com corte térmico - Materiais e acabamentos de elevada qualidade ⚠️ Nota Importante As imagens e plantas apresentadas são meramente ilustrativas e podem não representar a realidade final do projeto, servindo apenas para fins demonstrativos e de enquadramento conceptual. ? Marque já a sua visita e descubra a sua nova casa Partilha com todas as imobiliárias/profissionais em regime de 50%/50%. Saiba mais em KW Portugal
AMI: 7183
Ref. Externa: KWPT-023707
Id: 1446920
Inicie sessão para guardar este imóvel e aceder à sua lista de favoritos em qualquer dispositivo.
Área de terreno : 8000 m²
Excelente oportunidade de investimento em Montemuro, Mafra! Vendo um terreno de 8.000m² localizado em Montemuro, a apenas 19 km de Mafra e 30 km de Lisboa. Este terreno está inserido em áreas a estruturar, com potencial para desenvolvimento de solo urbano e espaços de atividades econômicas. Uma excelente oportunidade para quem busca investir em uma região com grande potencial de crescimento! Para mais informações ou agendar uma visita, estou à disposição. Aproveite essa chance de fazer um ótimo negócio!
AMI: 19412
Ref. Externa: KWPT-019697
Id: 1426659
Inicie sessão para guardar este imóvel e aceder à sua lista de favoritos em qualquer dispositivo.
Área de terreno : 15374 m²
Terreno em Santa Eulália (Mafra) Localização privilegiada:Situado em Santa Eulália, Mafra, oferecendo uma vista panorâmica deslumbrante e totalmente desafogado, perfeito para quem busca tranquilidade e contato com a natureza. Características do terreno: Área total de 15374 m² Classificado como Espaços Agrícolas pela Câmara Municipal de Mafra Coordenadas GPS:
AMI: 7772
Ref. Externa: 126851033-1043
Id: 1331861
Inicie sessão para guardar este imóvel e aceder à sua lista de favoritos em qualquer dispositivo.
Área de terreno : 5375 m²
Terreno em Santa Eulália (Mafra) Localização privilegiada:Situado no topo de um monte em Santa Eulália, Mafra, oferecendo uma vista panorâmica deslumbrante e totalmente desafogado, perfeito para quem busca tranquilidade e contato com a natureza. Características do terreno: Área total de 5.375 m² Classificado como Espaços Agrícolas pela Câmara Municipal de Mafra Coordenadas GPS: 38.874610, -9.256968 Acesso: Pela estrada regional nº19 (ER19), próximo à casa nº13 Atualmente, o acesso apresenta algum mato, sendo necessário futuramente realizar a limpeza/deservado para facilitar a entrada Venha conhecer!Agende sua visita e descubra o potencial deste espaço único! OC ;ID RE/MAX: 126851033-1042
AMI: 7772
Ref. Externa: 126851033-1042
Id: 1331860
Inicie sessão para guardar este imóvel e aceder à sua lista de favoritos em qualquer dispositivo.
Área de terreno : 1012 m²
Terreno na Serra de Lousa, em Santo Estevão das Galés com possibilidade de Projeto para a construção de 4 pequenas moradias de 90 m2 cada uma, mais sótão – 139 .000 € Possibilidade de permuta e de auxílio de crédito Bancário. TERRENO - LOCALIZAÇÃO e DESIG Terreno arborizado, a 15 minutos de Lisboa, na Serra da Lousa, no Concelho de Mafra, a 10 Km da Ericeira, próximo de negrais e Pero Pinheiro, com possibilidade de realizar quatro pequenas moradias de 90 m2 cada uma, mais aproveitamento de sótão. Tem a possibilidade de personalizar a sua moradia a nível de acabamentos, em função dos seus gostos. O terreno é acessível pela rua, na frente do lote e inserido numa paisagem urbana, mas com imensa vegetação à sua volta. A Aldeia de Lousa é antiga muito bonita e exótica, com muito comércio local e diversos serviços, numa urbanização tranquila e afastada das multidões da capital, porém muito próxima de Lisboa, Sintra, Cascais e Estoril, prima pelo envolvimento com a Natureza. Ideal para caminhadas e passeios de bicicleta. DESCRIÇÃO DO PROJETO DE CADA MORADIA A implementação da construção respeita os afastamentos frontal, laterais e posterior. O projeto apresentado contempla uma construção para uso habitacional. Definiu-se deste modo uma habitação da tipologia T2. O piso 0 tem uma área de implantação com 90 m2. É constituído por uma sala comum com 40 m2, cozinha com 12 m2, lavandaria com 3 m2, WC com 5 m2 e dois quartos com 15 m2 cada um. O sótão tem um mezanino com 40 m2, que pode ser aproveitado para mais 2 quartos e um WC. No que concerne ao aspeto exterior do projeto, a sua cor dominante é o branco, tendo como marcação elementos decorativos na cor cinza, RAL 7011 e alumínios cinza, com corte térmico. A cobertura tem duas águas e será em ferro, madeira, Roofmate e telha lusa.
AMI: 7391
Ref. Externa: 23-E.FAV-0005
Id: 1314535
Inicie sessão para guardar este imóvel e aceder à sua lista de favoritos em qualquer dispositivo.
Área de terreno : 590 m²
Identificação do imóvel: ZMPT579595Terreno Urbano para Construção em Casal Pedroso Santo Estêvão das GalésExcelente oportunidade para quem procura investir num terreno urbano com grande potencial de valorização, com uma área bruta de 590 m² e uma área de implantação de 177m².Localizado em Casal Pedroso, na freguesia de Santo Estêvão das Galés, este espaço oferece excelentes condições para um projecto moderno, com uma excelente localização, inserido numa zona tranquila.Se procura o espaço perfeito para dar vida ao seu novo projeto, este terreno é a escolha acertada!Terreno com licença de construção aprovada.Não perca esta oportunidade, marque já a sua visita!3 razões para comprar com a Zome+ acompanhamentoCom uma preparação e experiência única no mercado imobiliário, os consultores Zome põem toda a sua dedicação em dar-lhe o melhor acompanhamento, orientando-o com a máxima confiança, na direção certa das suas necessidades e ambições.Daqui para a frente, vamos criar uma relação próxima e escutar com atenção as suas expectativas, porque a nossa prioridade é a sua felicidade! Porque é importante que sinta que está acompanhado, e que estamos consigo sempre.+ simplesOs consultores Zome têm uma formação única no mercado, ancorada na partilha de experiência prática entre profissionais e fortalecida pelo conhecimento de neurociência aplicada que lhes permite simplificar e tornar mais eficaz a sua experiência imobiliária.Deixe para trás os pesadelos burocráticos porque na Zome encontra o apoio total de uma equipa experiente e multidisciplinar que lhe dá suporte prático em todos os aspetos fundamentais, para que a sua experiência imobiliária supere as expectativas.+ felizO nosso maior valor é entregar-lhe felicidade!Liberte-se de preocupações e ganhe o tempo de qualidade que necessita para se dedicar ao que lhe faz mais feliz.Agimos diariamente para trazer mais valor à sua vida com o aconselhamento fiável de que precisa para, juntos, conseguirmos atingir os melhores resultados.Com a Zome nunca vai estar perdido ou desacompanhado e encontrará algo que não tem preço: a sua máxima tranquilidade!É assim que se vai sentir ao longo de toda a experiência: Tranquilo, seguro, confortável e... FELIZ!Notas:1. Caso seja um consultor imobiliário, este imóvel está disponível para partilha de negócio. Não hesite em apresentar aos seus clientes compradores e fale connosco para agendar a sua visita.2. Para maior facilidade na identificação deste imóvel, por favor, refira o respetivo ID ZMPT ou o respetivo agente que lhe tenha enviado a sugestão.
AMI: 20298
Ref. Externa: ZMPT579595
Id: 1302240
Inicie sessão para guardar este imóvel e aceder à sua lista de favoritos em qualquer dispositivo.
Área de terreno : 674 m²
Terreno com área de 674,34m2 inserido em projecto habitacional para construção de moradias e um prédio. Terreno Quinta do Matoutinho. Este lote de terreno tem a licença caducada para contrução de um edifício com cave e mais 4 pisos. O projecto consiste: Cave: 237,33m2 Rés-do-chão: 236,33m2 Piso 1 a 3: 237,56m2 x 3 = 712,68m2 Total: 1186,34m2-237,33m2 = 949,01m2 Área total de implantação: 237,56m2 Área total de construção: 949,01m2 A área envolvente é caracterizada por ser composta por novas habitações mistas onde prevalecem moradias recentes e também prédios. O comércio e serviços estão também presentes nas redondezas sendo assim mais atraente para um público mais jovem. A acessibilidade é boa sendo possível aceder pela Auto estrada A8 ou A21.
AMI: 2251
Ref. Externa: M10914
Id: 1291136
Inicie sessão para guardar este imóvel e aceder à sua lista de favoritos em qualquer dispositivo.
Área de terreno : 14000 m²
Terreno em Santo Estevão Das Gales (LXSEG001) Terreno urbano em Quintas, Santo Estevão Das Gales para construção de moradia ou moradias. Área total de 1.4 hectares Área urbana de 3165 m2 Áreas de construção de 771 m2 Terreno com poço. Excelente vista e construção recente na sua envolvência. Ótimos acessos, próximo de todo o tipo de serviços e comércio. Os lares incorporam a forma como vivemos e nos vemos. Esses espaços evoluem quando nos concentramos no que nos faz felizes. Quando entramos em alguns lares, estes instantaneamente transmitem um sentimento acolhedor. Isto acontece porque o espaço é autêntico, um reflexo genuíno da pessoa ou família que lá vive. Apresentamos esta filosofia na nossa forma de trabalhar! Encontramos uma casa à sua medida, para construir o seu lar, de acordo com as suas necessidades, pretensões, vivências, ajustando-se o mesmo ao seu carácter e personalidade. O resultado será radiante alcançando a sua plena satisfação. Contacte-nos, conheça a forma como operamos! Apresentamos uma equipa profissional e segmentada em departamentos (Financeiro/Crédito, Marketing, Judicial, Apoio ao Cliente e Contratação), para que tenha o melhor serviço de consultoria em cada fase do processo. Trataremos de tudo, assegurando a máxima eficiência e eficácia nos serviços prestados. A única tarefa que terá ao seu encargo será mesmo a decisão na escolha do imóvel. - Se o seu sonho tem um endereço, nós levamo-lo à porta! A VENDO O MUNDO está no mercado imobiliário desde 2004, atuando desde então nos Distritos de Lisboa, Santarém, Setúbal e Évora. Contamos, para isso, com uma equipa de profissionais com a experiência e dedicação necessária, que fazem de nós a Imobiliária Líder da Região Centro. Encontre-nos em Marinhais, Salvaterra de Magos, Foros de Salvaterra e Samora Correia. Encontre-nos também nos escritórios em Alverca e em Mora. Os nossos 18 anos e a constante expansão do nosso raio de ação, são prova da confiança que temos merecido. Dispomos de uma carteira com centenas de clientes e imóveis, permitindo-nos negócios em tempo record. Um deles pode ser o seu! Esperamos por si!
AMI: 6282
Ref. Externa: LXSEG001
Id: 1255959
Inicie sessão para guardar este imóvel e aceder à sua lista de favoritos em qualquer dispositivo.
Área de terreno : 19138 m²
Terreno com cerca de 6000 m2 de Área de Construção Industrial Consolidada. A 1,8Km da entrada da A8 e A21 na Venda do Pinheiro. Apresentamos um Terreno com área total de 11250 m2, sendo cerca de 6000 m2 área consolidada para Construção Industrial. Excelente oportunidade de investimento! Estrategicamente localizado na zona industrial da Venda do Pinheiro. Este Terreno tem acesso por estrada asfaltada, com eletricidade, água, saneamento e telecomunicações nas proximidades. Possibilita várias atividades empresariais e logisticas. Características principais: . Área de Construção Industrial Consolidada - cerca de 6000 m2 (imagem - zona roxa); . Topografia favorável à construção; . Inserido em zona com viabilidade para construção industrial ou armazéns; . Bons acessos rodoviários para veículos pesados; . Proximidade a centros urbanos e principais vias de comunicação; . A cerca de 1,8Km da entrada da Auto-estrada A8 e A21; Venda em conjunto de um 2.º Terreno Rústico com área total de 7888 m2, em Espaço Florestal. Possibilidade de exploração florestal, oferecendo uma vertente complementar de rendimento. Zona com grande procura empresarial e em crescimento contínuo. Ideal para empresas que procuram expandir ou para investidores à procura de valorização a médio e longo prazo. Não perca esta oportunidade! Para mais informações ou agendamento de visita, entre em contacto. A Realty One Group, é a marca que mais cresce nos Estados Unidos, com mais de 20 anos, em 26 países. O presidente da Realty One Group é o Vinnie Tracey, que foi presidente durante 40 anos de uma das marcas líderes mundiais, e hoje é o Líder da Realty One Group, que com toda sua experiência esta a tornar a Realty One Group, uma das marcas Líderes nos Estados Unidos, e que já há alguns anos se espalha para todo mundo... Motivos para escolher a ONE AS PESSOAS PRIMEIRO.. Contamos com vários anos, com vários agentes premiados. -Os consultores têm formação de alto nível nacional e internacional, como os melhores formadores nacionais e internacionais, em todas vertentes do negócio, e de forma gratuita para o poder ajudar com mais eficiência. “Enquanto usufrui dos prazeres da sua vida, compre e venda o seu imóvel de forma rápida e segura...” ONE house, ONE dream, ONE life (style)
AMI: 25209
Ref. Externa: ONE421714-3
Id: 1205687
Inicie sessão para guardar este imóvel e aceder à sua lista de favoritos em qualquer dispositivo.
Área de terreno : 8160 m²
Terreno para construção de 3 armazéns destinados a industria na freguesia do MIlharado, concelho de Mafra. Área total do terreno: 8.374m2 Inclui o projeto, para construção de 3 armazéns, aprovado pela Camara Municipal de Mafra em Março 2024. Com licença a pagamento , aprovada pela camara Municipal de Loures em 20/11/2025. A construção dos 3 armazéns terá as seguintes caracteristicas: Implantação total: 1.785m2 Área bruta construção da cave (arrumos): 1.785m2 Área bruta construção do piso 0 (comércio e serviços): 1.785m2 Área bruta construção do piso 1 (arrumos): 500m2 Área bruta de construção total: 4.070m2 Pisos acima da cota da soleira: 2 Pisos abaixo da quota da soleira: 1 Venha conhecer. Aguardamos por si. Contacte-nos.
AMI: 1283
Ref. Externa: NGI2020-1765
Id: 1163557
Inicie sessão para guardar este imóvel e aceder à sua lista de favoritos em qualquer dispositivo.
Área de terreno : 1125 m²
Terreno com área de 1125 m2 com casa de apoio agrícola, com nascente de água, várias árvores de fruto e com cerca de 400m2 já terraplanados e com área para possível colocação de casa de madeira( confirmar com as entidades competentes) inserido no PDM como «solo com classificação a apoios a atividades turísticas». Com bom acesso e perto da estrada principal para diferentes direções Mafra, Malveira, Venda do Pinheiro, Negrais ou Loures. Localizado em zona privilegiada ,virado a sul com excelente exposição solar e vista fantástica é ideal para quem procura ter um lugar no campo e usufruir dos seus benefícios para lazer ou para quem queira iniciar ou expandir o seu negócio na área de agricultura, pasto ou apicultura. A informação disponibilizada não dispensa a sua confirmação nem pode ser considerada vinculativa. Apresentamos também as melhores soluções para si, através da parceria com empresas autorizadas para emissão de certificado Energético ou intermediário de crédito certificado pelo Banco de Portugal. Venha visitar aquela que poderá ser a sua oportunidade ! Entre em contato para mais informações e marcação de visita! Imobiliária Oneway
AMI: 22675
Ref. Externa: 24/012CC
Id: 1129574
Inicie sessão para guardar este imóvel e aceder à sua lista de favoritos em qualquer dispositivo.
Área de terreno : 400 m²
Terreno com Anexo e Piscina – Oportunidade Única na Venda do Pinheiro!Apresentamos um terreno de 400m² em fase de destacamento, ideal para investidores e projetos de valorização imobiliária. Este espaço versátil inclui um anexo com cozinha equipada e forno a lenha, combinando charme e funcionalidade.Com criatividade, o anexo pode ser transformado num T1 independente, ideal para hóspedes, arrendamento local ou habitação extra. O destaque fica por conta da piscina, proporcionando uma área de lazer perfeita para desfrutar do espaço exterior.Destaques do Imóvel:✔ Terreno de 400m² em processo de destacamento✔ Anexo com cozinha equipada e forno a lenha✔ Possibilidade de conversão do anexo em T1 independente✔ Piscina privativa, ideal para lazer e valorização do imóvel✔ Excelente potencial para expansão e personalizaçãoLocalização PrivilegiadaSituado na Venda do Pinheiro, uma área em rápido crescimento, este imóvel oferece a combinação perfeita entre tranquilidade e acessibilidade:. Fácil acesso a Lisboa e outras localidades. Proximidade a comércio, serviços e transportes. A poucos minutos das praias da Ericeira, ideal para amantes do mar e da naturezaSe procura um investimento com elevado potencial de valorização, esta é a oportunidade perfeita! Agende já a sua visita!
AMI: 9412
Ref. Externa: 421701004
Id: 1074137
Inicie sessão para guardar este imóvel e aceder à sua lista de favoritos em qualquer dispositivo.
Estes agentes são especialistas nesta zona:
Inicie sessão para ocultar este imóvel das suas pesquisas e manter a sua lista de resultados organizada.
© Copyright 2023 | CASACERTA. All rights reserved
Guardar favoritos
Este imóvel foi guardados nos seus favoritos com sucesso.
Para poder guardar pesquisa deverá ter a sua sessão iniciada.
Caso não tenha uma conta, deverá criar uma.
A sua pesquisa foi guardada com sucesso!
Este site utiliza cookies. Ao navegar no site estará a consentir a sua utilização.
Para mais informações sobre os cookies pode consultar a
política de privacidade.