Lista
Comprar
Arrendar
180.000 €
Área de terreno : 503 m²
Este terreno está localizado na Pontinha, uma encantadora freguesia do concelho de Odivelas, conhecida pela sua tranquilidade e proximidade a Lisboa. Abaixo estão as especificações detalhadas do terreno: - Área Total: O terreno possui uma área total de 503 m², oferecendo espaço suficiente para diversas possibilidades de construção e paisagismo. -Área de Implantação: A área de implantação é de 140 m², o que indica o espaço ocupado pela construção principal no terreno. Esta área proporciona espaço para uma edificação considerável, mantendo ainda espaço ao redor para outras utilizações. - Área Bruta de Construção: Com uma área bruta de construção de 305 m², o terreno permite a construção de um imóvel de dimensões amplas, possivelmente com múltiplos andares ou unidades, de acordo com as normas de construção locais. A topologia pode influenciar a disposição dos andares, oferecendo oportunidades para incorporar elementos como terraços ou varandas com vistas privilegiadas. Localização A Pontinha é uma zona residencial que combina a tranquilidade de um bairro periférico com a conveniência de estar a poucos minutos do centro de Lisboa. Esta localização é ideal para quem procura um equilíbrio entre qualidade de vida e proximidade aos principais serviços e comodidades da capital. Potencial de Construção Com as dimensões apresentadas, este terreno é ideal para a construção de uma moradia unifamiliar ampla e com bastante luminosidade. A área disponível permite ainda a incorporação de espaços exteriores agradáveis, como jardins ou pátios. A topologia do terreno oferece a possibilidade de criar espaços exteriores em diferentes níveis, adicionando interesse visual e funcionalidade ao projeto. Este terreno na Pontinha representa uma excelente oportunidade de investimento para quem deseja construir o lar dos sonhos ou desenvolver um projeto imobiliário numa área em crescimento e valorização contínua.
AMI: 24353
Ref. Externa: KWPT-015918
Id: 1575691
Inicie sessão para guardar este imóvel e aceder à sua lista de favoritos em qualquer dispositivo.
1.195.000 €
Área de terreno : 2500 m²
OPORTUNIDADE INVESTIMENTO | CANEÇAS | CONDOMINIO 5 MORADIAS | 1.745m² ABC Venda de Terreno com 2.500 m² – Projeto em fase final de aprovação (Câmara de Odivelas). Área Total Terreno: 2.500 m² Área Bruta de Construção (ABC): 1.745 m² Área Habitação: 819 m² (5 frações) Caves / Estacionamentos: 241 m² Arrecadações e Técnicas: 269 m² Terraços e Varandas: 343 m² Piscina aprovada: 73 m² ESTADO DO PROCESSO: Projeto de Arquitetura em fase conclusiva de licenciamento. VALOR DE VENDA: 1.195.000 €
AMI: 15760
Ref. Externa: KWPT-026699
Id: 1571614
Inicie sessão para guardar este imóvel e aceder à sua lista de favoritos em qualquer dispositivo.
118.000 €
Área de terreno : 246 m²
Identificação do imóvel: ZMPT583844Oportunidade de investimento em zona urbana consolidada.Terreno urbano com 246 m² de área total e 114 m² de área de implantação, ideal para construção de moradia unifamiliar ou projeto habitacional personalizado.Localizado na tranquila e bem servida Rua do Alecrim, Vale Pequeno, freguesia de Pontinha e Famões, este lote beneficia de proximidade a várias moradias já construídas, o que garante um ambiente residencial acolhedor e familiar.Na zona envolvente tem comércio local e supermercados maiores, Centro comercial UBBO, restaurantes, Centro de saúde, farmácia, creche, escolas, transportes públicos e acessos rápidos ao centro de Lisboa.O acesso é fácil através de vias urbanas.Zona em crescimento, com grande potencial de valorização.Não perca esta oportunidade de construir o seu futuro num dos bairros mais promissores da região.3 razões para comprar com a Zome+ acompanhamentoCom uma preparação e experiência única no mercado imobiliário, os consultores Zome põem toda a sua dedicação em dar-lhe o melhor acompanhamento, orientando-o com a máxima confiança, na direção certa das suas necessidades e ambições.Daqui para a frente, vamos criar uma relação próxima e escutar com atenção as suas expectativas, porque a nossa prioridade é a sua felicidade! Porque é importante que sinta que está acompanhado, e que estamos consigo sempre.+ simplesOs consultores Zome têm uma formação única no mercado, ancorada na partilha de experiência prática entre profissionais e fortalecida pelo conhecimento de neurociência aplicada que lhes permite simplificar e tornar mais eficaz a sua experiência imobiliária.Deixe para trás os pesadelos burocráticos porque na Zome encontra o apoio total de uma equipa experiente e multidisciplinar que lhe dá suporte prático em todos os aspetos fundamentais, para que a sua experiência imobiliária supere as expectativas.+ felizO nosso maior valor é entregar-lhe felicidade!Liberte-se de preocupações e ganhe o tempo de qualidade que necessita para se dedicar ao que lhe faz mais feliz.Agimos diariamente para trazer mais valor à sua vida com o aconselhamento fiável de que precisa para, juntos, conseguirmos atingir os melhores resultados.Com a Zome nunca vai estar perdido ou desacompanhado e encontrará algo que não tem preço: a sua máxima tranquilidade!É assim que se vai sentir ao longo de toda a experiência: Tranquilo, seguro, confortável e... FELIZ!Notas:1. Caso seja um consultor imobiliário, este imóvel está disponível para partilha de negócio. Não hesite em apresentar aos seus clientes compradores e fale connosco para agendar a sua visita.2. Para maior facilidade na identificação deste imóvel, por favor, refira o respetivo ID ZMPT ou o respetivo agente que lhe tenha enviado a sugestão.
AMI: 20298
Ref. Externa: ZMPT583844
Id: 1568003
Inicie sessão para guardar este imóvel e aceder à sua lista de favoritos em qualquer dispositivo.
208.000 €
Área de terreno : 305 m²
Este terreno urbano, situado em Odivelas, oferece uma excelente oportunidade para quem procura construir a sua moradia de sonho ou investir num projeto imobiliário. Área total: 305 m² (12.5 x 24.35 m) Área de construção: 342 m² Implantação: 114 m² (3 pisos) Principais características: Possibilidade de construção de moradia geminada Arquitetura Moderna Ideal para quem procura uma casa com duas frentes, aproveitando luz natural e ventilação. 3 Pisos: Permite uma boa distribuição entre zona social (rés-do-chão), quartos (1º andar) e aproveitamento de sótão ou cave. Logradouro a tardoz com 9,35 m, ideal para jardim ou zona de lazer Vista desafogada e privilegiada sobre o rio, um fator diferenciador que valoriza o imóvel Com espaço generoso e excelente exposição solar, este terreno é perfeito para quem valoriza qualidade de vida, privacidade e uma envolvente natural. Tanto para uso próprio como para investimento. Investimento: Possibilidade de construir e vender/arrendar, aproveitando a procura elevada em Odivelas Localização tranquila, mas próxima de serviços, comércio e acessos rápidos a Lisboa Odivelas é uma zona em crescimento, com ótimas infraestruturas, escolas, transportes e comércio, tornando este investimento ainda mais atrativo. Não procure mais venha conhecer o seu próximo investimento Estarei ao seu dispor para qualquer questão
AMI: 11721
Ref. Externa: HMBK5002
Id: 1534000
Inicie sessão para guardar este imóvel e aceder à sua lista de favoritos em qualquer dispositivo.
208.000 €
Área de terreno : 342 m²
Se procura o equilíbrio perfeito entre a serenidade de um bairro familiar e tranquilo á proximidade da cidade , este é o local ideal para construir a sua moradia de sonho. A posição elevada do terreno oferece uma vista desafogada e única sobre o Rio Tejo e a linha do horizonte (mar), proporcionando um cenário inesquecível. Excelente proximidade a Lisboa com acessos rápidos aos principais eixos rodoviários (Cril,Crel A1e eixo Norte/Sul ) e perto de todo o tipo de comércio e serviços. Características: -Área de Implantação - 114 M2 -3 pisos -Geminada -2 Frentes -Logradouro -Agua -Electricidade -Gás natural -Saneamento básico. -Alvará 04/2011 Marque já a sua visita!
AMI: 18259
Ref. Externa: 66793-COMP60672
Id: 1531189
Inicie sessão para guardar este imóvel e aceder à sua lista de favoritos em qualquer dispositivo.
547.000 €
Área de terreno : 4400 m²
Terreno Urbanizável em Caneças - Potencial de Construção de 2.380 m². Apresentamos uma excelente oportunidade de investimento num terreno urbanizável localizado em Caneças, uma zona serena, em constante desenvolvimento e com forte potencial de valorização futura. Com uma área bruta de construção prevista de 2.380 m², este terreno oferece versatilidade para diversos tipos de projetos, seja para fins habitacionais ou industriais, tornando-se uma solução ideal para investidores, promotores ou empresas que procuram expandir a sua atividade. Localização Privilegiada Situado numa das áreas mais tranquilas e acessíveis de Caneças, este terreno beneficia de uma localização estratégica, com ótimos acessos viários: A poucos minutos da IC16, CREL e IC17, facilitando a ligação rápida a Lisboa e concelhos vizinhos. A apenas 2 minutos do centro de Caneças e da Escola Secundária de Caneças, garantindo proximidade a serviços, comércio e equipamentos essenciais. Principais Características Classificação Urbanística: Terreno inserido em Zona Urbanizável segundo o PDM. Versatilidade de Uso: Possibilidade de desenvolvimento de projetos habitacionais ou industriais. Infraestruturas Completas: Equipado com iluminação pública, rede de esgotos, telecomunicações e abastecimento de água, garantindo condições ideais para a construção imediata. Esta é uma oportunidade única de adquirir um terreno versátil, bem localizado e com excelentes condições para investimento. Uma solução sólida para quem procura segurança, potencial de crescimento e um ambiente privilegiado. Descubra o seu parceiro de confiança desde 2009! Na Predipereira, estamos aqui para si! Explore as oportunidades em Predipereira.net OU visite-nos em facebook.com/predipereira.lda. Como Intermediários de Crédito Certificados pelo Banco de Portugal (n.º0002387), estamos prontos para orientá-lo GRATUITAMENTE em todo o processo de crédito. A jornada para os seus sonhos começa aqui, connosco!
AMI: 8546
Ref. Externa: PP5785
Id: 1508842
Inicie sessão para guardar este imóvel e aceder à sua lista de favoritos em qualquer dispositivo.
135.000 €
Área de terreno : 194 m²
Lote de Terreno com 194m2 para construção de moradia T3. Fotos 3D, meramente ilustrativas.Localizada no Bairro Trigache, na freguesia de Pontinha Famões, concelho deOdivelas, este terreno fica num gaveto virado a sul que lhe proporciona amelhor vista e a protecção climática vinda de Norte. O Bairro encontra-se comvárias moradias em construção e perto de todo o tipo de comércio, serviços eacessos rodoviários, estando numa zona com pouco movimento. A 4km do metro de Odivelas, 6km do Hospital Beatriz Ângelo e do ContinenteLoures e a 3km da futura estação do Metro do Jardim da Radial. O terreno viabiliza uma moradia 194m2 com 95,87m2 de implantação com 2 ou 3 pisos de construção.ÁREA Piso 1 – 102,64M2 : Sala, cozinha, wc, hall e escritório, churrasqueira,estacionamento e zona arrumos.ÀREA Piso 2 – 75,70M2: 2 Suites, varanda e terraço. ÀREA BRUTA DE CONSTRUÇÃO: Até 180 M2 Contacte-me para todos os esclarecimentos. --------------------------------------------------------------------------------------- ENG 194m2 plot of land for the construction of a three-bedroom house. 3D photos are for illustrative purposes only. Located in the Trigache neighborhood, in the parish of Pontinha Famões, municipality of Odivelas, this plot is on a south-facing corner, providing the best view and protection from the north wind. The neighborhood has several houses under construction and is close to all kinds of shops, services, and road access, while being in a quiet area. It is 4 km from the Odivelas metro station, 6 km from Beatriz Ângelo Hospital and Continente Loures, and 3 km from the future Jardim da Radial metro station. The plot allows for a 194m² house with a footprint of 95.87m² and 2 or 3 floors. AREA Floor 1 – 102.64M²: Living room, kitchen, bathroom, hall and office, barbecue, parking and storage area. AREA Floor 2 – 75.70m²: 2 suites, balcony, and terrace. GROSS CONSTRUCTION AREA: Up to 180m² Please contact me for any further information. ----------------------------------------------------------------------------------------- FR Terrain de 194 m² pour la construction d'une maison T3. Photos 3D, à titre indicatif uniquement. Situé dans le quartier de Trigache, dans la paroisse de Pontinha Famões, commune d' Odivelas, ce terrain se trouve dans un coin orienté vers le sud, ce qui lui offre la meilleure vue et une protection climatique contre le nord. Le quartier compte plusieurs maisons en construction et se trouve à proximité de tous types de commerces, services et accès routiers, dans une zone peu fréquentée. À 4 km du métro d'Odivelas, à 6 km de l'hôpital Beatriz Ângelo et du Continente Loures et à 3 km de la future station de métro Jardim da Radial. Le terrain permet la construction d'une maison de 194 m² avec une superficie de 95,87 m² sur 2 or 3 étages. SUPERFICIE 1er étage - 102,64 m² : salon, cuisine, salle de bains, hall et bureau, barbecue, parking et débarras. SUPERFICIE 2e étage – 75,70 m² : 2 suites, balcon et terrasse. SUPERFICIE BRUTE DE CONSTRUCTION : jusqu'à 180 m² N'hésitez pas à me contacter pour toute question. ;ID RE/MAX: 122141386-20
AMI: 7772
Ref. Externa: 122141386-20
Id: 1506973
Inicie sessão para guardar este imóvel e aceder à sua lista de favoritos em qualquer dispositivo.
135.000 €
Área de terreno : 194 m²
Lote de Terreno com 194m2 para construção de moradia T3. Fotos 3D, meramente ilustrativas.Localizada no Bairro Trigache, na freguesia de Pontinha Famões, concelho deOdivelas, este terreno fica num gaveto virado a sul que lhe proporciona amelhor vista e a protecção climática vinda de Norte. O Bairro encontra-se comvárias moradias em construção e perto de todo o tipo de comércio, serviços eacessos rodoviários, estando numa zona com pouco movimento. A 4km do metro de Odivelas, 6km do Hospital Beatriz Ângelo e do ContinenteLoures e a 3km da futura estação do Metro do Jardim da Radial. O terreno viabiliza uma moradia 194M2 com 120M2 de implantação com 2 ou 3 pisos de construção.Àrea Piso 1 – 96,53 M2 : Sala, cozinha, wc, hall, churrasqueira,estacionamento e zona de arrumos.Àrea Piso 2 – 73,93 M2 : 1 Master Suit 23m2 (pode converter em 2), varanda e terraço. ÀREA TOTAL CONSTRUÇÃO : até 180 M2Contacte-me para todos os esclarecimentos. --------------------------------------------------------------------------------------- ENG 194m2 plot of land for the construction of a 3-bedroom house. 3D photos are for illustrative purposes only. Located in the Trigache neighbourhood, in the parish of Pontinha Famões, municipality of Odivelas, this plot is on a south-facing corner, providing the best view and protection from the north wind. The neighbourhood has several houses under construction and is close to all kinds of shops, services and road access, being in an area with little traffic. It is 4 km from the Odivelas metro station, 6 km from the Beatriz Ângelo Hospital and Continente Loures, and 3 km from the future Jardim da Radial metro station. The plot allows for a 194 m² house with a 120 m² footprint and 2 or 3 floors of construction. Area Floor 1 - 96.53 m²: Living room, kitchen, bathroom, hall, barbecue, parking and storage area. Area Floor 2 – 73.93 m²: 1 master suite 23 m² (can be converted into 2), balcony and terrace. TOTAL CONSTRUCTION AREA: 180 m² Please contact me for any further information. ----------------------------------------------------------------------------------------- FR Terrain de 194 m² pour la construction d'une maison T3. Photos 3D, à titre indicatif uniquement. Situé dans le quartier de Trigache, dans la paroisse de Pontinha Famões, commune d' Odivelas, ce terrain se trouve dans un coin orienté vers le sud, ce qui lui offre la meilleure vue et une protection climatique contre le nord. Le quartier compte plusieurs maisons en construction et se trouve à proximité de tous types de commerces, services et accès routiers, dans une zone peu fréquentée. À 4 km du métro d'Odivelas, à 6 km de l'hôpital Beatriz Ângelo et du Continente Loures et à 3 km de la future station de métro Jardim da Radial. Le terrain permet la construction d'une maison de 194 m² avec une superficie de 120 m² sur 2 or 3 étages. Surface du 1er étage - 96,53 m² : salon, cuisine, salle de bains, hall, barbecue, parking et débarras. Surface du 2e étage – 73,93 m² : 1 suite parentale de 23 m² (pouvant être convertie en 2 chambres), balcon et terrasse. SUPERFICIE TOTALE DE CONSTRUCTION : 180 m² N'hésitez pas à me contacter pour toute question. ;ID RE/MAX: 122141386-19
AMI: 7772
Ref. Externa: 122141386-19
Id: 1506972
Inicie sessão para guardar este imóvel e aceder à sua lista de favoritos em qualquer dispositivo.
980.000 €
Área de terreno : 850 m²
Oportunidade única para investidores e construtores! Terreno com PiP Aprovado na Ramada, área total de 850 m2, com moradia para demolição. Este terreno é uma excelente oportunidade para investidores e construtores, tem projecto de arquitetura para construção de prédio para habitação coletiva e actividades económicas. Localizado numa das zonas mais tranquilas e valorizadas da Ramada. Oferece as condições ideais para construção do prédio residencial, beneficiando de excelente exposição solar e ótimos acessos. A localização é um dos grandes destaques: Inserido numa área consolidada, com predominância de habitação e serviços, garante um ambiente seguro e familiar, com tudo o que é necessário no seu dia a dia. A poucos minutos encontra supermercados, escolas, farmácias, comércio local e Zonas verdes. Acessos rodoviários são excepcionais, permitindo uma ligação rápida a Odivelas, Lisboa e toda a área metropolitana. O terreno fica próximo das vias principais, como a CRIL, CREL, E A8. Facilitando deslocações rápidas e práticas. A orientação solar é privilegiada oferece luminosidade durante todo o dia, ideal para um projecto de habitação que privilegie eficiência energética, conforto e bem estar. Área de implantação 207,73 m2 Área de construção de habitação 648,13 m2 Área de construção de actividades económicas 106,00 m2 Área de construção de estacionamento 71,14 m2 Área de construção de arrecadações ou áreas técnicas 104,14 m2 Área de construção total 929,68m2 Nº Pisos acima da CS 4 Nº Pisos abaixo da CS 1 Altura da fachada 12,94 m2 Nº de Fogos 6 Nº de Ocupações 1 Nº de Lugares de estacionamento 12
AMI: 22377
Ref. Externa: HT_50203
Id: 1469931
Inicie sessão para guardar este imóvel e aceder à sua lista de favoritos em qualquer dispositivo.
46.500 €
Área de terreno : 278 m²
Se procura o local ideal para construir a sua nova casa, esta é a oportunidade perfeita! Situado numa zona tranquila e com pouca movimentação, este terreno destaca-se pela sua excelente localização e vistas desafogadas sobre Odivelas e Loures. Localização privilegiada: Apenas a 10 minutos do Dolce Vita Tejo e a 5 minutos do Odivelas Parque, com acesso rápido e fácil às principais vias rodoviárias IC22, IC17, A8, A9, Calçada de Carriche e Túnel do Grilo. Nas proximidades encontra também o Hospital Beatriz Ângelo e várias superfícies comerciais de grande dimensão. Características do Terreno: Área total do terreno: 278 m² Área de Implantação: 115 m2. Área Construção: 115 m² Um espaço com grande potencial para edificar a casa dos seus sonhos, num ambiente calmo e bem localizado. Descubra o seu parceiro de confiança desde 2009! Na Predipereira, estamos aqui para si! Explore as oportunidades em Predipereira.net OU visite-nos em facebook.com/predipereira.lda. Como Intermediários de Crédito Certificados pelo Banco de Portugal (n.º0002387), estamos prontos para orientá-lo GRATUITAMENTE em todo o processo de crédito à habitação. A jornada para a casa dos seus sonhos começa aqui, connosco!
AMI: 8546
Ref. Externa: PP5767
Id: 1460920
Inicie sessão para guardar este imóvel e aceder à sua lista de favoritos em qualquer dispositivo.
675.000 €
Área de terreno : 500 m²
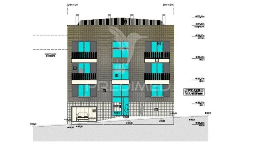
Venda de lote de terreno urbano com projeto de arquitetura aprovado para prédio residencial, localizado no Bairro dos Pedernais, Odivelas. O Lote situa-se num gaveto e possui uma área 500m2 sendo a área de implantação é de 500 m2. A área bruta construção é de 1038 m2, distribuída por 4 pisos acima do solo e 1 piso em cave.O projeto contempla a construção de um edifício com 9 apartamentos de tipologias T2 e T3, estacionamentos e arrecadações.Possui 6 apartamentos de tipologia T2 e 3 apartamentos T3, com áreas na ordem de 98 m² e 128 m², respetivamente. O projeto inclui ainda 15 lugares de estacionamento no piso Cave e arrecadações no Sotão.Inserido num bairro tranquilo de Odivelas, com rápido acesso às principais vias rodoviárias (IC22, CRIL, CREL, Calçada de Carriche, A8, túnel do Grilo, etc)- Proximidade a todo o comércio e serviços, Hospital, ao centro de Odivelas, às Colinas do Cruzeiro, Centro Comercial Strada e Ramada, onde está prevista a saída do metro de Odivelas. Possuímos para venda mais 2 lotes na mesma urbanização. Se vendidos os 3 em conjunto, o total de área bruta de construção é de 2202 m2.Contacte-me para mais informações ou agendar visita. Predimed Imobiliária, Mediação Imobiliária, Lda.Avenida Brasil 43, 12º Andar, 1700-062 LisboaLicença AMI nº 22503Pessoa Coletiva nº 517 239 345Seguro Responsabilidade Civil: Nº de Apólice RC65379424 Fidelidade Características: Auto-Estrada;Centro Comercial;Escola;Farmácia;Hipermercado;Hospital;Transportes Públicos
AMI: 13558
Ref. Externa: 056212
Id: 1449702
Inicie sessão para guardar este imóvel e aceder à sua lista de favoritos em qualquer dispositivo.
450.000 €
Área de terreno : 335 m²
O preço indicado é referente a cada lote, podendo ser vendidos juntos ou separados. Venda de dois Lotes de terreno urbano com projeto aprovado para prédio residencial, com licença de construção e caução pagas, localizado no Bairro dos Pedrenais, Ramada em Odivelas. Cada Lote possui uma área 335 m2 e o projeto contempla a construção de um edifício com uma área de implantação de 335 m2. A área bruta construção é de 582.06 m2, sendo esta distribuída por 5 pisos: 3 pisos habitacionais, Cave e sótão. Cada lote permite a construção de um edifício de 6 apartamentos de tipologia T2 com áreas na ordem de 86 m², 6 estacionamentos no piso cave e 5 arrecadações no sótão. Inserido num bairro tranquilo de Odivelas, com rápido acesso às principais vias rodoviárias (IC22, CRIL, CREL, Calçada de Carriche, A8, túnel do Grilo, etc).Proximidade a todo o comércio e serviços, Hospital, ao centro de Odivelas, às Colinas do Cruzeiro, Centro Comercial Strada e Ramada, onde está prevista a saída do metro de Odivelas. Possuímos para venda mais 1 lote (Lote 187) na mesma urbanização. Se vendidos os 3 em conjunto, o total de área bruta de construção é de 2202 m2.Lote 187Área de implantação: 500 m2. Área bruta construção: 1038 m2Contacte-me para mais informações ou agendar visita. O Lote situa-se num gaveto e possui uma área 500m2 sendo a área de implantação é de 500 m2. A área bruta construção é de 1038 m2, distribuída por 4 pisos acima do solo e 1 piso em cave.O projeto contempla a construção de um edifício com 9 apartamentos de tipologias T2 e T3, estacionamentos e arrecadações.Possui 6 apartamentos de tipologia T2 e 3 apartamentos T3, com áreas na ordem de 98 m² e 128 m², respetivamente. O projeto inclui ainda 15 lugares de estacionamento no piso Cave e arrecadações no Sotão.Inserido num bairro tranquilo de Odivelas, com rápido acesso às principais vias rodoviárias (IC22, CRIL, CREL, Calçada de Carriche, A8, túnel do Grilo, etc)- Proximidade a todo o comércio e serviços, Hospital, ao centro de Odivelas, às Colinas do Cruzeiro, Centro Comercial Strada e Ramada, onde está prevista a saída do metro de Odivelas. Possuímos para venda mais 2 lotes na mesma urbanização. Se vendidos os 3 em conjunto, o total de área bruta de construção é de 1938 m2.Contacte-me para mais informações ou agendar visita. Predimed Imobiliária, Mediação Imobiliária, Lda.Avenida Brasil 43, 12º Andar, 1700-062 LisboaLicença AMI nº 22503Pessoa Coletiva nº 517 239 345Seguro Responsabilidade Civil: Nº de Apólice RC65379424 Fidelidade Características: Auto-Estrada;Centro Comercial;Escola;Farmácia;Hipermercado;Hospital;Transportes Públicos
AMI: 13558
Ref. Externa: 056213
Id: 1449640
Inicie sessão para guardar este imóvel e aceder à sua lista de favoritos em qualquer dispositivo.
750.000 €
Área de terreno : 2784 m²
Terreno urbano com 2784 m2 perto das Colinas do Cruzeiro em zona residencial consolidada com PIP para 9 fogos e 34 lugares de estacionamento.As Colinas do Cruzeiro são conhecidas pela vasta diversidade de comércio, restaurantes, serviços, com escolas de 1º e 2º ciclo, com um Parque urbano e desportivo onde poderá fazer caminhadas, atividades de lazer e desporto desfrutando do conforto e segurança.Perto dos principais eixos rodoviários de acesso a Lisboa, desde a IC17/CRIL; IC16; IC19; CREL/A9; A8; A5; A1; 2º circular; eixo norte/sul, aeroporto, ponte 25 de abril e ponte Vasco da Gama e apenas 10 minutos de carro do Metro do Sr. Roubado. Para mais informações, contacte-me.
AMI: 16799
Ref. Externa: 2203-1955
Id: 1432386
Inicie sessão para guardar este imóvel e aceder à sua lista de favoritos em qualquer dispositivo.
175.000 €
Área de terreno : 7764 m²
Terreno Rústico com 7.764m2 situado na Ramada, numa localização privilegiada que combina tranquilidade com proximidade a serviços e ótimos acessos. Terreno com viabilidade de construção de apoio agrícola, sujeita a consulta ao Plano Diretor Municipal da Camara Municipal de Odivelas. O terreno conta com 100 oliveiras centenárias, 2 loureiros e na margem inferior passa a ribeira e Caneças, criando um cenário único e cheio de possibilidades. Este imóvel está angariado com comissão de 5%+IVA, na KW Portugal acreditamos na partilha (50%-50%) como uma forma de prestar o melhor serviço ao cliente e por isso se é profissional do sector e tem um cliente comprador qualificado, contate-nos e agende a sua visita!
AMI: 7183
Ref. Externa: KWPT-008961
Id: 1431093
Inicie sessão para guardar este imóvel e aceder à sua lista de favoritos em qualquer dispositivo.
1.651.672 €
Área de terreno : 9000 m²
Lote industrial
AMI: 15760
Ref. Externa: 1208-2141
Id: 1429808
Inicie sessão para guardar este imóvel e aceder à sua lista de favoritos em qualquer dispositivo.
Área de terreno : 390 m²
Localizado no tranquilo bairro residencial de Casal do Privilégio, na Póvoa de Santo Adrião, este imóvel apresenta uma excelente oportunidade de investimento. Com uma área de terreno generosa de 390m2, com possibilidade de construção de prédio.Este imóvel tem a possibilidade de construção de um prédio, de acordo com o Plano Diretor Municipal (PDM), o terreno está localizado numa área passível de construção, oferecendo a perspetiva de construir um edifício entre 6 a 8 fogos com 1200m2 área de construção, com um piso na base da soalheira e o resto acima da soalheira.Possível area de construção 1200m2 que perfaz um valor de 283/m2, o que representa uma oportunidade única de investimento.O imóvel conta também com duas frações existentes, existe a possibilidade de reabilitação das frações sendo que a primeira fração T1 encontra-se devoluta, oferecendo um amplo espaço que pode ser adaptado conforme as necessidades do novo proprietário. A segunda fração T1+1 necessita de obras de reabilitação, proporcionando a oportunidade de criar um espaço personalizado e moderno.Esta localização estratégica, aliada à versatilidade do terreno, permite explorar diferentes opções de investimento, desde a reabilitação para fins residenciais até à construção de um edifício multifamiliar. Com as condições favoráveis indicadas pelo PDM, este imóvel destaca-se como uma oportunidade única no mercado imobiliário.Não perca esta oportunidade de investimento único! Entre em contato connosco para obter mais informações! Esta propriedade encontra-se angariada em exclusividade. No entanto, partilhamos 50% com qualquer agente de mediação imobiliária de forma a potencializar o melhor serviço ao cliente.
AMI: 21960
Ref. Externa: 2001010-209
Id: 1429321
Inicie sessão para guardar este imóvel e aceder à sua lista de favoritos em qualquer dispositivo.
Área de terreno : 203 m²
Terreno para construção de uma moradia unifamiliar com projeto aprovado na Câmara Municipal de Odivelas.Área de construção de 272m2Terreno urbano com área de 203m2, na Povoa de Santo AdriãoPossibilidade de venda da moradia construída "Chave na mão" com valor final estimado em 565.000 Projecto de moradia unifamiliar, composta por:Piso -1 (cave): Garagem e arrumosPiso 0: (Rés de chão): Cozinha, sala comum, escritório, WCPiso 1: Três quartos com closet, um deles em suite, mais um WC de apoio aos outros 2 quartos. Não perca esta oportunidade e venha conhecer o seu próximo projecto de casa!Para mais informações, vá ao nosso site KW PortugalDisponível para partilha com todas as mediadoras e profissionais do ramo imobiliário com licença AMI na proporção de 50/50. Características: Características Exteriores - Jardim; Terraço/Deck; Orientação - Nascente; Norte; Sul; Vistas - Vista cidade; Vista jardim; Outras características - Garagem; Varanda; Garagem para 2 Carros; Moradia em Banda; Moradia Geminada; Moradia; Acesso apropriado a pessoas com mobilidade reduzida;
AMI: 11160
Ref. Externa: 1204-4188
Id: 1428774
Inicie sessão para guardar este imóvel e aceder à sua lista de favoritos em qualquer dispositivo.
980.000 €
Área de terreno : 850 m²
Procura um investimento seguro e rentável? Apresentamos-lhe um terreno com 850 m², com projeto aprovado para a construção de um prédio habitacional moderno composto por 6 fogos , 1 loja comercial, arrecadações e lugares de estacionamento. O projeto inclui: 1 piso de garagem; 1 piso com loja de 120 m² equipada com W/C; 3 pisos de habitação (3 T1 e 3 T2), com varanda. Localizado numa zona residencial em franca expansão, com excelentes acessibilidades a escolas, comércio e vias rápidas, este investimento oferece forte potencial de valorização e rentabilidade garantida. Uma oportunidade ideal para quem procura investir com segurança e visão de futuro! Descubra o seu parceiro de confiança desde 2009! Na Predipereira, estamos aqui para si! Explore as oportunidades em Predipereira.net OU visite-nos em facebook.com/predipereira.lda. Como Intermediários de Crédito Certificados pelo Banco de Portugal (n.º0002387), estamos prontos para orientá-lo GRATUITAMENTE em todo o processo de crédito à habitação. A jornada para a casa dos seus sonhos começa aqui, connosco!
AMI: 8546
Ref. Externa: PP5729
Id: 1406780
Inicie sessão para guardar este imóvel e aceder à sua lista de favoritos em qualquer dispositivo.
1.300.000 €
Área de terreno : 4400 m²
Apresentamos um excelente terreno urbanizável localizado numa zona tranquila de Caneças, com enorme potencial de valorização. Trata-se de uma oportunidade única para investidores ou promotores imobiliários, com um projeto aprovado em 2003 para a construção de 24 fogos. Características principais: Localização privilegiada, inserida numa área residencial calma e em franco desenvolvimento; Excelentes acessos rodoviários: a poucos minutos da IC16, CREL e IC17, permitindo rápida ligação a toda a Grande Lisboa; Proximidade ao centro de Caneças (2 minutos) e a apenas 10 minutos de Lisboa; Envolvente com vasta oferta de comércio e serviços, como supermercados, farmácia, restaurantes, pastelarias, papelaria, entre outros. Ideal para quem procura um projeto com grande rentabilidade futura numa zona cada vez mais procurada. Não perca esta oportunidade de investimento com elevado potencial. Descubra o seu parceiro de confiança desde 2009! Na Predipereira, estamos aqui para si! Explore as oportunidades em Predipereira.net OU visite-nos em facebook.com/predipereira.lda. Como Intermediários de Crédito Certificados pelo Banco de Portugal (n.º0002387), estamos prontos para orientá-lo GRATUITAMENTE em todo o processo de crédito à habitação. A jornada para a casa dos seus sonhos começa aqui, connosco!
AMI: 8546
Ref. Externa: PP5724
Id: 1402767
Inicie sessão para guardar este imóvel e aceder à sua lista de favoritos em qualquer dispositivo.
980.000 €
Área de terreno : 850 m²
Ref.: MJL3554 - Lote com 850 m2 com projeto aprovado na Ramada | Odivelas Excelente oportunidade de investimento! Lote de terreno com área total de 850 m² com projeto aprovado para construção de habitação coletiva com 6 fogos (sendo 3 apartamentos T1 e 3 T2) e uma loja com os seguintes indicadores urbanísticos: -Área de Implantação: 207,73 m²; -Área de construção de Habitação: 648,13 m²; -Área de construção de Atividades Económicas: 106,00 m²; -Área de construção de Estacionamento: 71,41 m²; -Área de construção de Arrecadações ou Áreas Técnicas: 104,14 m²; -Área de construção Total: 929,68 m²; -N.º de pisos acima da CS: 4; -N.º de pisos abaixo da CS: 1; -Altura da fachada: 12,94 m; -N.º de Fogos: 6; -N.º de Ocupações: 1; -N.º lugares de estacionamento: 12. Inserido numa envolvente urbana com amplas zonas verdes, o que confere qualidade de vida e grande atratividade para futuros residentes e investidores. A zona encontra-se em pleno desenvolvimento, o que reforça o potencial de valorização a curto/médio prazo. Ideal para investidores que procuram um projeto com escala e retorno seguro. Marque já a sua visita!
AMI: 8388
Ref. Externa: MJL3554
Id: 1400812
Inicie sessão para guardar este imóvel e aceder à sua lista de favoritos em qualquer dispositivo.
Estes agentes são especialistas nesta zona:
Inicie sessão para ocultar este imóvel das suas pesquisas e manter a sua lista de resultados organizada.
Guardar favoritos
Este imóvel foi guardados nos seus favoritos com sucesso.
Para poder guardar pesquisa deverá ter a sua sessão iniciada.
Caso não tenha uma conta, deverá criar uma.
A sua pesquisa foi guardada com sucesso!
© Copyright 2023 | CASACERTA. All rights reserved
Este site utiliza cookies. Ao navegar no site estará a consentir a sua utilização.
Para mais informações sobre os cookies pode consultar a
política de privacidade.